Für einen individuellen Ausdruck passen Sie bitte die
Einstellungen in der Druckvorschau Ihres Browsers an.
Regelwerk

ASR 20 - Steigeisengänge und Steigleitern

StandJuni 1997
(BAUaaufgehoben)


Arbeitsstätten-Richtlinie (ASR)
Zu § 20 der Arbeitsstättenverordnung

Nachfolgeregelung ASR A1.8

1. Anwendungsbereich

1.1 Diese Richtlinie findet Anwendung auf Steigeisen, Steigeisengänge und Steigleitern an Bauwerken, Gebäudeteilen, Masten, Behältern, Maschinen und sonstigen Betriebseinrichtungen sowie in Gruben und Schächten.

1.2 Diese Richtlinie findet keine Anwendung auf Steigeisen, Steigeisengänge und Steigleitern, die ausschließlich als Angriffs- und Rettungswege für die Feuerwehr dienen, an Hausschornsteinen und freistehenden Schornsteinen.

2. Begriffe

2.1 Steigeisen sind einzelne, vorwiegend an senkrechten Bauteilen fest angebrachte Auftritte.

2.2 Steigeisengänge sind Aufstiege mit ein- oder zweiläufig übereinander angeordneten Steigeisen.

2.3 Steigleitern mit Seitenholmen sind ortsfeste Aufstiege, die senkrecht oder nahezu senkrecht angebracht sind, mit zwei tragenden HoImen, zwischen denen die Sprossen angeordnet sind.

2.4 Steigleitern mit Mittelholm sind ortsfeste Aufstiege, die senkrecht oder nahezu senkrecht angebracht sind, mit einem tragenden Holm, an dem beidseitig höhengleich Sprossen angebracht sind.

2.5 Steigschutzeinrichtungen sind Teile der persönlichen Schutzausrüstungen gegen Absturz, die vorwiegend an Steigleitern oder Steigeisengängen angebracht sind. Sie bestehen aus freibeweglichen Fangeinrichtungen an Führungen (z.B. Schienen, Seile) und sichern Personen, die mit einem Auffanggurt und einer Zwischenverbindung an der Fangeinrichtung angeschlagen sind, gegen Absturz 1).

2.6 Rückenschutz ist eine den Bewegungsfreiraum des Benutzers begrenzende Einrichtung.

2.7 Ruhebühnen sind Flächen zum Ausruhen von Personen, die unmittelbar an oder neben Steigleitern oder Steigeisengängen angeordnet sind und aus einer oder mehreren Einzelflächen bestehen.

3. Allgemeines

3.1 Steigeisen, Steigeisengänge und Steigleitern sollen nach den Bestimmungen dieser Richtlinie und im übrigen entsprechend den allgemein anerkannten Regeln der Technik beschaffen sein und betrieben werden. Abweichungen sind zulässig, wenn die gleiche Sicherheit auf andere Weise gewährleistet ist.

3.2 Die in dieser Richtlinie enthaltenen Technischen Regeln schließen andere, mindestens ebenso sichere Lösungen nicht aus, die auch in Technischen Regeln anderer EG-Mitgliedstaaten ihren Niederschlag gefunden haben können.

3.3 Für Steigeisen und Steigeisengänge in Arbeitsstätten wurden die "Sicherheitsregeln für Steigeisen und Steigeisengänge" des Hauptverbandes der gewerblichen Berufsgenossenschaften e.V. (ZH 1/542), Ausgabe April 1994, zugrunde gelegt. Für Steigleitern ist die DIN 18799 "Steigleitern an baulichen Anlagen"; Teil 1: "Steigleitern mit Seitenholmen; Sicherheitstechnische Anforderungen und Prüfungen", Ausg. März 1995 sowie Teil 2: "Steigleitern mit Mittelholm; Sicherheitstechnische Anforderungen und Prüfungen", Ausg. März 1995, zugrundegelegt.

Für Steigschutzeinrichtungen ist die Achte Verordnung zum Gerätesicherheitsgesetz (Verordnung über das Inverkehrbringen von persönlichen Schutzausrüstungen - 8. GSGV) zu beachten.

4. Beschaffenheit

4.1 Werkstoffe

4.1.1 Steigeisen und Steigleitern müssen aus dauerhaften Werkstoffen, die den jeweiligen Betriebsverhältnissen gerecht werden, hergestellt sein, z.B. Stahl, Leichtmetall.

4.1.2 Steigeisen und Steigleitern müssen gegen Korrosion geschützt sein. Die Auswahl geeigneter Werkstoffe, Korrosionsschutzstoffe und -verfahren richtet sich nach der mechanischen, chemischen und thermischen Beanspruchung der einzelnen Bauteile. Bei Steigeisen und Steigleitern in explosionsgefährdeten Bereichen der Zonen 0 und 1 (z.B. Einsteigschächte von umschlossenen Abwasserkanälen) sind die "Richtlinien für die Vermeidung der Gefahren durch explosionsfähige Atmosphäre mit Beispielsammlung - Explosionsschutz-Richtlinien - (EX-RL)" ZH 1/10, heranzuziehen.

4.2 Ausführung

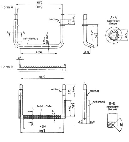
4.2.1 Steigeisen und Steigleitern müssen trittsicher sein, wobei der Begriff "trittsicher" sowohl die ausreichende Festigkeit als auch das sichere Begehen umfaßt. Hierzu gehört auch die Rutschhemmung unter Berücksichtigung der betrieblichen Verhältnisse. Steigeisen und Steigleitersprossen sind z.B. trittsicher, wenn die Auftrittsfläche eine Tiefe von mindestens 20 mm oder bei Verwendung von Rundprofilen der Durchmesser mindestens 25 mm beträgt. Bei besonderen betrieblichen Verhältnissen, beispielsweise bei Vorhandensein von Öl oder Fett, sind zusätzliche Maßnahmen gegen Abgleiten erforderlich, z.B. Profilierung der Auftrittsfläche oder geeignete Umhüllung. Siehe Bilder 1 und 3

4.2.2 Die Auftrittsbreite von Steigeisen und Steigleitersprossen ist ausreichend zu bemessen.

Als ausreichend gilt z.B., wenn die Auftrittsbreite von

Siehe Bilder 1, 3, 6 und 8

4.2.3 Steigeisen und Steigleitersprossen mit Mittelholm müssen gegen seitliches Abrutschen des Fußes gesichert sein. Dies wird z.B. erreicht durch eine beidseitige Seitenbegrenzung, deren Höhe mindestens 20 mm, gemessen ab Oberkante Trittfläche, beträgt. Abweichend davon gelten Steigeisen in Schächten der Abwasserableitung mit Schachtdurchmessern von 0,8 m Nennweite, soweit sie zugelassen sind, als ausreichend gegen seitliches Abrutschen des Fußes gesichert, wenn die Steigeisen eine Profilierung aufweisen. Siehe Bilder 1, 3 und 8

4.3 Bemessung 2:

4.4 Festigkeit 3:

5. Einbau und Anordnung

Steigeisen, Steigeisengänge und Steigleitern sind so anzuordnen und einzubauen, daß sie sicher begehbar sind. Dies bedeutet insbesondere:

5.1 Die Befestigung der Steigeisen und Steigleitern muß zuverlässig und dauerhaft sein. Zu berücksichtigen sind dabei die zu erwartenden Belastungen und die Tragfähigkeit der Befestigungsstelle.

5.2 Bei Steigeisen und Steigleitern muß der Abstand zur Befestigungsfläche ausreichend bemessen sein.

Dies wird erreicht durch einen Abstand zwischen Mitte der Auftrittsfläche des Steigeisens bzw. der Sprosse zur Befestigungsfläche von mindestens 150 mm. Siehe Bilder 1, 2, 3, 6, 7 und 8.

5.3 Die Steigeisen müssen gleiche Abstände, höchstens jedoch 333 mm, voneinander haben. Siehe Bilder 2, 4 und 5.

5.4 Der Abstand von der Vorderkante des Steigeisens bis zu festen Bauteilen oder fest angebrachten Gegenständen soll auf der begehbaren Seite mindestens 650 mm betragen. Für Steigleitern mit Rückenschutz siehe Bild 7

5.5 Bei zweiläufigen Steigeisengängen dürfen sich die Auftrittsflächen zweier aufeinander folgender Steigeisen in der Projektion nicht überschneiden. Siehe Bild 2

5.6 Steigeisengänge und Steigleitern sind so anzubringen, daß ein sicheres Ein- und Aussteigen gewährleistet ist.

5.6.1 Bei Steigeisengängen wird dies dadurch erreicht, daß der Abstand von der Standfläche bis zum untersten Steigeisen, sofern keine Leiter (Ansetzleiter) zum Besteigen vorgesehen ist, höchstens zwei Steigeisenabstände beträgt und der lotrechte Abstand zwischen oberstem Steigeisen und Austrittsstelle höchstens einen Steigeisenabstand beträgt. Bei Schächten mit Einstiegsöffnungen von nicht mehr als 650 mm Durchmesser kann der Abstand bis auf 500 mm vergrößert werden. Siehe Bilder 2 und 4.

5.6.2 Bei Steigleitern wird dies dadurch erreicht, daß die Eintrittsstelle unmittelbar über der Zugangsebene beginnt und die oberste Sprosse unterhalb der Austrittsstelle liegt. Dabei darf der Abstand zwischen Zugangsebene und Oberkante der ersten Sprosse sowie zwischen oberster Sprosse und Austrittsstelle den zulässigen Sprossenabstand nicht überschreiten. Siehe Bilder 6, 7 und 8

5.7 In Silos und Bunkern müssen Steigeisengänge bis zum Bodenansatz reichen.

6. Sicherung gegen Absturz von Personen

6.1 Steigeisengänge und Steigleitern müssen an ihren Austrittsstellen eine Haltevorrichtung haben, die sicheres Ein- und Aussteigen ermöglicht, z.B. Haltestange oder -griff. Siehe Bilder 4, 5 und 7

Bei Steigeisengängen ist die Haltevorrichtung an der Austrittsstelle mindestens 1 000 mm über diese hinauszuführen.

Bei Steigleitern ist die Haltevorrichtung an der Austrittsstelle bis 1 100 mm über diese hinauszuführen. Bei Steigleitern mit Rückenschutz ist dieser mindestens 100 mm unter die Oberkante der Haltevorrichtung mitzuführen. Siehe Bild 7

6.2 Steigeisengänge und Steigleitern mit mehr als 5 m Absturzhöhe müssen, soweit es betrieblich möglich ist, Einrichtungen zum Schutz gegen Absturz von Personen haben 4).

Als solche Einrichtungen gelten z.B.:

6.3 An Steigeisengängen und Steigleitern darf, abweichend von Abschnitt 6.2, bei besonderen betrieblichen Verhältnissen kein Rückenschutz als Absturzsicherung eingebaut sein. Dies gilt z.B. für Steigeisengänge und Steigleitern:

6.4 Steigeisengänge und Steigleitern mit Absturzhöhen von mehr als 10 m müssen mit Einrichtungen ausgerüstet sein, die den Einsatz von Steigschutz ermöglichen (siehe z.B. DIN EN 353 "Persönliche Schutzausrüstung gegen Absturz" Teil 1: "Steigschutzeinrichtungen mit fester Führung" und Teil 2: "Mitlaufende Auffanggeräte an beweglicher Führung", Ausgabe Dezember 1992). Siehe Bild 9

7. Ruhebühnen

7.1 Bei Steigleitern oder Steigeisengängen mit mehr als 80° Neigung zur Erdoberfläche müssen in Abständen von höchstens 10 m Ruhebühnen vorhanden sein.

7.2 Im Bereich von Ruhebühnen müssen Steigleitern und Steigeisengänge ungehindert begehbar sein.

7.3 Ruhebühnen müssen ausreichend dimensioniert sein. Die Maße sind z.B. ausreichend, wenn sie bei Steigleitern und Steigeisengängen mit Steigschutzeinrichtung mindestens 400 mm breit und 300 mm lang sind oder aus zwei klappbaren Trittflächen von mindestens 130 mm Breite und 300 mm Länge bei einem Achsabstand der Trittflächen von 250 (+/- 20) mm bestehen bei Steigleitern und Steigeisengängen mit Rückenschutz mindestens die Grundfläche des Rückenschutzes aufweisen.

Die Standsicherheit ist ausreichend, wenn z.B. die Anforderungen der DIN 18799 "Steigleitern an baulichen Anlagen" (siehe Ziffer 3.3) erfüllt sind.

8.Betrieb 6)

9. Weitere Hinweise:

DIN V 1264 "Steigeisen für zwei läufige Steigeisengänge"; Teil 1: "Anforderungen, Prüfungen und Überwachung für Steigeisen zum Einbetonieren oder zum Einbauen in Betonfertigteile", Ausgabe April 1993

DIN 1264 "Steigeisen für einläufige Steigeisengänge"; Teil 2: "Anforderungen, Prüfungen und Überwachung", Ausgabe November 1990

DIN V 1264 "Steigeisen für zweiläufige Steigeisengänge"; Teil 3: "Anforderungen, Prüfungen und Überwachung für Steigeisen zum Anschrauben und Durchschrauben", Ausgabe April 1993

DIN 1265 "Steigeisen für zweiläufige Steigeisengänge"; Steigeisen mit 150 mm Auftrittstiefe zum Einmauern oder Einbetonieren", Ausgabe Oktober 1992

DIN 3620 "Steigleitern für Kleinbauwerke der Wasserversorgung" Ausgabe April 1987

DIN 28017, Teil 3: "Kolonnen und sonstige Apparate; Steigleitern", Ausgabe September 1991

Unfallverhütungsvorschriften:

"Seilschwebebahnen und Schlepplifte", VBG 11c "Leitern und Tritte", VBG 74

"Silos", VBG 112 (Bezugsquelle: Carl Heymanns Verlag KG, Luxemburger Straße 449, 50939 Köln)

"Ortsentwässerung" GUV 7.4 (Bezugsquelle: Bundesverband der Unfallversicherungsträger der öffentlichen Hand e.V. (BAGUV), Fockensteinstraße 1, 81539 München)

________________

1) siehe z.B. Bild 9

2) siehe z.B. Abschnitt 3.3 sowie:

3) siehe auch Fußnote 1 sowie DIN 1264 Teil 1 "Steigeisen für zweiläufige Steigeisengänge, Anforderungen, Prüfungen, Überwachung" bei Steigleitern siehe Montageanleitung. bei Steigeisen siehe z.B. DIN V 19555 "Steigeisen für einläufige Steigeisengänge Steigeisen zum Einbau in Beton" bzw. Abschnitt 2.2 DIN 1264 Teil 2 "Steigeisen für einläufige Steigeisengänge; Anforderungen, Prüfungen, Überwachung"; bei Steigleitern siebe Montageanleitung.

4) siehe § 20 ArbStättV

5) siehe § 5 Abs. 9 und 10 UVV "Abwassertechnische Anlagen" (GUV 7.4) sowie Durchführungsanweisungen zu § 7 Abs. 1 UVV "Silos" (VBG 112) und Durchführungsanweisungen zu § 15 Abs. 4 UVV "Leitern und Tritte"

6) siehe "Sicherheitsregeln für Steigeisen und Steigeisengänge" (ZH 1/542)

10. Anhang

Bild 1: Beispiele für Steigeisen für einläufigen Steigeisengang
Bild 2: Beispiel eines Schachtes mit vorgefertigtem Schachtunterteil, Schwingungen und zweiläufigem Steigeisengang
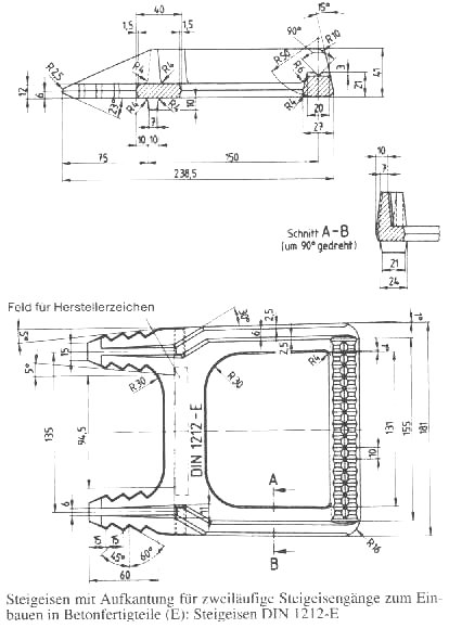
Bild 3: Steigeisen für zweiläufigen Steigeisengang
Bild 4: Einläufiger Steigeisengang
Bild 5: Ausziehbare Haltevorrichtung an Austrittsstelle
Bild 6: Steigleiter mit Seitenholmen und fester Führung der steigschutzeinrichtung nach DIN 18799-1
Bild 7: Steigleiter mit Steigholmen und Rückenschutz nach DIN 18799-1
Bild 8: Steigleiter mit Mittelholm und fester Führung der Steigschutzeinrichtung nach DIN 18799-2
Bild 9: Steigschutzeinrichtung mit fester Führung


ENDE

umwelt-online - Demo-Version


(Stand: 31.03.2021)

Alle vollständigen Texte in der aktuellen Fassung im Jahresabonnement
Nutzungsgebühr: ab 105.- € netto

(derzeit ca. 7200 Titel s.Übersicht - keine Unterteilung in Fachbereiche)

Preise & Bestellung

Die Zugangskennung wird kurzfristig übermittelt

? Fragen ?
Abonnentenzugang/Volltextversion