Für einen individuellen Ausdruck passen Sie bitte die
Einstellungen in der Druckvorschau Ihres Browsers an.
Regelwerk

ASR 38/2 Sanitätsräume
Arbeitsstätten-Richtlinie (ASR)
Zu § 38 Abs. 2 der Arbeitsstättenverordnung

Ausgabe Oktober 1986
(BarbBl. 10/86 S. 62aufgehoben)


Nachfolgeregelung ASR a 4.3

1. Begriffe

Sanitätsräume sind Räume, in denen bei einem Unfall oder bei einer Erkrankung im Betrieb Erste Hilfe geleistet oder die ärztliche Erstversorgung durchgeführt wird.

Vergleichbare Einrichtungen sind Fahrzeuge (Sanitätswagen) oder transportable Raumzellen (Sanitätscontainer). Als vergleichbare Einrichtungen gelten auch besonders hergerichtete, vom übrigen Raum nicht abgetrennte Sanitätsbereiche.

2. Anforderungen an Sanitatsräume und vergleichbare Einrichtungen

2.1 Lage

Sanitätsräume und vergleichbare Einrichtungen sollen im Erdgeschoß liegen, damit sie mit einer Krankentrage und von Krankenkraftwagen (KTW und RTW) leicht erreicht werden können.

Sanitätscontainer sind ebenerdig aufzustellen.

2.2 Kennzeichnung

Sanitätsräume und vergleichbare Einrichtungen müssen durch das weiße Kreuz auf grünem Grund mit weißer Umrandung gekennzeichnet sein*)

Zugänge von Sanitätsräumen müssen durch einen weißen waagerechten Pfeil auf rechteckigem grünen Grund mit weißer Umrandung gekennzeichnet sein. *)

2.3 Bauliche Gestaltung

Zur Aufnahme der erforderlichen Einrichtung und Ausstattung müssen für

Die im Bild 1 und 2 angegebenen Maße sind Mindestmaße. Die bildliche Darstellung und Anwendung der Einrichtungsgegenstände und der Ausstattung gilt als Beispiel.

2.4 Zugänge

Zugänge zu Sanitätsräumen und vergleichbaren Einrichtungen dürfen höchstens 3 Stufen haben. Bei Neubauten sind Höhenunterschiede in den Zugängen stufenlos, max. Steigung: 1:8-12,5 anzulegen.

2.5 Transportwege

Die verletzte Person muß vor Regen und Schneefall geschützt vom Sanitätsraum zum Rettungswagen transportiert werden können (z.B. Vordach).

2.6 Eingänge

Eingänge zu Sanitätsräumen sollen eine lichte Weite von mindestens 1,2 m und eine Höhe von mindestens 2,0 m haben.

Eingänge zu Sanitätscontainern oder anderen vergleichbaren Einrichtungen sollen eine lichte Weite von mindestens 0,8 m und eine Höhe von mindestens 2,0 m haben.

Eingangstüren müssen dicht schließen und feststellbar sein.

2.7 Fußböden, Wände und Decken

Fußböden, Wände und Decken von Sanitätsräumen und vergleichbaren Einrichtungen müssen leicht zu reinigen und zu desinfizieren sein. Der Fußbodenbelag muß aus undurchlässigen, verschleißfesten und rutschhemmenden Werkstoffen bestehen. Der Belag muß an den Kanten hochgezogen sein. (Als Wandbelag sind z.B. Fliesen oder abwaschbare glatte Anstriche geeignet.) Raumdecken sollen wischfesten Anstrich haben.

2.8 Wärmeisolierung

Bei Sanitätscontainern und anderen vergleichbaren Einrichtungen dürfen folgende Wärmedurchgangszahlen nicht überschritten werden:

Decken und Fußboden K = 0,6
Wände K = 1,0

2.9 Einrichtungen

In Sanitätsräumen und vergleichbaren Einrichtungen müssen mindestens folgende Einrichtungen installiert sein:

In Sanitätsräumen und vergleichbaren Einrichtungen oder in unmittelbarer Nähe muß eine Dusche mit beweglicher Brause vorhanden sein. Eine Toilette muß in unmittelbarer Nähe vorhanden sein.

2.10 Ausstattung

Sanitätsräume und vergleichbare Einrichtungen sind wie folgt auszustatten:

Inventar
Sanitätsraum Sanitätscontainer
Schreibtisch
Schreibtischstuhl
Schreibmaschine
Papierkorb
Schreibgelegenheit (z.B. Stehpult, Klappbrett, kleiner Schreibtisch)
Aushang der "Anleitung zur Ersten Hilfe bei Unfällen" mit den dort geforderten Angaben

Verbandbuch oder -kartei

Krankentrage DIN 13025

fahrbares Gestell für Krankentragen DIN 13034 oder DIN 13046

Liege, Kopf- und Fußende verstellbar  
Verbandtisch mit Unterschrank kombiniert, fahrbar
Stuhl mit Kopfstütze, abwaschbar
Stühle (Metallrahmen, abwaschbar) Klappsitze
Arzthocker
Infusionsständer oder Deckenhalter für Infusion auf Schiene verstellbar

verschließbare Schränke, die für die getrennte und übersichtliche Aufbewahrung von Verbandstoffen, Medikamenten, Geräten und Instrumenten zu unterteilen sind

Abwerfbehälter mit Plastikbeuteleinsatz und Deckel

Kleiderhaken

Wandschirme  


Rettungstransportmittel und Erste-Hilfe-Material
Sanitätsraum Sanitätscontainer
  Schleifkorb DIN 23400
Krankentrage DIN 13025
Vakuummatratze
Wirbelsäulenbrett 1100 × 600 mm
Rettungstuch mit Tasche DIN 13040
Gummitücher
Einwegdecken
Einweglaken für Liegen und Tragen
Kammernschienen
Inhalt von mindestens 2 Verbandkästen DIN 13169-E, ausgenommen Scheren

Instrumentenbesteck in transparenter Folie, bestehend aus:

  • Schere a 130 DIN 58252, Länge 130 mm, gerade, stumpf/stumpf, korrosionsbeständig
  • Kleiderschere, Länge 180 mm, mit Kopf und verzahnter Schneide, korrosionsbeständig
  • Erste-Hilfe-Schere DIN 58279
  • Pinzette a 130 × 2 DIN 58238, Länge 130 mm, anatomisch, korrosionsbeständig
  • Splitterpfinzette

Guedeltubus Größen 2, 3 und 5
Mundkeil (Gmmmi)
Mundtubus, nachgiebig, kurz, für Mund-zu-Mund-Beatmung
Sauerstoffmasken mit auswechselbaren oder nachfüllbaren O2-Speichern

Beatmungsgeräte (einmal in Tasche)
jeweils Beutel mit 2 Gesichtsmasken (mittel und groß)
Absauggerät in Tasche mit Absaug-Katheter
Naschen mit Infusionslösung, Inhalt 500 ml, zur Schockbekämpfung
Einmal-Infusionsbestecke mit Venenpunktionskanüle, steril
Einmal-Spritzen und Einmal-Kanülen
Alkoholtupfer
Blutdruckmeßgerät
Stethoskop
Mundspatel
Allzwecktücher
Begleitzettel für Verletzte
Taschenlampe


Pflegegeräte
Sanitätsraum Sanitätscontainer
Wärmflasche
Steckbecken mit Deckel
Einweg-Urinale
Einweg-Nierenschalen
Einweg-Trinkbecher
Einweg-Handschuhe
Einweg-Bekleidung
Schutzmäntel


Fein- und Grobdesinfektionsmittel
Sanitätsraum Sanitätscontainer
Seife für Seifenspender
Reinigungsmittel
Hautschutzcreme
Nagelbürste
Nagelschere
Nagelfeile
Zellstoff


Arzneimittel
Sanitätsraum Sanitätscontainer
Nach ärztlichen Angaben unter Verschluß


Bereitschaftstasche
Sanitätsraum Sanitätscontainer
Rettungsdecke mindestens 2100 × 140 mm
Brandwundenverbandtücher
Verbandpäckchen
Heftpflaster
Mullbinden
Zellstoff
Dreiecktücher
Kleiderschere
Erste-Hilfe-Schere
Einweg-Handschuhe
Mundkeil (Gummi)
Zungenspatel
Begleitzettel für Verletzte
Schreibstift
Taschenlampe

3. Verwendung vergleichbarer Einrichtungen

Vergleichbare Einrichtungen sollen nur im Sonderfall (z.B. Sanitätscontainer bzw. Sanitätswagen bei weitläufigen Arbeitsstätten, großen Baustellen) Verwendung finden. Die Abmessungen vergleichbarer Einrichtungen brauchen nicht denen von Sanitätsräumen zu entsprechen. Die Aufstellung der vergleichbaren Einrichtungen hängt von den möglichen Unfallgefährdungen und den erforderlichen Erste-Hilfe-Maßnahmen ab.



Bild 1: Grundriß eines Sanitätsraumes.

  1. Krankentrage, fahrbar (200 × 60),
  2. Aktionsfläche (Durchmesser 300),
  3. Liege (195 × 65),
  4. Behandlungsstuhl,
  5. Verbandtisch mit Unterschrank, fahrbar (70 × 50),
  6. Materialschrank (100 × 45),
  7. Vorratsschrank (100 × 45),
  8. Medikamentenschrank (60 × 30),
  9. Infusionsständer,
  10. Waschständer mit Schüssel,
  11. Akku-Notleuchte,
  12. Wandschirm,
  13. Waschbecken,
  14. Dusche (80 × 80),
  15. Schreibtisch (110 × 55),
  16. Schreibtischstuhl,
  17. Stuhl,
  18. Stuhl,
  19. Papierkorb,
  20. Abwerfbehälter.

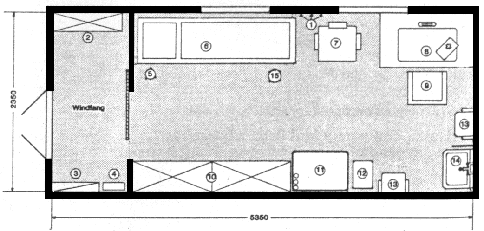
Bild 2 Grundriß eines Sanitätscontainers.

  1. 3 Kleiderhaken
  2. Schleifkorb und Vakuummatraze
  3. Krankentrage
  4. Bereitschaftstasche
  5. Infusionsständer
  6. Krankentrage auf Fahrgestell
  7. Untersuchungsstuhl
  8. Schreibgelegenheit
  9. Stuhl
  10. Anbau-System ERSTE HILFE
  11. Verbandtisch (fahrbar)
  12. Abwerfbehälter
  13. 2 Klappsitze
  14. Waschbecken
  15. Arzthocker
ENDE

*

umwelt-online - Demo-Version


(Stand: 31.03.2021)

Alle vollständigen Texte in der aktuellen Fassung im Jahresabonnement
Nutzungsgebühr: ab 105.- € netto

(derzeit ca. 7200 Titel s.Übersicht - keine Unterteilung in Fachbereiche)

Preise & Bestellung

Die Zugangskennung wird kurzfristig übermittelt

? Fragen ?
Abonnentenzugang/Volltextversion