![]() |
zurück | ![]() |
4 Maße
Die Mindestbreite der Belagfläche muss 600 mm und die Mindestlänge muss 1000 mm betragen.
Anmerkung: Die Mindestbreite von 600 mm gilt vor allem für Arbeiten in aufrechter Haltung. Bei anderen Arbeitshaltungen und je nach Art der Hindernisse (Lagerung) und Werkzeuge sollte die Belagfläche eine größere Breite aufweisen.
Die lichte Mindesthöhe zwischen Belagflächen muss 1,90 m betragen. Die lichte Mindesthöhe zwischen Belagflächen und der Stützkonstruktion der darüberliegenden Belagfläche darf nicht weniger als 1,75 m betragen.
5 Werkstoffe
Die Werkstoffe müssen gegen atmosphärische Korrosion gut widerstandsfähig und/oder geschützt sein und frei von jeglichen Einschlüssen und Fehlern sein, die ihren zufriedenstellenden Gebrauch beeinträchtigen können. Die Werkstoffe müssen den in den nationalen Anhängen angegebenen Normen entsprechen.
6 Berechnungsannahmen
6.1 Allgemeines
Die folgenden Unterabschnitte stellen Mindestanforderungen für den statischen Nachweis der fahrbaren Arbeitsbühnen einschließlich der Belagflächen und für die Sicherheit beim Verfahren. Alle Verkehrslasten sind als ruhende Lasten zu betrachten,
6.2 Lastannahmen
6.2.1 Vom Hersteller gegebene Eigenlast der fahrbaren Arbeitsbühne
6.2.2 vertikale Verkehrslasten
6.2.2.1 Gleichmäßig verteilte Last auf der Belagfläche1):
| - Gerüstgruppe 2: | 1,5 kN/m2 |
| - Gerüstgruppe 3: | 2,0 kN/m2 |
6.2.2.2 Konzentrierte Lust in ungünstigster Lage auf einer Belagfläche von
| - 500 mm X 500 mm | 1,5 kN |
| - 200 mm X 200 mm | 1,0 kN |
6.2.2.3 Vertikale gleichmäßig auf 4 Ständer verteilte Mindestverkehrslast auf der Konstruktion von 5,0 kN
6.2.3 Horizontale Verkehrslast
Auf der Ebene der obersten Belagfläche mit der Länge l:
6.2.3.1.
| l< 4,0 m | 0,3 kN |
| l > 4,0 m | 2 X 0,3 kN |
6.2.4 Flächenbezogene Horizontalkraft als Entsprechung einer Windlast
0,1 kN/m2multipliziert mit den entsprechenden aerodynamischen Kraftbeiwerten, siehe HD 1000 :1988
6.2.5 Last aufgrund einer Schrägstellung von 1 %. Zu berücksichtigende vertikale Lasten sind:
6.2.5.1 Eigenlast wie gegeben (siehe 6.2.1)
6.2.5.2 Vertikale Verkehrslast wie gegeben (siehe 6.2.2).
6.3 Festigkeit der Gesamtkonstruktion
Eine fahrbare Arbeitsbühne muss ausreichende Festigkeit aufweisen, um den ungünstigsten Lastfall aufzunehmen, wobei aus jeder der fünf Gruppen nach Tabelle 1 jeweils eine Zeile anzusetzen ist.
Außermittigkeiten von Fahrrollen sind zu berücksichtigen.
Eine fahrbare Arbeitsbühne muss während des Auf- und Abbaus nach den Herstellerangaben für alle sich ergebende Lastfälle standsicher sein.
Es muss möglich sein, für den Auf- und Abbau Belagflächen zu befestigen, wobei die vertikalen Abstände zwischen den Belagflächen nicht mehr als 2,10 m betragen dürfen.
6.4 Belagfläche
6.4.1 Belagflächen sind für Eigenlast und die ungünstigste Verkehrslast nach Tabelle 2 nachzuweisen.
6.4.2 Unter Berücksichtigung der konzentrierten Lasten nach Tabelle 2, Zeile 12 darf die maximale Durchbiegung eines jeden Belugteils nicht mehr als 1/100 seiner Stützweite betragen.
Außerdem darf im Fall von Belugteilen mit Stützweiten von> 2 m die größte Durchbiegungsdifferenz zwischen belasteten und unbelasteten Belagteilen nicht mehr als 20 mm betragen.
*) Nationale Fußnote: siehe DIN 4420 Teil 4
1) Diese Gruppennummern entsprechen HD1000:1988, Tabelle 1.
Tabelle 1. Lastannahmen für die Gesamtkonstruktion
| Gruppe | Zeile | Lastart | Lastwert | Abschnitt |
| 1 | Eigenlast, einschließlich Ballast, wenn zutreffend | wie angegeben | 6.2.1 | |
| 2 | vertikale Verkehrslast | |||
| 2.1 | gleichmäßig verteilt | |||
| 2.1.1 | für Gerüstgruppe2 | 1,5 kN/m2 | 6.2.2.1 | |
| 2.1.2 | für Gerüstgruppe 3 | 2,0 kN/m2 | 6.2.2.1 | |
| 2.2 | vertikale Mindestverkehrslast auf der Konstruktion | 5,0 kN/4 Ständer | 6.2.2.3 | |
| 3 | horizontale Verkehrslast auf der Ebene der obersten Belagfläche | |||
| 3.1 | l< 4,0 m | 0,3 kN | 6.2.3.1 | |
| 3.2 | l >4,0 m | 2 X 0,3 kN | 6.2.3.2 | |
| 4 | flächenbezogene Horizontalkraft als Entsprechung einer Windlast | 0,1 kN/m2 | 6.2.4 | |
| 5 | Lasten aufgrund einer Schrägstellung von 1 %: | 6.2.5 | ||
| wobei: l Länge der Belagfläche | ||||
Tabelle 2. Lastannahme für Teile der Konstruktion
| Zeile | Bauteil | Lastart | Lastwert | Abschnitt |
| 1 | Belagfläche | |||
| 1.1 | gleichmäßig verteilt auf der Gesamtfläche | 6.2.2.1 | ||
| 1.1.1 | Gerüstgruppe 2 | 1,5 kN/m2 | 6.2.2.1 | |
| 1.1.2 | Gerüstgruppe 3 | 2,0 kN/m2 | 6.2.2.1 | |
| 1.2 | konzentriert auf einer Fläche von 500 mm X 500 mm an ungünstigster Stelle auf der Belagfläche | 1,5 kN | 6.2.2.2 | |
| 1.3 | konzentriert auf einer Fläche von 200 mm X 200 mm an ungünstigster Stelle auf der Belagfläche | 1.0 kN | 6.2.2.2 | |
| 2 | Geländerholm | |||
| 2.1 | Einzellast auf dem Geländerholm an ungünstigster Stelle | 0,3 kN | 6.5 a) | |
| 2.2 | Einzellast auf dem Geländerholm an ungünstigster Stelle | 1,25 kN | 6.5 b) |
6.5 Geländerholme
Ein Geländerholm ist unabhängig von seiner Länge für folgende Lasten zu bemessen (siehe Tabelle 2):
Beide der oben genannten Lasten müssen an der ungünstigsten Stelle und unter jedem horizontalen oder abwärtsweisenden Winkel aufgebracht werden.
6.6 Verfahren
Der untere Teil der fahrbaren Arbeitsbühne muss in der horizontalen Ebene steif sein, um ein Verfahren zu ermöglichen. Dies gilt gegebenenfalls auch für Verbreiterungstraversen und Ausleger.
7 Bauteile
7.1 Fahrrollen
7.1.1 Allgemeines
Fahrrollen müssen so an der fahrbaren Arbeitsbühne befestigt sein, dass sie gegen unbeabsichtigtes Lösen gesichert sind.
7.1.2 Bremsen
Alle Fuhrrollen müssen mit Radbremsen versehen sein. Sie müssen mit Drehgelenkbremsen versehen sein, ausgenommen Fahrrollen, die aufgrund ihrer Konstruktion beim Feststellen keine Außermittigkeit aufweisen.
Der Bremsmechanismus muss so beschaffen sein, dass er gegen unbeabsichtigtes Lösen gesichert ist. Der Bremsmechanismus muss jede Drehung der Rolle verhindern, wenn eine horizontale Kraft von 0,30 kN durch die vertikale Achse des Drehgelenks so nahe wie möglich über dem Fahrrollgehäuse in Rollrichtung der Fahrrolle angesetzt wird. Bei der Prüfung der Radbremsen ist der Gesamtwert der angegebenen Verkehrslast zu berücksichtigen.
7.1.3 Lastannahme
Die vom Hersteller angegebene Höchstlastannahme der Fahrrollen ist durch mindestens 5 Kontrollprüfungen nachzuweisen.
Die Prüflast muss der dreifachen Höchstlastannahme nach Tabelle 1 entsprechen. Aus jeder der fünf Gruppen nach Tabelle 1 ist jeweils eine Zeile zur Festlegung der Höchstlastannahme anzusetzen.
Bei festgestellten Bremsen ist eine vertikale Ausgangslast von 0,50 kN aufzubringen, wobei die Platte der Gabel als Ausgangspunkt für die Messungen der vertikalen Verformung dc genommen wird.
Die Last ist zu erhöhen und die vertikale Verformung dc zu messen. Die Last ist wieder auf 0,50 kN zurückzunehmen. Nach 30 Minuten ist die Eigenverformung dr zu messen.
Die Kontrollprüfung matt die beiden folgenden Anforderungen erfüllen:
Die Höchstlastennahme ist nachgewiesen, wenn alle 5 Kontrollprüfungen die Prüfanforderungen erfüllen.
7.1.4 Räder
Die Räder müssen vollwandig und schlauchlos und für den beabsichtigten Verwendungszweck geeignet sein.
7.2 Stabilisierungseinrichtungen
7.2.1 Ausleger und Verbreiterungstraversen
Die Ausleger und Verbreiterungstraversen einer fahrbaren Arbeitsbühne müssen als integrale Bestandteile der Hauptkonstruktion bemessen sein und Ausgleichsvorrichtungen aufweisen, mit denen Bodenkontakt sicherzustellen ist.
Die Ausleger und Verbreiterungstraversen müssen so an der fahrbaren Arbeitsbühne befestigt sein, dass die Lasten in dem Ausleger oder der Verbreiterungstraverse ohne Rutschen, Drehen oder andere Bewegungen der Ausleger oder Verbreiterungstraversen auf die fahrbare Arbeitsbühne übertragen werden.
7.2.2 Ballast
Falls Ballast erforderlich ist, ist dieser sicher anzubringen und für dessen Herstellung sind feste Baustoffe, z.B. Stahl oder Beton, jedoch keine flüssigen oder körnigen Baustoffe zu verwenden.
7.3 Verbindungen
7.3.1 Allgemeines
Verbindungen zwischen einzelnen Teilen müssen wirksam und leicht zu überwachen sein. Sie müssen leicht angebracht werden können und gegen unbeabsichtigtes Lösen gesichert sein.
7.3.2 Vertikale Bolzen- und Hülsenverbindung
Nach dem Zusammenbau darf die horizontale Bewegung (Lose oder Spiel) zwischen oberen und unteren Bauteilen 4 mm und aus der Achse 2 mm nicht überschreiten. Auf keinen Fall darf das seitliche Lösen eines oberen Teils möglich sein, bevor dieses um mehr als 80 mm angehoben worden ist.
Bei einem Abstand von weniger als 150 mm muss die vertikale Bolzen- und Hülsenverbindung eine formschlüssige Verbindung, z.B. einen Sicherungsstift, aufweisen, der das obere Bauteil vor unbeabsichtigtem Anheben schützt.
Anmerkung: Diese Sicherheitsverbindung ist so anzubringen, dass ihre formschlüssige Verbindung augenfällig überprüfbar ist.
7.3.3 Andere vertikale Verbindungen
Es müssen gleichwertige Sicherungen nach 7.3.2 vorhanden sein, um das Risiko von zufälligem Lösen zu verhindern.
Anmerkung: Andere Anforderungen dieses Harmonisierungsdokumente für den statischen Nachweis können weitere Einschränkungen in der Anordnung von Verbindungen erfordern.
7.3.4 Nachweis von Anschlüssen und Verbindungen
Die Festigkeit von Anschlüssen und Verbindungen (z.B. Schweiß-, Press-, Falz- und Hohlnietverbindungen) ist durch Berechnung oder Prüfung nachzuweisen.
Im letzteren Fall sind drei Prüfungen an jeder Verbindungsart durchzuführen, wobei jede Prüfung ergeben muss, dass die Verbindung ohne Versagen der dreifachen Gebrauchslast in den Bauteilen widerstehen kann.
7.4 Zugang zu den Belagflächen
7.4.1 Allgemeine Anforderungen
Der Zugang zu den Belegflächen einer zusammengebauten Arbeitsbühne ist durch eine Treppe, eine Stufenleiter, eine Schrägleiter oder eine vertikale Leiter als Teil der Konstruktion vorzusehen. Diese
Der horizontale Abstand zwischen der Vorderkante der Stufe oder dem Mittelpunkt der Sprosse zu einem beliebigen Hindernis hinter der Treppe/Leiter muss mindestens s = 150 mm betragen (s in Bild 4a) angegeben).
Die lichte Mindesthöhe für Zugänge, gemessen zwischen den Stufen oder Sprossen und der Stützkonstruktion der darüberliegenden Belagfläche darf nicht weniger als 1,75 m betragen.
Zugangsöffnungen innerhalb einer Belagfläche müssen mit Schutzvorrichtungen gegen Abstürzen versehen sein. Die Öffnung muss so eng wie möglich sein, jedoch mindestens folgendes lichtes Maß aufweisen:
0,40 m breit X 0,60 m lang.
7.4.2 Anforderungen an Treppen und Stufenleitern
Treppen und Stufenleitern sind Zugänge zu Belagflächen, auf denen Personen vorwärts gerichtet hinauf- und herabsteigen können.
Die Treppenläufe sind außen mit einem Handlauf zu versehen, der ungefähr parallel zu den Treppen verläuft. Treppenläufe mit gegenläufigen Treppen sind zusätzlich innen mit einem Handlauf zu versehen. Bei Treppenläufen mit Zwischenbühnen nach maximal 2 m Steighöhe darf der Handlauf an der Innenseite entfallen.
Treppenläufe mit gegenläufigen Treppen müssen Podeste aufweisen. Jede dieser Treppen muss mindestens ein Podest mit einer Mindestlänge von 300 mm aufweisen.
7.4.2.1 Anforderungen an Treppen (siehe Bild 1)
| - Neigung | 35°< a< 55° |
| - Stufensteigung | t = mindestens 190 mm bis höchstens 250 mm |
| - Mindeststufentiefe | d = 125 mm |
| - lichte Mindestbreite | 400 mm |
| - horizontaler Abstand zwischen den Stufen | 0< g< 50 mm |
Bild 1. Maße der Treppen
7.4.2.2 Anforderungen an Stufenleitern (siehe Bild 2)
| - Neigung | 35°< a< 55° |
| - Stufensteigung | t = mindestens 150 mm bis höchstens 250 mm |
| - Mindeststufentiefe | d = 80 mm |
| - lichte Mindestbreite | 280 mm |
| - horizontaler Abstand zwischen den Stufen | 0< g< 200 mm |
Bild 2. Maße der Stufenleitern
7.4.3 Anforderungen für Schrägleitern (siehe Bild 3)
| - Neigung | 60°< a< 75° |
| - Stufenabstand | 230 mm< t< 300 mm |
| - Stufentiefe | d > 80 mm |
| - Sprossenabstand | 250 mm 4< t< 300 mm |
| - Sprossentiefe | 20 mm< d< 80 mm |
| - lichte Mindestbreite | 280 mm |
| - vertikaler Höchstabstand zwischen verschiedenen Belagflächen | 4.0 mm |
| - Höchstabstand zwischen dem Boden und der ersten Betagfläche | 4,4 m |
Bild 3. Maße der Schrägleitern
7.4.4 Anforderungen an vertikale Leitern (siehe Bild 4)
| - Sprossenabstand | 230 mm< t< 300 mm |
| - Sprossentiefe oder- durchmesser | 20 mm< d< 51 mm |
| - lichte Mindestbreite | 280 mm |
| - vertikaler Höchstabstand zwischen verschiedenen Belagflächen | 4,0 m |
| - Höchstabstand zwischen dem Boden und der ersten Belagfläche | 4,4 m |
Bild 4. Maße der vertikalen Leitern
4a) separate Leitern 4b) eingebaute Leitern
7.5 Arbeitsbühnen
7.5.1 Belagteile
Die Belagteile einer Belagfläche müssen dauerhaft sein und eine rutschfeste Oberfläche haben. Sie müssen gegen Abheben durch Wind und Kippen gesichert sein. Öffnungen in Belagflächen dürfen nicht breiter als 25 mm sein.
Anmerkung In einigen nationalen Regelungen sind Öffnungen derartiger Größe bei bestimmten Anwendungsbereichen nicht zulässig.
Dies gilt nicht für Öffnungen als Griffloch in Klapptüren.
7.5.2 Seitenschutz
Siehe Bild 5 für zulässige Maße
Maße in mm
Bild 5: Maße des Seitenschutzes

7.5.2.1 Allgemeines
Seitenschutzbauteile müssen gegen unbeabsichtigtes Lösen gesichert sein.
Es muss die Möglichkeit bestehen, am Rand der Belagfläche einen Seitenschutz anzubringen, der aus folgenden Teilen besteht:
Anmerkung: Ein Geflecht soll Objekte in der Größe von Mauersteinen am Herabfalten hindern und darf entweder mit Geländerholm und Bordbrett kombiniert werden oder als zusätzliches oder einzelnes Bauteil verwendet werden.
7.5.2.2 Geländerholm
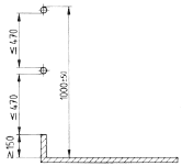
Es muss die Möglichkeit bestehen, einen Geländerholm so zu befestigen, dass seine Oberkante 1000 ± 50 mm über der Ebene der Belagfläche liegt (siehe Bild 5).
7.5.2.3 Zwischenholm
Es muss die Möglichkeit bestehen, einen Zwischenholm so anzubringen, dass weder der Zwischenraum darüber bis zur Unterkante des Geländerholms noch darunter bis zur Oberkante des Bordbretts 470 mm überschreitet.
7.5.2.4 Bordbrett
Es muss die Möglichkeit bestehen, ein massives Bordbrett so anzubringen, dass seine Oberkante mindestens 150 mm über der zugehörigen Ebene der Belagfläche liegt.
7.5.2.5 Geflecht
Wenn ein Geflecht vorgesehen ist, darf die Maschenweite nicht mehr als 100 mm X 100 mm betragen.
8 Standsicherheitsnachweis
8.1 Allgemeines
Der Standsicherheitsnachweis ist durch Prüfungen und/oder Berechnungen nach Eurocode 3 durchzuführen
Bis zur Veröffentlichung des Eurocode 3 und anderer diesbezüglicher Europäischer Normen sind Berechnungen nach den in den nationalen Anhangen angegebenen nationalen Normen durchzuführen.
8.2 Nachweis der Beanspruchungen
Für den Nachweis der Beanspruchungen der Werkstoffe der fahrbaren Arbeitsbühne sind die Lasten wie Verkehrslasten anzunehmen und beim Entwurf sind die in den nationalen Anhängen angegebenen nationalen Normen unter Anwendung von Berechnungsverfahren mit zulässigen Beanspruchungen oder Lastfaktoren zu berücksichtigen.
8.3 Widerstand gegen Kippen
Fahrbare Arbeitsbühnen sind mit einem Sicherheitsfaktor von 1,5 zu bemessen.
Die Berechnung der Windlast muss nach HD 1000:1988, Abschnitte 5.3.2.2 und 5.3.2.3 erfolgen.
Es gelten folgende Lasten nach Tabelle 1:
8.3.1 Vertikale Lasten
8.3.2 Horizontale Lasten
Für die Windlast auf Personen:
Die horizontale Verkehrslast und die Windlast dürfen nicht kombiniert werden. Es ist nur die ungünstigste dieser horizontalen Lasten zu berücksichtigen.
Anmerkung: Wenn nationale Regelungen einzelner Länder eine Kombination dieser Lasten vorsehen, sind diese Lasten zu kombinieren. Für diese Länder kann der Widerstand gegen Kippen durch das Anbringen von Ballast an der Basis der fahrbaren Arbeitsbühne auf einfache Weise erhöht werden (siehe die in Anhang D angegebenen nationalen Abweichungen).
8.3.3 Zusätzliche Lasten
Lasten aufgrund einer Schrägstellung von 1 %.
8.4 Prüfungen zur Beurteilung der Gesamtkonstruktion
Die Prüfungen sind nach Anhang a durchzuführen und die Ergebnisse müssen mit diesem Anhang übereinstimmen.
8.5 Prüfungen zur Beurteilung der Steifigkeit der Gesamtkonstruktion eines Fahrgerüsts
Die Prüfungen sind nach Anhang B durchzuführen und die Ergebnisse müssen mit diesem Anhang übereinstimmen.
9 Herstellerangaben
9.1 Spezifische Angaben
Der Hersteller muss dem Nutzer die folgenden Angaben liefern:
9.2 Anweisungen für die Verwendung von fahrbaren Arbeitsbühnen
Der Hersteller muss dem Nutzer eine Kopie der in Anhang C gegebenen Informationen zur Verfügung stellen.
10 Bezeichnung
Die folgenden Daten sind für die Bezeichnung aller fahrbaren Arbeitsbühnen aus vorgefertigten Bauteilen erforderlich:
Beispiel:
11 Kennzeichnung
Die Kennzeichnung, z.B. ein Schild des Herstellers mit den folgenden Angaben, ist in Augenhöhe an deutlich sichtbarer Stelle an allen fahrbaren Arbeitsbühnen anzubringen:
| Belastungsprüfungen der Gesamtkonstruktion einer fahrbaren Arbeitsbühne | Anhang A |
(normativ)
A.1 Prüfung - Anforderungen
Die Gesamtkonstruktion einer fahrbaren Arbeitsbühne ist unter dem unten beschriebenen Zusammenwirken vertikaler und horizontaler Lasten zu prüfen. Die Konstruktion muss diese Lasten ohne Versagen oder sichtbare bleibende Verformung der Bauteile aufnehmen.
A.2 Prüfaufbau
Für fahrbare Arbeitsbühnen mit vorgesehener Höhe zwischen 6,0 m und 12,0 m (Aufstellfläche bis Ebene der Arbeitsbelagfläche) sind diese Prüfungen mit einer Mindestaufbauhöhe von 6,0 m durchzuführen. Für fahrbare Arbeitsbühnen mit einer vorgesehenen Höhe von weniger als 8,0 m sind die Prüfungen an fahrbaren Arbeitsbühnen mit der zulässigen Aufbauhöhe durchzuführen.
Die fahrbare Arbeitsbühne ist nach den Anweisungen des Herstellers aufzubauen.
Die Fahrrollen sind bis zu einem Winkel von ungefähr 45° zur Hauptachse der Basis nach innen zu drehen und festzustellen.
Verstellbare Füße sind bis zum Anschlag auszuziehen.
Wenn für eine Aufbauform einer fahrbaren Arbeitsbühne Verbreiterungstraversen, Ausleger oder Ballast in Prüfhöhe vorgesehen sind, ist die Prüfung mit diesen Bauteilen durchzuführen.
A.3 Prüflasten
Die Prüflasten ergeben sich aus den ungünstigsten vorgesehenen Lastennahmen wie folgt:
A.3.1 Vertikale Lasten
Die vertikale Lastannehme ist
Die Prüflast muss das 2,5fache der vertikalen Lastannahme betragen.
A.3.2 Horizontale Lasten
Die horizontale Lastannahme beträgt 0,30 kN.
Die horizontale Prüflast muss das 2,5fache betragen, d.h. 0,75 kN.
Sie ist am ersten geeigneten über 6,0 m hoch liegenden Knotenpunkt aufzubringen. Sie darf im Verhältnis der tatsächlichen Höhe zur 6,0 m Höhe abgemindert werden, so dass sich an der Aufstellfläche der fahrbaren Arbeitsbühne gleiche Momente ergeben.
Anmerkung: Die Anforderung bezüglich der Einbeziehung von verstellbaren Füßen wird oft bedeuten, dass sich der erste geeignete Knotenpunkt für das Aufbringen horizontaler Lasten ungefähr 6,5 m über der Aufstellfläche befindet. In diesem Fall wäre die horizontale Last im Verhältnis 6,0/6,5 zu reduzieren, d.h. 0,923 X 750 N = 692 N.
A.3.3 Aufbringen der Lasten
Die vertikale Prüflast ist so aufzubringen, dass sie die Ständer der fahrbaren Arbeitsbühne gleichmäßig belastet.
Die horizontale Prüflast ist parallel zur kürzesten oder längsten Seite der fahrbaren Arbeitsbühne durch den Mittelpunkt der horizontalen Ebene wirkend aufzubringen.
A.3.4 Kombination der Lasten
Horizontale und vertikale Lasten sind wie folgt zu kombinieren:
A.4 Anzahl der Prüfungen
Bezüglich der Kombination von Lasten (siehe A2.4) sind für jede Aufbauform einer fahrbaren Arbeitsbühne zwei Prüfungen erforderlich Wenn jedoch eine Anzahl von Aufbauformen gemeinsame Merkmale aufweist wie z.B. gleiche Endrahmen, sind an der Aufbauform mit der nachgewiesenen geringsten Standsicherheit zwei Prüfungen durchzuführen.
A.5 Durchführung
Die Lasten sind aufzubringen und dann zurückzunehmen. Die Konstruktion ist zu überprüfen, um sicherzustellen, dass kein Versagen eingetreten ist.
| Steifigkeitsprüfungen der Gesamtkonstruktion einer fahrbaren Arbeitsbühne | Anhang B |
(normativ)
B.1 Allgemeine Anforderungen
(siehe Bilder 6 und 7)
Zweck der Prüfung ist sicherzustellen, dass fahrbare Arbeitsbühnen eine zulässige Verformung nicht überschreiten, wenn sie bis zur zulässigen Höhe aufgebaut und horizontalen Lasten ausgesetzt sind. Das schließt elastische Verformungen sowie Lose oder Spiel in der Konstruktion ein.
B.2 Prüfaufbau
Die Prüfungen sind an einer vollständigen Konstruktion mit einer Mindesthöhe von 6,0 m durchzuführen. Die fahrbare Arbeitsbühne ist nach den Standardanweisungen des Herstellers aufzubauen (siehe Anmerkung 1). Wenn die Eigenlast der fahrbaren Arbeitsbühne nicht ausreicht um ein Kippen zu verhindern, darf die unterste Ebene ausreichend belastet werden.
Prüfungen sind an den Aufbauformen nach den Anweisungen des Herstellers durchzuführen, d.h. entweder: mit oder ohne Verbreiterungstraversen oder: mit oder ohne Ausleger.
Da die Steifigkeit der fahrbaren Arbeitsbühne durch Ballast nicht beeinflusst wird, ist bei Ballast zur Standsicherheit nur eine Prüfung erforderlich.
Wenn verstellbare Füße vorgesehen sind, sind diese auf 50% ihrer maximalen Auszugslänge einzustellen (siehe Anmerkung 2). Fahrrollen sind in ihre ungünstigste Stellung zu drehen und festzustellen.
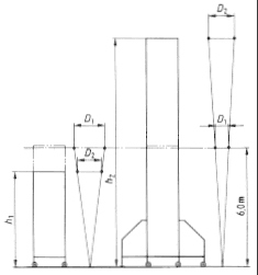
Bild 6: Horizontale Lasten für die Steifigkeitsprüfungen der Gesamtkonstruktionen
![]() |
1) Erste Prüfung in zwei entgegengesetzten Richtungen
2) Zweite Prüfung in zwei entgegengesetzten Richtungen |
Anmerkung 1: Wenn die zulässige Höhe der Belagfläche nach Anweisung des Herstellers weniger als 6,0 m beträgt, ist die zu prüfende fahrbare Arbeitsbühne bis zu einer Höhe von mindestens 6,0 m nach Anweisung des Herstellers zu errichten. Diese zusätzliche Höhe ermöglicht die Messung des Werte D1. Die Steifigkeit der fahrbaren Arbeitsbühne sollte nicht nachteilig beeinflusst werden.
Anmerkung 2: Da verstellbare Füße üblicherweise zum Höhenausgleich der fahrbaren Arbeitsbühne vorgesehen werden, stellt dies eine Arbeitsstellung dar.
B.3 Prüfverfahren
Die horizontale Prüflast beträgt 500 N
Sie ist am ersten geeigneten, über 6,0 m hoch liegenden Knotenpunkt aufzubringen. Sie darf im Verhältnis der tatsächlichen Höhe zur 6,0 m Höhe abgemindert werden, so dass sich an der Aufstellfläche der fahrbaren Arbeitsbühne ein gleicher Moment ergibt (siehe Anhang A.3).
Die Last ist rechtwinklig zu einer Ansichtsfläche der fahrbaren Arbeitsbühne durch den Mittelpunkt wirkend aufzubringen. Die Last ist in einer Richtung und danach in entgegengesetzter Richtung aufzubringen und die Gesamtverformung D1(in mm) ist bei genau 6,0 m Höhe zu messen (siehe Bild 6).
Diese Prüfung ist in einer um 90° gedrehten Ebene zu wiederholen (siehe Bild 6).
Bild 7: Gemessene und zulässige Verformungen von fahrbaren Arbeitsbühnen
![]() |
|
B.4 Prüfergebnis (siehe Bild 7)
Die durch oben beschriebene Prüfung ermittelte Gesamtverformung ist durch lineare Berechnung zu korrelieren und ergibt die Verformung D2für die zulässige Höhe der Belagfläche der fahrbaren Arbeitsbühne mit oder ohne Verbreiterungstraversen, Ausleger oder Ballast. Die Gesamtverformung D2darf 200 mm nicht überschreiten und begrenzt möglicherweise die zulässige Höhe der Belagfläche.
Die durch die Steifigkeit begrenzte zulässige Höhe der Belagfläche wird mit folgender Gleichung berechnet:
h1 = 6 X D2/D1 = 6 X 200/D1 m
Anmerkung: Der gemessene Wert D1ermöglicht die Berechnung der zulässigen Höhe.
Zum Beispiel:
Die lineare Gleichung ist nicht völlig korrekt; im Hinblick auf die Gesamtheit der für dieses Harmonisierungsdokument geltenden fahrbaren Arbeitsbühnen haben Berechnungen und Prüfungen in der Praxis jedoch ergeben, dass eine lineare Beziehung annehmbar ist.
| Anweisungen für die Verwendung von fahrbaren Arbeitsbühnen | Anhang C |
(normativ)
Folgende Punkte gelten für alte fahrbaren Arbeitsbühnen:
![]() |
weiter . | ![]() |
(Stand: 16.06.2018)
Alle vollständigen Texte in der aktuellen Fassung im Jahresabonnement
Nutzungsgebühr: ab 105.- € netto
(derzeit ca. 7200 Titel s.Übersicht - keine Unterteilung in Fachbereiche)
Die Zugangskennung wird kurzfristig übermittelt
? Fragen ?
Abonnentenzugang/Volltextversion