Für einen individuellen Ausdruck passen Sie bitte dieEinstellungen in der Druckvorschau Ihres Browsers an. Regelwerk; BGI/GUV-I / DGUV-I |
![]() |
BGI 867 / DGUV-I 203-032 - Auswahl und Betrieb von Ersatzstromerzeugern auf Bau- und Montagestellen
Deutsche Gesetzliche Unfallversicherung (DGUV) Information
(Ausgabe 05/2005aufgehoben)
| Redaktioneller Hinweis: Berufsgenossenschaften sind gemäß § 210 SGB VII Behörden; ihre amtlichen Veröffentlichungen nach § 15 SGB VII unterliegen gemäß § 5 Abs. 2 UrhG keinem Urheberrechtsschutz. |
Die vorliegende BG-Information stellt die Anforderungen für Auswahl und Betrieb von Ersatzstromerzeugern auf Bau- und Montagestellen, die in verschiedenen Vorschriften, Regeln und Normen festgelegt sind, übersichtlich zusammen und gibt Erläuterungen für den Anwender.
Die in dieser BG-Information enthaltenen technischen Lösungen schließen andere, mindestens ebenso sichere Lösungen nicht aus, die auch in technischen Regeln anderer Mitgliedstaaten der Europäischen Union oder anderer Vertragsstaaten des Abkommens über den Europäischen Wirtschaftsraum ihren Niederschlag gefunden haben können.
1 Anwendungsbereich
Bau- und Montagestellen werden in den meisten Fällen aus dem relativ dichten öffentlichen EVU-Netz (Elektrizitätsversorgungsunternehmen) mit elektrischer Energie versorgt.
Es ist jedoch nicht immer möglich, der Baustelle die benötigte Energiemenge zur Verfügung zu stellen, oder sie überhaupt aus dem öffentlichen Netz zu versorgen.
Das kann z.B. daran liegen, dass die Baufirma besonders leistungsstarke Maschinen einsetzen muss, oder daran, dass die Bau- oder Montagestelle zu weit von der nächsten Versorgungsstelle entfernt liegt oder es sich um ständig wechselnde Einsatzorte handelt.
In solchen Fällen, oder wenn Stromausfall zu Gefahren für Menschen, Maschinen und bauliche Einrichtungen führen kann, werden zum Bereitstellen elektrischer Energie Ersatzstromerzeuger oder Stromquellen für Sicherheitszwecke eingesetzt.
Ersatzstromerzeuger können stationär oder mobil, zur Versorgung einzelner Geräte oder einer ganzen Baustelle oder - bei Ausfall des öffentlichen Netzes - zur Einspeisung in das vorhandene Baustellennetz eingesetzt werden.
Unabhängig davon, wie Ersatzstromerzeuger und dazugehörige Anlagen eingesetzt werden, müssen sie immer den sicherheitstechnischen Anforderungen genügen, die für elektrische Anlagen auf Bau- und Montagestellen im technischen Regelwerk, z.B. BGI 608 "Auswahl und Betrieb elektrischer Anlagen und Betriebsmittel auf Baustellen" gestellt werden.
2 Begriffsbestimmung
Ersatzstromerzeuger sind Niederspannungs-Stromerzeugungsanlagen, die die elektrische Energieversorgung von Teilnetzen, Verbraucher anlagen oder einzelnen Verbrauchsmitteln nach Ausfall oder Abschaltung der regulären Stromversorgung oder bei Nichtvorhandensein einer solchen übernehmen. Sie setzen sich zusammen aus:
Als Energiequellen werden eingesetzt:
3 Allgemeine Anforderungen
3.1 Das Errichten, das Ändern und das Instandsetzen von elektrischen Anlagen und Betriebsmitteln sind elektrotechnische Arbeiten, die nach § 3 Abs. 1 Satz 1 der Unfallverhütungsvorschrift "Elektrische Anlagen und Betriebsmittel" (BGV A3) grundsätzlich nur von Elektrofachkräften oder unter Leitung und Aufsicht einer Elektrofachkraft durchgeführt werden dürfen.
3.2 Elektrische Anlagen und Betriebsmittel müssen nach den örtlichen Bedingungen ausgewählt werden. Elektrische Anlagen und Betriebsmittel sind so zu benutzen und so zu betreiben, dass bei bestimmungsgemäßer Verwendung eine elektrische Gefährdung vermieden wird.
Bei Vorliegen besonderer Gefährdungen, z.B. erhöhter elektrischer Gefährdung, Brand- oder Explosionsgefahr, dürfen elektrische Anlagen und Betriebsmittel nur unter Einhaltung besonderer Bestimmungen benutzt werden. Besondere Festlegungen für Ersatzstromerzeuger auf Bau- und Montagestellen sind z.B. enthalten in:
3.3 Ist nicht sichergestellt, dass die im vorhandenen Netz angewandten Schutzmaßnahmen nach Stromausfall dauerhaft wirksam bleiben, muss für den sicheren Betrieb der Ersatzstromerzeugungsanlage eine anlagenspezifische Schutzmaßnahme zum Schutz gegen elektrischen Schlag unter Fehlerbedingungen (Fehlerschutz) wirksam sein. Es dürfen nur folgende Schutzmaßnahmen angewendet werden:
Die vorgesehenen Schutzmaßnahmen müssen auf das gewählte oder vorhandene Netzsystem abgestimmt sein.
3.4 Ordnungsgemäß installierte Ersatzstromerzeuger dürfen als besondere Speisepunkte auf Bau- und Montagestellen eingesetzt werden. Das bedeutet, dass in diesen Fällen auf einen Baustromverteiler verzichtet werden darf.
4 Betrieb
4.1 Auswahl
4.1.1 Kennzeichnung
Ersatzstromerzeuger müssen mit einem Typschild versehen sein, auf dem mindestens nachfolgende Angaben deutlich erkennbar und dauerhaft angebracht sind:
Die CE-Kennzeichnung muss entsprechend der gesetzlichen Regelung vorhanden sein.
Es wird empfohlen, nur Geräte mit GS-Prüfzeichen auszuwählen.
4.1.2 Technische Anforderungen
Ersatzstromerzeuger sind für den vorgesehenen Einsatz entsprechend dem Leistungsbedarf der zu versorgenden Geräte ausreichend bemessen auszuwählen. Insbesondere sind dazu beim Betrieb von Hebezeugen (z.B. Krane, Aufzüge, Winden) und Frequenzumrichter (FU), gesteuerte Antriebe, die Empfehlungen des Herstellers zu beachten (s. Anhang 2).
Ersatzstromerzeuger müssen mit Tragevorrichtungen ausgerüstet sein. Ab einer Gesamtmasse von 50 kg müssen Anschlagpunkte für den Hebezeugtransport oder Vorrichtungen für den Transport mit Flurförderzeugen vorhanden sein.
Besteht bei Einsatz von Ersatzstromerzeugern mit Kurbelstarteinrichtung, z.B. bei Dieselmotoren, die Gefahr von Verletzungen durch Rückschlag, sind geeignete Rückschlagsicherungen oder Sicherheitskurbeln zu verwenden. Bei Seilstarteinrichtungen ist darauf zu achten, dass eine Seilfangeinrichtung vorhanden ist und das Starten gegen die Drehrichtung des Motors verhindert wird.
Ersatzstromerzeuger müssen durch die Gestaltung des Gehäuses oder des Aufstellortes so geschützt sein, dass äußere Einwirkungen durch Fremdkörper, Wasser oder Feuchtigkeit die Sicherheit nicht beeinträchtigen.
Ersatzstromerzeuger müssen zur uneingeschränkten Verwendung im Freien mindestens der Schutzart IP 54, bei Verwendung in Gebäuden mindestens der Schutzart IP 43 entsprechen (siehe BGI 600). Bei Einsatz von Geräten mit geringerer Schutzart, allerdings mindestens IP 23, sind zusätzliche Maßnahmen erforderlich (z.B. Einhausung).
4.2 Aufstellung und spezielle Betriebshinweise
Der Aufstellort ist so zu wählen oder vorzubereiten, dass der Ersatzstromerzeuger standsicher aufgestellt und bestimmungsgemäß betrieben werden kann und die Schutzart den Anforderungen, die sich aus dem Aufstellort ergeben, genügt.
Ersatzstromerzeuger mit Verbrennungsmotor, die innerhalb von Gebäuden betrieben werden, sind in separaten Räumen mit ausreichender Belüftung aufzustellen. Die Abgase sind über Rohre/ Schläuche ins Freie abzuleiten.
Ersatzstromerzeuger mit Verbrennungsmotor dürfen nur im Stillstand betankt werden.
Die Betriebsanleitung für Ersatzstromerzeuger muss am Einsatzort vorhanden sein.
4.3 Stromquellen für Sicherheitszwecke
Bei der Auswahl von Ersatzstromerzeugern zum Einsatz als Stromquelle für Sicherheitszwecke sind weitere Anforderungen zu berücksichtigen (siehe VDE 0100 Teil 560 und VDE 0108 Teil 1).
5 Schutz gegen elektrischen Schlag unter Fehlerbedingungen (Fehlerschutz)
5.1 Schutzmaßnahmen in TN- und TT-Systemen
In TN- und TT-Systemen muss Schutz durch Abschaltung mit pulsstromsensitiven (Typ A) oder allstromsensitiven (Typ B) Fehlerstrom-Schutzeinrichtungen (RCD) mit einem Bemessungsdifferenzstrom IΔN ≤ 30 ma realisiert werden.
Die Erdung des Sternpunktes oder eines Außenleiters (Erdungsleiter, Erdungswiderstand) am Generator ist notwendig, damit die Fehlerstromschutzeinrichtung (RCD) im Fehlerfall die Anlage abschalten kann. Dabei darf der Erdungswiderstand RB den zulässigen Wert für die Abschaltung nicht überschreiten. Empfohlen wird ein Widerstandswert von ≤ 50 Ohm.
Anmerkung: Die Wirksamkeit der Schutzmaßnahme ist durch eine Elektrofachkraft zu überprüfen.
Sind Generator und Fehlerstrom-Schutzeinrichtung (RCD) räumlich getrennt, müssen die Verbindungsleitungen kurz- und erdschlusssicher verlegt werden. Kurz- und erdschlusssichere Verlegung kann z.B. durch getrennte Einzelleiterverlegung oder durch den Einsatz von Kabeln und Leitungen mit konzentrischem Schutzleiter erreicht werden.
Abb. 1 Schutzmaßnahmen im TN-System; Empfehlung RB ≤ 50 Ω
Abb. 2 Schutzmaßnahmen im TT-System
Erforderliche Verbindungen am Ersatzstromerzeugerin beim TN- und TT-System:
Neutralleiter N - Erdung RB - Schutzleiterklemme PE - Generatorgehäuse
Bei schutzisolierten Ersatzstromerzeugern entfällt die Verbindung Generatorgehäuse zum RB.
Hinweis:
Der Einsatz von elektrischen Betriebsmitteln, die hochfrequente Fehlerströme oder glatte Gleichfehlerströme erzeugen können, z.B. Frequenzumrichter, darf die Wirksamkeit der erforderlichen Schutzmaßnahme nicht beeinträchtigen (siehe BGI 608). In diesen Fällen müssen allstromsensitive Fehlerstrom-Schutzeinrichtungen (Typ B) eingesetzt werden.
Fehlerstrom-Schutzeinrichtungen lösen aus, wenn der Bemessungsfehlerstrom erreicht wird. Sie schalten auch ab, wenn im fehlerfreien Zustand die Summe der Ableitströme der Betriebsmittel größer als der Ansprechwert der Fehlerstrom-Schutzeinrichtung wird. Differenzstrom-Überwachungsgeräte (RCM) können den Ableitstrom kontinuierlich erfassen und anzeigen.
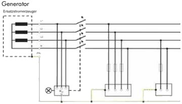
Bei Betrieb eines Ersatzstromerzeugers im TN- oder TT-System muss eine Erdung des Versorgungssystems erfolgen. Deshalb muss der Ersatzstromerzeuger mit einer Erdungsklemme ausgerüstet sein.
Abb. 3 Ersatzstromerzeuger mit Fehlerstromschutzeinrichtung und Erdspieß
5.2 Schutzmaßnahmen im IT-System
(Isolationsüberwachung mit Meldung des ersten Fehlers und automatischer Abschaltung beim zweiten Fehler)
Im IT-System müssen alle elektrischen Betriebsmittel der Schutzklasse I durch einen Schutzleiter miteinander und mit dem Anlagenerder verbunden sein.
Der Anlagenerder Ra muss folgende Bedingung erfüllen:
RA * Id ≤ 50 V
| RA = | Summe der Widerstände des Erders und der Schutzleiter |
| Id = | Summe der Fehlerströme im Falle des ersten Fehlers (Id kann gemessen werden mit einem Amperemeter zwischen einem Außenleiter und dem Erdpotenzial) |
Auf Bau- und Montagestellen (mit nicht dauerhaft errichteten Stromerzeugungsanlagen) gilt diese Anforderung als erfüllt, wenn der Erdungswiderstand RA ≤ 100 Ω ist.
Eine Isolationsüberwachung erfolgt zwischen aktiven Teilen und geerdetem Schutzleiter. Die Isolationsüberwachungs-Einrichtung muss ein Absinken des Isolationswiderstandswertes unter 100 Ω/V melden.
Bei ausreichender Überwachung der Anlage (Fehlermeldung wird erfasst und die notwendige Instandsetzung wird eingeleitet) reicht es aus, wenn bei Auftreten des ersten Fehlers ein akustisches oder optisches Signal ausgelöst wird.
Der Fehler ist umgehend durch eine Elektrofachkraft zu beheben. Die Anlage darf jedoch bis zur Fehlerbehebung weiterbetrieben werden (siehe BGI 608).
Bei Auftreten eines zweiten Fehlers an einem anderen aktiven Leiter muss die sofortige automatische Abschaltung erfolgen oder die Spannung zwischen den Klemmen des Ersatzstromerzeugers muss unter 50 V sinken (siehe VDE 0100 Teil 551, Anhang ZB zu Abschn. 551.4.4.2).
Die Abschaltung beim zweiten Fehler kann durch Sicherungen, Leitungsschutzschalter oder Fehlerstrom-Schutzeinrichtungen (siehe Abb. 4 und 5) realisiert werden.
Abb. 4 Schutzmaßnahmen im IT-System mit Anzeige des Schwellwertes (*1) bei Auftreten des ersten Fehlers und Abschaltung bei Auftreten des zweiten Fehlers durch Sicherungen oder Leitungsschutzschalter (*2)
Abb. 5 Schutzmaßnahmen im IT-System mit Anzeige des Schwellwertes (*1) beim Auftreten des ersten Fehlers und Abschaltung bei Auftreten des zweiten Fehlers durch RCD (*2)
Erforderliche Verbindung am Ersatzstromerzeuger: Generatorgehäuse - Schutzleiterklemme PE - Erdung RA
Hinweis:
Im Unterschied zum TN- und TT-System keine Verbindung zwischen Neutralleiter N und Schutzleiter PE.
Stromkreise mit Steckdosen und festangeschlossenen in der Hand gehaltenen Verbrauchsmitteln mit jeweils einem Bemessungsstrom IN ≤ 32 a dürfen nur verwendet werden, wenn jede Steckdose und jedes Verbrauchsmittel mit einer separaten Fehlerstrom-Schutzeinrichtung IΔΝ ≤ 30 ma geschützt wird.
Anwendung:
In Anlagen zur Versorgung von Geräten, welche beim Auftreten des ersten Fehlers nicht sofort abgeschaltet werden sollen (z.B. Pumpen der Grundwasserhaltung).
5.3 Sonstige Schutzmaßnahmen
5.3.1 Trenntransformator
An einem Trenntransformator bzw. an jede Sekundärwicklung eines Trenntransformators darf auf Baustellen nur ein Verbrauchsmittel angeschlossen werden.
5.3.2 Ersatzstromerzeuger zur Versorgung elektrischer Betriebsmittel in leitfähigen Bereichen mit begrenzter Bewegungsfreiheit
Ein leitfähiger Bereich mit begrenzter Bewegungsfreiheit liegt vor, wenn dessen Begrenzung im Wesentlichen aus Metallteilen oder leitfähigen Teilen (z.B. auch feuchtes Erdreich) besteht, eine Person mit ihrem Körper großflächig mit der umgebenden Begrenzung in Berührung stehen kann und die Möglichkeit der Unterbrechung dieser Berührung eingeschränkt ist. (siehe BGI 594 und DIN VDE 0100-706)
Als elektrische Verbrauchsmittel sind sowohl Geräte der Schutzklasse I als auch der Schutzklasse II zulässig. Aufgrund der verstärkt ausgeführten Isolation werden Geräte der Schutzklasse II (schutzisolierte Ausführung) empfohlen.
5.3.2.1 Ersatzstromerzeuger mit nur einer Anschlussmöglichkeit für ein Verbrauchsmittel
Abb. 6 Ersatzstromerzeuger mit nur einem Abgang
Abb. 7 Ersatzstromerzeuger kleiner Leistung zum Anschluss nur eines Verbrauchsmittels
5.3.2.2 Ersatzstromerzeuger mit mehreren Anschlussmöglichkeiten
Abb. 8 Ersatzstromerzeuger mit mehreren Anschlussmöglichkeiten, aber nur einem Verbrauchsmittel
Abb. 9 Ersatzstromerzeuger mit mehreren Anschlussmöglichkeiten und mehreren Verbrauchsmitteln, ein Verbrauchsmittel direkt und zwei Verbrauchsmittel über Trenntransformatoren angeschlossen
Ein Verbrauchsmittel darf direkt angeschlossen werden. Weitere Verbrauchsmittel müssen jeweils über einen separaten Trenntransformator angeschlossen werden.
Die Trenntransformatoren sind außerhalb des leitfähigen Bereiches aufzustellen. Die Länge der Zuleitung zum Trenntransformator darf maximal 4 m betragen.
Erforderliche Verbindungen am Ersatzstromerzeuger: Isolationsüberwachungseinrichtung - Generatorgehäuse - Schutzleiterklemme PE - Erdung RA sowie Generatorgehäuse Isolationsüberwachung entfallen bei allen schutzisolierten Ersatzstromerzeugern.
Die Isolationsüberwachung findet nur in ungeerdeten Netzen (IT-Systeme) Anwendung.
5.3.3 Potenzialausgleich mit Isolationsüberwachung und Abschaltung bei einem Isolationsfehler
Alle Körper müssen mit einem ungeerdeten Potenzialausgleichsleiter (PA) verbunden werden. Die Schutzleiter in den Zuleitungen der Verbrauchsmittel können diese Funktion übernehmen. Ein verbesserter Schutz kann erreicht werden, wenn auch die Netzanschlussleitungen der schutzisolierten Verbrauchsmittel einen Potenzialausgleichsleiter enthalten (Kennzeichnung grün/gelb), der im Stecker angeschlossen und im Verbrauchsmittel isoliert ist.
Die Isolationsüberwachung erfolgt hier zwischen den aktiven Teilen und dem Potenzialausgleichsleiter (nicht der Erde). Die Isolationsüberwachungseinrichtung muss den Anforderungen nach DIN VDE 0413-8 genügen und beim Absinken des Isolationswiderstandswertes unter 100 Ω/V innerhalb 1 s eine Abschaltung bewirken (siehe DIN VDE 0100-551: Anhang ZB, zu Abschn. 551.4.4.2).
Abb. 10 Beispiel für ein 4-Leiter-Versorgungssystem mit Isolationsüberwachung und Abschaltung
Erforderliche Verbindungen am Ersatzstromerzeuger:
Generatorgehäuse - Potenzialausgleichsleiter PA.Die Verbindung entfällt bei schutzisolierten Ersatzstromerzeugern.
Hinweis: Bei dieser Netzform darf keine Verbindung zwischen Neutralleiter N und Potenzialausgleichsleiter Pa bestehen.
Abb. 11 Ersatzstromerzeuger mit Isolationsüberwachungs- und Abschalteinrichtung

Anwendung:
Schutzisolierte Ersatzstromerzeuger mit dieser Schutzeinrichtung dürfen vom Anwender (Bediener) direkt in Betrieb genommen werden, da keine zusätzlichen Potenzialausgleichs-/Schutzleiterverbindungen erstellt werden müssen.
Kommentar des berufsgenossenschaftlichen Fachausschusses Elektrotechnik:
Nach DIN VDE 0100 Teil 704 muss auf Baustellen bei Schutztrennung jede Steckdose oder jedes fest angeschlossene, in der Hand gehaltene elektrische Verbrauchsmittel, jeweils mit einem Bemessungsstrom IN ≤ 32 A, durch einen separaten Trenntransformator oder durch getrennte Wicklungen eines Trenntransformators versorgt werden (Schutztrennung mit einem Verbraucher).
Die hier beschriebene Schutzmaßnahme "Ersatzstromerzeugungsanlage mit mehreren Verbrauchsmitteln und Abschaltung durch Isolationsüberwachung beim Auftreten des ersten Fehlers" wird für die vorstehend genannten Stromkreise IN ≤ 32 a auf Baustellen für geeignet erachtet, da sie gegenüber der Schutztrennung mit mehreren Verbrauchern nach DIN VDE 0100 Teil 410 eine "zusätzliche" Schutzeinrichtung durch die Isolationsüberwachung in Verbindung mit dem Ersatzstromerzeuger nach DIN VDE 0100 Teil 551 enthält.
5.3.4 Ersatzstromerzeuger mit mehreren Verbrauchern und begrenzter Netzausdehnung
Der Schutz im Fehlerfall ist auch durch eine Begrenzung der Netzausdehnung realisierbar.
Die Gesamtlänge der Kabel und Leitungen muss so begrenzt sein, dass das Produkt aus Nennspannung in Volt und Gesamtlänge der Leitungen in Metern nicht größer als 100.000 ist, wobei die Gesamtlänge der Leitungen 500 m nicht überschreiten darf.
Abb. 12 Beispiel für eine Begrenzung der Netzausdehnung mit sechs Teillängen
Zur Vermeidung einer gefährlichen Körperdurchströmung beim Auftreten eines Fehlers muss eine der beiden nachfolgenden Bedingungen erfüllt sein:
Abb. 13 Schutz durch Spannungsabsenkung an den Klemmen des Ersatzstromerzeugers
6 Prüfungen
6.1 Prüfung vor Inbetriebnahme
Vor der Inbetriebnahme der Anlage und nach jeder Wiederinbetriebnahme muss die Wirksamkeit der Schutzmaßnahme durch eine Elektrofachkraft oder durch eine elektrotechnisch unterwiesene Person unter Leitung und Aufsicht einer Elektrofachkraft mit geeigneten Mess- und Prüfgeräten festgestellt werden.
Werden die Schutzmaßnahmen nach Abschnitt
kann die Anlage auch durch den Anwender, entsprechend den Vorgaben des Herstellers in der Betriebsanleitung, in Betrieb genommen werden.
6.2 Wiederholungsprüfungen
6.2.1 Ortsveränderliche Ersatzstromerzeuger auf Bau- und Montagestellen müssen vor jeder Benutzung arbeitstäglich durch den Benutzer auf äußerlich erkennbare Schäden und Mängel überprüft werden.
6.2.2 Schutzmaßnahmen mit Fehlerstrom-Schutzeinrichtungen (RCD) bei nichtstationären Anlagen sind mindestens einmal im Monat auf Wirksamkeit
zu prüfen.
6.2.3 Zusätzlich ist durch den Benutzer arbeitstäglich durch Betätigen der Prüftaste der Fehlerstrom-Schutzeinrichtung (RCD) die mechanische Funktion der Auslösung oder an der Isolationsüberwachungseinrichtung die Auslösecharakteristik zu prüfen.
6.2.4 Es wird empfohlen, die Prüfungen nach Abschnitt 6.2.2 zu dokumentieren, z.B. durch Kennzeichnung am Betriebsmittel mittels einer Prüfplakette oder einer Banderole.
6.3. Mess- und Prüfgeräte
Geeignete Mess- und Prüfgeräte sind solche nach der Normenreihe DIN EN 61557. Mess- und Prüfgeräte für die Netzfrequenz 50 Hz (230/400 V) müssen Frequenzabweichungen von ± 5 % erkennen können.
Hinweis:
Mess- und Prüfgeräte sollten mindestens alle drei Jahre vom Hersteller oder einem autorisierten Betrieb hinsichtlich der Messsicherheit überprüft werden.
7 Instandsetzung und Wartung
Die Instandsetzung und Wartung von elektrischen Anlagen und Betriebsmitteln darf nur durch Elektrofachkräfte vorgenommen werden.
Elektrische Betriebsmittel, von denen infolge eines Mangels eine Gefährdung ausgeht, müssen sofort wirksam der Benutzung entzogen werden.
| Vorschriften und Regeln | Anhang 1 |
Nachstehend sind die insbesondere zu beachtenden einschlägigen Vorschriften und Regeln zusammengestellt:
1. Unfallverhütungsvorschriften
BGV A1 Grundsätze der Prävention
BGV A3 Elektrische Anlagen und Betriebsmittel
BGV C22 Bauarbeiten
2. Berufsgenossenschaftliche Regeln, Grundsätze und Merkblätter
BGI 594 Einsatz elektrischer Betriebsmittel bei erhöhter elektrischer Gefährdung
BGI 600 Auswahl und Betrieb ortsveränderlicher elektrischer Betriebsmittel nach Einsatzbereichen.
BGI 608 Auswahl und Betrieb elektrischer Anlagen und Betriebsmittel auf Bau- und Montagestellen
ZH 1/559 Sicherheitsregeln für Rohrleitungsbauarbeiten
3. DIN-Normen/VDE-Bestimmungen
| VDE 0100 Teil 300: 1996-01 | Errichten von Starkstrom anlagen mit Nennspannungen bis 1000 V, Teil 3: Bestimmungen allgemeiner Merkmale |
| VDE 0100 Teil 410: 1997-01 | Errichten von Starkstrom anlagen mit Nennspannungen bis 1000 V; Teil 4: Schutzmaßnahmen; Kapitel 41: Schutz gegen elektrischen Schlag (IEC 364-4-41:1992, modifiziert) Deutsche Fassung: HD 384.4.41 S2:1996 |
| VDE 0100 Teil 551: 1997-08 | Elektrische Anlagen von Gebäuden; Teil 5: Auswahl und Errichtung elektrischer Betriebsmittel; Kapitel 55: Andere Betriebsmittel Hauptabschnitt 551: Niederspannungs-Stromerzeugungsanlagen (IEC 364-5-551:1994) Deutsche Fassung HD 384.5.551 S1:1997 |
| VDE 0100 Teil 560: 1995-07 | Errichten von Starkstrom anlagen mit Nennspannungen bis 1000 V Kapitel 56: Elektrische Anlagen für Sicherheitszwecke |
| VDE 0100 Teil 704: 2001-05 | Errichten von Niederspannungsanlagen Teil 7: Anforderungen für Betriebsstätten, Räume und Anlagen besonderer Art Hauptabschnitt 704: Baustellen |
| VDE 0100 Teil 706: 1992-06 | Errichten von Starkstrom anlagen mit Nennspannungen bis 1000 V; Leitfähige Bereiche mit begrenzter Bewegungsfreiheit |
| VDE 0108 Teil 1: 1989-10 | Starkstrom anlagen und Sicherheitsstromversorgung in baulichen Anlagen für Menschenansammlungen |
| DIN EN 61557 -1-8 (VDE 0413 Teil 1-8): 1998-05 |
Elektrische Sicherheit in Niederspannungsnetzen bis AC 1000V und DC 1500 V Geräte zum Prüfen, Messen oder Überwachen von Schutzmaßnahmen |
| VDE 0470: 2000-09 | Schutzarten durch Gehäuse (IP-Code) (EN 60529) Drehende elektrische Maschinen; |
| DIN EN 60034-22 (VDE 0530 Teil 22)1998-01: |
Teil 22: Wechselstromgeneratoren für Stromerzeugungsaggregate mit Hubkolben-Verbrennungsmotoren |
| DIN EN 62020: 1999-07 (VDE 0663) | Elektrisches Installationsmaterial; Differenzstrom-Überwachungsgeräte für Hausinstallationen und ähnliche Verwendungen (RCMs) |
| DIN 6280-10: 1986-10 | Hubkolben-Verbrennungsmotoren; Stromerzeugungsaggregate mit Hubkolben-Verbrennungsmotoren; Stromerzeugungsaggregate kleiner Leistungen; Anforderungen und Prüfung |
| DVGW-Merkblatt GW 308: 2000-08 | Mobile Ersatzstromerzeuger für Rohrleitungsbaustellen; Ausrüstung und Betrieb |
| Belastungsgrenzen eines Generators beim Betrieb von strom- oder spannungsgeführten Frequenzumrichtern | Anhang 2 |
Baugeräte mit spannungsgeführten Frequenzumrichtern (FU) belasten den Generator mit Oberschwingungen. Um die erforderliche Netzqualität nach EN 61000-3-3 einzuhalten, sollte die FU-Leistung ≤ 25 - 30 % der Wirkleistung des Generators sein. Bei stromgeführten Frequenzumrichtern kann sich dieser Wert auf 10 % reduzieren. FU-Leistungen ≥ 50 % können Generatorschäden verursachen.
Beim Betrieb von FU-gesteuerten Maschinen und Geräten mit Ersatzstromerzeugern ist deshalb bezüglich der elektrischen Belastbarkeit des Generators Rücksprache mit dem Hersteller des Frequenzumrichters zu empfehlen.
| Kurzzeichen und Symbole auf elektrischen Betriebsmitteln |
Anhang 3 |
| Schutzarten nach DIN VDE 0470-1 (EN 60.529) |
Anhang 4 |
| Kurzzeichen für Leitungen |
Anhang 5 |
Tabelle 1 - Kabel und Leitungen mit grüngelber Ader
| Anzahl der Adern | Farben der Adern b) | ||||
| Schutzleiter | Aktive Leiter | ||||
| 3 | Grün-Gelb | Blau | Braun | ||
| 4 | Grün-Gelb | - | Braun | Schwarz | Grau |
| 4 a) | Grün-Gelb | Blau | Braun | Schwarz | |
| 5 | Grün-Gelb | Blau | Braun | Schwarz | Grau |
Tabelle 2 - Kabel und Leitungen ohne grüngelbe Ader
| Anzahl der Adern |
Farben der Adern b) | ||||||||
| 2 | Blau | Braun | |||||||
| 3 | - | Braun | Schwarz | Grau | |||||
| 3 a) | Blau | Braun | Schwarz | ||||||
| 4 | Blau | Braun | Schwarz | Grau | |||||
| 5 | Blau | Braun | Schwarz | Grau | Schwarz | ||||
|
|||||||||
![]() |
ENDE | ![]() |
(Stand: 24.07.2025)
Alle vollständigen Texte in der aktuellen Fassung im Jahresabonnement
Nutzungsgebühr: ab 105.- € netto
(derzeit ca. 7200 Titel s.Übersicht - keine Unterteilung in Fachbereiche)
Die Zugangskennung wird kurzfristig übermittelt
? Fragen ?
Abonnentenzugang/Volltextversion