umwelt-online: DIN 4124 Baugruben und Gräben;Böschungen, Arbeitsraumbreiten, Verbau (2)
zurück

Tabelle 4. Waagerechter Normverbau mit Brusthölzern 12cm x 16cm

Zeile Bemessungsgröße Bohlendicke s
5 cm 6 cm 7 cm
1 Größte Wandhöheh 3,00 m 3,00 m 4,00 m 5,00 m 5,00 m
2 Größte Stützweitel1 der Bohlen 1,90 m 2,10 m 2,00 m 1,90 m 2,10 m
3 Größte Kraglängel2 der Bohlen 0,50 m 0,50 m 0,50 m 0,50 m 0,50 m
4 Größte Stützweitel3 der Brusthölzer 1,10 m 1,1 m 1,00 m 0,90 m 0,90 m
5 Größte Kraglängel4 der Brusthölzer 0,40 m 0,40 m 0,40 m 0,40 m 0,40 m
6 Größte Kraglängelu der Brusthölzer 0,80 m 0,80 m 0,75 m 0,70 m 0,70 m
7 Größte Knicklängesk von Rundholzsteifen Ø 12 cm 1,95 m 1,85 m 1,80 m 1,75 m 1,65 m
8 Größte SteifenkraftP 49 kN 54 kN 57 kN 59 kN 64 kN


Bild 9. Waagerechter Normverbau (ohne Darstellung der Befestigungsmittel)

6.2.2 Der waagerechte Normverbau ist im Bild 9 dargestellt. Die Feldweite und die Kragarmlänge der Bohlen, der Durchmesser, der senkrechte Abstand und die zulässige Knicklänge der Steifen richten sich nach der Bohlendicke und der Wandhöhe. Im einzelnen gilt folgendes:

  1. Für Bohlen von 2,50 bis 4,50 m Länge mit Brusthölzern 8 cm x 16 cm bzw. 12 cm x 16 cm und Rundholzsteifen von 10 cm bzw. 12 cm Durchmesser können die erforderlichen Angaben für Holz der Güteklasse II nach DIN 4074 Teil 1 aus den Tabellen 3 und 4 entnommen werden.
  2. Sollen Steifen mit anderem Durchmesser oder aus anderem Material verwendet werden, so ist ihre Tragfähigkeit entsprechend der größten vorhandenen Knicklänge für die in Tabelle 3 bzw. in Tabelle 4, Zeile 8, angegebenen Kräfte nachzuweisen. Siehe Abschnitt 9.4.4.
  3. Die untersten Brusthölzer müssen mindestens 1,50m lang sein, sofern sie um mehr als das Maßl4 über der Baugrubensohle gestützt werden sollen, um einen genügend großen Arbeitsraum, z.B. zum Verlegen von Rohren, zu schaffen. Außerdem darf der Abstandlu der untersten Steife von der Sohle höchstens so groß sein, wie der Achsabstand der untersten zur nächsthöheren Steife, jedoch nicht größer als in den Tabellen 3 und 4, Zeile 6, angegeben.
  4. Die in den Tabellen 3 und 4 für die Baugrubentiefe 3,00m und Bohlendicke 5 cm angegebene Stützweite der Bohlen darf bei Baugrubentiefen bis zu 2,00m aufl1 = 2,10 m vergrößert werden.

6.2.3 Im Hinblick auf den Straßenverkehr setzt die Anwendung des Normverbaues nach Abschnitt 6.2.2 folgendes voraus:

  1. Die nach § 34 der Straßenverkehrszulassungsordnung vom 23.04.1965 (StVZO) allgemein zugelassenen Straßenfahrzeuge halten einen Abstand von mindestens 0,60 m zur Hinterkante der Bohlen ein.
  2. Schwerere Fahrzeuge sowie Fahrzeuge mit höheren Achstasten, z.B. Straßenroller und andere Schwertransportfahrzeuge, halten einen Abstand von mindestens 1,00 m zur Hinterkante der Bohlen ein.
  3. Ein Abstand von 1,00m ist auch immer dann einzuhalten, wenn der Straßenoberbau weniger als 15 cm dick ist oder wegen seines Zustandes keine ausreichende Lastverteilung sicherstellt.

Bagger und Hebezeuge bis 18t Gesamtgewicht (siehe Abschnitt 6.2.6), die unbelastet am Grabenrand entlang fahren, sind als Straßenfahrzeuge nach Absatz a) anzusehen.

6.2.4 Im Hinblick auf Baufahrzeuge, die nach StVZO allgemein zugelassen sind sowie auf Bagger und Hebezeuge bis 12t Gesamtgewicht (siehe Abschnitt 6.2.6) setzt die Anwendung des Normverbaues nach Abschnitt 6.2.2 voraus, daß während der Arbeit ein Abstand von mindestens 0,60m zur Hinterkante der Bohlen eingehalten wird. Ein Abstand braucht nicht eingehalten zu werden, wenn

  1. ein fester Straßenoberbau (z.B. Beton, bituminöse Schichten, in festem Verband liegendes Steinpflaster) von mindestens 15 cm Dicke bis an den Verbau reicht oder
  2. unabhängig von der tatsächlichen Baugrubentiefe der in den Tabellen 3 und 4 für die Tiefeh = 5,00 m angegebene Verbau verwendet wird oder
  3. die 5 cm bzw. 6 cm dicken Bohlen bis auf eine Tiefe von mindestens 0,50m unterhalb der Geländeoberfläche beidseitig doppelt eingebaut werden und bei Baugrubentiefen bis zu 3,00m darüber hinaus die Stützweitel3 der Brusthölzer im obersten Feld auf das Maß verringert wird, das in den Tabellen 3 und 4 für eine Baugrubentiefe vonh = 5,00m angegeben ist oder
  4. durch Baggermatratzen, die während der Arbeit durch das Gerät nicht einseitig am Rand belastet sind, eine ausreichende Lastverteilung erzielt wird.

6.2.5 Im Hinblick auf Baufahrzeuge, die wegen ihrer Achslasten auf öffentlichen Straßen nicht zugelassen sind, sowie auf Bagger und Hebezeuge von 12 bis 18t Gesamtgewicht (siehe Abschnitt 6.2.6) setzt die Anwendung des Normverbaues nach Abschnitt 6.2.2 voraus, dass während der Arbeit ein Abstand von 1,00 m zur Hinterkante der Bohlen eingehalten wird; es genügt ein Abstand von 0,60m, wenn

  1. ein fester Straßenoberbau (z.B. Beton, bituminöse Schichten, in festem Verband liegendes Steinpflaster) von mindestens 15 cm Dicke bis an den Verbau reicht oder
  2. die in den Tabellen 3 und 4 angegebenen Stützweitenl1 der Bohlen um 0,20m verringert werden oder
  3. durch Baggermatratzen, die während der Arbeit durch das Gerät nicht einseitig am Rand belastet sind, eine ausreichende Lastverteilung erzielt wird.

Ein Abstand braucht nicht eingehalten zu werden, wenn eine der im Abschnitt 6.2.4 genannten Bedingungen erfüllt ist und darüber hinaus die in den Tabellen 3 und 4 angegebenen Stützweitenl1 der Bohlen um 0,20m verringert werden.

6.2.6 Das Gesamtgewicht von Baggern und Hebezeugen im Sinne der Abschnitte 6.2.4 und 6.2.5 setzt sich zusammen aus dem Eigengewicht des Gerätes und dem Gewicht des geförderten Bodens bzw. der angehängten Last.

6.2.7 Für die Festlegung des lichten Abstandes zwischen den Fahrzeugen, Baggern oder Hebezeugen und der Hinterkante der Bohlen sind maßgebend:

  1. die Aufstandsflächen der Fahrzeuge bzw. der Baugeräte, sofern ihre Fahrtrichtung parallel zum Graben verläuft,
  2. die senkrechte Projektion der Räder bzw. der Raupenketten, sofern die Fahrzeuge oder Baugeräte von der Seite her an den Graben heranfahren,
  3. die Aufstandsflächen der Pratzen bzw. die Maße der lastverteilenden Unterlage, sofern die Baugeräte zur Erhöhung der Tragfähigkeit zusätzlich abgestützt werden.

6.2.8 Damit die erforderliche Lastverteilung auf der Geländeoberfläche sichergestellt wird, müssen die Pratzen von Baggern und Hebezeugen bzw. die lastverteilenden Unterlagen eine Grundfläche von

  1. 0,40 m2 bei Baugeräten bis 12t Gesamtgewicht,
  2. 0,50 m2 bei Baugeräten mit mehr als 12t Gesamtgewicht

aufweisen, sofern kein fester Straßenoberbau nach Abschnitt 6.2.4, Absatz a), vorhanden ist.

Im übrigen wird bei Baufahrzeugen und gummibereiften Baugeräten Zwillingsbereifung vorausgesetzt.

7 Senkrechter Grabenverbau

7.1 Allgemeines

Außer den Angaben im Abschnitt 4.3 sind bei der Herstellung eines senkrechten Grabenverbaues die nachfolgend genannten Festlegungen zu beachten.

7.1.1 Bauholz für senkrechten Grabenverbau muss mindestens der Güteklasse II nach DIN 4074 Teil 1 entsprechen. Holzbohlen müssen mindestens 5 cm dick, parallel besäumt und vollkantig sein. Zu Güte und Maßen von Spundbohlen und Kanaldielen siehe die "Technischen Lieferbedingungen für Stahlspundbohlen". Gurthölzer müssen einen Querschnitt von mindestens 12 cm x 16 cm, Gurtträger mindestens die Maße eines IPB 100 nach DIN 1025 Teil 2 haben, Hängeeisen einen Querschnitt von mindestens 10 mm X 30 mm oder einen Durchmesser von mindestens 16 mm. Alle Stahlteile müssen mindestens der Güte St37-2 entsprechen.

7.1.2 Bei locker gelagerten nichtbindigen Böden und bei weichen bindigen Böden, die ein Verkleiden mit waagerechten Bohlen nicht zulassen, müssen die Holzbohlen oder Kanaldielen in jedem Bauzustand so weit in den Untergrund einbinden, dass ein Aufbruch ausgeschlossen ist. Mindestens sind sie mit dem Fortschreiten der Ausschachtung jeweils so weit einzutreiben, dass sie in jedem Bauzustand mit ihrer Spitze mindestens 0,30m im Boden stecken.

7.1.3 Bei Böden, die ein Verkleiden mit waagerechten Bohlen zulassen, müssen die Holzbohlen oder Kanaldielen nur dann in den Boden unterhalb der jeweiligen Aushubsohle einbinden, wenn dies wegen der Standsicherheit erforderlich ist.

7.1.4 Gurthölzer (Rahmenhölzer) und Gurtträger sind durch Hängeeisen, Ketten oder andere gleichwertige Vorrichtungen an der Baugrubenwand anzuhängen. Sind die Holzbohlen oder Kanaldielen nicht in der Lage, das Eigengewicht der Gurthölzer und der Steifen in den Untergrund abzutragen, dann sind Unterlagshölzer entsprechend den Bildern 10 und 12 anzuordnen und die Gurthölzer an ihnen aufzuhängen. Die Unterlagshölzer müssen einen Durchmesser bzw. eine Kantenlänge von mindestens 16 cm aufweisen, auf den beiden Seiten des Grabens mindestens 0,60 m aufliegen und in die Geländeoberfläche eingelassen oder mit Material eingebettet werden.

7.2 Arten des senkrechten Grabenverbaues

7.2.1 Verbau mit Holzbohlen (siehe Bild 13)

Der senkrechte Grabenverbau mit Holzbohlen ist nur zweckmäßig, wenn der Boden so weit vorübergehend standfest ist, dass die Bohlen dem Aushub nachfolgen können. Der Aushub darf jedoch auch bei steifen oder halbfesten bindigen Böden der Verbohlung auf eine Tiefe von höchstens 0,50 m, und dies auf eine Länge von nicht mehr als 5 m, vorauseilen. Bei vorübergehend standfesten nichtbindigen oder weichen bindigen Böden ist die Vorauseilung des Aushubes auf 0,25 m und auf höchstens drei Bohlen nebeneinander zu begrenzen.

7.2.2 Verbau mit Kanaldielen (siehe Bild 10)

Die Kanaldielen müssen in ihrer ganzen Länge gleiche Form haben und an die benachbarten Dielen nach dem Eintreiben gut anschließen. Verbeulte oder verbogene Dielen dürfen nicht verwendet werden. An die Stelle von Kanaldielen können auch Leichtspundwände, Tafelprofile, Rammbleche oder dergleichen treten.

7.2.3 Gestaffelter Verbau (siehe Bild 11)

Der senkrechte Verbau mit Holzbohlen bzw. Kanaldielen kann auch als gestaffelter Verbau ausgeführt werden. Die Überdeckungen müssen dabei im Bereich eines Gurtes liegen und mindestens 0,20 m betragen.

7.2.4 Gepfändeter Verbau (siehe Bild 12)

Beim gepfändeten Verbau werden Holzbohlen oder Kanaldielen mit einer leichten Neigung (Pfändung) in mehreren Verbaustufen bis zur Sohle eingebaut. Die Bohlen oder Kanaldielen der oberen Pfändungen müssen mindestens 0,20m unter die Oberkante der Bohlen oder Dielen der nächsten Pfändung einbinden. Beim gepfändeten Verbau sind im allgemeinen Unterlagshölzer nach Abschnitt 7.1.4 erforderlich. Von diesen kann nur bei Kanaldielen und nur dann abgesehen werden, wenn nach einer Vorschachtung bis zu einer Tiefe von höchstens 1,25 m unter Geländeoberfläche die Kanaldielen auf der ganzen Länge vor dem Erdaushub vorgetrieben und die oberen Hauptrahmen unverschiebbar an den vorgetriebenen Kanaldielen befestigt werden.

7.3 Senkrechter Normverbau

7.3.1 Der im Abschnitt 7.3.2 beschriebene senkrechte Normverbau darf ohne besonderen Standsicherheitsnachweis verwendet werden, sofern die im Abschnitt 6.2.1, Absätze a) bis c), genannten Voraussetzungen erfüllt sind und Straßenfahrzeuge einen Abstand von mindestens 0,60 m zur Hinterkante der Bohlen einhalten. Das gleiche gilt für Bagger und Hebezeuge, die unbelastet am Grabenrand entlang fahren. Nach der StVZO zugelassene Baufahrzeuge sowie Bagger und Hebezeuge bis zu 12 t Gesamtgewicht brauchen keinen Abstand einzuhalten. Zum Abstand von schweren Baufahrzeugen und Baugeräten siehe Abschnitt 7.3.3.

Bild 10. Senkrechter Verbau mit Kanaldielen (Beispiele)

Bild 11. Gestaffelter senkrechter Verbau (Beispiel)

Bild 12. Gepfändeter Verbau mit Kanaldielen (Beispiel)


Tabelle 5. Senkrechter Normverbau mit Gurthölzern 16 cm x 16 cm

Zeile Bemessungsgröße Bohlendicke s
5 cm 6 cm 7 cm
1 Größte Wandhöheh 3,00 m 3,00 m 4,00 m 5,00 m 5,00 m
2 Größte Stützweitel1 der Bohlen 0,50 m 0,60 m 0,60 m 0,60 m 0,70 m
3 Größte Kraglängel2 der Bohlen 1,80 m 2,00 m 1,90 m 1,80 m 2,00 m
4 Größte Stützweitel3 der Brusthölzer 1,20 m 1,40 m 1,30 m 1,20 m 1,40 m
5 Größte Kraglängel4 der Brusthölzer 1,60 m 1,50 m 1,40 m 1,30 m 1,20 m
6 Größte Kraglängelu der Brusthölzer 0,80 m 0,75 m 0,70 m 0,65 m 0,60 m
7 Größte Knicklängesk von Rundholzsteifen Ø 12 cm 1,70 m 1,65 m 1,50 m 1,30 m 1,25 m
8 Größte SteifenkraftP 61 kN 62 kN 70 kN 79 kN 80 kN


Tabelle 6. Senkrechter Normverbau mit Gurthölzern 20 cm x 20 cm

Zeile Bemessungsgröße Bohlendicke s
5 cm 6 cm 7 cm
1 Größte Wandhöheh 3,00 m 3,00 m 4,00 m 5,00 m 5,00 m
2 Größte Stützweitel1 der Bohlen 0,50 m 0,60 m 0,60 m 0,60 m 0,70 m
3 Größte Kraglängel2 der Bohlen 1,80 m 2,00 m 1,90 m 1,80 m 2,00 m
4 Größte Stützweitel3 der Brusthölzer 1,20 m 1,40 m 1,30 m 1,20 m 1,40 m
5 Größte Kraglängel4 der Brusthölzer 2,30 m 2,20 m 2,00 m 1,80 m 1,70 m
6 Größte Kraglängelu der Brusthölzer 1,15 m 1,10 m 1,00 m 0,90 m 0,85m
7 Größte Knicklängesk von Rundholzsteifen Ø 14 cm 1,90 m 1,85 m 1,65 m 1,45 m 1,40 m
8 Größte SteifenkraftP 88 kN 91 kN 100 kN 111 kN 114 kN


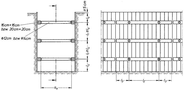
Bild 13. Senkrechter Normverbau mit Verbauteilen aus Holz (ohne Darstellung der Befestigungsmittel)

7.3.2 Der senkrechte Normverbau ist im Bild 13 dargestellt. Die Feldweite und die Kragarmlänge der Bohlen, der waagerechte Abstand und die zulässige Knicklänge der Steifen richten sich nach der Bohlendicke und der Wandhöhe. Im einzelnen gilt folgendes:

  1. Für Gurthölzer 16 cm x 16 cm bzw. 20 cm x 20 cm und für Holzsteifen von 12 cm bzw. 14 cm Durchmesser können die erforderlichen Angaben für Holz der Güteklasse II nach DIN 4074 Teil 1 aus den Tabellen 5 und 6 entnommen werden.
  2. Sollen Steifen mit anderem Durchmesser oder aus anderem Material verwendet werden, so ist ihre Tragfähigkeit entsprechend der größten vorhandenen Knicklänge für die in Tabelle 5 bzw. Tabelle 6, Zeile 8, angegebenen Kräfte nachzuweisen, siehe Abschnitt 9.4.4.
  3. Der Abstandlo von der Geländeoberfläche bis zur obersten Steifenlage darf nicht größer sein als der Achsabstand von der ersten zur zweiten Steifenlage und nicht größer als in den Tabellen 5 und 6, Zeile 2, angegeben.
  4. Der Abstandlu von der Baugrubensohle bis zur untersten Steifenlage darf nicht größer sein als der Achsabstand von der untersten zur darüberliegenden Steifenlage und nicht größer als in den Tabellen 5 und 6, Zeile 4, angegeben.
  5. Werden die Gurthölzer jeweils an den äußeren Fuenftelpunkten der Gurtlänge gestützt, so kann der in den Tabellen 5 und 6 angegebene Steifenabstandl2 um ein Drittel vergrößert werden.
  6. Anstelle von Holzbohlen dürfen auch Kanaldielen und anstelle der Gurthölzer Stahlprofile verwendet werden, sofern sie imstande sind, ein gleich großes Biegemoment aufzunehmen. Eine Staffelung der Kanaldielen ist zulässig. Die Überdeckung muss jedoch im Bereich eines Gurtes liegen und mindestens 0,20 m betragen.

7.3.3 Im Hinblick auf Baufahrzeuge, die wegen ihrer Achslasten auf öffentlichen Straßen nicht zugelassen sind, sowie auf Bagger und Hebezeuge von 12 bis 18t Gesamtgewicht setzt die Anwendung des Normverbaues nach Abschnitt 7.3.2 voraus, dass während der Arbeit ein Abstand von mindestens 1,00m zur Hinterkante der Bohlen eingehalten wird; ein kleinerer Abstand ist ausreichend, wenn

  1. die in den Tabellen 5 und 6 angegebenen Stützweitenl1 der Bohlen um 0,20 m verringert werden,
  2. ein fester Straßenoberbau (z.B. Beton, bituminöse Schichten, in festem Verband liegendes Steinpflaster) von mindestens 15 cm Dicke bis an den Verbau reicht,
  3. durch Baggermatratzen, die während der Arbeit durch das Gerät nicht einseitig am Rand belastet sind, eine ausreichende Lastverteilung erzielt wird,
  4. die in den Tabellen 5 und 6 angegebenen Kraglängenlo der Bohlen um 0,20 m verringert werden.

Sofern eine der Bedingungen a) bis c) erfüllt ist, genügt ein Abstand von 0,60m. Sofern die Bedingung a) und zusätzlich eine der Bedingungen b) bis d) erfüllt sind, braucht kein Abstand eingehalten zu werden.

7.3.4 Im Hinblick auf das Gesamtgewicht von Baggern und Hebezeugen, die Aufstandsflächen der Fahrzeuge und Baugeräte sowie die Art der Bereifung von Baufahrzeugen und gummibereiften Baugeräten gelten die Abschnitte 6.2.6 und 6.2.7.

8 Baugrubenverbau

Sofern die Maße einer Baugrube oder eines Grabens, die erforderlichen steifenfreien Räume, die Forderung nach Wasserdichtigkeit oder geringer Verformbarkeit der Baugrubenwand, die Bodenverhältnisse oder andere Gründe die Anwendung des waagerechten oder des senkrechten Grabenverbaues nicht zulassen, kann entsprechend den jeweiligen Anforderungen eine der nachfolgend beschriebenen Verbauarten angewendet werden. Dabei sind die Angaben des Abschnittes 4.3 zu beachten.

8.1 Spundwände (siehe Bild 6)

8.1.1 Zu Güte und Maßen von Spundbohlen und Kanaldielen siehe die "Technischen Lieferbedingungen für Stahlspundbohlen" und die Empfehlungen des Arbeitsausschusses "Ufereinfassungen" 6).

8.1.2 Ausgesteifte oder verankerte Spundwände sind mit Zangen oder Gurten zusammenzufassen, sofern nicht mindestens jede Doppelbohle gestützt ist. Wo die Zangen oder Gurte nicht an der Spundwand anliegen, ist der Zwischenraum so weit auszufuttern, wie es für eine einwandfreie Kraftübertragung erforderlich ist.

8.1.3 Steifen und Anker dürfen nur gegen Zangen und Gurte gesetzt werden, sofern nicht jede Doppelbohle für sich gestützt wird oder bei Stützung nur jeder zweiten Doppelbohle ein Nachweis der Lastübertragung geführt wird.

Bild 14. Einzelheiten einer Trägerbohlwand (Beispiel)

8.2 Trägerbohlwände (siehe Bilder 6, 7 und 14)

8.2.1 Trägerbohlwände bestehen aus Stahlträgern mit einer waagerecht gespannten Ausfachung aus Holzbohlen, Kanthölzern, Kanaldielen, Stahlbetonfertigteilen, Ortbeton oder dergleichen. An die Stelle von Stahlträgern können auch Bohrrohre oder Bohrpfähle treten, wenn bei der Herstellung oder beim Ausschachten entsprechende Vorrichtungen zur Auflagerung der Ausfachung vorgesehen werden.

8.2.2 Holzbohlen, Kanthölzer oder Rundhölzer für Trägerbohlwände müssen mindestens der Güteklasse III nach DIN 4074 Teil 1 bzw. Teil 2 entsprechen. Holzbohlen müssen mindestens 5 cm, Rundhölzer mindestens 10 cm dick sein.

8.2.3 Die Ausfachung muss stets mit dem Aushub fortschreitend eingebracht werden. Mit dem Einziehen der Ausfachung ist spätestens zu beginnen, wenn die Tiefe von 1,25 m erreicht ist. Der Einbau der weiteren Ausfachung darf hinter dem Aushub bei steifen oder halbfesten bindigen Böden höchstens um 1 m, bei vorübergehend standfesten nichtbindigen Böden (siehe Abschnitt 4.3.3) höchstens um 0,50 m zurück sein. Bei wenig standfesten Böden, zum Beispiel bei locker gelagerten gleichkörnigen Sand- und Kiesböden, kann es erforderlich sein, die Höhe der Abschachtung auf die Höhe der Einzelteile der Ausfachung zu beschränken. Beim Rückbau ist sinngemäß zu verfahren.

8.2.4 Die Einzelteile der Ausfachung müssen so lang sein, dass sie auf jeder Seite mindestens auf einem Fuenftel der Flanschbreite aufliegen; dabei sind jedoch die in anderen Vorschriften festgelegten Mindestwerte einzuhalten. Sie müssen mit Keilen, die zwischen der Ausfachung und den Trägerflanschen einzuschlagen sind, oder mit anderen gleichwertigen Mitteln fest und unverschiebbar gegen den Boden gepresst werden. Besteht Gefahr, daß die Bohlen abrutschen, z.B. bei locker gelagerten nichtbindigen Böden oder bei geschichteten Böden mit Einlagerungen von weichen bindigen Böden oder Fließsand (enggestufter, wassergesättigter Feinsand), so sind sie durch aufgenagelte Laschen oder Hängestangen zu sichern. Das gleiche gilt unabhängig vom anstehenden Boden immer dann, wenn der Abstand benachbarter Bohlträger mit der Tiefe zunimmt. Sofern Gefahr besteht, dass die Keile sich lockern und herausfallen, sind sie durch Leisten zu sichern.

8.2.5 Sofern größere Bewegungen des Baugrunds unbedenklich sind, können durchlaufende Bohlen mit Klammern vor den Bohlträgern befestigt, statt Bohlen auch Rundhölzer verwendet oder die Bohlen zur Sicherung gegen Abrutschen gegen die erdseitigen Flansche der Bohlträger verkeilt werden.

8.2.6 Bei Böden, die zum Fließen neigen, kann es zweckmäßig sein, senkrechte, gestaffelte oder gepfändete Kanaldielen zwischen den einzelnen Bohlträgern einzurammen und durch waagerechte Gurte auf die Bohlträger abzustützen. In Bezug auf die Einbindetiefe der Kanaldielen gilt Abschnitt 7.1.2.

8.2.7 Sollen Bewegungen der Baugrubenwand und des Bodens in der Nähe von Gebäuden, Leitungen und dergleichen weitgehend verhindert werden, so sind die Einzelteile der Ausfachung möglichst mit einer Vorbiegung einzubauen und mit einfachen oder doppelten Holzkeilen zu verkeilen. Außerdem sind die Steifen entsprechend vorzuspannen. Darüber hinaus kann es zweckmäßig sein, die Ausfachung spätestens dann einzubringen, sobald die Wand auf eine Höhe von 0,50 m freigeschachtet ist. Gegebenenfalls ist eine Verbauart nach Abschnitt 8.3 zu wählen.

8.2.8 Die Steifen können entweder unmittelbar zwischen die Bohlträger oder zwischen Gurte gesetzt werden. Werden die Steifen unmittelbar zwischen gegenüberliegenden Bohlträgern angeordnet, dann ist wenigstens ein Gurt in der oberen Hälfte der Baugrubenwand auf größere Abschnitte der Baugrube zug- und druckfest durchzuführen. Das gleiche gilt bei verankerten und bei nicht gestützten Baugrubenwänden.

8.3 Massive Verbauarten

8.3.1 Schlitzwände sind Wände im Untergrund, für die zunächst in Wandbreite Schlitze ausgehoben und mit einer Stützflüssigkeit am Einsturz gehindert werden. Anschließend werden die Wände aus Stahlbeton unter gleichzeitigem Verdrängen der Stützflüssigkeit hergestellt (siehe DIN 4126 Teil 1 (z. Z. noch Entwurf)).

8.3.2 Bei Pfahlwänden in steifen oder halbfesten bindigen Böden reicht es aus, wenn sich die einzelnen Pfähle berühren. Sofern eine gewisse Dichtigkeit der Wand gegen Grundwasser angestrebt wird und bei Böden, die zum Fließen neigen, ist dafür zu sorgen, dass sich die einzelnen Pfähle einer Pfahlwand überschneiden. Im übrigen gilt DIN 4014 Teil 1 und DIN 4014 Teil 2 (Vornorm).

8.3.3 Bei einer Verfestigung des Bodens durch Injektionen nach DIN 4093 oder durch Vereisung ist dafür zu sorgen, dass durch die möglichen Hebungen des Bodens keine benachbarten Gebäude oder andere Anlagen gefährdet werden. Die Verfestigung ist spätestens beim Aushub zu überprüfen.

9 Standsicherheitsnachweis

9.1 Allgemeines

9.1.1 Durch das Ausschachten wird der Gleichgewichtszustand des Bodens gestört. Der zur Aufnahme der Erddruckkräfte vorgesehene Verbau muss in seinen Maßen rechnerisch bestimmt und in seiner Standsicherheit statisch nachgewiesen werden, sofern nicht der Normverbau nach den Abschnitten 6.2 oder 7.3 verwendet wird.

9.1.2 Der Verbau muss den höchsten zu erwartenden Belastungen in ungünstigster Stellung standhalten. Alle Teile sind so zu bemessen, dass die zulässigen Beanspruchungen nach Abschnitt 9.4 nicht überschritten werden.

9.1.3 Zum Standsicherheitsnachweis für den Verbau siehe die Empfehlungen des Arbeitskreises "Baugruben" 6).

9.2 Lastannahmen

9.2.1 Die Lasten sind nach DIN 1055 Teil 1 bis Teil 3 und nach DIN 1072 anzunehmen, soweit nicht genauere Untersuchungen über die tatsächlich zu erwartenden Lasten aus Straßenverkehr, Baustellenverkehr oder Baubetrieb angestellt werden. Bei Schienenverkehr sind die einschlägigen Sondervorschriften zu beachten.

9.2.2 Die für die Ermittlung von Erddruck und Erdwiderstand benötigten Bodenkenngrößen sind nach DIN 1055 Teil 2 zu ermitteln. Bei Baugruben und Gräben von mehr als 5m Tiefe sind bodenmechanische Untersuchungen stets vorzunehmen, sofern die örtlichen Erfahrungen keinen ausreichenden Aufschluss geben. Hat die Kohäsion des Bodens einen ausschlaggebenden Einfluss auf die Standsicherheit des Verbaues, dann sind Verlauf, Mächtigkeit und Konsistenz der bindigen Schichten beim Aushub zu überprüfen.

9.2.3 Die Wirkung von Frostperioden, von Quellungen, Setzungen und Erschütterungen des Baugrunds, ferner der Einfluss der Wasserstände und ihre Änderung sowie etwa gestörte Bodenverhältnisse sind zu beachten.

9.2.4 Sollen Teile des Verbaues durch lotrechte Lasten beansprucht werden, so sind sie dafür zu bemessen. Werden Stahlsteifen zusätzlich durch Verkehrslasten beansprucht, so gilt DIN 1073.

9.3 Erddruck

9.3.1 Im allgemeinen kann ein Verbau für den einfachen aktiven Erddruck bemessen werden. Darf sich der Boden mit Rücksicht auf eine benachbarte bauliche Anlage nicht entspannen, dann ist der Verbau entsprechend Empfindlichkeit, Zustand und Entfernung dieser Anlage für einen höheren als den aktiven Erddruck, höchstens aber für den Ruhedruck zu bemessen und dementsprechend konstruktiv auszubilden.

9.3.2 Reicht bei bindigen Böden die zu erwartende Verschiebung der Wand nicht aus, um in der Gleitfuge den Grenzzustand herbeizuführen, so darf die Scherfestigkeit des Bodens nicht voll in Rechnung gestellt werden.

9.3.3 Soweit bei der statischen Untersuchung eines durch mehrere Steifenlagen gestützten waagerechten oder senkrechten Grabenverbaues kein genauerer Nachweis geführt wird, darf die Erddrucklast unter Berücksichtigung gleichmäßig verteilter Auflasten nach der klassischen Erddrucktheorie ermittelt und näherungsweise in ein flächengleiches Rechteck umgewandelt werden. Um die mit dieser Näherung verbundenen Unsicherheiten auszugleichen, sind die mit dem Erddruckrechteck ermittelten Auflagerkräfte zur Bemessung der Steifen, Gurte u. ä. um mindestens 20 % zu erhöhen. Wird bei solchen mehrfach gestützten Wänden der Erddruck trapezförmig angenommen, kann ein Zuschlag ganz oder teilweise entfallen.

9.4 Zulässige Spannungen

9.4.1 Bei der Bemessung von vorwiegend auf Biegung beanspruchten Holzteilen von Verbaukonstruktionen, Hilfsbrücken und Baugrubenabdeckungen darf auf die Abminderung der zulässigen Spannungen nach DIN 1052 Teil 1, Ausgabe Oktober 1969, Abschnitt 9.4, verzichtet werden.

Bei Verwendung von neuen oder neuwertigen Hölzern gilt darüber hinaus folgendes:

  1. Die zulässigen Spannungen nach DIN 1052 Teil 1, Ausgabe Oktober 1969, Tabelle 6, dürfen allgemein um 20 % erhöht werden.
  2. Bei Druck rechtwinklig zur Faserrichtung ist eine Erhöhung um 100 % zulässig, sofern das quer zur Faser beanspruchte Holz höchstens doppelt so breit ist wie die Druckfläche und die mit der erhöhten Pressung verbundenen Verformungen unbedenklich sind.
  3. Werden über die Höhe der Baugrubenwand Lastfiguren angesetzt, die der zu erwartenden Erddruckfigurbesser entsprechen als das im Abschnitt 9.3.3 und in den Empfehlungen des Arbeitskreises "Baugruben" zugelassene Rechteck, so dürfen die zulässigen Biegespannungen bei vorwiegend auf Biegung beanspruchten Holzteilen des Verbaues um 50 % erhöht werden.

Die beim Prüfen, Überspannen oder Lösen von Steifen oder Ankern auftretenden Spannungen brauchen nicht nachgewiesen zu werden.

9.4.2 Für die Bemessung von vorwiegend auf Biegung beanspruchten Stahlteilen von Verbaukonstruktionen, Hilfsbrücken und Baugrubenabdeckungen gilt:

  1. Beim Nachweis des Lastfalles H dürfen die in DIN 1050 für Biegedruck, Biegezug und Schub im Lastfall HZ angegebenen zulässigen Spannungen angenommen werden. Die Vergleichsspannung darf höchstens 80 % der Streckgrenze erreichen.
  2. Eine entsprechende Erhöhung ist auch beim Nachweis des Lastfalles HZ zulässig, bei Biegedruck und Biegezug jedoch höchstens bis zu 80 % der Streckgrenze, bei der Vergleichsspannung bis höchstens 85 % der Streckgrenze.
  3. Beim Prüfen, Überspannen oder Lösen von Steifen oder Ankern dürfen die Biegedruck-, Biegezug- und Vergleichsspannungen bis zu 90 % der Streckgrenze erreichen.

Die genannten Spannungserhöhungen setzen voraus, dass beim Spannungsnachweis alle Schwächungen der Stahlprofile durch Bohrungen, quer laufende Schweißnähte oder stärkere Abrostungen im Bereich größerer Biegemomente berücksichtigt werden. Im übrigen gelten die Angaben sinngemäß auch für Spundwandstahl.

9.4.3 Für die Bemessung von vorwiegend auf Biegung beanspruchten Bauteilen aus Stahlbeton gilt abweichend von DIN 1045:

  1. Bei der Querschnittsbemessung für den Bauzustand darf mit einem Sicherheitsbeiwertv = 1,5 anstellev = 1,75 oder mit um 15 % verminderten Schnittgrößen gerechnet werden. Beim Prüfen, Überspannen oder Lösen von Steifen oder Ankern genügt der Ansatz eines Sicherheitsbeiwertesv = 1,3 oder eine Verminderung der Schnittgrößen um 25 %
  2. Bei Teilflächenbelastung darf unter Gebrauchslast der Sicherheitsbeiwertv = 1,75 stattv = 2,10 zugrunde gelegt werden, beim Prüfen, Überspannen oder Lösen von Steifen oder Ankernv = 1,5.
  3. Die Beschränkung der Rißbreite braucht nur nachgewiesen zu werden, wenn der für die Ermittlung der Bewehrung maßgebende Bauzustand länger dauert als 2 Jahre. Dabei dürfen die Beiwerte rgegenüber DIN 1045, Ausgabe Dezember 1978, Tabelle 15, verdoppelt werden.

Für die Rechenwerte der Schub- und Torsionsspannungen gelten die in DIN 1045 festgelegten Grenzen.

9.4.4 Bei Steifen aus Stahl oder Stahlbeton und ihren Anschlüssen sowie bei allen Verbindungsmitteln sind im allgemeinen die zulässigen Beanspruchungen nach DIN 1050 bzw. DIN 1045 einzuhalten. Bei Rundholzsteifen ist eine Erhöhung der zulässigen Druckspannung um mehr als den in DIN 1052 Teil 1, Ausgabe Oktober 1969, Abschnitt 9.1.6, genannten Betrag von 20 % hinaus nicht statthaft. Bei stählernen Kanalstreben und bei Streben mit Spindelköpfen gelten die bei der Prüfung der Arbeitssicherheit (siehe Abschnitt 4.3.6) festgestellten Nutzlasten.

9.4.5 Für die Bemessung von Zugankern aus Stabstahl gelten die zulässigen Spannungen nach DIN 1050. Zum Nachweis der Tragfähigkeit von Verpressankern gilt DIN 4125 Teil 1 und Teil 2, für Ketten DIN 766.

9.5 Räumliche Stabilität

9.5.1 Der Nachweis der Stabilität hat sich nicht nur auf die einzelnen Tragteile des Verbaues (Knicken, Biegedrillknicken, Kippen, Beulen) zu erstrecken, sondern auch auf den räumlichen Zusammenhang der einzelnen Teile nach DIN 4114 Teil 1 und Teil 2.

9.5.2 Sofern die Knicklänge von Steifen herabgesetzt werden soll, sind die hierzu benötigten Gurte und Verbände an der Oberseite und an der Unterseite der Steifen anzubringen. Anstelle der Verbände an der Unterseite können andere gleichartig wirkende Konstruktionen eingebaut werden.

9.5.3 Konstruktionen, die der Herabsetzung der Knicklänge von Steifen dienen, wie Mittelunterstützungen, Gurte und Verbände, sind für eine quer zu diesen Steifen gerichtete Last zu bemessen, die mit 1hoo der Summe der in den angeschlossenen Steifen vorhandenen Normalkräfte angenommen werden darf. Sind zwei oder mehrere dieser Konstruktionen nebeneinander angeordnet, so ist jede einzeln für die angegebenen Lasten zu bemessen. Das gleiche gilt für gemeinsame Verbände. Starre Anschlüsse, z.B. Schweiß- oder HV-Verbindungen, sind mit Rücksicht auf mögliche Zwängungskräfte für das Doppelte der so errechneten Lasten zu bemessen.

.

Weitere Normen und Unterlagen


DIN 18300 VOB Verdingungsordnung für Bauleistungen, Teil C: Allgemeine Technische Vorschriften für Bauleistungen; Erdarbeiten
DIN 18303 VOB Verdingungsordnung für Bauleistungen, Teil C: Allgemeine Technische Vorschriften für Bauleistungen; Verbauarbeiten

Merkblatt über das Zufüllen von Leitungsgräben 7)

Technische Lieferbedingungen für Stahlspundbohlen 8)

Empfehlungen des Arbeitsausschusses "Ufereinfassungen" der Hafenbautechnischen Gesellschaft und der Deutschen Gesellschaft für Erd- und Grundbau e. V. 9)

Empfehlungen des Arbeitskreises "Baugruben" der Deutschen Gesellschaft für Erd- und Grundbau e. V. 9 )

______________________

6) Siehe "Weitere Normen und Unterlagen"

7) Herausgegeben und zu beziehen von der Forschungsgesellschaft für das Straßenwesen, Maastrichter Straße 45, Köln

8) BVM-Runderlaß W6-6064 Va 57 vom 28.03.1967, zu beziehen durch den Verkehrs- und Wirtschafts-Verlag Dr. Borgmann, Dortmund, Best.-Nr. 3035

9) Zu beziehen durch den Verlag von W. Ernst & Sohn, Berlin

ENDE

umwelt-online - Demo-Version


(Stand: 16.06.2018)

Alle vollständigen Texte in der aktuellen Fassung im Jahresabonnement
Nutzungsgebühr: ab 105.- € netto

(derzeit ca. 7200 Titel s.Übersicht - keine Unterteilung in Fachbereiche)

Preise & Bestellung

Die Zugangskennung wird kurzfristig übermittelt

? Fragen ?
Abonnentenzugang/Volltextversion