Für einen individuellen Ausdruck passen Sie bitte die
Einstellungen in der Druckvorschau Ihres Browsers an.
Regelwerk, Energienutzung

GEGV - Bekanntmachung der Senatorin für Klimaschutz, Umwelt, Mobilität, Stadtentwicklung und Wohnungsbau zur Verordnung zur Durchführung des Gebäudeenergiegesetzes
- Bremen -

Vom 22. November 2022
(Brem. ABl. Nr. 222 vom 08.12.2022 S. 1019)



Aufgrund § 2 Absatz 3 Satz 1 der Verordnung zur Durchführung des Gebäudeenergiegesetzes vom 1. November 2022 (Brem.GBl. S. 840) gibt die Senatorin für Klimaschutz, Umwelt, Mobilität, Stadtentwicklung und Wohnungsbau bekannt:

Zur Erstellung der Erfüllungserklärung nach § 92 des Gebäudeenergiegesetzes sind im Land Bremen die nachfolgend dargestellten Muster zu verwenden.

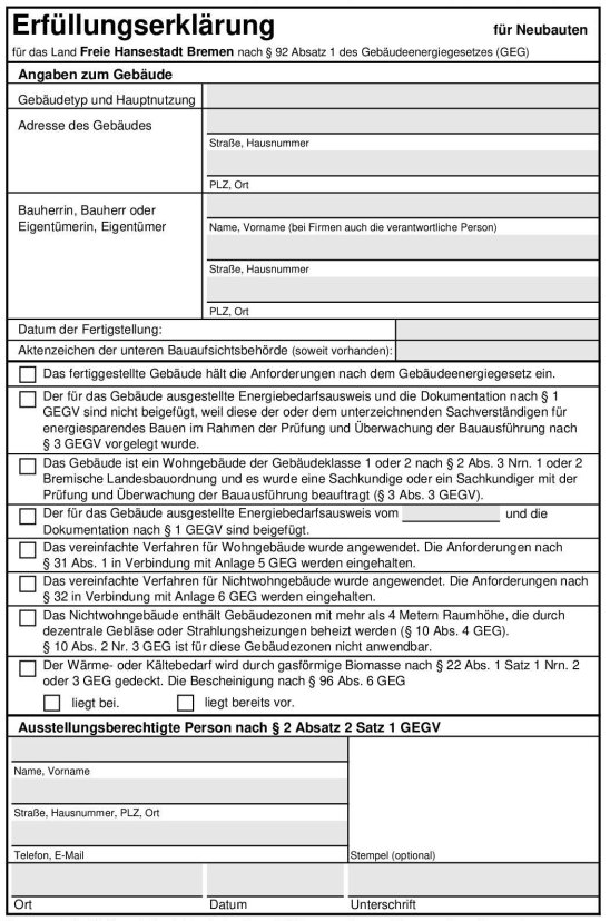
Muster für Erfüllungserklärungen nach § 2 Absatz 3 der Verordnung zur Durchführung des Gebäudeenergiegesetzes und § 92 Absatz 1 des Gebäudeenergiegesetzes

Muster nach § 2 Absatz 3 der Verordnung zur Durchführung des Gebäudeenergiegesetzes ( GEGV)

Die ausgestellte Erklärung ist in elektronischer Form (PDF) an geg@umwelt.bremen.de zu übersenden.

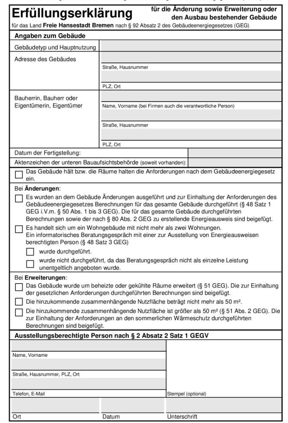
Muster für Erfüllungserklärungen nach § 2 Absatz 3 der Verordnung zur Durchführung des Gebäudeenergiegesetzes und § 92 Absatz 2 des Gebäudeenergiegesetzes

Muster nach § 2 Absatz 3 der Verordnung zur Durchführung des Gebäudeenergiegesetze s ( GEGV)

Die ausgestellte Erklärung ist in elektronischer Form (PDF) an geg@umwelt.bremen.de zu übersenden.

ENDE

umwelt-online - Demo-Version


(Stand: 15.12.2022)

Alle vollständigen Texte in der aktuellen Fassung im Jahresabonnement
Nutzungsgebühr: ab 105.- € netto

(derzeit ca. 7200 Titel s.Übersicht - keine Unterteilung in Fachbereiche)

Preise & Bestellung

Die Zugangskennung wird kurzfristig übermittelt

? Fragen ?
Abonnentenzugang/Volltextversion