umwelt-online: Entscheidung 2008/217/EG (3)
![]() |
zurück | ![]() |
6.2 Teilsystem Infrastruktur
6.2.1 Allgemeine Bestimmungen
Auf Verlangen des Auftraggebers oder seines in der Gemeinschaft ansässigen Bevollmächtigten führt die benannte Stelle das EG-Prüfverfahren für das Teilsystem Infrastruktur gemäß Artikel 18 und Anhang VI der Richtlinie 96/48/EG, geändert durch die Richtlinie 2004/50/EG, und nach den Bestimmungen der einschlägigen Module gemäß Anhang C dieser TSI durch.
Wenn der Auftraggeber nachweisen kann, dass Prüfungen oder Nachweise hinsichtlich eines Teilsystems Infrastruktur bei vorhergehenden Anträgen eines Entwurfs unter vergleichbaren Bedingungen positiv ausgefallen sind, muss die benannte Stelle diese Prüfungen und Nachweise bei der Konformitätsbewertung berücksichtigen.
Die Bewertung der Konformität des Teilsystems Infrastruktur muss die Phasen und Merkmale umfassen, die in Anhang B1 der vorliegenden TSI durch X gekennzeichnet sind.
Wenn die Anwendung von nationalen Vorschriften in Kapitel 4 gefordert ist, wird die entsprechende Konformitätsbewertung unter der Verantwortung des betreffenden Mitgliedstaates durchgeführt.
Der Auftraggeber muss eine EG-Konformitätserklärung für das Teilsystem Infrastruktur gemäß Artikel 18 und Anhang V der Richtlinie 96/48/EG, geändert durch die Richtlinie 2004/50/EG, erstellen.
6.2.2 Zurückgestellt
6.2.3 Innovative Lösungen
Wenn ein Teilsystem eine Unterbaugruppe enthält, die nicht darauf ausgelegt ist, die in Kapitel 4 dieser TSI festgelegten Leistungsmerkmale zu erfüllen, so wird es als innovativ klassifiziert.
Innovative Lösungen für die Interoperabilität erfordern neue Spezifikationen und/oder neue Bewertungsmethoden.
Wenn die Infrastruktur eine innovative Lösung beinhaltet, so muss der Hersteller oder der Auftraggeber die Abweichungen vom relevanten Abschnitt der TSI angeben.
Die Europäische Eisenbahnagentur muss geeignete funktionelle Spezifikationen und Schnittstellenspezifikationen dieser Lösung festlegen und die Bewertungsmethoden erstellen.
Die geeigneten funktionellen Spezifikationen und Schnittstellenspezifikationen sowie die Bewertungsmethoden müssen im Rahmen des Revisionsverfahrens in die TSI integriert werden. Sobald diese Dokumente veröffentlicht wurden, kann der Hersteller oder Auftraggeber oder sein in der Gemeinschaft ansässiger Bevollmächtigter das Bewertungsverfahren für die Infrastruktur wählen, wie in Abschnitt 6.2.4 festgelegt.
Nach Inkrafttreten einer gemäß Artikel 21 der Richtlinie 96/48/EG , geändert durch die Richtlinie 2004/50/EG, erlassenen Entscheidung der Kommission kann die innovative Lösung auch vor ihrer Aufnahme in die TSI angewandt werden.
6.2.4 Anwendung der Module
Bei den Prüfverfahren des Teilsystems Infrastruktur hat der Auftraggeber oder sein in der Gemeinschaft ansässiger Bevollmächtigter die Wahl zwischen folgenden Möglichkeiten:
6.2.4.1 Anwendung von Modul SH2
Das Modul SH2 kann nur dann gewählt werden, wenn die Tätigkeiten, die zu dem geplanten und zu überprüfenden Teilsystem beitragen (Entwurf, Herstellung, Montage, Installation), einem von einer benannten Stelle genehmigten und kontrollierten Qualitätssicherungssystem unterliegen, das den Entwurf, die Herstellung, Endabnahme und Prüfung des Produkts abdeckt.
6.2.4.2 Anwendung von Modul SG
In den Fällen, in denen die Konformitätsbewertung am effektivsten durch den Einsatz eines Gleismesswagens durchgeführt werden kann, ist es der benannten Stelle gestattet, die Ergebnisse eines im Auftrag des Infrastrukturbetreibers oder des Auftraggebers eingesetzten Gleismesswagens zu verwenden. (Siehe 6.2.6.2.)
6.2.5 Technische Lösungen, bei denen in der Entwurfsphase von der Konformität ausgegangen wird
6.2.5.1 Bewertung der Gleislagestabilität
Es wird davon ausgegangen, dass Strecken mit Schotteroberbau die in Abschnitt 4.2.13.1 festgelegten Anforderungen hinsichtlich des Widerstands gegen Längsbeanspruchungen, vertikale Beanspruchungen und Querbeanspruchungen erfüllen, wenn sie folgende Merkmale aufweisen:
6.2.5.2 Bewertung der äquivalenten Konizität
Es wird davon ausgegangen, dass Gleise die Anforderungen in Abschnitt 4.2.9.2 erfüllen, wenn sie die folgenden Entwurfsmerkmale aufweisen:
6.2.6 Besondere Anforderungen an die Konformitätsbewertung
6.2.6.1 Bewertung der Grenzlinie für feste Anlagen
Bis zur Veröffentlichung harmonisierter EN-Normen für Lichtraumprofile muss das technische Dossier eine Beschreibung der vom Infrastrukturbetreiber gewählten anzuwendenden Regeln gemäß Abschnitt 4.2.3 enthalten.
Die Bewertung der Grenzlinie für feste Anlagen erfolgt unter Verwendung der Ergebnisse von Berechnungen, die vom Infrastrukturbetreiber oder vom Auftraggeber auf der Grundlage dieser anzuwendenden Regeln durchgeführt wurden.
6.2.6.2 Bewertung des Mindestwertes für die mittlere Spurweite
Die Messmethode für die Spurweite ist in Abschnitt 4.2.2 von EN 13848-1.2003 angegeben.
6.2.6.3 Bewertung der Gleissteifigkeit
Die Anforderungen für die Steifigkeit des Gleises sind ein offener Punkt, daher ist keine Bewertung durch einen benannte Stelle erforderlich.
6.2.6.4 Bewertung der Schienenneigung
Die Schienenneigung wird nur in der Planungsphase bewertet.
6.2.6.5 Bewertung der maximalen Druckschwankungen in Tunneln
Die Bewertung der maximalen Druckschwankungen in Tunneln (10-kPa-Kriterium) erfolgt unter Verwendung der Ergebnisse von Berechnungen, die vom Infrastrukturbetreiber oder vom Auftraggeber auf der Grundlage aller Betriebsbedingungen mit allen Zügen, die der TSI Fahrzeuge des Hochgeschwindigkeitsbahnsystems entsprechen und die in dem spezifischen zu bewertenden Tunnel eingesetzt werden sollen, durchgeführt wurden.
Die zu verwendenden Eingangsgrößen müssen dem charakteristischen Referenzdruckbild der Züge (festgelegt in der TSI Fahrzeuge des Hochgeschwindigkeitsbahnsystems) entsprechen.
Die Referenz-Querschnittflächen der zu berücksichtigenden interoperablen Züge betragen, unabhängig davon, ob es sich um Triebfahrzeuge oder nicht motorisierte Mittelwagen handelt:
Die Bewertung berücksichtigt die Konstruktionsmerkmale, die zu einer Verringerung der Druckschwankungen führen (Form des Tunnelportals, Kamine usw., falls vorhanden) sowie die Länge des Tunnels.
6.2.6.6 Bewertung von Lärm und Erschütterungen
Es ist keine Bewertung durch die benannte Stelle erforderlich.
6.3 Konformitätsbewertung in Fällen, in denen Geschwindigkeit als Übergangskriterium verwendet wird
Abschnitt 7.2.5 gestattet die Inbetriebnahme einer Strecke mit einer geringeren als der endgültig vorgesehenen Geschwindigkeit.
In diesem Abschnitt sind die Anforderungen an die Konformitätsbewertung unter diesen Bedingungen festgelegt.
Einige der in Kapitel 4 festgelegten Grenzwerte hängen von der vorgesehenen Streckengeschwindigkeit ab.
Die Konformität ist bei der endgültig vorgesehenen Geschwindigkeit zu bewerten; es ist jedoch zulässig, geschwindigkeitsabhängige Merkmale bei der geringeren Geschwindigkeit zum Zeitpunkt der Inbetriebnahme zu bewerten.
Die Konformität der anderen Merkmale für die vorgesehene Streckengeschwindigkeit behält weiterhin ihre Gültigkeit.
Zur Interoperabilitätserklärung für die vorgesehene Geschwindigkeit ist es erst dann erforderlich, die Konformität der vorläufig noch nicht berücksichtigten Merkmale zu bewerten, wenn sie auf das erforderliche Niveau gebracht werden.
6.4 Bewertung des Instandhaltungsplans
In Abschnitt 4.5 wird gefordert, dass der Infrastrukturbetreiber für jede Hochgeschwindigkeitsstrecke einen Instandhaltungsplan für das Teilsystem Infrastruktur hat. Die benannte Stelle muss bestätigen, dass der Instandhaltungsplan vorhanden ist und die in Abschnitt 4.5.1 aufgeführten Punkte enthält.
Die benannte Stelle ist nicht dafür verantwortlich, die Eignung der im Plan festgelegten detaillierten Anforderungen zu bewerten.
Die benannte Stelle fügt dem technischen Dossier, das in Artikel 18 Absatz 3 der Richtlinie 96/48/EG, geändert durch die Richtlinie 2004/50/EG, gefordert ist, eine Kopie des Instandhaltungsplans bei.
6.5 Bewertung des Teilsystems Instandhaltung
Das Teilsystem Instandhaltung ist im operativen Bereich aufgeführt (siehe Anhang II Absatz 1 der Richtlinie 96/ 48/EG, geändert durch die Richtlinie 2004/50/EG). Daher gibt es keine EG-Prüfung für dieses Teilsystem.
Gemäß Artikel 14 Absatz 2 der Richtlinie 96/48/EG, geändert durch die Richtlinie 2004/50/EG, liegt die Bewertung der Konformität des Teilsystems Instandhaltung in der Verantwortung des betroffenen Mitgliedstaates.
Die Bewertung der Konformität des Teilsystems Instandhaltung muss die Phasen und Merkmale umfassen, die in Anhang B2 der vorliegenden TSI durch X gekennzeichnet sind.
6.6 Interoperabilitätskomponenten ohne EG-Erklärung
6.6.1 Allgemeines
Für einen begrenzten Zeitraum - die Übergangszeit können Interoperabilitätskomponenten ohne EGKonformitätserklärung bzw. EG-Gebrauchstauglichkeitserklärung in Ausnahmefällen in Teilsystemen integriert werden, sofern die in diesem Abschnitt beschriebenen Bestimmungen erfüllt sind.
6.6.2 Die Übergangszeit
Die Übergangszeit beginnt mit dem Inkrafttreten dieser TSI und dauert sechs Jahre.
Nach Ablauf der Übergangszeit und unter Berücksichtigung der im nachfolgenden Abschnitt 6.6.3.3 zugelassenen Ausnahmen müssen Interoperabilitätskomponenten durch die erforderliche EG-Konformitätserklärung bzw. EG-Gebrauchstauglichkeitserklärung abgedeckt sein, bevor sie in das Teilsystem integriert werden.
6.6.3 Bescheinigungen für Teilsysteme, die Interoperabilitätskomponenten ohne Bescheinigung enthalten, in der Übergangszeit
6.6.3.1 Bedingungen
Während der Übergangszeit kann eine benannte Stelle eine Konformitätsbescheinigung für ein Teilsystem ausstellen, selbst wenn einige der in dem Teilsystem integrierten Interoperabilitätskomponenten von der entsprechenden EG-Konformitätserklärung und/oder EG-Gebrauchstauglichkeitserklärung gemäß dieser TSI nicht abgedeckt sind, wenn die folgenden Kriterien erfüllt sind:
Für die in dieser Weise bewerteten Interoperabilitätskomponenten darf keine EG-Konformitätserklärung und/ oder EG-Gebrauchstauglichkeitserklärung ausgestellt werden.
6.6.3.2 Mitteilung
Die Konformitätsbescheinigung muss deutlich angeben, welche Interoperabilitätskomponenten von der benannten Stelle im Rahmen der Teilsystem-Überprüfung bewertet wurden.
Die EG-Prüferklärung für das Teilsystem muss Folgendes deutlich angeben:
6.6.3.3 Lebenszyklus-Umsetzung
Die Herstellung oder die Verbesserung/Erneuerung des betroffenen Teilsystems muss innerhalb der sechsjährigen Übergangszeit abgeschlossen sein. Im Hinblick auf den Teilsystem-Lebenszyklus gilt:
ist es zulässig, die Interoperabilitätskomponenten, die keine EG-Konformitätserklärung und/oder EG-Gebrauchstauglichkeitserklärung haben und die vom gleichen Hersteller in der gleichen Bauart produziert wurden, zum Austausch im Zuge der Wartung und als Ersatzteile für das Teilsystem zu verwenden.
Nach dem Ende der Übergangszeit und
ist es zulässig, die Interoperabilitätskomponenten, die keine EG-Konformitätserklärung und/oder EG-Gebrauchstauglichkeitserklärung haben und die vom gleichen Hersteller in der gleichen Bauart produziert wurden, weiterhin zum Austausch im Zuge der Wartung zu verwenden.
6.6.4 Überwachungsmaßnahmen
Während der Übergangszeit müssen die Mitgliedstaaten die folgenden Maßnahmen ergreifen:
7. Umsetzung der TSI Infrastruktur
7.1 Anwendung dieser TSI auf Hochgeschwindigkeitsstrecken, die neu in Betrieb genommen werden
Kapitel 4 bis 6 sowie etwaige besondere Bestimmungen in dem folgenden Abschnitt 7.3 sind vollständig auf die Strecken anzuwenden, die im geografischen Anwendungsbereich dieser TSI liegen (siehe Abschnitt 1.2) und nach Inkrafttreten dieser TSI in Betrieb genommen werden.
7.2 Anwendung dieser TSI auf Hochgeschwindigkeitsstrecken, die bereits in Betrieb sind
Die in dieser TSI beschriebene Strategie gilt für Ausbau- und Neubaustrecken gemäß den Bedingungen, die in Artikel 14 Absatz 3 der Richtlinie 96/48/EG, geändert durch Richtlinie 2004/50/EG, festgelegt sind. In diesem speziellen Zusammenhang gibt die Übergangsstrategie vor, auf welche Weise bestehende Installationen angepasst werden sollen, wenn dies wirtschaftlich sinnvoll ist. Die folgenden Prinzipien lassen sich im Falle der TSI Infrastruktur anwenden.
7.2.1 Klassifizierung der Arbeiten
Eine Änderung der bestehenden Strecken mit dem Ziel, diese TSI-konform zu gestalten, bringt hohe Investitionskosten mit sich und kann von daher nur schrittweise erfolgen.
Die Berücksichtigung der vorhersehbaren Lebensdauer der verschiedenen Teile des Teilsystems Infrastruktur führt zum Erstellen der folgenden Liste dieser Elemente nach abnehmendem Schwierigkeitsgrad der Änderung.
Ingenieurbau
Gleisbau:
verschiedene Anlagen und Instandhaltungseinrichtungen.
7.2.2 Eckwerte und Eigenschaften des Ingenieurbaus
Ihre Konformität wird im Rahmen bedeutender Ingenieurbau-Ausbauvorhaben zur Steigerung der Streckenleistung erreicht.
Die Elemente bezüglich des Ingenieurbaus sind am kritischsten, da ihre Änderung häufig nur dann umgesetzt werden kann, wenn die Bauwerke komplett neu gebaut werden (Brücken, Tunnel, Erdbauwerke).
Eine dynamische Analyse, die laut Absatz 4.2.14.2 der vorliegenden TSI benötigt wird,
7.2.3 Eckwerte und Eigenschaften des Oberbaus
Sie sind weniger kritisch im Hinblick auf partielle Änderungen, sei es, weil sie schrittweise in geografisch begrenzten Gebieten geändert werden können, sei es, weil einige Komponenten unabhängig vom zugehörigen Gesamtsystem geändert werden können.
Ihre Konformität wird im Rahmen bedeutender Infrastrukturausbauvorhaben zur Steigerung der Streckenleistung erreicht.
Die Oberbaukomponenten können schrittweise vollständig oder teilweise durch TSI-konforme Komponenten ersetzt werden. In diesen Fällen muss die Tatsache berücksichtigt werden, dass jedes dieser Elemente, isoliert betrachtet, für sich allein keine Möglichkeit bietet, die Konformität des Gesamtsystems zu gewährleisten: Die Konformität eines Teilsystems kann nur allgemein ausgesprochen werden, das heißt, wenn sämtliche Komponenten mit den TSI übereinstimmen.
In diesen Fällen können Zwischenschritte sinnvoll sein, um die Kompatibilität des Oberbaus mit den Bestimmungen anderer Teilsysteme (Zugsteuerung, Zugsicherung und Signalgebung, Energie) und mit dem Verkehr von Zügen, die nicht von den TSI betroffen sind, zu gewährleisten.
7.2.4 Eckwerte und Eigenschaften verschiedener Anlagen und Instandhaltungseinrichtungen
Ihre Konformität wird in Abstimmung mit den Anforderungen der die betreffenden Bahnhöfe und Instandhaltungseinrichtungen nutzenden Betreiber hergestellt.
7.2.5 Geschwindigkeit als Übergangskriterium
Es ist zulässig, eine Strecke mit einer niedrigeren als ihrer endgültig vorgesehenen Geschwindigkeit in Betrieb zu nehmen. In diesem Fall darf der Bau der Strecke aber nicht so erfolgen, dass die spätere Anpassung an die vorgesehene Endgeschwindigkeit behindert wird.
Beispielsweise muss der Gleisabstand zu der vorgesehenen Streckengeschwindigkeit passen, aber die Überhöhung muss für die Geschwindigkeit zum Zeitpunkt der Inbetriebnahme der Strecke geeignet sein. Die Anforderungen hinsichtlich der Konformitätsbewertung unter diesen Umständen sind in 6.3 angegeben.
7.3 Sonderfälle
Die folgenden Sonderfälle sind für bestimmte Schienennetze erlaubt. Diese Sonderfälle gehören den folgenden Kategorien an:
"P-Fälle: permanent
"T-Fälle: vorübergehende Fälle; hierbei wird empfohlen, sich dem geplanten System bis zum Jahr 2020 anzupassen (wie es in der Entscheidung Nr. 1692/96/EG des Europäischen Parlaments und des Rates vom 23. Juli 1996 über gemeinschaftliche Leitlinien für den Aufbau eines transeuropäischen Verkehrsnetzes, geändert durch die Entscheidung Nr. 884/2004/EG, verankert ist).
7.3.1 Besonderheiten des deutschen Netzes
7.3.1.1 Strecken der Kategorie I
P-Fälle
Maximale Längsneigung
Auf der Hochgeschwindigkeitsstrecke Köln - Frankfurt (Rhein-Main) wurde die Längsneigung auf maximal 40 %o festgelegt.
T-Fälle
Keine
7.3.1.2 Strecken der Kategorien II und III
P-Fälle
Keine
T-Fälle
Keine
7.3.2 Besonderheiten des österreichischen Netzes
7.3.2.1 Strecken der Kategorie I
P-Fälle
Mindestlänge der Bahnsteige für Reisende
Die Mindestlänge der Bahnsteige für Reisende ist auf 320 m verkürzt
T-Fälle
Keine
7.3.2.2 Strecken der Kategorien II und III
P-Fälle
Mindestlänge der Bahnsteige für Reisende
Die Mindestlänge der Bahnsteige für Reisende ist auf 320 m verkürzt
T-Fälle
Keine
7.3.3 Besonderheiten des dänischen Netzes
P-Fälle
Mindestlänge der Bahnsteige für Reisende sowie der Abstellgleise
Bei den Strecken des dänischen Netzes ist die Mindestnutzlänge der Bahnsteige und Abstellgleise auf 320 m reduziert.
T-Fälle
Keine
7.3.4 Besonderheiten des spanischen Netzes
7.3.4.1 Strecken der Kategorie I P-Fälle Spurweite
Mit Ausnahme der Hochgeschwindigkeitsstrecken Madrid - Sevilla und Madrid - Barcelona - französische Grenze beträgt die Spurweite in Spanien 1.668 mm.
7.3.4.2 Strecken der Kategorien II und III
P-Fälle
Spurweite
Bei den Strecken der Kategorien II und III beträgt die Spurweite 1.668 mm. Gleisabstand
Bei Strecken der Kategorien II und III kann der Gleisabstand auf einen Nennwert von 3.808 m reduziert werden.
T-Fälle
Keine
7.3.5 Besonderheiten des finnischen Netzes 12
7.3.5.1 Strecken der Kategorie I
P-Fälle
Spurweite
Die Regelspurweite beträgt 1.524 mm.
Grenzlinie für feste Anlagen
Die Grenzlinie für feste Anlagen der Infrastruktur muss den Verkehr der Züge zulassen, die dem in der TSI Fahrzeuge des Hochgeschwindigkeitsbahnsystems festgelegten Lichtraumprofil FIN 1 entsprechen.
Äquivalente Konizität
Die Mindestwerte für die mittlere Spurweite sind wie folgt:
| Geschwindigkeitsbereich (km/h) | Mindestwert der mittleren Spurweite (mm) über 100 m |
| v ≤ 160 | Keine Bewertung erforderlich |
| 160 < v ≤ 200 | 1.519 |
| 200 < v ≤ 230 | 1.521 |
| 230 < v ≤ 250 | 1.522 |
| v > 250 | 1.523 |
Die Abstandswerte zwischen den aktiven Flächen, die bei den Berechnungen in Abschnitt 4.2.9.2 zu verwenden sind, lauten 1.511 mm und 1.505 mm.
Freier Durchgang im Zungenbereich
Der Höchstwert für den freien Durchgang im Zungenbereich beträgt 1.469 mm.
Leitweite
Der Mindestwert für die Leitweite beträgt 1.478 mm.
Leitkantenabstand im Bereich der Herzstückspitze
Der Höchstwert für den Leitkantenabstand im Bereich der Herzstückspitze beträgt 1.440 mm.
Freier Durchgang im Bereich Radlenker/Flügelschiene
Der Höchstwert für den freien Durchgang im Bereich Radlenker/Flügelschiene beträgt 1.469 mm.
Kleinste Rillenweite
Die Mindestweite der Führungsrillen beträgt 41 mm.
Überhöhung des Radlenkers
Der Maximalwert für die Überhöhung des Radlenkers beträgt 55 mm.
Bahnsteiglänge
Die Mindestnutzlänge der Bahnsteige beträgt 350 m. Abstand der Bahnsteigkante von der Gleismitte
Der Nennabstand der Bahnsteigkante von der Gleismitte muss in der Bahnsteighöhe von 550 mm 1.800 mm betragen.
T-Fälle
Keine
7.3.5.2 Strecken der Kategorien II und III
P-Fälle
Es gelten die gleichen Fälle wie für Strecken der Kategorie I.
T-Fälle
Keine
7.3.6 Besonderheiten des britischen Netzes
7.3.6.1 Strecken der Kategorie I
P-Fälle
Keine
T-Fälle
Keine
7.3.6.2 Strecken der Kategorie II 12
P-Fälle
Grenzlinie für feste Anlagen (Abschnitt 4.2.3)
1. Die Lichtraumprofile UK1 (Ausgabe 2)
Die TSI Fahrzeuge des Hochgeschwindigkeitsbahnsystems definiert die Lichtraumprofile UK1 (Ausgabe 2).
UK1 (Ausgabe 2) wurde anhand mehrerer Methoden definiert, die für die Infrastruktur der britischen Eisenbahn geeignet sind und eine maximale Nutzung von begrenztem Raum gestatten.
Das Lichtraumprofil UK1 (Ausgabe 2) setzt sich aus den 3 Profilen UK1[A], UK1[B] und UK1[D] zusammen.
Im Sinne dieser Klassifikation entsprechen dem Lichtraumprofil [A] Fahrzeuge, bei denen keine Parameter der Infrastruktur berücksichtigt werden müssen, dem Lichtraumprofil [B] entsprechen Fahrzeuge, bei denen begrenzte (spezifische) Bewegungen der Fahrzeugaufhängung auftreten, die aber nicht ausschwenken, und das Lichtraumprofil [D] besteht aus Schablonen, die den maximalen Raum angeben, den die Infrastruktur auf geraden, ebenen Gleisabschnitten zur Verfügung stellt.
Für die Kompatibilität der Infrastruktur mit den Lichtraumprofilen UK1 gelten die folgenden Regeln:
2. Lichtraumprofil UK1[A]
Unterhalb 1.100 mm über Schienenoberkante ist das feste Lichtraumprofil anzuwenden, das im Railway Group Standard GC/RT5212 (Ausgabe 1, Februar 2003) definiert ist. Dieses Lichtraumprofil definiert eine optimale Begrenzungsposition für Bahnsteige und Anlagen, die sich in unmittelbarer Nähe zu den Zügen befinden sollen, und ist mit dem Lichtraumprofil UK1[A] kompatibel, das in der TSI Fahrzeuge des Hochgeschwindigkeitsbahnsystems definiert ist.
In den Fällen, in denen die vorhandene Infrastruktur zu dem in GC/RT5212 (Ausgabe 1, Februar 2003) definierten Lichtraumprofil für den unteren Bereich nicht kompatibel ist, können Freiräume mit reduzierten Toleranzen zulässig sein, sofern geeignete Kontrollmaßnahmen zur Anwendung kommen. Diese Maßnahmen sind in GC/RT5212 (Ausgabe 1, Februar 2003) festgelegt.
3. Lichtraumprofil UK1[B]
Das Lichtraumprofil UK1[B] bezieht sich auf die Nennposition des Gleises. Es enthält ein Aufmaß für seitliche und vertikale Toleranzen wegen eingeschränkter Festigkeit des Gleises und geht von einem maximalen dynamischen Bewegungsumfang des Fahrzeugs von 100 mm aus (seitlich, vertikal, Rollbewegungen, Fahrzeugtoleranzen und senkrechte Gleiskrümmung).
Wenn ein deklariertes Profil UK1[B] zur Anwendung kommt, so ist dieses um den Ausschwenkbetrag in horizontalen Kurven anzupassen (anhand der unten in Abschnitt 5 beschriebenen Formeln), wobei die folgenden Werte anzuwenden sind:
Mitten der Drehgestelle 17,000 m
Gesamtlänge 24,042 m mit voller Karosseriebreite
Die Freiräume für das Lichtraumprofil UK1[B] müssen gemäß den Anforderungen von GC/RT5212 (Ausgabe 1, Februar 2003) bestimmt werden.
4. Lichtraumprofil UK1[D]
Das Lichtraumprofil UK1[B] bezieht sich auf die Nennposition des Gleises. Ein Fahrzeug, für das Kompatibilität mit UK1[D] angegeben wird, weist entsprechende Abmessungen des Karosseriequerschnitts auf sowie eine Geometrie und dynamische Bewegungen, die gemäß einer zugelassenen Methodik festgelegt und zur Berechnung des Hüllraums verwendet wurden.
Keine Stelle der Infrastruktur darf in das durch UK1[D] definierte Begrenzungsprofil eindringen. Ein Aufmaß für das Ausschwenken in Kurven ist nicht erforderlich.
Wenn Fahrzeuge, für die Kompatibilität mit UK1[D] angegeben wird, in Absprache mit dem Infrastrukturbetreiber für eine bestimmte Strecke zugelassen wurden, müssen die Freiräume für diese Fahrzeuge gemäß den Anforderungen von GC/RT5212 (Ausgabe 1, Februar 2003) festgelegt werden.
5. Berechnung des Ausschwenkens in Kurven
In diesem Abschnitt wird die Berechnung der Vergrößerung des Hüllraums eines Fahrzeugs beschrieben, die sich beim Befahren einer Kurve ergibt. Dies ist für den Infrastrukturbetreiber relevant. Die Berechnung erfolgt auf die gleiche Weise wie die in der TSI Fahrzeuge des Hochgeschwindigkeitsbahnsystems beschriebene Berechnung der Verminderung der Breite, wird aber in anderer Form ausgedrückt.
Der Ausschwenkbetrag an einem Punkt einer Fahrzeugkarosserie entspricht der Differenz zwischen dem radialen Abstand der Gleisachse von diesem Punkt (Rdo oder Rdi) und dem seitlichen Abstand der Fahrzeugmittellinie von diesem Punkt (Wo oder Wi). Diese Berechnung erfolgt bei stehendem Fahrzeug.
Ein Fahrzeug habe Drehgestellmittelpunkte L und einen halben Achsabstand der Drehgestelle von ao (Der tatsächliche Achsabstand beträgt 2 x ao).
Der innere /Ausschwenkbetrag eines Punktes Ui bezogen auf die Fahrzeugmitte lautet:
R - Wi - √ [Ui2 + J - Wi)2]
Der äußere Ausschwenkbetrag eines Punktes Uo bezogen auf die Fahrzeugmitte lautet:
√ [Uo2 + J + Wo )2] - R - Wo
wobei J = √ [R2 -ao2 - L2 / 4]
Man beachte, dass die gleichen Berechnungen zur Bestimmung der vertikalen Ausschwenkbeträge angewandt werden können.
Gleisabstand (Abschnitt 4.2.4)
In Abschnitt 4.2.4 dieser TSI wird für eine zulässige Höchstgeschwindigkeit von V ≤ 230 km/h gefordert, dass "beim Entwurf ... der Mindestgleisabstand für Hauptgleise auf Strecken, die ... für den Hochgeschwindigkeitsverkehr ... ausgebaut werden, ausgehend von der kinematischen Referenzfahrzeugbegrenzung ( 4.2.3) festgelegt wird, wenn er < 4,00 m ist.
Als Referenzfahrzeugbegrenzung ist das Profil UK1 (Ausgabe 2) zu verwenden, das in Kapitel 7 der TSI Fahrzeuge des Hochgeschwindigkeitsbahnsystems sowie in Abschnitt 7.3.6 dieser TSI beschrieben ist.
Diese Anforderung kann erfüllt werden, wenn auf gerader Strecke sowie auf gebogenen Gleisabschnitten mit einem Halbmesser von mindestens 400 m der Gleisabstand 3.400 mm beträgt.
Bahnsteige (Abschnitt 4.2.20)
1. Bahnsteighöhe
Bei Bahnsteigen auf Ausbaustrecken in Großbritannien, an denen Züge, die der TSI Fahrzeuge des Hochgeschwindigkeitsbahnsystems entsprechen, im normalen fahrplanmäßigen Betrieb halten sollen, muss die Höhe der Bahnsteigkante 915 mm betragen (mit einer Toleranz von + 0/-50 mm), gemessen senkrecht zur Schienenebene des neben dem Bahnsteig verlaufenden Gleises.
2. Horizontaler Bahnsteigabstand (Bahnsteigversatz)
Bei Bahnsteigen auf Ausbaustrecken in Großbritannien, an denen Züge, die der TSI Fahrzeuge des Hochgeschwindigkeitsbahnsystems entsprechen, im normalen fahrplanmäßigen Betrieb halten sollen, muss der Mindestabstand des Bahnsteigs von dem daneben verlaufenden Gleis (mit einer Toleranz von + 15/-0 mm) dem Lichtraumprofil für den unteren Bereich entsprechen, das in Anhang 1 zum Railway Group Standard GC/ RT5212 (Ausgabe 1, Februar 2003) definiert ist.
Für die meisten Fahrzeuge wird diese Anforderung auf Gleisbögen mit Halbmessern größer oder gleich 360 m bei einem Plattformversatz von 730 mm (innerhalb einer Toleranz von + 15/-0 mm) erfüllt. In Anhang 1 des Railway Group Standard GC/RT5212 (Ausgabe 1, Februar 2003) sind Ausnahmefälle aufgeführt, in denen Züge der Klasse 373 (Eurostar) oder Container mit 2,6 m Breite am Bahnsteig vorbeifahren müssen. In Anhang 1 des Railway Group Standard GC/RT5212 (Ausgabe 1, Februar 2003) sind auch Anforderungen aufgeführt, in denen der Kurvenradius kleiner als 360 m ist.
3. Mindestlänge des Bahnsteigs für Reisende
Bei Bahnsteigen auf Ausbaustrecken in Großbritannien, bei denen Züge, die der TSI Fahrzeuge des Hochgeschwindigkeitsbahnsystems entsprechen, im normalen fahrplanmäßigen Betrieb halten sollen, muss die nutzbare Bahnsteiglänge mindestens 300 m betragen.
T-Fälle
Keine
7.3.6.3 Strecken der Kategorie III
P-Fälle
Alle für Kategorie II geltenden Sonderfälle gelten auch für die Strecken der Kategorie III.
T-Fälle
Keine
7.3.7 Besonderheiten des hellenischen Netzes
7.3.7.1 Strecken der Kategorie I
P-Fälle
Keine
T-Fälle
Keine
7.3.7.2 Strecken der Kategorien II und III
P-Fälle
Lichtraumprofil
Auf der Strecke Athen - Thessaloniki - Idomeni und Thessaloniki - Promahona gilt das Lichtraumprofil GB, auf einigen Streckenabschnitten ist es aber auf Ga beschränkt.
Auf der Strecke Athen - Kiato gilt das Lichtraumprofil GB.
Mindestlänge der Bahnsteige für Reisende sowie der Abstellgleise
Auf der Strecke Athen - Thessaloniki - Idomeni und Thessaloniki - Promahona beträgt die nutzbare Mindestlänge der Bahnsteige für Reisende sowie der Abstellgleise 200 m.
Im Bahnhof Promahona: 189 m.
Auf der Strecke Athen - Kiato ist die nutzbare Mindestlänge der Bahnsteige für Reisende sowie der Abstellgleise wie folgt:
In den Bahnhöfen SKA, Megara, Ag Theodoroi und Kiato: 300 m Im Bahnhof Thriasio: 150 m
Im Bahnhof Magula: 200 m
Spurweite
Die Strecke Athen - Patras ist mit einer Spurweite von 1.000 mm verlegt. Es ist geplant, die Spurweite schrittweise auf 1.435 mm zu erhöhen.
T-Fälle
Keine
7.3.8 Besonderheiten des irischen und nordirischen Netzes
P-Fälle
Lichtraumprofil
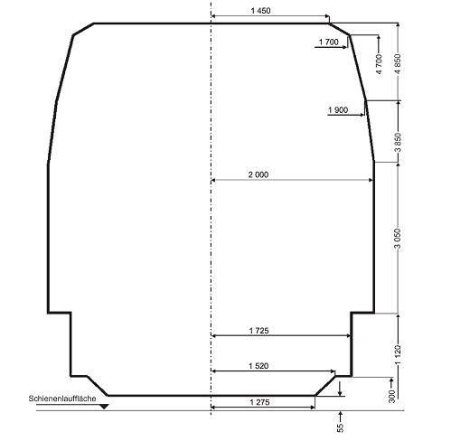
Die Grenzlinie für feste Anlagen für die Strecken in Irland und Nordirland entspricht dem irischen Standard-Lichtraumprofil IRL1.
Lichtraumumgrenzungslinie IRL 1
Hinweise:
(a) Die vertikale Höhe von 4.830 mm ist eine Endhöhe. Wenn eine zusätzliche Bettung vorgeschlagen wird oder eine Gleisanhebung notwendig ist, um das Längsprofil zu verbessern, ist eine größere Höhe erforderlich. Unter bestimmten Umständen kann die Zahl von 4.830 auf 4.690 mm reduziert werden.
(b) Bei Gleisen mit Überhöhung sind die Brücken- und Bauwerkshöhen um die in Tabelle a genannten Werte zu erhöhen.
| Tabelle A | |
| Überhöhung | H |
| 0 | 4.830 |
| 10 | 4.843 |
| 20 | 4.857 |
| 30 | 4.870 |
| 40 | 4.883 |
| 50 | 4.896 |
| 60 | 4.910 |
| 70 | 4.923 |
| 80 | 4.936 |
| 90 | 4.949 |
| 100 | 4.963 |
| 110 | 4.976 |
| 120 | 4.989 |
| 130 | 5.002 |
| 140 | 5.016 |
| 150 | 5.029 |
| 160 | 5.042 |
| 165 | 5.055 |
(c) Brückenstreben müssen 4.500 mm von der nächstgelegenen Fahrkante entfernt sein, Bogeneffekte sind zu berücksichtigen.
(d) Falls eine Elektrifizierung der Strecke vorgesehen ist, ist der vertikale Freiraum in der Nähe schienengleicher Bahnübergänge auf 6.140 mm zu erhöhen.
Spurweite
Die Strecken des irischen und nordirischen Bahnnetzes weisen eine Spurweite von 1.602 mm auf. In Anwendung von Artikel 7 (b) der Richtlinie 96/48/EG des Rates, geändert durch die Richtlinie 2004/50/EG, soll für Streckenneubauten in Irland und Nordirland weiterhin diese Spurweite verwendet werden.
Mindestgleisbogenhalbmesser
Da die Spurweite von 1 602 mm beibehalten wird, werden die Bestimmungen der vorliegenden TSI zum Mindestgleisbogenhalbmesser und die entsprechenden Spezifikationen (Überhöhung und Überhöhungsfehlbetrag) beim irischen und nordirischen Bahnnetz nicht angewendet.
Mindestlänge der Bahnsteige für Reisende sowie der Abstellgleise
Für die Strecken des irischen und nordirischen Bahnnetzes ist die nutzbare Mindestlänge der Bahnsteige für Reisende sowie der Abstellgleise, die von Hochgeschwindigkeitsbahnen genutzt werden, auf 215 m festgelegt.
Bahnsteighöhe
Auf den Strecken des irischen und nordirischen Bahnnetzes haben die Bahnsteige eine Standardhöhe von 915 mm. Diese Bahnsteighöhe wird gewählt, um die Einstiegsverhältnisse von Zügen nach dem Lichtraumprofil IRL1 zu optimieren.
Gleisabstand
Der Mindestgleisabstand muss vor einem Ausbau vorhandener Strecken in Irland und Nordirland vergrößert werden, um sichere Zugbegegnungen zu gewährleisten.
7.3.9 Besonderheiten des italienischen Netzes
7.3.9.1 Strecken der Kategorien I, II und III
Abstand des Bahnsteigs von der Gleismitte bei Bahnsteigen mit 550 mm Höhe
P-Fälle
Auf den Strecken des italienischen Netzes wird für die Bahnsteige mit 550 mm Höhe der Nennabstand L von der Gleisachse parallel zur Lauffläche anhand der folgenden Formel ermittelt:
| auf gerader Strecke und auf der Kurveninnenseite: | L (mm) = 1.650 + 3.750/R + g - 1.435/2 + 11,5 |
| auf der Kurvenaußenseite: | L (mm) = 1.650 + 3.750/R + g - 1.435/2 + 11,5 + 220 * tan δ |
wobei S der Winkel der Überhöhung zur Horizontallinie ist.
T-Fälle
Keine
7.3.10 Besonderheiten des niederländischen Netzes
7.3.10.1 Strecken der Kategorie I
P-Fälle
Keine
T-Fälle
Keine
7.3.10.2 Strecken der Kategorien II und III
P-Fälle
Die Bahnsteighöhe beträgt 840 mm
T-Fälle
Keine
7.3.11 Besonderheiten des portugiesischen Netzes
7.3.11.1 Strecken der Kategorie I
P-Fälle
Keine
T-Fälle
Keine
7.3.11.2 Strecken der Kategorien II und III
P-Fälle
Spurweite 1.668 mm
T-Fälle
Keine
7.3.12 Besonderheiten des schwedischen Netzes
7.3.12.1 Strecken der Kategorie I
P-Fälle
Mindestlänge des Bahnsteigs für Reisende
Die Mindestbahnsteiglänge ist auf 225 m verkürzt.
Abstellgleise: Mindestlänge
Die Länge der Abstellgleise kann so weit reduziert werden, dass Züge mit einer auf 225 m begrenzten Länge abgestellt werden können.
Bahnsteige - Abstand von der Gleismitte
Der Nennabstand L von der Gleisachse parallel zur Lauffläche ermittelt sich wie folgt:
L = 1.700 mm + Si, o L (mm), S (mm)
wobei S von den Bogenradien (R) abhängt und die installierte Überhöhung (D) anhand der folgenden Formel ermittelt wird:
An Kurveninnenseiten:
| Si = 41 000/R + D/3* | (für 580 mm Bahnsteighöhe) |
| (für 730 mm Bahnsteighöhe: D/2) * |
An Kurvenaußenseiten:
So = 31 000/R - D/4
R (m), D (mm)
Die Toleranzen für den (Positionierungs-) Nennabstand L (1.700 mm) der Bahnsteigkanten lauten in mm:
| Neubau: | -0, + 40 |
| Instandhaltungstoleranz: | -30, + 50 |
| Sicherheitstoleranz: | -50 |
T-Fälle
Keine
7.3.12.2 Strecken der Kategorie II
P-Fälle
Es gelten die gleichen Fälle wie für Strecken der Kategorie I.
T-Fälle
Bahnsteighöhe
Die Nennhöhe der Bahnsteige beträgt 580 mm oder 730 mm
7.3.12.3 Strecken der Kategorie II
P-Fälle
Es gelten die gleichen Fälle wie für Strecken der Kategorie I.
T-Fälle
Bahnsteighöhe
Die Nennhöhe der Bahnsteige beträgt 580 mm oder 730 mm
7.3.13 Besonderheiten des polnischen Netzes
P-Fälle
Lichtraumprofil
Das Lichtraumprofil muss für Züge mit der Begrenzungslinie GB und OSZD 2-SM (siehe das unten stehende Diagramm) geeignet sein.

7.4 Überarbeitung dieser TSI
In Übereinstimmung mit Artikel 6 Absatz 3 der Richtlinie 96/48/EG , geändert durch die Richtlinie 2004/50/ EG, bereitet die Agentur die Überarbeitung und Aktualisierung der TSI vor und unterbreitet dem in Artikel 21 dieser Richtlinie genannten Ausschuss zweckdienliche Empfehlungen, um der Entwicklung der Technik oder den gesellschaftlichen Anforderungen Rechnung zu tragen. Ferner kann sich die schrittweise Verabschiedung und Überarbeitung anderer TSI auf diese TSI auswirken. Vorgeschlagene Änderungen an dieser TSI müssen genauestens geprüft werden. Aktualisierte TSI werden regelmäßig im Abstand von drei Jahren veröffentlicht. Hierdurch besteht auch die Möglichkeit, Geräuschparameter für die Infrastruktur einzubeziehen.
Die Untersuchung soll auf diejenigen Strecken beschränkt bleiben, für die gemäß der Umgebungslärm-Richtlinie 2002/49/EG vom 22. Juni 2002 die Erstellung einer Lärmkarte erforderlich ist. An der Infrastruktur durchzuführende Maßnahmen sind auf eine Ursachenbehandlung zu beschränken, z.B. die Überwachung der Rauheit des Schienenkopfes und die akustische Optimierung der dynamischen Gleiseigenschaften.
7.5 Vereinbarungen
7.5.1 Bestehende Vereinbarungen
Die Mitgliedstaaten teilen der Kommission binnen 6 Monaten nach Inkrafttreten dieser TSI die folgenden Vereinbarungen mit, nach denen die in den Gültigkeitsbereich dieser TSI (Bau, Erneuerung, Umrüstung, Inbetriebnahme, Betrieb und Instandhaltung von Teilsystemen gemäß Kapitel 2 dieser TSI) fallenden Teilsysteme betrieben werden:
Der fortlaufende Betrieb/die Instandhaltung der Teilsysteme im Anwendungsbereich dieser TSI, die von diesen Vereinbarungen abgedeckt werden, ist in dem Umfang zulässig, in dem sie mit den Rechtsvorschriften der Gemeinschaft vereinbar sind.
Die Verträglichkeit der Vereinbarungen mit den Rechtsvorschriften der EU, ihr nichtdiskriminierender Charakter und insbesondere ihre Vereinbarkeit mit dieser TSI werden geprüft. Die Kommission leitet die erforderlichen Maßnahmen ein, z.B. die Überarbeitung dieser TSI zwecks Berücksichtigung möglicher Sonderfälle oder Übergangsmaßnahmen.
7.5.2 Künftige Vereinbarungen
Bei Abschluss künftiger Vereinbarungen oder Änderungen bestehender Vereinbarungen sind die Rechtsvorschriften der EU, insbesondere jedoch diese TSI, zu berücksichtigen. Die Mitgliedstaaten setzen die Kommission von Vereinbarungen/Änderungen dieser Art in Kenntnis. Es gilt die Vorgehensweise nach Absatz 7.5.1.
___________
*) ABl. Nr. L 191 vom 18.07.2008 S. 1.
**) ABl. Nr. L 256 vom 01.10.2011, S. 1.
| Interoperabilitätskomponenten des Bereichs Infrastruktur | Anhang A 12 |
A.1. Anwendungsbereich
In diesem Anhang wird die Bewertung der Konformität der Interoperabilitätskomponenten des Bereichs Infrastruktur beschrieben.
A.2. Merkmale, die bei herkömmlichen " Interoperabilitätskomponenten zu bewerten sind
Die Merkmale der Interoperabilitätskomponenten, die in den verschiedenen Entwurfs-, Entwicklungs- und Produktionsphasen bewertet werden müssen, sind in Tabelle a durch ein "X" gekennzeichnet. Wenn keine Bewertung durch eine benannte Stelle erforderlich ist, so ist dies in der Tabelle durch "n. r." gekennzeichnet.
Tabelle A1
Bewertung der Interoperabilitätskomponenten für die EG-Konformitätserklärung
| Bewertung in den folgenden Phasen | |||||
| Zu bewertende Merkmale | Entwurfs- und Entwicklungsphase | Produktionsphase | |||
| Entwurfsprüfung | Überprüfung des Fertigungsverfahrens | Baumusterprüfung | Produktqualität (Serie) |
||
| 5.3.1 Schiene | |||||
| 5.3.1.1 Schienenkopfprofil | X | X | n. r. | X | |
| 5.3.1.2 Metergewicht | X | n. r. | n. r. | n. r. | |
| 5.3.1.3 Stahlgüte | X | X | n. r. | X | |
| 5.3.2 Schienenbefestigungssystem | |||||
| 5.3.2.a Mindestwert für den Durchschubwiderstand | n. r. | n. r. | X | X | |
| 5.3.2.b Widerstand bei wiederholten Beanspruchungen | n. r. | n. r. | X | X | |
| 5.3.2.c Dynamische Steifigkeit der Zwischenlage | n. r. | n. r. | X | X | |
| 5.3.3 Gleis- und Weichenschwellen | |||||
| 5.3.3.a Masse | X | X | X | X | |
| 5.3.3 b Länge | X | X | X | X | |
| 5.3.4 Weichen und Kreuzungen | |||||
| 5.3.4.a Verschlussvorrichtungen | X | n. r. | n. r. | n. r. | |
| 5.3.4.b Verwendung beweglicher Herzstückspitzen | X | n. r. | n. r. | n. r. | |
| 5.3.4.c Geometrische Merkmale | X | X | n. r. | X | |
| 5.3.5 Wassereinfüllanschluss | |||||
| 5.3.5 Typ und Merkmale | X | n. r. | n. r. | X | |
A.3 Merkmale, die bei " neuartigen " Interoperabilitätskomponenten zu bewerten sind
Neuartige Interoperabilitätskomponenten müssen in der Entwurfsphase hinsichtlich der Anforderungen von Kapitel 4 bewertet werden, wie in Tabelle A2 gekennzeichnet. Wenn keine Bewertung durch eine benannte Stelle erforderlich ist, so ist dies in der Tabelle durch " n. r." gekennzeichnet.
Für Weichen und Kreuzungen sind die Teile von Kapitel 4, die für die Bewertung zu verwenden sind, in Kapitel 5 aufgeführt.
In der Produktionsphase müssen die Merkmale von neuartigen Interoperabilitätskomponenten, die in den im technischen Dossier angegebenen technischen Spezifikationen aufgeführt sind, gemäß dem gewählten Modul bewertet werden.
Tabelle A2
Bewertung einer neuartigen Interoperabilitätskomponente für die EG-Konformitätsprüfung
| Interoperabilitätskomponenten | |||
| Zu bewertende Merkmale | Schiene | Schienenbefestigungen | Schwellen |
| 4.2.2 Regelspurweite | n. r. | n. r. | Entwurfsprüfung |
| 4.2.3 Grenzlinie für feste Anlagen | n. r. | n. r. | n. r. |
| 4.2.4 Gleisabstand | n. r. | n. r. | n. r. |
| 4.2.5 Maximale Längsneigung | n. r. | n. r. | n. r. |
| 4.2.6 Mindestgleisbogenhalbmesser | n. r. | Entwurfsprüfung | n. r. |
| 4.2.7 Überhöhung | n. r. | n. r. | n. r. |
| 4.2.8 Überhöhungsfehlbetrag | n. r. | n. r. | n. r. |
| 4.2.9.2 Äquivalente Konizität (Planungswert) |
Entwurfsprüfung | Entwurfsprüfung | Entwurfsprüfung |
| 4.2.9.3.1 Mindestwert für die mittlere Spurweite | Entwurfsprüfung - im Betrieb |
Entwurfsprüfung - im Betrieb |
Entwurfsprüfung - im Betrieb |
| 4.2.10 Gleislagequalität und Grenzwerte für Einzelfehler | n. r. | n. r. | n. r. |
| 4.2.11 Schienenneigung | Entwurfsprüfung | Entwurfsprüfung | Entwurfsprüfung |
| 4.2.12 Weichen und Kreuzungen | n. r. | n. r. | n. r. |
| 4.2.12.1 Verschlussvorrichtungen (siehe Tabelle A1) |
n. r. | n. r. | n. r. |
| 4.2.12.2 Verwendung beweglicher Herzstückspitzen | n. r. | n. r. | n. r. |
| 4.2.12.3 Geometrische Merkmale (siehe Tabelle A1) |
n. r. | n. r. | n. r. |
| 4.2.13 Gleislagestabilität | Entwurfsprüfung | Entwurfsprüfung | Entwurfsprüfung |
| 4.2.14 Verkehrsbeanspruchung von Bauwerken | n. r. | n. r. | n. r. |
| 4.2.15 Gesamtsteifigkeit des Gleises | n. r. | Baumusterprüfung | n. r. |
| 4.2.16 Maximale Druckschwankungen in Tunneln | n. r. | n. r. | n. r. |
| 4.2.17 Einwirkungen von Seitenwind | n. r. | n. r. | n. r. |
| 4.2.19 Lärm und Erschütterungen | n. r. | n. r. | n. r. |
| 4.2.20 Bahnsteige | n. r. | n. r. | n. r. |
| 4.2.20.1 Zugang zu Bahnsteigen | n. r. | n. r. | n. r. |
| 4.2.20.2 Nutzbare Bahnsteiglänge | n. r. | n. r. | n. r. |
| 4.2.20.4-5 Bahnsteighöhe und Abstand von der Gleismitte | n. r. | n. r. | n. r. |
| 4.2.20.6 Trassierung entlang von Bahnsteigen | n. r. | n. r. | n. r. |
| 4.2.20.7 Schutz vor Stromschlag | n. r. | n. r. | n. r. |
| 4.2.20.8 Zugang für Personen mit eingeschränkter Mobilität | n. r. | n. r. | n. r. |
| 4.2.21 Brandschutz und Sicherheit in Eisenbahntunneln | n. r. | n. r. | n. r. |
| 4.2.22 Zugang zu bzw. Eindringen in Streckenanlagen | n. r. | n. r. | n. r. |
| 4.2.23 Seitenräume für Fahrgäste im Fall der Evakuierung eines Zuges auf freier Strecke | n. r. | n. r. | n. r. |
| 4.2.25 Abstellgleise und andere Bereiche mit sehr niedriger Fahrgeschwindigkeit | n. r. | n. r. | n. r. |
| 4.2.25.1 Länge des Abstellgleises | n. r. | n. r. | n. r. |
| 4.2.25.2 Längsneigung des Abstellgleises | n. r. | n. r. | n. r. |
| 4.2.25.3 Gleisbogenhalbmesser | n. r. | Entwurfsprüfung | n. r. |
| Bewertung des Teilsystems Infrastruktur | Anhang B1 12 |
B1.1. Anwendungsbereich
In diesem Anhang wird die Bewertung der Konformität des Teilsystems Infrastruktur beschrieben. B1.2. Merkmale und Module
Die Merkmale des Teilsystems, die in den verschiedenen Entwurfs-, Errichtungs- und Betriebsphasen bewertet werden müssen, sind in Tabelle B1 mit einem X gekennzeichnet. Wenn keine Bewertung durch eine benannte Stelle erforderlich ist, so ist dies in der Tabelle durch " n. r." gekennzeichnet.
Weitere Bewertungen können im Rahmen anderer Phasen erforderlich sein. Festlegung der Bewertungsphasen:
Tabelle B1 Bewertung des Teilsystems Infrastruktur für die EG-Konformitätsprüfung
| Bewertungsphasen | |||
| 1 | 2 | 3 | |
| Zu bewertende Merkmale | Detaillierter Entwurf und Ausführungsplanung, vor der Bauausführung | Nach Bauausführung, vor der Inbetriebnahme | Validierung im Vollbetrieb |
| 4.2.2 Regelspurweite | X | n. r. | n. r. |
| 4.2.3 Grenzlinie für feste Anlagen | X | X | n. r. |
| 4.2.4 Gleisabstand | X | X | n. r. |
| 4.2.5 Maximale Längsneigung | X | n. r. | n. r. |
| 4.2.6 Mindestgleisbogenhalbmesser | X | X | n. r. |
| 4.2.7 Überhöhung | X | X | n. r. |
| 4.2.8 Überhöhungsfehlbetrag | X | n. r. | n. r. |
| 4.2.9.2 Äquivalente Konizität (Planungswert) | X | n. r. | n. r. |
| 4.2.9.3.1 Mindestwert für die mittlere Spurweite | n. r. | X | n. r. |
| 4.2.10 Gleislagequalität und Grenzwerte für Einzelfehler | n. r. | n. r. | n. r. |
| 4.2.11 Schienenneigung | X | n. r. | n. r. |
| 4.2.12 Weichen und Kreuzungen | |||
| 4.2.12.1 Verschlussvorrichtungen (siehe Tabelle A1) | n. r. | n. r. | n. r. |
| 4.2.12.2 Verwendung beweglicher Herzstückspitzen | X | n. r. | n. r. |
| 4.2.12.3 Geometrische Merkmale (siehe Tabelle A1) | n. r. | n. r. | n. r. |
| 4.2.13 Gleislagestabilität | X | n. r. | n. r. |
| 4.2.14 Verkehrsbeanspruchung von Bauwerken | X | n. r. | n. r. |
| 4.2.15 Gesamtsteifigkeit des Gleises | zurückgestellt | zurückgestellt | n. r. |
| 4.2.16 Maximale Druckschwankungen in Tunneln | X | n. r. | n. r. |
| 4.2.17 Einwirkungen von Seitenwind | n. r. | n. r. | n. r. |
| 4.2.19 Lärm und Erschütterungen | n. r. | n. r. | n. r. |
| 4.2.20 Bahnsteige | |||
| 4.2.20.1 Zugang zu Bahnsteigen | X | n. r. | n. r. |
| 4.2.20.2 Nutzbare Bahnsteiglänge | X | n. r. | n. r. |
| 4.2.20.4-5 Bahnsteighöhe und Abstand von der Gleismitte | X | X | n. r. |
| 4.2.20.6 Trassierung entlang von Bahnsteigen | X | n. r. | n. r. |
| 4.2.20.7 Schutz vor Stromschlag | X | n. r. | n. r. |
| 4.2.20.8 Zugang für Personen mit eingeschränkter Mobilität | X | n. r. | n. r. |
| 4.2.21 Brandschutz und Sicherheit in Eisenbahntunneln | n. r. | n. r. | n. r. |
| 4.2.22 Zugang zu bzw. Eindringen in Streckenanlagen | X | n. r. | n. r. |
| 4.2.23 Seitenräume für Fahrgäste im Fall der Evakuierung eines Zuges auf freier Strecke | X | X | n. r. |
| 4.2.25 Abstellgleise und andere Bereiche mit sehr niedriger Fahrgeschwindigkeit | |||
| 4.2.25.1 Länge des Abstellgleises | X | n. r. | n. r. |
| 4.2.25.2 Längsneigung des Abstellgleises | X | n. r. | n. r. |
| 4.2.25.3 Gleisbogenhalbmesser | X | n. r. | n. r. |
| Bewertung des Teilsystems Instandhaltung | Anhang B2 |
B2.1. Anwendungsbereich
In diesem Anhang wird die Bewertung der Konformität desjenigen Teils des Teilsystems Instandhaltung beschrieben, der ortsfeste Anlagen zur Wartung von Zügen behandelt.
B2.2. Merkmale
Die Merkmale des Teilsystems, die in den verschiedenen Entwurfs-, Errichtungs- und Betriebsphasen bewertet werden müssen, sind in Tabelle B2 mit einem "X" gekennzeichnet. Wenn keine Bewertung erforderlich ist, so ist dies in der Tabelle durch " n. r." gekennzeichnet.
Tabelle B2 Bewertung des Teilsystems Instandhaltung durch den Mitgliedstaat
| 1 | 2 | 3 | |
| Zu bewertende Merkmale | Detaillierter Entwurf und Ausführungsplanung, vor der Bauausführung | Nach Bauausführung, vor der Inbetriebnahme | Validierung im Vollbetrieb |
| 4.2.26 Ortsfeste Anlagen zur Wartungvon Zügen | |||
| Anschlüsse für die Zugtoilettenentleerung | X | n. r. | n. r. |
| Waschanlage - Reinigungshöhe | X | n. r. | X |
| Waschanlage - Geschwindigkeit | X | n. r. | n. r. |
| Wasserqualität | X | n. r. | X |
| Sandqualität | n. r. | n. r. | X |
| Kraftstoffqualität | n. r. | n. r. | X |
![]() |
weiter . | ![]() |
(Stand: 09.08.2019)
Alle vollständigen Texte in der aktuellen Fassung im Jahresabonnement
Nutzungsgebühr: ab 105.- € netto
(derzeit ca. 7200 Titel s.Übersicht - keine Unterteilung in Fachbereiche)
Die Zugangskennung wird kurzfristig übermittelt
? Fragen ?
Abonnentenzugang/Volltextversion