umwelt-online: Entschließung MSC.81(70) Überarbeitete Empfehlung zur Prüfung von Rettungsmitteln

zurück

7 Bereitschaftsboote und schnelle Bereitschaftsboote

7.1 Starre Bereitschaftsboote

7.1.1 11a Starre Bereitschaftsboote sollen den in den Absätzen 6.2 bis 6.12, mit Ausnahme der Absätze 6.3, 6.4.2, 6.5, 6.6.2, 6.7.1, 6.9.6, 6.9.7 und 6.10.1, und den in den Absätzen 7.2.4.2 vorgeschriebenen Prüfungen unterzogen werden.

Schleppprüfung

7.1.2 Die größte Schleppkraft des Rettungsbootes soll ermittelt werden. Diese Information soll dazu verwendet werden, das größte vollbeladene Rettungsfloß zu bestimmen, welches das Bereitschaftsboot mit 2 Knoten schleppen kann. Die für das Schleppen anderer Fahrzeuge vorgesehene Einrichtung soll mittels einer Schleppleine an einem ortsfesten Objekt befestigt werden. Der Motor soll mindestens 2 Minuten lang mit voller Kraft voraus betrieben werden, wobei die Schleppkraft zu messen und aufzuzeichnen ist. Die Einrichtung für das Schleppen oder ihre Befestigung sollen danach keinen Schaden aufweisen. Die größte Schleppkraft des Bereitschaftsbootes soll im Baumusterzeugnis festgehalten werden.

Sitzplatzprüfung bei starren Bereitschaftsbooten

7.1.3 Das starre Bereitschaftsboot soll mit seinem Motor und seiner gesamten Ausrüstung versehen sein. Die Anzahl der Personen, für die das Bereitschaftsboot zugelassen werden soll - wobei jeder dieser Personen eine Masse von mindestens 82,5 Kilogramm zugerechnet wird und jede dieser Personen eine Rettungsweste und einen Eintauchanzug sowie alle sonstigen vorgeschriebenen wichtigen Ausrüstungsgegenstände angelegt hat, soll sodann
an Bord gehen; eine Person soll sich auf eine Trage legen, die übrigen sollen sich ordnungsgemäß hinsetzen. Sodann soll das starre Bereitschaftsboot manövriert und die gesamte Ausrüstung an Bord geprüft werden, um nachzuweisen, dass das Boot problemlos und ohne Behinderung der Bootsinsassen benutzt werden kann.

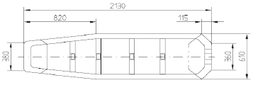
Abbildung 4 - Abmessungen der Trage (mm))

7.1.4 Das Boot soll mit in geeignet er Art und Weise verteilten Massen beladen werden, die der vierfachen Belastung durch seine vollständige Ausrüstung und durch die Gesamtzahl der Personen jede mit einem Gewicht wendeten Massen nich 300 Millimetr über den Stzflächen angeordnet wer von 82,5 kg entspricht, für die es zugelassen werden soll, entsprechen und 5 Minuten lang an seiner Hebevorrichtung oder den Haken aufgehängt werden. Die Massen
sollen entsprechend der Beladung des Bootes im Einsatz verteilt werden, jedoch brauchen die für die Darstellung der Personen verwendeten Massen nicht 300 Millimeter über mit Ausnahme den Sitzflächen angeordnet werden. Das Boot und seine Aufhängevorrichtung oder Haken sowie Befestigungsvorrichtungen sollen nach Abschluss der Prüfung untersucht werden und keine Anzeichen von Beschädigung aufweisen. Das Füllen des Bootes mit Wasser ist nicht zulässig, weil so keine richtige Gewichtsverteilung erreicht wird. Die Motorenanlage darf zur Vermeidung von Schäden mit der Maßgabe entfernt werden, dass dem Boot stattdessen zur Kompensation der fehlenden Motorenanlage entsprechende zusätzliche Gewichte beigegeben werden.

Funktionsprüfung

7.1.5 Prüfung des Betriebs des Motors und Prüfung des Kraftstoffverbrauchs

Das Boot soll mit Massen beladen werden, welche der Masse seiner Ausrüstung sowie der Anzahl der Personen entsprechen, für die das Boot zugelassen werden soll. Der Motor soll in Gang gesetzt und das Boot soll mindestens 4 Stunden lang manövriert werden, um den zufriedenstellenden Lauf des Motors nachzuweisen.

Das Boot soll mit einer Geschwindigkeit von mindestens 6 Knoten so lange gefahren werden, bis dass der Kraftstoffverbrauch ermittelt sowie festgestellt werden kann, ob der Kraftstofftank das vorgeschriebene Fassungsvermögen hat.

7.1.6 Für den Fall, dass ein starres Bereitschaftsboot von einem Außenbordmotor angetrieben wird, sollen Geschwindigkeits- und Manövrierversuche mit unterschiedlichen Motorleistungen durchgeführt werden, um das Leistungsvermögen des Bereitschaftsboots abzuschätzen.

Aufrichtprüfung

7.1.7 Es soll nachgewiesen werden, dass das Bereitschaftsboot, sowohl mit als auch ohne Motor und Brennstoff oder einer gleichwertigen Masse anstelle des Motors und des Brennstofftanks von höchstens zwei Personen aufgerichtet werden kann, wenn es umgedreht auf dem Wasser schwimmt.

Bei schnellen Bereitschaftsbooten, die nicht selbstaufrichtend sind, soll der Motor im Leerlauf laufen und nachdem er sich beim Umdrehen selbsttätig abgeschaltet hat oder mittels des Notfreigabeschalters des Bootsführers abgeschaltet wurde, leicht wieder zu starten sein und noch 30 Minuten lang laufen, nachdem das Bereitschaftsboot wieder in die aufrechte Lage zurückgekehrt ist. Bei Bereitschaftsbooten mit Innenbordmotor ist die Prüfung ohne Motor und Kraftstoff nicht anwendbar.

Manövrierbarkeitsprüfung

7.1.8 Es soll nachgewiesen werden, dass das aufgeblasene Bereitschaftsboot mit seinen Riemen oder Paddeln in ruhigem Wasser mit einer Geschwindigkeit von mindestens 0,5 Knoten über eine Entfernung von mindestens 25 Meter vorwärts bewegt und manövriert werden kann, wenn es mit der Anzahl der Personen besetzt ist, für die es zugelassen werden soll, wobei jede Person eine Rettungsweste und einen Eintauchanzug tragen soll.

Eingehende Untersuchung

7.1.9 Ein in jeder Hinsicht vollständiges starres Bereitschaftsboot soll einer eingehenden Untersuchung unterzogen werden, um die Einhaltung aller Vorschriften zu überprüfen.

7.2 Aufgeblasene Bereitschaftsboote

7.2.1 11a Die aufgeblasenen Bereitschaftsboote sollen den in den Absätzen 6.4.1, 6.6.1, 6.7.2, 6.9.1 bis 6.9.5, 6.10 (mit Ausnahme 6.10.1), 6.11, 6.12, 7.1.2, 7.1.3 und 7.1.5 bis 7.1.8 vorgeschriebenen Prüfungen unterzogen werden.

Fallprüfungen

7.2.2

umwelt-online - Demo-Version


(Stand: 02.07.2025)

Alle vollständigen Texte in der aktuellen Fassung im Jahresabonnement
Nutzungsgebühr: ab 105.- € netto

(derzeit ca. 7200 Titel s.Übersicht - keine Unterteilung in Fachbereiche)

Preise & Bestellung

Die Zugangskennung wird kurzfristig übermittelt

? Fragen ?
Abonnentenzugang/Volltextversion