Für einen individuellen Ausdruck passen Sie bitte die
Einstellungen in der Druckvorschau Ihres Browsers an.
Regelwerk

KTA 2206 - Auslegung von Kernkraftwerken gegen Blitzeinwirkungen
Sicherheitstechnische Regel des KTA

Vom 27. November 2009
(BAnz. Nr. 3a vom 07.01.2010; 14.04.2020 B4,aufgehoben)

Fassung 2009-11



Frühere Fassungen der Regel: 1992-06 (BAnz. Nr. 36a vom 23. Februar 1993)
  2000-06 (BAnz. Nr. 159a vom 24. August 2000)

Grundlagen

(1) Die Regeln des Kerntechnischen Ausschusses (KTA) haben die Aufgabe, sicherheitstechnische Anforderungen anzugeben, bei deren Einhaltung die nach dem Stand von Wissenschaft und Technik erforderliche Vorsorge gegen Schäden durch die Errichtung und den Betrieb der Anlage getroffen ist ( § 7 Abs. 2 Nr. 3 Atomgesetz -AtG-), um die im AtG und in der Strahlenschutzverordnung ( StrlSchV) festgelegten sowie in den "Sicherheitskriterien für Kernkraftwerke" und den "Leitlinien zur Beurteilung der Auslegung von Kernkraftwerken mit Druckwasserreaktoren gegen Störfälle im Sinne des § 28 Abs. 3 StrlSchV - Störfall-Leitlinien -" (in der Fassung vom 18.10.1983) weiter konkretisierten Schutzziele zu erreichen.

(2) Gemäß den "Sicherheitskriterien für Kernkraftwerke" Kriterium 2.6 "Einwirkungen von außen" sind Schutzmaßnahmen gegen naturbedingte Einwirkungen vorzusehen. Die Störfall-Leitlinien kennzeichnen den Umfang der erforderlichen Blitzschutzmaßnahmen dahingehend, dass gegen dieses Ereignis anlagentechnische Schadensvorsorge getroffen werden muss. Dies wird durch blitzschutztechnische Auslegung der Anlage und Installation geeigneter Blitzschutzsysteme erreicht.

(3) In dieser Regel wird die Einhaltung der konventionellen Bestimmungen, z.B. Bauordnungen der Länder, Unfallverhütungsvorschriften, DIN-Normen und VDE-Bestimmungen, EN-Normen sowie IEC-Normen vorausgesetzt.

(4) Diese Regel gibt zusätzliche Anforderungen an, die an den Blitzschutz von Kernkraftwerken zu stellen sind. Aufgabe dieser Regel ist es, diese zusätzlichen Anforderungen an das Äußere und Innere Blitzschutzsystem so festzulegen, dass Einwirkungen auf elektrische Einrichtungen infolge Blitzschlag zu keiner unzulässigen Beeinträchtigung der Anlagensicherheit führen.

(5) Als Grundlage dieser Regel wurden

  1. Blitzkenndaten aus Messungen an Blitzeinschlägen abgeleitet und festgelegt,
  2. mit Hilfe von Stoßgeneratoren zur Blitzsimulation eingekoppelte Spannungen in Kabeln und Leitungen in bestehenden Kernkraftwerken, die durch definierte relevante Blitzschutzmaßnahmen geschützt sind, bei speziellen Versuchen ausgewertet,
  3. Berechnungsverfahren zur Ermittlung des für die Spannungseinkopplung zu berücksichtigenden Blitzstromanteils festgelegt und
  4. Berechnungsergebnisse aus analytischen und numerischen Verfahren zur blitzbedingten Spannungseinkopplung in Kabel, die in Kanälen verlegt sind, und in erdverlegte Kabel ausgewertet [ 1], [ 2].

(6) Allgemeine Forderungen an die Qualitätssicherung sind in KTA 1401 enthalten.

(7) Die im Abschnitt 4.3 von KTA 3501 "Reaktorschutzsystem und Überwachungseinrichtungen des Sicherheitssystems" angesprochenen Vorsorgemaßnahmen gegen Blitz sind in dieser Regel festgelegt.

(8) In dieser Regel werden Berechnungsverfahren für die Einkopplung von Spannungen durch Blitzeinwirkungen in Leittechnik-Leitungen innerhalb der Kraftwerksgebäude nicht behandelt. Für die Berechnung eingekoppelter Spannungen innerhalb der Gebäude des Kraftwerks sind in der Fachliteratur unterschiedliche Rechenverfahren vorhanden. Wegen der in jedem Kraftwerk unterschiedlichen geometrischen Anordnung elektrotechnischer und leittechnischer Einrichtungen und wegen der unterschiedlichen Kopplungsmöglichkeiten gibt es kein einheitlich handhabbares Rechenverfahren, das für alle Einsatzfälle geeignet ist.

Hinweis:

Weitere Informationen zu den in Gebäuden eingekoppelten Spannungen können auch aus Messungen zur Gebäudeschirmdämpfung und Messungen an Modellen entnommen werden ( Anhang E).

1 Anwendungsbereich

Diese Regel ist auf den Schutz der elektrischen Einrichtungen in ortsfesten Kernkraftwerken gegen unzulässige Beeinträchtigungen durch Blitzeinwirkung anzuwenden.

2 Begriffe

Hinweis:

Die in dieser Regel verwendeten Begriffe, z.B. "Blitzschutzsystem", unterscheiden sich teilweise von den in DIN EN 62305 verwendeten Begriffen, wobei identischen Begriffen unterschiedliche Inhalte zugewiesen sein können.

(1) Blitzschutz

Blitzschutz ist die Gesamtheit aller Maßnahmen und Einrichtungen zur Vermeidung der schädlichen Auswirkungen des Blitzes.

(2) Blitzschutzsystem

Das Blitzschutzsystem besteht aus dem Äußeren Blitzschutzsystem und dem Inneren Blitzschutzsystem.

(3) Blitzschutzsystem, äußeres

Äußeres Blitzschutzsystem ist die Gesamtheit aller Maßnahmen und Einrichtungen zum Auffangen und Ableiten des Blitzstromes.

(4) Blitzschutzsystem, inneres

Inneres Blitzschutzsystem ist die Gesamtheit aller Maßnahmen und Einrichtungen gegen die Auswirkungen des Blitzes auf leitfähige Installationen und elektrische Einrichtungen innerhalb der baulichen Anlagen. Dies schließt alle Maßnahmen zur Reduzierung und Begrenzung von Überspannungen ein.

(5) Erdung, dezentrale

Dezentrale Erdung ist der vielfache, niederimpedante Anschluss des Bezugsleiters leittechnischer Systeme an das Potentialausgleichsystem.

(6) Erdung, zentrale

Zentrale Erdung ist der sternförmige Anschluss des Bezugsleiters leittechnischer Systeme an den zentralen Erdungspunkt.

3 Bemessungsgrundlagen

3.1 Übergeordnete Anforderungen

(1) Der Blitzschutz und die elektrischen Einrichtungen sind so zu bemessen und aufeinander abzustimmen, dass aufgrund von Blitzeinwirkungen elektrische Einrichtungen nicht unzulässig beeinträchtigt werden.

Hinweis:

Unzulässige Beeinträchtigungen sind z.B. die Blockierung sowie die Fehlauslösung von Schutzaktionen des Sicherheitssystems sowie Funktionsverlust der sicherheitsrelevanten Einrichtungen.

(2) Art und Umfang der elektrischen Einrichtungen, die durch den Blitzschutz zu schützen sind, müssen vor Errichtung von Bauwerken spezifiziert werden.

Hinweis:

Anforderungen bezüglich Änderungen sind in Abschnitt 7 geregelt.

3.2 Einteilung in Schutzgrade

(1) Die Anforderungen an die Bemessung des Blitzschutzes für die baulichen Anlagen des Kernkraftwerkes sind anhand der Aufgabenstellung der darin enthaltenen elektrischen Einrichtungen zu bestimmen. Die baulichen Anlagen sind deshalb den folgenden Schutzgraden zuzuordnen:

  1. Schutzgrad 1

    Bauliche Anlagen mit elektrischen Einrichtungen mit sicherheitstechnischer Bedeutung sind dem Schutzgrad 1 zuzuordnen.

    Hinweis:

    Zum Schutzgrad 1 gehören auch bauliche Anlagen mit elektrischen Einrichtungen der betrieblichen Leittechnik, wenn von diesen bei Störungen unzulässige Einwirkungen auf Einrichtungen mit sicherheitstechnischer Bedeutung entstehen können.


  2. Schutzgrad 2

    Bauliche Anlagen, die nicht der Aufzählung a) zuzuordnen sind, gehören zum Schutzgrad 2.

    Hinweis:

    Dazu werden in dieser Regel keine Festlegungen getroffen.

(2) Unzulässige Rückwirkungen von Einrichtungen in baulichen Anlagen des Schutzgrades 2 auf elektrische Einrichtungen in baulichen Anlagen des Schutzgrades 1 sind zu verhindern.

Hinweis:

Unzulässige Rückwirkungen können z.B. durch räumliche Trennung, galvanische Entkopplung, Verwendung von Kabeln mit stromtragfähigem Schirm oder Schutzbeschaltungen verhindert werden. Es kann eine Kombination mehrerer Maßnahmen erforderlich sein.

3.3 Blitzstromparameter

Tabelle 3-1: Blitzstromparameter der Stoßströme

Blitztyp Parameter Formelzeichen Einheit Wert
positiver Erstblitz Strommaximalwert IB kA 200
mittlere Stromsteilheit IB/T1 kA/µs 20
Stirnzeit T1 µs 10
Rückenhalbwertzeit T2 µs 350
Impulsladung Qi C 100
spezifische Energie W/R MJ/Ω 10
negativer Erstblitz Strommaximalwert IB kA 100
mittlere Stromsteilheit IB/T1 kA/µs 100
Stirnzeit T1 µs 1
Rückenhalbwertzeit T2 µs 200
negativer Folgeblitz Strommaximalwert IB kA 50
mittlere Stromsteilheit IB/T1 kA/µs 200
Stirnzeit T1 µs 0,25
Rückenhalbwertzeit T2 µs 100

Tabelle 3-2: Blitzstromparameter der Langzeitströme

Bauwerkshöhe
(Blitztyp)
Parameter Formelzeichen Einheit Wert
h ≥ 60 m Ladung des Langzeitstroms Ql C 400
Dauer des Langzeitstroms T s 0,5
h < 60 m Ladung des Langzeitstroms Ql C 200
Dauer des Langzeitstroms T s 0,5

Die in Tabelle 3-1 und in Tabelle 3-2 angegebenen Blitzstromparameter sind dem Nachweis des Schutzes gegen blitzbedingte Überspannungen (siehe Abschnitt 5) zugrunde zu legen.

3.4 Einschlaggeschützte Bereiche für bauliche Anlagen des Schutzgrades 1

(1) Zur Bestimmung der Einschlagpunkte und einschlaggeschützter Bereiche soll das Blitzkugelverfahren mit einem Radius von 20 m angewendet werden.

Hinweis:

Elektrische Geräte, die sich außerhalb des dadurch festgelegten, einschlaggeschützten Bereiches befinden, können direkten Blitzeinschlägen mit reduziertem Strommaximalwert ausgesetzt sein.

(2) Zur Dimensionierung der Stromtragfähigkeit von Schutzmaßnahmen darf die Festlegung des höchsten, hier auftretenden Strommaximalwerts des Erstblitzes aus dem Radius der an dieser Stelle berührenden Blitzkugel nach Tabelle 3-3 erfolgen.

Tabelle 3-3: Zuordnung der Strommaximalwerte und Radien der Blitzkugeln

Radius der Blitzkugel in m zugehöriger Strommaximalwert des Erstblitzes in kA
20 3
30 6
45 10
60 16

4 Ausführung

4.1 Planungs- und Ausführungsunterlagen

(1) Vor Errichtung der Erdungsanlagen und des Blitzschutzsystems ist anhand von Auslegungsspezifikationen darzulegen, wie die Anforderungen dieser Regel erfüllt werden.

(2) Die zu schützenden baulichen Anlagen dürfen in Blitzschutzzonen eingeteilt werden.

Hinweis:

Dies kann erforderlich sein, um ein abgestuftes Schutzkonzept realisieren zu können. Grundlagen und Details zum Blitzschutzzonen-Konzept sind in DIN EN 62305-4 enthalten.

4.2 Äußeres Blitzschutzsystem

4.2.1 Allgemeines

Die in den Abschnitten 4.2.2 bis 4.2.6 sowie in den Bildern 4-1 bis 4-4 angegebenen Maße für Abstände sind Ungefährmaße. Abweichungen von diesen Maßen aus Gründen der Anpassung an die Geometrie der baulichen Anlagen sind zulässig. Die angegebenen Abstände sollen um nicht mehr als 20 % überschritten werden. Eine Verringerung der Abstände ist zulässig.

Hinweis:

Anforderungen an die Werkstoffe und die zugehörigen Querschnitte von Fangeinrichtungen, Ableitungen und Erdungsanlagen sind in DIN EN 62305-3 enthalten.

4.2.2 Fangeinrichtungen

(1) Alle Dachflächen und Wandteile, die vom Blitz getroffen werden können, sind mit Fangeinrichtungen zu versehen.

(2) Zur Positionierung der Fangeinrichtungen soll das Blitzkugelverfahren mit einem Radius von 20 m angewendet werden.

(3) Bei direkt auf dem Gebäudedach aufliegenden Fangmaschen soll die Maschenweite 5 m nicht überschreiten (siehe Bild 4-1).

(4) Metallene Dachaufbauten dürfen als Fangeinrichtung verwendet werden. Sie sind mit den übrigen Fangeinrichtungen zu verbinden.

4.2.3 Ableitungen

4.2.3.1 Gebäude ohne Metallfassaden

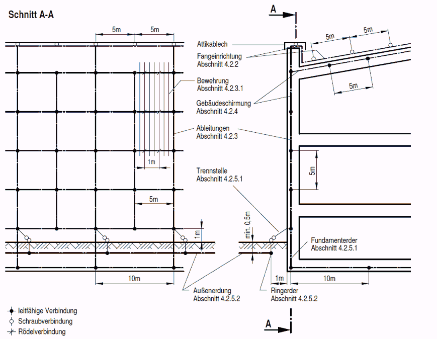
(1) In oder auf den Wänden ist ein Maschennetz, bestehend aus senkrechten Ableitungen und waagerechten Querverbindungen, anzubringen, um den abzuleitenden Blitzstrom möglichst großflächig aufzuteilen. Die Ableitungen und Querverbindungen müssen in einem Abstand von höchstens 5 m angeordnet werden.

(2) Wird das Maschennetz in oder auf die Bewehrung gelegt, ist es aus Rundstahl oder Flachstahl mit einem Mindestquerschnitt von 50 mm2 herzustellen. Die Knotenpunkte des Maschennetzes sind mindestens querschnittsgleich zu verschweißen oder mit Klemm- oder Schraubverbindungen zu verbinden. Die Stäbe des Maschennetzes sind mit den Bewehrungsstäben in Abständen von 1 m zu verrödeln (siehe Bild 4-1).

(3) Ist das leitfähige Verbinden der Bewehrungsstäbe, z.B. durch Verschweißen, zulässig, dürfen diese als Ableitungen und Querverbindungen verwendet werden, wenn eine durchgehende Verbindung gewährleistet ist. Solche Bewehrungsstäbe müssen einen Durchmesser von mindestens 10 mm haben.

Hinweis:

Aussagen zum Verschweißen von Bewehrungsstäben sind in DIN EN ISO 17660 enthalten.

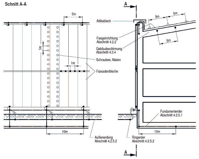
(4) Für die Anschlussfahnen zum Anschluss an die Fangeinrichtungen und die Erdungsanlage ist, soweit sie durch Erdreich oder Beton geführt werden, der Korrosionsschutz zu berücksichtigen. Das Maschennetz in oder auf den Wänden ist mit dem Maschennetz im Fundament mindestens querschnittsgleich zu verschweißen oder mit Klemm- oder Schraubverbindungen zu verbinden. Für Gebäude mit außen liegender Bauwerksabdichtung siehe Bild 4-2, für Gebäude ohne außen liegende Bauwerksabdichtung siehe Bild 4-1.

(5) Der Anschluss an die äußere Erdungsanlage muss für Prüfzwecke über zugängliche und lösbare Trennstellen erfolgen. Die Trennstellen sind eindeutig und dauerhaft zu kennzeichnen. Die Kennzeichnung muss mit den in den Gebäudeübersichtszeichnungen verwendeten Kennzeichnungen übereinstimmen.

4.2.3.2 Gebäude mit Metallfassaden

(1) Metallfassaden dürfen anstelle der Maßnahmen nach den Abschnitten 4.2.3.1 und 4.2.4 als Ableitung und Schirmung verwendet werden. Als Ableitung sind sie senkrecht blitzstromtragfähig zu verbinden. Werden sie als Schirmung verwendet, sind zusätzliche elektrisch leitende Verbindungen erforderlich.

(2) Metallfassaden sind mit den Fangeinrichtungen zu verbinden. Wird die Metallfassade als Ableitung verwendet, sind blitzstromtragfähige Verbindungen im Abstand von höchstens 5 m erforderlich. Wird die Metallfassade auch als Schirmung eingesetzt, sind zusätzlich senkrechte und waagerechte elektrisch leitende Verbindungen der Einzelbleche in Abständen von kleiner als oder gleich 1 m erforderlich.

(3) Sind im unteren Gebäudeteil bewehrte Wände vorhanden, soll die Metallfassade im Abstand von höchstens 10 m mit der Bewehrung verbunden werden. Sind keine bewehrten Wände vorhanden, so ist die Metallfassade an die Erdungsanlage anzuschließen und zwar in Abständen von 10 m, wenn die Unterkante der Fassade weniger als 1 m über der Geländeoberkante liegt. Liegt die Unterkante der Fassade mehr als 1 m über der Geländeoberkante, sind die Anschlüsse an die Erdungsanlage in Abständen von 5 m auszuführen oder mit einem Maschennetz nach Abschnitt 4.2.3.1 zu verbinden.

(4) Die als Ableitung verwendeten Fassaden sind mit dem Maschennetz im Dach im Rastermaß nach Abschnitt 4.2.4.1 zu verbinden (siehe Bild 4-3).

(5) Die Anschlüsse der Fundamenterder sind bei außen liegender Bauwerksabdichtung nach Bild 4-2, ohne außen liegende Bauwerksabdichtung nach Bild 4-3 auszuführen. Der Anschluss an die äußere Erdungsanlage muss für Prüfzwecke über zugängliche und lösbare Trennstellen erfolgen. Die Trennstellen sind eindeutig und dauerhaft zu kennzeichnen. Die Kennzeichnung muss mit den in den Gebäudeübersichtszeichnungen verwendeten Kennzeichnungen übereinstimmen.

4.2.4 Gebäudeschirmung

4.2.4.1 Außenwände und Dächer von Gebäuden

(1) Zum Schutz der elektrischen Einrichtungen innerhalb der Gebäude ist ein Schirm durch Verbinden aller leitenden Teile der Gebäudekonstruktion zu bilden.

(2) Bei Bauteilen aus bewehrtem Beton ist die Bewehrung zur Schirmung heranzuziehen. Zum Anschluss an die Bewehrung ist ein Maschennetz entweder durch dauerhaftes Verbinden vorhandener Bewehrungsstäbe oder aus zusätzlichen Stäben herzustellen. Die Größe der Maschen des Maschennetzes darf 5 m nicht überschreiten. Zum sicheren Kontaktieren sind alle Teile des Maschennetzes untereinander mindestens querschnittsgleich zu verschweißen oder mit Klemm- oder Schraubverbindungen zu verbinden. Zusätzlich eingebrachte Stäbe sind mit der Bewehrung in Abständen von 1 m zu verrödeln.

(3) Dehnfugen innerhalb eines Gebäudes sollen im Abstand von 2 m ± 1 m überbrückt werden.

(4) Ist aufgrund der Bauausführung eine ausreichende Schirmwirkung nicht gegeben, kann für die in diesem Gebäude untergebrachten elektrischen Einrichtungen die Schirmwirkung durch eine geeignete Schirmung dieser Einrichtungen (z.B. Abschirmung von Kabeltrassen) erreicht werden. Bei zu geringer Schirmwirkung, z.B. bei Einsatz von Stahlbetonfertigteilen, sind zusätzliche Maßnahmen erforderlich (siehe Abschnitt 4.3).

4.2.4.2 Gebäudedurchführungen

In Gebäude eingeführte leitende nichtelektrische Teile sollen mit dem Gebäudeschirm verbunden werden.

Hinweis:

Zum Beispiel werden Rohrleitungen am Gebäudeeintritt niederimpedant mit der Bewehrung verbunden. Dabei ist der Korrosionsschutz zu berücksichtigen.

4.2.5 Erdung

4.2.5.1 Erdung der Gebäude

(1) Bei Gebäuden ohne außen liegende Bauwerksabdichtung (nicht isoliertes Fundament) ist als Erdung die Bewehrung der Fundamente zu verwenden. Im Fundament und in den Wänden unterhalb des Erdungsanschlusses ist ein zusätzliches Netz mit 10 m Maschenweite anzuordnen und mit

der Bewehrung in Abständen von 1 m zu verrödeln. Die Knotenpunkte des Netzes sind mindestens querschnittsgleich zu verschweißen oder mit Klemm- oder Schraubverbindungen elektrisch leitend zu verbinden. In den Wänden ist dieses Netz mit den Ableitungen nach Abschnitt 4.2.3.1 zu verschweißen oder mit Klemm- oder Schraubverbindungen zu verbinden (siehe Bild 4-1).

Hinweis:

Zusätzliche Anforderungen an die Erdungsanlagen außerhalb der Gebäude sind z.B. in DIN VDE 0100-410, DIN VDE 0100-540, DIN VDE 0101 und DIN VDE 0141 enthalten.

(2) Zum Anschluss der Außenerdung sind Anschlussfahnen von dem mit der Bewehrung verbundenen Maschennetz herauszuführen. Dabei ist der Korrosionsschutz zu beachten. Die Anschlussfahnen sind an der Bewehrung oder der Metallfassade fest anzuschließen; die Verbindung zur Erdung muss über zugängliche und lösbare Trennstellen erfolgen (siehe Bild 4-2).

(3) Bei Gebäuden mit außen liegender Bauwerksabdichtung (isoliertes Fundament) ist ein Erdungsnetz mit einer Maschenweite von 10 m erdseitig außerhalb der Bauwerksabdichtung anzubringen. Wird dieses aus Betonstahl hergestellt, dann soll der Durchmesser der Stäbe nicht kleiner als 10 mm sein und in einer Betonschicht von mindestens 10 cm Dicke, die mindestens aus Beton B 15 besteht, verlegt werden. Der Übergang vom Betonstahl auf das Kupferseil muss gegen Korrosion geschützt werden. Diese Verbindung muss nicht lösbar ausgeführt werden (siehe Bild 4-2). Für Verbindungen des Erdungsnetzes gilt Abschnitt 4.2.5.3.

4.2.5.2 Außenerdung zwischen den Gebäuden

(1) Im Bereich der Gebäude mit dem Schutzgrad 1 ist ein eng vermaschtes Erdungsnetz aus Oberflächenerdern (Ringerdern und Maschenerdern) zu verlegen (siehe Bild 4-4).

(2) Um jede blitzschutztechnisch zusammengehörende Gebäudeeinheit ist ein Ringerder zu verlegen und mit den Ableitungen in Abständen von 10 m oder, bei Metallfassaden mit Unterkante der Metallfassade höher als 1 m über der Geländeoberkante, in Abständen von 5 m über den Trennstellen zu verbinden (siehe Abschnitt 4.2.3). Ausgehend von den Ringerdern sind in Abständen von 10 m (Maschenbreite) Oberflächenerder so zu verlegen, dass Maschen mit einer Länge bis 30 m entstehen. Die Maschennetze benachbarter Gebäude sind aufeinander abzustimmen. Die Maschen der Oberflächenerder, die an diese Maschennetze anschließen, dürfen die Abmessungen 30 m Breite und 90 m Länge nicht überschreiten; daran anschließende Maschen dürfen auf doppelte Abmessungen ausgedehnt werden. Die Ausdehnung des Erdungsnetzes ist im Einzelfall festzulegen.

(3) An das Erdungsnetz sind auch die Ringerder von Gebäuden mit dem Schutzgrad 2 anzuschließen.

(4) Bei Mehrblockanlagen sind die Erdungsnetze der einzelnen Blöcke sowie der blockgemeinsamen Gebäude miteinander zu verbinden.

4.2.5.3 Korrosionsbeständigkeit des Erdungsnetzes

Für alle Teile des Erdungsnetzes, die im Erdreich liegen, sind korrosionsbeständige Werkstoffe einzusetzen. Es sind nur unlösbare Verbindungen (z.B. Schweißverbindungen, Pressverbindungen) anzuwenden.

Hinweis:

Angaben über die erforderliche Mindestüberdeckung für Betonstahl sind in DIN 1045 enthalten.

4.2.6 Verbindungen zwischen den Gebäuden

4.2.6.1 Kabelkanäle und Kabelbrücken

(1) Kabelkanäle und Kabelbrücken zwischen Gebäuden mit dem Schutzgrad 1 müssen eine durchgehende Abschirmung aufweisen. Als Abschirmung darf die Bewehrung der Kanäle verwendet werden.

(2) An den Kanalenden und an den Dehnfugen sind elektrisch leitende Ringverbindungen aus Rundstahl oder Flachstahl mit einem Mindestquerschnitt von 100 mm2 vorzusehen, mit der Bewehrung zu verrödeln und mit dem Maschennetz in den Wänden zu verschweißen oder mit Klemm- oder Schraubverbindungen sicher zu verbinden.

(3) Bei den Dehnfugen und bei den Anschlüssen an die Gebäudewände sind geeignete Vorkehrungen zu treffen, um eine Kontaktierung der Bewehrung untereinander sicherzustellen, so dass eine Überbrückung der Dehnfugen niederimpedant möglich ist (siehe Bild 4-5).

(4) Bei Anschlüssen an die Gebäudewände sind in die Wände, im gleichen Abstand wie bei der Dehnfugen-Überbrückung, Bewehrungsstäbe bis zur nächsten Masche des Ableitungs- oder Erdungsnetzes einzulegen (siehe Bild 4-5).

(5) Beim Anschluss unterirdischer Kanäle an Gebäude mit außen liegender Bauwerksabdichtung sind in den Wandungen der Gebäude, von der Dehnfugen-Überbrückung ausgehend, 2 m lange Bewehrungsstäbe zu verlegen, die mit der Bewehrung zu verrödeln und mit dem Maschennetz in den Wänden mindestens querschnittsgleich zu verschweißen oder mit Klemm- oder Schraubverbindungen sicher zu verbinden sind (siehe Bild 4-6).

(6) Kabelbrücken sind entweder wie Kabelkanäle auszuführen oder mit einer geschlossenen Metallverkleidung zu versehen und mit der Metallfassade oder der Bewehrung auf kürzestem Weg niederimpedant zu verbinden. Die Verbindung der Kabelbrücken und der Gebäude ist in Abständen von nicht mehr als 1 m vorzunehmen (siehe Bild 4-5).

(7) Werden Metallfassaden als Ableitung verwendet, ist durch konstruktive Maßnahmen ein Anschluss des Maschennetzes in der Kabelbrücke an die Metallfassade mit der gleichen Anzahl der Verbindungen wie bei der Dehnfugen-Überbrückung (gleichmäßig über den Umfang verteilt) herzustellen.

4.2.6.2 Erd- und außenverlegte Kabel

(1) Als Schutz gegen Direkteinschläge in erdverlegte Kabel sind Erdseile über den Kabeln zu verlegen.

(2) Werden Leittechnikkabel nicht in bewehrten Kabelkanälen geführt, ist für diese Kabel eine geeignete Schutzmaßnahme, z.B. Schirmung, vorzusehen. Diese Schirmung ist mit der Gebäudeschirmung niederimpedant zu verbinden.

Hinweis:

Beispiele für solche Schirmungen sind:

  1. Kabel mit einem stromtragfähigen Schirm, der am oder unmittelbar nach dem Eintritt des Kabels in die Gebäude mit der Bewehrung niederimpedant verbunden wird.
  2. Verlegung in durchgehenden Metallrohren, die an den Gebäuden mit der Bewehrung niederimpedant verbunden werden.

(3) Bei außerhalb von Gebäuden angeordneten elektrischen Einrichtungen sind die Maßnahmen nach Absatz 1 durchzuführen und die Schirmung ist am geerdeten Gehäuse niederimpedant anzuschließen.

(4) Bei außerhalb von Gebäuden angeordneten elektrischen Einrichtungen, bei denen ein Direkteinschlag eines Blitzes möglich ist, sind an den Kabeln, die von diesen Einrichtungen in Gebäude führen, am Gebäudeeintritt blitzstromtragfähige Überspannungsschutzgeräte einzusetzen.

Bild 4-1: Bewehrung für die Gebäudeschirmung bei Gebäuden ohne Metallfassade und Anschluss des Fundamenterders bei Gebäuden ohne außen liegende Bauwerksabdichtung

Bild 4-2: Anschluss des Fundamenterders bei Gebäuden mit außen liegender Bauwerksabdichtung

Bild 4-3: Äußeres Blitzschutzsystem bei Gebäuden mit Metallfassade (Höhe der Unterkante kleiner als 1 m über Erdboden) ohne außen liegende Bauwerksabdichtung

Bild 4-4: Außenerdung zwischen den Bauwerken

Bild 4-5: Kabelkanäle und Kabelbrücken

Bild 4-6: Kabelkanal, Verbindung der Kanalabschirmung mit der Metallfassade und dem Fundamenterder bei isoliertem Fundament

4.3 Inneres Blitzschutzsystem

4.3.1 Allgemeines

Zusätzlich zu den Maßnahmen des Äußeren Blitzschutzsystems nach Abschnitt 4.2 sind für die nach Abschnitt 3.2 spezifizierten elektrischen Einrichtungen Maßnahmen innerhalb der Gebäude mit dem Schutzgrad 1 nach den Abschnitten 4.3.2 bis 4.3.5 erforderlich. Darüber hinaus sind durch Maßnahmen nach Abschnitt 4.3.6 solche elektrischen Einrichtungen zu schützen,

  1. deren zulässige Spannung bei Blitzeinschlag überschritten wird oder
  2. die Verbindungen zu elektrischen Einrichtungen außerhalb der Gebäude oder der Erdungsanlagen haben, wenn sie nicht durch andere Maßnahmen zu schützen sind.

4.3.2 Potentialausgleich (Innenerdung)

4.3.2.1 Erdungssammelleiter

(1) In allen Räumen der Gebäude des Schutzgrades 1 sind Erdungssammelleiter in Form von Erdungsringleitern oder Erdungssammelschienen (Potentialausgleichsschienen) zu verlegen. Die Erdungssammelleiter sind mit dem Maschennetz, das den Anschluss an die Bewehrung herstellt, niederimpedant zu verbinden. Das Maschennetz in der Bewehrung darf als Erdungssammelleiter verwendet werden.

(2) An diese Erdungssammelleiter sind, soweit von der Funktion her zulässig, alle Schränke oder zusammengehörigen Schrankgruppen anzuschließen. Anstelle des Anschlusses an die Erdungssammelleiter sind andere Anschlüsse an das mit der Bewehrung verbundene Maschennetz zulässig.

4.3.2.2 Kabelpritschen und Kabelwannen

(1) Innerhalb der baulichen Anlagen sollen Kabelpritschen und Kabelwannen zur Verbesserung des Potentialausgleichs elektrisch leitend durch verbunden werden. Sie sind mindestens an beiden Enden mit dem Maschennetz oder der Bewehrung in den Wänden oder dem Erdungssammelleiter zu verbinden.

Hinweis:

Als elektrisch leitend durch verbunden gelten im Sinne dieser Regel auch gegen Selbstlockern gesicherte Schraubverbindungen an Konstruktionsteilen oder Kupferseilverbindungen zwischen nicht miteinander über Konstruktionsteile verbundene Stöße der Pritschen und Wannen.

(2) Kabeltrassen, die in Gebäuden unmittelbar an Außenwänden verlaufen, sollen gegen die Außenwand zusätzlich abgeschirmt werden, wenn Einkoppelungen nicht durch andere Maßnahmen, z.B. Metallfassaden, auf zulässige Werte reduziert werden.

(3) Alle Kabelpritschen und Kabelwannen mit Leittechnikkabeln in Verbindungskanälen und Kabelbrücken, auf die die Auslegungsanforderungen des Schutzgrades 1 zutreffen, sind zwischen den Gebäuden auf ihrer gesamten Länge elektrisch leitend durch zu verbinden und in den Gebäuden an die Erdungssammelleitungen anzuschließen. Dies gilt auch für Verbindungen von Kabelpritschen und Kabelwannen über Abschottungen oder Dehnfugen.

4.3.3 Erdung des Bezugsleiters der Stromversorgung

(1) Der Bezugsleiter der Stromversorgung funktionstechnisch zusammengehöriger leittechnischer Systeme ist mit dem Potentialausgleichsystem zu verbinden. Ob die Verbindung dezentral (flächenhaft, vermascht) oder zentral (sternförmiger Anschluss am zentralen Erdungspunkt) ausgeführt wird, hat sich vorrangig an den Erfordernissen der leittechnischen Systeme zu orientieren. Bei leittechnischen Systemen mit ausgedehntem Bezugsleitersystem ist aus blitzschutztechnischer Sicht eine dezentrale Erdung vorzuziehen.

Hinweis:

Als funktionstechnisch zusammengehörig gelten leittechnische Systeme, wenn sie galvanisch miteinander verbunden sind. Bei Ausführung der zentralen Erdung des Bezugsleitersystems können bei blitzbedingten Einkopplungen und bei Schalt- sowie Ausgleichsvorgängen in der elektrischen Energieversorgung hohe transiente Potentialdifferenzen auf dem Bezugsleitersystem entstehen. Weiterhin hat die EMV-Praxis gezeigt, dass einige Leittechniksysteme bei zentraler Erdung des Bezugsleitersystems nicht die erforderliche Störfestigkeit gegenüber schnellen elektrischen Transienten (Burst) aufweisen (Prüfung nach DIN EN 61000-4-4).

(2) Werden die Stromversorgungen der einzelnen Systeme voneinander isoliert betrieben und bestehen keine galvanischen Verbindungen zwischen den Systemen, darf jedes System an dem jeweils günstigsten Punkt mit dem Potentialausgleichsystem verbunden werden.

(3) Es ist sicherzustellen, dass niederfrequente Beeinflussungen aus der elektrischen Energieversorgung nicht zu unzulässigen Beeinträchtigungen der leittechnischen Systeme führen.

Hinweis:

Niederfrequente Beeinflussungen können z.B. durch Erdschlüsse oder Kurzschlüsse entstehen.

(4) Der Anschluss des Bezugsleiters am zentralen Erdungspunkt ist zur Erdschlusssuche eindeutig und dauerhaft zu kennzeichnen, leicht zugänglich anzuordnen und trennbar auszuführen.

(5) Wird der Potentialausgleich funktionstechnisch zusammengehöriger leittechnischer Systeme dezentral ausgeführt, sind die Bezugsleiter der Stromversorgung in allen zugehörigen Schränken, Wartenpulten und Wartentafeln niederimpedant mit den Gehäusen oder Gestellen zu verbinden. Die Gehäuse und Gestelle sind niederimpedant mit der Bewehrung zu verbinden.

(6) Um gegenseitige Beeinflussungen beim Blitzeinschlag zu vermeiden, sind bei Mehrblockanlagen die Signalverbindungen zwischen den Blöcken oder zwischen den Blöcken und blockgemeinsamen Einrichtungen galvanisch getrennt zu betreiben.

Hinweis:

Eine galvanische Trennung schließt Hochohmverbindungen aus.

4.3.4 Kabelschirme

(1) Zur Reduzierung von kapazitiven und induktiven Beeinflussungen sind die leittechnischen Kabel mit einem Schirm zu versehen, der geerdet werden muss. Aus blitzschutztechnischer Sicht ist eine mindestens beidseitige Erdung des Kabelschirms vorteilhaft.

Hinweis:

Bei kurzen Kabelverbindungen und bei Stichkabel-Verbindungen zwischen Unterverteilern und Gebern ist dagegen häufig eine einseitige Erdung des Kabelschirms im Unterverteiler ausreichend, wenn dadurch die Anforderungen gemäß 3.1 (1) trotzdem erreicht werden.

(2) Die Erdung der Kabelschirme ist im Schrank, am zentralen Erdungspunkt oder anderen dafür vorgesehenen Schirmerdungspunkten vorzunehmen.

(3) Wird der Schirm eines leittechnischen Kabels zur Reduzierung der blitzbedingten Längsspannung an mehr als einer Stelle geerdet, ist sicherzustellen, dass auch durch andere eingekoppelte Störspannungen keine unzulässige Signalverfälschung entsteht und der Kabelschirm durch mögliche Ausgleichsströme thermisch nicht überlastet wird.

Hinweis:

Bei mehrfacher Erdung des Kabelschirms ist auf ausreichend geringe Kabel-Kopplungsimpedanz zu achten.

(4) Kabeladern, die zu gleichen Stromkreisen gehören, z.B. Stromversorgungsadern und Signaladern, müssen innerhalb derselben Schirmung liegen.

(5) Innerhalb eines Gebäudes müssen Signalkabel und zugehörige Einspeisekabel (Stromversorgungskabel der Elektronikschränke) auf niederimpedant verbundenen Pritschen oder Wannen geführt werden.

(6) Müssen zusätzliche Schirmungsmaßnahmen ergriffen werden, z.B. Verrohrungen von Kabelwegen oder Verlegung in Blechkanälen, müssen auf der beeinflussten Kabelstrecke Signalkabel und Einspeisekabel gleichwertig geschirmt werden.

(7) Zur Reduzierung von Längsspannungen können freie Kabeladern beidseitig geerdet werden. Es ist sicherzustellen, dass die Querspannung in den anderen Adern die zulässigen Werte nicht überschreitet.

4.3.5 Verlegung von Kabeln

(1) Kabel aus baulichen Anlagen des Schutzgrades 2 oder dem Außenbereich der Kraftwerksanlage sind nach Eintritt in bauliche Anlagen des Schutzgrades 1 getrennt oder abgeschirmt von den dortigen Kabeln zu verlegen, sofern nicht sichergestellt ist, dass keine unzulässigen Spannungen übergekoppelt werden können.

(2) Der Mindestabstand bei getrennter Verlegung von Kabeln aus baulichen Anlagen der Schutzgrade 1 und 2 ist anhand der relevanten Einflussgrößen festzulegen.

Hinweis:

Relevante Einflussgrößen können z.B. Parallelführungslänge, Leiteranordnung der Kabel sowie Eigenschaften der Störgrößen auf den Schutzgrad-2-Kabeln (Spannungssteilheit, Stromsteilheit, Frequenzspektrum) sein.

4.3.6 Überspannungsschutzgeräte

(1) Elektro- und leittechnische Systeme sind gegen blitzbedingte Überspannungen zu schützen. Sind dazu Überspannungsschutzgeräte erforderlich, müssen diese niederimpedant geerdet werden.

Hinweis:

Als Überspannungsschutzgeräte können z.B. Funkenstrecken, Zenerdioden oder Varistoren oder Kombinationen dieser Komponenten verwendet werden.
Es kann notwendig sein, gestaffelte, koordinierte Überspannungsschutzgeräte einzusetzen. Die Staffelung erfolgt nach Ableitvermögen und Ansprechverhalten.
Zur Erhöhung der Eingangsfestigkeit können optoelektronische Signalverbindungen, Trennübertrager, Trennverstärker und Koppelrelais oder Koppelschütze verwendet werden.
Die einzusetzenden Überspannungsschutzgeräte richten sich nach der Art der zu schützenden leittechnischen Einrichtung, d. h. nach der Art der Nutzsignalübertragung und Nutzsignalverarbeitung.

(2) Überspannungsschutzgeräte zur Begrenzung blitzbedingter Überspannungen müssen prüfbar sein. Die Prüfung soll ohne Eingriff in die Verdrahtung möglich sein. Diese Überspannungsschutzgeräte sind vorzugsweise steckbar auszuführen. Steckbare Überspannungsschutzgeräte sind gerätetechnisch so auszuführen, dass eine Verwechslung nicht möglich ist. Bei fest verdrahteten Überspannungsschutzgeräten sind eingebaute Prüfhilfen (z.B. Trennklemmen, Prüfbuchsen) vorzusehen.

5 Nachweis des Schutzes gegen blitzbedingte Überspannungen

5.1 Allgemeines

(1) Es ist nachzuweisen, dass die zulässigen Spannungen der eingesetzten leittechnischen Geräte und Systeme infolge von Blitzeinschlägen nicht überschritten werden (siehe Abschnitt 5.3).

Hinweis:

Für die Ermittlung der eingekoppelten Spannung ist die Kenntnis des beim Blitzeinschlag durch den jeweiligen Kabelkanal oder über die jeweilige Kabeltrasse fließenden Blitzstromes erforderlich. Dieser Strom lässt sich aufgrund der nach Abschnitt 3.3 vorgegebenen Kenndaten des Blitzstromes ermitteln, wenn die Impedanzen von Kanälen, Erdleitungen und Erdreich zugrunde gelegt werden und der gesamte Blitzstrom auf diese Bahnen entsprechend verteilt wird.

(2) In dieser Regel werden Berechnungsverfahren für die Einkopplung von Spannungen durch Blitzeinwirkungen in Leittechnik-Kabel innerhalb der Kraftwerksgebäude nicht behandelt. Nach Schirmung der Gebäude sowie Verlegung und Schirmung der Kabel nach dieser Regel ist eine unzulässig hohe blitzbedingte Spannungseinkopplung auf den Kabelstrecken innerhalb der Gebäude nicht zu besorgen.

(3) Es ist zulässig, die Ergebnisse bereits durchgeführter Messungen oder Berechnungen an Kernkraftwerken mit vergleichbaren Abmessungen und Anordnungen von Gebäuden und Kabelkanälen für die Bemessung des Blitzschutzsystems zu verwenden.

(4) Es ist zulässig, die durch Blitznaheinschläge verursachte Einkopplung in Kabel, die in Kanälen oder Erde verlegt sind, bei der Berechnung nicht zu berücksichtigen.

5.2 Berechnung der auftretenden Spannungen

Hinweis:

Die nachfolgenden Berechnungen gelten für die in den Abschnitten 4.2 bis 4.3.5 beschriebenen Maßnamen.

5.2.1 Allgemeines

(1) Für die Berechnung der auftretenden Spannungen sind die kritischen Blitzeinschlagpunkte auszuwählen.

Hinweis:

Kritisch sind die möglichen Einschlagpunkte, die eine hohe Spannungseinkopplung in die Kabel ergeben. Dies sind vor allem Einschlagpunkte an Gebäuden am Ende eines längeren Kabelkanals, im Wesentlichen am kleineren Gebäude. Für Kabel in Kabelkanälen können Einschlagpunkte am Notspeise- und Notstromdieselgebäude als kritisch gelten. Für Einkopplungen in erdverlegte Kabel gelten Einschlagpunkte an kleineren Gebäuden am Rande oder außerhalb des Kraftwerksgeländes als kritisch.

(2) Für die Berechnung sind die Blitzstromparameter nach Abschnitt 3.3 zugrunde zu legen.

(3) Für die Nachbildung der Impulsströme ist die analytische Blitzstromfunktion nach Gleichung 5-1 zu verwenden.

( 5-1)


Darin bedeuten:  
iB in kA Blitzstrom
IB in kA Strommaximalwert
t in µs Zeit
η (dimensionslos) Korrekturfaktor
τ1 in µs Stirnzeitkonstante
τ2 in µs Rückenzeitkonstante

Dabei sind die Parameter nach Tabelle 5-1 zu verwenden.

Hinweis:

Bei Verwendung der in der Tabelle 5-1 angegebenen Parameter wird durch die Gleichung 5-1 eine Blitzstromfunktion erzeugt, die den Blitzstromparametern nach Abschnitt 3.3 entspricht.

(4) Bei verdrillten Adernpaaren darf die Querspannung vernachlässigt werden.

Hinweis:

Die Querspannungen werden von den Eingangsimpedanzen der verbundenen Baugruppen, Geber usw. und von der Art der Verkabelung beeinflusst. Die Querspannungen betragen maximal ca. 1/5 bis 1/3 der Längsspannungen.

5.2.2 Kabel in Kanälen

5.2.2.1 Bestimmung der Stromverteilung

(1) Bei der Bestimmung der Blitzstromverteilung ist für alle Blitztypen anzunehmen, dass 1/3 des Blitzstroms durch die Erdungsanlage des getroffenen Gebäudes über den Fundamenterder in das Erdreich eintritt. Die restlichen 2/3 des Blitzstroms sind anteilig auf alle vom getroffenen Gebäude abgehenden Kabelkanäle und erdfühligen Leitungen (Rohrleitungen, Erdseile) aufzuteilen.

lab = (2/3) lB ( 5-2)


Darin bedeuten:  
lab in kA Maximalwert des Blitzteilstroms, der vom getroffenen Gebäude über abgehende Kabelkanäle und erdfühlige Leitungen abgeleitet wird
IB in kA Strommaximalwert nach Gleichung 5-1

(2) Die relativen Anteile pK (Wichtungsfaktor) der unterschiedlichen Blitzteilströme für die vom getroffenen Gebäude abgehenden Kabelkanäle und erdfühligen Leitungen sind der Tabelle 5-2 zu entnehmen.

(3) Der Maximalwert des Blitzteilstroms lK über den zu untersuchenden Kabelkanal ist nach Gleichung 5-3 zu bestimmen.

( 5-3)


Darin bedeuten:  
IK in kA Maximalwert des Blitzteilstroms über den zu untersuchenden Kabelkanal
PKK (dimensionslos) relativer Anteil des Blitzstroms über den zu untersuchenden Kabelkanal
∑PKv (dimensionslos) Summe der relativen Anteile der Blitzteilströme über alle abgehenden Kabelkanäle und erdfühligen Leitungen
n (dimensionslos) Anzahl aller betrachteten parallelen leitfähigen Anlagenteile
v (dimensionslos) Laufindex aller betrachteten parallelen leitfähigen Anlagenteile

5.2.2.2 Fiktive Länge des Kabelkanals

(1) Für die Berechnung der eingekoppelten Spannung darf angenommen werden, dass der Blitzteilstrom im Zuge des Kanals bis zu einer fiktiven Länge lf konstant bleibt und dann zu Null wird.

(2) Die fiktive Länge lf des Kabelkanals ist nach Gleichung 5-4 zu berechnen.

lf = K√ ρe ( 5-4)


Darin bedeuten:
lf in m für die Spannungseinkopplung anzusetzende fiktive Länge des Kabelkanals
K in (Ω/m)-1/2 Blitztypfaktor
ρe in Ωm spezifischer Erdbodenwiderstand

(3) Der Blitztypfaktor K ist Tabelle 5-3 zu entnehmen.

(4) Ist die tatsächliche Kanallänge lK kleiner als die nach Gleichung 5-4 berechnete Länge, so ist für die fiktive Länge die tatsächliche Kanallänge einzusetzen.

lf = lK ( 5-5)

Tabelle 5-1: Parameter zur Berechnung der Blitzstromfunktion

Parameter Formelzeichen Einheit pos. Erstblitz Wert für neg. Erstblitz neg. Folgeblitz
Strommaximalwert IB kA 200 100 50
Korrekturfaktor η - 0,930 0,986 0,993
Stirnzeitkonstante τ1 µs 19,0 1,82 0,454
Rückenzeitkonstante τ2 µs 485 285 143

Tabelle 5-2: Wichtungsfaktoren pK

Art des Kabelkanals,
Art der erdfühligen Leitung
Wichtungsfaktor pK für den Anteil des Blitzstroms
Kabelkanal (ca. 2 m × 2 m) 3
dreifach- oder vierfach-Kabelkanal (je ca. 2 m × 2 m) 6
erdfühlige Leitung:
Ø < 0,1 m (z.B. Erdseil)
1
erdfühlige Leitung:
0,1 m ≤ Ø ≤ 1 m
(z.B. Rohrleitung)
2
erdfühlige Leitung:
Ø > 1 m (z.B. Rohrleitung)
3

Tabelle 5-3: Blitztypfaktor K

Blitztyp Blitztypfaktor K
in (Ω/m)-1/2
positiver Erstblitz 3
negativer Erstblitz 1
negativer Folgeblitz 0,5

5.2.2.3 Berechnung der eingekoppelten Längsspannung

(1) Die eingekoppelte Längsspannung UL ist nach Gleichung 5-6 zu bestimmen.

UL = Z`M lK l ( 5-6)


Darin bedeuten:
UL in V Maximalwert der eingekoppelten Längsspannung
Z"M in V/kAm Koppelimpedanzbelag
l in m anzusetzende Länge

(2) Der Einfluss von Dehnfugen im Kanalverlauf und zu den Gebäuden ist durch eine fiktive Verlängerung des Kabelkanals IDF zu berücksichtigen. Die Werte sind der Tabelle 5-6 zu entnehmen. Es sind nur die Dehnfugen zu berücksichtigen, die sich im Bereich der fiktiven Länge lf befinden.

( 5-7)


Darin bedeuten:
lDF in m Einfluss einer Dehnfuge
N (dimensionslos) Anzahl der zu berücksichtigenden Dehnfugen
v (dimensionslos) Laufindex

(3) Die Werte für den Koppelimpedanzbelag Z"M zur Berechnung der eingekoppelten Längsspannung sind Tabelle 5-5 zu entnehmen; abweichende Werte sind zu begründen.

5.2.3 Erdverlegte Kabel

5.2.3.1 Bestimmung der Stromverteilung

(1) Die Bestimmung der Stromverteilung bei erdverlegten Kabeln muss für den positiven Erstblitz durchgeführt werden.

Hinweis:

An in Erde verlegten Kabeln führen die Ströme bei positiven Erstblitzen zu den höchsten eingekoppelten Spannungen.

(2) Bei Gebäuden mit bewehrtem Fundament ist bei der Bestimmung der Blitzstromverteilung anzunehmen, dass 1/3 des Blitzstroms durch die Erdungsanlage des getroffenen Gebäudes in das Erdreich eintritt. Die restlichen 2/3 des Blitzstroms sind anteilig auf alle vom getroffenen Gebäude abgehenden Kabel zu verteilen.

Iab = (2/3) lB ( 5-8)


Darin bedeuten:
lab in kA Maximalwert des Blitzteilstroms, de vom getroffenen Gebäude über alle Leitungen (erdfühlige und nicht erdfühlige Leitungen) abgeleitet wird
lB in kA Strommaximalwert nach Gleichung 5-1.

Tabelle 5-4: Wichtungsfaktoren pE

Art der Erdkabels,
Art der erdfühligen oder isolierten Leitung
Wichtungsfaktor pE für den Anteil des Blitzstroms
Einzelkabel (Leittechnik) 1
Erdkabeltrasse mit 2 bis 10 Leittechnik-Kabeln 2
Erdkabeltrasse mit mehr als 10 Leittechnik-Kabeln 3
Kabelkanal (ca. 2 m × 2 m) 3
dreifach- oder vierfach-Kabelkanal
(je ca. 2 m × 2 m)
6
erdfühlige oder isolierte Leitung:
Ø < 0,1 m (z.B. Erdseil)
1
erdfühlige oder isolierte Leitung:
0,1 m ≤ Ø ≤ 1 m (z.B. Rohrleitung)
2
erdfühlige oder isolierte Leitung:
Ø > 1 m (z.B. Rohrleitung)
3

(3) Weist das vom Blitz getroffene Gebäude lediglich einen Ringerder oder einen oder mehrere Staberder auf, so ist der gesamte Blitzstrom anteilig auf alle vom Gebäude abgehenden Leitungen (Rohrleitungen, Erdseile, Kabel, Kabelkanäle, gemäß Tabelle 5-4) zu verteilen.

lab = lB ( 5-9)

(4) Werden erdverlegte Kabel gemeinsam auf einer Trasse (Erdkabeltrasse) geführt, so ist der Blitzteilstrom für die gesamte Trasse zu bestimmen.

(5) Die relativen Anteile pE (Wichtungsfaktor) der unterschiedlichen Blitzteilströme für die vom getroffenen Gebäude abgehenden erdverlegten Kabel sowie für die erdfühligen oder isolierten Leitungen sind der Tabelle 5-4 zu entnehmen.

(6) Der Maximalwert des Blitzteilstroms IE über die zu untersuchende Erdkabeltrasse ist nach Gleichung 5-10 zu bestimmen.

( 5-10)


Darin bedeuten:  
lE in kA Maximalwert des Blitzteilstroms über die zu untersuchende Erdkabeltrasse
pEE (dimensionslos) relativer Anteil des Blitzstromes über die zu untersuchende Erdkabeltrasse
ΣpEv (dimensionslos) Summe der Anteile der Blitzströme über alle abgehenden erdverlegten Kabel und erdfühligen Leitungen
n (dimensionslos) Anzahl aller betrachteten parallelen leitfähigen Anlagenteile
v (dimensionslos) Laufindex aller betrachteten parallelen leitfähigen Anlagenteile

(7) Der Maximalwert des Blitzteilstroms IE über die zu untersuchende Erdkabeltrasse ist gleichmäßig auf die Maximalwerte der Blitzteilströme IKS über die stromtragfähigen Schirme aller parallelen Kabel in der betrachteten Erdkabeltrasse aufzuteilen.

Für Einzelkabel gilt

lKS = lE ( 5-11)


Darin bedeutet:
lKS in kA Maximalwert des Blitzteilstroms über das Erdkabel

Für eine Erdkabeltrasse gilt

lKS = (1/q) × lE ( 5-12)


Darin bedeutet:
q (dimensionslos) Anzahl der Leittechnikkabel der Erdkabeltrasse (Hierbei dürfen erdfühlig verlegte Begleitseile der Trasse und Potentialausgleichsleitungen in den Kabelziehrohren mitgezählt werden.)

5.2.3.2 Berechnung der eingekoppelten Längsspannung

(1) Die eingekoppelte Längsspannung ist nach Gleichung 5-13 zu bestimmen.

UL = Z`M * lKS * lE ( 5-13)


Darin bedeutet:
lE in m tatsächliche Länge des erdverlegten Kabels

(2) Als Koppelimpedanzbelag Z"M ist der Gleichstromwiderstandsbelag R"DC nach den Angaben des Kabelherstellers anzusetzen.

5.3 Überprüfung der zulässigen Spannungen

(1) Für die Überprüfung der zulässigen Spannungen der Geräte oder Systeme, die an die Kabel nach den Abschnitten 5.2.2 und 5.2.3 angeschlossen werden, ist die maximale Spannungsfestigkeit bei Stoßbeanspruchung zugrunde zu legen.

Hinweis:

In DIN EN 61000-4-5 ist ein Hybridgenerator zur Prüfung der Stör- und Zerstörfestigkeit der Geräte oder Systeme gegen blitzbedingte Stoßspannungen beschrieben. Dieser Hybridgenerator erzeugt eine Leerlaufspannung der Impulsform 1,2/50 µs und einen Kurzschlussstrom der Impulsform 8/20 µs. Beim Prüfaufbau werden Überspannungsschutzgeräte, die standardmäßig zum Einsatz kommen, mit berücksichtigt.

(2) Bei Geräten mit Entkopplungsfunktion, z.B. bei Messumformern oder hochohmigen Trennbaugruppen, muss auch die Längsspannungsfestigkeit ermittelt werden.

Hinweis:

Längsspannungen sind Spannungsbeanspruchungen zwischen voneinander entkoppelten Anschlüssen und zwischen den Anschlüssen und dem Gehäuse.

(3) Sind die nach Abschnitt 5.2 ermittelten Spannungen größer als die zulässige Spannung, müssen diese Kabel eine Schutzbeschaltung nach Abschnitt 4.3.6 erhalten.

5.4 Nachweis bei abweichenden Ausführungen

Kann oder soll der Nachweis nach Abschnitt 5.2 aufgrund abweichender Anlagenkonzeption oder aus anderen Gründen nicht geführt werden, dann ist die eingekoppelte Längsspannung UL entweder

  1. durch andere geeignete Rechenverfahren,
  2. durch Modellversuche,
  3. durch Blitzsimulation

oder durch eine Kombination dieser Methoden zu ermitteln.

Tabelle 5-5: Richtwerte für den Koppelimpedanzbelag Z"M zur Berechnung der Längsspannung in Abhängigkeit von der Stirnzeit T1 des Stoßstromes.

Anordnung Blitztyp Stirnzeit T1
in µs
Koppelimpedanzbelag Z"M
in V/kAm
Kabelkanal (ca. 2 m × 2 m) negativer Folgeblitz 0,25 0,50
negativer Erstblitz 1,0 0,30
positiver Blitz 10 0,08
Hinweise:
  1. Die angegebenen Werte gelten für Ausführungen des Kabelkanals nach dieser Regel.
  2. Für Mehrfachkanäle gelten die gleichen Werte. Dabei wird der Gesamtstrom über den Mehrfachkanal in die für die Berechnung relevanten Teilströme über die einzelnen Kanäle aufgeteilt.

Tabelle 5-6: Fiktive Verlängerung eines Kabelkanals lDF je Dehnfuge in Abhängigkeit von der Anzahl der Dehnfugen-Überbrückungen und der Stirnzeit T1 des Stoßstromes.

Blitztyp Stirnzeit T1
in µs
Fiktive Verlängerung lDF je Dehnfuge
in m
für 16 Dehnfugen- Überbrückungen für 8 Dehnfugen- Überbrückungen für 4 Dehnfugen- Überbrückungen für 2 Dehnfugen- Überbrückungen
negativer Folgeblitz 0,25 15 30 50 70
negativer Erstblitz 1,0 10 20 35 55
positiver Blitz 10 5 10 20 30
Hinweis:

Die angegebenen Werte gelten für einen Einfachkanal und für die Ausführung des Kabelkanals nach dieser Regel.

6 Prüfungen

6.1 Vorprüfungen

(1) Vor Errichtung des Blitzschutzsystems ist anhand von Unterlagen (z.B. Auslegungsspezifikationen, Gebäudeübersichtszeichnungen) die Einhaltung der in dieser Regel enthaltenen Anforderungen zu prüfen.

(2) Bezüglich der Ausführung des Blitzschutzsystems ist zu prüfen, ob die Bauteile und Betriebsmittel hinsichtlich der verwendeten Werkstoffe, der Abmessungen und des Korrosionsverhaltens der verwendeten Werkstoffe den in dieser Regel gestellten Anforderungen entsprechen.

(3) Die vorgesehenen Maßnahmen des Inneren Blitzschutzsystems sind auf Übereinstimmung mit dieser Regel zu prüfen. Anhand von Beschreibungen, Anordnungszeichnungen, Schaltbildern und Datenblättern sind z.B. die richtige Auslegung und Anordnung der vorgesehenen Überspannungsschutzgeräte zu prüfen.

6.2 Prüfungen während der Errichtung

Während der Errichtung der baulichen Anlagen sind die Teile des Blitzschutzsystems, die nach der Errichtung nicht mehr zugänglich sind (z.B. Verbindung des Maschennetzes, der Anschlussstellen, der Ankerplatten und der Fundamentschienen sowie die Verbindung mit der Bewehrung), vor dem Betonieren oder dem Verfüllen auf Übereinstimmung mit den vorgeprüften Ausführungsunterlagen zu prüfen.

6.3 Abnahmeprüfungen

(1) Nach Fertigstellung des Blitzschutzsystems und vor Beginn der nuklearen Inbetriebsetzung sind Abnahmeprüfungen des Äußeren Blitzschutzsystems durchzuführen:

  1. Die zugänglichen Teile des Äußeren Blitzschutzsystems sind einer Sichtprüfung in Bezug auf die Ausführung und die Einhaltung der geforderten Abmessungen, Abstände und Werkstoffe zu unterziehen.
  2. Die Leitungswiderstände über den Ringerder, über die Ableitungen und über die Verbindungen der Ringerder benachbarter Gebäude sind zu bestimmen. Dazu ist jeweils eine Trennstelle zu öffnen. Die beiden Widerstände zur jeweils benachbarten Trennstelle sind zu messen und die Messwerte zu dokumentieren. Durch die Messung ist der Nachweis zu erbringen, dass jeweils eine niederimpedante Verbindung zur Erdungsanlage vorliegt.

(2) Vor Beginn der nuklearen Inbetriebsetzung sind Abnahmeprüfungen des Inneren Blitzschutzsystems durchzuführen:

  1. Die Ausführung der Erdungssammelleiter (Potentialausgleichsschienen), die Erdung des leittechnischen Systems, die Verbindung der Erdungssammelleiter zur Erdungsanlage und die elektrischen Verbindungen der Kabelpritschen und Kabelwannen sind einer Sichtprüfung zu unterziehen.
  2. Bei der zentralen Erdung ist der Isolationswiderstand Bezugsleiter gegen Erde zu messen und zu dokumentieren. Die Isolierung des Bezugsleiters am Geber ist stichprobenartig zu prüfen.

    Hinweis:

    Siehe als Beispiel das im Anhang B dargestellte Messverfahren.


  3. Überspannungsschutzgeräte sind zu prüfen.

(3) Vor Beginn der nuklearen Inbetriebsetzung muss ein Prüfplan für Abnahmeprüfungen erstellt und mit dem Sachverständigen (nach § 20 Atomgesetz) abgestimmt werden. Dieser Prüfplan muss die zu prüfenden Systeme oder Systemteile, die durchzuführenden Prüfungen, die zugehörigen Prüfanweisungen sowie die Beteiligung von Sachverständigen (nach § 20 Atomgesetz) angeben.

(4) Die Abnahmeprüfungen sind durch das vom Antragsteller bestimmte sachkundige Personal durchzuführen. Soweit der Prüfplan dies vorsieht, sind Sachverständige (nach § 20 Atomgesetz) zur Prüfung hinzuzuziehen.

6.4 Wiederkehrende Prüfungen

(1) Das Innere Blitzschutzsystem ist etwa jährlich (z.B. während des Brennelementwechsels), das Äußere Blitzschutzsystem alle drei Jahre (z.B. jährlich ein Drittel des Prüfumfangs) einer wiederkehrenden Prüfung zu unterziehen. Es sind folgende Prüfungen durchzuführen:

  1. Alle ausgeführten Maßnahmen des Äußeren Blitzschutzsystems sind, soweit zugänglich, durch eine Sichtprüfung auf ihren Zustand zu überprüfen.
  2. Die Leitungswiderstände über den Ringerder, über die Ableitungen und über die Verbindungen der Ringerder benachbarter Gebäude sind zu messen. Dazu ist jeweils eine Trennstelle zu öffnen. Die beiden Widerstände zur jeweils benachbarten Trennstelle sind zu messen, die Messwerte sind zu dokumentieren und mit den bisher vorliegenden Messwerten zu vergleichen.
  3. Überspannungsschutzgeräte sollen jährlich geprüft werden. Eine Verlängerung der Prüfzyklen ist auf Basis der Zuverlässigkeitsdaten der jeweiligen Überspannungsschutzgeräte unter Berücksichtigung der Einbauorte zulässig.

Hinweis:

Ausgewertete Betriebserfahrungen zeigen, dass eine Verlängerung der Prüfzyklen auf vier Jahre bei bestimmten Komponenten zulässig sein kann.

(2) Bei leittechnischen Systemen mit zentralem Erdungspunkt ist der Isolationswiderstand des Bezugsleiters etwa jährlich während eines Anlagenstillstandes am zentralen Erdungspunkt zu messen, zu dokumentieren und mit den bisher vorliegenden Messwerten zu vergleichen. Für die Messungen sind gleichwertige Messverfahren wie bei den Abnahmeprüfungen zu verwenden.

(3) Die wiederkehrenden Prüfungen sind durch das vom Antragsteller bestimmte sachkundige Personal durchzuführen. Soweit die Prüfliste nach KTA 1202 dies vorsieht, sind Sachverständige (nach § 20 Atomgesetz) zur Prüfung hinzuzuziehen.

6.5 Prüfnachweise

Über die durchgeführten Abnahmeprüfungen sowie wiederkehrenden Prüfungen sind Nachweise zu führen. In diesen Prüfnachweisen müssen alle zur Auswertung und Bewertung der Prüfung notwendigen Angaben nach KTA 1202 enthalten sein.

7 Anforderungen bei Änderungen

(1) Bei leit-, elektro-, maschinen- und bautechnischen Änderungen ist die Einhaltung der Anforderungen dieser Regel sicherzustellen. Die Änderungen dürfen keine unzulässigen Auswirkungen auf das bestehende Blitzschutzsystem haben.

(2) Bei Änderungen sind Prüfungen nach Abschnitt 6 durchzuführen. Der Umfang der Prüfungen ist im Einzelfall festzulegen.

(3) Nach Abschluss der Arbeiten ist bei leittechnischen Systemen mit zentralem Erdungspunkt die Isolierung des Bezugsleiters sowie ggf. der statischen Schirme von Leittechnik-Kabeln im geänderten Gerät zu überprüfen.

8 Dokumentation

Der Umfang der Dokumentation ist nach KTA 1404 festzulegen.

.

Beispiele zur Berechnung der auftretenden Spannungen Anhang A

a 1 Ermittlung der eingekoppelten Spannung für ein Kabel in einem Kabelkanal

(1) Der Berechnung liegen folgende Annahmen zugrunde:

  1. Der Einschlag erfolgt in ein Gebäude mit Fundamenterder.
  2. Der spezifische Erdbodenwiderstand beträgt ρe = 500 Ωm.
  3. Von dem Blitz getroffenen Gebäude gehen insgesamt ab:
    ca) zwei erdfühlige Rohrleitungen mit 0,1 m < Ø < 1 m;
    cb) zwei erdfühlige Rohrleitungen mit Ø > 1 m;
    cc) zehn Erdseile (erdfühlige Leitung mit Ø < 0,1 m);
    cd) ein Einfach-Kabelkanal (ca. 2 m x 2 m).
  4. Der betrachtete Kabelkanal hat eine Länge lK = 50 m und insgesamt vier Dehnfugen (zwei zu den verbundenen Gebäuden und weitere zwei nach je 16,7 m Länge. Die Dehnfugen sind je 8-fach überbrückt.

(2) Berechnung für den negativen Folgeblitz (lB = 50 kA)

  1. Aus Gleichung 5-2 ergibt sich der Maximalwert des Blitzteilstroms, der das Gebäude verlässt, zu

    lab = (2/3)* lB =33,3 ka .

  2. Aus Gleichung 5-3 und Tabelle 5-2 ergibt sich der Maximalwert des Blitzteilstroms über den zu untersuchenden Kabelkanal mit pKK = 3 und ΣpKv = 23 zu

  3. Aus Gleichung 5-4 und Tabelle 5-3 ergibt sich die fiktive Länge des Kabelkanals zu

    lf = K* √ρe = 11,2 m.

  4. Für den negativen Folgeblitz gibt Tabelle 5-5 den Koppelimpedanzbelag zu Z`M = 0,50 V/kAm und Tabelle 5-6 die fiktive Verlängerung durch eine Dehnfuge für diesen Kabelkanal zu lDF = 30 m an. Zu berücksichtigen ist nur eine Dehnfuge (lf = 11,2 m). Aus den Gleichungen 5-6 und 5-7 ergibt sich die eingekoppelte Längsspannung zu

(3) Berechnung für den negativen Erstblitz (IB = 100 kA)

  1. Aus Gleichung 5-2 ergibt sich der Maximalwert des Blitzteilstroms, der das Gebäude verlässt, zu

    lab = (2/3) * lB = 66,7 ka .

  2. Aus Gleichung 5-3 und Tabelle 5-2 ergibt sich der Maximalwert des Blitzteilstroms über den zu untersuchenden Kabelkanal mit pKK = 3 und ΣpKv = 23 zu

  3. Aus Gleichung 5-4 und Tabelle 5-3 ergibt sich die fiktive Länge des Kabelkanals zu

    lf = K * √ρe = 22,4 m .


  4. Für den negativen Erstblitz gibt Tabelle 5-5 den Koppelimpedanzbelag zu Z`M = 0,30 V/kAm und Tabelle 5-6 die fiktive Verlängerung durch eine Dehnfuge für diesen Kabelkanal zu lDF = 20 m an. Zu berücksichtigen sind jetzt zwei Dehnfugen (lf = 22,4 m). Aus den Gleichungen 5-6 und 5-7 ergibt sich die eingekoppelte Längsspannung zu

UL = Z`M * lK * (lf + ΣlDF)

= 0,30 (V/kAm) * 8,70 ka * (22,4m * 2 * 20m) = 162,8V

(4) Berechnung für den positiven Blitz (lB = 200 kA)

  1. Aus Gleichung 5-2 ergibt sich der Maximalwert des Blitzteilstroms, der das Gebäude verlässt, zu

    lab = (2/3) * lB =133 kA.


  2. Aus Gleichung 5-3 und Tabelle 5-2 ergibt sich der Maximalwert des Blitzteilstroms über den zu untersuchenden Kabelkanal mit pKK = 3 und ΣpKv = 23 zu

  3. Aus Gleichung 5-4 und Tabelle 5-3 ergibt sich die fiktive Länge des Kabelkanals zu

    lf = K * √ρe = 67,1 m .


  4. Für den positiven Blitz gibt Tabelle 5-5 den Koppelimpedanzbelag zu Z`M = 0,08 V/kAm und Tabelle 5-6 die fiktive Verlängerung durch eine Dehnfuge für diesen Kabelkanal zu lDF = 10 m an. Zu berücksichtigen sind jetzt alle vier Dehnfugen (lf > lK). Aus den Gleichungen 5-6 und 5-7 ergibt sich die eingekoppelte Längsspannung zu

UL = Z`M * lK * (lf +ΣlDF)

= 0,08 (V/kAm * 17,3 ka * (50 m + 4 * 10 m ) =124,6 V.

a 2 Ermittlung der eingekoppelten Spannung für ein erdverlegtes Kabel mit einem stromtragfähigen Schirm

(1) Der Berechnung liegen folgende Annahmen zugrunde:

  1. Der Einschlag erfolgt in ein Gebäude mit Ringerder.
  2. Von dem Blitz getroffenen Gebäude gehen insgesamt ab:
    ba) eine Erdkabeltrasse mit acht Leittechnik-Kabeln;
    bb) drei Erdseile (erdfühlige Leitungen mit 0 < 0,1 m).
  3. Die betrachtete Erdkabeltrasse hat eine Länge von lE = 160 m.
  4. Der Koppelimpedanzbelag beträgt Z`M = 1,2 mΩ/m.

(2) Die Berechnung wird nur für den positiven Blitz durchgeführt (lB = 200 kA):

  1. Aus Gleichung 5-9 ergibt sich der Maximalwert des Blitzteilstroms, der das Gebäude verlässt, zu

    lab = lB = 200 kA.


  2. Aus Gleichung 5-10 und Tabelle 5-4 ergibt sich der Maximalwert des Blitzteilstroms über die zu untersuchende Erdkabeltrasse mit pEE = 2 und ΣpEv = 5 zu


  3. Aus Gleichung 5-12 ergibt sich der Maximalwert des Blitzteilstroms über ein erdverlegtes Kabel (Leittechnik-Kabel) zu

    lKS = (1/8) * lE =10,0 ka .


  4. Aus Gleichung 5-13 ergibt sich die eingekoppelte Längsspannung zu

UL = Z`M* lKS * lE

= 1,2 (mΩ/m) * 10,0 ka * 160 m =1.920 V.

.

Beispiel für die Messung der Isolationswiderstände vom Bezugsleiter und statischen Schirm gegen Erde am zentralen Erdungspunkt Anhang B

B 1 Allgemeines

Die Messung der Isolationswiderstände am zentralen Erdungspunkt (ZEP) bezieht sich auf die ± 24 V-Anlage eines typischen Kernkraftwerkblocks. Am ZEP werden drei Schienen, statischer Schirm (S), Mittel- oder Bezugsleiter (M), Ortserde (E) und eventuell zwei weitere Schienen, Plus-Leiter (P) sowie Minus-Leiter (N), geführt. Außerdem befinden sich dort Laschen, die bei der Messung geöffnet werden müssen. Bild B-1 zeigt eine vereinfachte Schaltung der ± 24 V-Anlage mit ZEP und die vier resultierenden Isolationswiderstände der Schiene S, P, M, N gegen Erde sowie eine mögliche galvanische Einkoppelung der Schienen S und M untereinander (Widerstand R3). Im Allgemeinen resultieren diese fünf Widerstände aus der Parallelschaltung vieler einzelner Isolationswiderstände unterschiedlicher Größe. Es liegt somit ein aktives Netzwerk vor, das fünf Widerstände und zwei Spannungsquellen U1 und U2 enthält. Bezogen auf die Klemmen E-M und E-S ergibt sich jeweils ein Ersatzschaltbild, das aus einer Ersatzspannungsquelle mit einem in Reihe geschalteten Ersatzwiderstand besteht. Zur Bestimmung dieser Ersatzwiderstände muss man beide Laschen öffnen, die Klemmen E-M und E-S nacheinander an eine fremde regelbare Spannungsquelle anschließen und dabei die resultierenden Spannungs-Strom-Kennlinien aufnehmen, wie im Bild B-2 dargestellt.

B 2 Berechnung der U-I-Kennlinien

(1) An die Klemmen E-M und E-S wird nacheinander (gemäß Bild B-2) ein Messkreis angeschlossen, bestehend aus einer regelbaren Gleichspannungsquelle K, einem Amperemeter I und einem Voltmeter U. Zwischen U und I besteht folgender Zusammenhang:

a) Anschluss an E-M: l = (1/REmo) * (U - UEMo) ( B 2-1)
(siehe auch Bild B-3)    
b) Anschluss an E-S: l = (1/RESo) * (U - UESo ) ( B 2-2)
(siehe auch Bild B-4)    

(2) In den Gleichungen B 2-1 und B 2-2 bedeuten nach dem Satz der Ersatzspannungsquelle:

UEMo und UESo Ersatzspannungen der Schaltung aus Bild B-2 bezogen auf die Klemmen E und M, sowie E und S, im Leerlauf, d. h. Laschen offen.
REMo und RESo Ersatzwiderstände der Schaltung aus Bild B-2 mit kurzgeschlossenen Quellen U1 und U2, gesehen von den Klemmen E und M, sowie E und S.

(3) Die Berechnung der in Absatz 1 aufgeführten Größen mit Hilfe des Bildes B-2 liefert:

( B 2-3)
 > ( B 2-4)
  ( B 2-5)
 > ( B 2-6)

(4) Die Gleichung B 2-6 gilt , wenn

(1/RS) < (1/R1) + (1/R2) + (1/RM)

ist, was nach der Erdschlusssuche zutrifft (siehe Abschnitt B 4).

(5) Aus den Gleichungen B 2-5 und B 2-6 folgt, dass die Isolationswiderstände RM und RS einzeln nicht messbar und immer größer als die messbaren Ersatzwiderstände REMo und RESo sind.

B 3 Deutung der Ergebnisse

(1) Das Bild B-3 und das Bild B-4 zeigen, dass im Allgemeinen nur die Steilheit der U-I-Kennlinie und nicht nur ein Einzelpunkt dieser Kennlinie genutzt werden darf, um einen Isolationswiderstand anzugeben. Diese Steilheit entspricht aber einer Parallelschaltung mehrerer Isolationswiderstände (siehe Gleichungen B 2-5 und B 2-6) und nicht dem beim Blitzeinschlag bedeutsamen Widerstand RM oder RS.

(2) Auch ohne Zahlenbeispiele geht aus den Gleichungen B 2-3 bis B 2-6 folgendes hervor:

UEMo > UESo (Überlagerungsspannung) (B 3-1)
REMo < RESo (sehr wichtig) ( B 3-2)

(3) Selbst im Falle, dass R3 gegenüber allen anderen Widerständen sehr groß ist, gilt:

UEMo ≠ 0  
REMo < RM oder ( B 3-3)
REMo = (RM/3) (wenn R1 = R2 = RM)  
und  
UESo = O  
RESo = RS ( B 3-4)

(4) Abgesehen von den Ausführungsdetails der Anlage sowie von den tatsächlichen Zahlenwerten ist festzustellen, dass die Messung an den Klemmen E-M nicht RM, sondern ca. ein Drittel davon liefert und dass dieses Ergebnis stets kleiner ist als bei der Messung an den Klemmen E-S. Dieser Tatsache muss daher von vornherein Rechnung getragen werden, indem der Soll-Wert für REMo kleiner als der Sollwert für RESo festgelegt wird.

B 4 Durchführung der Messung und Bewertung der Messergebnisse

(1) Vor der endgültigen Messung der Isolationswiderstände sind Erdschlüsse zu suchen und zu beseitigen. Die Erdschlüsse lassen sich mit einem 5 Hz-Suchgerät auffinden.

(2) Nach Beseitigung der festgestellten Erdschlüsse sind die Ersatzwiderstände gemäß Bild B-3 und B-4 nach dem U-I-Verfahren mit Hilfe einer variablen Gleichspannungsquelle zu ermitteln. Dafür müssen beide Laschen gleichzeitig geöffnet und der Messkreis nacheinander an jedes Klemmenpaar angeschlossen werden. Die Spannung des Messkreises ist dabei zwischen - U2 und + U1 zu variieren; die Schrittweite soll kleiner als oder gleich 5 V betragen und der maximale Strom auf einen für die Elektronik ungefährlichen Wert begrenzt werden (ca. 0,5 A). Erfahrungen zeigen, dass Ersatzisolationswiderstände von REMo größer als 100 Ohm, RESo größer als 1.000 Ohm erreichbar sind.

(3) Die Praxis zeigt ferner, dass beim Messen mit beiden gleichzeitig geöffneten Laschen der Blinktakt der Elektronik zu schwankenden, nicht eindeutigen Messwerten führen kann, vor allem an den Klemmen E - S. In diesem Falle soll bei der Messung an den Klemmen E - S die Lasche E - M geschlossen gehalten werden und umgekehrt.

(4) Der Anschluss von Peripheriegeräten ohne sicherheitstechnische Bedeutung (wie Uhren, Schnellstörschreiber, Rechner) an die 24 V-Anlage wird zu einem niedrigeren Wert des Ersatzisolationswiderstandes führen, auch wenn der reelle, nicht messbare Widerstand, zum Beispiel RM, wesentlich höher liegt. Daher soll bei niedrigeren Ersatzwiderständen als in Absatz 2 aufgeführt, die Messung der Ersatzisolationswiderstände ohne angeschlossene Peripherie durchgeführt oder bestehende Erdschlüsse einzeln bewertet werden.

Bild B-1: Vereinfachte Schaltung der 24 V-Anlage mit ZEP

Bild B-2: Anschluss des Messkreises an die Schaltung vom Bild B-1

Bild B-3: Messergebnis beim Anschluss des Messkreises an Klemmen E - M

Bild B-4: Messergebnis beim Anschluss des Messkreises an Klemmen E - S

.

Bestimmungen, auf die in dieser Regel verwiesen wird Anhang C

(Die Verweise beziehen sich nur auf die in diesem Anhang angegebene Fassung. Darin enthaltene Zitate von Bestimmungen beziehen sich jeweils auf die Fassung, die vorlag, als die verweisende Bestimmung aufgestellt oder ausgegeben wurde.)

AtG   Gesetz über die friedliche Verwendung der Kernenergie und den Schutz gegen ihre Gefahren (Atomgesetz - AtG) vom 23. Dezember 1959, Neufassung vom 15. Juli 1985 (BGBl. I 1985, Nr. 41, S. 1565), zuletzt geändert durch Artikel 1 des Gesetzes vom 17. März 2009 (BGBl. I 2009, Nr. 15, S. 556)
StrlSchV   Verordnung über den Schutz vor Schäden durch ionisierende Strahlen (Strahlenschutzverordnung - StrlSchV) vom 20. Juli 2001 (BGBl. I 2001, Nr. 38, S. 1714), zuletzt geändert durch Artikel 2 des Gesetzes vom 29. August 2008 (BGBl. I 2008, Nr. 40)
KTA 1202 (2009-11) Anforderungen an das Prüfhandbuch
KTA 1401 (1996-06) Allgemeine Forderungen an die Qualitätssicherung
KTA 1404 (2001-06) Dokumentation beim Bau und Betrieb von Kernkraftwerken
KTA 3501 (1985-06) Reaktorschutzsystem und Überwachungseinrichtungen des Sicherheitssystems

.

Weitere relevante Normen Anhang D
(informativ)


DIN 1045
(2001-07)
Tragwerke aus Beton, Stahlbeton und Spannbeton
- Teil 1: Bemessung und Konstruktion wg. Betondeckung
DIN EN ISO 17660 (2006-12) Schweißen - Schweißen von Betonstahl
- Teil 1: Tragende Schweißverbindungen, Teil 2: Nichttragende Schweißverbindungen
DIN EN 61000-4-4 (2005-07)
(VDE 0847-4-4)
Elektromagnetische Verträglichkeit (EMV)
- Teil 4-4: Prüf- und Messverfahren -
Prüfung der Störfestigkeit gegen schnelle transiente elektrische Störgrößen/Burst
DIN EN 61000-4-5 (2007-06)
(VDE 0847-4-5)
Elektromagnetische Verträglichkeit (EMV)
- Teil 4-5: Prüf- und Messverfahren -
Prüfung der Störfestigkeit gegen Stoßspannungen
DIN EN 50164-1
(2007-03)
(VDE 0185-201)
Blitzschutzbauteile
- Teil 1: Anforderungen an Verbindungsbauteile;
Deutsche Fassung EN 50164-1:1999 + A1:2006
DIN EN 50164-2
(2007-03)
(VDE 0185-202)
Blitzschutzbauteile
- Teil 2: Anforderungen an Leitungen und Erder;
Deutsche Fassung EN 50164-2:2002 + A1:2006
DIN EN 50164-3
(2007-03)
(VDE 0185-203)
Blitzschutzbauteile
- Teil 3: Anforderungen an Trennfunkenstrecken;
Deutsche Fassung EN 50164-3:2006
DIN EN 62305-1
(2006-10)
(VDE 0185-305-1)
Blitzschutz
- Teil 1: Allgemeine Grundlagen
DIN EN 62305-2
(2007-01)
(VDE 0185-305-2)
Blitzschutz
- Teil 2: Risiko-Management: Abschätzung des Schadensrisikos für bauliche Anlagen
DIN EN 62305-2 Bbl 1 (2007-01)
(VDE 0185-305-2 Bbl 1)
Blitzschutz
- Teil 2: Risiko-Management: Abschätzung des Schadensrisikos für bauliche Anlagen - Beiblatt 1: Blitzgefährdung in Deutschland
DIN EN 62305-2 Bbl 2 (2007-02)
(VDE 0185-305-2 Bbl 2)
Blitzschutz
- Teil 2: Risiko-Management : Abschätzung des Schadensrisikos für bauliche Anlagen - Beiblatt 2: Berechnungshilfe zur Abschätzung des Schadensrisikos für bauliche Anlagen
DIN EN 62305-3
(2006-10)
(VDE 0185-305-3)
Blitzschutz - Teil 3: Schutz von baulichen Anlagen und Personen
DIN EN 62305-3 Bbl 1 (2007-01)
(VDE 0185-305-3 Bbl 1)
Blitzschutz
- Teil 3: Schutz von baulichen Anlagen und Personen -
Beiblatt 1: Zusätzliche Informationen zur Anwendung der DIN EN 62305-3
(VDE 0185-305-3)
DIN EN 62305-3 Bbl 2 (2007-01)
(VDE 0185-305-3 Bbl 2)
Blitzschutz
- Teil 3: Schutz von baulichen Anlagen und Personen -
Beiblatt 2: Zusätzliche Informationen für besondere bauliche Anlagen
DIN EN 62305-3 Bbl 3 (2007-01)
(VDE 0185-305-3 Bbl 3)
Blitzschutz
- Teil 3: Schutz von baulichen Anlagen und Personen -
Beiblatt 3: Zusätzliche Informationen für die Prüfung und Wartung von Blitzschutzsystemen
DIN EN 62305-4 (2006-10)
(VDE 0185-305-4)
Blitzschutz
- Teil 4: Elektrische und elektronische Systeme in baulichen Anlagen
DIN VDE 0100-410 (2007-06) Errichten von Starkstromanlagen mit Nennspannungen bis 1.000 V - Schutzmaßnahmen; Schutz gegen elektrischen Schlag
DIN VDE 0100-540 (2007-06) Errichten von Starkstromanlagen mit Nennspannungen bis 1.000 V - Auswahl und Errichtung elektrischer Betriebsmittel - Erdung, Schutzleiter, Potentialausgleichsleiter
DIN VDE 0101 (2000-01) Starkstromanlagen mit Nennwechselspannungen über 1 kV
DIN VDE 0141 (2000-01) Erdungen für spezielle Starkstromanlagen mit Nennspannungen über 1 kV

.

Literatur Anhang E
(informativ)


[ 1] Heidler, F.; Wiesinger, J.
Studie zur Ermittlung der Blitzstromaufteilung auf erdverlegte Leitungssysteme. Universität der Bundeswehr München, Institut für Elektrische Energieversorgung, Neubiberg, 1997.
[ 2] Zischank, W.; Wiesinger, J.
Induzierte Spannungen auf Leittechnik-Kabeln in bewehrten Kabelkanälen infolge von Blitz-Stoßströmen (Versuchsbericht). Universität der Bundeswehr München, Institut für Elektrische Energieversorgung, Neubiberg, 1996.
[ 3] Frentzel, R.; Kern, A.; Seevers, M.
Schirmdämpfungsmessungen an Gebäuden im blitzfrequenten Bereich - Messergebnisse und Unterschiede zu Berechnungsergebnissen nach VDE V 0185 Teil 4. 6. VDE/ABB-Blitzschutztagung, Neu-Ulm, 2005.
[ 4] Zischank W.; Heidler, F.; Wiesinger, J.; Kern, A.; Seevers, M.; Metwally, I.
Laboratory simulation of direct lightning strokes to a modelled building - measurement of magnetic fields and induced voltages". 26th International Conference on Lightning Protection (ICLP), Krakau(PL), 2002.
[ 5] Zischank, W.; Heidler, F.; Wiesinger, J.; Stimper, K.; Kern, A.; Seevers, M.

Magnetic Fields and Induced Voltages inside LPZ 1 measured at a 1:6 Scale Model Building. 27th

International Conference on Lightning Protection (ICLP), Avignon (FR), 2004.

[ 6] Kern, A.; Heidler, F.; Seevers, M.; Zischank, W.
Magnetic Fields and Induced Voltages in case of a Direct Strike - Comparison of Results obtained from Measurements at a Scaled Building to those of IEC 62305-4. 27th International Conference on Lightning Protection (ICLP), Avignon (FR), 2004.


ENDE

umwelt-online - Demo-Version


(Stand: 13.06.2024)

Alle vollständigen Texte in der aktuellen Fassung im Jahresabonnement
Nutzungsgebühr: ab 105.- € netto

(derzeit ca. 7200 Titel s.Übersicht - keine Unterteilung in Fachbereiche)

Preise & Bestellung

Die Zugangskennung wird kurzfristig übermittelt

? Fragen ?
Abonnentenzugang/Volltextversion