![]() |
zurück | ![]() |
8.5.2 Weitere Sicherheitseinrichtungen
8.6 Kontrollarbeiten
Das Tankfahrzeug ist vor jedem Schichtbeginn vom TKW- Fahrer zu prüfen.
Es gelten die "Grundsätze für die Prüfung von Fahrzeugen durch Fahrpersonal" (ZH 1/282.1).
Darüber hinaus sind folgende für Tankfahrzeuge spezifische Prüfungen durchzuführen:
Unfallverhütungsvorschrift Fahrzeuge (BGV D29) Mängel an Fahrzeugen
§ 36. Der Fahrer hat festgestellte Mängel dem zuständigen Aufsichtsführenden, bei Fahrerwechsel auch dem Ablöser, mitzuteilen. Bei Mängeln, die die Betriebssicherheit gefährden, hat der Fahrer den Betrieb einzustellen.
9 Einrichtungen der Füllstelle (Beladestelle)
9.1 Allgemeines
Da Füllstellen unterschiedlich gebaut sind, kann hier nur eine grundsätzliche Beschreibung gegeben werden.
Man unterscheidet zwei grundsätzlich unterschiedliche Befüllarten voneinander:
Diese erfolgt mit Gasrückführung.
9.2 Oben- und Untenbefüllung
Größere Beladestellen besitzen in der Regel überdachte Füllanlagen, in denen sowohl die stationären Bühnen für top Loading als auch die Stationen für Bottom Loading untergebracht sind. Die Betriebs- und Sicherheitseinrichtungen sind entsprechend der Befüllungsart platziert.
9.2.1 TKW- Erdung
Die TKW-Erdung besteht aus einem kunststoffummantelten Kabel mit Erdungsstecker oder -zange. Sie ist - von der Fahrbahn aus gut erreichbar - meist seitlich an der Befüllanlage angebracht. Durch zusätzliche Schaltungen kann erreicht werden, dass erst nach einwandfreier Erdung des Fahrzeugtanks beispielsweise
Damit soll sichergestellt werden, dass der TKW vor Füllbeginn einwandfrei geerdet ist und die Anlage in einwandfreiem Zustand verlassen wird.
9.2.2 Notausschalter für Pumpen
Überall dort, wo die Füllpumpen nicht direkt von der Bühne aus geschaltet werden können, sind auffallend gekennzeichnete Notausschalter vorhanden. Damit kann im Gefahrfalle die Förderung des Produktes schnell unterbrochen werden. Bei vielen Befüllanlagen ist mit dem Betätigen des Betriebsfeuermelders gleichzeitig ein Abschalten der Füllpumpen verbunden.
9.2.3 Alarmeinrichtungen für Brandmeldung
Je früher ein Brand bekämpft wird, um so eher ist es möglich, ihn noch im Entstehen zu löschen. Daher besitzen vor allem größere Füllanlagen Alarmmelder, die auffallend rot gekennzeichnet sind. Über sie wird die für den Brandschutz verantwortliche Stelle verständigt und die Fahrzeuge an der Füllanlage selbst werden gewarnt.
9.2.4 Von Hand einsetzbare Brandbekämpfungsmittel
An jeder Füllstelle sind Pulverlöscher in entsprechender Anzahl, auch Löschdecken und Behälter mit Löschsand und Schaufel vorhanden.
9.2.5 Automatische Feuerlöschanlagen
Einige Beladestellen sind mit fest installierten Feuerlöschanlagen ausgerüstet. Dabei kann es sich sowohl um Schaumlöschanlagen als auch um Berieselungsanlagen zur Minderung der Brandintensität bis zum Beginn des Löscheinsatzes handeln.
Die Auslösung erfolgt entweder über automatische Melder oder manuell, teilweise direkt durch die Alarmtaster.
9.3 Automatisierte Fülleinrichtungen
Es gibt Füllstellen, die hinsichtlich der Datenverarbeitung teil- bzw. vollautomatisiert sind. Der TKW-Fahrer muss sich hier mit einer Identitätskarte und einer bestimmten Nummer zur Mengenfreigabe ausweisen, und er erhält nach Ladeende den Lieferschein automatisch Ausgedruckt.
Die Bedienung dieser Anlagen erfolgt so unterschiedlich, dass sie den Rahmen dieser Sicherheitsregeln sprengen würde und deshalb eine Einweisung an den einzelnen Plätzen erforderlich macht.
9.4 Messeinrichtungen
Eine Flüssigkeit kann entweder nach ihrer Menge (Volumen) oder nach ihrem Gewicht (Masse) gemessen werden. Sehr zähflüssige und heiße Produkte, wie z.B. Bitumen, werden meist verwogen. Schweres Heizöl kann nach beiden Verfahren gemessen werden.
Volumenmesser und Waagen sind geeicht. Ihre Messfehler müssen innerhalb bestimmter Grenzen liegen. Diese Werte werden in festgelegten Zeiträumen überprüft.
9.5 Obenbefüllung
Die Obenbefüllung über den offenen Dom ist bis vor einiger Zeit die allein übliche Methode der TKW -Befüllung gewesen.
Um bei der Verladung von a I-Produkten die entweichenden Gase aus Immissionsschutzgründen auffangen zu können, ist die Obenbefüllung mit Gasrückführung entwickelt worden.
9.5.1 Obenbefüllung ohne Gasrückführung
Bei der Befüllung über dem offenen Dom entweichen die Gase und Dämpfe, die sich in der Kammer befinden, ins Freie. Sie wird in zunehmendem Maße nur noch bei a II- und a III-Produkten angewandt. Die verwendeten Füllarme bestehen meist aus Nichteisenmetall mit Nennweiten von 65 bis 150 mm. Als Absperrung dient überwiegend ein Schnellschlussventil, das über Zugleinen oder Zughebel betätigt und während des Beladevorganges von Hand in geöffneter Stellung gehalten wird. Wird die Zugleine oder der Zughebel losgelassen, schließt das Ventil automatisch; dadurch wird der Produktfluss unterbrochen. Diese Ventile schließen schnell, aber nicht schlagartig. Der Flüssigkeitsnachlauf beträgt etwa 50 bis 150 l bei Füllarm-Nennweiten von 65 bis 150 mm. Durch rechtzeitiges Schließen wird eine Überfüllung verhindert.
Die üblichen Füllleistungen liegen bei 400 bis 3000 Litern pro Minute. Dem entsprechen Nennweiten (NW) der Füllarme und -schläuche von 65 bis 150 mm (NW 65 bis NW 150).
Teleskoparme
Der Ausleger besteht aus zwei ineinander verschiebbaren Rohren (Teleskop). Der Füllarm kann damit auf den jeweiligen Abstand des Tankdomes von der Bühne eingestellt werden.

Scherenarme
Hier ist der Ausleger durch ein Mittelgelenk unterteilt. Damit kann der Arm scherenartig auf die erforderliche Reichweite ausgeklappt werden.
Boomlader
Das sind Füllarme mit besonders großer Reichweite. Dadurch brauchen auch die größten TKW nicht mehr vorgezogen zu werden, wenn die äußeren Kammern zu befüllen sind.

Füllschläuche
Füllschläuche sind heute nicht mehr gebräuchlich. Sollten sie in Einzelfällen noch einmal angetroffen werden, muss durch ein an den Schlauch angeschlossenes oder in die TKW- Kammern fest eingebautes Füllrohr sichergestellt werden, dass durch Bodenkontakt kein Produkt in der Kammer versprüht (stat. Aufladung).
Sicherheit
Stationäre Absturzsicherungen sollten verhindern, dass Personen beim Befüllen vom TKW abstürzen; sie müssen daher mindestens die gleiche Sicherheit wie fahrzeugeigene Geländer bieten. Sofern Bühnen angefahren werden, an denen keine geeigneten stationären Absturzsicherungen vorhanden sind oder bei denen vorhandene stationäre Absturzsicherungen keinen gleichwertigen Schutz wie fahrzeugeigene Absturzsicherungen bieten (beispielsweise bei Fahrzeugen mit niedriger Bauhöhe oder bei zu großem seitlichen Abstand) müssen die fahrzeugeigenen Geländer benutzt werden.
9.5.2 Obenbefüllung mit Gasrückführung
Füllanlagen zur Obenbefüllung mit Gasabsaugung haben den Zweck, auch bei Tankfahrzeugen, die noch nicht mit den Einrichtungen für Bottom Loading ausgerüstet sind, bei der Verladung von a I-Produkten die Gasrückführung zu einer Dämpferückgewinnungsanlage (VRU) zu ermöglichen.
Das Füllgerüst ist wie bei der Obenbefüllung ohne Gasabsaugung gebaut, jedoch unterscheidet sich der Füllarm.
Der Füllarm hat ein innenliegendes Rohr für das zu verladende Produkt. Ein außenliegendes Rohr dient der Aufnahme des rückzuführenden Gases. Dieses Rohr hat unten eine Manschette, die auf den Domrand gedrückt wird, so dass der Dom verschlossen und die Gase von dem außenliegenden Rohr aufgenommen werden. Weiter oben geht das außenliegende Rohr in ein paralleles flexibles Rohr über, das zur Dämpferückgewinnungsanlage führt.
Die Befüllung wird erst dann freigegeben, wenn durch einen Kontaktschalter unten am Füllrohr der Bodenkontakt in der Kammer bestätigt wird und die Manschette am Domrand anliegt.
Weil der Füllstand der Kammer nicht einsehbar ist, muss die zu ladende Menge in einer Mengenvoreinstellung eingegeben werden. Diese beendet den Füllvorgang nach Erreichen der Menge selbsttätig. Die Überfüllsicherung hat den Fühler unterhalb der Manschette.
Wegen des großen Gewichtes eines solchen Füllarmes kann dieser nur pneumatisch gesenkt und gehoben werden.
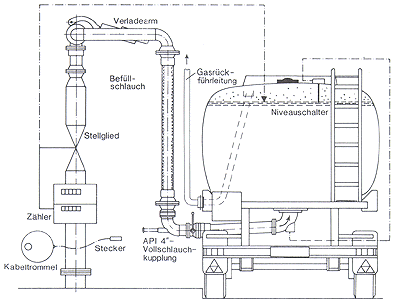
9.6 Untenbefüllung
Bei den Anlagen zur Untenbefüllung ist für jedes der bis zu fünf Produkte ein schwenkbares flexibles Füllrohr mit einer Trockenkupplung nach API- Norm 1004 vorhanden. Dabei muss der TKW eine Gegenkupplung besitzen.
Weiterhin ist eine Gasrückführleitung installiert, mit der die bei der TKW -Befüllung der Kammer entweichenden Gase zur Dämpferückgewinnungsanlage (VRU) geleitet werden.
Die Messeinrichtungen haben eine Mengenvoreinstellung, die die Beladung beim Erreichen der eingestellten Menge beendet.
Um sicherzustellen, dass nur aus der Station gefahren wird, wenn alle Füllrohre und die Gasrückführleitung in ihre Ruheposition gebracht wurden sowie die Erde gelöst wurde, sind die Plätze mit einer Sicherheitseinrichtung versehen, die erst dann vom System geöffnet wird, wenn die vorbezeichneten Kriterien erfüllt sind.

10 Lagerung der Produkte
10.1 Allgemeines
Lagereinrichtungen für Mineralöle sind so beschaffen, dass bei sachgerechter Handhabung ein gefahrloses Befüllen, Lagern und Entleeren gewährleistet ist.
Dadurch sollen verhindert werden:
10.2 Unterirdische Tanks
Zylindrische Tanks gibt es in ein- oder doppelwandiger Ausführung. Einwandige Tanks werden durch Leckschutzauskleidung (Innenblase) in Verbindung mit Leckanzeige oder Innenbeschichtung gegen Auslaufen gesichert.
Bei den Doppelwandtanks ist der Raum zwischen Innen- und Außenmantel mit einer Kontrollflüssigkeit gefüllt. Diese lässt ein Leckwerden des Innen- und Außenmantels erkennen und meldet die Störung über ein Warngerät optisch und akustisch.
Gegen Korrosion von außen können die Tanks durch eine geeignete Außenisolierung oder durch kathodische Korrosionsschutzanlagen geschützt werden.
Die Tanks sind mit einem Dom ausgerüstet, damit sie zugänglich sind. Diese Öffnung, die eine lichte Weite von mindestens 500 mm haben muss, ist mit einem Deckel verschlossen, der normalerweise die für den Betrieb notwendigen Armaturen aufnimmt.
10.3 Oberirdische Tanks
Mit Tankkraftfahrzeugen werden üblicherweise kleinere Tankanlagen versorgt. Hier sind zylindrische, liegende Stahltanks in ein- oder doppelwandiger Ausführung am gebräuchlichsten. Einwandige oberirdische Tanks benötigen einen Auffangraum. Die Anschlussarmaturen befinden sich entweder auf dem Domdeckel oder in einem seitlich angebrachten Armaturenkasten.
Derartige Tanks können auch in Kellerräumen aufgestellt und betrieben werden.
Bei großen Tanklagern sind zylindrische stehende Tanks mit Flachböden, für die ein Auffangraum erforderlich ist, üblich.
10.4 Batterie- und Haushaltstanks
Batterie- und Haushaltstanks werden in verschiedenen Formen aus Stahl und Kunststoff gefertigt. Sie sind nur für die Lagerung von Heizöl zugelassen. Es können mehrere dieser Tanks durch Rohrleitungen miteinander verbunden und zu einer Batterie zusammengefasst werden.

10.5 Armaturen, Rohrleitungen und Zubehör
10.6 Besonderheiten bei heißen Produkten
Schweres Heizöl und Bitumen werden meist in einwandigen, isolierten und ggf. aufheizbaren Stahltanks gelagert. Für Bitumen werden gelegentlich auch offene Behälter aus unterschiedlichen Materialien verwendet.
Soweit hier die Füllanschlüsse nicht fest installiert sind, werden Einrichtungen verwendet, die ein Festlegen des Füllschlauches während des Entladens sicherstellen.
11 Gesundheitsschädliche Wirkungen der Mineralölprodukte
Mineralölprodukte können je nach Art Gesundheitsschäden verursachen.
Die unmittelbare Aufnahme dieser Stoffe ist möglich über:
Zur Vermeidung der mittelbaren Aufnahme dieser Stoffe darf beim Umgang hiermit keine Nahrungsaufnahme erfolgen.
11.1 Atemwege
Bei einer akuten Vergiftung (Aufnahme größerer Mengen von Dämpfen) kann es zu narkoseähnlichen Zuständen mit Krämpfen, Bewusstseinstrübung, Atemlähmung und Herzstillstand kommen.
Bei chronischer Vergiftung können, je nach Art des Produktes, Leber- und Nierenschäden oder auch Blutbildveränderungen mit erhöhter Blutungsneigung (Benzol) und schweren Störungen der Blutbildung (Leukämie) entstehen.
11.2 Haut
Bei längerem oder wiederholtem Hautkontakt werden das Hautfett und die sog. wasserlöslichen Inhaltsstoffe aus der Hornschicht der Oberhaut herausgelöst. Die Hautoberfläche wird rauh, die Elastizität nimmt ab. Die Haut kann jucken, sich röten, brennen sowie Schuppen oder Bläschen bilden. Es entstehen kleinste Hautrisse, die das Eindringen von schädlichen Stoffen oder Bakterien begünstigen und damit die Widerstandsfähigkeit gegen äußere Einflüsse herabsetzen. Es kann dann zu krankhaften Veränderungen in der Haut wie Kontaktekzem - siehe auch Merkblatt für den Hautschutz (ZH 1/145) - kommen.
Bei Heißprodukten (beispielsweise Bitumen) besteht Verbrennungsgefahr.
Merke: Auch bei Hautkontakt können Gesundheitsschäden wie unter "Atemwege" beschrieben eintreten, wenn das Produkt (z.B. Benzol) durch die Haut dringt.
11.3 Verdauungswege
(Nur bei Verwechslung oder Unglücksfällen)
Reizwirkung auf Schleimhäute des Mundes, der Speiseröhre und des Magens mit Brechreiz und Erbrechen, außerdem beispielsweise narkoseähnlicher Zustand wie im Abschnitt "Atemwege" beschrieben möglich.
12 Unfallmerkblätter
12.1 Flammpunkt unter 21 °C
12.2 Flammpunkt zwischen 21 °C und 55 °C
12.3 Flammpunkt über 55 °C bis 100 °C
12.4 Benzol, Flammpunkt unter 21 °C
| Bezugsquellen |
1. Unfallverhütungsvorschriften (UVV)
"Grundsätze der Prävention" (ab 1/2004) (BGV A1)
Fahrzeuge (BGV D29)
Verdichter (VBG 16)
Leitern und Tritte (BGV D36)
Erste Hilfe (BGV A5)
2. Berufsgenossenschaftlichen Richtlinien, Sicherheitsregeln und Merkblätter
Merkblatt Reinigen von Behältern (ZH 1/79)
Schutzkleidungs-Merkblatt (BGR 118)
Erste Hilfe im Betrieb (BGI 509)
Anleitung zur Ersten Hilfe bei Unfällen (BGI 510)
Merkblatt für den Hautschutz (ZH 1/145)
Schutzschuh-Merkblatt (BGR 209)
Richtlinien für die Vermeidung von Zündgefahren infolge elektrostatischer Aufladung (BGR 132)
Sicheres Kuppeln von Nutzfahrzeugen (BGI 599)
Grundsätze für die Prüfung von Fahrzeugen durch Fahrpersonal (ZH 1/282.1)
Grundsätze für die Prüfung von Fahrzeugen durch Sachkundige (ZH 1/282.2)
Richtlinien für Flüssigkeitsstrahler (ZH 1/406)
Sicherheitsregeln für die Fahrzeug-Instandhaltung (BGR 157)
Merkblatt über den Gesundheitsschutz beim Umgang mit Vergaserkraftstoffen (ZH 1/468)
![]() |
ENDE | ![]() |
(Stand: 16.06.2018)
Alle vollständigen Texte in der aktuellen Fassung im Jahresabonnement
Nutzungsgebühr: ab 105.- € netto
(derzeit ca. 7200 Titel s.Übersicht - keine Unterteilung in Fachbereiche)
Die Zugangskennung wird kurzfristig übermittelt
? Fragen ?
Abonnentenzugang/Volltextversion