![]() |
zurück | ![]() |
| Anforderungen an die Rutschhemmung von Bodenbelägen in Arbeitsbereichen und betrieblichen Verkehrswegen | Anhang 1 |
Der Anwendungsbereich dieser BG-Regel beschränkt sich auf solche Arbeitsräume, Arbeitsbereiche und Verkehrswege, deren Fußböden nutzungsbedingt mit gleitfördernden Medien in Kontakt kommen, wo also ein Risiko des Ausrutschens zu vermuten ist.
Der mit dem Begehungsverfahren (Schiefe Ebene) ermittelte mittlere Neigungswinkel ist für die Einordnung eines Bodenbelages in eine von fünf Bewertungsgruppen maßgebend. Die Bewertungsgruppe dient als Maßstab für den Grad der Rutschhemmung, wobei Bodenbeläge mit der Bewertungsgruppe R 9 den geringsten und mit Bewertungsgruppe R 13 den höchsten Anforderungen an die Rutschhemmung genügen. Die jeweils angegebene Bewertungsgruppe stellt einen Richtwert dar, von dem im Einzelfall unter Berücksichtigung der vorhandenen oder der zu erwartenden betrieblichen Verhältnisse abgewichen werden kann.
Die Arbeitsräume und -bereiche, in denen wegen des Anfalls besonders gleitfördernder Stoffe ein Verdrängungsraum unterhalb der Gehebene erforderlich ist, sind durch ein "V" in Verbindung mit der Kennzahl für das Mindestvolumen des Verdrängungsraums gekennzeichnet.
Die in der nachstehenden Tabelle vorgenommene Zuordnung von Arbeitsräumen und Arbeitsbereichen zu Bewertungsgruppen erhebt nicht den Anspruch auf Vollständigkeit. Nicht aufgeführte Arbeitsräume und Arbeitsbereiche sind, entsprechend der in ihnen zu erwartenden Rutschgefahr (z.B. je nach Häufigkeit, Menge und Art der auftretenden gleitfördernden Stoffe(n), in Analogie zur Tabelle einer Bewertungsgruppe zu zuordnen.
Die Messergebnisse der Prüfmethode zur Bestimmung der Rutschhemmung von Bodenbelägen im Betriebszustand nach DIN 51131 (Gleitreibungskoeffizient) können nicht direkt mit den Messergebnissen der Prüfung nach DIN 51130 (Neigungswinkel auf der Schiefen Ebene) verglichen werden. Der Gleitreibungskoeffizient kann deshalb nicht zur Einordnung in eine R-Gruppe herangezogen werden.
| Num- mer |
Arbeitsräume, -bereiche und betriebliche Verkehrswege | Bewertungs- gruppe der Rutschgefahr (R-Gruppe) |
Verdrängungs- raum mit Kennzahl für das Mindestvolumen |
| 0 | Allgemeine Arbeitsräume und -bereiche 1 | ||
| 0.1 | Eingangsbereiche 2 | R 9 | |
| 0.2 | Eingangsbereiche, außen | R 11 oder R 10 | V 4 |
| 0.3 | Treppen, innen 3 | R 9 | |
| 0.4 | Außentreppen | R 11 oder R 10 | V 4 |
| 0.5 | Sanitärräume (z.B. Toiletten, Umkleide- und Waschräume) | R 10 | . |
| Pausenräume (z.B. Aufenthaltsraum, Betriebskantinen) | R 9 | ||
| Sanitätsräume (z.B. medizinische Behandlungsräume) | R 9 | ||
| 1 | Herstellung von Margarine, Speisefett, Speiseöl | ||
| 1.1 | Fettschmelzen | R 13 | V 6 |
| 1.2 | Speiseölraffinerie | R 13 | V 4 |
| 1.3 | Herstellung und Verpackung von Margarine | R 12 | |
| 1.4 | Herstellung und Verpackung von Speisefett, Abfüllen von Speiseöl | R 12 | |
| 2 | Milchbe- und Verarbeitung, Käseherstellung | ||
| 2.1 | Frischmilchverarbeitung einschließlich Butterei | R 12 | |
| 2.2 | Käsefertigung, -lagerung und Verpackung | R 11 | |
| 2.3 | Speiseeisfabrikation | R 12 | |
| 3 | Schokoladen- und Süßwarenherstellung | ||
| 3.1 | Zuckerkocherei | R 12 | |
| 3.2 | Kakaoherstellung | R 12 | |
| 3.3 | Rohmassenherstellung | R 11 | |
| 3.4 | Eintafelei, Hohlkörper- und Pralinenfabrikation | R 11 | |
| 4 | Herstellung von Backwaren (Bäckereien, Konditoreien, Dauerbackwaren-Herstellung) | ||
| 4.1 | Teigbereitung | R 11 | |
| 4.2 | Räume, in denen vorwiegend Fette oder flüssige Massen verarbeitet werden | R 12 | |
| 4.3 | Spülräume | R 12 | V 4 |
| 5 | Schlachtung, Fleischbearbeitung, Fleischverarbeitung | ||
| 5.1 | Schlachthaus | R 13 | V 10 |
| 5.2 | Kuttlerraum, Darmschleimerei | R 13 | V 10 |
| 5.3 | Fleischzerlegung | R 13 | V 8 |
| 5.4 | Wurstküche | R 13 | V 8 |
| 5.5 | Kochwurstabteilung | R 13 | V 8 |
| 5.6 | Rohwurstabteilung | R 13 | V 6 |
| 5.7 | Wursttrockenraum | R 12 | |
| 5.8 | Darmlager | R 12 | |
| 5.9 | Pökelei, Räucherei | R 12 | |
| 5.10 | Geflügelverarbeitung | R 12 | V 6 |
| 5.11 | Aufschnitt- und Verpackungsabteilung | R 12 | . |
| 5.12 | Handwerksbetrieb mit Verkauf | R 12 | V 8 4 |
| 6 | Be- und Verarbeitung von Fisch, Feinkostherstellung | ||
| 6.1 | Be- und Verarbeitung von Fisch | R 13 | V 10 |
| 6.2 | Feinkostherstellung | R 13 | V 6 |
| 6.3 | Mayonnaiseherstellung | R 13 | V 4 |
| 7 | Gemüsebe- und -verarbeitung | ||
| 7.1 | Sauerkrautherstellung | R 13 | V 6 |
| 7.2 | Gemüsekonservenherstellung | R 13 | V 6 |
| 7.3 | Sterilisierräume | R 11 | . |
| 7.4 | Räume, in denen Gemüse für die Verarbeitung vorbereitet wird | R 12 | V 4 |
| 8 | Nassbereiche bei der Nahrungsmittel- und Getränkeherstellung (soweit nicht besonders erwähnt) |
||
| 8.1 | Lagerkeller, Gärkeller | R 10 | . |
| 8.2 | Getränkeabfüllung, Fruchtsaftherstellung | R 11 | |
| 9 | Küchen, Speiseräume | ||
| 9.1 | Gastronomische Küchen (Gaststättenküchen, Hotelküchen) | ||
| 9.1.1 | bis 100 Gedecke je Tag | R 11 | V 4 |
| 9.1.2 | über 100 Gedecke je Tag | R 12 | V 4 |
| 9.2 | Küchen für Gemeinschaftsverpflegung in Heimen, Schulen, Kindertagesstätten, Sanatorien | R 11 | |
| 9.3 | Küchen für Gemeinschaftsverpflegung in Krankenhäusern, Kliniken | R 12 | |
| 9.4 | Großküchen für Gemeinschaftsverpflegung in Mensen, Kantinen, Fernküchen | R 12 | V 4 |
| 9.5 | Aufbereitungsküchen (Fast-Food-Küchen, Imbissbetriebe) | R 12 | V 4 |
| 9.6 | Auftau- und Anwärmküchen | R 10 | |
| 9.7 | Kaffee- und Teeküchen, Küchen in Hotels-Garni, Stationsküchen | R 10 | |
| 9.8 | Spülräume | ||
| 9.8.1 | Spülräume zu 9.1, 9.4, 9.5 | R 12 | V 4 |
| 9.8.2 | Spülräume zu 9.2 | R 11 | |
| 9.8.3 | Spülräume zu 9.3 | R 12 | |
| 9.9 | Speiseräume, Gasträume, Kantinen einschließlich Bedienungs- und Serviergängen | R 9 | |
| 10 | Kühlräume, Tiefkühlräume, Kühlhäuser, Tiefkühlhäuser | ||
| 10.1 | für unverpackte Ware | R 12 | |
| 10.2 | für verpackte Ware | R 11 | |
| 11 | Verkaufsstellen, Verkaufsräume | ||
| 11.1 | Warenannahme Fleisch | ||
| 11.1.1 | für unverpackte Ware | R 11 | |
| 11.1.2 | für verpackte Ware | R 10 | |
| 11.2 | Warenannahme Fisch | R 11 | |
| 11.3 | Bedienungsgang für Fleisch und Wurst | R 11 | |
| 11.3.1 | für unverpackte Ware | R 11 | |
| 11.3.2 | für verpackte Ware | R 10 | |
| 11.4 | Bedienungsgang für Brot und Backwaren, unverpackte Ware | R 10 | |
| 11.5 | Bedienungsgang für Molkerei- und Feinkosterzeugnisse, unverpackte Verpackung | R 10 | |
| 11.6 | Bedienungsgang für Fisch | ||
| 11.6.1 | für unverpackte Ware | R 12 | |
| 11.6.2 | für verpackte Ware | R 11 | |
| 11.7 | Bedienungsgang, ausgenommen Nr. 11.3 bis 11.6 | R 9 | . |
| 11.8 | Fleischvorbereitungsraum | R 11 | . |
| 11.8.1 | zur Fleischbearbeitung, ausgenommen Nr. 5 | R 12 | V 8 |
| 11.8.2 | zur Fleischverarbeitung, ausgenommen Nr. 5 | R 11 | |
| 11.9 | Blumenbinderäume und -bereiche | R 11 | |
| 11.10 | Verkaufsbereiche mit ortsfesten Backöfen | ||
| 11.10.1 | zum Herstellen von Backwaren | R 11 | |
| 11.10.2 | zum Aufbacken vorgefertigter Backwaren | R 10 | |
| 11.11 | Verkaufsbereiche mit ortsfesten Friteusen oder ortsfesten Grillanlagen | R 12 | V 4 |
| 11.12 | Verkaufsräume, Kundenräume | R 9 | |
| 11.13 | Vorbereitungsbereiche für Lebensmittel zum SB-Verkauf | R 10 | |
| 11.14 | Kassenbereiche, Packbereiche | R 9 | |
| 11.15 | Bedienungsgänge für Brot und Backwaren, unverpackte Ware | R 11 oder R 10 | V 4 |
| 12 | Räume des Gesundheitsdienstes/der Wohlfahrtspflege | ||
| 12.1 | Desinfektionsräume (nass) | R 11 | |
| 12.2 | Vorreinigungsbereiche der Sterilisation | R 10 | |
| 12.3 | Fäkalienräume, Ausgussräume, unreine Pflegearbeitsräume | R 10 | |
| 12.4 | Sektionsräume | R 10 | |
| 12.5 | Räume für medizinische Bäder, Hydrotherapie, Fango-Aufbereitung | R 11 | |
| 12.6 | Waschräume von OP's, Gipsräume | R 10 | |
| 12.7 | Sanitäre Räume, Stationsbäder | R 10 | |
| 12.8 | Räume für medizinische Diagnostik und Therapie, Massageräume | R 9 | |
| 12.9 | OP-Räume | R 9 | |
| 12.10 | Stationen mit Krankenzimmern und Flure | R 9 | |
| 12.11 | Praxen der Medizin, Tageskliniken | R 9 | |
| 12.12 | Apotheken | R 9 | |
| 12.13 | Laborräume | R 9 | |
| 12.14 | Friseursalons | R 9 | |
| 13 | Wäscherei | ||
| 13.1 | Räume mit Durchlaufwaschmaschinen (Waschröhren) oder mit Waschschleudermaschinen | R 9 | |
| 13.2 | Räume mit Waschmaschinen, bei denen die Wäsche tropfnass entnommen wird | R 11 | |
| 13.3 | Räume zum Bügeln und Mangeln | R 9 | |
| 14 | Kraftfutterherstellung | ||
| 14.1 | Trockenfutterherstellung | R 11 | |
| 14.2 | Kraftfutterherstellung unter Verwendung von Fett und Wasser | R 11 | V 4 |
| 15 | Lederherstellung, Textilien | ||
| 15.1 | Wasserwerkstatt in Gerbereien | R 13 | |
| 15.2 | Räume mit Entfleischmaschinen | R 13 | V 10 |
| 15.3 | Räume mit Leimlederanfall | R 13 | V 10 |
| 15.4 | Fetträume für Dichtungsherstellung | R 12 | |
| 15.5 | Färbereien für Textilien | R 11 | |
| 16 | Lackierereien | ||
| 16.1 | Nassschleifbereiche | R 12 | V 10 |
| 17 | Keramische Industrie | ||
| 17.1 | Nassmühlen (Aufbereitung keramischer Rohstoffe) | R 11 | |
| 17.2 | Mischer Umgang mit Stoffen wie Teer, Pech, Graphit, Kunstharzen |
R 11 | V 6 |
| 17.3 | Pressen (Formgebung) Umgang mit Stoffen wie Teer, Pech, Graphit, Kunstharzen |
R 11 | V 6 |
| 17.4 | Gießbereiche | R 12 | |
| 17.5 | Glasierbereiche | R 12 | |
| 18 | Be- und Verarbeitung von Glas und Stein | ||
| 18.1 | Steinsägerei, Steinschleiferei | R 11 | |
| 18.2 | Glasformung von Hohlglas, Behälterglas, Bauglas | R 11 | |
| 18.3 | Schleifereibereiche für Hohlglas, Flachglas | R 11 | |
| 18.4 | Isolierglasfertigung Umgang mit Trockenmittel |
R 11 | V 6 |
| 18.5 | Verpackung, Versand von Flachglas Umgang mit Antihaftmittel |
R 11 | V 6 |
| 18.6 | Ätz- und Säurepolieranlagen für Glas | R 11 | |
| 19 | Betonwerke | ||
| 19.1 | Betonwaschplätze | R 11 | |
| 20 | Lagerräume | ||
| 20.1 | Lagerräume für Öle und Fette | R 12 | V 6 |
| 20.2 | Lagerräume für verpackte Lebensmittel | R 10 | |
| 20.3 | Lagerbereiche im Freien | R11 oder R 10 | V 4 |
| 21 | Chemische und thermische Behandlung von Eisen und Metall | ||
| 21.1 | Beizereien | R 12 | |
| 21.2 | Härtereien | R 12 | |
| 21.3 | Laborräume | R 11 | |
| 22 | Metallbe- und Verarbeitung, Metall-Werkstätten | ||
| 22.1 | Galvanisierräume | R 12 | |
| 22.2 | Graugußbearbeitung | R 11 | V 4 |
| 22.3 | Mechanische Bearbeitungsbereiche (z.B. Dreherei, Fräserei), Stanzerei, Presserei, Zieherei (Rohre, Drähte) und Bereiche mit erhöhter Öl-Schmiermittelbelastung | R 11 | V 4 |
| 22.4 | Teilereinigungsbereiche, Abdämpfbereiche | R 12 | |
| 23 | Werkstätten für Fahrzeug-Instandhaltung | ||
| 23.1 | Instandsetzungs- und Wartungsräume | R 11 | |
| 23.2 | Arbeits- und Prüfgrube | R 12 | V 4 |
| 23.3 | Waschhalle | R 11 | V 4 |
| 24 | Werkstätten für das Instandhalten von Luftfahrzeugen | ||
| 24.1 | Flugzeughallen | R 11 | |
| 24.2 | Werfthallen | R 12 | |
| 24.3 | Waschplätze | R 12 | V 4 |
| 25 | Abwasserbehandlungsanlagen | ||
| 25.1 | Pumpenräume | R 12 | |
| 25.2 | Räume für Schlammentwässerungsanlagen | R 12 | |
| 25.3 | Räume für Rechenanlagen | R 12 | |
| 25.4 | Standplätze von Arbeitsplätzen, Arbeitsbühnen und Wartungspodeste | R 12 | |
| 26 | Feuerwehrhäuser | ||
| 26.1 | Fahrzeug-Stellplätze | R 12 | |
| 26.2 | Räume für Schlauchpflegeeinrichtungen | R 12 | |
| 27 | Geldinstitute | ||
| 27.1 | Schalterräume | R 9 | |
| 28 | Parkbereiche | ||
| 28.1 | Garagen, Hoch- und Tiefgaragen ohne Witterungseinfluss 5 | R10 | |
| 28.2 | Garagen, Hoch- und Tiefgaragen mit Witterungseinfluss | R 11 oder R 10 | V 4 |
| 28.3 | Parkflächen im Freien | R 11 oder R 10 | V 4 |
| 29 | Schulen und Kindergärten | ||
| 29.1 | Eingangsbereiche, Flure, Pausenhallen | R 9 | |
| 29.2 | Klassenräume, Gruppenräume | R 9 | |
| 29.3 | Treppen | R 9 | |
| 29.4 | Toiletten, Waschräume | R 10 | |
| 29.5 | Lehrküchen in Schulen (siehe auch Nummer 9) |
R 10 | |
| 29.6. | Küchen in Kindergärten (siehe auch Nummer 9) |
R 10 | |
| 29.7 | Maschinenräume für Holzbearbeitung | R 10 | |
| 29.8 | Fachräume für Werken | R 10 | |
| 29.9 | Pausenhöfe | R 11 oder R 10 | V4 |
| 30 | Betriebliche Verkehrswege in Außenbereichen | ||
| 30.1 | Gehwege | R 11 oder R 10 | V 4 |
| 30.2 | Laderampen | ||
| 30.2.1 | überdacht | R 11 oder R 10 | V 4 |
| 30.2.2 | nicht überdacht | R 12 | |
| 30.3 | Schrägrampen (z.B. für Rollstühle, Ladebrücken) | R 12 | |
| 30.4.1 | Betankungsbereiche | R 12 | |
| 30.4.2 | Betankungsbereiche überdacht | R 11 |
| 1 | Für Fußböden in barfuß begangenen Nassbereichen siehe GUV-Information "Bodenbeläge für nassbelastete Barfußbereiche" (GUV-I 8527, bisherige GUV 26.17) |
| 2 | Eingangsbereiche gemäß Nummer 0.1 sind die Bereiche, die durch Eingänge direkt aus dem Freien betreten werden und in die Feuchtigkeit von außen hereingetragen werden kann (siehe auch vierter Absatz des Abschnittes 4, Verwendung von Schmutz- und Feuchtigkeitaufnehmer). Für anschließende Bereiche oder andere großflächige Räume ist Abschnitt 3.4 dieser BG-Regel zu berücksichtigen. |
| 3 | Treppen gemäß Nummer 0.3 sind diejenigen, auf die Feuchtigkeit von außen hineingetragen werden kann. Für anschließende Bereiche ist Abschnitt 3.4 dieser BG-Regel zu beachten. |
| 4 | Wurde überall ein einheitlicher Bodenbelag verlegt, kann der Verdrängungsraum auf Grund einer Gefährdungsanalyse (unter Berücksichtigung des Reinigungsverfahrens, der Arbeitsabläufe und des Anfalls an gleitfördernden Stoffe auf den Fußboden) bis auf V 4 gesenkt werden. |
| 5 | Die Fußgängerbereiche, die nicht von Rutschgefahr durch Witterungseinflüsse, wie Schlagregen oder eingeschleppte Nässe, betroffen sind. |
Anwendungsbeispiel
Der Arbeitsbereich Nummer 6.3, Mayonnaiseherstellung, wird mit der Bewertungsgruppe R 13 der Rutschgefahr bewertet. Die Größe des Mindestverdrängungsraums wird mit V 4, entsprechend mindestens 4 cm3/dm2, angegeben.
Bei der Auswahl eines geeigneten Bodenbelages können unter Berücksichtigung der betrieblichen Bedingungen des Einzelfalls Bodenbeläge in die Betrachtung einbezogen werden, denen nach Prüfung folgende Eigenschaften bescheinigt worden sind:
| Rutschhemmung | Verdrängungsraum |
| R 13 | V 4 |
| R 13 | V 6 |
| R 13 | V 8 |
| R 13 | V 10 |
| Verfahren zur Prüfung der Rutschhemmung von Bodenbelägen für Arbeitsräume und -bereiche mit Rutschgefahr | Anhang 2 |
Das Prüfverfahren ist in DIN 51130 "Prüfung von Bodenbelägen; Bestimmung der rutschhemmenden Eigenschaft; Arbeitsräume und Arbeitsbereiche mit erhöhter Rutschgefahr; Begehungsverfahren; Schiefe Ebene" geregelt.
1 Prüfpersonen, Prüfschuhe, Sicherheitseinrichtung
Die Prüfpersonen tragen Sicherheitsschuhe der Form B, Schuhausführung S1 nach DIN EN ISO 20345 Teile 1 und 2 mit der Laufsohle auf Nitrilkautschuk-Basis der Firma Lupos Schuhfabrik GmbH, Rheinstraße 12, D-41836 Hückelhoven, Typ "Picasso", mit einer Shore-A-Härte 72 ± 2 nach DIN 53505 und einer Profilierung nach Bild 1.
Die Prüfpersonen sind durch eine Sicherheitseinrichtung (Auffanggurt) gegen Sturz gesichert. Die Einrichtung behindert die Prüfpersonen beim Gehen auf dem zu prüfenden Belag nicht.
Bild 1: Sohle des Prüfschuhs
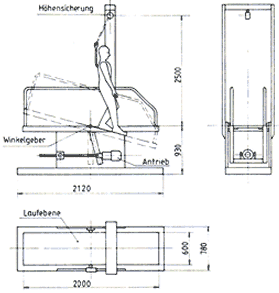
2 Prüfeinrichtung
Als Prüfeinrichtung (Bild 2) dient eine ebene, verwindungssteife Platte von 600 mm Breite und 2000 mm Länge, die in ihrer Neigung in Längsrichtung von 0 bis 45° verstellbar ist. Die Hubgeschwindigkeit des Antriebs bewirkt eine Winkelgeschwindigkeit der Platte von maximal 1° je Sekunde, d.h. für den Durchlauf des Gesamtwinkels von 45° werden mindestens 45 Sekunden benötigt. Die Hubbewegung ist wahlweise kontinuierlich oder stufenweise in Stufen von 0,5° durch die Prüfpersonen steuerbar. Ein an der Prüfeinrichtung angebrachtes Winkelmeßgerät zeigt den Neigungswinkel der Platte gegenüber der Horizontalen auf 0,5° ± 0,2° an.
Zur Sicherheit der Prüfpersonen sind an den Längsseiten der Prüfeinrichtung Geländer angebracht.
Bild 2: Prüfeinrichtung (schiefe Ebene)
3 Gleitmittel
Für die Prüfungen wird Motorenöl der SAE-Viskositätsklasse 10 W 30 nach DIN 51511 "Schmierstoffe, SAE-Viskositätsklassen für Motorenschmieröle" verwendet. Das Öl aus einem geöffneten Behälter ist entweder innerhalb von drei Tagen zu verbrauchen oder bei Überschreitung dieses Zeitraums in einem dicht schließenden Behälter aufzubewahren, um eine Veränderung der Viskosität auszuschließen.
4 Probekörper
4.1 Allgemeines
Die zu prüfenden Bodenbeläge müssen entweder selbsttragend sein, als selbsttragende, verzugsfreie Platte mit ebener Unterseite hergestellt oder auf ebene Platten aus tragfähigem, verzugsfreiem Material aufgebracht sein. Der Prüfbelag ist 100 cm x 50 cm groß. Die zu prüfende Oberfläche muss als solche eindeutig erkennbar oder gekennzeichnet sein.
Bodenbeläge mit richtungsorientierter Profilierung oder Rauhigkeit sind so auf die Platte aufzubringen, dass die Richtung der geringsten Rutschhemmung mit der Begehungsrichtung übereinstimmt.
Bodenbeläge aus Rechteckformaten ohne richtungsorientierte Profilierung oder Rauhigkeit werden so auf der ebenen Platte des Probekörpers aufgebracht, dass die kurze Kante parallel zur Drehachse des Prüfgerätes liegt.
Die Oberfläche der Bodenbeläge muss vor der Prüfung z.B. von Fertigungsrückständen, Verunreinigungen, Trennmitteln oder Pressgraten gereinigt werden.
4.2 Bodenbeläge aus Einzelplatten mit Fugen zwischen den zusammengesetzten Platten
Bodenbeläge müssen in der Weise und mit den Fugenbreiten zu Prüfbelägen zusammengesetzt werden, wie sie in der Praxis zur Anwendung kommen.
5 Kalibrierung
Das Kalibrierverfahren dient zur Eingrenzung subjektiver Einflüsse auf das Prüfverfahren. Für das Kalibrierverfahren stehen die drei Standard-Bodenbeläge E, P und R zur Verfügung, deren Neigungswinkel α durch umfangreiche Untersuchungen bestimmt und als Standardneigungswinkel αSE, αSP und αSR festgelegt worden sind.
Die Standardneigungswinkel liegen dicht an den Bewertungsgruppengrenzen.
Vor der Prüfung begehen die beiden Prüfpersonen 1 und 2 jeden der drei Standard-Bodenbeläge dreimal. Aus den hierbei ermittelten Neigungswinkeln werden die Mittelwerte αE1, αP1, αR1 und αE2, αP2, αR2 errechnet. Aus der jeweiligen Differenz zwischen diesen Mittelwerten und den Standardneigungswinkeln ergeben sich die individuellen Korrekturwerte ΔαE1, ΔαP1, ΔαR1 und ΔαE2, ΔαP2, ΔαR2.
(Δαi,1 = αs,i - αi,1 und Δαi,2 = αs,i - αi,2 mit i = E, P, R)
Der kritische Differenzbetrag Cr D kennzeichnet den Streubereich von Messwerten, innerhalb dessen bei Messungen am gleichen Objekt in verschiedenen Prüfstellen oder bei wiederholten Messungen in einer Prüfstelle Unterschiede zufällig auftreten.
Die kritischen Differenzbeträge Cr D95 sind für die drei Standardbeläge für ein Signifikanzniveau von 95 % aus den Vergleich- und Wiederholgrenzen nach DIN ISO 5725 "Präzision von Prüfverfahren; Bestimmung von Wiederholbarkeit und Vergleichbarkeit durch Ringversuche" bestimmt worden.
| Standard- Bodenbelag |
αs | Cr D95 |
| E | 10,7° | 3,7° |
| P | 18,2° | 2,7° |
| R | 26,8° | 2,3° |
Sind die Korrekturwerte ΔαE1, ΔαP1, ΔαR1 und ΔαE2, ΔαP2, ΔαR2 gleich oder kleiner als der kritische Differenzbetrag, werden sie bei der Auswertung berücksichtigt, sind sie größer, wird die betreffende Prüfperson von der Prüfung ausgeschlossen. Sie muss durch eine andere Prüfperson ersetzt werden.
6 Durchführung
Die Temperatur im Prüfraum sowie die Temperatur von Schuhwerk, Gleitmittel und Prüfbelag muss 23 ± 5 °C betragen.
Unmittelbar vor Beginn der Prüfungen werden 100 ± 1 ml des Gleitmittels mit einem Pinsel gleichmäßig auf der Oberfläche des Prüfbelages verteilt. Die Laufsohle des Schuhwerks wird mittels des Pinsels mit dem Gleitmittel benetzt.
Die Prüfperson geht mit Blickrichtung talwärts in aufrechter Haltung in Schritten einer halben Fußlänge vorwärts und rückwärts auf dem zu prüfenden Bodenbelag. Die Neigung des Prüfbelages wird vom waagerechten Zustand ausgehend mit einer Geschwindigkeit von ca. 1° je Sekunde erhöht. Der Neigungswinkel, bei dem die Prüfperson die Grenze des sicheren Gehens erreicht, wird durch mehrmaliges Auf- und Abfahren um den kritischen Bereich festgestellt.
Der Neigungswinkel des Prüfbelages wird, jeweils vom waagerechten Zustand ausgehend, dreimal ermittelt.
Jeweils vor der zweiten und dritten Messung wird das Gleitmittel erneut mit dem Pinsel gleichmäßig auf der Oberfläche verteilt.
Die Begehungen werden von zwei Prüfpersonen durchgeführt.
7 Auswertung
Die ermittelten 3 Neigungswinkel werden für jede Prüfperson arithmetisch gemittelt und ergeben die mittleren Neigungswinkel α01 und α02.
Für jede Prüfperson wird ein Korrekturwert D errechnet. Je nach der Größe des erreichten mittleren Neigungswinkels α01 bzw. α02 wird die Berechnung nach einem der in der nachfolgenden Tabelle aufgeführten 4 Fälle vorgenommen.
| Fall | Korrekturwert D1 |
| α01 < αE1 | ![]() |
| αE1 ≤ α01 < αP1 | ![]() |
| αP1 ≤ α01 < αR1 | ![]() |
| αR1 ≤ α01 | ![]() |
Die Addition des Korrekturwertes D1 zu dem mittleren Neigungswinkel α01 ergibt den korrigierten mittleren Neigungswinkel α1.
Die Fälle in der vorstehenden Tabelle sind für die Prüfperson 1 beschrieben. Für die Prüfperson 2 erfolgt die Errechnung des Korrekturwertes D2 entsprechend.
8 Bewertung
Die korrigierten mittleren Neigungswinkel α1 und α2 werden addiert und durch 2 dividiert. Das Resultat ist der korrigierte mittlere Gesamtneigungswinkel αges, nach dem die Zuordnung zu einer Bewertungsgruppe der Rutschhemmung nach Tabelle 1 der BG-Regel erfolgt.
| Bezugsquellenverzeichnis | Anhang 3 |
Nachstehend sind folgende Bezugsquellen zusammengestellt:
1. Gesetze, Verordnungen
Bezugsquelle: Buchhandel
2. Unfallverhütungsvorschriften, Berufsgenossenschaftliche Regeln und Informationen für Sicherheit und Gesundheit bei der Arbeit sowie Berufsgenossenschaftliche Grundsätze
Bezugsquelle: VBG
3. Normen
Bezugsquelle: Beuth Verlag GmbH
Burggrafenstraße 6, 10787 Berlin
4. EG-Richtlinien
Bezugsquelle: Bundesanzeiger Verlagsgesellschaft mbH
Postfach 10 05 34, 50445 Köln
![]() |
ENDE | ![]() |
(Stand: 31.07.2023)
Alle vollständigen Texte in der aktuellen Fassung im Jahresabonnement
Nutzungsgebühr: ab 105.- € netto
(derzeit ca. 7200 Titel s.Übersicht - keine Unterteilung in Fachbereiche)
Die Zugangskennung wird kurzfristig übermittelt
? Fragen ?
Abonnentenzugang/Volltextversion