umwelt-online: ETAG 026 - Teil 2: Abschottungen (3)
![]() |
zurück | ![]() |
| Festlegungen für Montage und Befestigung für die Prüfung des Brandverhaltens | Anhang A |
A.1 Prüfung gemäß EN 13823 (SBI)
Das Produkt ist in einer Einbausituation zu prüfen, die repräsentativ für die praktische Nutzung ist und alle Bestandteile enthält, z.B. Dichtstoff, Hinterlegungsmaterial, Befestigungen usw., jedoch ohne Einbauten. Die Dicke jeder Komponente der Abschottung muss repräsentativ sein für die Einbausituation in der Praxis entsprechend der Abschottungsgröße des vorgesehenen Anwendungsbereiches. Die maximale in EN 13823 angegebene Dicke von 200 mm kann reduziert werden, sofern nach der Prüfung mindestens eine 10 mm dicke nicht geschädigte Schicht des Produkts oder der die Oberfläche bildenden Komponente verbleibt .22)
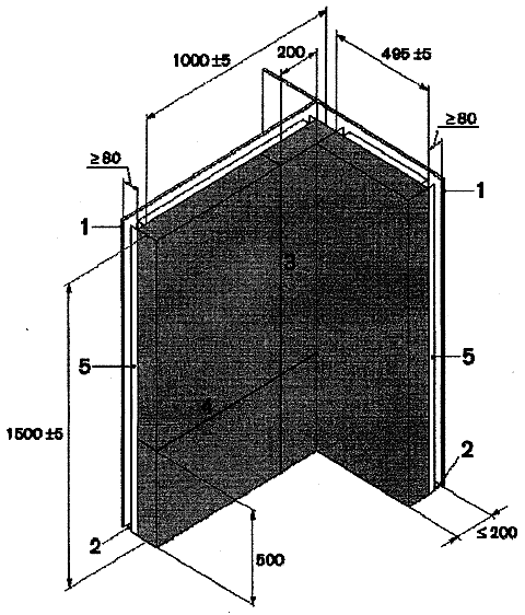
In Bezug auf die Größe des Probekörpers wird in der Regel die in Abbildung A.1 gezeigte Standardkonfiguration 23) verwendet. Sofern auf der langen Seite kein seitliches Ausbreiten von Flammen außerhalb des vom Probekörper abgedeckten Bereiches erwartet wird, kann alternativ die in Abbildung A.2 gezeigte Konfiguration verwendet werden. Wenn in einer Prüfung, bei der die Konfiguration gemäß Abbildung A.2 verwendet wurde, ein seitliches Ausbreiten von Flammen außerhalb dieses Bereichs beobachtet wird, ist die Prüfung mit der Standardkonfiguration gemäß Abbildung A.1 zu wiederholen.
Die lange Seite eines aus einer großen Anzahl relativ kleiner Teile (z.B. Steine) zusammengebauten Probekörpers kann mechanisch stabilisiert werden, indem die Teile auf der Rückseite an einem aus Stahl gefertigten Kreuzrahmen befestigt werden (siehe Abbildung A.3).
Abb. A.1 - Standardprüfaufbau
Abmessungen in Millimeter

Legende
1 Abschlussplatten gemäß EN 13823
2 Luftspalt
3 Vertikale Fuge (wo relevant)
4 Horizontale Fuge (wo relevant)
5 Stützrahmen (wahlweise, siehe Abb. A.3)
Abb. A.2 - Prüfaufbau, wenn keine seitliche Flammenausbreitung außerhalb des Probekörperbereichs auf dem linken Flügel erwartet wird
Abmessungen in Millimeter
Legende
![]() |
Probekörper | 1 Abschlussplatten gemäß EN 13823
2 Luftspalt 3 Vertikale Fuge (wo relevant) 4 Horizontale Fuge (wo relevant) 5 Stützrahmen (optional, siehe Abbildung A.3) |
![]() |
Calciumsilikatplatte |
Bei Verwendung der Konfiguration gemäß Abbildung A.2 muss der Teil des Flügels, der nicht vom Prüfmaterial abgedeckt ist, aus Kalziumsilikatplatten bestehen.
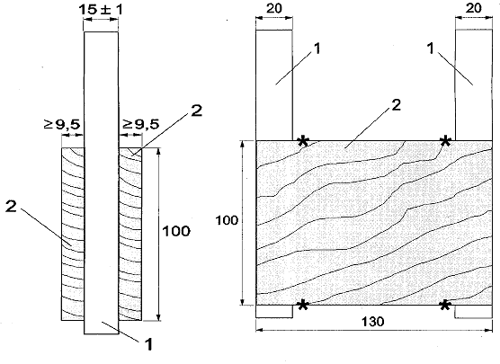
Abb. A3 - Kreuzrahmen auf der Rückseite des langen Flügels
Abmessungen in Millimeter
| A | ![]() |
| B | ![]() |
Legende
a Rahmen für Probekörper ohne Fugen
B Rahmen für Probekörper mit Fugen 1 Position der vertikalen Fuge*
_____
* Die Lage der vertikalen Fuge und des entsprechenden Rahmens hängt von der Dicke des Probekörpers ab, da die Gesamtlänge des langen Flügels laut Festlegung (1000 ±5) mm beträgt und die Fuge bei prüfbereit montierten Flügeln 200 mm von der Ecklinie entfernt liegt.
Die Standardgröße des Probekörpers (250 x 90 x max. 60 mm) ist - sofern möglich - einzuhalten, z.B. indem das Produkt abgeflacht oder auf die erforderliche Größe zugeschnitten wird.
Anmerkung:
Wurde der Probekörper zugeschnitten, darf die Schnittfläche nicht als die der Flamme ausgesetzte Prüffläche verwendet werden.
Wenn die Geometrie oder die Art des Produkts eine Verwendung der Standardprobengröße nicht zulässt, gelten folgende Regeln:
Anmerkung:
Um realitätsnahe Ergebnisse zu erhalten, werden insbesondere für weiche (z.B. schaumartige) Produkte, die in der Praxis in komprimiertem Zustand verwendet werden, Prüfungen mit Druckbeaufschlagung empfohlen.
Kantenbeflammung nach EN ISO 11925-2 ist nur erforderlich, wenn die Kante in der Praxis freiliegt (Überstehende Kanten). Bei Abschottungen ist dies in der Regel nicht der Fall. Bei folgenden Produkten ist eine Kantenbeflammung jedoch notwendig:
Bei Bandagen, die in der Öffnung angebracht sind und deren Kante bündig mit der Oberfläche des feuerwiderstandsfähigen Bauteils abschließt, wird die kleine, in der Praxis freiliegende Oberfläche beflammt.
Manschetten: Die in der praktischen Anwendung freiliegenden Oberflächen sind zu prüfen.
| Prüfverfahren | Anhang B |
B.1 IR (Infra-Rot-Spektroskopie)
Die IR Prüfung ist entsprechend den Angaben der Bedienungsanleitung des Gerätes durchzuführen. Wenn dieses Verfahren zur Identifizierung benutzt wird (Fingerprint) siehe für weitere Hinweise auch EOTa TR 024, Anhang C.
B.2 Thermoanalytische Verfahren
B.2.1 Thermogravimetrische Analyse (TGA)
Siehe EOTa TR 024.
B.2.2 Differenzial-Thermo-Analyse (DTA)
Anmerkung:
Dieses Verfahren ist für dämmschichtbildende Baustoffe weniger geeignet als die TGA, insbesondere für den "Fingerprint".
B.3 Gehalt an nicht flüchtigen Anteilen
Prüfung gemäß EN ISO 3251.
Der für die Identifizierung angegebene Wert muss dem Mittelwert aus mindestens drei Proben entsprechen.
B.4 Masseverlust durch Erhitzen
Prüfung gemäß EN ISO 3451-1, wobei folgende Bedingungen gelten: Da der Masseverlust durch Erhitzen ein Materialmerkmal darstellt, sollten nach Möglichkeit Schutzfolien oder Beschichtungen entfernt werden. Wenn das Produkt mit einer Schutzfolie oder Beschichtung geprüft wird, sollte dies festgehalten werden, um die Vergleichbarkeit mit zukünftigen Prüfungen sicherzustellen.
Der für die Identifizierung erklärte Wert soll der Mittelwert von mindestens drei Proben sein.
Anmerkung:
Die Norm wurde für Kunststoffe verfasst, andere Materialien können aber ebenfalls in Anlehnung an die Norm geprüft werden.
B.5 Mechanische Eigenschaften
B.5.1 Druckfestigkeit
B.5.1.1 Mörtel (auf Zementbasis)
Prüfung gemäß EN ISO 1015-11.
In Abhängigkeit davon, ob frühhochfester oder normaler Zement verwendet wird, kann die Festigkeit bei 3, 7 oder 28 Tagen ermittelt werden.
B.5.1.2 Putz (auf Gipsbasis)
Prüfung gemäß EN ISO 1015-11.
Dieses Verfahren kann auch für Produkte auf Gipsbasis verwendet werden. Das Produkt ist zu prüfen nach 24 Stunden, nach vollständiger Sättigung und nach Ofentrocknung bis zum Erreichen der Massekonstanz bei 30 bis 35 °C.
B.5.2 Zugfestigkeit
Gummi
Prüfung gemäß ISO 37 oder EN ISO 527-2.
B.5.3 Härte von Dichtungsstoffen (ausgehärtet)
Prüfungen gemäß ISO 7619-1 oder ISO 7619-2. In der europäischen technischen Zulassung ist das verwendete Verfahren festzuhalten.
B.5.4 Reißfestigkeit
B.5.4.1 Gewebe
Prüfung gemäß EN ISO 13934-1.
B.5.4.2 Naht
Prüfungen nach EN ISO 13935-1 oder EN ISO 13935-2. In der europäischen technischen Zulassung ist das verwendete Verfahren festzuhalten.
B.5.5 Flexibilität
Prüfung gemäß EN ISO 1519.
B.6 Rohdichte
B.6.1 Dichtungsmassen, Beschichtungen und andere pastöse Materialien
Dichtungsmassen, Beschichtungen und andere pastöse Materialien können in Anlehnung an EN ISO 2811-1 (Pyknometer) geprüft werden. Es sind der Mittelwert von 3 Proben und die Standardabweichung anzugeben. Für die werkseigene Produktionskontrolle ist auch EN ISO 2811-2 ein geeignetes Verfahren.
B.6.2 Schäume (vor Ort aufgebracht, im ausgehärteten Zustand)
Ein (mit Paraffin beschichteter) Pappbecher wird mit dem Schaum gefüllt (es ist darauf zu achten, dass keine Löcher und Hohlräume entstehen). Der Schaum wird nach dem Erhärten an der Kante des Bechers abgeschnitten. Die Probe wird bei Umgebungstemperatur verwahrt. Dichte = Gesamtmasse - Masse des Bechers / Volumen des Bechers (kg/m3). Es sind der Mittelwert von 3 Proben und die Standardabweichung anzugeben.
B.6.3 Mineralwolle
Prüfung gemäß EN 1602.
B.6.4 Trockenschüttdichte (Mörtel, Füllmaterial von Kissen)
Prüfung gemäß ISO 3049.
B.6.5 Vorgefertigte schaumbasierte Produkte (z.B. Blöcke, Stopfen)
Die Dichte wird aus der Masse und dem Volumen des Probekörpers errechnet. Die Masse des Probekörpers ist mit einer Waage zu messen, deren Messgenauigkeit 0,1 g beträgt. Die Abmessungen können auf den nächsten Millimeter gerundet bestimmt werden, wobei für Produkte mit gleichmäßiger Form ein Längenmaßstab verwendet wird, oder das Volumen wird mit Hilfe einer Wasserverdrängungstechnik bestimmt.
B.6.6 Andere Platten als Kalzium-Silikat-, Mineralfaser- und Platten auf Gipsbasis
Abhängig von der Art des Produktes ist das Prüfverfahren im Einzelfall zu bestimmen.
B.7 Viskosität
B.7.1 Hochviskose Flüssigkeiten
Prüfung gemäß EN ISO 3219.
B.7.2 Niedrigviskose Flüssigkeiten
Prüfung gemäß EN 12092.
B.7.3 Dichtungsmassen im nicht ausgehärteten Zustand
Prüfung gemäß EN 1426.
B.8 "Schmelzpunkt" von Mineralwolle
B.8.1 Visuelles Verfahren
Ein kleines Stück Mineralwolle ohne Bindemittel ist in einen Röhrenofen mit einer Temperatur von z.B. 1000 °C einzubringen und es ist zu überprüfen, ob die Fasern schmelzen. Der "Schmelzpunkt" ist die Temperatur, bei der die Mineralwolle zu schmelzen beginnt.
Verfahren:
Eine Probe der Mineralwolle ist bei 550 °C (Glaswolle) oder bei 650 °C (Steinwolle) z.B. in einem Muffelofen vorzubehandeln, um alle organischen Bestandteile zu eliminieren. Aus der vorbehandelten Probe sind Probewürfel von 10 mm x 10 mm x 10 mm auszuschneiden.
Die Röhrenofentemperatur ist auf die gewünschte Prüftemperatur etwa 30 K unter der erwarteten Schmelztemperatur einzustellen.
Ein Probewürfel ist auf eine Nadel zu setzen, die außerhalb des Ofens mit einem Innendurchmesser von 25 mm von einem Gestell unterstützt wird. Die Abmessungen des Innendurchmessers des Röhrenofens und des Probekörpers können geändert werden, sofern das Verhältnis konstant gehalten wird.
Das Gestell ist langsam in den Ofen zu schieben, so dass der Probekörper sich dem in Ofenmitte angeordneten Temperatursensor nähert.
Der Probekörper ist für 10 Minuten in dieser Lage zu belassen. Die Temperatur ist aufzuzeichnen, der Probekörper ist vorsichtig zu entnehmen, und es ist zu notieren, ob der Probekörper bereits geschmolzen oder gesintert/geschrumpft ist.
Sofern der Probekörper unverändert ist, ist die Ofentemperatur um 10 K zu erhöhen. Nachdem sich die Temperatur stabilisiert hat, ist die Prüfung mit einem neuen Probekörper zu wiederholen.
Wenn der Probekörper schmilzt oder sintert/schrumpft, ist die Temperatur um 10 K abzusenken und die Prüfung mit einem neuen Probekörper zu wiederholen. Das Verfahren ist zu wiederholen, bis der "Schmelzpunkt" eindeutig bestimmt ist.
Abb. B.1 - Prüfaufbau zur Bestimmung des Schmelzpunktes

B.8.2 Thermoanalytische Verfahren
Ein beliebiges thermoanalytisches Verfahren kann verwendet werden, z.B. DTa oder TGA.
B.9 Verhalten beim Aushärten
Zeit bis zur Klebfreiheit von Schäumen: Eine geeignete Menge des Materials wird in einen Becher gedrückt. In Abständen von zwei Sekunden wird die Oberfläche des Schaums mit einem Holzspachtel berührt. Die Klebfreiheit ist erreicht, wenn kein Schaum mehr auf dem Spachtel verbleibt.
B.10 Abmessungen
B.10.1 Dicke
Die Dicke von Produkten wie Platten, Bleche, Gewebestreifen, Gewebe, Folien usw. wird an 5 Stellen des Probekörpers mit Hilfe eines geeigneten Messwerkzeugs, auf die nächsten 0,1 mm gerundet, bestimmt. Die Mindestgröße des Probekörpers beträgt 100 mm x 100 mm bzw. die Mindestlänge im Falle von Gewebestreifen beträgt 500 mm.
B.10.2 Andere Abmessungen
Die Abmessungen müssen mit Hilfe eines geeigneten Messwerkzeugs bis auf 0,5 % genau bestimmt werden.
B.10.3 Korngrößenverteilung
Es kann das in EN 1015-1 für trockenes Material beschriebene Verfahren verwendet werden.
B.11 Maßhaltigkeit
B.11.1 Schäume
B.11.1.1 Allgemeines
Maßhaltigkeit ist ein Maß für die Beständigkeit gegen Schrumpfen oder Nachschäumen eines ausgehärteten Schaums, so wie es in dieser Prüfung ermittelt wird. Übermäßiges Schrumpfen kann die Fähigkeit des Schaums, ein wirksames luftdichtes Schott zu bilden, nachteilig beeinflussen, wenn die Schrumpfkräfte die Adhäsionskräfte überschreiten. Übermäßiges nachträgliches Ausdehnen kann zu einer nicht akzeptierbaren Durchbiegung führen. Die folgende Beschreibung gibt an, wie Maßhaltigkeit in einer kontrollierten Prüfumgebung zu messen ist.
B.11.1.2 Erforderliche Prüfausrüstung
B.11.1.3 Versuchsdurchführung
Der Schaum, das Applikationsgerät und der Untergrund sind gemäß EN 13238 bis zu einer konstanten Masse zu konditionieren. Es sind drei Probekörper gemäß den Abbildungen B.2 und B.3 herzustellen. Es ist darauf zu achten, dass die Schraubzwingen direkt an den Abstandshaltern sitzen, sodass sie nicht die Baugruppe zusammendrücken. Der Probekörper soll eine Fuge in der geforderten Breite von etwa 20 mm besitzen. Die schaumbedeckte Nettofläche soll etwa 100 mm x 100 mm betragen. Abbildung B.4 zeigt, wie die Baugruppe während des Ausschäumens gelagert und wie der Schaum eingebracht werden soll. Es ist wiederum darauf zu achten, dass die Schraubzwingen direkt an den Abstandshaltern sitzen. Nach 24 Stunden sind die Schraubzwingen und die Abstandshalter zu entfernen. Der überstehende Schaum, der aus dem Innern der Baugruppe herausgedrückt wurde, ist abzuschneiden, sodass er mit den Kanten des Sperrholzes abschließt. Der anfängliche innere Abstand zwischen den Sperrholzplatten ist auszumessen. Nach der Messung ist die Baugruppe in den erforderlichen Prüfklimaten zu lagern.
Die Prüfklimate sind:
(40 ± 2)°C / (90 ± 5) % relative Luftfeuchtigkeit
(30 ± 2)°C / (30 ± 5) % relative Luftfeuchtigkeit
B.11.1.4 Auswertung
Am 7. und 14. Tag ist der Probekörper aus der jeweiligen Versuchskammer zu entnehmen und mindestens 2 Stunden bei Standard-Bedingungen gemäß EN 13238 zu lagern. An den vier Ecken ist der Abstand zwischen den Platten - so dicht wie möglich an den inneren Schaum-Oberflächen zu messen (Abstand "c" in Abbildung B.3). Wahlweise kann der Abstand - sofern Unregelmäßigkeiten in den Oberflächen vorhanden sind - genau in der Mitte des Probekörpers gemessen werden; dort wo die zwei Abstandshalter platziert sind (Abbildung B.4). Nach der ersten Messung sind die Probekörper wieder in die betreffende Versuchskammer zurückzulegen.
B.11.1.5 Berechnung der Maßhaltigkeit
Die Maßhaltigkeit d wird als prozentuale Änderung in den Abmessungen der Baugruppe berechnet:
d = (b/c x 100) - 100 (in %)
Der Gesamt-Mittelwert ist zusammen mit seiner Standardabweichung anzugeben.
b (mm) = gemessene Breite des Spaltes nach der Lagerung in der Versuchskammer
c (mm) = Anfangswert vor Lagerung
Die Maßhaltigkeit d eines Probekörpers ergibt sich aus dem Mittelwert der vier bzw. zwei Mess-Stellen. Der Mittelwert jeder Baugruppe und der Mittelwert aus allen Baugruppen sowie zusätzlich die Standardabweichung sind aufzuzeichnen.
Der Gesamt-Mittelwert ist zusammen mit seiner Standardabweichung anzugeben.
Abb. B.2 - Prüfkörper zur Bestimmung der Maßhaltigkeit Seitenansicht
Abmessungen in Millimeter
Legende
1 Abstandshalter
2 Sperrholz
_____
* Stellen, an denen die Dicke nach der Beanspruchung zu bestimmen ist
Abb. B.3 - Prüfkörper zur Bestimmung der Maßhaltigkeit - Draufsicht
Legende
1 Abstandshalter
2 Sperrholz
3 Schaum
4 Schraubzwingen
c Abmessungen nach der Beanspruchung bestimmt
Abb. B.4 - Aufbau zum Einschäumen
Abmessungen in Millimeter

Legende
1 Abstandshalter
4 Schraubzwingen
5 Ansatzpunkt für das Einschäumen
B.11.2 Quellverhalten beim Abbinden (Mörtel auf Gipsbasis)
B.11.2.1 Allgemeines
Das Quellverhalten beim Abbinden ist bei einer kontinuierlichen Feucht-Lagerung mit Hilfe eines einfachen, in Abschnitt B.11.2.2 beschriebenen Extensometers zu bestimmen. Der reine Gipsmörtel ist vor der Prüfung gemäß Abschnitt B.11.2.5 in Standardkonsistenz zu stabilisieren.
Abb. B.5 - Extensometer
B.11.2.2 Extensometer
Das Extensometer besitzt eine offene V-förmige Mulde, die an einem Ende durch eine befestigte und am anderen Ende durch eine bewegliche Platte verschlossen mit einer Messeinrichtung versehen ist, die eine genaue Ablesung auf 1/100 mm erlaubt (siehe Abbildung B.5). Die Mulde ist aus Messing oder Bronze, 100 mm lang, ungefähr 60 mm breit und 25 mm tief, mit einem gewölbten Boden. Die Rückstell-Feder soll leicht und freibeweglich sein.
Um zu verhindern, dass der Gipsmörtel seitlich an der Form kleben bleibt, ist die Mulde vor der Verwendung einzufetten und im Innern mit einem dünnen, nicht absorbierenden Papier mit Oberflächenversiegelung auszulegen. Die Papierauskleidung ist vor jeder Prüfung zu erneuern. Der Gipsmörtel ist gleichmäßig in die Mulde einzufüllen, wobei die bewegliche Platte am Ende festzuhalten ist, bis er mit der Oberkante der Mulde glatt abschließt.
B.11.2.3 Einstellen der Ausgangslage/Null-Lage
Die bewegliche Platte ist sehr langsam vorwärts bis zum Anschlag zu führen, um einen Rückschlag zu vermeiden. Der Mörtel muss fest an der beweglichen Platte anliegen. Auf dem Zifferblatt ist die Ausgangslage/Null-Lage einzustellen bzw. zu markieren.
B.11.2.4 Eichung und Messung
Eine Menge von ungefähr 200 g Gipstrockenmörtel ist angemessen. Diese wird mit soviel Wasser angemacht, dass man die in B.11.2.6 beschriebene Standardkonsistenz erhält. Der abgemessene Mörtel wird sofort in die Muldenform des Extensometers gefüllt und eine Nulleinstellung wie in B.11.2.3 beschrieben justiert. Das Extensometer ist in einen Feuchteschrank zu setzen und die Nullstellung abzulesen. Nach 24 Stunden ungestörtem Verbleib ist eine Endablesung vorzunehmen. Die prozentuale Längenausdehnung ist zu berechnen:
Prozentuale Längenausdehnung = (Differenz der Abmessungen in 1/100 mm) / (100)
B.11.2.5 Vorgehen zur Stabilisierung des Mörtels
Der Mörtel, ausgebracht als Schicht von höchstens 12 mm, ist 3 bis 4 Tage einer Atmosphäre von 65 ± 3 % relativer Luftfeuchte bei 20 ± 5 °C bei starker Luftbewegung über den Probekörpern auszusetzen.
Falls kein klimatisierter Raum zur Verfügung steht, kann die Luftfeuchte über einer breiten flachen Schale mit gesättigter Ammoniumnitrat-Lösung, die noch etwas ungelöstes Salz enthält, aufrechterhalten werden. Diese ist in einen dicht schließenden Schrank zu stellen. Die Luftzirkulation in dem Schrank über der Salzlösung und der Mörtelprobe ist zu gewährleisten.
B.11.2.6 Standardkonsistenz
Die Standardkonsistenz ist mittels Fallkugelpenetrometers (Fallkugeleindringgerät) genau zu bestimmen wie weiter unten beschrieben.
Eine ringförmige Form aus starrem Material mit einem Innendurchmesser von 100 mm und 25 mm innerer Ringhöhe ist mit der Mörtelmasse zu füllen. Dazu ist die Form auf eine nicht poröse Platte zu stellen. Mit einem biegsamen Spachtel ist die Masse in etwa 10 Portionen so einzufüllen, dass dabei Lunker und Luftblasen vermieden werden. Die Oberfläche ist glatt am Formenrand abzustreichen.
Man lässt eine Kugel aus Methylacrylat mit einem Durchmesser von 25 mm und einer Masse von 9,8 ± 1 g aus einer Höhe von 250 mm - gemessen von Unterseite der Kugel bis zur Oberfläche der Mörtelpaste - fallen, sodass sie etwa in die Mitte des Rings fällt. Aufgezeichnet wird das Eindringen als Abstand vom tiefsten Eindringpunkt der Kugel bis zur Ausgangsoberfläche des Materials.
Die Eindringtiefe ist durch ein geeignetes Verfahren zu messen.
Die Mörtelpaste hat die richtige Konsistenz, wenn die Kugel 15 bis 16 mm eindringt.
Wenn vorzeitiges Ersteifen auftritt, kann dem Anmachwasser für die Bestimmung der Konsistenz 0,1 g Natriumcitrat hinzugefügt werden.
B.12 Visuelle Prüfung
Das äußere Erscheinungsbild des Produktes ist bezüglich der Änderung von z.B. Farbe, Oberflächenstruktur, Form und dem Vorhandensein von Rissen, Spalten usw. zu überprüfen. Sofern sich Änderungen des äußeren Erscheinungsbildes nicht in den Ergebnissen der Prüfungen der anderen Eigenschaften gemäß Abschnitt 2.4.12.1.3.2 widerspiegeln, sind die möglichen Folgen der Änderung des Erscheinungsbildes bezüglich der Dauerhaftigkeit im Einzelfall zu bewerten.
| Wasserdurchlässigkeit - Prüfverfahren | Anhang C |
C.1 Probekörper
Es ist eine für das Brandschutzprodukt zum Abdichten und Verschließen von Öffnungen und zum Aufhalten von Feuer im Brandfall repräsentative/ charakteristische Probe zu verwenden, um ein Leerschott gemäß den Montageanweisungen des Herstellers herzustellen. Sofern eine Fuge erforderlich ist, um ein längeres Schott herzustellen, so ist eine einzelne Fuge in den Probekörper zu integrieren.
C.2 Konditionierung
Der Probekörper ist gemäß EN 13238 zu konditionieren.
C.3 Versuchseinrichtung
Die Einrichtung zum Prüfen der Wasserdurchlässigkeit muss aus einem Behälter, der an beiden Enden offen ist, bestehen und der an einem Ende wasserdicht mit dem Probekörper abschließt. Der Behälter soll einen Probekörper mit einer Länge von mindestens 1 m und der vorgesehenen Breite sowie ausreichend Teile der Tragekonstruktion aufnehmen.
C.4 Versuchsdurchführung
Die Einrichtung zum Prüfen der Wasserdurchlässigkeit muss gegenüber dem Probekörper mit einer nicht erhärtenden Dichtungsmasse, drucksensiblen Klebebändern oder Gummidichtungen mit Klemmeinrichtung abgedichtet werden.
Wasser mit dauerfärbenden Partikeln ist in die Wasserdurchlässigkeitspriifungs-Kammer zu bringen. Das Wasser soll die Abschottung bis zu der Höhe überdecken, die mit dem vorgesehenen Druck korrespondiert 24), der während der Prüfung aufrechtzuerhalten ist.
Die Temperatur der Versuchsanordnung ist im Bereich von (23 ± 5)°C zu halten. Ein weißes Indikationsmedium ist direkt unterhalb des Probekörpers anzuordnen.
Der Versuch ist weiterzuführen bis Undichtigkeit auftritt, höchstens jedoch 72 Stunden lang.
C.5 Bewertung der Prüfergebnisse
Das Durchsickern von Wasser durch die Abschottung ist durch Vorhandensein von Wasser oder Farbe auf dem Anzeigemedium oder anhand von Tropfen, die an der Unterseite der Prüfeinrichtung auftreten, zu erkennen.
C.6 Aufzuzeichnende Versuchswerte
Das Ergebnis wird angegeben mit "wasserdicht bis zu x mm Wassersäule" oder "wasserdicht bis x Pa". Der Prüfbericht muss Folgendes beinhalten:
| Muster für die auf der Grundlage der ETAG 026 Teil 2 zu erteilenden europäischen technischen Zulassungen | Anlage |
Deckblatt der ETA
Seite 2 der ETA
mit Kopfzeile: Seite 2 der ETA-xx/xxxx, erteilt am TT.MM.JJJJ
I
Rechtsgrundlagen und allgemeine Bestimmungen
1 Diese europäische technische Zulassung wird von ... (Name der Zulassungsstelle) erteilt in Übereinstimmung mit:
2 Die ...(Name der Zulassungsstelle) ist ermächtigt nachzuprüfen, ob die Bestimmungen dieser europäischen technischen Zulassung erfüllt werden. Diese Nachprüfung kann vor Ort in der (den) Produktionsstätte(n) erfolgen. Der Inhaber der europäischen technischen Zulassung bleibt jedoch für die Konformität der Produkte mit der europäischen technischen Zulassung und deren Brauchbarkeit für den vorgesehenen Verwendungszweck verantwortlich.
3 Diese europäische technische Zulassung darf nicht auf andere als die auf Seite 1 aufgeführten Hersteller oder Vertreter von Herstellern oder auf andere als die /auf Seite 1 /im Kontext/ dieser europäischen technischen Zulassung(Nichtzutreffendes bitte streichen) genannten Herstellwerke übertragen werden.
4 Die ...(Name der Zulassungsstelle) kann diese europäische technische Zulassung widerrufen, insbesondere nach einer Mitteilung der Kommission aufgrund von Artikel 5 Absatz 1 der Richtlinie 89/106/EWG.
5 Diese europäische technische Zulassung darf - auch bei elektronischer Übermittlung - nur ungekürzt wiedergegeben werden. Mit schriftlicher Zustimmung der ...(Name der Zulassungsstelle) kann jedoch eine teilweise Wiedergabe erfolgen. Eine teilweise Wiedergabe ist als solche zu kennzeichnen. Texte und Zeichnungen von Werbebroschüren dürfen weder im Widerspruch zu der europäischen technischen Zulassung stehen noch diese missbräuchlich verwenden.
6 Die europäische technische Zulassung wird von der Zulassungsstelle in ihrer Amtssprache erteilt. Diese Fassung(en) entspricht (entsprechen) der in der EOTa verteilten Fassung. Übersetzungen in andere Sprachen sind als solche zu kennzeichnen.
Seite 3 sowie nachfolgende Seiten der ETA
mit Kopfzeile Seite ... der ETA-xx/xxxx, erteilt am TT.MM.JJJJ [Gültigkeit verlängert am TT.MM.JJJJ]
II
Besondere Bestimmungen der Europäischen Technischen Zulassung
1 Beschreibung des Produkts/der Produkte und des Verwendungszwecks
1.1 Beschreibung des Bauprodukts
.....(Spezifischer Text: Beschreibung der Abschottung (z.B. Aufbau der Abschottung, Angaben zu den verwendeten Materialien und den Abmessungen der Abschottung (z.B. maximale Größe und minimale Dicke der Abschottung, Schichtdicke einer Beschichtung,...), Angaben zu zulässigen Befestigungen oder erforderlichen Rahmen), Bestimmungen für den Einbau der Abschottung (z.B. Reihenfolge der Arbeitsschritte), Angaben zu zulässigen Änderungen (z.B. Nachbelegung)... )
1.2 Verwendungszweck
.....(Spezifischer Text: Beschreibung von Art und Dicke der feuerwiderstandsfähigen Bauteile, in die die Abschottung eingebaut werden darf, Angaben zu den Leitungen, an denen die Abschottung angeordnet werden darf (z.B. Kabelarten, Kabelpritschen oder -leitern, Rohrmaterialien, Rohrdurchmesser, Rohrwandstärken, Isoliermaterialien, Isolierdicken (sofern erforderlich Bezug nehmend auf die Rohrabmessungen)), Angaben zu den Abständen (zwischen den Leitungen, zwischen den Leitungen und den Schotträndern und zwischen Abschottungen), die Belegungsdichte, Art und Lage der Tragekonstruktion(en) der Leitung(en), die Nutzungskategorie, sind Sonderdurchführungen für Rohre zulässig?...)
Die Bestimmungen dieser europäischen technischen Zulassung beruhen auf einer angenommenen Nutzungsdauer des/der ...(Bezeichnung des Produkts) von ... Jahren [vorausgesetzt, dass die in (den) Abschnitt(en) 4.2/ 5.1/ 5.2 festgelegten Bedingungen für die Verpackung/den Transport/die Lagerung/den Einbau/die Verwendung/die Wartung/die Instandsetzung erfüllt sind]. Die Angaben über die Nutzungsdauer können nicht als Garantie des Herstellers ausgelegt werden, sondern sind lediglich als Hilfsmittel zur Auswahl der richtigen Produkte im Hinblick auf die erwartete wirtschaftlich angemessene Nutzungsdauer des Bauwerks zu betrachten.
2 Merkmale des Produkts/der Produkte und Nachweisverfahren
.....(Spezifischer Text)
Die ETa muss den Prüfaufbau genau beschreiben, die verwendeten Bestandteile und Komponenten (z.B. Halte- und Tragekonstruktionen, Leitungen, mechanische Befestigungsmittel usw.), die Abmessungen oder Größe des Produktes, seine Anordnung usw. angeben.
Der Anwendungsbereich muss präzisiert werden, dabei sind alle maßgeblichen Parameter wie Abmessungen der Abschottung, Anzahl, Abmessungen und Typ der Leitungen, Art der Tragekonstruktion, Nutzungsbedingungen in den Begriffen der Umweltbedingungen (z.B. trockene Innenanwendung), Art der Vorbereitung der Tragekonstruktion vor dem Einbau der Abschottung usw. in Betracht zu ziehen.
Die folgenden Aussagen sollten für die Aufnahme in die ETa in Betracht gezogen werden:
Allgemein:
"Andere Teile oder Tragekonstruktionen dürfen nicht durch die Abschottung geführt werden."
"Es sind Vorkehrungen zu treffen, die verhindern, dass Abschottungen in Decken betreten werden können oder dass sie durch höhere Kräfte als dem Grenzwert des Stoßversuches beansprucht werden, z.B. durch Abdeckung mit Maschendraht."
"Die Tragckonstruktionen der Leitungen müssen beidseitig der Durchführung so am Bauteil befestigt werden, dass im Brandfall eine zusätzliche mechanische Beanspruchung der Abschottung nicht auftreten kann."
Kabelabschottungen/Kombiabschottungen:
"Im Falle von fest verbundenen Kabelbündeln braucht der Platz zwischen den Kabeln nicht abgedichtet zu werden."
"Der gesamte zulässige Querschnitt der Kabel (einschließlich der Kabeltragekonstruktionen wie Kabelrinnen usw.) darf insgesamt nicht mehr als 60 % der Abschottungs-(Öffnungs-)Größe betragen." oder(für Kombischotts):
"Der gesamte zulässige Querschnitt der Kabel (einschließlich der Kabeltragekonstruktionen wie Kabelrinnen usw.) und Rohre (bezogen auf den Außendurchmesser) darf insgesamt nicht mehr als 60 % der Abschottungs-(Öffnungs-)Größe betragen."
Rohrabschottungen/Kombiabschottungen:
"Die Rohre müssen senkrecht zu den Schottoberflächen durchgeführt werden."(zu verwenden, wenn nur Prüfungen gemäß der Standardkonfiguration vorliegen)
"Kunststoffrohre nur für nichtbrennbare Flüssigkeiten und Gase, für pneumatische Förderanlagen und Staubsaugleitungen." "Es wird davon ausgegangen, dass Druckluftleitungen im Brandfall auf andere Weise abgeschaltet werden."
"Die Funktion der Rohrabschottung an pneumatischen Förderanlagen, Druckluftleitungen o.ä. ist nur dann gewährleistet, wenn die Rohrleitungsanlagen im Brandfall abgeschaltet werden."
"Die Verhinderung von Zerstörungen an der Abschottung oder den angrenzenden, raumabschließenden Bauteilen, hervorgerufen durch temperaturbedingte Zwängungskräfte im Brandfall, sind mit dieser Bewertung nicht nachgewiesen. Diesem ist bei der Planung der Rohrleitungsanlage Rechnung zu tragen."
Anmerkung:
Für nicht isolierte Metallrohre kann die zu beachtende Verlängerung z.B. unter Verwendung der relevanten Temperatur der Einheitstemperaturkurve gemäß der geforderten Feuerwiderstandsdauer berechnet werden.
"Die Zulassung erfasst keine Risiken im Zusammenhang mit Leckagen von gefährlichen Flüssigkeiten oder Gasen, hervorgerufen durch ein Versagen der/des Rohre(s) im Brandfall."
"Die Beurteilung der Dauerhaftigkeit berücksichtigt nicht die möglichen Auswirkungen auf die Abschottung durch eine Permeation der Medien durch das Rohr hindurch."
"Es wird davon ausgegangen, dass die thermische Längenänderung in der Rohrleitung so aufgefangen wird, dass sie keine Last auf die Abschottung bewirkt."
Abgabe gefährlicher Stoffe oder Strahlung
.....(Spezifischer Text)
Anmerkung: In Ergänzung zu den Abschnitten dieser europäischen technischen Zulassung, die sich auf gefährliche Stoffe beziehen, können die Produkte im Geltungsbereich dieser Zulassung weiteren Anforderungen unterliegen (z.B. umgesetzte europäische Gesetzgebung und nationale Rechts- und Verwaltungsvorschriften). Um die Bestimmungen der Bauproduktenrichtlinie zu erfüllen, müssen diese Anforderungen ebenfalls eingehalten werden.
3 Bewertung und Bescheinigung der Konformität und CE-Kennzeichnung
3.1 System der Konformitätsbescheinigung
Gemäß Entscheidung Nr. C (1999) 1481 der Europäischen Kommission vom 22. Juni 1999 29) ist das System 1 der Konformitätsbescheinigung anzuwenden.
Dieses System der Konformitätsbescheinigung ist im Folgenden beschrieben:
System 1: Zertifizierung der Konformität des Produkts durch eine zugelassene Zertifizierungsstelle aufgrund von:
(a) Aufgaben des Herstellers:
(1) werkseigene Produktionskontrolle;
(2) zusätzliche Prüfung von im Werk entnommenen Proben durch den Hersteller nach festgelegtem Prüfplan;
(b) Aufgaben der zugelassenen Stelle:
(3) Erstprüfung des Produkts;
(4) Erstinspektion des Werkes und der werkseigenen Produktionskontrolle;
(5) laufender Überwachung, Beurteilung und Anerkennung der werkseigenen Produktionskontrolle.
3.2 Zuständigkeiten
3.2.1 Aufgaben des Herstellers
3.2.1.1 Werkseigene Produktionskontrolle
Der Hersteller muss eine ständige Eigenüberwachung der Produktion durchführen. Alle vom Hersteller vorgegebenen Daten, Anforderungen und Vorschriften sind systematisch in Form schriftlicher Betriebs- und Verfahrensanweisungen festzuhalten, einschließlich der Aufzeichnungen der erzielten Ergebnisse. Die werkseigene Produktionskontrolle hat sicherzustellen, dass das Produkt mit dieser europäischen technischen Zulassung übereinstimmt.
Der Hersteller darf nur Ausgangsstoffe/Rohstoffe/Bestandteile(Nichtzutreffendes streichen) verwenden, die in der technischen Dokumentation dieser europäischen technischen Zulassung aufgeführt sind.
Die werkseigene Produktionskontrolle muss mit dem Prüf- und Überwachungsplan vom ...(Datum) für die am ...(Datum) erteilte europäische technische Zulassung ETA-...(Nummer), der Teil der technischen Dokumentation dieser europäischen technischen Zulassung ist, übereinstimmen. Der Prüf- und Überwachungsplan ist im Zusammenhang mit dem vom Hersteller betriebenen werkseigenen Produktionskontrollsystem festgelegt und bei ...(Name der europäischen Zulassungsstelle) hinterlegt 30).
Die Ergebnisse der werkseigenen Produktionskontrolle sind festzuhalten und in Übereinstimmung mit den Bestimmungen des Prüf- und Überwachungsplans auszuwerten.
3.2.1.2 Sonstige Aufgaben des Herstellers
.....(Spezifischer Text, soweit erforderlich)
Zusätzliche Angaben
Der Hersteller muss ein technisches Datenblatt und eine Einbauanleitung bereitstellen, die mindestens die folgenden Informationen enthalten muss:
Technisches Datenblatt:
Einbauanleitung:
Der Hersteller hat auf der Grundlage eines Vertrags eine Stelle/Stellen, die für die Aufgaben nach Abschnitt 3.1 für den Bereich der ...(Produktbezeichnung) zugelassen ist/sind, zur Durchführung der Maßnahmen nach Abschnitt 3.2.2 einzuschalten. Hierfür ist der Prüf- und Überwachungsplan nach den Abschnitten 3.2.1.1 und 3.2.2 vom Hersteller der zugelassenen Stelle/den zugelassenen Stellen vorzulegen.
Der Hersteller hat eine Konformitätserklärung abzugeben mit der Aussage, dass das Bauprodukt mit den Bestimmungen der am ...(Datum) erteilten europäischen technischen Zulassung ...(Nummer) übereinstimmt.
3.2.2 Aufgaben der zugelassenen Stellen
Die zugelassene Stelle hat/zugelassenen Stellen haben die folgenden Aufgaben in Übereinstimmung mit den Bestimmungen des "Prüf- und Überwachungsplans vom ... (Datum) der am ... (Datum) erteilten ETA-... (Nummer)" durchzuführen:
Die zugelassene Stelle hat/zugelassenen Stellen haben die wesentlichen Punkte ihrer oben angeführten Maßnahmen festzuhalten und die erzielten Ergebnisse und die Schlussfolgerungen in einem schriftlichen Bericht zu dokumentieren.
Die vom Hersteller eingeschaltete zugelassene Zertifizierungsstelle hat ein EG-Konformitätszertifikat mit der Aussage zu erteilen, dass das Produkt mit den Bestimmungen dieser europäischen technischen Zulassung übereinstimmt.
Wenn die Bestimmungen der europäischen technischen Zulassung und des zugehörigen Prüf- und Überwachungsplans nicht mehr erfüllt sind, hat die Zertifizierungsstelle das Konformitätszertifikat zurückzuziehen und unverzüglich die ... (Name der Zulassungsstelle) zu informieren.
3.3 CE-Kennzeichnung
Die CE-Kennzeichnung ist ....(auf dem Produkt selbst - es ist ggf. anzugeben, wo auf dem Produkt , auf einem am Produkt angebrachten Etikett, auf der Verpackung oder auf den kommerziellen Begleitpapieren, z.B. der EG-Konformitätserklärung) anzubringen. Hinter dem Symbol "CE" sind die Kennnummer der zugelassenen Zertifizierungsstelle anzugeben sowie die folgenden zusätzlichen Angaben zu machen:
Beispiel für die CE-Kennzeichnung und Begleitangaben für die Abschottung "NAME":
![]() |
Kennzeichen "CE" |
| 1234 | Identifizierungsnummer der zugelassenen Zertifizierungsstelle |
| Unternehmen XX Straße1, Stadt, Land 07
|
Name und Anschrift des Herstellers oder seines autorisierten Vertreters (verantwortlich agierende juristische Person)
|
| ETA-07/XXXYZ
ETAG 026- Teil 2
Abschottung "NAME" Typ Z2 |
Nummer der ETA
Nummer der ETA-Leitlinie Bezeichnung des Produktes und Handelsname Nutzungskategorie gemäß Abschnitt 1 und 2 der ETA, Feuerwiderstand und gefährliche Substanzen siehe ETA-07/XXYZ |
.... (Sofern der Inhalt der CE-Kennzeichnung und der zusätzlichen Angaben nicht für alle Produkte, die von der ETa abgedeckt werden, gleich ist, sind in Übereinstimmung mit den Anforderungen der ETAG für alle möglichen Fälle weitere Beispiele der CE-Kennzeichnung und der zusätzlichen Angaben anzugeben.)
4 Annahmen, unter denen die Brauchbarkeit des Produkts/der Produkte für den vorgesehenen Verwendungszweck positiv beurteilt wurde
4.1 Herstellung
.....(Spezifischer Text, soweit erforderlich)
Die europäische technische Zulassung wurde für das Produkt auf der Grundlage abgestimmter Daten und Informationen erteilt, die bei der Zulassungsstelle ...(Name der Zulassungsstelle) hinterlegt sind und der Identifizierung des beurteilten und bewerteten Produkts dienen. Änderungen am Produkt oder am Herstellungsverfahren, die dazu führen könnten, dass die hinterlegten Daten und Informationen nicht mehr korrekt sind, sind vor ihrer Einführung der Zulassungsstelle ...(Name der Zulassungsstelle) mitzuteilen. Die Zulassungsstelle ...(Name der Zulassungsstelle) wird darüber entscheiden, ob sich solche Änderungen auf die Zulassung und folglich auf die Gültigkeit der CE-Kennzeichnung auf Grund der Zulassung auswirken oder nicht, und ggf. feststellen, ob eine zusätzliche Beurteilung oder eine Änderung der Zulassung erforderlich ist.
4.2 Einbau
.....(Spezifischer Text, soweit erforderlich)
5 Vorgaben für den Hersteller
5.1 Verpackung, Transport und Lagerung
.....(Spezifischer Text, soweit zutreffend)
5.2 Nutzung, Unterhaltung, Instandsetzung
.....(Spezifischer Text, soweit erforderlich)
Anhang - Beschreibung des/der Produkte/s
.....(Spezifischer Text und/oder Zeichnungen soweit sachdienlich)
.....(weitere Anhänge, soweit erforderlich)
Bekanntmachung der Leitlinie für Brandschutzprodukte zum Abdichten und Verschließen von Fugen und Öffnungen und zum Aufhalten von Feuer im Brandfall
(ETAG 026, Teile 1 bis 3)
Vom 7. Oktober 2008
(BAnz. Nr. 8a vom 16.01.2009 S. 1)
Gemäß § 3 Abs. 1 Satz 2 des Bauproduktengesetzes (BauPG) in der Fassung der Bekanntmachung vom 28. April 1998 (BGBl. I S. 812), das zuletzt durch Artikel 76 der Verordnung vom 31. Oktober 2006 (BGBl. I S. 2407) geändert worden ist, wird die folgende Leitlinie der Europäischen Organisation für Technische Zulassungen EOTa bekannt gemacht. Auf Grund dieser Leitlinie können von dafür anerkannten Stellen europäische technische Zulassungen nach Artikel 8 der Bauproduktenrichtlinie bzw. § 6 des BauPG für Brandschutzprodukte zum Abdichten und Verschließen von Fugen und Öffnungen und zum Aufhalten von Feuer im Brandfall erteilt werden.
Deutsche Stelle für die Erteilung europäischer technischer Zulassungen ist das Deutsche Institut für Bautechnik, Kolonnenstraße 30 L, 10829 Berlin.
________
1) Die Darstellungen zeigen lediglich Beispiele hinsichtlich der Schottgröße, Art und Anzahl der Leitungen, Abstände usw.
2) Diese Verwendungen gelten für Feuchtigkeitsklasse 5 in Innenräumen gemäß EN ISO 13788.
3) Die tatsächliche Nutzungsdauer eines in ein bestimmtes Bauwerk eingebauten Produkts wird von den Umgebungsbedingungen, denen dieses Bauwerk ausgesetzt ist, sowie den speziellen Bedingungen der Bemessung, Ausführung, Nutzung und Unterhaltung dieses Bauwerks bestimmt. Deshalb kann nicht ausgeschlossen werden, dass es Fälle gibt, in denen die tatsächliche Nutzungsdauer des Produkts auch kürzer als die angenommene Nutzungsdauer ist.
4) EU-Datenbank siehe: www.Europa.eu.int/comm/enterprise/construction/internal/dangsub/dangmain.htm
5) Abweichend von Dokument N 185, Abschnitt 13.2.2.1, 2. Anstrich, ist für die Verwendung im Sinne dieser Leitlinie nur eine Dicke der Wände zulässig, die nicht geringer ist als die geprüfte Standardkonfiguration. Damit ist eine Übertragung der Ergebnisse auf Wände, die dünner sind als geprüft, ausgeschlossen.
6) Die Beschränkung gilt nur für Abschottungen mit einer maximalen Schottgröße von unter 2 m x 3 m bei Wandeinbau oder 2 m x (unbegrenzt) m bei Einbau in Decken.
7) Diese Beurteilung soll nicht dazu dienen, die Dauerhaftigkeit und Dichtheit von Schutz-Hüllen/-Gehäusen für reaktive Materialien, die selbst nicht dauerhaft sind, zu beurteilen. Diese werden als Teil der reaktiven Komponente bewertet.
8) Nur für dämmschichtbildende Produkte zutreffend
9) Nur für ablative Beschichtungen
10) Nur für ablative Produkte
11) Ein Probekörper wird i.d.R. als ausreichend angesehen. Die endgültige Anzahl der Probekörper muss in der europäischen technischen Zulassung oder den Begleitpapieren angegeben werden.
12) Die angegebenen Abkürzungen stehen für die Häufigkeit der Prüfungen:
1/b = einmal je Charge,
1/10b = einmal je 10 Chargen,
1/6m = einmal in 6 Monaten,
1/h = einmal pro Stunde;
decl = Übereinstimmungserklärung des Zulieferers der Komponente(n)
13) "Methode 1" oder "Methode 2 plus Methode 3" können alternativ gewählt werden, aber die Häufigkeit kann weiter reduziert werden, wenn die Bestandteile/Rohstoffe und ihre zugehörige Masse automatisch erfasst werden (z.B. durch eine Waage mit automatischer Protokollierung) und ein angemessenes Qualitätssicherungssystem eingerichtet ist.
14) Produkte, die gemäß EN 13162 gefertigt wurden, können für die Anwendung in Abschottungen geeignet sein, aber die für diese Anwendung relevanten Eigenschaften "Schmelzpunkt" und "Dichte" werden nicht von EN 13162 abgedeckt.
15) Die folgenden Eigenschaften werden als nicht wesentlich für die Leistung des Feuerwiderstands erachtet: Widerstand gegen Wärmebeanspruchung - Wärmeleitfähigkeit, Zugfestigkeit parallel zur Oberfläche, Druckbeanspruchung oder Festigkeit, Zugfestigkeit rechtwinklig zu den Oberflächen, Punktlast, Druckverformung, Kurzzeit- und Langzeit-Wasseraufnahme, Wasserdampfdiffusion, dynamische Steifigkeit, Dicke dB, Dicke dB und Luftdurchlässigkeit.
16) Im Zusammenhang mit Abschottungen aus beschichteten Mineralfaserplatten ist eine Spachtelmasse das Material, das an den Rändern der Abschottung, zwischen den Mineralfaserplatten und zwischen den Mineralfaserplatten und den durchgeführten Leitungen verwendet wird. Es kann sich um das gleiche Produkt wie die Beschichtung handeln, hat aber eine höhere Viskosität.
17) Nur für ablative Produkte; für die werkseigene Produktionskontrolle einer ablativen Komponente wird eine Kombination von Flexibilität, Masseverlust bei Erhitzen/Gehalt an nicht flüchtigen Bestandteilen und Dichte als ausreichend angesehen. Sofern eine Firma jedoch Geräte und ausgebildetes Personal für LOI-Prüfungen besitzt, kann diese Methode für die werkseigene Produktionskontrolle verwendet werden.
18) Nur für Beschichtungen
19) Wenn die Kissenhülle als Komponente zugekauft wird, so ist für jede Lieferung eine Übereinstimmungserklärung bereitzustellen.
20) Abhängig davon, wie dicht das Ergebnis der Zulassungsprüfung an der zulässigen Temperaturgrenze der Spezifikation liegt.
21) Letztendlich gibt es drei Möglichkeiten, die einzelnen Bestandteile eines Produktes zu identifizieren: Durch einen "Fingerprint" (Kombination von TGA/DTa und IR); durch Hinterlegung der Zusammensetzung und der Rezeptur oder durch Überprüfen von charakteristischen Eigenschaften. Letzteres kann eine Kombination von TG oder DTa und zusätzlich Masseverlust bei Erhitzen/Gehalt an nicht flüchtigen Bestandteilen und Dichte o. ä. beinhalten.
22) Dies kann z.B. für Steine, Kissen oder Schäume relevant sein. Eine Vorprüfung, zum Beispiel unter Verwendung eines Bunsenbrenners, liefert einen Schätzwert für die erforderliche Dicke.
23) Bei der Auswahl der Größe des Probekörpers wurde berücksichtigt, dass die Größe einer einzelnen Öffnung in der europäischen technischen Zulassung zwar aus anderen Gründen, z.B. wegen des Feuerwiderstandsverhaltens, beschränkt sein kann, es aber jederzeit möglich ist, mehrere Abschottungen in einer Wand oder einer Decke unmittelbar nebeneinander anzubringen. Ergebnisse aus Vorprüfungen mit häufig verwendeten Produktarten haben gezeigt, dass die volle Höhe des Probekörpers verwendet werden muss, um ein verlässliches Ergebnis zu erzielen.
24) Anforderung aus der Ausführungsvorschrift einer vergleichbaren Spezifikation
25) Amtsblatt der Europäischen Gemeinschaften L 40 vom 11.02.1989 S. 12
26) Amtsblatt der Europäischen Gemeinschaften L 220 vom 30.08.1993 S. 1
27) Amtsblatt der Europäischen Union L 284 vom 31.10.2003 S. 1
28) Amtsblatt der Europäischen Gemeinschaften L 17 vom 20.01.1994 S. 34
29) Amtsblatt der Europäischen Gemeinschaften L 178 vom 14.07.1999
30) Der Prüf- und Überwachungsplan ist ein vertraulicher Bestandteil der Dokumentation dieser europäischen technischen Zulassung und wird nur der/den in das Konformitätsbescheinigungsverfahren eingeschalteten zugelassenen Stelle/Stellen ausgehändigt. Siehe Abschnitt 3.2.2.
![]() |
weiter | ![]() |
(Stand: 16.06.2018)
Alle vollständigen Texte in der aktuellen Fassung im Jahresabonnement
Nutzungsgebühr: ab 105.- € netto
(derzeit ca. 7200 Titel s.Übersicht - keine Unterteilung in Fachbereiche)
Die Zugangskennung wird kurzfristig übermittelt
? Fragen ?
Abonnentenzugang/Volltextversion