Für einen individuellen Ausdruck passen Sie bitte dieEinstellungen in der Druckvorschau Ihres Browsers an. Regelwerk |
![]() |
FeuVO - Feuerungsverordnung
Verordnung des Ministeriums für Verkehr und Infrastruktur über Anforderungen an Feuerungsanlagen, Wärme- und Brennstoffversorgungsanlagen
- Baden-Württemberg -
Vom 24. November 1995
(GBl. 1995 S. 806; 28.06.2005 S. 609 05; 25.04.2007 S. 252; 25.01.2012 S. 65; 23.02.2017 S. 99 17; 08.12.2020 S. 1182 aufgehoben)
Auf Grund von § 73 Abs. 1 Nr. 1 und 2 und Abs. 8 Nr. 2 der Landesbauordnung für Baden-Württemberg ( LBO) vom 8. August 1995 (GBl. S. 617) wird verordnet:
§ 1 Einschränkung des Anwendungsbereichs
Für Feuerstätten, Wärmepumpen und Blockheizkraftwerke gilt die Verordnung nur, soweit diese Anlagen der Beheizung von Räumen oder der Warmwasserversorgung dienen oder Gas-Haushalts-Kochgeräte sind.
§ 2 Begriffe
(1) Als Nennwärmeleistung gilt
(2) Gesamtnennwärmeleistung ist die Summe der Nennwärmeleistungen der Feuerstätten, die gleichzeitig betrieben werden können.
(3) Schornsteine sind rußbrandbeständige Schächte, die Abgase aus Feuerstätten für feste Brennstoffe über Dach ins Freie leiten.
(4) Verbindungsstücke sind Kanäle oder Leitungen, die Abgase aus Feuerstätten für feste Brennstoffe in Schornsteine leiten.
(5) Abgasleitungen sind Leitungen, die Abgase aus Feuerstätten für flüssige oder gasförmige Brennstoffe ins Freie leiten. Um eine Abgasleitung handelt es sich auch dann, wenn sie in der Bauart eines Schornsteins oder Verbindungsstückes hergestellt wird.
§ 3 Verbrennungsluftversorgung von Feuerstätten
(1) Für raumluftabhängige Feuerstätten mit einer Gesamtnennwärmeleistung bis zu 35 kW gilt die Verbrennungsluftversorgung als nachgewiesen, wenn die Feuerstätten in einem Raum aufgestellt sind, der
(2) Der Verbrennungsluftverbund im Sinne des Absalzes 1 Nr. 2 zwischen dem Aufstellraum und Räumen mit Verbindung zum Freien muß durch Verbrennungsluftöffnungen von mindestens 150 cm2 zwischen den Räumen hergestellt sein. Bei der Aufstellung von Feuerstätten in Nutzungseinheiten, wie Wohnungen, dürfen zum Verbrennungsluftverbund nur Räume derselben Wohnung oder Nutzung gehören. Der Gesamtrauminhalt der Räume, die zum Verbrennungsluftverbund gehören, muß mindestens 4 m3 je 1 kW Gesamtnennwärmeleistung der Feuerstätten betragen. Räume ohne Verbindung zum Freien sind auf den Gesamtrauminhalt nicht anzurechnen.
(3) Für raumluftabhängige Feuerstätten mit einer Gesamtnennwärmeleistung von mehr als 35 kW gilt die Verbrennungsluftversorgung als nachgewiesen, wenn die Feuerstätten in Räumen aufgestellt sind, die eine ins Freie führende Öffnung oder Leitung haben. Der Querschnitt der Öffnung muß mindestens 150 cm2 und für jedes über 35 kW Nennwärmeleistung hinausgehende kW Nennwärmeleistung 2 cm2 mehr betragen. Leitungen müssen strömungstechnisch äquivalent bemessen sein. Der erforderliche Querschnitt darf auf höchstens zwei Öffnungen oder Leitungen aufgeteilt sein.
(4) Verbrennungsluftöffnungen und -leitungen dürfen nicht verschlossen oder zugestellt werden, sofern nicht durch besondere Sicherheitseinrichtungen gewährleistet ist, daß die Feuerstätten nur bei geöffnetem Verschluß betrieben werden können. Der erforderliche Querschnitt darf durch den Verschluß oder durch Gitter nicht verengt werden. Gitter oder ähnliche Einrichtungen müssen Durchtrittsöffnungen von mindestens 10 x 10 mm haben.
(5) Abweichend von den Absätzen 1 bis 3 kann für raumlauftabhängige Feuerstätten eine ausreichende Verbrennungsluftversorgung auf andere Weise nachgewiesen werden.
(6) Die Absätze 1 und 2 gelten nicht für Gas-Haushaltskochgeräte. Die Absätze 1 bis 3 gelten nicht für offene Kamine.
§ 4 Aufstellung von Feuerstätten
(1) Feuerstätten dürfen nicht aufgestellt werden
(2) Raumluftabhängige Feuerstätten dürfen in Räumen, Wohnungen oder Nutzungseinheiten vergleichbarer Größe, aus denen Luft mit Hilfe von Ventilatoren, wie Lüftungs- oder Warmluftheizungsanlagen, Dunstabzugshauben, Abluft-Wäschetrockner abgesaugt wird, nur aufgestellt werden, wenn
(3) Raumluftabhängige Gasfeuerstätten mit Strömungssicherung mit einer Nennwärmeleistung von mehr als 7 kW dürfen in Wohnungen und Nutzungseinheiten vergleichbarer Größe nur aufgestellt werden, wenn durch besondere Einrichtungen an den Feuerstätten sichergestellt ist, daß Abgase in gefahrdrohender Menge nicht in den Aufstellraum eintreten können. Das gilt nicht für Feuerstätten, deren Aufstellräume ausreichend belüftet sind und gegenüber anderen Räumen keine Öffnungen, ausgenommen Öffnungen für Türen, haben; die Türen müssen dicht- und selbstschließend sein.
(4) Gasfeuerstätten ohne Flammenüberwachung dürfen nur in Räumen aufgestellt werden, bei denen durch mechanische Lüftungsanlagen sichergestellt ist, daß während des Betriebes der Feuerstätten stündlich mindestens ein fünffacher Luftwechsel sichergestellt ist; für Gas-Haushalts-Kochgeräte genügt ein Außenluftvolumenstrom von 100 m3/h.
(5) Gasfeuerstätten in Räumen oder die Brennstoffleitungen unmittelbar vor diesen Gasfeuerstätten müssen mit einer Vorrichtung ausgerüstet sein, die
(6) Feuerstätten für Flüssiggas (Propan, Butan und deren Gemische) dürfen in Räumen, deren Fußboden an jeder Stelle mehr als 1 m unter der Geländeoberfläche liegt, nur aufgestellt werden, wenn
(7) Feuerstätten müssen von Bauteilen aus brennbaren Baustoffen und von Einbaumöbeln so weit entfernt oder so abgeschirmt sein, daß an diesen bei Nennwärmeleistung der Feuerstätten keine höheren Temperaturen als 85 °C auftreten können. Andernfalls muß ein Abstand von mindestens 40 cm eingehalten werden.
(8) Vor den Feuerungsöffnungen von Feuerstätten für feste Brennstoffe sind Fußböden aus brennbaren Baustoffen durch einen Belag aus nichtbrennbaren Baustoffen zu schützen. Der Belag muß sich nach vorn auf mindestens 50 cm und seitlich auf mindestens 30 cm über die Feuerungsöffnung hinaus erstrecken.
(9) Bauteile aus brennbaren Baustoffen müssen von den Feuerraumöffnungen offener Kamine nach oben und nach den Seiten einen Abstand von mindestens 80 cm haben. Bei Anordnung eines beiderseits belüfteten Strahlungsschutzes genügt ein Abstand von 40 cm.
§ 5 Aufstellräume für Feuerstätten
(1) Feuerstätten für flüssige und gasförmige Brennstoffe mit einer Gesamtnennwärmeleistung von mehr als 50 kW dürfen nur in Räumen aufgestellt werden,
(2) Brenner und Brennstoffördereinrichtungen der Feuerstätten nach Absatz 1 müssen durch einen außerhalb des Aufstellraumes angeordneten Schalter (Notschalter) jederzeit abgeschaltet werden können. Bei dem Notschalter muß ein Schild mit der Aufschrift "NOTSCHALTER - FEUERUNG" vorhanden sein.
(3) Wird in dem Aufstellraum Heizöl gelagert oder ist der Raum für die Heizöllagerung nur vom Aufstellraum zugänglich, muß die Heizölzufuhr mit dem Notschalter oder von der Stelle des Notschalters aus durch eine entsprechend gekennzeichnete Absperreinrichtung unterbrochen werden können.
(4) Abweichend von Absatz 1 dürfen die Feuerstätten auch in anderen Räumen aufgestellt werden, wenn
§ 6 Heizräume
(1) Feuerstätten für feste Brennstoffe mit einer Gesamtnennwärmeleistung von mehr als 50 kW dürfen nur in besonderen Räumen (Heizräumen) aufgestellt werden; § 5 Abs. 4 Nr. 2 gilt entsprechend. Die Heizräume dürfen
(2) Heizräume müssen
(3) Wände, ausgenommen nichttragende Außenwände, und Stützen von Heizräumen sowie Decken über und unter ihnen müssen feuerbeständig sein. Deren Öffnungen müssen, soweit sie nicht unmittelbar ins Freie führen, mindestens feuerhemmende und selbstschließende Abschlüsse haben. Die Sätze 1 und 2 gelten nicht für Trennwände zwischen Heizräumen und den zum Betrieb der Feuerstätten gehörenden Räumen, wenn diese Räume die Anforderungen der Sätze 1 und 2 erfüllen.
(4) Heizräume müssen zur Raumlüftung jeweils eine obere und eine untere Öffnung ins Freie mit einem Querschnitt von mindestens je 150 cm2 oder Leitungen ins Freie mit strömungstechnisch äquivalenten Querschnitten haben. Der Querschnitt einer Öffnung oder Leitung darf auf die Verbrennungsluftversorgung nach § 3 Abs. 3 angerechnet werden.
(5) Lüftungsleitungen für Heizräume müssen eine Feuerwiderstandsdauer von mindestens 90 Minuten haben, soweit sie durch andere Räume führen, ausgenommen angrenzende, zum Betrieb der Feuerstätten gehörende Räume, die die Anforderungen nach Absatz 3 Sätze 1 und 2 erfüllen. Die Lüftungsleitungen dürfen mit anderen Lüftungsanlagen nicht verbunden sein und nicht der Lüftung anderer Räume dienen.
(6) Lüftungsleitungen, die der Lüftung anderer Räume dienen, müssen, soweit sie durch Heizräume führen.
§ 7 Abgasanlagen
(1) Ohne Abgasanlage sind zulässig:
(2) Die Abgase von Gasfeuerstätten mit abgeschlossenem Verbrennungsraum, denen die Verbrennungsluft durch dichte Leitungen vom Freien zuströmt (raumluftunabhängige Gasfeuerstätten), dürfen durch die Außenwand ins Freie geleitet werden, wenn
und Gefahren oder unzumutbare Belästigungen nicht entstehen.
(3) Die Abgase von Feuerstätten für feste Brennstoffe müssen in Schornsteine eingeleitet werden.
(4) Luft-Abgas-Systeme sind zur Abgasabführung nur zulässig, wenn sie getrennte Luft- und Abgasschächte haben. An diese Systeme dürfen nur raumluftunabhängige Feuerstätten angeschlossen werden, deren Bauart sicherstellt, daß sie für diese Betriebsweise geeignet sind.
(5) Die Abgasanlagen müssen nach lichtem Querschnitt und Höhe, soweit erforderlich auch nach Wärmedurchlaßwiderstand und innerer Oberfläche, so bemessen sein, daß die Abgase bei allen bestimmungsgemäßen Betriebszuständen ins Freie abgeführt werden und gegenüber Räumen kein gefährlicher Überdruck auftreten kann.
(6) Mehrere Feuerstätten dürfen an einen gemeinsamen Schornstein, an eine gemeinsame Abgasleitung oder an ein gemeinsames Verbindungsstück nur angeschlossen werden, wenn
(7) In Gebäuden muß jede Abgasleitung in einem eigenen Schacht angeordnet sein. Dies gilt nicht für Abgasleitungen in Aufstellräumen für Feuerstätten sowie für Abgasleitungen, die mit Unterdruck betrieben werden und eine Feuerwiderstandsdauer von mindestens 90 Minuten haben. Die Anordnung mehrerer Abgasleitungen in einem gemeinsamen Schacht ist zulässig, wenn
Die Schächte müssen eine Feuerwiderstandsdauer von mindestens 90 Minuten, in Wohngebäuden geringer Höhe von mindestens 30 Minuten haben.
(8) Schornsteine müssen
Fußböden aus brennbaren Baustoffen unter Reinigungsöffnungen sind durch nichtbrennbare Baustoffe zu schützen, die nach vorn mindestens 50 cm und seitlich mindestens 20 cm über die Öffnungen vorspringen.
(9) Schornsteine, Abgasleitungen und Verbindungsstücke, die mit Überdruck betrieben werden, müssen innerhalb von Gebäuden
Für Abgasleitungen genügt, wenn sie innerhalb von Gebäuden über die gesamte Länge hinterlüftet sind.
(10) Verbindungsstücke und Abgasleitungen dürfen nicht in Decken, Wänden oder unzugänglichen Hohlräumen angeordnet, Verbindungstücke außerdem nicht in andere Geschosse geführt werden.
§ 8 Abstände von Abgasanlagen zu brennbaren Bauteilen sowie zu Fenstern
(1) Schornsteine müssen
Zwischenräume zwischen der Außenfläche von Schornsteinen und angrenzenden Bauteilen müssen mit nichtbrennbaren, formbeständigen Baustoffen geringer Wärmeleitfähigkeit ausgefüllt sein.
(2) Abgasleitungen, die nicht in Schächte eingebaut sind, müssen von Bauteilen aus brennbaren Baustoffen einen Abstand von mindestens 20 cm haben. Es genügt ein Abstand von mindestens 5 cm, wenn die Abgasleitungen mindestens 2 cm dick mit nichtbrennbaren Dämmstoffen ummantelt sind oder wenn die Abgastemperatur der Feuerstätten bei Nennwärmeleistung nicht mehr als 160 °C betragen kann.
(3) Verbindungsstücke zu Schornsteinen müssen von Bauteilen aus brennbaren Baustoffen einen Abstand von mindestens 25 cm einhalten. Es genügt ein Abstand von mindestens 10 cm zu fest aufgeklebten Tapeten, oder wenn die Verbindungsstücke mindestens 2 cm dick mit nichtbrennbaren Dämmstoffen ummantelt sind.
(4) Abgasleitungen sowie Verbindungsstücke zu Schornsteinen müssen, soweit sie durch Bauteile aus brennbaren Baustoffen führen,
Abweichend von Satz 1 genügt ein Abstand von 5 cm, wenn die Abgastemperatur der Feuerstätten bei Nennwärmeleistung nicht mehr als 160 °C betragen kann oder Gasfeuerstätten eine Strömungssicherung haben.
(5) Abgasleitungen an Gebäuden müssen von Fenstern einen Abstand von mindestens 20 cm haben.
(6) Geringere Abstände als nach den Absätzen 1 bis 4 sind zulässig, wenn sichergestellt ist, daß an den Bauteilen aus brennbaren Baustoffen bei Nennwärmeleistung der Feuerstätten keine höheren Temperaturen als 85 °C auftreten können.
§ 9 Höhe der Mündungen von Schornsteinen und Abgasleitungen über Dach
(1) Die Mündungen von Schornsteinen und Abgasleitungen müssen
(2) Abweichend von Absatz 1 Nr. 1 und 2 können weitergehende Anforderungen gestellt werden, wenn Gefahren oder unzumutbare Belästigungen zu befürchten sind.
§ 10 Aufstellung von Wärmepumpen, Blockheizkraftwerken und ortsfesten Verbrennungsmotoren 17
(1) Für die Aufstellung von
gelten § 3 Abs. 1 bis 5 sowie § 4 Abs. 1 bis 7 entsprechend.
(2) Es dürfen
nur in Räumen aufgestellt werden, die die Anforderungen nach § 5 erfüllen.
Die Anforderungen der Verordnung des Wirtschaftsministeriums über elektrische Betriebsräume ( EltVO) vom 28. Oktober 1975 (GBl. S. 788) bleiben unberührt.
§ 11 Abführung der Ab- oder Verbrennungsgase von Wärmepumpen, Blockheizkraftwerken und ortsfesten Verbrennungsmotoren
(1) Die Verbrennungsgase von Blockheizkraftwerken und ortsfesten Verbrennungsmotoren in Gebäuden sind durch eigene, dichte Leitungen über Dach abzuleiten. Mehrere Verbrennungsmotoren dürfen an eine gemeinsame Leitung angeschlossen werden, wenn die einwandfreie Abführung der Verbrennungsgase nachgewiesen ist. Die Leitungen dürfen außerhalb der Aufstellräume der Verbrennungsmotoren nur nach Maßgabe von § 7 Abs. 7 und 9 sowie § 8 angeordnet sein.
(2) Die Einleitung der Verbrennungsgase in Schornsteine oder Abgasleitungen für Feuerstätten ist nur zulässig, wenn die einwandfreie Abführung der Verbrennungsgase und, soweit Feuerstätten angeschlossen sind, auch die einwandfreie Abführung der Abgase nachgewiesen ist.
(3) Für die Abführung der Abgase von Sorptionswärmepumpen mit feuerbeheizten Austreibern und Abgaswärmepumpen gelten die §§ 7 bis 9 entsprechend.
§ 12 Brennstofflagerung in Brennstofflagerräumen
(1) Je Gebäude oder Brandabschnitt dürfen
nur in besonderen Räumen (Brennstofflagerräumen) gelagert werden, die nicht zu anderen Zwecken genutzt werden dürfen. Das Fassungsvermögen der Behälter darf insgesamt 100.000 L Heizöl oder Dieselkraftstoff oder 6500 L Flüssiggas je Brennstofflagerraum und 30.000 L Flüssiggas je Gebäude oder Brandabschnitt nicht überschreiten.
(2) Wände und Stützen von Brennstofflagerräumen sowie Decken über oder unter ihnen müssen feuerbeständig sein. Durch Decken und Wände von Brennstofflagerräumen dürfen keine Leitungen geführt werden, ausgenommen Leitungen, die zum Betrieb dieser Räume erforderlich sind, sowie Heizrohrleitungen, Wasserleitungen und Abwasserleitungen. Türen von Brennstofflagerräumen müssen mindestens feuerhemmend und selbstschließend sein. Die Sätze 1 und 3 gelten nicht für Trennwände zwischen Brennstofflagerräumen und Heizräumen.
(3) Brennstofflagerräume für flüssige Brennstoffe
Bei Lagerung von mehr als 20.000 L Heizöl kann verlangt werden, daß der Brennstofflagerraum von der Feuerwehr vom Freien aus beschäumt werden kann.
(4) Brennstofflagerräume für Flüssiggas
§ 13 Brennstofflagerung außerhalb von Brennstofflagerräumen
(1) In Wohnungen dürfen gelagert werden
oberhalb der Geländeoberfläche liegen und außer Abläufen mit Flüssigkeitsverschluß keine Öffnungen haben.
(2) In sonstigen Räumen dürfen Heizöl oder Dieselkraftstoff von mehr als 1000 L und nicht mehr als 5000 L je Gebäude oder Brandabschnitt gelagert werden, wenn sie
(3) Sind in den Räumen nach Absatz 2 Feuerstätten aufgestellt, müssen diese
ein Strahlungsschutz vorhanden ist.
§ 14 Druckbehälter für Flüssiggas 05
(1) Für Druckbehälter für Flüssiggas im Sinne des § 1 Abs. 2 Satz 1 Nr. 1 Buchst. b der Betriebssicherheitsverordnung ( BetrSichV) vom 27. September 2002 (BGBl. I S. 3777), zuletzt geändert durch Artikel 9 der Verordnung vom 23. Dezember 2004 (BGBl. I S. 3758), einschließlich der für ihren sicheren Betrieb erforderlichen Einrichtungen, die weder gewerblichen noch wirtschaftlichen Zwecken dienen und in deren Gefahrenbereich auch keine Arbeitnehmer beschäftigt werden, gelten §§ 2, 12, 14 bis 21 und 25 bis 27 BetrSichV entsprechend mit folgenden Maßgaben:
(2) Um die Anlagen nach Absatz 1 zur Lagerung von Flüssiggas im Freien sind Schutzzonen entsprechend dem Anhang zu dieser Verordnung einzurichten.
(3) Soweit durch die in Absatz 1 genannten gewerberechtlichen Vorschriften Zuständigkeitsregelungen berührt sind, entscheiden bei Anlagen im Anwendungsbereich der Landesbauordnung die Baurechtsbehörden im Benehmen mit den Gewerbeaufsichtsbehörden.
§ 16 Inkrafttreten
Diese Verordnung tritt am 1. Januar 1996 in Kraft.
| Schutzzonen um Flüssiggas-Behälter im Freien gemäß TRB 610 ≫Druckbehälter, Aufstellung von Druckbehältern zum Lagern von Gasen≪ |
Anhang zu § 14 Abs. 2 |
1 Um die Armaturen (Peilventil) im Freien aufgestellter Flüssiggas-Behälter ist ein explosionsgefährdeter Bereich sowie ein Abstand zu Kanälen, Schächten und Öffnungen einzuhalten. Blindgeschlossene Anschlüsse sind wie öffnungslose Behälterwände zu betrachten. Oberirdisch im Freien aufgestellte Flüssiggas-Behälter müssen zudem, falls in der Umgebung eine Brandlast besteht, vor dieser geschützt sein.
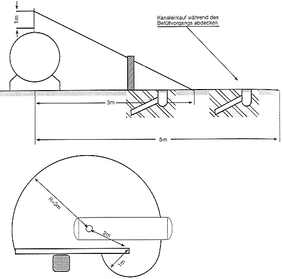
2 Der explosionsgefährdete Bereich unterteilt sich in einen ständig einzuhaltenden Bereich a (Zone 1) und einen temporären Bereich B (Zone 2), der nur während der Befüllung einzuhalten ist. Die Bemessung dieser explosionsgefährdeten Bereiche sowie Beispiele für deren geometrische Gestaltung, sind den Bildern 1 und 2 zu entnehmen. In den exploslonsgefährdeten Bereichen sind Zündquellen zu vermeiden Der Bereich a darf sich nicht auf Nachbargrund stücke oder öffentliche Verkehrsflächen erstrecken. Der Bereich B darf während der Befüllung von Dritten nicht betreten und durchfahren werden.
3 Eine Einschränkung des explosionsgefährdeten Bereiches ist durch bauliche Maßnahmen, wie z.B. öffnungslose Wände aus nichtbrennbaren Baustoffen, an bis zu zwei Seiten zulässig. Bei einer Einschränkung an mehr als zwei Seiten sind ergänzende Lüftungsmaßnahmen vorzunehmen. Die Abtrennungen müssen mindestens so hoch sein, wie die Ausdehnung der Explosionsbereiche am Ort der Abtrennungen.
4 innerhalb eines Abstandes von 3 m um den Projektionspunkt der Anschlüsse auf die Erdoberfläche dürfen keine offenen Kanäle, gegen Gaseintritt ungeschützte Kanaleinläufe, offene Schächte, Öffnungen zu tiefer liegenden Räumen (Kellerschächte) oder Luftansaugöffnungen angeordnet sein. Während des Befüllvorganges erweitert sich dieser Abstand temporär von 3 m auf 5 m.
5 Eine Einschränkung des Abstandes nach Nr. 4 ist durch bauliche Maßnahmen, wie z.B. öffnungslose Wände aus nichtbrennbaren Baustoffen, an bis zu zwei Seiten zulässig. Bei einer Einschränkung an mehr als zwei Seiten sind ergänzende Lüftungsmaßnahmen vorzunehmen. Die Höhe und die Länge der Abtrennungen sind gemäß Bild 3 zu bestimmen.
Schutzzone um Flüssiggasgehälter im Freien
Bild 1: Explosionsgefährdeter Bereich bei oberirdischer Aufstellung
![]() |
|
| Bereich A: | Ständig, im kugelförmig |
| Bereich B: | Nur während des Befüllvorganges, tangential an Bereich a anschließender Kegel von 3 m |
Bild 2a: Explosionsgefährdeter Bereich bei erdgedeckter Einlagerung während des Betriebs
Bild 2b: Explosionsgefährdeter Bereich bei erdgedeckter Einlagerung während der Befüllung
Bild 3: Bauliche Maßnahmen zur Reduzierung des Abstandes zu Kanälen, Schächte und Öffnungen

![]() |
ENDE | ![]() |
(Stand: 04.07.2022)
Alle vollständigen Texte in der aktuellen Fassung im Jahresabonnement
Nutzungsgebühr: ab 105.- € netto
(derzeit ca. 7200 Titel s.Übersicht - keine Unterteilung in Fachbereiche)
Die Zugangskennung wird kurzfristig übermittelt
? Fragen ?
Abonnentenzugang/Volltextversion