Für einen individuellen Ausdruck passen Sie bitte dieEinstellungen in der Druckvorschau Ihres Browsers an. Regelwerk, Bau- und Planungsrecht, Hamburg |
![]() |
BPD 5/2012 - BTa - Brandschutztechnische Auslegungen
- Hamburg -
Vom 23. September 2014
(BPD 23.09.2014; 28.09.2023 aufgehoben)
Archiv:1996-3, 1997-3, 2007-1
Siehe Fn. *
1. Gegenstand des Bauprüfdienstes
Die Hamburgische Bauordnung beinhaltet eine Vielzahl von Vorschriften, die sich mit der Thematik des Brandschutzes auseinandersetzen.
Der vorliegende Bauprüfdienst soll die Inhalte der Brandschutzvorschriften erläutern und Beispiele für mögliche Ausführungen geben.
Weitergehende Anforderungen, die sich aus Sonderbauvorschriften (z.B. Versammlungsstättenverordnung) ergeben können, sind in diesem Bauprüfdienst nicht berücksichtigt.
Dieser Bauprüfdienst ersetzt die Bauprüfdienste (BPD):
2. Rechtsgrundlagen und Normen
2.1 Gesetze
Die Grundlage der Auslegungen und Hinweise dieses Bauprüfdienstes ist die Hamburgische Bauordnung vom 14.12.2005, zuletzt geändert am 20.12.2011 (HmbGVBl. Seite 554).
2.2 Normen
Dieser Bauprüfdienst nimmt Bezug auf die Liste der(Red. Anm.: Zusammenfassung der aktuellen Richtlinien und Normen in VV TB) Technischen Baubestimmungen in der jeweils gültigen Fassung mit zugehörigen Anlagen:
sowie auf
die Bauregellisten a und B in der jeweils aktuellen Fassung mit zugehörigen Anlagen (siehe insbesondere Anlage 0.1 zur Bauregelliste a Teil 1)(Red. Anm.: Jetzt VV TB) (s. www.dibt.de)
3. Zuständigkeit
Zuständig 1 für die Prüfung der Brandschutzbelange nach der Hamburgischen Bauordnung ( HBauO) sind die Bauaufsichtsbehörden der Bezirksämter. Abweichend hiervon werden die Aufgaben im Hafennutzungsgebiet von der Hamburg Port Authority und im Bereich der Kehrwiederspitze, Speicherstadt, HafenCity und den Vorbehaltsgebieten von der Behörde für Stadtentwicklung und Umwelt wahrgenommen.
Im Zustimmungsverfahren ( § 64 HBauO) erfolgt die Prüfung durch die Behörde für Stadtentwicklung und Umwelt.
Zu den jeweiligen Belangen können die jeweils sachverständigen Stellen bei der BSU als auch bei der Feuerwehr beteiligt werden.
Hier stehen als sachverständige Stellen bei der Behörde für Stadtentwicklung und Umwelt das Amt für Bauordnung und Hochbau, Oberste Bauaufsicht (BSU/ABH 2) und die Abteilung für Bautechnik, Baustatik und Gebäudetechnik (BSU/ABH 3) zur Verfügung.
Ebenso steht die Behörde für Inneres und Sport, Feuerwehr, Abteilung Vorbeugender Brandschutz (BIS/F04) als sachverständige Stelle zur Verfügung.
4. Auslegungen zu den einschlägigen Brandschutzvorschriften der HBauO
Im Folgenden werden Auslegungen, Hinweise und Ausführungsvorschläge zu den für den Brandschutz relevanten Paragraphen der HBauO gegeben.
§ 2 Begriffe
Zu § 2 Abs. 2; Begriff des Gebäudes
Gebäude sind selbstständig benutzbare bauliche Anlagen, die überdeckt sind, von Menschen betreten werden können und geeignet oder bestimmt sind, dem Schutz von Menschen, Tieren oder Sachen zu dienen.
Eine Reihenhauszeile oder eine in ähnlicher Weise gebaute Gebäudegruppe enthält somit eine Mehrzahl von Gebäuden; Gebäude ist hier jede einzelne Einheit ("Reihenhausscheibe"). Sie sind unabhängig von Grundstücksgrenzen durch Gebäudeabschlusswände (siehe auch Auslegung zu § 28 Abs. 2 Nr. 1 HBauO) voneinander zu trennen. Notwendig ist nicht, dass sie in statischer und konstruktiver Hinsicht abtrennbar sind (siehe auch § 15 Abs. 2 HBauO).
Bei Tiefgaragen unter Gebäudezeilen kann eine Brand- und Rauchübertragung in darüber liegende Gebäudeabschnitte in der Regel ausgeschlossen werden. Gebäudeabschlusswände in den aufgehenden Geschossen müssen nicht in das Tiefgaragengeschoss geführt werden, es sei denn, das aufgehende Gebäude liegt an der Grundstücksgrenze. Soll auch an Grundstücksgrenzen auf die Ausbildung der Gebäudeabschlusswand verzichtet werden, ist zusätzlich eine Baulast zu begründen.
Zu § 2 Abs. 4 Satz 1 Nr. 17; Räume mit Explosions- oder erhöhter Brandgefahr
Eine Explosionsgefahr ist gegeben, wenn in einer baulichen Anlage die Gefahr des Auftretens einer explosionsfähigen Atmosphäre in gefahrdrohender Menge nicht ausgeschlossen werden kann (siehe auch Betriebssicherheitsverordnung - BetrSichV).
Zu den Räumen mit Explosions- oder erhöhter Brandgefahr gehören z.B. Lager für brennbare Flüssigkeiten, Feuerwerkslager und -fabriken, Spritzlackierräume, Lackfabriken, Holzverarbeitungsbetriebe, Tankstellen (siehe auch Auslegung zu § 27 Abs. 2 Nr. 2).
Ob eine erhöhte Brandgefahr vorliegt, hängt von der Brennbarkeit der Materialien und Gegenstände, ihrer Lagerungsmenge und der Lagerungsweise ab.
Eine erhöhte Brandgefahr liegt vor, wenn brandfördernde, leichtentzündliche oder hochentzündliche Stoffe entsprechend den Gefährdungsmerkmalen nach der Verordnung zum Schutz vor Gefahrstoffen (Gefahrstoffverordnung GefStoffV) in nicht geringen Mengen gelagert, be- oder verarbeitet werden.
§ 5 Zugänge und Zufahrten auf den Grundstücken
Zu § 5 Abs. 3; Aufstell- und Bewegungsflächen für Fahrzeuge der Feuerwehr
Anforderungen an Aufstell- und Bewegungsflächen für die Feuerwehr sind der "Richtlinie über Flächen für die Feuerwehr auf Grundstücken" zu entnehmen (siehe Nr. 7.4 mit zugehöriger Anlage 7.4/1 der Technischen Baubestimmungen).
Soll für die Feuerwehraufstell- und Bewegungsflächen der öffentliche Grund (Straße) herangezogen werden, kann die oben genannte Richtlinie in Analogie für den öffentlichen Straßenraum herangezogen werden. Des Weiteren sind Abstimmungen mit dem Träger der Wegebaulast (Management des öffentlichen Raumes) erforderlich. Lassen die örtlichen Verhältnisse auf dem Straßengrundstück die Erreichbarkeit der vorgesehenen Rettungsöffnungen (Fenster) nicht zu, ist der zweite Rettungsweg auf andere Art nachzuweisen.
Darüber hinaus sind die Ausführungen des Bauprüfdienstes "Erschließung" (siehe Nr. 7.1 und 7.2 des BPD 3/2010) zu den Themen:
zu beachten.
§ 15 Standsicherheit
Zu § 15 Abs. 1 Satz 2; Standsicherheit im Brandfall
Führung des Standsicherheitsnachweises
Für den Nachweis der Standsicherheit von Bauteilen im Brandfall kann zwischen zwei Verfahren gewählt werden:
Der Standsicherheitsnachweis über Naturbrandszenarien gilt nur für die jeweils zugrunde gelegte Nutzung.
Anforderungen an Glasbauteile und -fassaden über Rettungswegen
Glasfassaden und Glasdächer über Rettungswegen einschließlich ihrer Ausgänge ins Freie müssen im Brandfall ausreichend feuerwiderstandsfähig für Vertikal- und Horizontallasten ausgebildet sein.
Die Bauteile dieser Konstruktionen dürfen im Brandfall innerhalb eines Zeitraums von 30 Minuten nicht großflächig abfallen, um eine Gefährdung von Personen beim Verlassen des Gebäudes zu vermeiden. Gleiches gilt für Versammlungsstätten und Atrien.
§ 22 Übereinstimmungsnachweis
Zu § 22 Abs. 4; Brandverhaltensklassen im Ü-Zeichen und im CE-Zeichen
Bei Bauprodukten nach Bauregelliste a Teil 1 und Teil 2 (Red. Anm.: Jetzt VV TB) bzw. nach allgemeiner bauaufsichtlicher Zulassung, an die Anforderungen an das Brandverhalten gestellt werden, muss die Brennbarkeitsklasse des Baustoffes bzw. die Feuerwiderstandsklasse des Bauteils aus dem erforderlichen Übereinstimmungszeichen (Ü-Zeichen gemäß Übereinstimmungszeichenverordnung - ÜZVO-) hervorgehen.
Bei Bauprodukten nach Bauregelliste B(Red. Anm.: Jetzt VV TB) müssen die europäischen Klassen zum Brandverhalten aus der europäischen Konformitätszeichnung (CE-Zeichen) hervorgehen. Die erforderlichen Angaben zur CE-Konformitätskennzeichnung sind den europäischen Normen und europäischen technischen Zulassungen zu entnehmen. Für den Fall, dass Eigenschaften harmonisierter Bauprodukte, die z.B. für den Brandschutz der Bauwerke von erheblicher Bedeutung sind, in europäischen harmonisierten Normen oder europäischen technischen Zulassungen (ETA) nicht oder nicht ausreichend beschrieben sind, werden in der Bauregelliste B(Red. Anm.: Jetzt VV TB) Zusatzanforderungen gestellt, die zur zusätzlichen Ü-Kennzeichnung nach Maßgabe bauaufsichtlicher Vorschriften führen (siehe Bauregelliste B Teil 1, Spalte 4 bzw. Bauregelliste B Teil 2, Spalte 5)(Red. Anm.: Jetzt VV TB).
Die Bauregellisten werden jährlich überarbeitet und vom DIBt herausgegeben. Sie werden in den DIBt Mitteilungen veröffentlicht. Alternativ sind sie online (www.dibt.de) zu beziehen.
§ 24 Allgemeine Anforderungen an das Brandverhalten von Baustoffen und Bauteilen
Zu § 24 Abs. 1 und 2; Europäische Klassifizierung für den Brandschutz
Das europäische Klassifizierungssystem nach DIN EN 13501 für den Brandschutz ist seit Veröffentlichung der Bauregelliste Ausgabe 2002/1 in das deutsche Bauordnungsrecht eingeführt und kann alternativ zum nationalen Klassifizierungssystem nach DIN 4102 angewendet werden, soweit die notwendigen Prüf- und Klassifizierungsnormen zur Verfügung stehen (s. Bauregelliste a Teil 1, Anlage 0.1) (Red. Anm.: Jetzt VV TB).
Die Zuordnung der nationalen Brandverhaltensklassen nach DIN 4102 und der europäischen Klassen nach DIN EN 13501 zu den bauaufsichtlichen Anforderungen (Baustoffe: nichtbrennbar, schwerentflammbar, normalentflammbar bzw. Bauteile: feuerbeständig, hochfeuerhemmend, feuerhemmend), ergibt sich aus der Bauregelliste a Teil 1, Anlage 0.1 (Red. Anm.: Jetzt VV TB).
In den Anhängen zu diesem Bauprüfdienst ist die Anlage 0.1 der Bauregelliste a Teil 1(Red. Anm.: Jetzt VV TB) auszugsweise wiedergegeben.
Die Zuordnung der Klassen nach DIN 4102 bzw. nach DIN EN 13501 zu den bauaufsichtlichen Anforderungen ersetzt nicht die für die jeweiligen Bauprodukte und Bauarten vorgeschriebenen bauaufsichtlichen Verwendbarkeits- bzw. Anwendbarkeitsnachweise (allgemeine bauaufsichtliche Prüfzeugnisse [abP], allgemeine bauaufsichtliche Zulassungen [abZ], europäische Zulassungen [ETA]).
Bei geregelten Bauprodukten nach Bauregelliste a Teil 1(Red. Anm.: Jetzt VV TB), erfolgt die Klassifizierung des Brandverhaltens (Brennbarkeit, Feuerwiderstandsfähigkeit) im Rahmen des Übereinstimmungsnachweises.
Bei CE- gekennzeichneten Bauprodukten erfolgt die Klassifizierung des Brandverhaltens im Rahmen des europäischen Konformitätsnachweises.
Bei nicht geregelten Bauprodukten nach Bauregelliste a Teil 2(Red. Anm.: Jetzt VV TB) und bei nicht geregelten Bauarten nach Bauregelliste a Teil 3 (Red. Anm.: Jetzt VV TB), ist das Brandverhalten durch ein allgemeines bauaufsichtliches Prüfzeugnis, bei anderen nicht geregelten Bauprodukten und Bauarten durch eine allgemeine bauaufsichtliche Zulassung nachzuweisen.
Die europäische Klassifizierung der Feuerwiderstandsfähigkeit von Bauteilen berücksichtigt im Gegensatz zur nationalen Feuerwiderstandsklassifizierung, nicht das Brandverhalten der Baustoffe (Bauteilkomponenten). Das Brandverhalten der Baustoffe feuerwiderstandsfähiger Bauteile wird deshalb nach DIN EN 13501-1 zusätzlich bestimmt.
Zu § 24 Abs. 2; Anstrich-/Beschichtungssysteme zur Verbesserung des Feuerwiderstandes von Stahlbauteilen
Die zugelassenen Anstrichsysteme dürfen nur von speziell geschulten Fachkräften aufgetragen werden. Die fachgerechte Ausführung wird vom Prüfingenieur im Rahmen der Bauüberwachung mit einem Schichtdickenmessgerät stichprobenartig geprüft.
Zu § 24 Abs. 2 Satz 1; Feuerwiderstand unterstützender Bauteile
Die für die Bauteile geforderten Feuerwiderstandsfähigkeiten gelten auch für deren unterstützenden Bauteile sowie alle für die Standsicherheit im Brandfall bedeutsamen Aussteifungen, Verbände und Verbindungen.
Zu § 24 Abs. 2 Satz 2 Nr. 3; Hochfeuerhemmende Bauteile nach der HFHHolzR
Bei der Herstellung hochfeuerhemmender Bauteile nach § 24 Abs.2 Satz 2 Nr. 3 ist die Holzbaurichtlinie zu beachten.
Der Anwendungsbereich betrifft Holztafel-, Holzrahmen- und Fachwerkbauweisen, die einen gewissen Grad der Vorfertigung aufweisen. Sie müssen als
klassifiziert sein.
Das Brandschutzvermögen der "brandschutztechnisch wirksamen Bekleidung aus nichtbrennbaren Baustoffen" (Brandschutzbekleidung) muss hierfür zusätzlich zur Feuerwiderstandsfähigkeit des Bauteiles nachgewiesen und nach DIN EN 13501-2 mitK2 60 klassifiziert sein. Die Leistungsmerkmale des Bauproduktes müssen aus dem Übereinstimmungszeichen hervorgehen. Als Nachweis der Verwendbarkeit ist ein allgemeines bauaufsichtliches Prüfzeugnis (abP) erforderlich.
Bauarbeiten nach der HFHHolzR dürfen nur von Unternehmen ausgeführt werden, die für diese Arbeiten geeignet sind ( § 56 HBauO). Die ordnungsgemäße Bauausführung muss nach Abschnitt 6 dieser Richtlinie vom Prüfingenieur überwacht und bescheinigt werden.
Hinweis zur Brandschutzbekleidung von hochfeuerhemmenden Bauteilen nach § 24 Abs.2 Satz 2 Nr. 3 HBauO (s. auch Bauregelliste a Teil 1, Anlage 0.1.1) (Red. Anm.: Jetzt VV TB):
Die Brandschutzbekleidung muss die brennbaren, tragenden und aussteifenden Bestandteile der Bauteile über einen Zeitraum von 60 Minuten "einkapseln". Dieses Leistungskriterium der Brandschutzbekleidung kann im Rahmen der Feuerwiderstandsprüfungen nach DIN 4102 Teile 2 und 3 nicht nachgewiesen werden. Die Fähigkeit der Bekleidung, den darunter liegenden brennbaren Baustoff gegen Entzündung, Verkohlung und andere Schäden während der Normbrandprüfdauer zu schützen, wird daher nach der europäischen Norm DIN EN 14135 geprüft. Brandschutzbekleidungen, die einen entsprechenden Schutz über die Normbranddauer von 60 Minuten aufweisen, werden als K2 60 klassifiziert, wobei der Buchstabe "K" für "Kapselung" steht ("Kapselklasse 60").
Außer den Bauweisen gemäß HFHHolzR können auch andere Arten des Holzbaues (z.B. Holz-Massivbauweisen wie Brettstapel- oder Blockbauweise) im Wege der Abweichung gemäß § 69 HBauO zugelassen werden.
§ 25 Tragende Wände, Stützen
Zu § 25 Abs. 1 Satz 3 Nr. 1; Tragende Wände und Stützen im Dachraum
Anforderungen an tragende Wände und Stützen werden auch an Aufenthaltsräume im Dachraum gestellt, wenn im darüber liegenden Geschoss die (nachträgliche) Errichtung eines Aufenthaltsraumes möglich ist (siehe auch Auslegung zu § 29 Abs. 1 Satz 3 Nr.1).
Zu § 25 Abs. 1 Satz 3 Nr. 2; Feuerwiderstandsfähigkeit von Balkonen
Balkone, über die der zweite Rettungsweg geführt werden soll, bedürfen keiner Feuerwiderstandsfähigkeit.
§ 26 Außenwände
Für nichttragende Außenwände gelten folgende Anforderungen:
| Bauteil / Gebäudeklasse |
1 |
2 |
3 |
4 |
5 |
| Außenwand |
- |
- |
- |
nicht brennbar oder feuerhemmend |
|
| Außenwand mit geschossübergreifenden Hohlräumen |
besondere Vorkehrungen |
||||
| Oberflächen und Bekleidungen, einschließlich Dämmstoffen und Unterkonstruktionen |
- |
- |
- |
Schwer entflammbar |
|
Hinweis:
Wenn Scheiben einer Ganzglasfassade auch als Absturzsicherung dienen, sind die Technischen Regeln für die Verwendung von absturzsichernden Verglasungen - TRAV (siehe Liste der Technischen Baubestimmungen Nr. 2.6.7) zu beachten.
Zu § 26 Abs. 1; Ganzglasfassaden als Außenwände
Decken und Wände mit Anforderungen an den Feuerwiderstand (z.B. Trennwände oder Brandwände) müssen so an die Glasfassaden angeschlossen werden, dass vor dem Versagen der Fassadenverglasung (Bersten der Scheiben, Verlust des Raumabschlusses) Rauch und Feuer nicht in darüber oder daneben angrenzende Räume dringen können. Versagt die Fassadenscheibe des Brandentstehungsraumes, so darf dies nicht zum gleichzeitigen Versagen einer Fassadenscheibe des benachbarten Brandabschnittes führen.
Bei Anschlüssen an Brandwände müssen die Anschlüsse den zusätzlichen mechanischen Beanspruchungen (bei GK 4 und 5) nicht standhalten. Dies gilt für eine Tiefe des Anschlusses bis zu 0,35 m.
Zu § 26 Abs. 2 Satz 2; Fensterprofile, Fugendichtungen
Ausgenommen von den Anforderungen an Außenwände sind Fensterrahmen und Fugendichtungen. Die Erleichterung ist vertretbar, da diese Bauteile eine punkt- oder linienförmige Ausdehnung und geringe Abmessungen haben. Begünstigt sind allerdings nur einzelne - in der Regel öffenbare - Fenster. Die Begünstigung ist nicht übertragbar auf ganze Fassadenkonstruktionen z.B. Ganzglasfassaden.
Eine Ausnahme bilden Glas-Holz-Fassaden, da der Anteil des Holzes an der Fassadenfläche in der Regel < 5% beträgt und Versuche gezeigt haben, dass der Beitrag des Holzes am Brandgeschehen relativ gering ist.
Die Regelung begünstigt Fugendichtungen, also die äußeren Abdeckungen von Fugen in der Fassadenebene gegen Witterungseinflüsse. Dies ist wegen des geringen Volumens dieser Bauteile und der Einbausituation gerechtfertigt.
Für Dämmstoffe in Gebäudetrennfugen ist die Erleichterung nicht anzuwenden. Über diese Bauteile kann sich ein Brand weiterentwickeln. Diese Trennfugen sind praktisch unzugänglich, sodass der Brand unter Umständen kaum entdeckt wird und im Übrigen eine Brandbekämpfung kaum möglich ist.
Zu § 26 Abs. 3 Satz 1; Wärmedämmverbundsysteme auf Außenwänden
Die allgemeinen bauaufsichtlichen Zulassungen bzw. europäischen technischen Zulassungen (ETA) von Wärmedämmverbundsystemen enthalten Informationen über das Brandverhalten.
Wärmedämmverbundsysteme mit einer Dämmung aus EPS-Hartschaum sind bis zu einer Dämmstoffdicke von 0,1 m in den Verwendbarkeitsnachweisen der WDVS-Hersteller als schwerentflammbar eingestuft. Bei Dämmstoffdicken > 0,1 m sind zum Erhalt der Schwerentflammbarkeit zusätzliche Brandschutzmaßnahmen erforderlich.
Mögliche Brandschutzmaßnahmen sind entweder ein Sturzschutz über jeder Öffnung oder ein umlaufender Brandriegel in jedem zweiten Geschoss.
Ausführungen für beide Lösungen sind in der technischen Systeminfo 6 (WDV-Systeme zum Thema Brandschutz) des Fachverbandes Wärmedämmverbundsysteme e.V. zu finden.
Werden keine Brandschutzmaßnahmen bei EPS-Dämmdicken > 0,1 m ausgeführt, so sind diese WDVS als normalentflammbar einzustufen.
In Spritzwasserbereichen von nichtbrennbaren WDVS darf die Mineralwolldämmung durch schwerentflammbaren Polystyrol-Hartschaum (XPS) oberhalb massiver, feuerwiderstandsfähiger Platten oder Erdreich bis zu einer max. Höhe von 60 cm ersetzt werden. Dafür ist ein Abweichungsantrag bei der jeweilig zuständigen Bauaufsichtsbehörde zu stellen.
Kragplatten bzw. angrenzende massive Bauteile müssen vollständig ohne Spalt an die Außenwand anschließen.
Die max. zulässige Dämmschichtdicke der brennbaren Dämmschicht beträgt 0,2 m, die minimale Dicke der mineralischen Armierungsschicht muss 5 mm betragen.
Zu § 26 Abs. 3 Satz 1; Außenwandverkleidungen
Außenwandverkleidungen, die nicht brennend abtropfen dürfen, sind in DIN 4102-1 definiert. Baustoffe, die nach europäischer Klassifizierung (DIN EN 13501-1) "nichtbrennend abtropfend" sind, sind in Bauregelliste a Teil 1, Anlage 0.2.2(Red. Anm.: Jetzt VV TB) aufgeführt.
Sofern Anforderungen an die Feuerwiderstandsfähigkeit einer Vorhangfassade zu stellen sind, sind entsprechende Nachweise im Rahmen eines allgemeinen bauaufsichtlichen Verwendbarkeitsnachweises zu führen. Die Prüfung des Nachweises erfolgt bei BSU/ABH 31.
Zu § 26 Abs. 3 Satz 1; Oberflächen von Außenwänden
Holzwerkstoffe
Für Oberflächen aus Holzwerkstoffen, deren Schwerentflammbarkeit mittels Tränkung, Imprägnierung oder Anstrich erreicht wird, muss im Verwendbarkeitsnachweis die Dauerhaftigkeit unter Witterungsbedingungen ausgewiesen sein.
Sonnenschutzlamellen oder Fensterladensysteme
Sonnenschutzlamellen oder Fensterladensysteme sind als Teile der Außenwandbekleidung einzustufen, wenn sie geschosshoch sind und über mehrere Geschosse hinweg geführt werden. Sie müssen daher bei den Gebäudeklassen 4 und 5 schwerentflammbar sein, wenn nicht durch wirksame Brandbarrieren (z.B. mind. 1 mm dicke und mind. 0,3 m auskragende Stahlbleche) eine Brandweiterleitung verzögert wird.
Zu § 26 Abs. 4; Außenwände mit hinterlüfteten Fassaden und Doppelglasfassaden
Bei hinterlüfteten Fassaden ist zusätzlich zu den in § 26 Abs. 1 HBauO dargestellten Anforderungen zu verhindern, dass aus dem Brandraum austretende Rauch- und Heißgase im Hinterlüftungsspalt bzw. im Hohlraum zwischen den Glasebenen wie in einem Kaminschacht schnell in benachbarte Brandabschnitte weitergeleitet werden.
Geeignete Maßnahmen sind z.B.:
Dabei sind vertikale Abschottungen im Zwischenraum hinterlüfteter Fassaden (z.B. Doppelglasfassaden) so auf die äußere Fassade abzustimmen, dass ein Versagen der vertikalen Abschottung nicht vor dem Versagen der äußeren Fassadenscheibe eintritt. Die Eignung ist von einer anerkannten Prüfstelle für den Brandschutz zu bestätigen.
Entgegenwirkende bauliche und/oder anlagentechnische Maßnahmen müssen auf das Verhalten der Fassadenbauart und auf das Klimatisierungs-/Lüftungskonzept abgestimmt sein. Die Maßnahmen sind im Brandschutznachweis darzustellen.
§ 27 Trennwände
Zu § 27 Abs. 2 Nr. 2; Räume mit erhöhter Explosions- oder Brandgefahr
Zu Räumen mit Explosionsgefahr oder erhöhter Brandgefahr zählen Lagerräume und ähnlich genutzte Räume mit einer Fläche von mehr als 100 m2. Diese Räume sind mit Trennwänden gemäß § 27 Abs. 2 Nr. 2 HBauO und mit Decken gemäß § 29 Abs. 2 Satz 2 Nr. 1 abzutrennen.
Hinsichtlich der Anforderungen an elektrische Betriebsräume wird auf den BPD 1/2010 verwiesen (BPD 1/2010 Anforderungen an den Bau von Betriebsräumen für elektrische Anlagen).
Zu § 27 Abs. 4 Satz 1; Anschluss von Trennwänden an Systemböden
Beim Anschluss von Trennwänden an Systemböden ist die als technische Baubestimmung eingeführte Systembödenrichtlinie (SysBöR) zu beachten (lfd. Nr. 3.4 der Technischen Baubestimmungen).
Zu § 27 Abs. 4 Satz 1; Trennwände bis unter die Dachhaut
Unter der "Dachhaut" ist bei Dachräumen von Gebäuden die Bedachung (z.B. Dachstein/-ziegel, Bitumenbahnen) zu verstehen.
Sind Trennwände im Dachraum erforderlich, so müssen sie an die Bedachung so angeschlossen werden, dass eine Brandausbreitung verhindert wird. Die Brandweiterleitung durchlaufender Bauteile (z.B. Dachlatten, Pfetten) ist durch geeignete Maßnahmen zu verhindern.
§ 28 Brandwände
Zu § 28 Abs. 1; Klassifizierung
Brandwände müssen den bei einem Brand auftretenden Wärmespannungen und den Belastungen der durch herabstürzende Bauteile verursachten seitlichen Stöße standhalten und den Raumabschluss erhalten. Als Nachweis für diesen Lastfall müssen Brandwände dem Stoßversuch nach DIN 4102 Teil 3 bzw. DIN EN 13501 Teil 2 in Verbindung mit DIN EN 1363 Teil 2 standhalten.
DIN 4102 Teil 3 enthält das nach Bauregelliste a Teil 3 lfd. Nr. 2.1 (Ausgabe 2009/1)(Red. Anm.: Jetzt VV TB) anwendbare Prüfverfahren für Brandwandbauarten. Die nach diesen Prüfverfahren erstellten Bauarten erhalten ein allgemeines bauaufsichtliches Prüfzeugnis (abP).
Wände, die nach DIN 4102 Teil 4 unter den angegebenen Randbedingungen als Brandwände klassifiziert sind, bedürfen keines weiteren Nachweises; ein Nachweis zur Stoßsicherheit braucht nicht mehr geführt zu werden.
Europäisch klassifizierte Brandwände tragen als Bauprodukte die Bezeichnung REI 90-M (tragende Brandwand) bzw. EI 90-M (nichttragende bzw. ausfachende Brandwand). Hierfür müssen sie nach DIN EN 1363-1 in Verbindung mit DIN EN 1365-1 und DIN EN 1363-2, Abschnitt 7 (Stoßprüfung) geprüft sein und während einer Prüfdauer von 90 Minuten die Anforderungen erfüllt haben (s. Anlage 8 Nr. 5 zur Bauregelliste A-Teil 2). (Red. Anm.: Jetzt VV TB)
Zu § 28 Abs. 2 Nr. 1; Gebäudeabschlusswände
Hinsichtlich der Ausbildung von Gebäudeabschlusswänden wird unterschieden:
Auch bei mehreren direkt aneinandergrenzenden Gebäuden (z.B. Reihenhäuser) auf einem Grundstück sind nach dem Wortlaut der Vorschrift zwischen den Gebäuden Gebäudeabschlusswände erforderlich. Aus Sicht des Brandschutzes bestehen allerdings keine Bedenken, wenn bei direkt aneinandergebauten Gebäuden statt Gebäudeabschlusswänden lediglich Trennwände gemäß § 27 HBauO errichtet und langgezogene Gebäudekomplexe alle 40 m durch innere Brandwände nach § 28 Abs. 2 Nr. 2 HBauO unterteilt werden, um die Brandausbreitung wirksam zu verhindern (analog zu Trennwänden nach § 27 HBauO zwischen einzelnen Nutzungseinheiten im Gebäude).
Für den Verzicht auf die Errichtung von Gebäudeabschlusswänden bei direkt aneinandergebauten Gebäuden ist eine Abweichung von § 28 Abs. 2 Nr. 1 HBauO gemäß § 69 HBauO zu beantragen.
Bei Gebäuden, die mit einem geringeren Abstand als 2,50 m gegenüber der Grundstücksgrenze errichtet werden, sind die Gebäudeabschlusswände als Brandwände herzustellen (siehe Skizze, Fall 2).
Zu § 28 Abs. 2 Satz 1 Nr. 2; Abstände von Brandwänden
Ausgedehnte Gebäude müssen in jeder Richtung in Abständen von maximal 40 m durch innere Brandwände unterteilt werden. Der maximale Brandwandabstand gilt sowohl für die Gebäudebreite als auch für die Gebäudetiefe des Vorhabens. Dadurch ergibt sich rein rechnerisch ein maximales Flächenmaß von 1600 m2 Brandabschnittsfläche (40 x 40 m).
Sind aus betrieblichen Gründen Brandwandabstände größer 40 m erforderlich, ist eine Abweichung nach § 69 HBauO zu beantragen. Die Abweichung kann nur zugelassen werden, sofern der Brandabschnitt in seiner individuellen Ausdehnung für den Löschangriff der Feuerwehr beherrschbar bleibt. Als Kompensation für die erhöhte Gefahr der Brandausbreitung sind verschiedene Maßnahmen möglich, z.B. Unterteilung des ausgedehnten Brandabschnitts durch feuerbeständige Trennwände in baulich abgetrennte kleinteilige Kompartiments oder eine Kompensation durch anlagentechnische Maßnahmen.
Zu § 28 Abs. 2 Satz 2 Nr. 3; Wände von Vorbauten; Balkone
Vorbauten sind - im Gegensatz zu Balkonen - durch Wände und Dächer geschlossen. Auf die Ausbildung einer Brandwand bei Vorbauten kann verzichtet werden, wenn der seitliche Abstand zur Nachbargrenze der Ausladung des Vorbaus entspricht, mindestens jedoch 1 m beträgt. Diese Regelung kommt nur zum Tragen, wenn aufgrund einer Privilegierung aus § 6 Abs. 6 HBauO eine Abstandsfläche nicht einzuhalten ist.
Die Brandgefährdung, die von Balkonen oder Dachterrassen ausgeht, ist als gering einzustufen, da sie von Außenluft umspült sind und auf ihnen im Regelfall nur geringe Mengen an Brandlasten gelagert werden. Deshalb werden für Balkone keine seitlichen Mindestabstände gefordert oder brandschutztechnischen Anforderungen gestellt, da seitlich angebrachte Sichtschutzelemente (wie auch Brüstungen, Umwehrungen) nicht als Wände im Sinne der Bauordnung gelten.
Balkone, die im Außenbereich über eine Brandwand hinweg geführt werden, müssen aus nichtbrennbaren Baustoffen bestehen.
Zu § 28 Abs. 3 Satz 2 Nr. 1; stoßfeste hochfeuerhemmende Wände
Bei der Gebäudeklasse 4 sind anstelle von Brandwänden auch stoßfeste hochfeuerhemmende Wände (REI 60-M bzw. EI 60-M) zulässig. Wenn diese Wände in Holzbauart ausgeführt werden, sind die Bedingungen der "Richtlinie über brandschutztechnische Anforderungen an hochfeuerhemmende Bauteile in Holzbauweise" (HFHHolzR) einzuhalten.
Zu § 28 Abs. 3 Satz 2 Nr. 3; Gebäudeabschlusswände F90BA/F30B
Von innen mindestens feuerhemmende Gebäudeabschlusswände mit hölzernen Wandstielen sind bei den Gebäuden der Klasse 1 bis 3 zulässig, wenn
Siehe hierzu auch DIN 4102-4:1994-03, Abschnitt 4.12.8 Bild 43 und Tabelle 54.
Zu § 28 Abs. 4 Satz 2; versetzte innere Brandwände; Außenwandöffnungen
Werden Brandwände in Geschossen versetzt angeordnet, so muss der Brandüberschlag im Bereich der Fassade gesondert gesichert werden. In den Bereichen des Versatzes sind nur nichtbrennbare Außenwandbekleidungen zulässig.
Der Brandüberschlag wird verhindert, wenn übereinander liegende Öffnungen mindestens 5,0 m auseinander liegen. Gleiches gilt auch, wenn übereinander liegende Fenster seitlich mindestens 1 m versetzt angeordnet sind.
Auch eine 1,50 m liegend auskragende feuerbeständige Deckenplatte oder eine 1,0 m auskragende feuerbeständige Brüstung stellt eine ausreichende Verhinderung des Brandüberschlags sicher.
Zu § 28 Abs. 5; Abschluss im Dachbereich
1. Gebäudeabschlusswand über Dach geführt (GK 4 und 5)
2. Gebäudeabschlusswand mit feuerbeständiger Platte (GK 4 und 5)
Brennbare Teile des Daches dürfen nicht über die feuerbeständige Kragplatte hinweg geführt werden (Trennung z.B. durch ein Mörtelbett oder Mineralwolle, Baustoffklasse A, Schmelzpunkt ≥ 1000 °C).
3. Gebäudeabschlusswände mit wirksamer Feuerschutzbekleidung der Dachkonstruktion (einseitig der Brandwand)
Als eine alternative Maßnahme zu Nr.1 und 2 gilt die vollflächige und an die Gebäudeabschlusswand dicht anschließende, unterseitige Beplankung der hölzernen Dachkonstruktionen der an die Gebäudeabschlusswand angrenzenden Nutzungseinheiten mit F60 Feuerschutzplatten. Dabei ist der Hohlraum über der Gebäudeabschlusswand bis zum ersten Sparren mit Mineralwolle, Baustoffklasse A, Schmelzpunkt > = 1.000 °C auszustopfen. Die anderen Bereiche der Dachkonstruktion dürfen mit normalentflammbaren Dämmstoffen gefüllt werden.
Für diese Konstruktion ist eine Abweichung nach § 69 HBauO zu beantragen. Andere Detailausbildungen sind möglich. Sie sind mit BSU/ABH 31 abzustimmen.
Zu § 28 Abs. 6; Brandwände im Eckbereich von Gebäuden
Die nachfolgend dargestellten Anordnungen der Brandwand (Fall 1- 4) verhindern den Feuerüberschlag im Gebäudeeckbereich gleichwertig.
Zu § 28 Abs. 7; Außenwandkonstruktionen
Ein Mindestabstand zwischen Brandwand und Öffnungen in den Außenwänden ist nicht vorgeschrieben.
Wärmedämmverbundsysteme auf Gebäudeabschlusswänden
An Gebäudeabschlusswänden nach § 28 Abs. 2 Nr. 1 HBauO sind auch schwerentflammbare Wärmedämmverbundsysteme möglich, wenn eine Gefährdung durch die Nachbarbebauung ausgeschlossen werden kann.
Wärmedämmverbundsysteme im Bereich anschließender Brandwände
Bei schwer entflammbaren Wärmedämmverbundsystemen als Außenwandbekleidung ist im Bereich der anschließenden inneren Brandwände das schwerentflammbare Bekleidungssystem durch einen mindestens 20 cm breiten nichtbrennbaren Mineralwollstreifen mit nichtbrennbarer Putzbeschichtung nach allgemeiner bauaufsichtlicher Zulassung zu ersetzen.
Die Verklebung des Mineralwollstreifens muss vollflächig erfolgen. Bei nicht tragfähigem Untergrund sind die Platten aus Mineralwolle im Abstand von max. 0,5 m zusätzlich zu dübeln.
Außenwandbekleidungssysteme im Bereich anschließender hochfeuerhemmender Wände bei GK 2 und 3
Bei normal entflammbaren Oberflächen und Außenwandbekleidungen ist im Bereich der anschließenden inneren hochfeuerhemmenden Wänden, die anstelle von Brandwänden zulässig sind, das normal entflammbare Bekleidungssystem durch eine mindestens 1,00 m breite Brandbarriere aus nichtbrennbaren Baustoffen oder durch eine gleichwertige Absperrung zu ersetzen. Dies gilt entsprechend für einen Gebäudeversatz im Bereich der Gebäudeabschlusswand.
Zu § 28 Abs. 7, Satz 3; Eingriff von Bauteilen in Brandwände
Brandwände dürfen nicht mit Bauteilen und technischen Einrichtungen, wie Stützen, Binder, Unterzüge oder Kranbahnen fest verbunden sein, die im Brandfall durch Ausdehnung oder Einsturz die Standsicherheit der Brandwand gefährden können.
Die Standsicherheit der Brandwand ist bei in die Wand eingreifenden Bauteilen im Brandfall nicht gefährdet, wenn
Die Standsicherheit von Brandwänden wird z.B. gefährdet durch thermische Längenänderung, Versagen von ungeschützten Stahlstützen, - binden und Tragkonstruktionen in und vor Brandwänden.
Zu § 28 Abs. 8; Öffnungen in Brandwänden
Öffnungen schwächen die Funktion einer Brandwand. Sie sind in Anzahl und Größe auf ein Minimum zu beschränken, weil durch eine Vielzahl von Öffnungen das Risiko einer Fehlfunktion der Öffnungsverschlüsse (Türen) steigt. Auch können Türen die Anforderung an die bei GK 4 und 5 gestellte Stoßbelastung nicht erfüllen.
Ist eine Öffnung in einer Gebäudeabschlusswand vorgesehen, so ist ein Antrag auf Abweichung nach § 69 HBauO zu stellen.
In einer inneren Brandwand sind sie, wie in § 28 Abs. 8 Satz 2 HBauO beschrieben, allgemein zulässig.
Anforderung an den Abschluss von Öffnungen in (inneren) Brandwänden
Die Anforderung dichtschließend wird erfüllt, wenn z.B. bei Türen eine dreiseitige (seitlich und oben) umlaufende Dichtung eingesetzt wird. Die Anforderung selbstschließend bedeutet, dass die Abschlüsse sich ohne Einwirkung aus jedem Öffnungswinkel von selbst schließen müssen. Die Schließung ist so einzustellen, dass die Tür auch gegen den Branddruck schließt.
Feuerschutzabschlüsse dürfen durch Feststellanlagen oder Freilaufselbstschließer offen gehalten werden, die im Brandfall die Öffnung selbsttätig verschließen. Motorisch schließende Abschlüsse (z.B. Rolltore oder Brandschutzvorhänge müssen auch im Brandfall zuverlässig schließen. Hierfür muss die Stromversorgung sichergestellt sein (Sicherheitsstromversorgung). Die Auslösung erfolgt rauchgesteuert.
Die Anforderungen an feuerbeständige Abschlüsse sind im Einzelnen in der DIN 4102 Teil 5 bzw. in der DIN EN 13501 Teil 2 festgelegt. Geregelt werden neben den Anforderungen an das Bauteil, insbesondere auch die Einbaubedingungen.
Öffnungen in Brandwänden zur Durchführung von Fluren
Bei Fluren, die durch Brandwände hindurch geführt werden und deren Abschluss der Öffnung nicht in der Qualität der Brandwand hergestellt werden soll, gibt es zwei Möglichkeiten, den Brandschutz sicherzustellen. Für die aufgezeigten Ausführungen ist eine Abweichung nach § 69 HBauO zu beantragen.
1. Abschluss mit einer Tür
Dabei sind folgende Bedingungen einzuhalten:
2. Ausführung mit einer Schleuse
Dabei sind folgende Bedingungen einzuhalten:
Zu Absatz 9; Verglasungen in inneren Brandwänden
Verglasungen sind im Gegensatz zu Öffnungen, dauerhaft geschlossen auszuführen (Festverglasung). Da Verglasungen die Belastbarkeit gegen die mechanische Beanspruchung fehlt (erforderlich bei GK 4 und 5), sind sie auf ein Minimum zu beschränken und müssen der Nutzung zur Belichtung oder Blickbeziehung dienen.
§ 29 Decken
Zu § 29 Abs. 1 Satz 1; Feuerwiderstandsfähigkeit von Holzbalkendecken
Nach nationalem Recht muss die Feuerwiderstandsfähigkeit von Decken grundsätzlich sowohl von oben nach unten als auch von unten nach oben erfüllt sein.
Die europäischen Klassifizierungen nach DIN EN 13501 (REI) berücksichtigen lediglich eine Brandbeanspruchung von unten nach oben. Damit auf eine zusätzliche Brandprüfung mit Beanspruchung von oben nach unten verzichtet werden kann, müssen die konstruktiven Bedingungen nach Bauregelliste a Teil 1, Anlage 0.1.2(Red. Anm.: Jetzt VV TB) erfüllt sein:
Feuerwiderstandsklasse REI 60:
Variante 1:
13 mm Spanplatten bzw. 21 mm gespundete Schalung und 15 mm nichtbrennbare Dämmstoffe aus Mineralfasern mit einem Schmelzpunkt ≥ 1000 °C und 20 mm Estrich bzw. nichtbrennbare Trockenestrichplatten (mind. Klasse A2) oder
Variante 2:
13 mm Spanplatten bzw. 21 mm gespundete Schalung und 30 mm Estrich bzw. nichtbrennbare Trockenestrichplatten (mind. Klasse A2)
Feuerwiderstandsklasse REI 90:
Variante 1:
13 mm Spanplatten bzw. 21 mm gespundete Schalung und 15 mm nichtbrennbare Dämmstoffe aus Mineralfasern mit einem Schmelzpunkt ≥ 1000 °C und 30 mm Estrich bzw. nichtbrennbare Trockenestrichplatten (mind. Klasse A2) oder
Variante 2:
13 mm Spanplatten bzw. 21 mm gespundete Schalung und 40 mm Estrich bzw. nichtbrennbare Trockenestrichplatten (mind. Klasse A2)
Zu § 29 Abs. 1 Satz 3 Nr.1; Geschosse im Dachraum
Die Anforderung an die Feuerwiderstandsfähigkeit der Decken im Dachraum gilt auch für die Unterstützungen der Decken. Nicht tragende Dachschrägen des unteren Dachraumes müssen für eine Brandbeanspruchung von innen nach außen mindestens der Feuerwiderstandsklasse F 30 (E 30) entsprechen.
Eine Brandübertragung über die Dachschräge in obere zulässige Aufenthaltsräume ist durch Verwendung von nichtbrennbaren Beplankungen und hohlraumfrei verlegten nichtbrennbaren Dämmstoffen zu verhindern.
An die Decken über dem obersten Geschoss, in dem ein Aufenthaltsraum möglich wäre, werden keine Anforderungen an den Feuerwiderstand gestellt, wenn erforderliche Trennwände ohne Versatz bis unter die nichtbrennbare Bedachung geführt werden (siehe § 27 Abs. 4 HBauO).
Zu § 29 Abs. 1; Deckenverkleidungen
"Nichtbrennend abtropfende" Deckenverkleidungen sind in DIN EN 13501-1 definiert.
Zu § 29 Abs. 4; Öffnungen in der Decke
Siehe hierzu die Auslegung zu § 33 Abs. 1.
§ 30 Dächer
Zu § 30 Abs. 1; harte Bedachung
Die Anforderung "harte Bedachung" gilt nur dann als erfüllt, wenn entweder:
Die Begriffe "Feuerwiderstandsklasse" eines Daches (Brand von innen) und "harte Bedachung" (Brand von außen) sind unabhängig voneinander zu betrachten.
Zu § 30 Abs. 2; weiche Bedachung
Die festgelegten Abstände gelten, wenn ein Gebäude mit weicher Bedachung neben Gebäuden mit harter Bedachung errichtet wird. Die größeren Abstände für Gebäude mit weicher Bedachung berücksichtigen die leichtere Entzündbarkeit weicher Bedachungen, aber auch die Gefährdung durch den starken Funkenflug von weichen Bedachungen, insbesondere von Reetdächern.
Die erhöhten Abstandsforderungen können nur an Vorhaben gestellt werden, die keine harte Bedachung haben. Die Abstandsforderung greift damit nur einseitig. Die Abstandsregelung gilt nicht, wenn neben einem Gebäude mit weicher Bedachung ein Gebäude mit harter Bedachung errichtet wird.
Zu § 30 Abs. 3 Nr. 2; lichtdurchlässige Bedachungen aus nicht brennbaren Baustoffen
Auch lichtdurchlässige Bedachungen müssen die Anforderungen nach Abs. 7 erfüllen.
Zu § 30 Abs. 4 Nr. 1; lichtdurchlässige Teilflächen aus brennbaren Baustoffen
Lichtbänder und Lichtkuppeln aus brennbaren Baustoffen bedürfen einer allgemeinen bauaufsichtlichen Zulassung. Ausgenommen sind nach oben gekrümmte Dachelemente aus Kunststoff gemäß Bauregelliste C(Red. Anm.: Jetzt VV TB) mit Spannweiten von weniger als 2 m.
Unabhängig davon ist die Anwendbarkeit im Hinblick auf die bauaufsichtlichen Anforderungen an den Brandschutz (Verhinderung der Brandübertragung) zu prüfen.
Zu § 30 Abs. 4 Nr. 2; begrünte Dächer
Bei extensiv begrünten Dächern ist ein ausreichender Widerstand gegen Feuer und strahlende Wärme gegeben, wenn
Zu § 30 Abs. 5; Dachterrassen
Dachterrassen aus Holzbelag können auf Stahlbetondecken ohne Bedenken zugelassen werden. Dabei ist zu berücksichtigen, dass Feuer nicht auf andere Gebäudeteile und Nachbargrundstücke übertragen werden kann. Ein Abstand zu Brand- und Trennwänden von 1,25 m ist einzuhalten.
Die verwendete Holzart muss über eine hohe Rohdichte verfügen.
Zu § 30 Abs. 7 Satz 1; Dächer von Anbauten ohne harte Bedachung
Dachflächen ohne harte Bedachung (einschließlich der Dämmschichten) müssen im 5 m-Bereich vor dem aufgehenden Bauteilen mit einer mindestens 5 cm dicken Schicht aus nichtbrennbaren Baustoffen (z.B. mit einer Grobkiesauflage 16/32) oder mit mindestens 3 cm dicken Betonplatten geschützt werden.
Zu § 30 Abs. 7 Satz 2; Sonstige Anbauten bis 1,50 m Tiefe
Eine Brandausbreitung von Anbauten an Wohngebäude der Gebäudeklasse 1 bis 3 sowie von sonstigen Anbauten bis 1,5 m Tiefe mit Dächern aus nichtbrennbaren Bauteilen auf andere Geschosse kann verhindert werden durch oberhalb der Dächer vorhandene Brüstungsbauteile von mindestens 1,0 m Höhe. Sie müssen die an die Decken des Gebäudes gestellten brandschutztechnischen Anforderungen von außen nach innen erfüllen.
§ 31 Erster und zweiter Rettungsweg
Zu § 31 Abs. 1; Erfordernis von zwei Rettungswegen
Gemäß § 31 Abs. 1 HBauO muss jede Nutzungseinheit in jedem Geschoss über mindestens zwei voneinander unabhängige Rettungswege ins Freie verfügen. Dabei gibt es mindestens drei Alternativen:
1. Ausgänge ins Freie
Die Nutzungseinheit weist zwei unmittelbar ins Freie führende Ausgänge auf.
2. Anschluss an zwei notwendige Treppen
Die Nutzungseinheiten sind über einen notwendigen Flur mit zwei notwendigen Treppen verbunden. In diesem Fall dürfen beide Rettungswege über denselben notwendigen Flur zu den notwendigen Treppen führen ( § 31 Abs. 1, 2. Halbsatz HBauO).
3. Notwendige Treppe und eine mit dem Rettungsgerät der Feuerwehr erreichbare Stelle der Nutzungseinheit
In diesem Fall ist der erste Rettungsweg der baulicher Rettungsweg über die notwendige Treppe; der zweite Rettungsweg ist die mit dem Rettungsgerät der Feuerwehr erreichbare Stelle der Nutzungseinheit ( § 31 Abs. 2 HBauO).
Die von der Feuerwehr erreichbare Stelle muss einen direkten Bezug zur Nutzungseinheit aufweisen. Der Zugang über einen offenen Laubengang erfüllt diese Voraussetzung.
Zu § 31 Abs. 2 Satz 2; mit Rettungsgeräten der Feuerwehr erreichbare Stelle
Für eine Rettung über die tragbare Leiter (Steckleiter) darf die Höhe der Oberkante der Fensterbrüstung nicht mehr als 8 m über der Aufstellfläche der Leiter liegen.
Für eine Rettung über die Drehleiter darf die Höhe der Oberkante der Fensterbrüstung nicht mehr als 23 m über der Aufstellfläche des Feuerwehrfahrzeugs liegen.
Die erforderliche Aufstellfläche richtet sich nach der "Richtlinie über Flächen für die Feuerwehr auf Grundstücken" (Liste der Technischen Baubestimmungen lfd. Nr. 7.4).
Festmontierte Notleitern, transportable Leitern, Rettungsschläuche oder Rutschen stellen keinen zweiten Rettungsweg im Sinne von § 31 dar. Der Unterschied zu den Rettungsgeräten der Feuerwehr besteht darin, dass zu rettende Personen beim Umstieg vom Gebäude auf die Feuerwehrleiter Hilfestellung durch die Einsatzkräfte erhalten.
Zu § 31 Absatz 2 Satz 3; Sicherheitstreppenräume
Ein Sicherheitstreppenraum ist ein Treppenraum, in den Feuer und Rauch nicht eindringen können. Dieses hohe Sicherheitsniveau wird entweder dadurch erreicht, dass der Treppenraum nur über offene, mit dem Freien in Verbindung stehende Gänge erreichbar ist (sog. außenliegender Sicherheitstreppenraum) oder das Eindringen von Feuer und Rauch durch besondere technische Maßnahmen verhindert wird (sog. innenliegender Sicherheitstreppenraum).
1. Innenliegender Sicherheitstreppenraum mit Druckbelüftung
Ein innenliegender Sicherheitstreppenraum besteht aus einem Treppenraum, der nur über einen Vorraum (Schleuse) betreten werden kann. Er ist mit einem Differenzdrucksystem (Druckbelüftungsanlage) auszustatten, das gewährleistet, dass bei geöffneten Türen immer ein Luftstrom vom Treppenraum in den Vorraum bzw. in den angrenzenden Flur/Nutzungseinheit stattfindet und eventuell eingedrungener Rauch wieder zurückgedrängt wird.
Die Druckbelüftungsanlage muss selbsttätig in Betrieb gesetzt werden können. Dies erfolgt entweder über Rauchmelder, die in allen Geschossen in den den Vorräumen vorgelagerten Räumen in der Nähe der Sicherheitsschleuse anzubringen sind oder über eine Brandmeldeanlage in den Nutzungseinheiten.
Die Druckbelüftungsanlage muss innerhalb von 60 Sekunden nach Rauch- bzw. Branderkennung wirksam arbeiten. Zusätzlich ist eine manuelle Auslöseeinrichtung im Erdgeschoss bzw. in der Zugangsebene der Feuerwehr vorzusehen.
Die zulässige Regelzeit bei Druckschwankungen darf im eingebauten Zustand maximal 5 Sekunden betragen.
Die maximale Türöffnungskraft an den Türen des Sicherheitstreppenraums und dessen Vorräumen darf, gemessen am Türgriff, nicht mehr als 100 N betragen.
Druckbelüftungsanlagen müssen so bemessen und beschaffen sein, dass die Luft auch bei geöffneten Türen zu dem vom Brand betroffenen Geschoss und zugleich unter ungünstigen klimatischen Bedingungen entgegen der Fluchtrichtung strömt. Die Strömungsgeschwindigkeit der Luft durch die geöffnete Tür des Vorraums zum angrenzenden Raum, muss mindestens 2,0 m/s betragen. Die Anzahl und Größe der Druckentlastungsöffnungen ins Freie sind in Verbindung mit der Druckbelüftungsanlage zu dimensionieren.
Der Vorraum des Sicherheitstreppenraums muss auch bei geschlossenen Türen durchspült werden können. Dies kann über eine eigene Druckbelüftungsanlage, eine eigene Luftzuleitung oder durch Überströmöffnungen realisiert werden. Die Überströmöffnung in der Wand des Treppenraums bedarf keiner Feuerwiderstandsdauer, es genügt eine verschließbare Klappe. Die Überströmöffnung zwischen Vorraum und Nutzung muss die gleiche Widerstandsdauer wie die Wand aufweisen und über einen entsprechenden Verwendbarkeitsnachweis verfügen.
Die Zuluftleitung muss eine Feuerwiderstandsdauer von mindestens 90 Minuten haben, wenn sie durch andere Räume geführt wird (z.B. Feuerwiderstandsklasse L90 nach DIN 4102-6). In der Zuluftleitung sind Absperrvorrichtungen gegen Brand- und Rauchübertragung (Brandschutz- und Rauchschutzklappen) nicht zulässig. Im Übrigen müssen die Lüftungsleitungen der Richtlinie über brandschutztechnische Anforderungen an Lüftungsanlagen - LüAR- entsprechen (s. Liste der Technischen Baubestimmungen, lfd. Nr. 3.6).
Für die Leitungsanlagen gelten die Festlegungen der Richtlinie über brandschutztechnische Anforderungen an Leitungsanlagen -LAR- (s. Liste der Technischen Baubestimmungen, lfd. Nr. 3.7).
Der druckbelüftete Sicherheitstreppenraum darf nur Öffnungen zu Vorräumen haben. Die Abschlüsse der Öffnungen in den raumabschließenden Bauteilen druckbelüfteter Sicherheitstreppenräume müssen rauchdicht und selbstschließend sein. Der Abschluss der Öffnung des Vorraums zum notwendigen Flur bzw. zur Nutzungseinheit ist feuerhemmend, rauchdicht und selbstschließend auszuführen.
Für Reinigungszwecke sind Fensterelemente zulässig, wenn gewährleistet ist, dass sie
Hinsichtlich der Stromversorgung von Druckbelüftungsanlagen für Sicherheitstreppenräume werden bei Sonderbauten Netzersatzanlagen (NEA) gefordert. Die Ausführung hat unter Beachtung der DIN EN 0108 zu erfolgen.
Bei Gebäuden, die keine Sonderbauten sind, ist aus brandschutztechnischer Sicht die Installation einer besonderen gesicherten Leitungsanlage angemessen, um im Brandfall den Funktionserhalt der sicherheitstechnischen Anlagen im Sicherheitstreppenraum zu gewährleisten. Die Stromversorgung kann unmittelbar hinter dem Hauptzähler und vor dem Hauptschalter parallel (sog. Sprinklerpumpenschaltung) abgegriffen werden und verläuft dann separat.
2. Außenliegender Sicherheitstreppenraum
Ein "außenliegender" Sicherheitstreppenraum ist nur über offene Gänge mit den Geschossen des Gebäudes verbunden.
Die offenen Gänge dürfen nicht in Gebäudenischen oder Gebäudewinkeln liegen. Rauch muss ungehindert ins Freie entweichen können.
Die Wände zwischen dem außenliegenden Treppenraum und dem offenen Gang sind feuerbeständig herzustellen. Sie dürfen außer den für die Rettungswege erforderlichen Türen zu offenen Gängen und ins Freie und den für die Belichtung des Sicherheitstreppenraumes erforderlichen Fenstern keine Öffnungen haben.
Die Türen zwischen dem Innenflur und dem offenen Gang sowie zwischen dem offenen Gang und dem Sicherheitstreppenraum müssen als Rauchschutztüren aus nichtbrennbaren Baustoffen ausgebildet sein und in Fluchtrichtung aufschlagen.
Fenster zwischen Treppenraum und offenen Gängen müssen aus feststehenden Isolierverglasungen mit Scheiben aus thermisch vorgespanntem Glas (ESG oder TVG) bestehen. Die Fensterrahmen sollten aus nichtbrennbaren Baustoffen bestehen.
Die Brüstungen und die Kragplatte des offenen Ganges müssen feuerbeständig und geschlossen sein und aus nichtbrennbaren Baustoffen bestehen.
Für die Leitungsanlagen gelten die Festlegungen der Richtlinie über brandschutztechnische Anforderungen an Leitungsanlagen -LAR- (siehe Liste der Technischen Baubestimmungen, lfd. Nr. 3.7).
§ 32 Treppen
Zu § 32 Abs. 1; Setzstufen notwendiger Treppen
Notwendige Treppen können als offene Treppen ausgebildet werden, d. h. sie benötigen keine Setzstufen.
Zu § 32 Abs. 4; Tragende Teile notwendiger Treppen
Zu den tragenden Teilen gehören neben den Treppenwangen und -podesten auch die Stufen.
Zu § 32 Abs. 5; Nutzbare Breite von Treppen
Mindestbreiten von Treppen regelt die DIN 18065 über Gebäudetreppen (siehe Nr. 7.1 der Technischen Baubestimmungen).
§ 33 Notwendige Treppenräume, Ausgänge
Zu § 33 Abs. 1 Satz 3 Nr. 2; Rettungswege von Maisonettewohnungen und anderen Nutzungen über zwei Geschosse
Die einschlägigen Regelungen für die Ausbildung von Maisonettewohnungen finden sich in § 33 Abs. 1 HBauO (Verzicht auf den Treppenraum) und § 29 Abs. 4 HBauO (Öffnungen in Decken). Für Gebäude der Gebäudeklassen 1 und 2 bestehen keine Beschränkungen.
Für Gebäude der Gebäudeklassen 3 bis 5 (bis zur Hochhausgrenze) gilt Folgendes:
1. Nutzungen über zwei Geschosse mit einem Rettungsweg je Geschoss
Bei Maisonettewohnungen oder anderen Nutzungen über zwei Geschosse mit insgesamt nicht mehr als 200 m2 Bruttogrundfläche reicht es aus, wenn ein Geschoss an eine Treppe mit einem notwendigen Treppenraum angeschlossen ist und das andere Geschoss über eine mit Rettungsgeräten der Feuerwehr erreichbare Stelle verfügt ( Fall 1). Gleichwertig zur anleiterbaren Stelle ist die Anbindung an einen zweiten notwendigen Treppenraum ( Fall 2). Damit sind die nach § 31 Abs. 1 HBauO geforderten zwei -voneinander unabhängigen- Rettungswege umgesetzt.
Die interne Verbindungstreppe zwischen den beiden Geschossen ist eine notwendige Treppe und muss die Anforderungen nach § 32 Abs. 4 HBauO erfüllen. Die Ausbildung eines eigenen Treppenraumes ist nicht erforderlich ( § 33 Abs. 1 Nr. 2 HBauO).
2. Nutzungen über zwei Geschosse mit 2 Rettungswegen je Geschoss
Bei Maisonettewohnungen oder anderen Nutzungen über zwei Geschosse, die insgesamt größer als 200 m2 Bruttogrundfläche bis maximal 400 m2 Bruttogrundfläche sind, müssen beide Geschosse an eine Treppe mit einem notwendigen Treppenraum angeschlossen sein. Zusätzlich sind in beiden Geschossen Stellen nachzuweisen, die von den Rettungsgeräten der Feuerwehr erreicht werden können ( Fall 3). Gleichwertig zu den anleiterbaren Stellen ist die Anbindung an einen zweiten, notwendigen Treppenraum ( Fall 4).
In beiden Fällen werden keine Anforderungen an die interne Verbindungstreppe gestellt. Die Öffnungen in der Decke sind gemäß § 29 Abs. 4 HBauO zulässig.
3. Nutzung über mehrere Geschosse (sog."Stadthäuser")
Neben den klassischen Reihenhäusern der Gebäudeklasse 2 werden aufgrund der kleiner werdenden Grundstücke Gebäude ähnlichen Typs mit einem weiteren Geschoss (sog."Stadthäuser") geplant und gebaut. Diese fallen aufgrund ihrer Gebäudehöhe mit mehr als 7 m gemäß § 2 Abs. 3 HBauO in die Gebäudeklasse 4. Im Altbestand sind solche Gebäude (meistens Villen) vorhanden.
Im Hinblick auf den Brandschutz ist die Herstellung des notwendigen Treppenraumes gemäß § 33 Abs. 1 HBauO in diesen Gebäuden mit Schwierigkeiten verbunden, da dieser zu Einschnitten in die Grundrissgestaltung führt. Auch führen Türen zu diesen Treppenräumen zu Schwierigkeiten in der täglichen Nutzung.
Eine Abweichung für den Verzicht auf Herstellung eines notwendigen Treppenraumes gemäß § 33 Abs. 1 HBauO kann erteilt werden, wenn
Diese Anforderungen können als Voraussetzung an die Erteilung der Abweichung gebunden werden.
Alle weiteren Anforderungen der Hamburgischen Bauordnung (wie z.B. die Anforderungen an die Bauteile oder die Anleiterung durch die Feuerwehr) sind einzuhalten.
Zu § 33 Abs. 1 Satz 3 Nr. 3; Außentreppen
Außentreppen als 1. oder 2. Rettungsweg
Die in Absatz 1 Satz 3 Nr.3 gestellten brandschutztechnischen Anforderungen gelten für Außentreppen, die als erster oder zweiter Rettungsweg dienen sollen und keinen eigenen Treppenraum aufweisen.
Außentreppe als erster Rettungsweg:
Durch bauliche Maßnahmen ist sicherzustellen, dass die Außentreppe im Brandfall nicht durch Feuer beaufschlagt werden kann. D.h.:
Da Außentreppen den Witterungsverhältnissen ausgesetzt sind, ist sicher zu stellen, dass sie auch bei Regen, Schnee oder Hitze sicher begehbar sind. Dieses kann z.B. durch eine teilweise oder komplette Einhausung, die Ausbildung von geschlossenen Brüstungen, einer Überdachung, rutschhemmenden Stufen (z.B. Riffelblech), aber auch durch organisatorische Maßnahmen sichergestellt werden und ist für jeden Einzelfall in Abhängigkeit von der Lage, der Gebäudeklasse und -art gesondert zu beurteilen.
Außentreppe als zweiter Rettungsweg:
Gemäß § 31 Abs. 2 Satz 2 kann der zweite Rettungsweg baulich auch über eine weitere notwendige Treppe geführt werden. Wird der zweite Rettungsweg über eine Außentreppe geführt, ist die Außentreppe gemäß HBauO als notwendige Treppe auszubilden. Von den Anforderungen an notwendige Treppen kann allerdings eine Abweichung gemäß § 69 HBauO beantragt werden, da grundsätzlich an die Außentreppe als zweiter Rettungsweg keine höheren Anforderungen gestellt werden sollten als an den Einsatz von Rettungsgeräten der Feuerwehr (z.B. Verlauf der Außentreppe vor Fenstern der Nutzungseinheiten grundsätzlich möglich). Zwingende Voraussetzung ist allerdings, dass die Außentreppe bis auf den Boden herab geführt wird und bei Regen, Schnee oder Hitze sicher begehbar ist.
Zu § 33 Abs. 3 Satz 2; Innenliegende notwendige Treppenräume
Innenliegende notwendige Treppenräume sind nur zulässig, wenn ihre Nutzung ausreichend lange nicht durch Raucheintritt gefährdet wird.
Dieses ist gewährleistet, wenn folgende Anforderungen erfüllt werden:
1. Gebäude bis einschl. GK 4 und Gebäude der GK 5 mit einer Höhe bis zu 13m
Der Treppenraum muss eine natürliche Rauch- und Wärmeabzugsanlage (NRA) 2 haben. Das natürliche Rauch- und Wärmeabzugsgerät (NRWG) mit einer freien Öffnungsfläche von mindestens 1 m2 muss an der obersten Stelle vom Erdgeschoß und vom obersten Treppenabsatz zu öffnen sein. Das NRWG muss über einen Verwendbarkeitsnachweis verfügen. Der Treppenraum muss im Eingangsgeschoss eine Zuluftöffnung haben, die mindestens die Größe der freien Öffnungsfläche des NRWGs aufweist. Dieses kann die Gebäudeeingangstür sein, die dann eine Feststelleinrichtung aufweisen muss.
2. Sonstige Gebäude der Gebäudeklasse 5
Bei diesen Gebäuden muss der natürliche Rauchabzug im Treppenraum durch eine mechanische Belüftung (Spüllüftung) unterstützt werden. Alternativ kann durch Vorräume sichergestellt werden, dass ein Raucheintritt in den Treppenraum erschwert wird.
2.1 Spüllüftung
An eine Spüllüftung sind folgende Anforderungen zu stellen:
Der Treppenraum muss mit einem Volumenstrom von mindestens 10.000 m3/h (gemessen an der Einblasstelle) durchspült werden. Damit eingedrungene Rauchgase aus dem Treppenraum ausgespült werden können, ist eine Rauchabzugsöffnung am oberen Ende des Treppenraumes von mindestens 1 m2 erforderlich. Die maximale Türöffnungskraft an den Türen des Treppenraumes und dessen Vorräumen darf, gemessen am Türgriff, nicht mehr als 100 N betragen.
Die Spüllüftung muss automatisch in Betrieb gesetzt werden. Dies erfolgt entweder über Rauchmelder, die vor allen Türöffnungen in den Nutzungen anzubringen sind, oder über eine flächendeckende Brandmeldeanlage. Die Zuluftleitung muss eine Feuerwiderstandsdauer von mindestens 90 Minuten haben (z.B. Feuerwiderstandsklasse L 90 nach DIN 4102-6), wenn sie durch andere Räume geführt wird. In der Zuluftleitung sind Absperrvorrichtungen gegen Brand- und Rauchübertragung (Brandschutz- und Rauchschutzklappen) nicht zulässig. Die Abschlüsse der Öffnungen zwischen Nutzungseinheit und Treppenraum müssen bei Wohnungen rauchdicht und selbstschließend sein. Bei sonstigen Räumen und Nutzungseinheiten mit einer Fläche von mehr als 200 m2 müssen diese Abschlüsse feuerhemmend, rauchdicht und selbstschließend sein.
Im Übrigen müssen die Lüftungsleitungen der Richtlinie über brandschutztechnische Anforderungen an Lüftungsanlagen (s. Liste der Technischen Baubestimmungen, lfd. Nr. 3.6) entsprechen.
Für den Funktionserhalt der für die Spüllüftung erforderlichen elektrischen Leitungsanlagen im Brandfall gelten im Übrigen die diesbezüglichen Festlegungen der Richtlinie über brandschutztechnische Anforderungen an Leitungsanlagen (LAR) (s. Liste der Technischen Baubestimmungen, lfd. Nr. 3.7).
Über die o.g. Anforderungen hinaus kann die Bauaufsichtsbehörde für Gebäude nach § 2 Abs.4 HBauO eine Sicherheitsstromversorgung für die Spülluftanlagen verlangen.
2.2 Vorräume
An Vorräume sind folgende Anforderungen zu stellen:
Ein gesonderter Vorraum ist nicht erforderlich, soweit ein Flur vorgesehen ist, der in Verbindung mit den Öffnungen in den Flurwänden die vorstehend genannten Anforderungen erfüllt.
Zu § 33 Abs. 4 Nr. 2; stoßfeste hochfeuerhemmende Wände notwendiger Treppenräume bei GK 4
Wände nach nationaler Klassifizierung F 60-a gelten auch unter zusätzlicher mechanischer Beanspruchung als hochfeuerhemmend, wenn sie nach DIN 4102-3, Abschnitt 4.3.3 geprüft und nachgewiesen sind. Die ausreichende Widerstandsfähigkeit gegen Stoßeinwirkung ergibt sich aus dem allgemeinen bauaufsichtlichen Prüfzeugnis.
Die Stoßprüfung ist in der Norm DIN EN 1363-2, Abschnitt 7 geregelt.
Ansonsten wird auf die Anmerkungen zu § 24 Absatz 2 Satz 2 Nr. 3 verwiesen.
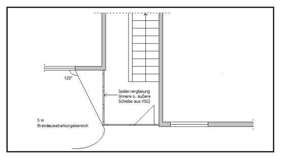
Zu § 33 Abs. 4 Satz 2; Treppenraumaußenwände bei versetzten Gebäudeteilen
Die Außenwände des Treppenraums müssen so ausgebildet sein, dass sie infolge eines Brandes in benachbarten Räumen ihren Raumabschluss nicht verlieren und der Treppenraum unter Berücksichtigung der Isolationswirkung der Außenwand passierbar bleibt. In Außenwänden vorspringender Treppenräume können Isolierverglasungen ohne nachgewiesenen Feuerwiderstand vorgesehen werden, wenn:
Andernfalls ist eine F30- (EI30-)Verglasung vorzusehen.
Beim Tragsicherheitsnachweis der Verglasungen sind die technischen Regeln für die Verwendung von linienförmig gelagerten und gegen Absturz sichernden Verglasungen gem. Liste der Technischen Baubestimmungen, lfd. Nr. 2.6.6 bzw. 2.6.7 zu beachten.
Zu § 33 Abs. 5 Nr. 1; Einbauten in Treppenräumen
Fensterrahmen, Türen und Türrahmen, sowie Handläufe von Geländern gelten nicht als Einbauten; sie dürfen aus brennbaren Baustoffen bestehen.
Auch bestehen gegen elektronische Informationstafeln (z.B. Flachbildschirme) in geringer Zahl keine Bedenken.
Zu § 33 Abs. 5 Nr. 3; Bodenbeläge in notwendigen Treppenräumen
Bodenbeläge aus schwerentflammbaren Baustoffen (B1 nach DIN 4102-1) sind zulässig in außen und innenliegenden Treppenräumen.
Nach DIN EN 13501-1 müssen europäisch klassifizierte Bodenbeläge als Bfl -s1 oder Cfl -s1 gekennzeichnet sein (s. Bauregelliste A, Teil 1, Anlage 0.2.2)(Red. Anm.: Jetzt VV TB).
Zu § 33 Abs. 8 Satz 2; Lüftungsöffnungen im Dachgeschoss
Treppenräume, die an einer Außenwand liegen, benötigen aufgrund § 17 HBauO zur Vermeidung einer Rauchsackbildung auch im Dachgeschoss ein Fenster von mindestens 0,5 m2, das vom obersten oder mittleren Podest aus geöffnet werden kann, wenn sich im Dachgeschoss Aufenthaltsräume befinden.
Zu § 33 Abs. 8 Satz 4; Besondere Vorkehrungen für große Treppenräume
Anforderungen an Treppenräume mit einer Grundfläche von über 40 m2 sind je nach Einzelfall zu beurteilen. Besondere Vorkehrungen können z.B. sein:
§ 34 Notwendige Flure, offene Gänge
Zu § 34 Abs. 1 Satz 2 Nr. 3; notwendige Flure in Wohnungen
Notwendige Flure sind in Wohnungen grundsätzlich nicht erforderlich - ohne Beschränkung der Wohnungsgröße.
Zu § 34 Abs. 1 Satz 2 Nr. 4; Rettungswege von Teilnutzungseinheiten (Kompartiments)
Innerhalb einer Nutzungseinheit mit mehr als 400 m2, deren Teile (Kompartiments) durch qualifizierte Trennwände gemäß § 27 HBauO unterteilt sind, kann der zweite Rettungsweg einer Teilnutzungseinheit über eine andere Teilnutzungseinheit geführt werden. Dies ist vertretbar, solange nur ein Nutzer über beide Teil-Nutzungseinheiten verfügt und dieser Tatbestand (ein gemeinsamer Nutzer) zur Bedingung bei Erteilung der Abweichung gemäß § 69 HBauO erhoben und entsprechend im Baugenehmigungsbescheid verankert wird.
Zu § 34 Abs. 3 Satz 1; Rauchschutztüren zur Unterteilung notwendiger Flure in Rauchabschnitte
Rauchschutztüren zur Unterteilung notwendiger Flure in Rauchabschnitte dürfen nicht abschließbar sein, sofern es sich um allgemein zugängliche notwendige Flure (Rettungswege) handelt.
Zu § 34 Abs. 4 Satz 4; Öffnungen und Verglasungen
In den Wänden notwendiger Flure sind Türen in Hinblick auf die Brandschutzanforderungen privilegiert. Die Privilegierung erstreckt sich auch auf Türen, die im Seitenteil mit einer Glasfüllung ausgestattet sind, bis zu einer maximalen Gesamttürbreite von 1,50 m. Die Verglasung muss als Verbundsicherheitsglas (VSG) ausgeführt werden. Alle anderen Verglasungen in notwendigen Flurwänden müssen feuerhemmend (F30) und feststehend ausgebildet sein.
Im Kellergeschoss ist die Privilegierung von Türen ausgeschlossen.
Die Anforderung, die Wände feuerhemmend auszuführen gilt auch, wenn die Flurwand gleichzeitig Außenwand ist. Bestehen hinsichtlich des Brandschutzes keine Bedenken (z.B. geschossweiser Brandüberschlag oder Brandüberschlag "über Eck"), kann eine Abweichung gemäß § 69 HBauO zugelassen werden.
Zu § 34 Abs. 5; Offene Gänge
An die Wände und Brüstungen offener Gänge ("Laubengänge") werden dieselben Anforderungen wie an notwendige Flure gestellt. Lediglich die Fenster in der Außenwand der Nutzung sind ab einer Brüstungshöhe von 0,9 m ohne Anforderungen zulässig.
Die Öffnung oberhalb der Brüstung darf nur soweit geschlossen werden, dass Belichtung und Belüftung der angrenzenden Räume nicht beeinträchtigt werden und Rauch ungehindert abziehen kann. Die Gesamtheit dieser geschlossenen Teile darf 30 %, die Einzelbreite der geschlossenen Elemente soll 2,0 m nicht überschreiten.
Werden die offenen Gänge nachträglich (z.B. bei energetischen Sanierungen) ganz geschlossen, werden die offenen Gänge zu notwendigen Fluren und die bisher außenliegenden Fenster verlieren ihre Privilegierung. Die Fenster sind entsprechend den Anforderungen an notwendige Flure mit feststehenden F30-Verglasungen auszustatten.
Zu § 34 Abs. 6; Bodenbeläge in notwendigen Fluren und offenen Gängen
Bodenbeläge dürfen aus normalentflammbaren Baustoffen bestehen.
Es bestehen keine brandschutztechnischen Bedenken gegen elektronische Informationstafeln (z.B. Flachbildschirme) in geringer Anzahl.
§ 35 Fenster, Türen, sonstige Öffnungen
Rauchdichte feuerhemmende Türen
Feuerhemmende, rauchdichte und selbstschließende Türen (Abschlüsse T 30-RS nach DIN 4102-5 bzw. EI230-C .Sm nach DIN EN 13501-2) sind Bauprodukte, für deren Verwendung eine allgemeine bauaufsichtliche Zulassung erforderlich ist.
Rauchdichte und selbstschließende Türen
(RS-Türen nach DIN 18095-1 bzw. Sa-C0, Sm-C0, Sa-C1...nach DIN EN 13501-2) sind Bauprodukte nach Bauregelliste a Teil 2, lfd. Nr. 2.33(Red. Anm.: Jetzt VV TB), für deren Verwendung ein allgemeines bauaufsichtliches Prüfzeugnis erforderlich ist.
Dicht- und selbstschließende Türen
Türen gelten im bauaufsichtlichen Sinne als "dichtschließend", sofern sie mit einer mindestens dreiseitig umlaufenden und ggf. mit einer im Mittelfalz angeordneten dauerelastischen Dichtung zur Behinderung des Durchtritts von Rauch ausgeführt werden (s. DIBt-Mitteilungen 1/2006, S.3). Eine Dichtung an der Schwelle ist nicht erforderlich. Verglasungen in diesen Türen sowie Ganzglastüren sind zulässig.
Bauprodukte nach Bauregelliste a Teil 1, lfd. Nr. 6.20.2(Red. Anm.: Jetzt VV TB) mit einem Türschließmittel mit kontrolliertem Schließablauf nach Bauregelliste B Teil 1, lfd. Nr. 1.6.4(Red. Anm.: Jetzt VV TB) erfüllen die an dicht- und selbstschließende Wohnungseingangstüren gestellten Anforderungen.
Zu § 35 Abs. 3 Satz 1; Rauchableitung im Kellergeschoss
Schutzziel dieser Forderung ist es, eine Entrauchung nach der Brandbekämpfungsphase zu ermöglichen.
Es muss mindestens eine Entrauchungsöffnung geöffnet werden können bzw. permanent geöffnet sein, z.B. eine Kelleraußentür, ein Kellerfenster oder eine andere Öffnung, die möglichst entgegengesetzt zur Zuluftöffnung liegt.
Zu § 35 Abs. 4 Satz 2 Fenster als Rettungsweg
Fenster, die als Rettungswege dienen, sollten ein stehendes Öffnungsformat (mit mind. 0,9 m Breite x 1,2 m Höhe) aufweisen, um Rettungs- und Löscharbeiten der Feuerwehr zu ermöglichen.
Feststehende Pfosten oder Riegel im Fensterrahmen behindern die Rettungsarbeiten.
Im Brandfall muss sichergestellt sein, dass Personen sich gegenüber den Rettungskräften bemerkbar machen können. Daher ist der Betrieb von elektrisch betriebenen Rollläden bei Fenstern die als Rettungsweg dienen, auch im Brandfall sicherzustellen. Die Rolläden müssen entweder mechanisch (z.B. Handkurbel) zu öffnen sein oder über eine gesicherte akkubetriebene Steuerung verfügen, mit der sie bei einem Stromausfall hochfahrbar sind.
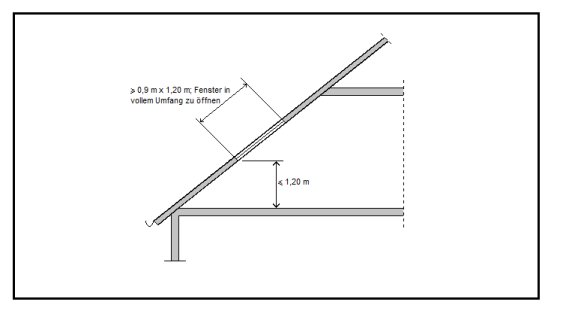
Zu § 35 Abs. 4 Satz 2; Geneigte Dachflächenfenster als Rettungsweg
Ein geneigtes Dachflächenfenster ist unter folgenden Voraussetzungen als zweiter Rettungsweg möglich:
§ 37 Aufzüge
Zu § 37 Abs. 1, Satz 3 Nr. 1; Aufzüge ohne eigene Fahrschächte
Aufzüge ohne eigenen Fahrschacht sind auch in innenliegenden Treppenräumen zulässig.
Zu § 37 Abs. 2 Satz 2; Fahrschachttüren
Fahrschachttüren für den Einbau in feuerbeständige Fahrschachtwände (Gebäudeklasse 5) sind Bauprodukte nach Bauregelliste a Teil 1, lfd. Nr. 6.4 oder 6.5(Red. Anm.: Jetzt VV TB).
Zu § 37 Abs. 2 Satz 2; Feuerwehraufzug (Sichtöffnung, Ganzglastüren)
Eine Sichtöffnung von 600 cm2 in der Fahrschachttür eines Feuerwehraufzuges bedarf keiner Zustimmung im Einzelfall.
Zu § 37 Abs. 3 Satz 1; Öffnungen zur Lüftung und Rauchableitung in Fahrschächten
Die Öffnungen zur Rauchableitung sind in der Decke oder direkt unterhalb der Decke des Fahrschachtes anzuordnen. Der Rauch muss unmittelbar oder über eigene Leitungen (z.B. Schächte und Kanäle) aus nichtbrennbaren Baustoffen, die feuerbeständig ausgeführt sind, ins Freie geleitet werden.
Werden die Öffnungen zur Rauchableitung durch Klappen verschlossen, so müssen diese die Öffnung zur Rauchableitung in der erforderlichen Größe freigeben, wenn Rauch in den Fahrschacht eingedrungen ist.
Die eingesetzten Elemente (z.B. Rauchabzugsanlage, Brandmeldeanlage) müssen jeweils über eigene Verwendbarkeitsnachweise verfügen, wenn nicht die Gesamtanlage über einen entsprechenden Verwendbarkeitsnachweis verfügt.
Die Öffnungen zur Rauchableitung dürfen auch zur Lüftung des Fahrschachtes herangezogen werden.
Liegt ein Aufzug innerhalb eines notwendigen Treppenraums, genügt eine gemeinsame Öffnung zur Rauchableitung im Treppenraum. Eine Lüftungsöffnung aus dem Aufzugsschacht zum Treppenraum ist nicht erforderlich. Dies gilt auch, wenn der Aufzug aus anderen Gründen (z.B. Schallschutz) über einen Schacht verfügt, dieser aber unmittelbar an den Treppenraum angrenzt und mit den Wänden des Treppenraumes und den Fahrschachtwänden einen gemeinsamen Raum bildet. Die Anforderungen an die Fahrschachttüren gemäß der DIN 18091 im Hinblick auf die Rauchdichtigkeit entfallen.
§ 39 Leitungsanlagen, Installationsschächte und -kanäle
Zu § 39 Abs. 1; Führung von Leitungen (außer Lüftungsleitungen) durch raumabschließende Bauteile
Die Anforderungen an die Verlegung von Leitungsanlagen in Rettungswegen, an die Führung von Leitungen durch Raum abschließende Bauteile und den Funktionserhalt von elektrischen Leitungsanlagen im Brandfall sind in der Leitungsanlagenrichtlinie (LAR) geregelt. Die LAR ist in Hamburg als TBB eingeführt.
Zu § 39 Abs. 3; Installationsschächte und Kanäle in Verbindung mit § 40 Abs. 2 Satz 1
Es bestehen keine Bedenken, wenn Installationsschächte und -kanäle aus brennbaren Baustoffen bestehen und nachfolgende Bedingungen erfüllt werden:
§ 40 Lüftungsanlagen
Zu § 40 Abs. 1; Lüftungsanlagen
Lüftungsanlagen sind brandsicher, wenn sie der Richtlinie über brandschutztechnische Anforderungen an Lüftungsanlagen (LüAR) entsprechen. Die LüAR ist in Hamburg als TBB eingeführt.
§ 45 Wohnungen
Zu § 45 Abs. 6 Satz 1; Rauchwarnmelder
Wohnräume oder Arbeitszimmer mit Gästebetten werden nicht für den Zweck eingerichtet und genutzt, um in diesen Zimmern regelmäßig zu übernachten, so dass sie nicht zwingend mit Rauchwarnmeldern ausgestattet werden müssen.
| Anforderungen an das Brandverhalten von Bauteilen und Baustoffen Klassifizierung nach DIN 4102 | Anhang A |
Diese Tabelle beschreibt nur Standardfälle der HBauO
| Nr. | Bauteil | Gebäudeklasse 1 | Gebäudeklasse 2 | Gebäudeklasse 3 | Gebäudeklasse 4 | Gebäudeklasse 5 |
| 1 | Tragende Wände | |||||
| (Stützen) | ||||||
| a) im Keller | F 30-B | F 30-B | F 90-AB | F 90-AB | F 90-AB | |
| b) in Geschossen | - | F 30-B | F 30-B | F 60 1 | F 90-AB | |
| c) im Dachgeschoss | - 2 | - 2 | - 2 | - 2 | - 2 | |
| 2 | Gebäudeabschlusswände | F60 1 | F60 1 | F60 1 | F 60 stoßfest 1 | Brandwand |
| i→a : F 30-B, a→i : F 90 3 |
i→a : F 30-B, a→i : F 90 3 |
i→a : s.1 a) b) a→i : F 90 3 |
||||
| 3 | Außenwände (nicht tragend)
b) Bekleidungen |
- | - | - | a oder
[ ] 30 [ ] B |
A
[ ] de [ ] F [ ] 30-B |
| (Oberflächen) Unterkonstruktion | - | - | B 1 4 | B 1 4 | ||
| Dämmschicht[ ]n | ||||||
| 4 | Trennwände | |||||
| a) im Kellergeschoss | - | - | F90-AB | F90-AB | F90-AB | |
| b) in Geschossen | - | - | F30-B | F60 1 | F90-AB | |
| b) im Dachgeschoss | - | - | F30-B | F30-B | F30-B | |
| 5 | Treppenraumwände | - | - | F 30-B 5 | F 60 stoßfest 1 5 | Brandwandbauart 5 |
| 6 | Flurwände (notwendige Flure) | |||||
| a) im Keller | - | - | F 90-AB | F 90-AB | F 90-AB | |
| b) in Geschossen | - | - | F 30-B | F 30-B | F 30-B | |
| 7 | Trennwände an offenen Gängen (soweit notwendiger Flur) | - | - | F 30-B | F 30-B | F 30-B |
| 8 | Decken | |||||
| a) Kellerdecken | F 30-B | F 30-B | F 90-AB | F 90-AB | F 90-AB | |
| b) Geschossdecken | - | F 30-B | F 30-B | F 60 1 | F 90-AB | |
| c) im Dachgeschoss | - 2 | - 2 | - 2 | - 2 | - 2 | |
| d) oberer Abschluss von notwendigen | - | F30-B 6 | F30-B 6 | F60 1 6 | F90-AB 6 | |
| Treppenräumen | ||||||
| 9 | Bekleidungen in notwendigen Fluren und notwendigen Treppenräumen | - | - | A, Boden B 1 7 |
A, Boden B 1 7 |
A, Boden B 1 7 |
| 10 | Tragende Teile notwendiger Treppen | - | - | a oder F 30-B Außentreppen A | A
Außentreppen A |
F 30-A, Außentreppen A |
| 11 | Dächer | hB 8 | hB 8 | hB 8 | hB 8 | hB 8 |
| Erläuterungen der verwendeten Kurzbezeichnungen: | |||
| F30-B | feuerhemmende Bauteile | ||
| F60 | hochfeuerhemmende Bauteile (s. Fußnote 1) | ||
| F90-AB | feuerbeständige Bauteile, deren tragende und aussteifende Teile aus nichtbrennbaren Baustoffen bestehen und die bei raumabschließenden Bauteilen zusätzlich eine in Bauteilebene durchgehende Schicht aus nichtbrennbaren Baustoffen haben | ||
| A | nichtbrennbare Baustoffe | ||
| B1 | schwerentflammbare Baustoffe | ||
| h.B : | gegen Flugfeuer und strahlende Wärme widerstandsfähige Bedachung (harte Bedachung) | ||
| i→a / a→i | Richtung der klassifizierten Feuerwiderstandsdauer (von innen nach außen / von außen nach innen) | ||
Fußnoten zu Anhang A:
1) Die Feuerwiderstandsfähigkeit von hochfeuerhemmenden Bauteilen gem. § 24, Absatz 2, Satz 2 Nr. 3 HBauO in Verbindung mit den zusätzlichen Anforderungen an die Brandschutzbekleidung kann nicht nach DIN 4102 nachgewiesen werden und ist daher in Tabelle 1 der DIN 4102-2 nicht aufgeführt.
Eine Klassifizierung kann nur nach DIN EN 13501-2 erfolgen. (s. auch Bauregelliste a Teil 1, Anlage 0.1.2 und Bauregelliste a Teil 2, lfd. Nr. 2.44)(Red. Anm.: Jetzt VV TB) Bauteile gem. § 24, Absatz 2, Satz 2 Nr. 3 HBauO sind im Anhang B aufgeführt.
2) gilt nur, wenn im darüber liegenden Dachraum keine Aufenthaltsräume zulässig sind.
3) Die Konstruktionen sind in DIN 4102-4:1994-05, Abschnitt 4.12.8, dargestellt.
4) Unterkonstruktionen aus normalentflammbaren (B2) Baustoffen sind zulässig, wenn das Eindringen von Feuer in den Hinterlüftungsspalt zwischen Bekleidung und Wand verhindert wird.
5) Diese Anforderung gilt nicht für Außenwände notwendiger Treppenräume, die aus nichtbrennbaren Baustoffen bestehen und durch andere anschließende Gebäudeteile im Brandfall nicht gefährdet sind.
6) Das gilt nicht, wenn der obere Abschluss gleichzeitig das Dach ist und die Treppenraumwände bis unter die Dachhaut reichen.
7) Die Brennbarkeitsklasse (B1) für Bodenbeläge wird in notwendigen Treppenräumen gefordert.
8) Gegen Flugfeuer und strahlende Wärme widerstandsfähige Bedachungen (hB =Harte Bedachungen) sind in DIN 4102-4:1994-05, Abschnitt 8.7 mit zugehöriger Anlage 3.1.8 zur Liste der Technischen Baubestimmungen aufgeführt.
| Anforderungen an das Brandverhalten von Bauteilen und Baustoffen Klassifizierung nach DIN EN 13501 1 |
Anhang B
; |
Diese Tabelle beschreibt nur Standardfälle der HBauO
| Nr. | Bauteil 1 | Gebäudeklasse 1 | Gebäudeklasse 2 | Gebäudeklasse 3 | Gebäudeklasse 4 | Gebäudeklasse 5
; |
| 1 | Tragende Wände (Stützen) | ; | ||||
| a) im Keller | a) R(EI) 30 | a) R(EI) 30 | a) R(EI) 90 | a) R(EI) 90 | a) R(EI) 90 | |
| b) in Geschossen | b) - | b) R(EI) 30 | b) R(EI) 30 | b) R(EI) 60 | b) R(EI) 90
; |
|
| c) im obersten Dachgeschoss | c) 2 | c)- 2 | c) - 2 | c)- 2 | c)- 2 | |
| 2 | a) Gebäudeabschlusswände | (R)EI 60 | (R)EI 60 | (R)EI 60 | (R)EI-M 60 | (R)EI-M 90 |
| i→o :(R)EI 30, o→i : (R)EI 90 |
i→o :(R)EI 30, o→i : (R)EI 90 |
i→o : s.1 a) b), o→i : (R)EI 90 |
||||
| 3 | a) Außenwände (nicht tragend) | - | - | n.b. (s. Anhang C) oder |
n.b. (s. Anhang C) oder |
|
| E 30 (i→o) | E 30 (i→o)
; |
|||||
| b) Bekleidungen (Oberflächen) | - | - | - | EI 30 (o→i)
s.e. 4 |
EI 30 (o→i)
s.e. 4 |
|
| Unterkonstruktion | ( Anhang C) | ( Anhang C) | ||||
| Dämmschichten | ||||||
| 4 | Trennwände | |||||
| a) im Kellergeschoss | - | - | (R)EI 90 | (R)EI 90 | (R)EI 90 | |
| b) in Geschossen | - | - | (R)EI 30 | (R)EI 60 | (R)EI 90 | |
| b) im Dachgeschoss | - | - | (R)EI 30 | (R)EI 30 | (R)EI 30 | |
| 5 | Treppenraumwände | - | - | REI 30 5 | REI-M 60 5 | REI-M 90 5 |
| 6 | Wände notwendiger | |||||
| Flure | ||||||
| a) im Keller | - | - | (R)EI 90 | (R)EI 90 | (R)EI 90 | |
| b) in Geschossen | - | - | (R)EI 30 | (R)EI 30 | (R)EI 30 | |
| 7 | Trennwände an offenen | - | - | (R)EI 30 | (R)EI 30 | (R)EI 30 |
| Gängen (notw. Flur) | ||||||
| 8 | Decken | |||||
| a) Kellerdecken | REI 30 | REI 30 | REI 90 | REI 90 | REI 90 | |
| b) Geschossdecken | - | REI 30 | REI 30 | REI 60 | REI 90 | |
| c) im Dachgeschoss | - 2 | - 2 | - 2 | - 2 | - 2 | |
| d) oberer Abschluss von notw. Treppenräumen | - | REI 30 6 | REI 30 6 | REI 60 6 | REI 90 6 | |
| 9 | Bekleidungen in notwendigen Fluren und notwendigen Treppenräumen | - | - | n.b., Bodenbelag : s.e. 7 |
n.b., Bodenbelag : s.e. 7 |
n.b., Bodenbelag : s.e. 7 |
| 10 | Tragende Teile notwendiger Treppen | - | - | n.b oder R 30 Außentreppen n.b. | n.b. Außentreppen n.b. | R 30 und n.b. Außentreppen n.b. |
| 11 | Dächer | BRoof (t1) 8 | BRoof (t1) 8 | BRoof (t1) 8 | BRoof (t1) 8 | BRoof (t1) 8 |
Erläuterungen der verwendeten Kurzzeichen (weitere Erläuterungen zu den Abkürzungen siehe Fußnoten und Anhang D):
n.b. = nichtbrennbar
s.e. = schwerentflammbar
Hinweis: Feuerwiderstandsklassen von Sonderbauteilen sind in der Bauregelliste a Teil 1, Anlage 0.1.2(Red. Anm.: Jetzt VV TB) dargestellt (s. auch Anhang E).
Fußnoten zu Anhang B:
1) Bauteile werden nach DIN EN 13501-2 im Hinblick auf ihre Feuerwiderstandsfähigkeit mit der Kombination der in Anhang D aufgeführten die geforderten Bauteileigenschaften symbolisierenden Buchstaben R,E,I,..." klassifiziert.
Beispiele : Stütze R 30, nichttragende Trennwand EI 60, Geschossdecke REI 90, Brandwand REI-M 90). In Klammern gesetzte Eigenschaften entfallen u.U. je nach Aufgabe des Bauteils.
Die europäische Klassifizierung der Feuerwiderstandsfähigkeit von Bauteilen berücksichtigt nicht das zusätzlich in den Landesbauordnungen geforderte Brandverhalten der Baustoffe (Bauteilkomponenten). Das Brandverhalten der Baustoffe wird deshalb nach DIN EN 13501-1 (s. Anhang C) zusätzlich bestimmt.
2) gilt nur, wenn im darüber liegenden Dachraum keine Aufenthaltsräume möglich sind.
3) Entsprechende Konstruktionen sind in DIN 4102-4:1994-05, Abschnitt 4.12.8, dargestellt.
4) Unterkonstruktionen aus normalentflammbaren ( Anhang C) Baustoffen sind zulässig, wenn das Eindringen von Feuer in den Hinterlüftungsspalt zwischen Bekleidung und Wand verhindert wird.
5) Diese Anforderung gilt nicht für Außenwände notwendiger Treppenräume, die aus nichtbrennbaren Baustoffen bestehen und durch andere anschließende Gebäudeteile im Brandfall nicht gefährdet sind.
6) Das gilt nicht, wenn der obere Abschluss gleichzeitig das Dach ist und die Treppenraumwände bis unter die Dachhaut reichen.
7) Die bauaufsichtliche Anforderung " schwerentflammbar" (Brennbarkeitsklasse s. Anhang C, Tabelle 2) für Bodenbeläge gilt in notwendigen Treppenräumen.
8) Gegen Flugfeuer und strahlende Wärme widerstandsfähige Bedachungen (hB =Harte Bedachungen) entsprechen der Klasse BRoof (t1) nach DIN EN 13501-5 (z.Z. Entwurf).
Als harte Bedachungen gelten ebenfalls die Bauarten nach DIN 4102-4:1994-05, Abschnitt 8.7 mit zugehöriger Anlage 3.1.8 zur Liste der Technischen Baubestimmungen.
| Zuordnung der nach DIN EN 13501-1 klassifizierten Eigenschaften zum Brandverhalten von Baustoffen zu den bauaufsichtlichen Anforderungen (s. Bauregelliste a Teil 1, Anlage 0.2.2) | Anhang C |
| Zusatzanforderungen | Europäische Klasse nach DIN EN 13501-1 1 |
|||
| Bauaufsichtliche Anforderung | Kein Rauch | Kein brennendes Abtropfen | Bauprodukte, ausgenommen lineare Rohrdämmstoffe | Lineare Rohrdämmstoffe 2 |
| nichtbrennbar | x
x |
x
x |
A1
A2 - s1, d0 |
A1L
A2L - s1, d0 |
| schwerentflammbar | x
x |
x
x |
B - s1, d0
C - s1, d0 |
BL - s1, d0
CL - s1, d0 |
| x
x x x x x |
A2 - s2, d0
A2 - s3, d0 B - s2, d0 B - s3, d0 C - s2, d0 C - s3, d0 |
A2L- s2, d0
A2L - s3, d0 BL- s2, d0 BL - s3, d0 CL - s2, d0 CL - s3, d0 |
||
| x
x x x x x |
A2 - s1, d1
A2 - s1, d2 B - s1, d1 B - s1, d2 C - s1, d1 C - s1, d2 |
A2L - s1, d1
A2L - s1, d2 BL - s1, d1 BL - s1, d2 CL - s1, d1 CL - s1, d2 |
||
| A2 - s3, d2
B - s3, d2 C - s3, d2 |
A2L - s3, d2
BL - s3, d2 CL - s3, d2 |
|||
| normalentflammbar | x
x x x |
D - s1, d0
D - s2, d0 D - s3, d0 E |
DL - s1, d0
DL - s2, d0 D L - s3, d0 E L |
|
| D - s1, d1
D - s2, d1 D - s3, d1 D - s1, d2 D - s2, d2 D - s3, d2 |
D L - s1, d1
D L - s2, d1 D L - s3, d1 D L - s1, d2 D L - s2, d2 D L - s3, d2 |
|||
| E - d2 | E L - d2 | |||
| leichtentflammbar | F | F L | ||
| 1) In den europäischen Prüf- und Klassifizierungsregeln ist das Glimmverhalten von Baustoffen nicht erfasst. Für Verwendungen, in denen das Glimmverhalten erforderlich ist, ist das Glimmverhalten nach nationalen Regeln nachzuweisen. | ||||
| 2) anwendbar nach Ergänzung der DIN EN 13501-1 | ||||
Tabelle 2 (Bodenbeläge)
| Bauaufsichtliche Anforderungen | Europäische Klasse nach DIN EN 13501-1 |
| nichtbrennbar | A1fl A2fl - s1 |
| schwerentflammbar | Bfl - s1 Cfl - s1 |
| normalentflammbar | A2fl - s2
Bfl - s2 Cfl - s2 Dfl - s1 Dfl - s2 Efl |
| leichtentflammbar | Ffl |
Tabelle 3 Erläuterungen der zusätzlichen Angaben
| Herleitung des Kurzzeichens | Kriterium | Anwendungsbereich |
| s (Smoke) |
Rauchentwicklung | Anforderungen an die Rauchentwicklung |
| d (Droplets) |
Brennendes Abtropfen/ Abfallen | Anforderungen an das brennende Abtropfen / Abfallen |
| ...fl (Floorings) |
Brandverhaltensklasse für Bodenbeläge | |
| ..L (Linear Pipe Thermal Insulation Products | Brandverhaltensklasse für Produkte zur Wärmedämmung von linearen Rohren |
| Erläuterung der Klassifizierungskriterien und der zusätzlichen Angaben zur Klassifizierung des Feuerwiderstandes nach DIN EN 13501-2, DIN EN 13501-3 | Anhang D |
| Herleitung des Kurzzeichens | Kriterium | Anwendungsbereich |
| R (Résistance) | Tragfähigkeit | Zur Beschreibung des Feuerwiderstandes |
| E (Êtanchéité | Raumabschluss | |
| I (Isolation) | Wärmedämmung (unter Brandeinwirkung) | |
| W (Radation) | Begrenzung des Strahlendurchtritts | |
| M (Mechanical) | Mechanische Einwirkung auf Wände (Stoßbeanspruchung) | |
| Sm (Smokemax,leakagerate) | Begrenzung der Rauchdurchlässigkeit (Dichtheit, Leckrate), erfüllt die Anforderungen sowohl bei Umgebungstemperatur als auch bei 200°C | Rauchschutztüren (als Zusatzanforderung auch bei Feuerschutzabschlüssen), Lüftungsanlagen einschließlich Klappen |
| C.. (Closing) | Selbstschließende Eigenschaft (ggf. mit Anzahl der Lastspiele), einschließlich Dauerfunktion | Rauchschutztüren, Feuerschutzabschlüsse (einschließlich Abschlüsse für Förderanlagen) |
| P | Aufrechterhaltung der Energieversorgung und/oder Signalübermittlung | Elektrische Kabelanlagen allgemein |
| G | Rußbrandbeständigkeit | Schornsteine |
| K1, K2 | Brandschutzvermögen | Wand- und Deckenbekleidungen (Brandschutzbekleidungen) |
| I1, I2 | Unterschiedliche Wärmedämmungskriterien | Feuerschutzabschlüsse (einschließlich Abschlüsse für Förderanlagen |
| ...200,....300 ... ((°C) | Angabe der Temperaturbeanspruchung | Rauchschutztüren |
| i→ o i←o i↔o(in - out) |
Richtung der klassifizierten Feuerwiderstandsdauer | Nichttragende Außenwände, Installationsschächte/-kanäle, Lüftungsanlagen/-klappen |
| a↔b (above-below) | Richtung der klassifizierten Feuerwiderstandsdauer | Unterdecken |
| f | Beanspruchung durch volle ETK (Vollbrand) | Doppelböden |
| ve, ho | Für vertikalen bzw. horizontalen Einbau klassifiziert | Lüftungsleitungen/-klappen Installationskanäle/-schächte |
| U/U | Rohrende offen innerhalb des Prüfofens/ Rohrende offen außerhalb des Prüfofens |
Rohrabschottungen |
| C/U | Rohrende geschlossen inner- halb des Prüfofens/ Rohrende offen außerhalb des Prüfofens |
Rohrabschottungen |
| U/C | Rohrende offen innerhalb des Prüfofens/ Rohrende geschlossen außerhalb des Prüfofens |
Rohrabschottungen |
| Feuerwiderstandsklassen von Sonderbauteilen nach DIN EN 13501-2, DIN EN 13501-3 1 und DIN EN 13501-4 1 und ihre Zuordnung zu den bauaufsichtlichen Anforderungen | Anhang E |
| Bauaufsichtliche Anforderung | Feuerschutzabschlüsse (auch in Förderanlagen) ohne Rauchschutz |
Feuerschutzabschlüsse (auch in Förderanlagen) mit Rauchschutz | Rauchschutztüren 2 | Kabelabschottungen | Rohrabschottungen |
| feuerhemmend | EI230-C.. 2 | EI230-C..Sm 2 | EI 30 | EI 30-U/U 4 EI 30-C/U 5 |
|
| hochfeuerhemmend | EI260-C.. 2 | EI260-C..Sm 2 | EI 60 | EI 60-U/U 4 EI 60-C/U 5 |
|
| feuerbeständig | EI290-C.. 2 | EI290-C..Sm 2 | EI 90 | EI 90-U/U 4 EI 90-C/U 5 |
|
| Feuerwiderstandsfähigkeit 120 Minuten | - | EI 120 | EI 120-U/U 4 EI 120-C/U 5 |
||
| Rauchdicht und selbstschließend | Sm..C... 2 |
| Bauaufsichtliche Anforderung | Lüftungsleitungen | Klappen in Lüftungsleitungen | Installationsschächte und -kanäle |
| feuerhemmend | EI 30 (veho i↔o)-S | EI 30 (veho i↔o)-S | EI 30 (veho i↔o) |
| hochfeuerhemmend | EI 60 (veho i↔o)-S | EI 60 (veho i↔o)-S | EI 60 (veho i↔o) |
| feuerbeständig | EI 90 (veho i↔o)-S | EI 90 (veho i↔o)-S | EI 90 (veho i↔o) |
| Bauaufsichtliche Anforderung | Elektrische Leitungsanlagen mit Funktionserhalt | Abgasanlagen | Brandschutzverglasungen 3 | Fahrschachttüren in feuerwiderstandsfähigen Fahrschachtwänden 7 |
| feuerhemmend | P 30 | EI 30 (i↔o)-O oder EI 30 (i←o) und Gxx 6 |
E 30 | E 30 |
| hochfeuerhemmend | P 60 | EI 60 (i↔o)-O oder EI 60 (i←o) und Gxx 6 |
E 60 | E 60 |
| feuerbeständig | P 90 | EI 90 (i↔o)-O oder EI 90 (i←o) und Gxx 6 |
E 90 | E 90 |
Fußnoten zu Anhang E:
(vgl. aktuelle Bauregelliste A, Teil 1, Anlage 0.1.2, Tabelle 2)(Red. Anm.: Jetzt VV TB):
1) anwendbar mit Erscheinen der Norm
2) Festlegungen zur Lastspielzahl für die Dauerfunktionsprüfungen
3) Brandschutzverglasungen nach dieser Tabelle lassen Hitzestrahlung durch und sind nicht als feuerhemmend, hochfeuerhemmend oder feuerbeständig zu verwenden; Brandschutzverglasungen bei denen infolge einer Isolationswirkung (I ) eine Übertragung von Feuer und Wärme über ein bestimmte Dauer (Feuerwiderstandsdauer) verhindert wird, werden mit EI 30 bzw. EI 60 bzw. EI 90 klassifiziert .
4) Für die Abschottung von brennbaren Rohren oder Rohren mit einem Schmelzpunkt < 1000°C; für Trinkwasser-, Heiz- und Kälteleitungen mit Durchmessern ≤ 110 mm ist auch die Klasse EI...-U/C zulässig.
5) für die Abschottung mit nichtbrennbaren Rohren mit einem Schmelzpunkt ≥1000°C
6) Anwendung der Klasse in Verbindung mit G nur bei festen Brennstoffen; Rußbrandbeständigkeit G mit Angabe eines Abstandes in mm zu brennbaren Baustoffen (gemäß Prüfung)
7) Fahrschachttüren nach dieser Tabelle zum Einbau in feuerhemmende, hochfeuerhemmende oder feuerbeständige Fahrschachtwände erfüllen die Anforderungen an den Raumabschluss und sind nach DIN EN 81-58 zu klassifizieren; eine Übertragung von Wärme wird nicht behindert; die konstruktiven Randbedingungen nach Bauregelliste a Teil 1, Anlage 6.1(Red. Anm.: Jetzt VV TB) sind sinngemäß zu beachten.
_____
*) BPD 05/2012 - Version 2. vom 23.09.2014. Das PDF-Dokument wurde mit Lesezeichen und Links in der Inhaltsübersicht versehen, um besser navigieren zu können. Fachliche Änderungen wurden nicht (!) vorgenommen.
1) Anordnung über Zuständigkeiten im Bauordnungswesen vom 8. August 2006
2) Erläuterung Begriffe:
Rauchabzugsöffnung = Fenster oder Dachöffnungsverschluss
Rauch- u. Wärmeabzugsanlage (RWA) = entweder natürliche Rauch- u. Wärmeabzugsanlage (NRA) oder mechanische Rauch- und Wärmeabzugsanlage (MRA)
natürliches Rauch- und Wärmeabzugsgerät (NRWG) = Fenster oder Dachöffnungsverschluss mit bauaufsichtlicher Zulassung, d.h. Normprüfung des Motors, Wind- und Schneelast
![]() |
ENDE | ![]() |
(Stand: 04.03.2025)
Alle vollständigen Texte in der aktuellen Fassung im Jahresabonnement
Nutzungsgebühr: ab 105.- € netto
(derzeit ca. 7200 Titel s.Übersicht - keine Unterteilung in Fachbereiche)
Die Zugangskennung wird kurzfristig übermittelt
? Fragen ?
Abonnentenzugang/Volltextversion