zurück

.

Bewertungsverfahren Anhang AA

Prüfung von Teilsystemen

Struktur der Module für EG-Prüfungen von Teilsystemen

Module für EG-Prüfungen von Teilsystemen

Module für EG-Prüfungen von Teilsystemen

Modul SB: Bauartprüfung

1. Dieses Modul beschreibt das EG-Prüfverfahren, bei dem eine benannte Stelle auf Antrag des Auftraggebers oder seines in der Gemeinschaft ansässigen Bevollmächtigten prüft und bescheinigt, dass die Bauart eines Teilsystems aus dem Bereich Fahrzeuge - Güterwagen, das repräsentativ für die beabsichtigte Fertigung ist,

Die in diesem Modul festgelegte Bauartprüfung könnte spezifische Bewertungsphasen beinhalten - Entwurfsprüfung, Baumusterprüfungen, Kontrolle des Fertigungsprozesses, die in der einschlägigen TSI vorgeschrieben sind.

2. Der Auftraggeber 3 stellt bei einer benannten Stelle seiner Wahl einen Antrag auf EG-Prüfung (als Bauartprüfung) des Teilsystems. Der Antrag muss Folgendes enthalten:

3. Der Antragsteller stellt der benannten Stelle ein für die betreffende Fertigung repräsentatives Muster des Teilsystems (im Folgenden als Baumuster bezeichnet) zur Verfügung. 4

Ein Baumuster kann mehrere Varianten des Teilsystems abdecken, sofern die Unterschiede zwischen den Varianten die Bestimmungen der TSI nicht verletzen.

Die benannte Stelle kann weitere Muster verlangen, wenn sie diese für die Durchführung des Prüfungsprogramms benötigt.

Falls es für spezifische Prüf- oder Untersuchungsmethoden erforderlich und in der TSI oder in den darin genannten europäischen Spezifikationen 5 vorgeschrieben ist, sind außerdem ein oder mehrere Muster einer Unterbaugruppe oder Baugruppe oder ein Muster des Teilsystems in vormontiertem Zustand bereitzustellen.

Die technischen Unterlagen und Muster müssen Entwurf, Herstellung, Installation, Instandhaltung und Funktionsweise des Teilsystems nachvollziehbar beschreiben und eine Bewertung der Übereinstimmung mit den Anforderungen der TSI erlauben.

Die technischen Unterlagen müssen Folgendes enthalten:

Falls die TSI weitere technische Unterlagen vorschreiben, sind diese hinzuzufügen.

4. Die benannte Stelle

4.1 prüft die technischen Unterlagen,

4.2 überprüft, ob das (die) Baumuster des Teilsystems oder der Baugruppen bzw. Unterbaugruppen des Teilsystems in Übereinstimmung mit den technischen Unterlagen hergestellt wurde(n), und führt die entsprechenden Baumusterprüfungen gemäß den Bestimmungen der TSI und den einschlägigen europäischen Spezifikationen durch oder lässt sie durchführen. Diese Prüfung hat mit einem geeigneten Bewertungsmodul zu erfolgen;

4.3 überprüft, wenn die TSI eine Entwurfsprüfung vorschreibt, die Entwurfsmethoden, -werkzeuge und -ergebnisse daraufhin, ob sie geeignet sind, am Ende des Entwurfsprozesses die Konformitätsanforderungen an das Teilsystem zu erfüllen,

4.4 stellt fest, welche Elemente nach den einschlägigen Bestimmungen der TSI und der europäischen Spezifikationen und welche nicht nach den einschlägigen Bestimmungen dieser europäischen Spezifikationen entworfen wurden,

4.5 führt die entsprechenden Untersuchungen und erforderlichen Prüfungen nach Punkt 4.2 und 4.3 durch oder lässt sie durchführen, um festzustellen, ob die einschlägigen europäischen Spezifikationen eingehalten wurden, sofern sich der Antragsteller für die Anwendung dieser Spezifikationen entschieden hat,

4.6 führt die entsprechenden Untersuchungen und erforderlichen Prüfungen nach Punkt 4.2 und 4.3 durch oder lässt sie durchführen, um festzustellen, ob die gewählten Lösungen die Anforderungen der TSI erfüllen, sofern die einschlägigen europäischen Spezifikationen nicht angewandt wurden,

4.7 vereinbart mit dem Antragsteller den Ort, an dem die Untersuchungen und erforderlichen Prüfungen durchgeführt werden sollen.

5. Entspricht die Bauart den Bestimmungen der TSI, so stellt die benannte Stelle dem Antragsteller eine Bauartprüfbescheinigung aus. Die Bescheinigung enthält den Namen und die Anschrift des in den technischen Unterlagen angegebenen Auftraggebers und des bzw. der Hersteller(s), die Ergebnisse der Prüfung, Bedingungen für ihre Gültigkeit und die zur Identifizierung der zugelassenen Bauart erforderlichen Angaben.

Ein Verzeichnis der wichtigen technischen Unterlagen wird der Bescheinigung beigefügt und in einer Kopie von der benannten Stelle aufbewahrt.

Lehnt die benannte Stelle es ab, dem Auftraggeber eine Gebrauchstauglichkeitsbescheinigung auszustellen, so gibt sie dafür eine ausführliche Begründung. Es ist ein Einspruchsverfahren vorzusehen.

6. Jede benannte Stelle macht den übrigen benannten Stellen einschlägige Angaben über die ausgestellten, entzogenen bzw. abgelehnten Bauartprüfbescheinigungen.

7. Die übrigen benannten Stellen erhalten auf Anfrage Kopien der ausgestellten Bauartprüfbescheinigungen und/oder der Ergänzungen. Die Anhänge der Bescheinigungen sind für die übrigen benannten Stellen zur Verfügung zu halten.

8. Der Auftraggeber muss bei den technischen Unterlagen Kopien der Bauartprüfbescheinigungen und der Ergänzungen während der gesamten Lebensdauer des Teilsystems aufbewahren und anderen Mitgliedstaaten auf Verlangen übermitteln.

9. Der Antragsteller unterrichtet die benannte Stelle, der die technischen Unterlagen zur Bauartprüfbescheinigung vorliegen, über alle Änderungen, die die Übereinstimmung mit den Anforderungen der TSI oder den vorgeschriebenen Bedingungen für die Benutzung des Teilsystems beeinträchtigen können. In diesem Fall benötigt das Teilsystem eine zusätzliche Zulassung. Diese zusätzliche Zulassung kann in Form einer Ergänzung der ursprünglichen Bauartprüfbescheinigung erteilt werden, oder es kann eine neue Bauartprüfbescheinigung ausgestellt werden, nachdem die ursprüngliche Bescheinigung außer Kraft gesetzt wurde.

Modul SD: Qualitätssicherung Fertigung 12

1. Dieses Modul beschreibt das EG-Prüfverfahren, bei dem eine benannte Stelle auf Verlangen eines Auftraggebers oder seines in der Gemeinschaft ansässigen Bevollmächtigten prüft und bestätigt, dass ein Teilsystem aus dem Bereich Fahrzeuge - Güterwagen, für das bereits eine Bauartprüfbescheinigung von einer benannten Stelle ausgestellt wurde,

2. Die benannte Stelle führt das Verfahren unter der Bedingung durch, dass

Er bezieht sich nicht auf Unterauftragnehmer des Herstellers, die lediglich Bauteile und Interoperabilitätskomponenten liefern.

3. Für das Teilsystem, das einem EG-Prüfverfahren unterliegt, betreibt der Auftraggeber oder - soweit zutreffend - betreiben die Hauptauftragnehmer ein zugelassenes Qualitätssicherungssystem für Herstellung sowie abschließende Produktkontrolle und Prüfung nach Punkt 5, das der Überwachung nach Punkt 6 unterliegt.

Wenn der Auftraggeber selbst für das gesamten Teilsystemprojekt (vor allem für die Integration des Teilsystems) verantwortlich ist, oder wenn der Auftraggeber direkt an der Fertigung (einschließlich Montage und Einbau) beteiligt ist, muss er für diese Aktivitäten ein zugelassenes Qualitätssicherungssystem betreiben, das der Überwachung nach Punkt 6 unterliegt.

Wenn ein Hauptauftragnehmer für das gesamte Teilsystemprojekt (vor allem für die Integration des Teilsystems) verantwortlich ist, muss er in jedem Fall ein zugelassenes Qualitätssicherungssystem für Herstellung sowie abschließende Produktkontrolle und Prüfung betreiben, das der Überwachung nach Punkt 6 unterliegt.

4. EG-Prüfverfahren

4.1 Der Auftraggeber stellt bei einer benannten Stelle seiner Wahl einen Antrag auf EG-Prüfung des Teilsystems (als Prüfung im Rahmen des Qualitätssicherungssystems Fertigung) einschließlich Koordination der Überwachung der Qualitätssicherungssysteme nach Punkt 5.3 und 6.5. Der Auftraggeber muss die beteiligten Hersteller über seine Wahl und den Antrag benachrichtigen.

4.2 Der Antrag muss Entwurf, Herstellung, Montage, Installation, Instandhaltung und Funktionsweise des Teilsystems nachvollziehbar beschreiben und eine Bewertung der Übereinstimmung mit der in der Bauartprüfbescheinigung beschriebenen Bauart und den Anforderungen der TSI erlauben.

Der Antrag muss Folgendes enthalten:

4.3 Die benannte Stelle prüft zunächst den Antrag im Hinblick auf die Bauartprüfung und die Bauartprüfbescheinigung.

Wenn die benannte Stelle zum Schluss kommt, dass die Bauartprüfbescheinigung nicht mehr gültig ist oder unangemessen ist und somit eine neue Bauartprüfung notwendig ist, so gibt sie dafür eine Begründung.

5. Qualitätssicherungssystem

5.1 Der Auftraggeber - soweit betroffen - und ggf. die Hauptauftragnehmer stellen bei einer benannten Stelle ihrer Wahl einen Antrag auf Bewertung ihres jeweiligen Qualitätssicherungssystems.

Der Antrag muss Folgendes enthalten:

5.2 Für den Auftraggeber oder den Hauptauftragnehmer, der für das gesamte Teilsystemprojekt verantwortlich ist, müssen die Qualitätssicherungssysteme die vollständige Übereinstimmung des Teilsystems mit der in der Bauartprüfbescheinigung beschriebenen Bauart und die vollständige Übereinstimmung des Teilsystems mit den Anforderungen der TSI gewährleisten. Für andere Hauptauftragnehmer muss/müssen deren Qualitätssicherungssystem(e) die Übereinstimmung ihrer jeweiligen Beiträge zum Teilsystem mit der in der Bauartprüfbescheinigung beschriebenen Bauart und mit den Anforderungen der TSI gewährleisten.

Alle vom Antragsteller bzw. von den Antragstellern berücksichtigten Grundlagen, Anforderungen und Vorschriften sind systematisch und ordnungsgemäß in Form schriftlicher Regeln, Verfahren und Anweisungen zusammenzustellen. Diese Unterlagen über das Qualitätssicherungssystem stellen sicher, dass die Qualitätssicherungsgrundsätze und - verfahren wie, z.B. Qualitätssicherungsprogramme, -pläne, -handbücher und -berichte einheitlich ausgelegt werden.

Sie müssen insbesondere eine angemessene Beschreibung folgender Punkte bei allen Antragstellern enthalten:

5.3 Die vom Auftraggeber gewählte benannte Stelle muss prüfen, ob alle Phasen des Teilsystems nach Punkt 5.2 ausreichend und einwandfrei von der Zulassung und Überwachung des bzw. der Qualitätssicherungssystem(e) des bzw. der Antragsteller(s) 6 abgedeckt sind.

Wenn die Übereinstimmung des Teilsystems mit der in der Bauartprüfbescheinigung beschriebenen Bauart und mit den Anforderungen der TSI auf mehreren Qualitätssicherungssystemen beruht, ist insbesondere zu prüfen,

5.4 Die nach Punkt 5.1 gewählte benannte Stelle bewertet das Qualitätssicherungssystem, um zu beurteilen, ob es die Anforderungen nach Punkt 5.2 erfüllt. Sie geht davon aus, dass dies der Fall ist, wenn der Hersteller ein Qualitätssicherungssystem für die Fertigung mit abschließender Fertigungskontrolle und Prüfung nach EN/ISO 9001 - 2000 betreibt, bei dem die spezifischen Merkmale der Interoperabilitätskomponente berücksichtigt sind, auf die es angewendet wird.

Wenn der Antragsteller ein zertifiziertes Qualitätssicherungssystem betreibt, ist dies von der benannten Stelle bei der Bewertung zu berücksichtigen.

Das Audit muss spezifisch auf das betreffende Teilsystem und auf den jeweiligen Beitrag des Antragstellers zum Teilsystem ausgelegt sein. Mindestens ein Mitglied des Auditorenteams muss über Erfahrungen mit der Bewertung der betreffenden Teilsystemtechnik verfügen. Das Bewertungsverfahren umfasst auch eine Kontrollbesichtigung der Werke des Antragstellers.

Die Entscheidung wird dem Antragsteller mitgeteilt. Die Mitteilung enthält die Ergebnisse der Prüfung und eine Begründung der Entscheidung.

5.5 Der Auftraggeber - soweit betroffen - und die Hauptauftragnehmer müssen die Verpflichtungen erfüllen, die sich aus dem zugelassenen Qualitätssicherungssystem ergeben, und es aufrecht erhalten, so dass es angemessen und wirksam bleibt.

Sie müssen die benannte Stelle, die das Qualitätssicherungssystem zugelassen hat, über signifikante Änderungen informieren, durch die die Erfüllung der TSI-Anforderungen durch das Teilsystem beeinträchtigt wird.

Die benannte Stelle prüft die geplanten Änderungen und entscheidet, ob das geänderte Qualitätssicherungssystem noch den in Punkt 5.2 genannten Anforderungen entspricht oder ob eine erneute Bewertung erforderlich ist.

Sie teilt ihre Entscheidung dem Antragsteller mit. Die Mitteilung enthält die Ergebnisse der Prüfung und eine Begründung der Entscheidung.

6. Überwachung des Qualitätssicherungssystems bzw. der Qualitätssicherungssysteme unter der Verantwortlichkeit der benannten Stelle

6.1 Mit dieser Überwachung soll gewährleistet werden, dass der Auftraggeber - soweit betroffen - und die Hauptauftragnehmer ihre Verpflichtungen nach dem zugelassenen Qualitätssicherungssystem erfüllen.

6.2 Der Auftraggeber - soweit betroffen - und die Hauptauftragnehmer müssen der nach Punkt 5.1 gewählten benannten Stelle alle Unterlagen zustellen (bzw. zustellen lassen), die zu diesem Zweck benötigt werden, einschließlich Umsetzungspläne und technische Unterlagen zum Teilsystem (soweit sie für den spezifischen Beitrag der Antragsteller am Teilsystem zutreffend sind), insbesondere:

6.3 Die benannte Stelle führt regelmäßig Audits durch, um sicherzustellen, dass der Auftraggeber - soweit betroffen - und die Hauptauftragnehmer das Qualitätssicherungssystem aufrecht erhalten und anwenden, und sie erstellt die jeweiligen Auditberichte. Wenn diese ein zertifiziertes Qualitätssicherungssystem betreiben, ist dies von der benannten Stelle bei der Überwachung zu berücksichtigen.

Die Audits werden mindestens einmal jährlich durchgeführt. Mindestens ein Audit muss in dem Zeitraum stattfinden, in dem die einschlägigen Aktivitäten (Herstellung, Montage oder Installation) für das Teilsystem, das dem EG-Prüfverfahren nach Punkt 8 unterzogen wird, ausgeführt werden.

6.4 Darüber hinaus kann die benannte Stelle unangemeldete Besuche an den betreffenden Standorten des bzw. der Antragsteller durchführen. Während dieser Besuche kann sie vollständige oder teilweise Audits vornehmen und erforderlichenfalls Prüfungen zur Kontrolle des ordnungsgemäßen Funktionierens des Qualitätssicherungssystems durchführen oder durchführen lassen. Sie muss dem bzw. den Antragstellern je nach Art des Besuchs einen Kontroll-, Audit- oder Prüfbericht zukommen lassen.

6.5 Die vom Auftraggeber gewählte und für die EG-Prüfung verantwortliche benannte Stelle muss - wenn sie nicht selbst die Überwachung des bzw. der betreffenden Qualitätssicherungssysteme übernimmt - die Überwachungstätigkeiten der anderen dafür verantwortlichen benannte Stelle koordinieren, um

Für diese Koordination ist die benannte Stelle berechtigt,

7. Die benannte Stelle nach Punkt 5.1 muss für Kontrolle, Audit und Überwachung Zugang zu den Baustellen, Fertigungshallen, Montage- und Installationsstandorten, Lagerbereichen und soweit erforderlich Vormontage- und Prüfanlagen und generell zu allen Orten erhalten, die sie als notwendig erachtet, um ihre Aufgabe entsprechend dem spezifischen Beitrag des Antragstellers zum Teilsystemprojekt durchzuführen.

8. Der Auftraggeber - soweit betroffen - und die Hauptauftragnehmerhalten für einen Zeitraum von zehn Jahren nach Herstellung des letzten Teilsystems folgende Unterlagen für die einzelstaatlichen Behörden zur Verfügung:

9. Wenn das Teilsystem die Anforderungen der TSI erfüllt, stellt die benannte Stelle anhand der Bauartprüfung sowie der Zulassung und Überwachung des bzw. der Qualitätssicherungssysteme dem Auftraggeber eine Konformitätsbescheinigung aus, worauf dieser der Aufsichtsbehörde in dem Mitgliedsstaat, in dem sich das Teilsystem befindet bzw. in dem es eingesetzt wird, eine EG-Prüferklärung vorlegt.

Die EG-Prüferklärung und ihre Anlagen müssen datiert und unterzeichnet sein. Die Erklärung muss in derselben Sprache wie die technischen Unterlagen abgefasst sein und mindestens die in Anhang V der Richtlinie genannten Angaben enthalten.

10. Die vom Auftraggeber gewählte benannte Stelle ist verantwortlich für die Zusammenstellung der technischen Unterlagen, die mit der EG-Prüferklärung vorzulegen sind. Die technischen Unterlagen müssen mindestens die in Art. 18 (3) der Richtlinie angegebenen Informationen und insbesondere folgenden Angaben enthalten:

11. Jede benannte Stelle muss mit den anderen benannten Stellen die zutreffenden Informationen über erteilte, zurückgenommene oder verweigerte Zulassungen des Qualitätssicherungssystems austauschen.

Die anderen benannten Stellen können auf Anforderung Kopien der ausgestellten Zulassungen des Qualitätssicherungssystems erhalten.

12. Die zur Konformitätsbescheinigung gehörenden Aufzeichnungen müssen beim Auftraggeber hinterlegt werden. Der Auftraggeber innerhalb der Gemeinschaft muss während der gesamten Lebensdauer des Teilsystems eine Kopie der technischen Unterlagen aufbewahren und anderen Mitgliedstaaten auf Verlangen übermitteln.

Modul SF: Prüfung der Produkte 12

1. Dieses Modul beschreibt das EG-Prüfverfahren, bei dem eine benannte Stelle auf Verlangen eines Auftraggebers oder seines in der Gemeinschaft ansässigen Bevollmächtigten prüft und bestätigt, dass das Teilsystem aus dem Bereich Fahrzeuge - Güterwagen, für das bereits eine EG-Bauartprüfbescheinigung von einer benannten Stelle ausgestellt wurde,

und in Betrieb genommen werden kann.

2. Der Auftraggeber 7 stellt bei einer benannten Stelle seiner Wahl einen Antrag auf EG-Prüfung (als Prüfung der Produkte) des Teilsystems. Der Antrag muss Folgendes enthalten:

3. In diesem Teil des Verfahrens prüft und bestätigt der Auftraggeber, dass das betreffende Teilsystem mit der in der Bauartprüfbescheinigung beschriebenen Bauart und mit den dafür geltenden TSI-Anforderungen übereinstimmt.

Die benannte Stelle führt das Verfahren unter der Bedingung durch, dass die vor der Bewertung ausgestellte Bauartprüfbescheinigung weiterhin für das vom Antrag betroffene Teilsystem Gültigkeit hat.

4. Der Auftraggeber trifft alle erforderlichen Maßnahmen, damit der Fertigungsprozess (einschließlich Montage und Integration der Interoperabilitätskomponenten durch ggf. beteiligte Hauptauftragnehmer8 die Übereinstimmung des Teilsystems mit der in der EG-Bauartprüfbescheinigung beschriebenen Bauart und mit den dafür geltenden TSI-Anforderungen gewährleistet.

5. Der Antrag muss Entwurf, Herstellung, Installation, Instandhaltung und Funktionsweise des Teilsystems nach-vollziehbar beschreiben und eine Bewertung der Übereinstimmung mit der in der Bauartprüfbescheinigung beschriebenen Bauart sowie den Anforderungen der TSI erlauben.

Der Antrag muss Folgendes enthalten:

und, soweit nicht in diesen Unterlagen enthalten:

Falls die TSI weitere technische Unterlagen vorschreibt, sind diese hinzuzufügen.

6. Die benannte Stelle prüft zunächst den Antrag im Hinblick auf die Gültigkeit der Bauartprüfung und die Bauartprüfbescheinigung. Wenn die benannte Stelle zum Schluss kommt, dass die Bauartprüfbescheinigung nicht mehr gültig ist oder unangemessen ist und somit eine neue Bauartprüfung notwendig ist, so gibt sie dafür eine Begründung.

Die benannte Stelle führt angemessene Erprobungen und Kontrollen durch, um die Übereinstimmung des Teilsystems mit der in der Bauartprüfbescheinigung beschriebenen Bauart und mit den Anforderungen der TSI zu überprüfen.

Die benannte Stelle prüft und kontrolliert jedes serienmäßig hergestellte Teilsystem nach Punkt 4.

7. Kontrolle und Erprobung jedes einzelnen, serienmäßig hergestellten Teilsystems

7.1 Die benannte Stelle führt die Untersuchungen, Kontrollen und Prüfungen durch, um die Übereinstimmung der serienmäßig hergestellten Teilsysteme gemäß TSI zu gewährleisten. Die Untersuchungen, Kontrollen und Prüfungen müssen sich auf die in der TSI vorgesehenen Phasen erstrecken.

7.2 Jedes serienmäßigen Teilsystem wird einzeln geprüft, untersucht und kontrolliert 9, um seine Übereinstimmung mit der in der Bauartprüfbescheinigung beschriebenen Bauart und mit den dafür geltenden Anforderungen der TSI zu überprüfen. Wenn in der TSI (bzw. in einer in der TSI angegebenen europäischen Norm) keine diesbezüglichen Prüfungen vorgeschrieben sind, gelten die in den einschlägigen europäischen Spezifikationen vorgeschriebenen oder gleichwertige Prüfungen.

8. Die benannte Stelle kann mit dem Auftraggeber (und mit den Hauptauftragnehmern) die Orte vereinbaren, an denen die Untersuchungen durchgeführt werden sollen, und kann vereinbaren, dass die abschließende Kontrolle des Teilsystems sowie, nach Maßgabe der TSI, die Erprobung oder Validierung unter vollen Betriebsbedingungen durch den Auftraggeber unter direkter Überwachung und in Anwesenheit der benannten Stelle ausgeführt werden.

Die benannte Stelle hat für diese Erprobungen und Kontrollen freien Zutritt zu den Fertigungshallen, Werkstätten, Montage- und Installationsstandorten und soweit erforderlich zu den Vormontage- und Prüfanlagen, um ihre in der TSI vorgesehene Aufgabe erfüllen zu können.

9. Wenn das Teilsystem die Anforderungen der TSI erfüllt, stellt die benannte Stelle dem Auftraggeber eine Konformitätsbescheinigung aus, worauf dieser der Aufsichtsbehörde in dem Mitgliedsstaat, in dem sich das Teilsystem befindet bzw. in dem es eingesetzt wird, eine EG-Prüferklärung vorlegt. Diese Tätigkeiten der benannten Stelle beruhen auf der Bauartprüfung sowie auf den an den serienmäßigen Produkten durchgeführten Erprobungen, Kontrollen und Prüfungen nach Punkt 7, die in der TSI und/oder in den betreffenden europäischen Spezifikationen gefordert werden.

Die EG-Prüferklärung und ihre Anlagen müssen datiert und unterzeichnet sein.

Die Erklärung muss in derselben Sprache wie die technischen Unterlagen abgefasst sein und mindestens die in Anhang V der Richtlinie genannten Angaben enthalten.

10. Die benannte Stelle ist für die Erstellung der technischen Unterlagen verantwortlich, die der EG-Prüferklärung beiliegen müssen. Die technischen Unterlagen müssen mindestens die in Art. 18 (3) der Richtlinie und insbesondere folgende Angaben enthalten:

11. Die zur Konformitätsbescheinigung gehörenden Aufzeichnungen müssen beim Auftraggeber hinterlegt werden.

Der Auftraggeber muss Kopien der technischen Unterlagen während der gesamten Lebensdauer des Teilsystems aufbewahren und anderen Mitgliedstaaten auf Verlangen übermitteln.

Modul SH2: Umfassendes Qualitätssicherungssystem mit Entwurfsprüfung 12

1. Dieses Modul beschreibt das EG-Prüfverfahren, bei dem eine benannte Stelle auf Verlangen eines Auftraggebers oder seines in der Gemeinschaft ansässigen Bevollmächtigten prüft und bestätigt, dass ein Teilsystem aus dem Bereich Fahrzeuge - Güterwagen

und in Betrieb genommen werden kann.

2. Die benannte Stelle führt das Verfahren einschließlich einer Entwurfsprüfung des Teilsystems durch, vorausgesetzt, der Auftraggeber 7 und die beteiligten Hauptauftragnehmer erfüllen die Verpflichtungen nach Punkt 3.

Der Begriff "Hauptauftragnehmer" bezieht sich auf Firmen, deren Tätigkeiten zum Erfüllen der grundlegenden Anforderungen der TSI beitragen. Dies betrifft

Er bezieht sich jedoch nicht auf Unterauftragnehmer von Herstellern, die lediglich Bauteile und Interoperabilitätskomponenten liefern.

3. Für das Teilsystem, das dem EG-Prüfverfahren unterliegt, muss der Auftraggeber oder - soweit zutreffend - müssen die Hauptauftragnehmer ein zugelassenes Qualitätssicherungssystem für den Entwurf, die Herstellung sowie die abschließende Produktkontrolle und Prüfung nach Punkt 5 betreiben, das der Überwachung nach Punkt 6 unterliegt.

Der Hauptauftragnehmer, der für das gesamte Teilsystemprojekt (vor allem für die Integration des Teilsystems) verantwortlich ist, muss in jedem Fall ein zugelassenes Qualitätssicherungssystem für Entwurf, Herstellung sowie abschließende Produktkontrolle und Prüfung nach Punkt 5 betreiben, das der Überwachung nach Punkt 6 unterliegt.

Wenn der Auftraggeber selbst für das gesamte Teilsystemprojekt (vor allem für die Integration des Teilsystems) verantwortlich ist, oder wenn der Auftraggeber direkt am Entwurf und/oder an der Fertigung (einschließlich Montage und Einbau) beteiligt ist, muss er für diese Aktivitäten ein zugelassenes Qualitätssicherungssystem betreiben, das der Überwachung nach Punkt 6 unterliegt.

Antragsteller, die nur an der Montage und am Einbau beteiligt sind, brauchen nur ein zugelassenes Qualitätssicherungssystem für die Herstellung sowie die abschließende Produktkontrolle und Prüfung unterhalten.

4. EG-Prüfverfahren

4.1 Der Auftraggeber stellt bei einer benannten Stelle seiner Wahl einen Antrag auf EG-Prüfung des Teilsystems (als Prüfung des umfassenden Qualitätssicherungssystems mit Entwurfsprüfung) einschließlich Koordination der Überwachung der Qualitätssicherungssysteme nach Punkt 5.4 und 6.6. Der Auftraggeber muss die beteiligten Hersteller über seine Wahl und den Antrag benachrichtigen.

4.2 Der Antrag muss Entwurf, Montage, Installation, Instandhaltung und Funktionsweise des Teilsystems nachvollziehbar beschreiben und eine Bewertung der Übereinstimmung mit den Anforderungen der TSI erlauben. Der Antrag muss Folgendes enthalten:

4.3 Der Auftraggeber legt die Ergebnisse der Untersuchungen, Kontrollen und Prüfungen10 einschließlich ggf. erforderlicher Baumusterprüfungen vor, die in geeigneten Laboratorien des Auftraggebers oder in seinem Auftrag durchgeführt wurden.

4.4 Die benannte Stelle prüft den Antrag auf Entwurfsprüfung und bewertet die Prüfergebnisse. Wenn der Entwurf mit den Anforderungen der Richtlinie und der dafür geltenden TSI übereinstimmt, erstellt sie einen Entwurfsprüfbericht für den Antragsteller.

Der Bericht enthält die Ergebnisse der Entwurfsprüfung, Bedingungen für ihre Gültigkeit, die zur Identifizierung des geprüften Entwurfs erforderlichen Angaben und gegebenenfalls eine Beschreibung der Funktionsweise des Teilsystems. Lehnt die benannte Stelle es ab, dem Auftraggeber einen Entwurfsprüfbericht auszustellen, so gibt sie dafür eine ausführliche Begründung. Es ist ein Einspruchsverfahren vorzusehen.

5. Qualitätssicherungssystem

5.1 Der Auftraggeber - soweit betroffen - und ggf. die Hauptauftragnehmer stellen bei einer benannten Stelle ihrer Wahl einen Antrag auf Bewertung ihres jeweiligen Qualitätssicherungssystems.

Der Antrag muss Folgendes enthalten:

Für Unternehmen, die nur an einem Teil des Teilsystemprojekts beteiligt sind, müssen nur die für diesen Teil zutreffenden Angaben erbracht werden.

5.2 Für den Auftraggeber oder den Hauptauftragnehmer, der für das gesamte Teilsystemprojekt verantwortlich ist, muss das Qualitätssicherungssystem die vollständige Übereinstimmung des Teilsystems mit den Anforderungen der TSI gewährleisten. Für andere Hauptauftragnehmer muss/müssen deren Qualitätssicherungssystem(e) die Übereinstimmung ihrer jeweiligen Beiträge zum Teilsystem mit den Anforderungen der TSI gewährleisten.

Alle von den Antragstellern berücksichtigten Grundlagen, Anforderungen und Vorschriften sind systematisch und ordnungsgemäß in Form schriftlicher Regeln, Verfahren und Anweisungen zusammenzustellen. Diese Unterlagen zum Qualitätssicherungssystem müssen das Verständnis der qualitätsspezifischen Grundsätze und Verfahren wie Qualitätsprogramme, Pläne, Handbücher und Aufzeichnungen ermöglichen.

Das System muss insbesondere eine angemessene Beschreibung folgender Punkte enthalten:

Die Untersuchungen, Kontrollen und Prüfungen müssen sich auf folgende Phasen erstrecken:

5.3 Die vom Auftraggeber gewählte benannte Stelle prüft, ob alle Phasen des Teilsystems nach Punkt 5.2 ausreichend und einwandfrei von der Zulassung und Überwachung des bzw. der Qualitätssicherungssystem(e/s) des bzw. der Antragsteller(s) 6 abgedeckt sind.

Wenn die Übereinstimmung des Teilsystems mit den Anforderungen der TSI auf mehr als einem Qualitätssicherungssystem beruht, prüft die benannte Stelle insbesondere,

5.4 Die benannte Stelle nach Punkt 5.1 bewertet das Qualitätssicherungssystem, um festzustellen, ob es die Anforderungen nach Punkt 5.2 erfüllt. Sie geht davon aus, dass dies der Fall ist, wenn der Hersteller ein Qualitätssicherungssystem für Entwurf, Fertigung, abschließende Produktkontrolle und Prüfung nach EN/ISO 9001 - 2000 betreibt, bei dem die spezifischen Merkmale der Interoperabilitätskomponente berücksichtigt sind, auf die es angewendet wird.

Wenn der Antragsteller ein zertifiziertes Qualitätssicherungssystem betreibt, ist dies von der benannten Stelle bei der Bewertung zu berücksichtigen.

Das Audit muss spezifisch auf das betreffende Teilsystem und auf den jeweiligen Beitrag des Antragstellers zum Teilsystem ausgelegt sein. Mindestens ein Mitglied des Auditorenteams muss über Erfahrungen mit der Bewertung der betreffenden Teilsystemtechnik verfügen. Das Bewertungsverfahren umfasst auch eine Kontrollbesichtigung der Werke des Antragstellers.

Die Entscheidung wird dem Antragsteller mitgeteilt. Die Mitteilung enthält die Ergebnisse der Prüfung und eine Begründung der Entscheidung.

5.5 Der Auftraggeber - soweit betroffen - und die Hauptauftragnehmer müssen die Verpflichtungen erfüllen, die sich aus dem zugelassenen Qualitätssicherungssystem ergeben, und es aufrecht erhalten, so dass es angemessen und wirksam bleibt.

Sie müssen die benannte Stelle, die das Qualitätssicherungssystem zugelassen hat, über signifikante Änderungen informieren, durch die Erfüllung der TSI-Anforderungen durch das Teilsystem beeinträchtigt wird.

Die benannte Stelle prüft die geplanten Änderungen und entscheidet, ob das geänderte Qualitätssicherungssystem noch den in Punkt 5.2 genannten Anforderungen entspricht oder ob eine erneute Bewertung erforderlich ist.

Sie teilt ihre Entscheidung dem Antragsteller mit. Die Mitteilung enthält die Ergebnisse der Prüfung und eine Begründung der Entscheidung.

6. Überwachung des Qualitätssicherungssystems (bzw. der Qualitätssicherungssysteme) unter der Verantwortlichkeit der benannten Stelle

6.1 Mit dieser Überwachung soll gewährleistet werden, dass der Auftraggeber - soweit betroffen - und die Hauptauftragnehmer ihre Verpflichtungen nach dem bzw. den zugelassenen Qualitätssicherungssystem(en) erfüllen.

6.2 Der Auftraggeber - soweit betroffen - und die Hauptauftragnehmer müssen der nach Punkt 5.1 gewählten benannte Stelle alle Unterlagen zustellen (bzw. zustellen lassen), die zu diesem Zweck benötigt werden, insbesondere die Umsetzungspläne und die technischen Unterlagen zum Teilsystem (soweit sie für den spezifischen Beitrag des Antragstellers am Teilsystem zutreffend sind), einschließlich

6.3 Die benannte Stelle führt regelmäßig Audits durch, um sicherzustellen, dass der Auftraggeber - soweit betroffen - und die Hauptauftragnehmer das Qualitätssicherungssystem aufrecht erhalten und anwenden, und sie erstellt die jeweiligen Auditberichte. Wenn diese ein zertifiziertes Qualitätssicherungssystem betreiben, ist dies von der benannten Stelle bei der Bewertung zu berücksichtigen.

Die Audits werden mindestens einmal jährlich durchgeführt. Mindestens ein Audit muss in dem Zeitraum stattfinden, in dem die einschlägigen Aktivitäten (Entwurf, Herstellung, Montage oder Installation) für das Teilsystem, das dem EG-Prüfverfahren nach Punkt 4 unterzogen wird, ausgeführt werden.

6.4 Weiterhin kann die benannte Stelle unangemeldete Besuche an den in Punkt 5.2 angegebenen Standorten des bzw. der Antragsteller durchführen. Während dieser Besuche kann sie vollständige oder teilweise Audits vornehmen und erforderlichenfalls Prüfungen zur Kontrolle des ordnungsgemäßen Funktionierens des Qualitätssicherungssystems durchführen oder durchführen lassen. Sie muss dem bzw. den Antragsteller(n) je nach Art des Besuchs einen Kontroll-, Audit- oder Prüfbericht zukommen lassen.

6.5 Die vom Auftraggeber gewählte und für die EG-Prüfung verantwortliche benannte Stelle muss - wenn sie nicht selbst die Überwachung des bzw. der betreffenden Qualitätssicherungssystem(s/e) nach Punkt 5 übernimmt - die Überwachungstätigkeiten der anderen dafür verantwortlichen benannten Stellen koordinieren, um

Für diese Koordination ist die benannte Stelle berechtigt,

7. Die benannte Stelle nach Punkt 5.1 muss für die Überwachung Zugang zu den Räumlichkeiten für die Entwurfsarbeiten, zu den Baustellen, Fertigungshallen, Montage- und Installationsstandorten, Lagerbereichen und soweit erforderlich Vormontage- und Prüfanlagen und generell zu allen Orten erhalten, die sie als notwendig erachtet, um ihre Aufgabe entsprechend dem spezifischen Beitrag des Antragstellers zum Teilsystemprojekt durchzuführen.

8. Der Auftraggeber - soweit betroffen - und die Hauptauftragnehmer halten für einen Zeitraum von zehn Jahre nach Herstellung des letzten Teilsystems folgende Unterlagen für die einzelstaatlichen Behörden zur Verfügung:

9. Wenn das Teilsystem die Anforderungen der TSI erfüllt, muss die benannte Stelle anhand der Bauartprüfung sowie der Zulassung und Überwachung des Qualitätssicherungssystems bzw. der Qualitätssicherungssysteme dem Auftraggeber eine Konformitätsbescheinigung ausstellen, worauf dieser der Aufsichtsbehörde in dem Mitgliedsstaat, in dem sich das Teilsystem befindet bzw. in dem es eingesetzt wird, eine EG-Prüferklärung vorlegt.

Die EG-Prüferklärung und ihre Anlagen müssen datiert und unterzeichnet sein. Die Erklärung muss in derselben Sprache wie die technischen Unterlagen verfasst sein und mindestens die in Anhang V der Richtlinie genannten Angaben enthalten.

10. Die vom Auftraggeber gewählte benannte Stelle ist verantwortlich für die Zusammenstellung der technischen Unterlagen, die mit der EG-Prüferklärung vorzulegen sind. Die technischen Unterlagen müssen mindestens die in Art. 18 (3) der Richtlinie angegebenen Informationen und insbesondere folgenden Angaben enthalten:

11. Jede benannte Stelle muss mit den anderen benannten Stellen die zutreffenden Informationen über erteilte, zurückgenommene und verweigerte Zulassungen des Qualitätssicherungssystems und EG-Entwurfsprüfberichte austauschen. Die anderen benannten Stellen können auf Anforderung Kopien der ausgestellten Zulassungen des Qualitätssicherungssystems und zusätzlicher erteilter Zulassungen,

12. Die zur Konformitätsbescheinigung gehörenden Aufzeichnungen müssen beim Auftraggeber hinterlegt werden.

Der Auftraggeber muss während der gesamten Lebensdauer des Teilsystems eine Kopie der technischen Unterlagen aufbewahren und anderen Mitgliedstaaten auf Verlangen übermitteln.

______
1) Die grundlegenden Anforderungen sind in den technischen Parametern, Schnittstellen und Leistungsanforderungen in Kapitel 4 der TSI wiedergegeben.

2) Dieses Modul könnte künftig verwendet werden, wenn die TSI der Richtlinie 96/48/EG über den Hochgeschwindigkeitsverkehr aktualisiert werden.

3) In dem Modul bedeutet "Auftraggeber" die das Teilsystem vertreibende Einheit nach der Definition in der Richtlinie oder deren in der Gemeinschaft ansässiger Bevollmächtigter".

4) Der betreffende Abschnitt einer TSI kann diesbezüglich spezifische Anforderungen enthalten.

5) Die Definition einer europäischen Spezifikation ist in den Richtlinien 96/48/EG und 01/16/EG angegeben. In der Anleitung zur Anwendung der HS-TSIs ist erläutert, wie die europäischen Spezifikationen anzuwenden sind.

6) Bei der TSI Fahrzeuge kann die benannte Stelle an der abschließenden Betriebsprüfung für Lokomotiven oder Triebzüge unter den in dem betreffenden Kapitel der TSI angegebenen Bedingungen teilnehmen.

7) In dem Modul bedeutet "Auftraggeber" der "Auftraggeber für das Teilsystem" nach der Definition in der Richtlinie oder sein in der Gemeinschaft ansässiger Bevollmächtigter.

8) Der Begriff "Hauptauftragnehmer" bezieht sich auf Firmen, deren Tätigkeiten zum Erfüllen der grundlegenden Anforderungen der TSI beitragen. Er betrifft sowohl eine Firma, die für das gesamte Teilsystemprojekt verantwortlich ist, als auch andere Firmen, die nur an einem Teil des Teilsystemprojekts beteiligt sind (und z.B. die Montage oder den Einbau des Teilsystems übernehmen).

9) Bei der TSI Fahrzeuge nimmt die benannte Stelle an der abschließenden Betriebsprüfung für Lokomotiven oder Triebzüge teil. Dies wird in dem betreffenden Kapitel der TSI vermerkt.

10) Die Prüfergebnisse können mit dem Antrag oder später vorgelegt werden.

11) Die Definition einer europäischen Spezifikation ist in den Richtlinien 96/48/EG und 01/1/EG und in der Anleitung zur Anwendung der HS-TSIs erläutert.

.

Fahrzeugstrukturen und Anbauteile Anhang BB


Anbringung von Zugschlusssignalen

BB.1 Stützen des Schlusssignals

Bild BB1: Schlusssignalstütze

BB.2 Zugschlusssignal: Raumbedarf - Hüllraum

Bild BB2: Raumbedarf - Hüllraum

.

Fahrzeugstruktur und Anbauteile: Belastungsquellen Anhang CC


CC.1 Nutzlastspektrum

CC.1.1 Allgemeines

Veränderungen der Zuladung können signifikante Ermüdungszyklen verursachen. Bei erheblicher Veränderung der Zuladung muss die auf jeder Laststufe verbrachte Zeit festgelegt werden. Weiterhin sollten die Leer-/Beladen-Zyklen anhand des vom Betreiber angegebenen Betriebs bestimmt und auf geeignete Weise für Auswertungszwecke festgehalten werden. Ggf. sind Veränderungen der Verteilung der Zuladung und der lokalen Druckbeanspruchungen durch Räderfahrzeuge, die auf der Ladefläche des Wagens bewegt werden, zu berücksichtigen.

CC.1.2 Fahrwegbedingte Belastungen

Die durch vertikale und laterale Unregelmäßigkeiten sowie durch Gleisverwindung verursachte zyklischen Belastungen sind zu berücksichtigen. Diese zyklischen Belastungen können anhand

  1. eines dynamischen Modells
  2. von Messdaten
  3. von empirischen Erfahrungswerten

bestimmt werden. Es ist zulässig, die Auslegung hinsichtlich der Dauerfestigkeit anhand von Lastfalldaten und Bewertungsmethoden durchzuführen, die sich für die betreffende Anwendung bewährt haben, sofern derartige Daten vorliegen. In den Tabellen 15 und 16 der EN 12663 sind geeignete empirische Beschleunigungswerte des Wagenkastens für das Dauerfestigkeitsverfahren angegeben. Sie sind mit den herkömmlichen europäischen Betriebsbedingungen vereinbar und müssen übernommen werden, falls keine genaueren Daten verfügbar sind.

CC.1.3 Traktion und Bremsen

Die Anzahl der durch Traktion und Bremsen ausgelösten Belastungszyklen muss den Anfahr- und Bremsvorgängen (einschließlich nicht geplanter) der vorgesehenen Betriebsart entsprechen.

CC.1.4 Aerodynamische Belastung

In folgenden Fällen kann es zu einer signifikanten aerodynamischen Belastung kommen:

  1. Zugbegegnungen bei hoher Geschwindigkeit
  2. Tunnelbetrieb
  3. Seitenwind.

Wenn eine derartige Belastung signifikante zyklische Beanspruchungen in den Fahrzeugstrukturen verursacht, muss sie bei der Bewertung der Ermüdung berücksichtigt werden.

CC.1.5 Ermüdungsbelastungen an Schnittstellen

Die bei der Auslegung zu berücksichtigende dynamische Belastung muss +/- 30 % der statischen vertikalen Last betragen. Wird dieser Ansatz nicht benutzt, so ist die nachfolgende Methode anzuwenden:

Die Hauptermüdungsbelastungen an den Verbindungsstellen zwischen Drehgestell und Wagenkasten sind abhängig von:

  1. Be- und Entlastungszyklen
  2. Einwirkung vom Gleis
  3. Traktion und Bremsen.

Die Schnittstelle ist diesen Wechselbelastungen entsprechend auszulegen.

Die Befestigungen der Ausrüstungsgegenstände müssen den durch das Fahren des Wagens bewirkten Wechselbelastungen und allen durch die Verwendung der Ausrüstungsgegenstände verursachten Belastungen standhalten. Die Beschleunigungen können nach dem oben beschriebenen Verfahren bestimmt werden. Für normalen Betrieb auf dem europäischen Bahnnetz sind in den Tabellen 17, 18 und 19 der EN 12663 empirisch ermittelte Beschleunigungen für Ausrüstungsgegenstände, die mit der Wagenstruktur mitbewegt werden, angegeben. Diese können verwendet werden, wenn keine anderen, geeigneteren Daten zur Verfügung stehen.

Wechselbelastungen in Kupplungskomponenten sind zu berücksichtigen, wenn sie vom Betreiber oder Konstrukteur aufgrund seiner Erfahrung als signifikant bezeichnet werden.

.

Bewertung der Instandhaltungsvorkehrungen Anhang DD


Offene Fragen siehe 6.2.2.3

.

Fahrzeugstrukturen und Anbauteile Anhang EE


Tritte und Handgriffe

EE.1 Allgemein

Tritte mit entsprechenden Handläufen müssen an allen Stellen vorhanden sein, an denen sich das Personal während des Betriebs aufhält, sowie überall dort, wo sie notwendig sind, um den Zugang zu Teilen des Wagens während des Betriebs zu ermöglichen.

EE.2 Mindestanforderungen

EE.2.1 Handgriffe

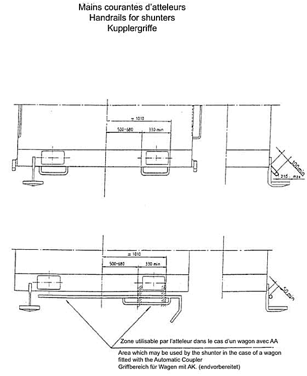
Handgriffe müssen aus Rundstahl mit 20 mm Durchmesser sein, ausgenommen Handgriffe wie in EE.2 spezifiziert mit mindestens 30 mm Durchmesser. Kupplergriffe sind in EE 3 spezifiziert.

Der Freiraum zwischen den Handgriffen und den nächsten Hindernissen muss mindestens 120 mm betragen.

EE.2.2 Abmessungen der Tritte

Die Tritte am Ende eines Wagens, auf denen sich das Personal länger aufhalten muss, müssen 350 mm breit und 350 mm lang sein und entsprechend Bild EE1 angebracht werden. Die Tritte müssen mit rutschfester Oberfläche konstruiert werden. Diese Tritte müssen mit Mitteln befestigt werden, die eine Demontage des Trittes erlauben (zum Beispiel mit Nieten oder Schrauben mit gesicherter Mutter).

Bild EE1 Tritt-Griff-Anordnung an Wagenenden mit Stirnwandborden

Bild EE2 Freiraum

Bild EE3 Kupplergriffe

.

Bremsen Anhang FF


Liste der zugelassenen Bremskomponenten

FF 1 Gleitschutzanlagen

FF 1.1 Gleitschutzanlagen für neue, bestehende, umgerüstete und erneuerte Fahrzeuge

Herstellerfirma Bauart Anmerkungen
FAIVELEY AEF 82 C An Scheibenbremsen geprüft
OERLIKON GSE 201 An Scheibenbremsen geprüft
OERLIKON GSE 202 An Scheibenbremsen geprüft
FAIVELEY AEF 83 P.1 An Scheibenbremsen geprüft
FAIVELEY AEF 83 P.2 An Klotzbremsen geprüft
OERLIKON OMG 202 An Scheibenbremsen geprüft
PARIZZI WUPAR 83 An Scheibenbremsen geprüft
WABCO-WESTINGHOUSE WGMC 19/1 An Scheibenbremsen geprüft
FAIVELEY AEF 91 P1
AEF 91 P21
An Scheibenbremsen geprüft
MANNESMANN
REXROTH PNEUMATIK GmbH
MRP-GMC 29 An Scheibenbremsen geprüft
SAB WABCO
KP GmbH
SWKP AS 20R An Scheibenbremsen geprüft
SAB WABCO KP GmbH SWKP AS 20C Im Januar 1998 bestätigt: Bauarteigenschaften identisch mit AS 20R
Knorr-Bremse MGS 2  
DAKO PE 94 MSV  
1) Wagen mit Scheiben- und Klotzbremsen.

FF 1.2 Gleitschutzanlagen für bestehende Fahrzeuge

Die im nachfolgenden Verzeichnis aufgeführten Gleitschutzanlagen sind zum Einsatz auf bestehenden Fahrzeugen zugelassen, wenn das Bremssystem nicht umgerüstet oder erneuert ist. Andere Umrüstungen oder Erneuerungen des Wagens erfordern keine Änderung der Gleitschutzanlagen.

Herstellerfirma Bauart Anmerkungen
Mechanische Bauarten
für Geschwindigkeiten bis 160 km/h
OERLIKON Trägheit 4 GS1 und GSA An Klotzbremsen geprüft vorzugsweise für gezogene Wagen ohne eigene Stromversorgung
KNORR MW 1
KNORR MWX 1
Elektronische Bauarten
WESTINGHOUSE D1 1
WESTINGHOUSE WG An Scheibenbremsen geprüft
WESTINGHOUSE WGK An Klotzbremsen geprüft
GIRLING SP An Scheibenbremsen geprüft  
OERLIKON GSE 100 1
PARIZZI 289 An Klotzbremsen geprüft
PARIZZI 447 An Scheibenbremsen geprüft
KNORR GR 1
KOVOLIS DAKO 1
KRAUSS-MAFFEI K Micro 1
OERLIKON GSE 200 1
KNORR MGS 1 An Scheibenbremsen geprüft
WABCO-WESTING-HOUSE WGMC 19 An Scheibenbremsen geprüft
1) Wagen mit Scheiben- und Klotzbremsen.


weiter .

umwelt-online - Demo-Version


(Stand: 03.06.2025)

Alle vollständigen Texte in der aktuellen Fassung im Jahresabonnement
Nutzungsgebühr: ab 105.- € netto

(derzeit ca. 7200 Titel s.Übersicht - keine Unterteilung in Fachbereiche)

Preise & Bestellung

Die Zugangskennung wird kurzfristig übermittelt

? Fragen ?
Abonnentenzugang/Volltextversion