Für einen individuellen Ausdruck passen Sie bitte die
Einstellungen in der Druckvorschau Ihres Browsers an.
Regelwerk, Gefahrgut/Transport / See / MSC

Entschließung MSC.61(67)
FTP-Code - Code für Brandprüfverfahren Internationaler Code für die Anwendung von Brandprüfverfahren

(Fire test procedures code)

Vom 5. Mai 1998
(VkBl. Nr. 10/1998; 20.06.2002 S. 449 02; 31.05.2006 S. 517 06aufgehoben)



(angenommen 05. Dezember 1996)

Zur aktuellen Fassung

1 Zweck

1.1 Dieser Code ist für die Anwendung durch die Verwaltung und die fachkundige Stelle des Flaggenstaates bestimmt, wenn Produkte für den Einbau auf Schiffen, welche die Flagge des Flaggenstaates führen, in Übereinstimmung mit den Brandschutzvorschriften des Internationalen Übereinkommens von 1974 zum Schutz des menschlichen Lebens auf See in der jeweils gültigen Fassung zugelassen werden.

1.2 Dieser Code ist von den Prüfinstituten anzuwenden, wenn Produkte nach diesem Code geprüft und bewertet werden.

2 Anwendung

2.1 Dieser Code ist auf Produkte anzuwenden, die in Übereinstimmung mit dem im Übereinkommen genannten Code für Brandprüfverfahren zu prüfen, zu bewerten und zuzulassen sind.

2.2 Wo im Übereinkommen auf dem Begriff "in Übereinstimmung mit dem Code für Brandprüfverfahren" auf den Code verwiesen wird, sind die entsprechenden Produkte in Übereinstimmung mit dem oder den anzuwendenden Brandprüfverfahren nach Absatz 4.1 zu prüfen.

2.3 Wo im Übereinkommen auf den Begriff "und ihre freiliegenden Flächen müssen schwerentflammbar sein" nur auf die Brandeigenschaften eines Produktes verwiesen wird, sind die entsprechenden Produkte in Übereinstimmung mit dem oder den anzuwendenden Brandprüfverfahren nach Absatz 4.1 zu prüfen.

3 Begriffsbestimmungen

3.1 "Code für Brandprüfverfahren" bedeutet der im Kapitel II-2 des Übereinkommens in der jeweils gültigen Fassung definierte Internationale Code für die Anwendung von Brandprüfverfahren.

3.2 "Ablaufdatum der Prüfung" bedeutet das letzte Datum, bis zu dem ein gegebenes Prüfverfahren für die Prüfung und anschließende Zulassung eines Produktes nach dem Übereinkommen angewendet werden darf.

3.3 "Ablaufdatum der Zulassung" bedeutet das letzte Datum bis zu dem die entsprechende Zulassung gültig ist als Nachweis für die Übereinstimmung mit den Brandschutzvorschriften des Übereinkommens.

3.4 "Verwaltung" bedeutet die Regierung des Staates, dessen Flagge das Schiff zu führen berechtigt ist.

3.5 "Fachkundige Stelle" bedeutet eine Organisation, die von der Verwaltung ermächtigt ist, Tätigkeiten nach diesem Code durchzuführen.

3.6 "Von der Verwaltung anerkanntes Prüfinstitut" bedeutet ein Prüfinstitut, das von der betreffenden Verwaltung anerkannt wird. Andere Prüfinstitute können für bestimmte Zulassungen von Fall zu Fall aufgrund einer ent- sprechenden Vereinbarung mit der betreffenden Verwaltung anerkannt werden.

3.7 "Übereinkommen" bedeutet das Internationale Übereinkommen von 1974 zum Schutz des menschlichen Lebens auf See in der jeweils gültigen Fassung.

3.8 "Normal-Brandversuch" ist ein Versuch, bei dem Probekörper in einem Brandversuchsofen Temperaturen ausgesetzt werden, die der Standard-Zeit-Temperaturkurve entsprechen.

3.9 "Standard-Zeit-Temperatur-Kurve" (Einheitstemperaturkurve - ETK) bedeutet die nach folgender Formel definierte Zeit-Temperatur-Kurve:

T = 345 log10 (8 t + 1) + 20

wobei
T = Durchschnittstemperatur des Ofens in °C
t = Zeit in Minuten.

4 Prüfung

4.1 Brandprüfverfahren

4.1.1 Anlage 1 dieses Code enthält die vorgeschriebenen Prüfverfahren, die beim Prüfen von Produkten als Basis für eine Zulassung (einschließlich Erneuerung einer Zulassung) anzuwenden sind, ausgenommen die in Abschnitt 8 vorgesehene Regelung.

4.1.2 Die Prüfverfahren geben die Prüfmethode sowie die Anerkennung und die Klassifizierungs-Kriterien vor.

4.2 Prüfinstitute

4.2.1 Die Prüfungen sind in Prüfinstituten durchzuführen, die von der betreffenden Verwaltung anerkannt sind.

4.2.2 Soll ein Prüfinstitut anerkannt werden, so hat die Verwaltung die folgenden Kriterien zu berücksichtigen:

  1. Das Prüfinstitut führt Prüfungen und Untersuchungen als Hauptbestandteil seiner Tätigkeiten durch, die den beschriebenen Prüfungen in dem zutreffenden Teil dieses Code identisch oder ähnlich sind.
  2. Das Prüfinstitut hat die notwendigen Prüfgeräte, Einrichtungen, Vorrichtungen, Anlagen und kalibrierten Instrumente sowie das geeignete Personal, um diese Prüfungen und Untersuchungen durchzuführen.
  3. Das Prüfinstitut darf sich nicht im Eigentum eines Herstellers, eines Händlers oder eines Lieferanten der zu prüfenden Produkte befinden oder von ihm kontrolliert werden.

4.2.3 Das Prüfinstitut hat ein Qualitätssicherungssystem zu verwenden. Die Auditierung ist von einer fachkundige Stelle durchzuführen.

4.3 Prüfbericht

4.3.1 Das Prüfverfahren gibt den vorgeschriebenen Inhalt des Prüfberichts vor.

4.3.2 Im allgemeinen ist der Prüfbericht Eigentum des Auftraggebers der Prüfung.

5 Zulassung

5.1 Allgemein

5.1.1 Die Verwaltung hat Produkte in Übereinstimmung mit ihrem eingeführten Zulassungsverfahren unter Verwendung des Typzulassungsverfahrens nach Absatz 5.2 oder des Fallzu-Fall-Zulassungsverfahrens nach Absatz 5.3 zuzulassen.

5.1.2 Die Verwaltung kann eine fachkundige Stelle ermächtigen, in ihrem Namen Zulassungen auszustellen.

5.1.3 Ein Antragsteller, der eine Zulassung beantragt, hat das Recht, den Prüfbericht für die Beantragung zu verwenden (siehe Absatz 4.3.2).

5.1.4 Die Verwaltung kann verlangen, daß die zugelassenen Produkte mit besonderen Zulassungskennzeichnungen versehen werden.

5.1.5 Die Zulassung muß gültig sein, wenn die Produkte an Bord eines Schiffes eingebaut werden. Ist ein Produkt zugelassen, wenn es hergestellt wird, aber die Zulassung läuft ab, bevor das Produkt an Bord des Schiffes eingebaut ist, so darf das Produkt als zugelassener Werkstoff unter der Voraussetzung eingebaut werden, daß sich die Klassifizierungs-Kriterien seit dem Ablaufdatum der Zulassungsbescheinigung nicht geändert haben.

5.1.6 Der Antrag einer Zulassung ist bei der Verwaltung oder zuständigen Stelle zu stellen. Die Beantragung muß mindestens die folgenden Angaben enthalten:

  1. Name und Anschrift des Antragstellers und des Herstellers,
  2. Name oder Handelsname des Produktes,
  3. die bestimmten Anforderungen, für die die Zulassung beantragt wird,
  4. Zeichnungen oder Beschreibungen vom Aufbau und den Werkstoffen des Produktes sowie Anweisungen für den Einbau und die Verwendung, sofern zutreffend, und
  5. einen Bericht über die Brandprüfung oder Brandprüfungen.

5.1.7 Jede wesentliche Änderung eines Produktes macht die entsprechende Zulassung ungültig. Um eine neue Zulassung zu erhalten, ist das Produkt erneut zu prüfen.

5.2 Typzulassung

5.2.1 Die Typzulassungsbescheinigungen sind auf der Basis der Prüfberichte der anzuwendenden Brandprüfverfahren (siehe Abschnitt 4) auszustellen und zu erneuern.

5.2.2 Die Verwaltung hat zu fordern, daß die Hersteller ein Qualitätssicherungssystem verwenden und von einer zuständigen Stelle auditiert sind, um sicherzustellen, daß die Bedingungen für die Typzulassung ständig eingehalten werden. Alternativ kann die Verwaltung ein Nachprüfungsverfahren verwenden, bei dem die Übereinstimmung des Endprodukts mit der Typzulassungsbescheinigung von einer zuständigen Stelle vor Einbau des Produkts an Bord eines Schiffes nachgeprüft wird.

5.2.3 Die Typzulassungsbescheinigung darf vom Ausstellungsdatum an eine Gültigkeit von nicht mehr als 5 Jahren haben.

5.2.4 Die Typzulassungsbescheinigung muß mindestens die folgenden Angaben enthalten:

  1. Identifizierung (Name oder Handelsname und Beschreibung) des Produktes,
  2. Klassifizierung und Einschränkungen bei der Verwendung des Produkts,
  3. Name und Anschrift des Herstellers und des Antragstellers,
  4. bei der Prüfung oder den Prüfungen angewendete Prüfverfahren,
  5. Identifizierung des Prüfberichtes oder der Prüfberichte und notwendige Angaben (einschließlich Ausstellungsdatum, Aktenzeichen sowie Name und Anschrift des Prüfinstituts),
  6. Ausstellungsdatum und mögliche Anzahl der Typzulassungsbescheinigungen,
  7. Ablaufdatum der Typzulassungsbescheinigung, und
  8. Name der ausstellenden fachkundigen Stelle und, sofern zutreffend, die Ermächtigung.

5.2.5 Im allgemeinen dürfen typzugelassene Produkte für ihre beabsichtigte Verwendung an Bord der Schiffe, die die Flagge des Staates der zulassenden Verwaltung führen, eingebaut werden.

5.3 Fallzu-Fall-Zulassung

5.3.1 Bei der Fallzu-Fall-Zulassung handelt es sich um eine Zulassung, bei der ein Produkt für den Einbau an Bord eines bestimmten Schiffes ohne die Verwendung einer Typzulassungsbescheinigung zugelassen wird.

5.3.2 Die Verwaltung kann Produkte für bestimmte Schiffe zulassen, bei denen das zutreffende Prüfverfahren ohne Ausstellung einer Typzulassungsbescheinigung angewendet wird. Die Fallzu-Fall-Zulassung ist nur für ein bestimmtes Schiff gültig.

6 Produkte, die ohne Brandprüfung und/oder Zulassung eingebaut werden dürfen

Anlage 2 dieses Code gibt die Gruppen von Produkten an, die als übereinstimmend mit den bestimmten Brandschutzregeln des Übereinkommens angesehen werden und die ohne Brandprüfung und/oder Zulassung eingebaut werden dürfen.

7 Verwendung gleichwertiger Produkte und moderner Technologie

7.1 Um die moderne Technologie und Entwicklung von Produkten nicht zu behindern, kann die Verwaltung Produkte für den Einbau an Bord von Schiffen auf der Basis von Prüfungen und Bestätigungen, die nicht besonders in diesem Code erwähnt sind, aber von der Verwaltung als gleichwertig mit den anzuwendenden Brandschutzregeln des Übereinkommens angesehen werden, zulassen.

7.2 die Verwaltung hat die Organisation über Zulassungen nach Absatz 7.1 in Übereinstimmung mit Regel I/5 des Übereinkommens und unter Einhaltung des folgenden Dokumentationsverfahrens zu informieren:

  1. im Falle neuer und unkonventioneller Produkte eine schriftliche Begründung darüber, weshalb die vorhandenen Prüfmethoden für die Prüfung des bestimmten Produkts nicht angewendet werden können,
  2. eine schriftliche Darstellung, die aufzeigt, daß das vorgeschlagene alternative Prüfverfahren die nach dem Übereinkommen geforderte Ausführung gewährleistet, und
  3. eine Aufstellung, die das vorgeschlagene alternative Prüfverfahren mit dem in diesem Code vorgeschriebenen Verfahren vergleicht.

8 Übergangsfrist für andere Prüfverfahren

8.1 Das neueste von der Organisation angenommene Prüfverfahren wird als das geeignetste Verfahren für den Beweis dafür angesehen, daß das entsprechende Produkt den anwendbaren Brandschutzregeln des Übereinkommens entspricht.

8.2 Ungeachtet der Vorschriften in diesem Code kann die Verwaltung andere eingeführte, nicht in der Anlage 1 dieses Code genannte Prüfmethoden und Prüfkriterien anwenden, wenn Produkte zugelassen werden, die den Brandschutzregeln des Übereinkommens entsprechen, um eine annehmbare Übergangsfrist zu erhalten, damit die Prüfinstitute ihre Prüfeinrichtungen beschaffen können, die Industrie ihre Produkte erneut prüfen lassen kann und die Verwaltung ihr neues Zulassungsverfahren einrichten kann. In Anlage 3 dieses Code sind die Ablaufdaten der Prüfungen und Zulassungen für solche anderen Prüfmethoden und Prüfkriterien aufgeführt.

9 Liste der Verweisungen 02

In Anlage 1 des Code wird in den Teilen 1 bis 9 auf folgende IMO-Vollversammlungs-Entschließungen und ISO-Standards verwiesen:

  1. Entschließung A.471(XII) - Prüfverfahren zur Feststellung der Flammenwiderstandsfähigkeit senkrecht hängender Textilien und Folien (veröffentlicht als Prüfungs- und Zulassungsvoraussetzungen zur Feststellung der Flammenwiderstandsfähigkeit senkrecht hängender Textilien und Folien im VkBl. 1997 S. 364, Heft 9),
  2. Entschließung A.563(14) - Änderungen des Prüfverfahrens zur Feststellung der Flammenwiderstandsfähigkeit senkrecht hängender Textilien und Folien nach Entschließung A.471(XII) (veröffentlicht als Prüfungs- und Zulassungsvoraussetzungen zur Feststellung der Flammenwiderstandsfähigkeit senkrecht hängender Textilien und Folien im VkBl. 1997 S. 364, Heft 9),
  3. Entschließung A.652(16)- Prüfverfahren zur Feststellung der Schwerentflammbarkeit von Polstermöbeln (veröffentlicht als Prüfungs- und Zulassungsvoraussetzungen zur Feststellung der Schwerentflammbarkeit von Polstermöbeln im VkBl. 1997 S. 191, Heft 5),
  4. Entschließung A.653(16) - Prüfverfahren zur Feststellung der Schwerentflammbarkeit von Beschichtungswerkstoffen auf Schotten, Verkleidungen, Decks, Decken sowie von Fußbodenaufbelägen (veröffentlicht als Prüfungs- und Zulassungsvoraussetzungen zur Feststellung der Schwerentflammbarkeit von Beschichtungswerkstoffen auf Schotten, Verkleidungen, Decks und Decken sowie von Fußbodenaufbelägen im VkBl. 1996 S. 253, Heft 10),
  5. Entschließung A.687(17) - Prüfverfahren zur Feststellung der Schwerentflammbarkeit von untersten Decksbelägen (veröffentlicht als Prüfungs- und Zulassungsvoraussetzungen zur Feststellung der Schwerentflammbarkeit von untersten Decksbelägen im VkBl 1996 S. 269, Heft 10),
  6. Entschließung A.688(17) - Prüfverfahren zur Feststellung der Schwerentflammbarkeit von Bettzeug (Veröffentlichung als Prüfungs- und Zulassungsvoraussetzungen zur Feststellung der Entzündbarkeit von Bettzeug im VkBl 1998 S. 343, Heft 9),
  7. Entschließung A.753(18) - Richtlinien für die Verwendung von Kunststoffrohren auf Schiffen,
  8. Entschließung A.754(18) - Prüfverfahren zur Feststellung der Brandwiderstandsfähigkeit von Trennflächen des Typs A, B und F (veröffentlicht als Prüfungs- und Zulassungsvoraussetzungen zur Feststellung der Brandwiderstandsfähigkeit von Trennflächen des Typs A, B und F im VkBl. 1998 S. 343, Heft 9),
  9. ISO 1182:1990 - Brandprüfung - Baumaterial - Nichtbrennbarkeitsprüfung,
  10. ISO 1716:1973 - Baumaterial - Bestimmung des Heizwertes,
  11. ISO 5659:1994 - Kunststoffe - Raucherzeugung, Teil 2 - Bestimmung der optischen Dichte beim Einzelkammertest.
  12. Entschliessung MSC.40(64) in der Fassung der Entschliessung MSC. 90(71) - Standards für die Qualifizierung von Schiffbauwerkstoffen für Hochgeschwindigkeitsfahrzeuge als feuerhemmende Werkstoffe
  13. Entschliessung MSC.45(65) - Prüfverfahren für feuerwiderstandsfähige Trennflächen von Hochgeschwindigkeitsfahrzeuge.

.

Brandprüfverfahren Anlage 1 02

Vorwort

1 Diese Anlage enthält die Brandprüfverfahren, die für eine Bestätigung, daß die Produkte den anzuwendenden Vorschriften entsprechen, anzuwenden sind. Für andere Prüfverfahren sind Absatz 8.2 und Anlage 3 dieses Code maßgebend.

2 Ein Hinweis auf die Prüfverfahren in dieser Anlage ist aufzunehmen (z.B. im Prüfbericht oder in der Typzulassungsbescheinigung), dabei ist auf die zutreffende Nummer des Teils oder zutreffenden Nummern der Teile wie folgt zu verweisen:

Beispiel: Ist ein unterster Decksbelag in Übereinstimmung mit den Teilen 2 und 6 geprüft worden, so ist der Hinweis "IMO FTPC Teile 2 und 6" aufzunehmen.

3 Bei einigen Produkten oder ihren Einzelkomponenten ist vorgeschrieben, daß sie nach mehr als einem Prüfverfahren zu prüfen sind. Für diesen Zweck gibt es Hinweise auf andere Teile in einigen Teilen dieser Anlage. Solche Hinweise dienen nur der Information; die zutreffenden Anforderungen sind in den entsprechenden Vorschriften des Übereinkommens zu finden.

4 Für Produkte, die ohne Prüfung und/oder Zulassung eingebaut werden dürfen, wird auf Anlage 2 dieses Code verwiesen.

Teil 1
Nichtbrennbarkeitsprüfung

1 Anwendung

1.1 Wird von einem Werkstoff gefordert, daß er nichtbrennbar ist, so ist dieses in Übereinstimmung mit diesem Teil zu ermitteln.

1.2 Besteht ein Werkstoff die Prüfung nach Abschnitt 2, so ist er als "nichtbrennbar" einzustufen, auch wenn er aus einer Zusammensetzung aus organischen und anorganischen Bestandteilen besteht.

2 Brandprüfverfahren

2.1 Die Nichtbrennbarkeit ist in Übereinstimmung mit dem Prüfverfahren nach ISO-Standard 1182:1990 zu prüfen, dabei sind jedoch anstelle der "Klassifizierungs-Kriterien" in Anlage a dieses Standards die folgenden Kriterien einzuhalten:

  1. die durchschnittliche Temperaturerhöhung am Ofenthermoelement, wie nach ISO 1182 Ziffer 8.1.2 ermittelt, darf 30°C nicht übersteigen,
  2. die durchschnittliche Temperaturerhöhung am Oberflächenthermoelement, wie nach ISO 1182 Ziffer 8.1.2 ermittelt, darf 30°C nicht übersteigen,
  3. die mittlere Dauer einer ununterbrochenen Flammenbildung, wie nach ISO 1182 Ziffer 8.2.2 ermittelt, darf 10 s nicht überschreiten, und
  4. der durchschnittliche Masseverlust, wie nach ISO 1182 Ziffer 8.3 ermittelt, darf 50% nicht überschreiten.

2.2 In den Prüfbericht sind nachstehende Angaben aufzunehmen:

  1. Bezeichnung des Prüfinstituts,
  2. Name des Werkstoff-Herstellers,
  3. Lieferdatum der Werkstoffe und Datum der Prüfungen,
  4. Bezeichnung oder Kurzzeichen des Werkstoffes,
  5. Beschreibung des Werkstoffes,
  6. Rohdichte des Werkstoffes,
  7. Beschreibung der Probekörper,
  8. Prüfverfahren,
  9. Prüfergebnisse einschließlich aller Beobachtungen, und
  10. Einstufung des Werkstoffes entsprechend den Klassifizierungs-Kriterien nach Absatz 2.1.

Teil 2
Rauch- und Toxizitätsprüfung

1 Anwendung

Wird von einem Werkstoff gefordert, daß er bei erhöhten Temperaturen keine außergewöhnlichen Mengen von Rauch und giftigen Stoffen erzeugt oder zu Vergiftung führt, so muß er die Anforderungen dieses Teils erfüllen.

2 Brandprüfverfahren

2.1 Allgemeines

Prüfungen zur Rauchentwicklung sind nach ISO-Norm 5659 Teil 2 und den zusätzlich in diesem Teil des Code beschriebenen Prüfverfahren durchzuführen. Zur Durchführung der Prüfungen nach diesem Prüfverfahren sind, soweit erforderlich, hinsichtlich der Versuchsanordnungen und Verfahren Abweichungen von der ISO-Norm vorzunehmen.

2.2 Probekörper

Die Vorbereitung von Probekörpern muß nach den Verfahren erfolgen, wie sie in den Entschließungen A.653(16), A.687(17) und A.753(18) beschrieben sind. Im Falle von Elektrokabeln brauchen nur die Probekörper mit der maximalen Isolierdicke geprüft zu werden.

2.3 Prüfbedingungen

Die Stärke der Wärme-Bestrahlung des Probekörpers ist während der Prüfung konstant zu halten. Die Prüfungen sind mit jeweils drei Probekörpern unter den folgenden Bedingungen durchzuführen:

  1. Stärke der Wärme-Bestrahlung von 25 kW/m2 bei vorhandener Zündflamme,
  2. Stärke der Wärme-Bestrahlung von 25 kW/m2 ohne Zündflamme,
  3. Stärke der Wärme-Bestrahlung von 50 kW/m2 ohne Zündflamme.

2.4 Prüfdauer

Die Prüfdauer muß mindestens 10 Minuten betragen. Wenn der Mondeslichtdurchlässigkeitswert während der Bestrahlungsdauer von 10 Minuten nicht erreicht wird, ist die Prüfung weitere 10 Minuten lang fortzusetzen.

2.5 Prüfergebnisse

2.5.1 Die spezifische optische Rauchdichte, definiert durch die folgende Formel, ist während der Prüfdauer mindestens alle 5 s aufzuzeichnen:

DS = [V/(AL)] log10 (l0/l)

hierin bedeutet:
V = Gesamtvolumen der Kammer (m3)
a = exponierte Fläche des Probekörpers (m2).
L = optisch gemessene Länge des Lichtweges (m)
l0 = Lichtintensität vor der Prüfung
L = Lichtintensität während der Prüfung (nach Absorbtion durch Rauch)

2.5.2 Für die Toxizitätsmessungen sind dem Rauch während der Prüfung des zweiten oder des dritten Probekörpers unter jeder Prüfbedingung aus der geometrischen Mitte der Kammer Proben zu entnehmen, und zwar innerhalb von drei Minuten, nachdem der Rauch die maximale spezifische optische Dichte erreicht hat. Die Konzentration für jedes toxische Gas ist in ppm, bezogen auf das Volumen der Prüfkammer, zu ermitteln.

2.6 Klassifizierungskriterien

2.6.1 Rauch

Ein Durchschnittswert Dm ist aus den höchsten Ds-Werten aus drei Prüfungen unter jeder Prüfbedingung zu ermitteln.

  1. Für Werkstoffe, die als Oberflächenbeschichtungen für Schotte, Wände, Verkleidungen oder Decken verwendet werden, darf Dm unter keiner Prüfbedingung den Wert von 200 überschreiten.
  2. Für Werkstoffe, die als unterste Decksbeläge verwendet werden, darf Dm unter keiner Prüfbedingung der Wert von 400 überschreiten.
  3. Für Werkstoffe, die als Fußbodenaufbeläge verwendet werden, darf Dm unter keiner Prüfbedingung den Wert von 500 überschreiten.
  4. Bei Kunststoffrohren und Elektrokabeln darf Dm unter keiner Prüfbedingung den Wert von 400 überschreiten.

2.6.2 Toxizität

Die unter allen Prüfbedingungen gemessenen Gaskonzentrationen dürfen die folgenden Grenzwerte nicht überschreiten:

CO 1450 ppm
HCI 600 ppm
HF 600 ppm
NQ 350 ppm
HBr 600 ppm
HCN 140 ppm
SO2 120 ppm (200 ppm für Bodenbeläge).

2.7 Prüfbericht

Ein Prüfbericht muß folgende Angaben enthalten :

  1. Art des Werkstoffes (z.B. Oberflächenbeschichtungen, Fußbodenaufbeläge, unterste Decksbeläge, Rohre usw. )
  2. Bezeichnung des Werkstoffes
  3. Beschreibung des Werkstoffes
  4. Konstruktion des Probekörpers
  5. Name und Anschrift des Herstellers des Werkstoffes
  6. Dm- Wert unter allen Prüfbedingungen
  7. Konzentrationen toxischer Gase in ppm, soweit zutreffend
  8. Beurteilung nach Ziffer 2.6
  9. Name und Anschrift des Prüfinstituts
  10. Datum der Prüfung

3. Zusätzliche Vorschriften

3.1 Für Farben, Lacke, Fußbodenaufbeläge und andere Oberflächenbeschichtungen, die auf freiliegenden Innenflächen verwendet werden, gilt auch Teil 5.

3.2 Für unterste Decksbeläge gilt auch Teil 6.

Teil 3
Prüfung von Trennflächen des Typs A, B und F

1 Anwendung

Wird von Produkten (wie Decks, Schotte, Wände, Türen, Decken, Verkleidungen, Fenster, Brandklappen, Durchführungen für Rohre und Kanäle sowie Kabeldurchführungen) gefordert, daß sie Trennflächen vom Typ A, B oder F sind oder ihnen entsprechen, so müssen sie die Anforderungen dieses Teils erfüllen *.

2 Brandprüfverfahren

2.1 Anzuwendendes Brandprüfverfahren

Die Produkte sind in Übereinstimmung mit dem in Entschließung A.754(18) beschriebenen Brandprüfverfahren zu prüfen und zu bewerten.

2.2 Abmessungen der Probekörper

2.2.1 Für die Anwendung dieses Code wird der erste Satz der Absätze 2.1.1, 2.4.1 und 2.7.1 der Anlage zur Entschließung A.754(18) durch folgenden Satz ersetzt:

"Die minimalen Außenabmessungen der Probekörper betragen, einschließlich der Einzelheiten an den oberen, unteren und senkrechten Rändern, 2.440 mm in der Breite und 2.500 mm in der Höhe; ausnahmsweise dürfen für die Brandprüfungen Probekörper mit minimalen Außenabmessungen von 2.440 mm in der Höhe und einer dem Feuer zugewandten Oberfläche von 4,65 m2 bis zum 31. Dezember 1998 verwendet werden. Das Ablaufdatum der Zulassungen, die auf Prüfungen mit den kleineren Probekörpern basieren, ist der 31. Dezember 2003."

2.2.2 Für die Anwendung dieses Code wird der erste Satz der Absätze 2.2.1, 2.5.1 und 2.8.1 der Anlage zur Entschließung A.754(18) durch folgenden Satz ersetzt:

"Die minimalen Außenabmessungen der Probekörper betragen, einschließlich der Einzelheiten an allen Rändern, 2.440 mm in der Breite und 3.040 mm in der Länge; ausnahmsweise dürfen für die Brandprüfungen Probekörper mit minimalen Außenabmessungen von 2.440 mm in der Länge und einer dem Feuer zugewandten Oberfläche von 4,65 m2 bis zum 31. Dezember 1998 verwendet werden. Das Ablaufdatum der Zulassungen, die auf Prüfungen mit den kleineren Probekörpern basieren, ist der 31. Dezember 2003."

2.2.3 Die Abmessungen der Probekörper sind in den Prüfberichten anzugeben.

2.3 Wärmestrahlung durch Fenster

Ist eine Begrenzung der Wärmestrahlung durch Fenster vorgeschrieben, so kann die Fensterkonstruktion in Übereinstimmung mit dem Anhang 1 dieses Teils geprüft und bewertet werden.

2.4 Durchgehende Decken oder Verkleidungen

Ist vorgeschrieben, daß Decken oder Verkleidungen als durchgehende Decken vom Typ B oder durchgehende Verkleidungen vom Typ B auszuführen sind, so können sie in Übereinstimmung mit dem Anhang 2 dieses Teils geprüft und bewertet werden.

3 Zusätzliche Anforderungen

3.1 Die Unversehrtheit von Konstruktionen des Typs B muß unter Verwendung nichtbrennbarer Werkstoffe erreicht werden. Kleber, die bei der Konstruktion der Probekörper verwendet werden, brauchen nicht nichtbrennbar zu sein; im Sinne dieses Code müssen sie jedoch schwerentflammbar sein.

3.2 Werkstoffe, die in die Fugen von Paneelen des Typs B eingefügt werden, um Vibration oder Lärmdurchgang zu vermeiden, müssen schwerentflammbar sein und sind bei der Brandprüfung mit Trennflächen vom Typ B an den vorgesehenen Stellen zu prüfen. Solche Werkstoffe müssen jedoch nichtbrennbar sein, wenn sie zur Unterstützung der nichtbrennbaren Konstruktion vom Typ B oder zur Erreichung der vorgeschriebenen Unversehrtheit notwendig sind.

3.3 Türen und Verschlüsse, die über dem Schottendeck eingebaut sind und für die sowohl die Brandschutzvorschriften als auch die Vorschriften der Wasserdichtigkeit gelten, müssen die nach dem Übereinkommen vorgeschriebenen Brandschutzvorschriften für die Trennfläche, in die sie eingebaut sind, erfüllen. Wasserdichte Türen, die unter dem Schottendeck eingebaut sind, brauchen nicht isoliert zu sein.

4 Andere Hinweise

4.1 Die Nichtbrennbarkeit von Werkstoffen, die in Trennflächen des Typs a und B verwendet werden, muß in Übereinstimmung mit Teil 1 geprüft sein.

4.2 Wird die Verwendung brennbarer Furniere bei Trennflächen des Typs a und B gestattet, so muß die Schwerentflammbarkeit solcher Furniere, falls vorgeschrieben, in Übereinstimmung mit Teil 5 geprüft sein.

Teil 4
Prüfung von Feuertür-Steuerungssystemen

1 Anwendung

Ist für ein Feuertür-Steuerungssystem vorgeschrieben, daß es im Falle eines Brandes betrieben werden kann, so muß das System diesem Teil entsprechen.

2 Brandprüfverfahren

Das Feuertür-Steuerungssystem ist in Übereinstimmung mit dem im Anhang dieses Teils beschriebenen Prüfverfahren zu prüfen und zu bewerten.

3 Zusätzliche Anforderungen

Teil 1 dieser Anlage gilt auch für Isolierwerkstoffe, die im Zusammenhang mit einem Feuertür-Steuerungssystem verwendet werden.

Teil 5
Prüfung von Beschichtungswerkstoffen auf Schwerentflammbarkeit

1 Anwendung

Wird von Produkten gefordert, daß sie eine schwerentflammbare Oberfläche haben, so müssen sie diesem Teil entsprechen.

2 Brandprüfverfahren

2.1 Die Oberflächenwerkstoffe sind in Übereinstimmung mit dem in Entschließung A.653(16) beschriebenen Brandprüfverfahren zu prüfen und zu bewerten. Im Sinne dieses Teils wird der Wert für die freigesetzte Gesamtwärmemenge (0t) für Fußbodenaufbeläge, wie in Abschnitt 10 der Anlage zur Entschließung A.653(16) angegeben, durch den Wert 2.0 MJ ersetzt. Die Prüfung kann nach 40 Minuten beendet werden.

2.2 Während der Brandprüfung von Beschichtungswerkstoffen für Schotte, Wände, Decken und Decks sowie untersten Decksbeläge kann es Probekörper geben, die verschiedenartige Phänomene aufweisen, die Schwierigkeiten bei der Einstufung der Werkstoffe verursachen (Hinsichtlich unterster Decksbeläge siehe Teil 6 dieser Anlage). Der Anhang zu diesem Teil enthält Anleitungen für eine einheitliche Interpretation solcher Ergebnisse.

3 Zusätzliche Anforderungen

3.1 Beschichtungswerkstoffe für Schotte und Decken sowie ähnliche freie Oberflächen

Wird für ein Produkt der maximale Heizwert (z.B. 45 MJ/m2) vorgeschrieben, so wird zur Bestimmung des Heizwertes die in ISO-Standard 1716:1973 angegebene Methode empfohlen.

3.2 Fußbodenaufbeläge und unterste Decksbeläge

3.2.1 Ein unterster Decksbelag ist die erste Lage einer Fußbodenkonstruktion, die unmittelbar auf die Deckbeplattung aufgebracht wird und Grundanstriche, Korrosionsschutzmittel und Klebstoffe, die zum Schutz der Deckbeplattung oder zur Haftung auf der Deckbeplattung notwendig sind, mit einschließt. Andere Lagen der Fußbodenkonstruktion über der Deckbeplattung sind Fußbodenaufbeläge.

3.2.2 Wird von einem Fußbodenaufbelag gefordert, daß er schwerentflammbar ist, so müssen alle Lagen diesem Teil 5 entsprechen. Besteht der Fußbodenaufbelag aus einer Mehrfachlagenkonstruktion, so kann die Verwaltung verlangen, daß Brandprüfungen mit jeder Lage oder einer Kombination einiger Lagen des Fußbodenaufbelages durchgeführt werden. Jede einzelne Lage oder eine Kombination einiger Lagen (d.h. die Prüfung und die Zulassung gelten nur für diese Kombination) des Fußbodenaufbelages muß diesem Teil entsprechen.

Wird von einem untersten Decksbelag gefordert, daß er schwerentflammbar ist, und wird er unter einem Fußbodenaufbelag verlegt, so muß der unterste Decksbelag Teil 6 entsprechen. Bildet der unterste Decksbelag jedoch die freiliegende Oberfläche, so muß er diesem Teil entsprechen. Grundierungen und ähnlich dünne Farbaufträge auf der Deckbeplattung brauchen den Anforderungen des Teils 6 nicht zu entsprechen.

3.3 Brennbare Lüftungskanäle

Wird von brennbaren Lüftungskanälen gefordert, daß sie aus schwerentflammbarem Werkstoff bestehen, so sind für diese Kanäle das Brandprüfverfahren zur Bestimmung der Schwerentflammbarkeit von Oberflächen und die Prüfkriterien für Beschichtungswerkstoffe von Verkleidungen und Decken entsprechend Entschließung A.653(16) anzuwenden. Werden für die Kanäle homogene Werkstoffe verwendet, so ist die Brandprüfung mit der Außenseite des Kanals durchzuführen, während bei Verbundwerkstoffen beide Seiten des Kanals zu prüfen sind.

3.4 Isolierwerkstoffe für Kalt-Systeme

Wird von Klebstoffen, die in Verbindung mit der Isolierung verwendet werden, und von den freiliegenden Oberflächen von Dampfsperren sowie der Isolierung von Komponenten der Rohrleitungen von Kalt-Systemen gefordert, daß sie schwerentflammbar sind, so sind das Brandprüfverfahren zur Bestimmung der Schwerentflammbarkeit von Beschichtungswerkstoffen und die Prüfkriterien für Beschichtungswerkstoffe von Verkleidungen und Decken entsprechend Entschließung A.653(16) anzuwenden.

3.5 Andere Hinweise

Teil 2 dieser Anlage gilt auch für Beschichtungswerkstoffe.

Teil 6
Prüfung von untersten Decksbelägen

1 Anwendung

1.1 Ist für unterste Decksbeläge vorgeschrieben, daß sie schwerentflammbar sind, so müssen sie diesem Teil entsprechen.

1.2 Zur Bestimmung, weiche Lagen auf dem Deck als Fußbodenaufbeläge und welche von ihnen als unterster Decksbelag zu prüfen sind, siehe Absatz 3.2 des Teils 5.

2 Brandprüfverfahren

2.1 Unterste Decksbeläge sind in Übereinstimmung mit dem in Entschließung A.687(17) angegebenen Brandprüfverfahren zu prüfen und zu bewerten.

2.2 Die Brandprüfung ist nach 40 Minuten z.0 beenden.

3 Zusätzliche Anforderungen

Teil 2 dieser Anlage gilt auch für unterste Decksbeläge.

Teil 7
Prüfung von senkrecht hängenden Textilien und Folien

1 Anwendung

Ist für Gardienen, Vorhänge und andere hängende Textil-Werkstoffe vorgeschrieben, daß sie eine Widerstandsfähigkeit gegenüber der Flammenausbreitung aufweisen, die nicht geringer ist als diejenige eines Wollstoffs mit einer Masse von 0,8 kg/m2, so müssen sie diesem Teil entsprechen.

2 Brandprüfverfahren

Senkrecht hängenden Textilien und Folien sind in Übereinstimmung mit dem in Entschließung A.471(XII) angegebenen Brandprüfverfahren in der Fassung der Entschließung A.563(14) zu prüfen und zu bewerten.

3 Zusätzliche Anforderungen

Die Brandprüfung ist unter Verwendung von Probekörpern aus den Endprodukten durchzuführen (z.B. mit Farbbehandlung). In den Fällen, bei denen nur die Farbe geändert wird, ist eine neue Brandprüfung nicht notwendig. Jedoch in Fällen, bei denen der Grundwerkstoff oder die Behandlungsmethode geändert wird, ist eine neue Brandprüfung erforderlich.

Teil 8
Prüfung von Polstermöbeln

1 Anwendung

Ist für Polstermöbel vorgeschrieben, daß sie eine Widerstandsfähigkeit gegenüber Entzündung und Flammenausbreitung haben, so müssen sie diesem Teil entsprechen.

2 Brandprüfverfahren

Die Polstermöbel sind in Übereinstimmung mit dem in Entschließung A.652(16) angegebenen Brandprüfverfahren zu prüfen und zu bewerten.

3 Zusätzliche Anforderungen

Die Brandprüfung ist unter Verwendung von Probekörpern aus den Endprodukten durchzuführen (z.B. mit Farbbehandlung). In den Fällen, bei denen nur die Farbe geändert wird, ist eine neue Brandprüfung nicht notwendig. Jedoch in Fällen, bei denen der Grundwerkstoff oder die Behandlungsmethode geändert wird, ist eine neue Brandprüfung erforderlich.

Teil 9 - Prüfung von Bettzeug

1 Anwendung

Ist für Bettzeug vorgeschrieben, daß es eine Widerstandsfähigkeit gegenüber Entzündung und Flammenausbreitung hat, so muß es diesem Teil entsprechen.

2 Brandprüfverfahren

Das Bettzeug ist in Übereinstimmung mit dem in Entschliessung A.688(17) angegebenen Brandprüfverfahren zu prüfen und zu bewerten.

3 Zusätzliche Anforderungen

Die Brandprüfung ist unter Verwendung von Probekörpern aus den Endprodukten durchzuführen (z.B. mit Farbbehandlung). In den Fällen, bei denen nur die Farbe geändert wird, ist eine neue Brandprüfung nicht notwendig. Jedoch in Fällen, bei denen der Grundwerkstoff oder die Behandlungsmethode geändert wird, ist eine neue Brandprüfung erforderlich.

Teil 10 02
Prüfung von feuerhemmenden Werkstoffen für Hochgeschwindigkeitsfahrzeuge

1 Anwendung

Ist für Werkstoffe, die auf Hochgeschwindigkeitsfahrzeugen verwendet werden, vorgeschrieben, dass sie feuerhemmend sein müssen, so müssen sie diesem Teil entsprechen.

2 Brandprüfverfahren

Ist für Oberflächenwerkstoffe auf Schotten, Wänden und Decken einschliesslich ihrer Unterkonstruktionen, Möbel und anderer baulicher oder innerer Bestandteile vorgeschrieben, dass sie feuerhemmend sein müssen, so sind sie in Übereinstimmung mit dem in Entschliessung MSC.40(64) angegebenen Brandprüfverfahren in der Fassung der Entschliessung MSC. 90(71) zu prüfen und zu bewerten.

Teil 11 02
Prüfung von feuerwiderstandsfähigen Trennflächen für Hochgeschwindigkeitsfahrzeuge

1 Anwendung

Ist für Konstruktionen, die auf Hochgeschwindigkeitsfahrzeugen verwendet werden, vorgeschrieben, dass sie feuerwiderstandsfähige Eigenschaften haben müssen, so müssen sie diesem Teil entsprechen. Derartige Konstruktionen umfassen Schotte, Decks, Decken, Verkleidungen und Türen.

2 Brandprüfverfahren

Feuerwiderstandsfähige Trennflächen von Hochgeschwindigkeitsfahrzeuge sind in Übereinstimmung mit dem in Entschliessung MSC.45(65) angegebenen Brandprüfverfahren zu prüfen und zu bewerten.

3 Zusätzliche Anforderungen

3.1 Werkstoffe für feuerwiderstandsfähige Trennflächen müssen nichtbrennbar oder feuerhemmend sein, nachgewiesen entsprechend Teil 1 bzw. Teil 2 dieser Anlage.

3.2 Teil 3 dieser Anlage ist auch auf bestimmte Bauteile wie Fenster, Brandklappen, Rohrdurchführungen und Kabeldurchführungen anzuwenden.

3.3 Teil 4 dieser Anlage ist auch anzuwenden, wenn vorgeschrieben ist, dass ein Steuerungssystem einer Feuertür im Falle eines Brandes betrieben werden kann.

3.4 Wo feuerwiderstandsfähige Trennflächen mit brennbaren Furnieren in Verbindung mit nichtbrennbaren, darunterliegenden Schichten versehen sein dürfen, muss das niedrige Flammenausbreitungsvermögen solcher Furniere, falls vorgeschrieben, entsprechend Teil 5 dieser Anlage nachgewiesen sein.

.

Produkte, die ohne Brandprüfung und/oder Zulassung eingebaut werden dürfen Anlage 2 02

Allgemein

Im allgemeinen wird von den in dieser Anlage aufgeführten Produkten und Produktgruppen angenommen, daß sie den unten angegebenen Brandsicherheitseigenschaften entsprechen, und sie dürfen auf der Basis der einzelnen Brandprüfverfahren in diesem Code zur Bestimmung der Sicherheitseigenschaften der Produkte ohne Brandprüfung und ohne Zulassung eingebaut werden.

Die nachfolgenden Absätze haben die gleiche Nummernfolge wie die entsprechend angegebenen Prüfvorschriften in Anlage 1.

1 Nichtbrennbare Werkstoffe

Im allgemeinen wird von Produkten aus Glas, Beton, Keramik, Naturstein, Mauerwerk, gewöhnliche Metalle und Metallegierungen angenommen, daß sie nichtbrennbar sind, und sie dürfen deshalb ohne Brandprüfung und ohne Zulassung eingebaut werden.

2 Werkstoffe, die im Brandfall weder außergewöhnliche Mengen von Rauch noch giftige Stoffe erzeugen

2.1 Im allgemeinen wird angenommen, daß nichtbrennbare Werkstoffe den Vorschriften des Teils 2 der Anlage 1 ohne weitere Brandprüfung entsprechen.

2.2 Im allgemeinen wird angenommen, daß Beschichtungswerkstoffe und unterste Decksbeläge mit einer freigesetzten Gesamtwärmemenge (QI) von nicht mehr als 0,2 MJ und einer maximalen Wärmefreisetzungsrate (Qp) von nicht mehr als 1,0 kW (beide Werte nach Teil 5 der Anlage 1 oder nach Entschließung A.653 (16) bestimmt) den Vorschriften des Teils 2 der Anlage 1 ohne weitere Brandprüfung entsprechen.

2.3 Feuerhemmende Werkstoffe für Hochgeschwindigkeitsfahrzeuge werden ohne weitere Brandprüfung als übereinstimmend mit den Vorschriften des Teils 2 der Anlage 1 angesehen

3 Trennflächen vom Typ A, B und F

3.1 Die folgenden Produkte dürfen ohne Brandprüfung und Zulassung eingebaut werden:

Typ Produktbeschreibung
Schott vom Typ A-0 Ein Stahlschott mit Abmessungen, die die nachfolgenden Mindestabmessungen nicht unterschreiten:
  • Schottdicke: 4 mm,
  • Steifen 60 x 60 x 5 mm mit 600 mm Spantabstand oder gleichwertige Bauart.
Deck vom Typ A-0 Ein Stahldeck mit Abmessungen, die die nachfolgenden Mindestabmessungen nicht unterschreiten:
  • Deckdicke: 4 mm,
  • Steifen 95 x 65 x 7 mm mit 600 mm Spantabstand oder gleichwertige Bauart.

3.2 Unabhängig von den Vorschriften nach 3.1 müssen Werkstoffe, die bei Trennflächen vom Typ A, B und F verwendet werden und die bestimmte andere besondere Eigenschaften haben müssen (z.B. Nichtbrennbarkeit, Schwerentflammbarkeit etc.), den zutreffenden Teilen der Anlage 1 oder Abschnitt 8 und Anlage 3 dieses Code entsprechen.

4 Feuertür-Steuerungssysteme (kein Eintrag)

5 Schwerentflammbare Beschichtungswerkstoffe

5.1 Nichtbrennbare Werkstoffe werden als übereinstimmend mit Teil 5 der Anlage 1 angesehen. Die Methode des Einbaus und der Befestigung ist jedoch besonders zu beachten (z.B. Kleber).

5.2 Unterste Decksbeläge, die in Übereinstimmung mit Teil 6 der Anlage 1 als schwer entflammbar eingestuft sind, werden als mit Teil 5 der Anlage 1 übereinstimmende Fußbodenaufbeläge angesehen.

5.3 Oberflächen und Werkstoffe für Hochgeschwindigkeitsfahrzeuge, die als feuerhemmende Werkstoffe qualifiziert sind, werden ohne weitere Brandprüfung als übereinstimmend mit den Vorschriften des Teils 5 der Anlage 1 angesehen.

6 Unterste Decksbeläge

Nichtbrennbare Werkstoffe werden als übereinstimmend mit Teil 6 der Anlage 1 angesehen. Die Methode der Verlegung und der Befestigung ist jedoch besonders zu beachten.

7 Senkrecht hängende Textilien und Folien (kein Eintrag)

8 Polstermöbel

(kein Eintrag)

9 Bettzeug

(kein Eintrag)

.

Anwendung anderer Brandprüfverfahren Anlage 3

Die Verwaltungen können andere Brandprüfverfahren als die in Anlage 1 aufgeführten wie folgt anwenden:

  1. Für Brandprüfvefahren, die früher von der Vollversammlung angenommen wurden, sind die Ablaufdaten in der folgenden Tabelle angegeben.
  2. Für andere von der Verwaltung eingeführte und angewendete Brandprüfverfahren und anerkannte Klassifizierungskriterien sind das Ablaufdatum der Prüfung der 31.12.1998 und das Ablaufdatum der Zulassung der 31.12.2003.
Produkte
(entsprechender Teil in Anlage 1)
Brandprüfverfahren Ablaufdatum
der Prüfung
Ablaufdatum
der Zulassung
Nichtbrennbare Werkstoffe (Teil 1) Entschließung A.472(XII) 31.12.1998 31.12.2003
Entschließung A.270(VIII) 01.07.1997 01.07.2002
Werkstoffe, die weder außer- gewöhnliche Mengen von Rauch noch giftige Stoffe erzeugen (Teil 2). --- --- ---
Trennflächen vom Typ A, B und C (Teil 3) Entschließung A.517(13)* 31.12.1998 31.12.2003
Entschließung A.163(ES.IV)* in der Fassung der Entschließung A.215(VII) 01.07.1997 01.07.2002
Entschließung A.163(ES.IV)* 01.07.1997 01.07.2002
Feuertür-Steuerungssysteme (Teil 4) --- --- ---
Beschichtungswerkstoffe (Teil 5) Entschließung A.564(14) 31.12.1998 31.12.2003
Entschließung A.516(13) 31.12.1998 31.12.2003
Unterste Decksbeläge (Teil 6) Entschließung A.214(VII) 31.12.1998 31.12.2003
Senkrecht hängende Textilien (Teil 7) Entschließung A.471(XII) 31.12.1998 31.12.2003
Polstermöbel 'Teil 8) --- --- ---
Bettzeug (Teil 9) --- --- ---

In den Entschließungen A.163(ES.IV) und A.517(13) darf als anerkanntes Klassifizierungskriterium für die maximale Durchschnittstemperatur eine Temperatur von 140°C anstelle von 139°C verwendet werden.

.

Ergänzende Wärmestrahlungsprüfung bei der Brandwiderstandsprüfung von Fenstern in Trennflächen vom Typ A, B und F Anhang 1
(zu Teil 3)

1 Zweck

1.1 Dieser Anhang beschreibt ein Prüfverfahren zur Messung der Wärmestrahlung durch Fenster, mit dem die Eigenschaft der Fenster, die Wärmestrahlung zu begrenzen, festgestellt werden soll, um die Ausbreitung eines Brandes zu verhindern und um es zu ermöglichen, daß Fluchtwege an den Fenstern vorbeigeführt werden können.

1.2 Dieses Verfahren ist eine optionale Vorschrift, die von der Verwaltung für Fenster in bestimmten Bereichen eines Schiffes gefordert werden kann.

2 Prüfverfahren

2.1 Das Fenster ist in Übereinstimmung mit Entschließung A.754(18) zu prüfen, dabei ist die nachfolgend beschriebene zusätzliche Instrumentierung zu verwenden.

2.2 Der Ausdruck "Fenster" umfaßt eckige und runde Fenster sowie alle anderen verglasten Öffnungen, die für den Lichtdurchgang oder für die Durchsicht in einer brandwiderstandsfähigen Trennfläche vorgesehen sind. Der Ausdruck "brandwiderstandsfähige Trennfläche" schließt Schotte und Türen mit ein.

3 Zusätzliche Meßgeräte

3.1 Das zusätzliche Meßgerät besteht aus einem Gesamt-Wärmestrahlungsmeßgerät mit eingeschränktem Meßwinkel, der auf den eingeschränkten Meßbereich kalibriert ist, um eventuell vorhandene Wärmestrahlung anzuzeigen. Es ist ein wassergekühltes Wärmestahlungsmeßgerät zu verwenden, das eine Wärmestrahlung von 0 bis 60 kW/m2 messen kann. Das Wärmestrahlungsmeßgerät ist mindestens einmal im Jahr unter Verwendung eines Referenzgerätes zu kalibrieren.

3.2 Das Wärmestrahlungsmeßgerät ist lotkrecht zum Zentrum des zu prüfenden Fensters so anzuordnen, daß das Zentrum des eingeschränkten Meßbereiches mit dem Zentrum des Fensters übereinstimmt * (siehe Abbildungen). Das Wärmestrahlungsmeßgerät ist in einer Entfernung von mehr als 0,5 m, aber nicht mehr als 2,5 m vom Fenster so anzuordnen, daß der eingeschränkte Meßbereich des Wärmestrahlungsmeßgerätes einen Teil des Rahmens gerade noch erfaßt. Der außerhalb des Fensters liegende Anteil der Breite (Trennfläche und Fensterrahmen), der vom Wärmestrahlungsmeßgerät erfaßt wird, darf 10% der Gesamtbreite, die vom Wärmestrahlungsmeßgerät auf der Oberfläche des Probekörpers erfaßt wird, nicht überschreiten. Die Gesamtbreite ist auf der Basis des eingeschränkten Meßbereichs des Wärmestrahlungsmeßgerätes und seiner Entfernung zur Oberfläche des Probekörpers zu berechnen.

3.3 Bei Fenstern, bei denen das Verhältnis der längeren Seite zur kürzeren Seite weniger als 1,57 beträgt, ist nur ein Wärmestrahlungsmeßgerät erforderlich.

3.4 Bei länglichen Fenstern, bei denen das Verhältnis der längeren Seite zur kürzeren Seite mehr als 1,57 beträgt, sind zusätzliche Wärmestrahlungsmeßgeräte vorzusehen. Die Entfernung der Wärmestrahlungsmeßgeräte vom Fenster ist so zu wählen, daß die von den Wärmestrahlungsmeßgeräten erfaßte Fläche mindestens 50% des Fensters beträgt. Die Wärmestrahlungsmeßgeräte sind jedoch nicht näher als 0,5 m und nicht mehr als 2,5 m vom Fenster entfernt aufzustellen.

4 Klassifizierungskriterien

4.1 Die maximale Wärmestrahlung (Ew) ist für die ersten 15 Minuten der Prüfung, die ersten 30 Minuten der Prüfung und für die gesamte Dauer der Prüfung zu messen (z.B. 60 Minuten für Typ a - Trennflächen und 30 Minuten für Typ B - Trennflächen).

4.2 Die nach Absatz 4.1 gemessenen Werte der maximalen Wärmestrahlung (Ew) sind mit den Referenzwerten (Ev) nach Tabelle 1 zu vergleichen.

4.3 Wenn Ew niedriger ist als E, ,dann kann das Fenster für den Einbau in einer Trennfläche der entsprechenden Widerstandsklasse anerkannt werden.

Tabelle 1 - Kriterien für die Wärmestrahlung

Brandwiderstands- fähige Trennfläche Klassifizierung Zeit
seit Beginn
der Prüfung
Wärmestrahlung
E, [kW/m2]
A-0 60 Minuten 56,5
A-15 15 Minuten 2,34
60 Minuten 8,0
A-30 30 Minuten 2,34
60 Minuten 6,4
A-60 60 Minuten 2,34
B-0 30 Minuten 36,9
B-15 15 Minuten 2,34
30 Minuten 4,3

Eine geeignete Methode zur Anordnung, Befestigung und Ausrichtung des Wärmestrahlungsmeßgerätes ist die folgende:

Ein Metallständer aus Rohr, der auf einem festen Fundament montiert ist, dient als Instrumententräger, um das Wärmestrahlungsmeßgerät in der vorgeschriebenen Entfernung zum Probekörper zu plazieren. Eine geeignete Halterung für das Wärmestrahlungsmeßgerät besteht aus einer Visiereinrichtung, die auf einem Kugelgelenk montiert ist. Diese Vorrichtung erlaubt die erforderliche Flexibilität für das Ausrichten des Wärmestrahlungsmeßgerätes. Die Halterung des Wärmestrahlungsmeßgerätes wird am Instrumententräger in entsprechender Höhe montiert. Ein Laserzeiger wird in der Visiereinrichtung plaziert, und die Einrichtung wird so ausgerichtet, daß sich der Laserpunkt im Zentrum des Fensters befindet. Der Laserzeiger wird aus der Visiereinrichtung herausgenommen und durch das Wärmestrahlungsmeßgeräte ersetzt.

Abbildungen

.

Durchgehende Trennfläche von Typ B Anhang 2
(zu Teil 3)

1 Zweck

1.1 Dieser Anhang beschreibt ein Prüfverfahren zur Überprüfung von Verkleidungen und Decken, daß sie durchgehende Verkleidungen vom Typ B und durchgehende Dekken vom Typ B sind, und zur Bewertung der Gesamtkonstruktion, daß es sich um eine durchgehende Konstruktion vom Typ B handelt.

1.2 Dieses Verfahren ist eine optionale Vorschrift, die von der Verwaltung für durchgehende Trennflächen vom Typ B gefordert werden kann.

2 Prüfverfahren und Bewertung

2.1 Die Verkleidungen, Decken und Konstruktionen sind in Übereinstimmung mit Entschließung A.754(18) unter Beachtung der nachfolgend beschriebenen Regelungen zu bewerten.

2.2 Die Decken sind in Übereinstimmung mit Absatz 2.8 der Anlage zur Entschließung A.754(18) zu prüfen, davon abweichend ist die Decke auf dem Horizontalofen so zu montieren, daß mindestens 150 mm hohe Wände vom Typ B am Ofen montiert sind und die Decke an diesen partiellen Wänden befestigt ist; dabei ist die Verbindungsmethode zu verwenden, wie sie später in der Praxis angewendet werden soll. Solche Decken und Verbindungsmethoden sind so zu bewerten, wie es für Decken nach Entschließung A.754(18) vorgeschrieben ist; dementsprechend sind sie als "durchgehende Decken vom Typ B (B-0 oder B-15, soweit zutreffend)" zu klassifizieren.

2.3 Eine Verkleidung, die in Übereinstimmung mit Entschließung A.754(18) als "Verkleidung vom Typ B (B-0 oder B-15, soweit zutreffend nach der Verkleidungsprüfung)" bewertet worden ist, kann ohne weitere Prüfung der Verkleidung als "durchgehende Verkleidung vom Typ B (B-0 oder B-15, soweit zutreffend)" in Verbindung mit einer "durchgehenden Decke vom Typ B (B-0 oder B-15, soweit zutreffend)" und der in der Prüfung verwendeten Verbindungsmethode (siehe Absatz 2.2) angesehen werden.

2.4 Eine auf einem Deck vom Typ a montierte geschlossene Konstruktion, die von durchgehenden Verkleidungen vom Typ B (B-0 oder B-15, soweit zutreffend ) und von durchgehenden Decken vom Typ B (B-0 oder B-15, soweit zutreffend) gebildet wird, ist als "durchgehende Konstruktion vom Typ B" anzusehen.

.

Brandprüfverfahren für Feuertür-Steuerungssysteme Anhang
(zu Teil 4)

1 Allgemein

1.1 Steuerungssysteme, die für Feuertüren vorgesehen sind, die im Brandfall noch bedient werden können, sind in Übereinstimmung mit dem in diesem Anhang beschriebenen Brandprüfverfahren unabhängig von ihrer Energiequelle (pneumatisch, hydraulisch oder elektrisch) zu prüfen.

1.2 Die Brandprüfung ist eine Prototypprüfung, die mit dem kompletten Steuerungssystem in einem Ofen durchgeführt wird, dessen Abmessungen den Prüfungs- und Zulassungsvoraussetzungen zur Feststellung der Brandwiderstandsfähigkeit von Trennflächen des Typs A, B und F (Entschließung A.754(18)) entsprechen.

1.3 Die zu prüfende Konstruktion muß so weit wie möglich representativ derjenigen sein, die an Bord der Schiffe eingebaut wird, einschließlich der Werkstoffe und der Methode des Zusammenbaus.

1.4 Es sind die Funktionen des Steuerungssystems einschließlich seiner Schließeinrichtung zu prüfen, z.B. die normalen Funktionen und, falls vorgesehen, die Notfunktion einschließlich der Umschaltfunktion, wenn eine solche im Konzept des Herstellers enthalten ist. Die vorgesehene Einbauart und die Funktionen müssen aus der Funktionsbeschreibung klar ersichtlich sein.

2 Art der Prototyp-Steuerungssysteme

2.1 Der Einbau des Prototyp-Steuerungssystems muß der Einbauanleitung des Herstellers voll entsprechen.

2.2 Das Prototyp-Steuerungssystems muß eine typische Türkonstruktion enthalten, die an die Schließeinrichtung angeschlossen ist. Für den Zweck der Brandprüfung ist dafür- ein Türmodell zu verwenden. Bei Schiebetüren ist das Türmodell in den Original-Lauf- und Führungsschienen mit den Original-Lauf- und Führungsrollen zu bewegen. Das Türmodell muß das Gewicht der größten Tür haben, die durch dieses System bewegt werden soll.

2.3 Bei pneumatischen und hydraulischen Systemen muß der Zylinder die größte Länge haben, die der Ofen zuläßt.

3 Werkstoffe des Prototyp-Steuerungssystems

3.1 Spezifikationen

Vor Beginn der Brandprüfung sind dem Prüfinstitut vom Antragsteller Zeichnungen über den Probekörper und eine Werkstoffliste des zu prüfenden Systems vorzulegen.

3.2 Kontroll-Messungen

3.2.1 Das Prüfinstitut muß von allen Werkstoffen, deren Charakteristika für die Eigenschaften des Prototyp-Steuerungssystems wichtig sind, eine Referenz-Probe nehmen (ausgenommen Stahl und gleichwertiger Werkstoff).

3.2.2 Sofern notwendig, sind mit den Isolierwerkstoffen Nichtbrennbarkeits-Prüfungen in Übereinstimmung mit Teil 1 durchzuführen. In der Konstruktion der Prototyp Steuerungssysteme verwendete Klebstoffe brauchen nicht nichtbrennbar sein, sie müssen jedoch schwerentflammbar sein (Teil 5).

3.2.3 Von jedem Isolierwerkstoff ist die Rohdichte zu bestimmen. Die Rohdichte von Steinwolle oder anderer komprimierbaren Werkstoffen ist auf die nominelle Dicke zu beziehen.

3.2.4 Die Dicke jedes Isolierwerkstoffes und Kombinationen von Werkstoffen ist mit geeigneten Meßinstrumenten zu messen.

4 Konditionierung der Prototyp-Steuerungssysteme

4.1 Eine Konditionierung der Prototyp-Steuerungssysteme (ausgenommen Isolierung) ist nicht notwendig.

4.2 Werden in der Konstruktion Isolierwerkstoffe verwendet, so darf das Prototyp-Steuerungssystem nicht vor Erreichen eines lufttrockenen Zustandes des Isolierwerkstoffes geprüft werden. Dieser Zustand ist definiert als eine gleichbleibende Masse bei einer relativen Luftfeuchtigkeit von 50% und einer Umgebungstemperatur von 23°C.

Ein beschleunigtes Konditionieren ist unter der Voraussetzung zulässig, daß die Methode die Eigenschaften der Bestandteile dei Werkstoffe nicht ändert. Beim Konditionieren mit hohen Temperaturen müssen die Temperaturen unter den Temperaturen liegen, die für die Werkstoffe kritisch sind.

5 Montage der Prototyp-Steuerungssysteme

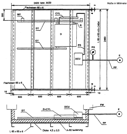
5.1 Das Prototyp-Steuerungssystem einer Feuertür und die Isolierung, wenn solche zum Schutz des Systems oder Teilen des Systems verwendet wird, sind an der Schottplatte nach Abbildung 1 zu montieren.

5.2 Die Schottplatte ist am Ofen in Übereinstimmung mit den Prüfvorschriften für Trennflächen vom Typ a im Abschnitt 5 des Prüfverfahrnes zur Feststellung der Brandwiderstandsfähigkeit von Trennflächen des Typs A, B und F Anlage der Entschließung A.754(18) zu befestigen.

5.3 Das Türmodell ist im Ofen anzuordnen. Die Schottplatte, an der das System und das Türmodell befestigt sind, darf keine Öffnungen haben. Kleine Öffnungen für den Auslösemechanismus des Steuerungssystems sind jedoch erlaubt.

6 Untersuchung der Prototyp-Steuerungssysteme

6.1 Übereinstimmung

Das Prüfinstitut hat die Übereinstimmung zwischen Prototyp-Steuerungssystem und den vom Antragsteller eingereichten Zeichnungen und Angaben über den Zusammenbau zu überprüfen (siehe Abschnitt 2); jede Diskrepanz ist vor Prüfbeginn zu beheben.

6.2 Funktionsfähigkeit des Prototyp-Steuerungssystems

Unmittelbar vor der Brandprüfung hat das Prüfinstitut die Funktionsfähigkeit des Systems durch Öffnen des Türmodells zu überprüfen, dabei ist das Türmodell mindestens 300 mm weit zu öffnen. Danach ist das Türmodell wieder zu schließen.

7 Meßgeräte

Der Ofen und die Meßgeräte des Ofens müssen Abschnitt

7 des Prüfverfahrens zur Feststellung der Brandwiderstandsfähigkeit von Trennflächen des Typs A, B und F Anlage der Entschließung A.754(18) entsprechen.

8 Prüfverfahren

8.1 Beginn der Brandprüfung

Nicht mehr als 5 Minuten vor Prüfbeginn sind alle von den Thermoelementen angezeigten Anfangstemperaturen zu überprüfen, um ihre Übereinstimmung sicherzustellen, und diese Anfangstemperaturen sind zu notieren. Entsprechende Bezugswerte sind auch für die Durchbiegung oder Verformung zu ermitteln; der Anfangszustand des Prototyp-Steuerungssystems ist zu notieren.

Bei Prüfbeginn muß die durchschnittliche innere Anfangstemperatur 20 ± 10°C betragen; sie muß außerdem in einem Bereich von ± 5°C zur anfänglichen Umgebungstemperatur liegen.

8.2 Ofensteuerung

Die Ofensteuerung muß Absatz 8.3 des Prüfverfahrens zur Feststellung der Brandwiderstandsfähigkeit von Trennflächen des Typs A, B und F Anlage der Entschließung A.754(18) entsprechen.

8.3 Temperaturen, Prüfdauer und Tätigkeiten während der Brandprüfung

8.3.1 Die Durchschnittstemperatur des Ofens ist innerhalb von 5 Minuten auf 200 + 50°C zu erhöhen und zu stabilisieren, und bis zum Ende der ersten 60 Minuten im Bereich von 200 + 50°C zu halten. Danach ist die Durchschnittstemperatur des Ofens der Standard-Zeit-Temperatur-Kurve folgend von 200°C auf 945°C zu erhöhen.

8.3.2 Die Öffnungs- und Schließfunktion des Steuerungssystems der Tür ist alle 5 Minuten vom Beginn der Brandprüfung an für die Dauer von 60 Minuten zu betätigen.

8.3.3 Der selbsttätige Umschalter muß das Steuerungssystem der Tür von der Energieversorgung bei einer Durchschnittstemperatur des Ofens von 300°C abtrennen und in der Lage sein, die Tür mindestens bis 945°C geschlossen zu halten.

8.4 Messungen und Beobachtungen am Prototyp-Steuerungssystems

Im Fall von pneumatischen oder hydraulischen Systemen ist der Betriebsdruck, der mit dem Druck des zugelassenen Systems identisch sein muß, aufzuzeichnen. Wegen eines möglichen hohen Betriebsdrucks sind bei der Durchführung der Brandprüfung die notwendigen Sicherheitsvorkehrungen vorzusehen.

9 Klassifizierungs-Kriterien

9.1 Während der ersten 60 Minuten der Brandprüfung darf das Prototyp-Steuerungssystem einer Feuertür nicht versagen.

9.2 Während der Zeit vom Ende der ersten 60 Minuten bis zum Ende der Brandprüfung muß die Tür geschlossen bleiben.

10 Prüfbericht

Der Prüfbericht muß alle wichtigen Informationen über den Prototyp des Steuerungssystems und die Brandprüfung sowie die folgenden Punkte enthalten:

  1. Name des Prüfinstituts und das Prüfdatum,
  2. Name des Antragstellers für die Brandprüfung,
  3. Name des Herstellers des Prototyp-Steuerungssystems und der in der Konstruktion verwendeten Produkte und Komponenten, einschließlich der Werkstoffbezeichnungen und der Handelsbezeichnungen.
  4. Konstruktive Einzelheiten des Prototyp-Steuerungssystems, einschließlich Beschreibungen, Zeichnungen und prinzipielle Einzelheiten über die Komponenten. Alle nach Abschnitt 2 geforderten Einzelheiten sind anzugeben. Die Beschreibungen und Zeichnungen, die dem Prüfbericht beigefügt werden, müssen, so weit dies möglich ist, mit dem besichtigten Prototyp-Steuerungssystems übereinstimmen. Werden vollständige und detaillierte Zeichnungen dem 'Prüfbericht nicht beigefügt, dann müssen die Prototyp-Steuerungssystem-Zeichnungen des Antragstellers vom Prüfinstitut beglaubigt werden und mindestens eine beglaubigte Kopie muß beim Prüfinstitut verbleiben; in diesem Fall ist im Prüfbericht auf diese Art der Beglaubigung hinzuweisen.
  5. Alle Eigenschaften der verwendeten Werkstoffe, die Einfluss auf das Brandverhalten des Prototyp-Steuerungssystems haben können, einschließlich der Messungen der Dicke und der Rohdichte des Isolierwerkstoffs.
  6. Eine Bestätigung, daß die Brandprüfung in Übereinstimmung mit den Anforderungen dieses Anhangs durchgeführt worden ist sowie eine ausführliche Angabe über Abweichungen, falls Abweichungen vom vorgeschriebenen Prüfverfahren gemacht worden sind (einschließlich etwaiger besonderer Anforderung der Verwaltung).
  7. Der Name des anwesenden Repräsentanten der Verwaltung während der Brandprüfung. Falls bei der Brandprüfung kein Repräsentant der Verwaltung anwesend ist, muß dies im Prüfbericht in folgender Form vermerkt werden:
    "Die ...(Name der Verwaltung)... wurde über die Durchführung der in diesem Prüfbericht ausführlich beschriebenen Brandprüfung unterrichtet und hielt die Teilnahme eines Repräsentanten nicht für erforderlich."
  8. Angaben über die Position der Druckmanometer oder anderen Meßgeräte, zusammen mit den während der Brandprüfung erhaltenen Meßwerten in tabelierter Form.
  9. Beobachtungen signifikanter Verhaltensweisen des Prototyp-Steuerungssystems während der Brandprüfung und Fotos, falls vorhanden.
  10. Eine Bestätigung, daß das Prototyp-Steuerungssystems der Feuertür die Brandprüfung bestanden hat und den Bewertungskriterien entspricht.

Abbildung 1
Schottplatte für die Montage des Prototyp-Steuerungssystems einer Feuertür

Erläuterungen zu den Abkürzungen:

D = Türmodell (door model) R = Laufrolle (supporting roller)
DCU = Tür-Steuerungseinheit (door control unit) PS = Rohrsystem (piping system)
DT = Tür-Laufschiene (door track) PG = Druckmanometer (pressure gauge)
WF = geschweißte Halterung (weld fastening) PP = Druckleitung (pressure pipe)
GT = Tür-Führungsschiene (guide track) E = Energie (energy)
CYL = Tür-Zylinder (door cylinder) FW = Ofenwand (furnace wall)

.

Auslegung von Ergebnissen Anhang
(zu Teil 5)

Bewertung des unüblichen Verhaltens von Probekörpern (Siehe Absatz 2.2 des Teils 5)

Unübliches Verhalten

  1. Aufflammen, keine ständige Flamme
  2. Explosionsartiges Abplatzen, weder Aufflammen noch Flamme
  3. Rasches Aufflammen über Oberfläche, später stetiges Ausbreiten der Flamme
  4. Probekörper oder Beschichtungswerkstoff schmilzt und tropft herab, keine Flamme
  5. Explosionsartiges Abplatzen und Flamme auf dem exponierten Teil des Probekörpers
  6. Probekörper oder Beschichtungswerkstoff schmilzt, brennt und tropft herab
  7. Zündflamme erloschen
  8. Anzeige für die Wärmeabgabe bleibt nach dem Versuch und dem erneuten Einschieben des Dummy-Probekörpers auf einem höheren oder niedrigeren Pegel als dem anfänglichen Stabilisierungspegel
  9. Sehr kurze Entzündungszeit auf Teppichmaterial und nicht starren Probekörpern
  10. Probekörper zerbricht und fällt aus der Haltevorrichtung heraus
  1. Probekörper, Klebe- oder Haftmittel geben Pyrolysegase in erheblichem Umfang ab
  2. Kleine Flamme, die am Rand des Probekörpers bleibt

Hinweise für die Klassifizierung

Aufzeichnen, wie weit sich die Flamme ausbreitet und wie lange sie brennt und ob das Aufflammen auf der Mittellinie erfolgt oder nicht. Auf der Grundlage der erhaltenen Daten klassifizieren.

Werkstoff besteht die Prüfung.

Ergebnis für die Flammenfront in beiden Fällen aufzeichnen, aber auf der Grundlage des schlechtesten Ergebnisses für jedes der vier Prüftparameter in den beiden Brandprüfungsanordnungen klassifizieren.

Verhalten und Ausmaß der Ausbreitung auf dem Probekörper aufzeichnen.

Explosionen aufzeichnen und entsprechend der Ausbreitung der Flammen klassifizieren, unabhängig davon, ob dies über oder unter der Mittellinie erfolgt.

Werkstoff scheidet ungeachtet der Kriterien aus. Für Decksaufbeläge werden nicht mehr als 10 brennende Tropfen akzeptiert.

Erscheinung aufzeichnen, Daten scheiden aus, Versuch wiederholen.

Daten scheiden aus; Vorrichtung stabilisieren, dann Versuch wiederholen.

Könnte durch die Länge der Florschicht oberhalb der Oberfläche der Haltevorrichtung verursacht werden, wodurch der Abstand zur Zündflamme verringert wird. Mit Zwischenstück, wie im Verfahren nach Absatz 8.1.1 der Anlage der Entschließung A.653(16) erforderlich, wiederholen.

Verhalten aufzeichnen, aber auf der Grundlage des schlechtesten Ergebnisses mit und ohne Haltevorrichtung nach Absatz 8.3.2 der Anlage der Entschließung A.653(16) klassifizieren.

Werkstoff scheidet aus.

Verhalten aufzeichnen und den Versuch drei Minuten, nach dem die Flamme auf der exponierten Fläche des Probekörpers zu brennen aufgehört hat, beenden.

*) Produkte, die für eine Verwendung in Gebäuden geprüft worden sind, haben ähnliche Klassifizierungsmerkmale; sie entsprechen jedoch nicht den verwendeten typen im Schiffbau.

ENDE

umwelt-online - Demo-Version


(Stand: 27.05.2022)

Alle vollständigen Texte in der aktuellen Fassung im Jahresabonnement
Nutzungsgebühr: ab 105.- € netto

(derzeit ca. 7200 Titel s.Übersicht - keine Unterteilung in Fachbereiche)

Preise & Bestellung

Die Zugangskennung wird kurzfristig übermittelt

? Fragen ?
Abonnentenzugang/Volltextversion