Für einen individuellen Ausdruck passen Sie bitte die
Einstellungen in der Druckvorschau Ihres Browsers an.
Regelwerk, Gefahrgut/Transport / See / MSC

MSC.1/Rundschreiben 1545 vom 6. Juni 2016
Einheitliche Interpretationen in Bezug auf die Anwendung von Regel II-1/3-6 SOLAS, in der jeweils geltenden Fassung, und der geänderten technischen Vorschriften für Zugangsmöglichkeiten zu Überprüfungszwecken (Entschließung MSC.158(78))

Vom 13. Oktober 2016
(VkBl. Nr. 22 vom 30.11.2016 S. 703)



Az.: 11-3-0
Siehe Fn. *

1 Der Schiffssicherheitsausschuss hat auf seiner sechsundneunzigsten Tagung (11. bis 20. Mai 2016), mit dem Ziel eine einheitliche Herangehensweise an die Anwendung der Vorschriften von Regel II-1/ 3-6 SOLAS sicherzustellen, einheitliche Interpretationen in Bezug auf die Anwendung von Regel II-1/ 3-6 SOLAS, in der jeweils geltenden Fassung, und der Geänderten technischen Vorschriften für Zugangsmöglichkeiten zu Überprüfungszwecken (Entschließung MSC. 158(78)), die vom Unterausschuss Schiffsentwurf und -konstruktion auf seiner dritten Tagung (18. bis 22. Januar 2016) vorbereitet wurden, angenommen, wie sie in der Anlage aufgeführt sind.

2 Die Mitgliedsregierungen werden aufgefordert, die beigefügten einheitlichen Interpretationen zu verwenden, wenn sie die relevanten Vorschriften der Regel II-1/3-6 SOLAS, in der jeweils geltenden Fassung, anwenden, und sie allen Beteiligten zur Kenntnis zu bringen.

Einheitliche Interpretationen in Bezug auf die Anwendung von Regel II-1/ 3-6 SOLAS, in der jeweils geltenden Fassung, und der geänderten technischen Vorschriften für Zugangsmöglichkeiten zu Überprüfungszwecken (Entschließung MSC. 158(78))

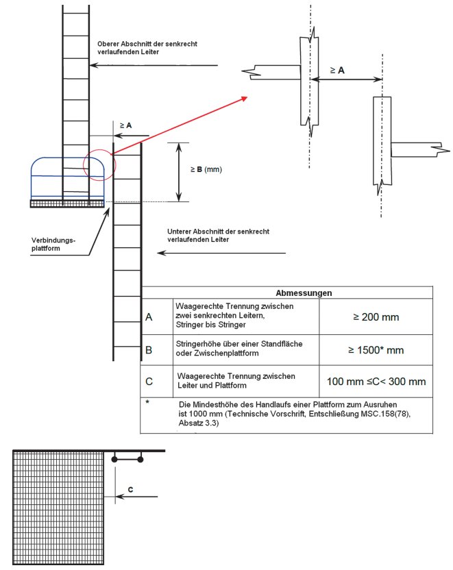
Geänderte technische Vorschriften für Zugangsmöglichkeiten zu Überprüfungszwecken (Entschließung MSC.158(78), Absätze 3.13.2 und 3.13.6

Aneinander angrenzende Abschnitte von senkrecht verlaufenden Leitern müssen so eingebaut werden, dass die folgenden Vorschriften erfüllt sind:

Abbildung "A"
Senkrecht verlaufende Leiter - Leiter durch die Verbindungsplattform hindurch

Abbildung "B"
Senkrecht verlaufende Leiter - Seitliche Befestigung


*) Durch die Dienststelle Schiffssicherheit der BG Verkehr wird hiermit das Rundschreiben des Schiffssicherheitsausschusses MSC der IMO MSC.1/Rundschreiben 1545, "Einheitliche Interpretationen in Bezug auf die Anwendungen von Regel II-1/3-6 SOLAS, in der jeweils geltenden Fassung, und der geänderten technischen Vorschriften für Zugangsmöglichkeiten zu Überführungszwecken (Entschließung MSC.158(78))", in deutscher Sprache amtlich bekannt gemacht.

ENDE

umwelt-online - Demo-Version


(Stand: 29.08.2018)

Alle vollständigen Texte in der aktuellen Fassung im Jahresabonnement
Nutzungsgebühr: ab 105.- € netto

(derzeit ca. 7200 Titel s.Übersicht - keine Unterteilung in Fachbereiche)

Preise & Bestellung

Die Zugangskennung wird kurzfristig übermittelt

? Fragen ?
Abonnentenzugang/Volltextversion