Für einen individuellen Ausdruck passen Sie bitte dieEinstellungen in der Druckvorschau Ihres Browsers an. Regelwerk, BGR / DGUV-R |
![]() |
BGR 175 - Montagegerüste in Aufzugschächten
Berufsgenossenschaftliche Regeln für Sicherheit und Gesundheit bei der Arbeit (BGR)
(bisherige ZH 1/534.10)
(Ausgabe 01/2002)
| Redaktioneller Hinweis: Berufsgenossenschaften sind gemäß § 210 SGB VII Behörden; ihre amtlichen Veröffentlichungen nach § 15 SGB VII unterliegen gemäß § 5 Abs. 2 UrhG keinem Urheberrechtsschutz. |
Zurückgezogen, nur zur Information
Vorbemerkung
BG-Regeln richten sich in erster Linie an den Unternehmer und sollen ihm Hilfestellung bei der Umsetzung seiner Pflichten aus staatlichen Arbeitsschutzvorschriften und/oder Unfallverhütungsvorschriften geben sowie Wege aufzeigen, wie Arbeitsunfälle, Berufskrankheiten und arbeitsbedingte Gesundheitsgefahren vermieden werden können.
Der Unternehmer kann bei Beachtung der in den BG-Regeln enthaltenen Empfehlungen davon ausgehen, dass er die in den Unfallverhütungsvorschriften geforderten Schutzziele erreicht. Andere Lösungen sind möglich, wenn Sicherheit und Gesundheitsschutz in gleicher Weise gewährleistet sind. Sind zur Konkretisierung staatlicher Arbeitsschutzvorschriften von den dafür eingerichteten Ausschüssen technische Regeln ermittelt worden, sind diese vorrangig zu beachten.
Werden verbindliche Inhalte aus staatlichen Arbeitsschutzvorschriften und/oder aus Unfallverhütungsvorschriften wiedergegeben, sind sie durch Fettdruck kenntlich gemacht oder im Anhang zusammengestellt. Erläuterungen, insbesondere Lösungsmöglichkeiten, sind durch entsprechende Hinweise in Kleinschrift gegeben.
DIN 4420 "Arbeits- und Schutzgerüste" wurde unter ingenieurmäßigen Gesichtspunkten erarbeitet und ist wie folgt in 4 Teile gegliedert:
Diese BG-Regel stützt sich auf DIN 4420 und erläutert diese für die unterschiedlichen Gerüstbauarten. In dieser BG-Regel ist für den Gerüsthersteller und -anwender die für die Regelausführung der jeweiligen Gerüstbauart spezifischen Anforderungen sowie die im berufsgenossenschaftlichen Vorschriftenwerk enthaltenen Bestimmungen zusammengestellt. Darüber hinaus enthält sie, entsprechend DIN 4420-1, für die verschiedenen traditionellen Gerüstbauarten Regelungen für den Aufbau und die Verwendung.
Die Reihe "Berufsgenossenschaftliche Regeln für Sicherheit und Gesundheit im Gerüstbau" (BG-Regeln Gerüstbau) umfasst folgende Teile:
| - Allgemeiner Teil (mit Anhang DIN 4420) | BGR 165 |
| - Systemgerüste (Rahmen- und Modulgerüste) | BGR 166 |
| - Stahlrohr-Kupplungsgerüste | BGR 167 |
| - Auslegergerüste | BGR 168 |
| - Konsolgerüste für den Hoch- und Tiefbau | BGR 169 |
| - Konsolgerüste für den Stahl- und Anlagenbau | BRG 170 |
| - Bockgerüste | BGR 171 |
| - Fahrgerüste | BGR 172 |
| - Kleingerüste | BGR 173 |
| - Hängegerüste | BGR 174 |
| - Montagegerüste für Aufzugschächte | BGR 175. |
| Zusätzlich sind für Arbeits- und Schutzgerüste die | |
| - BG-Grundsätze "Prüfung von Belagteilen in Fang- und Dachfanggerüsten sowie von Schutzwänden in Dachfanggerüsten" | BGG 927 |
| zu beachten. | |
1 Anwendungsbereich
Diese BG-Regel findet Abwendung auf das Auf-, Um- und Abbauen sowie das Verwenden von Montagegerüsten in Aufzugschächten.
2 Begriffsbestimmungen
Montagegerüste im Sinne dieser BG-Regel sind einlagige Arbeitsgerüste aus Gerüstbauteilen, die wandseitig befestigt oder aufgelagert werden. Sie haben außer den beschäftigten Personen und ihren Werkzeugen auch das jeweils für die Arbeiten erforderliche Material zu tragen.
3 Allgemeine Anforderungen
3.1 Montagegerüste müssen nach dieser BG-Regel und im Übrigen den allgemein anerkannten Regeln der Technik entsprechend beschaffen sein und verwendet werden. Abweichungen sind zulässig, wenn die gleiche Sicherheit auf andere Weise gewährleistet ist.
Allgemein anerkannte Regeln der Technik sind z.B. die im Anhang 3 aufgeführten DIN-Normen und VDE-Bestimmungen sowie technische Regeln anderer Mitgliedstaaten der Europäischen Union oder anderer Vertragsstaaten des Abkommens über den Europäischen Wirtschaftsraum.
3.2 Die in dieser BG-Regel enthaltenen technischen Lösungen schließen andere, mindestens ebenso sichere Lösungen nicht aus, die auch in technischen Regeln anderer Mitgliedstaaten der Europäischen Union oder anderer Vertragsstaaten des Abkommens über den Europäischen Wirtschaftsraum ihren Niederschlag gefunden haben können.
3.3 Prüfberichte von Prüflaboratorien, die in anderen Mitgliedstaaten der Europäischen Union oder in anderen Vertragsstaaten des Abkommens über den Europäischen Wirtschaftsraum zugelassen sind, werden in gleicher Weise wie deutsche Prüfberichte berücksichtigt, wenn die den Prüfberichten dieser Stellen zugrunde liegenden Prüfungen, Prüfverfahren und konstruktiven Anforderungen denen der deutschen Stelle gleichwertig sind. Um derartige Stellen handelt es sich vor allem dann, wenn diese die in der Normenreihe EN 45000 niedergelegten Anforderungen erfüllen.
4 Brauchbarkeitsnachweis
Für Montagegerüste ist ein Brauchbarkeitsnachweis, bestehend aus dem Standsicherheitsnachweis und dem Nachweis der Arbeits- und Betriebssicherheit nach Tabelle 1, erforderlich. Er ist auf Grundlage von DIN 4420-1 zu erbringen.
Tabelle 1: Möglichkeiten des Brauchbarkeitsnachweises bei der Verwendung von Montagegerüsten
5 Gerüstgruppen
5.1 Gruppeneinteilung
Montagegerüste sind nach Tabelle 2 in Gerüstgruppen eingeteilt.
Tabelle 2: Gerüstgruppen
| 1 | 2 | 3 |
| Gerüstgruppe | flächenbezogenes Nutzgewicht | Flächenpressung * |
| 2 | 150 kg/m2 | - |
| 3 | 200 kg/m2 | - |
| 4 | 300 kg/m2 | 500 kg/m2 |
| 5 | 450 kg/m2 | 750 kg/m2 |
| 6 | 600 kg/m2 | 1000 kg/m2 |
5.2 Lastannahmen
5.2.1 Für die Verkehrslast auf Montagegerüsten gilt Tabelle 2 DIN 4420-1.
5.2.2 Abweichend von Abschnitt 5.2.1 darf bei Montagegerüsten mit mehr als 9 m2 Fläche die flächenbezogene Nennlast nach Tabelle 2 DIN 4420-1 für einen umlaufenden Randstreifen von b = 1,50 m angenommen werden. Für alle übrigen Flächen, von denen aus geringfügige Arbeiten ausgeführt werden und auf denen keine Materiallagerung stattfindet, sind mindestens die Lastannahmen der Gerüstgruppe 2 zu berücksichtigen. Die besondere Kennzeichnung ist nach Abschnitt 11 anzubringen.
5.3 Zulässige Belastungen
5.3.1 Das flächenbezogene Nutzgewicht darf die Werte aus Spalte 2 der Tabelle 2 nicht überschreiten.
5.3.2 Die zulässige Belastung eines Montagegerüstes ist der Aufbau- und Verwendungsanleitung nach Abschnitt 9 und der Kennzeichnung nach Abschnitt 11 zu entnehmen.
5.3.3 Je Person ist ein Gewicht von 100 kg anzusetzen.
5.3.4 Werden Lasten mit Hebezeugen auf Gerüste abgesetzt, ist das Gewicht der Lasten jeweils mit dem Faktor 1,2 zu multiplizieren.
5.3.5 Für die Belastung durch Personen ist kein Nachweis der Flächenpressung erforderlich.
6 Anforderungen an Montagegerüste
6.1 Anforderungen an Bauteile aus Holz
6.1.1 Gerüstbauteile aus Holz müssen mindestens der Sortierklasse S 10 oder MS 10 nach DIN 4074-1 entsprechen.
6.1.2 Gerüstbretter und -bohlen aus Holz müssen dauerhaft mit dem Ü-Zeichen gekennzeichnet sein. Die Kennzeichnung muss außerdem die letzten beiden Ziffern des Jahres der Herstellung enthalten.
Siehe Bauordnungen der Bundesländer in Verbindung mit der Bauregelliste A.
6.1.3 Gerüstbretter oder -bohlen müssen mindestens 3,0 cm dick und dürfen an ihren Enden nicht aufgerissen sein.
Gerüstbretter oder -bohlen werden z.B. durch Einschlagen von Wellen-Bandeisen an den Stirnseiten gegen Aufreißen geschützt.
6.2 Anforderungen an Bauteile aus Stahl
6.2.1 Die Wanddicke tragender Gerüstbauteile aus Stahl muss mindestens 2,0 mm, für Teile des Seitenschutzes mindestens 1,5 mm betragen.
6.2.2 Die Wanddicke von Stahlrohren, an die Kupplungen angeschlossen werden, muss mindestens 3,2 mm betragen. Die Stahlgüte muss mindestens ST 33 entsprechen.
6.2.3 Serienmäßig hergestellte Gerüstbauteile aus Stahl müssen bei ihrer Herstellung einen Korrosionsschutz nach DIN 4427 erhalten.
6.3 Anforderungen an Bauteile aus Aluminium
6.3.1 Die Wanddicke tragender Gerüstbauteile aus Aluminium muss mindestens 2,5 mm, für Bauteile des Seitenschutzes mindestens 2,0 mm betragen. Die Mindestwanddicke von 2,5 mm darf unterschritten werden, wenn durch Profilierung oder Aussteifung mindestens eine gleichwertige Gebrauchs- und Tragfähigkeit erreicht wird.
6.3.2 Die Wanddicke von Aluminiumrohren, an die Kupplungen angeschlossen werden, muss mindestens 4,0 mm betragen und die Festigkeitseigenschaften des Zustandes F 28 nach DIN EN 754-2 und DIN EN 755-2 haben.
6.4 Anforderungen an Auflager
6.4.1 Wird das Montagegerüst unmittelbar auf oder in den Schachtwänden aufgelagert, muss die Auflagertiefe mindestens 10 cm betragen, sofern durch den Standsicherheitsnachweis keine größeren Auflagertiefen erforderlich sind.
6.4.2 Sind zur Ableitung der Lasten Gerüstschuhe oder -bügel vorgesehen, ist die Tragfähigkeit auf Grundlage technischer Baubestimmungen nachzuweisen.
Technische Baubestimmungen sind z.B. DIN 1045, DIN 1052, DIN 1053 und DIN 18800.
6.4.3 Gerüstschuhe und -bügel müssen konstruktiv gegen unbeabsichtigtes Ausheben gesichert sein. Sie müssen so ausgebildet sein, dass ein Verschieben, Kippen oder Abheben der Tragkonstruktion verhindert wird.
6.4.4 Gerüstschuhe oder -bügel, die mit Schrauben befestigt werden, müssen zwei Befestigungspunkte aufweisen. Jede Schraube muss in der Lage sein, die volle Last aufzunehmen und abzuleiten. Werden für die Befestigung Dübel verwendet, müssen diese allgemein bauaufsichtlich zugelassen sein.
6.4.5 Werden Gerüstschuhe oder -bügel in Hülsen oder Bohrlöchern eingebaut, muss durch die Formgebung oder Schwerpunktlage sichergestellt werden, dass ein Verdrehen des Auflagerschuhs oder -bügels ausgeschlossen wird.
6.4.6 Gerüstschuhe oder -bügel sind entsprechend der Einbauanleitung des Herstellers einzubauen.
6.5 Anforderungen an Beläge und Riegel
6.5.1 Beläge, Quer- und Längsriegel von Montagegerüsten müssen gegen Verschieben, Kippen und Abheben gesichert sein.
Beläge in Montagegerüsten können im Regelfall mit Drahtstiften gesichert werden.
Längs- und Querriegel können zum Beispiel mit Kreuzbändern untereinander gesichert werden.
6.5.2 Öffnungen in Belägen dürfen nur so groß sein, wie es zur Montage der jeweiligen Aufzugskonstruktionsteile erforderlich ist. Sie sind unverschieblich abzudecken, wenn sie nicht unmittelbar zu Montagearbeiten genutzt werden.
6.5.3 Beläge sind so zu verlegen, dass sie so dicht wie möglich an die Schachtwände heranreichen. Der waagerechte Abstand zwischen Belag und Schachtwand darf nicht größer als 30 cm sein.
7 Regelausführung für Montagegerüste
7.1 Zulässige Belastungen
Montagegerüste in der Regelausführung dürfen nur als Arbeitsgerüste in den Gerüstgruppen 3 und 4 verwendet werden.
7.2 Gerüstabmessungen
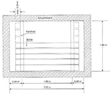
7.2.1 Montagegerüste in der Regelausführung dürfen in Schächten mit einem Querschnitt von max. 2,60 m x 1,80 m verwendet werden.
Für Montagegerüste, die in Schächten mit einem größeren als dem Regelquerschnitt verwendet werden sollen, ist ein gesonderter Nachweis nach Abschnitt 4 zu führen.
7.2.2 Werden Kanthölzer in Längsrichtung des Schachtquerschnittes eingebaut, darf die Stützweite der Gerüstbohlen max. 1,00 m (Bild 1), bei Einbau der Kanthölzer in Querrichtung max. 1,80 m (Bild 2) betragen.
Bild 1: Stützweite der Kanthölzer in Längsrichtung
Bild 2: Stützweite der Kanthölzer in Querrichtung
7.2.3 Kanthölzer und Gerüstbohlen sind entsprechend der gewählten Gerüstgruppe nach Tabelle 3 auszuwählen.
Tabelle 3: Auswahl Kantholz/Gerüstbohle
| Stützweite der Gerüstbohlen | Gerüstgruppe | Kantholz mindestens | Gerüstbohle mindestens |
1,00 m |
3 | 10/14 cm | 20 x 4,0 cm |
| 4 | 10/16 cm | ||
1,80 m |
3 | 10/12 cm |
28 x 4,0 cm |
| 4 |
7.3 Auflagerung
7.3.1 Der Einbau von Gerüstschuhen oder -bügeln und die Lagesicherung der Kanthölzer muss entsprechend der Einbauanleitung des Herstellers erfolgen. Hierfür dürfen nur solche Gerüstschuhe oder -bügel verwendet werden, die eine zulässige Tragfähigkeit in der
aufweisen.
7.3.2 Erfolgt die Auflagerung der Kanthölzer auf Schachtwänden oder in Rüstlöchern, muss die Auflagertiefe mindestens 10 cm betragen.
7.3.3 Die Lagesicherung der Kanthölzer muss
erfolgen.
7.4 Gerüstbohlen
7.4.1 Gerüstbohlen dürfen höchstens 20 cm über die Kanthölzer hinausragen (siehe Bilder 1 und 2).
7.4.2 Gerüstbohlen müssen auf jedem Kantholz mit je 2 Drahtstiften mit mindestens 3,8 x 100 mm nach DIN EN 10230-1 befestigt werden.
8 Zugänge
8.1 Montagegerüste müssen über sichere Zugänge oder Aufstiege erreichbar sein.
8.2 Werden Leitern als Aufstiege eingebaut, sind Anlegeleitern mit einem Anstellwinkel von 65° bis 75° zu verwenden. Dabei darf der zu überbrückende Höhenunterschied nicht mehr als 5,0 m betragen.
8.3 Werden in Leitergängen Durchstiegsöffnungen vorgesehen, sind diese gegen Hineinstürzen zu sichern.
9 Aufbau- und Verwendungsanleitung
Für Montagegerüste, die abweichend von der Regelausführung nach Abschnitt 7 auf-, um- und abgebaut werden, ist eine Aufbau- und Verwendungsanleitung zur Verfügung zu stellen. Diese muss alle für den Auf-, Um- und Abbau sowie für die bestimmungsgemäße Verwendung erforderlichen Angaben, einschließlich der zulässigen Belastungen, enthalten. Die Aufbau- und Verwendungsanleitung muss an der Verwendungsstelle zur Verfügung stehen.
10 Auf-, Um- und Abbau
10.1 Allgemeines
10.1.1 Der für die Gerüstbauarbeiten verantwortliche Unternehmer hat für
zu sorgen.
Siehe § 2 der Unfallverhütungsvorschrift "Grundsätze der Prävention" (ab 1/2004) (BGV A1).
10.1.2 Gerüstbauarbeiten müssen von fachlich geeigneten Vorgesetzten geleitet werden. Diese müssen die vorschriftsmäßige Durchführung der Gerüstbauarbeiten gewährleisten.
Siehe § 4 der Unfallverhütungsvorschrift "Bauarbeiten" (BGV C22).
10.1.3 Gerüstbauarbeiten müssen von Aufsichtführenden beaufsichtigt werden. Diese müssen die arbeitssichere Durchführung der Gerüstbauarbeiten überwachen. Sie müssen hierfür ausreichende Kenntnisse besitzen.
Siehe § 4 der Unfallverhütungsvorschrift "Bauarbeiten" (BGV C22).
10.2 Maßnahmen vor Arbeitsbeginn
10.2.1 Vor Beginn der Gerüstbauarbeiten hat der Unternehmer zu ermitteln, ob im vorgesehenen Arbeitsbereich Anlagen vorhanden sind, durch die Versicherte gefährdet werden können.
Gefahren können ausgehen z.B. von
Siehe § 16 Abs. 1 der Unfallverhütungsvorschrift "Bauarbeiten" (BGV C227).
10.2.2 Sind Anlagen nach Abschnitt 10.2.1 vorhanden, müssen die erforderlichen Schutzmaßnahmen im Einvernehmen mit deren Eigentümern, Betreibern und den zuständigen Behörden festlegt und durchgeführt werden.
Siehe § 16 Abs. 2 der Unfallverhütungsvorschrift "Bauarbeiten" (BGV C22).
10.2.3 Bei unvermutetem Antreffen von Anlagen nach Abschnitt 10.2.1 sind die Arbeiten sofort zu unterbrechen. Der Aufsichtführende ist zu verständigen.
Siehe § 16 Abs. 3 der Unfallverhütungsvorschrift "Bauarbeiten" (BGV C22).
10.2.4 Ist durch die Gerüstbauarbeiten mit Gefahren für Personen zu rechnen, hat der Unternehmer entsprechende Sicherheitsmaßnahmen durchzuführen.
Maßgebende Bestimmungen sind z.B. Bauordnungen der Bundesländer, Straßenverkehrsordnung, regionale behördliche Vorschriften.
10.2.5 Übernimmt der Unternehmer einen Auftrag, dessen Durchführung zeitlich und örtlich mit Aufträgen anderer Unternehmer zusammenfällt; ist er verpflichtet, sich mit den anderen Unternehmern abzustimmen, soweit dies zur Vermeidung gegenseitiger Gefährdung erforderlich ist.
Siehe § 6 der Unfallverhütungsvorschrift "Grundsätze der Prävention" (ab 1/2004) (BGV A1).
Siehe § 16 Abs. 2 der Unfallverhütungsvorschrift "Bauarbeiten" (BGV C22).
10.3 Elektrische Anlagen und Betriebsmittel
10.3.1 Werden bei Gerüstbauarbeiten elektrische Betriebsmittel mit Netzanschluss verwendet, müssen diese über einen besonderen Speisepunkt betrieben werden.
Siehe auch § 3 der Unfallverhütungsvorschrift "Elektrische Anlagen und Betriebsmittel" (BGV A2).
Elektrische Betriebsmittel sind z.B. elektrisch betriebene Bauaufzüge, Bohrmaschinen.
Als besonderer Speisepunkt bei Gerüstbauarbeiten gilt
Kleinstbaustromverteiler, Schutzverteiler oder ortsveränderliche Schutzeinrichtungen dürfen an Steckvorrichtungen ortsfester Anlagen betrieben werden.
Siehe auch BG-Information "Auswahl und Betrieb elektrischer Anlagen und Betriebsmittel auf Baustellen" (BGI 608).
10.3.2 Flexible Leitungen müssen Gummischlauchleitungen vom TYP H07RN-F oder gleichwertiger Bauart sein.
10.3.3 Leitungsroller (Kabeltrommeln) müssen für den rauen Betrieb geeignet sein und Spritzwasserschutz besitzen.
![]() |
rauer Betrieb | ![]() |
Spritzwasserschutz |
10.3.4 Handgeführte Elektrowerkzeuge müssen mit Anschlussleitungen TYP H07RN-F oder gleichwertiger Bauart versehen sein. Bis 4,00 m Länge sind auch H05RN-F-Leitungen oder gleichwertige zulässig.
10.4 Durchführung der Arbeiten
10.4.1 Gerüstbauteile sind vor dem Einbau durch Sichtkontrolle auf Beschädigungen zu prüfen. Beschädigte Gerüstbauteile dürfen nicht eingebaut werden.
10.4.2 Beträgt die mögliche Absturzhöhe beim Auf- und Abbau von Montagegerüsten mehr als 2,00 m, müssen die Versicherten gegen Absturz gesichert sein.
10.4.3 Wird als Absturzsicherung Anseilschutz verwendet, hat der fachlich geeignete Vorgesetzte die Anschlagpunkte für den Anseilschutz festzulegen und dafür zu sorgen, dass der Anseilschutz benutzt wird.
Anschlageinrichtungen können Anschlagpunkte, so genannte Festpunkte oder Anschlagkonstruktionen sein, an denen das Verbindungsmittel, z.B. Sicherungsseil, befestigt werden kann und dessen Tragfähigkeit für eine Person entweder nach den technischen Baubestimmungen für eine statische Einzellast von 6 kN oder durch Prüfung - zweimaliger Belastungsversuch in Benutzungsrichtung mit 7,5 kN - bei einer Dauer von 5 Minuten - nachgewiesen ist und vor Benutzung auf Beschädigung durch Sichtprüfung kontrolliert wurde.
10.4.4 Verankerungen, Aufhängungen und Verstrebungen sind fortlaufend mit dem Gerüstaufbau einzubauen.
10.4.5 Müssen Verankerungen, Aufhängungen oder Verstrebungen vorzeitig gelöst werden, muss vorher für einen gleichwertigen Ersatz gesorgt werden.
10.5 Prüfung durch den Gerüstersteller
Der für die Gerüstbauarbeiten verantwortliche Unternehmer hat dafür zu sorgen, dass das Montagegerüst
geprüft wird
Hinweise für die Prüfung von Gerüsten siehe Tabelle 4 und Anhang 1.
Tabelle 4: Prüfung
11 Kennzeichnung
Der Gerüstersteller hat nach Fertigstellung der Montagegerüste für die Dauer der Benutzung an jedem Schachtzugang deutlich erkennbar eine Kennzeichnung entsprechend Bild 3 oder Bild 4 anzubringen.
Dieses gilt auch, wenn an den Schachtzugängen eine Absperrung angebracht ist.
Bild 3: Beispiel für die Kennzeichnung von Gerüsten nach Abschnitt 5.2.1
Bild 4: Beispiel für die Kennzeichnung von Gerüsten nach Abschnitt 5.2.2
12 Verwendung
12.1 Allgemeines
Jeder Unternehmer, der Montagegerüste benutzt, ist für
der Montagegerüste verantwortlich. Er hat dafür zu sorgen, dass sie vor ihrer endgültigen Fertigstellung nicht benutzt werden.
Nachweis der endgültigen Fertigstellung kann z.B. sein
12.1.1 Auf Gerüstbeläge abzuspringen oder etwas auf sie abzuwerfen, ist unzulässig.
12.1.2 Konstruktive Veränderungen an Montagegerüsten dürfen nur durch den Gerüstersteller oder in Abstimmung mit ihm vorgenommen werden.
12.2 Prüfung durch den Gerüstbenutzer
12.2.1 Jeder Unternehmer, der das Montagegerüst benutzt, hat dafür zu sorgen, dass Montagegerüste vor der Benutzung auf augenfällige Mängel geprüft werden.
12.2.2 Werden bei der Prüfung Mängel festgestellt, darf das Montagegerüst in den mit Mängeln behafteten Bereichen bis zu deren Beseitigung nicht benutzt werden.
13 Zeitpunkt der Anwendung
Diese Regel ist anzuwenden ab Januar 2002, soweit nicht Inhalte dieser BG-Regel nach geltenden Rechtsnormen oder als allgemein anerkannte Regeln der Technik bereits zu beachten sind.
| Vorschriften und Regeln | Anhang 1 |
Nachstehend sind die insbesondere zu beachtenden einschlägigen Vorschriften und Regeln zusammengestellt:
1. Gesetze, Verordnungen
Bauordnungen der Bundesländer,
Arbeitsstättenverordnung ( ArbStättV).
2. Berufsgenossenschaftliche Vorschriften, Regeln und Informationen für Sicherheit und Gesundheit bei der Arbeit
Unfallverhütungsvorschrift "Grundsätze der Prävention" (ab 1/2004) (BGV A1),
Unfallverhütungsvorschrift "Bauarbeiten" (BGV C22),
BG-Regeln "Gerüstbau" (BGR 165 bis 174),
BG-Information "Auswahl und Betrieb elektrischer Anlagen und Betriebsmittel auf Baustellen" (BGI 608).
3. Normen
Bezugsquelle: Beuth Verlag GmbH, Burggrafenstraße 6, 10772 Berlin.
| DIN 1045-1 | Tragwerke aus Beton; Stahlbeton und Spannbeton; Teil 1: Bemessung und Konstruktion, |
| E DIN 1052 | Berechnung und Bemessung von Holzbauwerken; Allgemeine Bemessungsregeln und Bemessungsregeln für den Hochbau, |
| DIN 1053-1 | Mauerwerk; Teil 1: Berechnung und Ausführung, |
| DIN 4420-1 | Arbeits- und Schutzgerüste; Allgemeine Regelungen; Sicherheitstechnische Anforderungen, Prüfungen, |
| DIN 4420-2 | Arbeits- und Schutzgerüste; Leitergerüste; Sicherheitstechnische Anforderungen, |
| DIN 4420-3 | Arbeits- und Schutzgerüste; Gerüstbauarten, ausgenommen Leiter- und Systemgerüste; Sicherheitstechnische Anforderungen und Regelausführungen, |
| DIN 4420-4 | Arbeits- und Schutzgerüste aus vorgefertigten Bauteilen (Systemgerüste); Werkstoffe, Gerüstbauteile, Abmessungen, Lastannahmen und sicherheitstechnische Anforderungen; Deutsche Fassung HD 1000:1988, |
| DIN 4074-1 | Sortierung von Nadelholz nach der Tragfähigkeit; Nadelschnittholz |
| DIN 18 800-1 | Stahlbauten; Bemessung und Konstruktion, |
| DIN EN 754-2 | Aluminium und Aluminiumlegierungen; Gezogene Stangen und Rohre; Teil 2: Mechanische Eigenschaften, |
| DIN EN 755-2 | Aluminium und Aluminiumlegierungen; Stranggepresste Stangen, Rohre und Profile; Teil 2: Mechanische Eigenschaften, |
| DIN EN 10230-1 | Nägel aus Stahldraht; Teil 1: Lose Nägel für allgemeine Verwendungszwecke. |
![]() |
ENDE | ![]() |
(Stand: 21.07.2025)
Alle vollständigen Texte in der aktuellen Fassung im Jahresabonnement
Nutzungsgebühr: ab 105.- € netto
(derzeit ca. 7200 Titel s.Übersicht - keine Unterteilung in Fachbereiche)
Die Zugangskennung wird kurzfristig übermittelt
? Fragen ?
Abonnentenzugang/Volltextversion