Für einen individuellen Ausdruck passen Sie bitte dieEinstellungen in der Druckvorschau Ihres Browsers an. Regelwerk; Bau- & Planungsrecht; Bauvorlagenverordnung |
![]() |
Einführung einheitlicher Vordrucke für die bauaufsichtlichen Verfahren nach der Landesbauordnung
- Schleswig-Holstein -
Vom 15. Februar 2018
(Amtsbl. Schl.-H. Nr. 10/11/12 vom 19.03.2018 S. 160; 30.08.2022 S. 1365aufgehoben)
Gl.-Nr.: 2130.111
Archiv 2009
Erlass des Ministeriums für Inneres, ländliche Räume und Integration vom 15. Februar 2018 - IV 541 -515.01-429/2016-9833/2017 -
Der Erlass des Innenministeriums vom 17. April 2009 - IV 65 - 515.311 - (Amtsbl. Schl.-H. S. 418), zuletzt geändert durch Verwaltungsvorschrift vom 6. Juli 2016 (Amtsbl. Schl.-H. S. 584), berichtigt durch Verwaltungsvorschrift vom 8. August 2016 (Amtsbl. Schl.-H. S. 747), sowie die als Anlagen bekannt gemachten einheitlichen Vordrucke und das Textmuster Baugenehmigung für die bauaufsichtlichen Verfahren aufgrund der Landesbauordnung für das Land Schleswig-Holstein (LBO) vom 22. Januar 2009 (GVOBl. Schl.-H. S. 6), zuletzt geändert durch Artikel 1 des Gesetzes vom 14. Juni 2016 (GVOBl. Schl.-H. S. 369), sind redaktionell überarbeitet worden.
Die als Anlagen 1 bis 9 abgedruckten Vordrucke
werden hiermit zur einheitlichen Anwendung verbindlich bekannt gemacht. Abweichungen von den eingeführten Vordrucken sind nicht zulässig. Die bisherigen Vordrucke können übergangsweise noch verwendet werden.
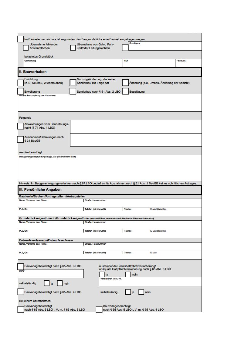
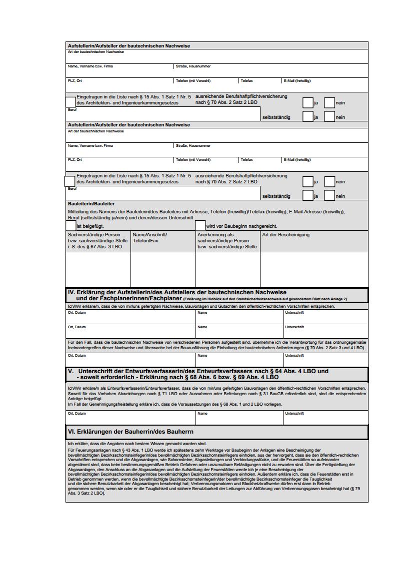
Die Bauherrin oder der Bauherr hat durch Ankreuzen kenntlich zu machen, welches bauaufsichtliche Verfahren (Anlage 1) sie oder er für ihr oder sein Vorhaben wählt. Der Vordruck "Erklärung der Aufstellerin oder des Aufstellers der bautechnischen Nachweise nach der Liste nach § 15 Abs. 1 Satz 1 Nr. 5 des Architekten- und Ingenieurkammergesetzes" (Anlage 2) ist entsprechend § 14 Abs. 1 oder 3 Bauvorlagenverordnung, in denen eine Aufstellerin oder ein Aufsteller der bautechnischen Nachweise tätig geworden ist, spätestens mit der Baubeginnanzeige vorzulegen. Die prüfpflichtigen bautechnischen Nachweise müssen entsprechend § 14 Abs. 2 BauVorlVO spätestens zehn Werktage vor Baubeginn geprüft der Bauaufsichtsbehörde vorliegen. Die Bescheinigung der bevollmächtigten Bezirksschornsteinfegerin oder des bevollmächtigten Bezirksschornsteinfegers für Feuerungsanlagen hat die Bauherrin oder der Bauherr auf dem "Vordruck für Feuerungsanlagen" (Anlage 5) bei verfahrensfreien Feuerungsanlagen nach § 63 Abs. 1 Nr. 2 Buchstabe a LBO vor Baubeginn der Feuerungsanlagen, für Vorhaben im Rahmen der Genehmigungsfreistellung nach § 68 LBO und für im vereinfachten Baugenehmigungsverfahren genehmigte Vorhaben nach § 69 LBO jeweils zehn Werktage vor Baubeginn der Feuerungsanlage einzuholen. Die bevollmächtigte Bezirksschornsteinfegerin oder der bevollmächtigte Bezirksschornsteinfeger wird eine Ausfertigung der Bescheinigung der Bauherrin oder dem Bauherrn übersenden. Im Baugenehmigungsverfahren nach § 67 LBO wird die bevollmächtigte Bezirksschornsteinfegerin oder der bevollmächtigte Bezirksschornsteinfeger eine weitere Ausfertigung der Bescheinigung der unteren Bauaufsichtsbehörde übersenden.
Soll ein Bauvorhaben in Nutzung genommen werden, hat die Bauherrin oder der Bauherr der Bauaufsichtsbehörde mindestens zwei Wochen vorher die "Anzeige der beabsichtigten Aufnahme der Nutzung einer nicht verfahrensfreien baulichen Anlage (zu § 79 Abs. 2 LBO)" (Anlage 3) vorzulegen. Dieser Anzeige sind fallbezogen die dort aufgeführten Bescheinigungen/Bestätigungen beizufügen.
Der Erlass des Innenministeriums vom 17. April 2009 (Amtsbl. Schl.-H. S. 418), zuletzt geändert durch Verwaltungsvorschrift vom 6. Juli 2016 (Amtsbl. Schl.-H. S. 584), berichtigt durch Verwaltungsvorschrift vom 8. August 2016 (Amtsbl. Schl.-H. S. 747), wird hiermit aufgehoben.
Dieser Erlass tritt am 15. März 2018 in Kraft und mit Ablauf des 14. März 2023 außer Kraft.
| (nichtamtliches Verzeichnis) | Anlagen |
| Vordruck für die bauaufsichtlichen Verfahren | Anlage 1 |
| Erklärung der Aufstellerin oder des Aufstellers der bautechnischen Nachweise aus der Liste nach § 15 Abs. 1 Satz 1 Nr. 5 des Architekten- und Ingenieurkammergesetzes | Anlage 2 |
| Anzeige der beabsichtigten Aufnahme der Nutzung einer nicht verfahrensfreien baulichen Anlage (zu § 79 Abs. 2 LBO) | Anlage 3 |
| Stellungnahme der Gemeinde nach § 36 Baugesetzbuch (BauGB)/Erklärung im Rahmen der Genehmigungsfreistellung nach § 68 LBO | Anlage 4 |
| Vordruck für Feuerungsanlagen | Anlage 5 |
| Nachweis des Verbrennungsluftverbundes für raumluftabhängige Feuerstätten ? 35 kW nach Feuerungsverordnung | Anlage 6 |
| Bescheinigung über die Tauglichkeit und sichere Benutzbarkeit der Abgasanlagen nach § 79 Abs. 3 Satz 2 LBO | Anlage 7 |
| Baubeschreibung/Antrag auf Baugenehmigung für Anlagen zur Lagerung wassergefährdender Stoffe mit mehr als 10 m3 Behälterinhalt | Anlage 8 |
| Baugenehmigung | Anlage 9 |

![]() |
ENDE | ![]() |
(Stand: 21.03.2025)
Alle vollständigen Texte in der aktuellen Fassung im Jahresabonnement
Nutzungsgebühr: ab 105.- € netto
(derzeit ca. 7200 Titel s.Übersicht - keine Unterteilung in Fachbereiche)
Die Zugangskennung wird kurzfristig übermittelt
? Fragen ?
Abonnentenzugang/Volltextversion