zurück

.

Fahrzeug-Gleis-Wechselwirkung und Fahrzeugbegrenzungslinie Anhang J

Drehgestell und Laufwerk

J.1 Statische Versuche mit außergewöhnlichen im Betrieb auftretenden Beanspruchungen

Definition der aufgebrachten Lasten

Die aufgebrachten Lasten bestehen aus:

Vertikal- und Querkräfte

Die Vertikal- und Querkräfte werden unter Bezug auf eine Drehgestellnennlast (zum Beispiel für 20 t oder 22,5 t Radsatzlast) berechnet.

Um die maximale dynamische Beanspruchung zu berücksichtigen:

Wenn nur die vertikale Last durch Auswirkung von Tauchen simuliert werden soll, ist nur die Last 2 Fz auf die Drehpfanne aufzubringen.

Die auf die Drehpfanne aufzubringende Querkraft muss betragen:

Hinweis: Die angegebenen Querkräfte für Drehgestelle mit drei Radsätzen basieren auf der Lastverteilung, die bei den Fahrversuchen für die Zulassung des Drehgestelltyps 714 aufgezeichnet wurde. Für andere Drehgestelltypen ist die Lastverteilung anzuwenden, die bei den Fahrversuchen mit der jeweiligen Drehgestellbauart ermittelt werden.

Wankkräfte

Der Neigungskoeffizient a wird für einen Abstand zwischen den Gleitstücken von 1.700 mm (Standard-Drehgestelle mit zwei Radsätzen) als 0,3 angenommen.

Wenn der Abstand zwischen den Gleitstücken (2 bg) von 1.700 mm abweicht, muss (Anm.: inhaltlich i.O.. auch wenn in EN07 an dieser Stelle "sollte" steht; an entsprechender Stelle in einem ander Abs. (J.3) steht im übrigen auch in EN07 musss!) αfolgenden Wert haben:

Bremskräfte

Die Beanspruchungen durch Bremskräfte FB entsprechen 120 % der aus einer Schnellbremsung resultierenden Kräfte.

Bei dem zu prüfenden Drehgestell führen diese Bremskräfte FB zu:

Verwindungskräfte

Auf den Drehgestellrahmen wirkende Kräfte, wenn das Drehgestell mitsamt Federung der maximalen Gleisverwindung von 10o/oo ausgesetzt ist.

Versuchsdurchführung

Dehnungsmessstreifen und Rosetten werden an allen hoch belasteten Punkten des Drehgestellrahmens, insbesondere an Stellen mit Spannungskonzentrationen, angebracht. Diejenigen Stellen, wo die Dehnungsmessstreifen geklebt werden, müssen vorbestimmt werden z.B. mit Hilfe von Reißlack.

Der Versuch ist gemäß Bild 1 und Tabelle J5 (für Drehgestelle mit zwei Radsätzen) oder Bild 2 und Tabelle J6 (für Drehgestelle mit drei Radsätzen) durchzuführen.

Die Versuchslasten sind schrittweise aufzubringen. Bevor die volle Lastkonfiguration aufgebracht wird, sind Lasten aufzubringen, die 50 % und 75 % der Höchstlast ausmachen.

Zu erzielende Ergebnisse

Die Elastizitätsgrenze des Materials darf in keinem Lastfall überschritten werden.

Nach Entlastung darf zudem nirgends eine bleibende Verformung zurückbleiben.

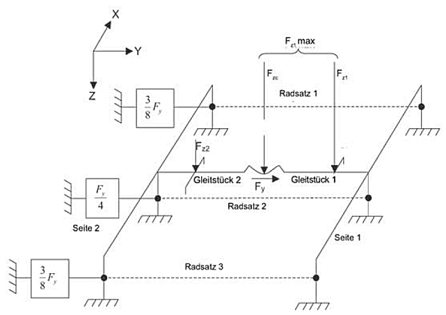
Statische Versuche mit außergewöhnlichen Betriebsbeanspruchungen - Drehgestelle mit zwei Radsätzen

Bild J1

Tabelle J5

Lastfall Lasten Gleisverwindung g+ Bremskräfte
Vertikal Quer
  Gleitstück 2 Fz2 Drehpfanne Fzc Gleitstück 1 Fz1 Fy    
1   2Fz        
2 0 (1-α) Fzmax αFz max   10o/oo  
3 0 (1-α) Fzmax αFz max Fy max    
4 αFz max (1-α) Fzmax 0 -Fy max    
5 0 1,2 Fz 0     FB

Statische Versuche mit außergewöhnlichen Betriebsbeanspruchungen - Drehgestelle mit drei Radsätzen

Bild J2

Tabelle 6:

Lastfall Lasten Gleisverwindung g+ Bremskräfte
Vertikal Quer
  Gleitstück 2 Fz2 Drehpfanne Fzc Gleitstück 1 Fz1 Fy    
1   2Fz        
2 0 (1-α) Fzmax αFz max   10o/oo  
3 0 (1-α) Fzmax αFz max Fy max    
4 αFz max (1-α) Fzmax 0 -Fy max    
5 0 1,2 Fz 0     FB

J.2 Statische Versuche mit normalen Betriebsbeanspruchungen

Definition der aufgebrachten Lasten

Die aufgebrachten Lasten bestehen aus: -

Vertikal- und Wankkräfte

Die Vertikalkräfte auf Drehpfanne und Gleitstücke werden unter Bezug auf eine Drehgestellnennlast berechnet. Sie richten sich nach:

Der Neigungskoeffizient a wird für einen Abstand zwischen den Gleitstücken von 1.700 mm (Standard-Drehgestelle mit zwei Radsätzen) als 0,2 angenommen.

Wenn der Abstand zwischen den Gleitstücken (2 bg) von 1.700 mm abweicht, muss (Anm.: inhaltlich i.O.. auch wenn in EN07 an dieser Stelle "sollte" steht; an entsprechender Stelle in einem ander Abs. (J.3) steht im übrigen auch in EN07 musss!) α folgenden Wert haben:

Der Tauchkoeffizient β, der das vertikale dynamische Verhalten des Drehgestells repräsentiert, ist als 0,3 anzunehmen (der Normalwert für Güterwagendrehgestelle).

Querkraft

Die Querkraft muss betragen:

Bremskräfte

Die Beanspruchungen durch Bremskräfte entsprechen 100 % der aus einer Schnellbremsung resultierenden Kräfte.

Bei dem zu prüfenden Drehgestell führen diese Bremskräfte FB zu:

Verwindungskräfte

Die Gleisverwindung mit Bezug auf den Radsatzabstand im Drehgestell ist als 5o/oo anzunehmen.

Diese Verwindung g+ ist entweder durch Bewegen der Auflager oder durch Aufbringung der entsprechend berechneten Reaktionskräfte zu simulieren.

Versuchsdurchführung

Dehnungsmessstreifen und Rosetten werden an allen hoch belasteten Punkten des Drehgestellrahmens, insbesondere an Stellen mit Spannungskonzentrationen, montiert.

Der Versuch besteht in der Aufbringung verschiedener Lastkonfigurationen auf den Drehgestellrahmen, die simulieren:

Die verschiedenen anzuwendenden Lastfälle sind in Bild 3 und Tabelle 7 (für Drehgestelle mit zwei Radsätzen) sowie Bild 4 und Tabelle 8 (für Drehgestelle mit drei Radsätzen) beschrieben.

Nach Aufbringung der ersten sieben Lastfälle ohne Simulation der Gleisverwindung sind vier weitere Versuche durchzuführen, wobei die Lastfälle 4, 5, 6 und 7 mit Überlagerung der Gleisverwindung (Wert, der für das Drehgestell mit Federung spezifiziert ist) zu wiederholen sind.

Für jeden dieser vier neuen Lastfälle sind die durch Gleisverwindung bedingten Lasten zuerst in einer, dann in der anderen Richtung aufzubringen.

Die Einleitung der Gleisverwindung darf die Summe der Vertikalkräfte nicht verändern.

Versuche mit Aufbringung der den Bremskräften entsprechenden Lasten sind durchzuführen, falls die Versuche gemäß Anhang A dies als notwendig erwiesen haben (Elastizitätsgrenze bei den dortigen Versuchen überschritten).

Zu erzielende Ergebnisse

An jeder Messstelle sind die Spannungen σ1... σn für jeden der oben definierten Lastfälle aufzuzeichnen.

Von diesen n Werten werden der kleinste Wert σmin. und der größte Wert σmax. genommen, um zu bestimmen:

σmean = (σmax+ σmin) / 2

Δσ= (σmax- σmin) / 2

Das Verhalten der Materialien einschließlich der Schweißverbindungen und anderer Verbindungsarten unter Ermüdungsbelastung sollten auf den aktuellen internationalen oder nationalen Normen beruhen, oder auf anderen, gleichwertigen Quellen, wie etwa dem ERRI B12 Ausschussbericht RPI7, wo solche Quellen zur Verfügung stehen.

Geeignete Daten müssen generell die folgenden Eigenschaften aufweisen:

eine hohe Überlebenswahrscheinlichkeit (d. h. vorzugsweise 97,5 %, mindestens aber 95 %);

Klassifizierung der Details gemäß Bauteil- oder Verbindungsgeometrie (einschließlich Spannungskonzentration);

Ableitung der Grenzwerte aus kleinen Mustern mit Hilfe einer Prüfmethode und einschlägiger Erfahrungen, um ihre Anwendbarkeit auf Bauteile in voller Größe zu gewährleisten.

Wenn die einzuhaltenden Spannungsgrenzen diejenigen sind, die in den Ermüdungsfestigkeitsdiagrammen im ERRI B12 Ausschussbericht RPI7 dargelegt sind, ist ein Überschreiten dieser Spannungsgrenzwerte um bis zu 20 % an einer begrenzten Anzahl von Messstellen zulässig, die dann während der Ermüdungsversuche mit besonderer Aufmerksamkeit zu beobachten sind. Wenn bei den Versuchen keine Ermüdungsanrisse feststellbar sind, werden die über dem Grenzwert liegenden Spannungen, die im statischen Versuch aufgezeichnet wurden, akzeptiert und das Drehgestell wird zugelassen.

Statische Versuche unter normalen Betriebsbeanspruchungen - Drehgestelle mit zwei Radsätzen

Bild J3

Tabelle J7

Lastfall Lasten  
Vertikal Quer Bremskräfte
Gleitstück 2 Fz2 Drehpfanne Fzc Gleitstück 1 Fz1 Fy  
1 0 Fz 0    
2 0 (1+β) Fz 0    
3 0 (1-β) Fz 0    
4 0 (1-α)(1+β) Fz α(1+β) Fz Fy  
5 α(1+β) Fz (1-α)(1+β) Fz 0 -Fy  
6 0 (1-α)(1-β) Fz α(1-β) Fz Fy  
7 α(1-β) Fz (1-α)(1-β) Fz 0 -Fy  
8 0 Fz 0   FB

Statische Versuche unter normalen Betriebsbeanspruchungen - Drehgestelle mit drei Radsätzen

Bild J4

Tabelle J8

Lastfall Lasten  
Vertikal Quer Bremskräfte
Gleitstück 2 Fz2 Drehpfanne Fzc Gleitstück 1 Fz1 Fy  
1 0 Fz 0    
2 0 (1+β) Fz 0    
3 0 (1-β) Fz 0    
4 0 (1-α)(1+β) Fz α(1+β) Fz Fy  
5 α(1+β) Fz (1-α)(1+β) Fz 0 -Fy  
6 0 (1-α)(1-β) Fz α(1-β) Fz Fy  
7 α(1-β) Fz (1-α)(1-β) Fz 0 -Fy  
8 0 Fz 0   FB

J.3 Ermüdungsversuche

Definition der aufgebrachten Lasten

Die aufgebrachten Lasten bestehen aus:

Vertikal- und Wankkräfte

Fz ist eine statische Kraft. Die durch den Koeffizienten a definierten Kräfte, werden als "quasistatisch" angesehen. Die durch den Koeffizienten βdefinierten Kräfte werden als "dynamisch" angesehen.

Der Wankkoeffizient α wird für einen Abstand zwischen den Gleitstücken von 1.700 mm (Standard-Drehgestelle mit zwei Radsätzen) als 0,2 angenommen. Wenn der Abstand zwischen den Gleitstücken (2 bg) von 1.700 mm abweicht, muss αfolgenden Wert haben:

Querkräfte

Die Querkräfte bestehen aus zwei Komponenten:

Bremskräfte

Die Beanspruchungen durch Bremskräfte entsprechen 100 % der aus einer Schnellbremsung resultierenden Kräfte. Bei dem zu prüfenden Drehgestell führen diese Bremskräfte FB zu:

Verwindungskräfte

Die Gleisverwindung bezogen auf den Radsatzabstand des Drehgestells wird mit 5o/oo angesetzt.

Versuchsdurchführung

Die Ermüdungsversuche bestehen aus einer Wiederholung von Folgen quasistatischer und dynamischer Beanspruchungen, wie sie bei Fahrt in Links- und Rechtsbögen auftreten.

Falls die in Anhang B festgelegten Versuche gezeigt haben, dass die durch Verwindungsbeanspruchung erzeugten Spannungen nur in beschränkten Bereichen des Drehgestellrahmens auftreten, in denen die durch Quer- und Vertikalkräfte hervorgerufenen Spannungen nur gering sind, ist der Ermüdungsversuch in einer ersten Phase nur mit den Quer- und Vertikalkräften durchzuführen.

In diesem Fall sind die quasistatischen und dynamischen Vertikal- und Querräfte in der zeitlichen Abfolge entsprechend den Vorgaben der Diagramme in den Bildern 3, 5, 6 und 7 (für Drehgestelle mit zwei Radsätzen) oder den Bildern 5, 6, 7 und 8 (für Drehgestelle mit drei Radsätzen) aufzubringen.

In jedem Intervall, welches einem Links- oder einem Rechtsbogen entspricht, muss die Anzahl der dynamischen Lastspiele in Vertikal- und Querrichtung 20 betragen.

Die dynamischen Änderungen der Vertikal- und Querkräfte müssen mit derselben Frequenz und ohne Phasenverschiebung entsprechend den Diagrammen aufgebracht werden. Die Anzahl der nachgebildeten Links- und Rechtsbögen muss gleich sein.

In der ersten Stufe sind insgesamt 6 × 106 Lastwechsel aufzubringen.

Die zweite Stufe enthält 2 × 106 Lastwechsel, wobei die statischen Kräfte denen der ersten Stufe entsprechen und die quasistatischen und dynamischen Kräfte um den Faktor 1,2 erhöht werden.

Die dritte Stufe ist gleich wie die zweite und enthält ebenfalls 2 × 106 Lastwechsel. Der Faktor 1,2 ist jedoch durch 1,4 zu ersetzen.

Versuche mit Aufbringung der den Bremskräften entsprechenden Lasten sind durchzuführen, falls die Versuche gemäß Abschnitt 2 dies als notwendig erwiesen haben (Elastizitätsgrenze bei den dortigen Versuchen überschritten).

Verwindungsbeanspruchungen

Insgesamt sind 106 wechselnde Verwindungslastspiele aufzubringen:

Für die Festlegung der Verwindungsvuche sind die Ergebnisse der statischen Versuche und die Möglichkeiten der vorhandenen Versuchseinrichtungen zu berücksichtigen:

Zeigt sich während der statischen Versuche, dass der Drehgestellrahmen auf die Verwindungsbeanspruchung keine Reaktionen zeigt, so ist die Verwindung nicht zu berücksichtigen.

Zeigt sich bei den statischen Versuchen gemäß Anhang B, dass sich die Auswirkungen der Verwindungsbeanspruchung grundsätzlich von den der Beanspruchung durch Vertikal- und Querkräfte unterscheiden (z.B. entstehen die Spannungen der beiden Beanspruchungsarten an unterschiedlichen Stellen des Rahmens), so können die 6 × 105 plus zweimal 2 × 105 Lastspiele zur Verwindungsbeanspruchung unabhängig von den anderen Beanspruchungsarten aufgebracht werden. Im umgekehrten Fall ist der Versuchsaufbau so anzupassen, dass die Quer-, Vertikal- und Verwindungskräfte gleichzeitig aufgebracht werden können.

Die zur Simulation der Verwindungsbeanspruchung aufgebrachten Lasten müssen den Zustand bei aktiver Federung mit Dämpfungseinrichtungen nachbilden.

Zu erzielende Ergebnisse

Nach der ersten Versuchsstufe mit 6 x 106 Lastspielen dürfen keine Risse festgestellt werden. Dieses Ergebnis ist mittels zerstörungsfreier Prüfung nach jeweils 1 × 106 Lastspielen nachzuweisen (Magnetpulverprüfung, Farbeindringverfahren).

Am Ende der zweiten Beanspruchungsstufe werden kleine Risse zugelassen, die, falls sie im Betrieb entstehen würden, keine unmittelbare Instandsetzung erforderlich machen würden.

Die Entwicklung der Spannungen an den Stellen mit den höchsten Spannungen im statischen Versuch (Abschnitt 6.1.1.2.1.3) und insbesondere diejenigen, wo Spannungsüberschreitungen gemäß Abschnitt 6.1.1.2.1.3 toleriert wurden, wird bei den Ermüdungsversuchen mittels Dehnungsmessstreifen überwacht.

Ermüdungsversuche an Drehgestellen mit zwei Radsätzen

Siehe Bild J3.

Auf die Drehpfanne wirkende Kraft

Bild J5

Auf die Gleitstücke wirkende Kräfte

Bild J6

Auf die Drehpfanne wirkende Querkraft

Bild J7

Ermüdungsversuche - Drehgestelle mit drei Radsätzen

Bild J8

Auf die Drehpfanne wirkende Kräfte

Siehe Bild J5.

Auf die Gleitstücke wirkende Kräfte

Siehe Bild J6.

Auf die Drehpfanne wirkende Querkraft

Siehe Bild J7

Fy = ± [0,133 (Fz+ m+ g) + 0,133 (Fz+ m+ g)]

J.4 Benutzte Formelzeichen und Definition der Kräfte

Qo = senkrechte statische Radkraft für einen beladenen Wagen (kN)

m+ = Drehgestellmasse (t)

Fz = Auf das Drehgestell eines beladenen Wagens wirkende senkrechte statische Kraft (kN)

Fz = 4Qo- m+ g (für Drehgestelle mit zwei Radsätzen)

Fz = 6Qo- m+ g (für Drehgestelle mit drei Radsätzen)

g = Erdbeschleunigung (9,8 m/s2)

Fy = Querkraft (kN)

FB = Bremskräfte (kN)

g+ = Auf die Drehgestellradsätze aufzubringende Gleisverwindung (o/oo)

α = Koeffizient, der mit der Auswirkung des Wankens in Verbindung steht

Der Koeffizient ist eine Funktion des Abstands 2bg

β = Koeffizient, der mit der Auswirkung des Tauchens in Verbindung steht

2bg = Abstand der Gleitstücke (mm)

J.5 Übersicht/Richtlinien

Die auf dem Prüfstand durchgeführten Versuche sind in drei Gruppen unterteilt:

Gemeinsame Bedingungen für Prüfstandversuche

Der Versuchsaufbau hat so zu erfolgen, dass die Kräfte genau an jenen Stellen eingeleitet und verteilt werden, wo sie im Betrieb auftreten. Dabei sind die Spiele und Freiheitsgrade, die durch die Federung und die Verbindungselemente des Drehgestells zum Wagenkasten Ermöglicht werden, abzubilden.

Die Versuche können mit oder ohne die Federung durchgeführt werden.

Die Dämpfer der Federung sind außer Betrieb zu setzen, um Reibung auszuschalten.

Bei der Festlegung, auf welche Art die Kräfte und die resultierenden Reaktionskräfte auf den Drehgestellrahmen aufgebracht werden, sind die Konstruktionsmerkmale des Drehgestells zu berücksichtigen. Die nachstehende Skizze zeigt ein Beispiel für die Aufbringung von Kräften auf Drehgestelle mit zwei Radsätzen.

Die aufzubringenden Kräfte sind in den Anhängen A, B und C dargestellt.

.

Fahrzeug-Fahrweg-Wechselwirkung und Fahrzeugbegrenzungslinie Anhang K


Radsatz

K.1 Montage der Komponenten

K.1.1 Allgemeines

Vor dem Zusammenbau müssen alle Elemente eines Radsatzes die geometrischen Anforderungen der einschlägigen Dokumente einhalten. Rad und Radsatzwelle müssen für den Zusammenbau bereit sein.

Es ist zulässig, die Elemente, die einen Radsatz bilden, entweder durch Schrumpfsitz oder Presssitz zu montieren. Radsatzlager müssen gemäß den Anweisungen des Herstellers am Radsatz montiert werden.

Die statische Unwucht der beiden Räder eines Radsatzes muss sich in derselben diametralen Ebene und auf derselben Seite der Radsatzwelle befinden.

K.1.2 Übermaß zwischen Radsitz auf der Radsatzwelle und Radnabenbohrung

Wenn keine besondere Anforderung an das Pressübermaß vorgegeben ist, so beträgt das Übermaß "j" in mm für:

K.1.3 Aufpressdiagramm

Für den Presssitz gibt die Kraft-Weg-Kurve die Sicherheit, dass die gefügten Flächen nicht beschädigt wurden und dass das spezifizierte Übermaß vorhanden war.

Der Bereich der Pressendkraft, richtet sich nach der in K.2.1 definierten Kraft F und beträgt:

0,85 F < Pressendkraft < 1,45 F

K.2 Radsatzeigenschaften

K.2.1 Mechanischer Widerstand der Baugruppen

Radsätze sind zum Nachweis eines korrekten Radsitzes mittels einer Presse zu prüfen, die über Instrumente zur Aufzeichnung der Kräfte verfügt. Eine Prüfkraft F ist hierbei schrittweise und gleichmäßig auf das Rad aufzubringen und während 30 s beizubehalten. Wenn keine spezielle Anforderung vom Radkonstrukteur vorgegeben wird, beträgt der Wert F:

F = 4 x 10-3 dm MN

wo 0,8 dm < L < 1,1 dm

und dm der mittlere Durchmesser des Radsitzes (mm), L die Länge der Radnabe (mm) ist.

Zu erzielende Ergebnisse.

Keine Verschiebung des Rades relativ zur Radsatzwelle nach Aufbringen der Prüfkraft.

K.3 Masse und Toleranzen

K.3.1 Allgemeines

Die Maße des Radsatzes müssen den Konstruktionszeichnungen entsprechen. Die Maß- und Geometrietoleranzen, die beim Zusammenbau der verschiedenen Bauteile am Radsatz anzuwenden sind, sind in den folgenden Unterabschnitten aufgeführt.

Die Messungen müssen am unbelasteten Radsatz erfolgen.

K.3.2 Eigenschaften der montierten Räder

Bild K6

Tabelle K18

Beschreibung Symbol Toleranz mm
    ≤ 120km/h > 120km/h
Abstand der inneren Radkranz- bzw. Radreifenstirnflächen1 a1 + 22

0

Abstand zwischen Radinnenfläche und Bezugsebene (Anlagefläche des Lagerdichtringes) c - c1 oder c1- c ≤ 1
Differenz im Laufkreisdurchmesser d - d1 oder d1- d ≤ 0,5 ≤ 0,3
Rundlaufabweichung auf der Lauffläche h ≤ 0,5 ≤ 0,3
Planlaufabweichung der Innenfläche der Räder1 g ≤ 0,8 ≤ 0,5
1) gemessen 60 mm unter der Oberkante des Spurkranzes.

2) Die Toleranzen können bei speziellen Radsatzkonstruktionen geändert werden.

K.3.3 Überstand des Rades

Die Längen des Radsitzes und der Radnabe müssen so gewählt werden, dass die Radnabe leicht über den Radsitz hinausragt, insbesondere Richtung Radsatzwellenschaft. Dieser Überstand muss zwischen 2 und 7 mm liegen.

K.4 Korrosionsschutz

Radsatzkomponenten sind entsprechend den Anforderungen ihrer Konstruktionsspezifikation zu schützen.

Hohlräume, die durch Überstand der Radnabe über den Radsitz entstehen, dürfen mit einem Korrosionsschutzmittel gefüllt werden.

.

Fahrzeug-Gleis-Wechselwirkung und Fahrzeugbegrenzungslinie Anhang L 09

(Änderungen gültig ab dem 1. Juli 2009 gemäß Art. 4 der Entscheidung2009/107/EG)

Räder

L.1 Entwurfsbewertung

L.1.1 Allgemeines

Dieses Kapitel beschreibt die Methoden zur Bewertung, ob eine Radkonstruktion in der Lage ist, die Leistungsanforderungen zu erfüllen. Es gibt drei Hauptaspekte für die Leistung eines Rades, die jeweils verschiedene Ziele haben:

L.1.2 Zu bewertende Konstruktionsparameter

L.1.2.1 Parameter für die geometrische Kompatibilität

Es gibt drei Klassen von Parametern, die für Funktions-, Montage- oder Instandhaltungszwecke relevant sind.

L.1.2.2 Parameter für die thermomechanische Kompatibilität

Räder müssen die Fähigkeit besitzen, die Wärmeenergie zu absorbieren, die während des Betriebs entsteht. Die Menge an erzeugter Energie hängt ab von:

L.1.2.3 Parameter für die mechanische Bewertung

L.1.3 Bewertung der geometrischen Kompatibilität

Die Radzeichnung muss mit den Anforderungen im Einklang stehen, die im vorstehenden Abschnitt "Parameter für di geometrische Kompatibilität" definiert sind.

L.1.4 Bewertung der thermomechanischen Kompatibilität

L.1.4.1 Allgemeines Verfahren

Alle neuen Radkonstruktionen sind vollständig mit für die Anwendung geeigneten Methoden zu bewerten, um nachzuweisen, dass sie die in diesem Anhang definierten Anforderungen erfüllen.

Diese Bewertung muss aus drei Schritten bestehen. Wenn Schritt 1 erfolgreich ausgeführt ist, ist keine weitere Bewertung notwendig. Wenn Schritt 1 fehlschlägt, dann muss Schritt 2 erfolgen. Wenn Schritt 2 erfolgreich ausgeführt ist, ist keine weitere Bewertung notwendig. Schritt 3 bewertet einen geringfügigen Fehler aus Schritt 1 und 2. Wenn Schritt 3 fehlschlägt, muss das Rad als nicht mit den Anforderungen übereinstimmend betrachtet werden. In jedem Schritt sind Tests an einem Rad mit neuem Radkranz (Lauffläche auf Nenndurchmesser) und verschlissenem Radkranz (Laufflächendurchmesser an der Verschleißgrenze) durchzuführen.

In jedem Fall muss das für den Test ausgewählte Rad die ungünstigste Radkörpergeometrie für das thermomechanische Verhalten haben; eine als gültig geprüfte numerische Simulation muss die Auswahl bestätigen. Wenn der Test des Rades für den ungünstigsten Fall nicht möglich ist, müssen die Ergebnisse mit derselben numerischen Simulation in Richtung des ungünstigsten Falls extrapoliert werden.

L.1.4.2 Erster Schritt: Bremsprüfstandversuch

L.1.4.2.1 Versuchsmethode

Die in diesem Versuch 45 Minuten lang aufzubringende Leistung entspricht 1,2Pa.

Pa = m.g.Va Neigung + m γ va

Wobei

m = Fahrzeuggewicht auf der Schiene pro Rad (kg)
g = Schwerebeschleunigung (m.s-2)
Neigung = mittlere Neigung der Strecke (Neigung ino/oo/1.000)
γ = Verzögerung des Zuges (m/s2)
Va = Zuggeschwindigkeit (m/s)

Werden Vollräder an Wagen montiert, die zu 100 % laufflächengebremst sind, sind die folgenden Parameter zu berücksichtigen:

Raddurchmesser
in (mm)
1.000 bis 920
und
920 bis 840
840 bis 760 760 bis 680
Leistung 50 kW 42,5 kW 38 kW
Anwendungsdauer 45 min 45 min 45 min
Laufgeschwindigkeit 60 km/h 60 km/h 60 km/h

Hinweis: Für bestimmte Arten des Güterverkehrs können die Werte für die Leistung und/oder Anwendungsdauer und/ oder Laufgeschwindigkeit und/oder Achslasten und/oder Raddurchmesser geändert werden, um das thermomechanische Verhalten dieser Räder im Zusammenhang mit einer begrenzten Nutzung zu prüfen.

L.1.4.2.2 Entscheidungskriterien

Drei Kriterien müssen gleichzeitig für das neue und das verschlissene Rad erfüllt sein.

Für das neue Rad:

  1. maximale Verwerfung des Radkranzes während der Bremsung + 3/-1 mm.
  2. Eigenspannungen im Radkranz nach dem Abkühlen:
  3. maximale Verwerfung des Radkranzes nach dem Abkühlen + 1,5/-0,5 mm.

Die Verwerfung wird als positiv betrachtet, wenn der Abstand zwischen den inneren Radkranzstirnflächen zunimmt.

Für das verschlissene Rad:

  1. maximale Verwerfung des Radkranzes während der Bremsung + 3/-1mm.
  2. Eigenspannungen im Radkranz nach dem Abkühlen:
  3. maximale Verwerfung des Radkranzes nach dem Abkühlen + 1,5/-0,5mm.

Der Wert Σr ist entsprechend den Stahlgüteanforderungen des Radkranzes festzulegen. Für die Stahlgüten ER6 und ER7 nach EN13262, Σr = 200 N/mm2.

Für andere Stahlgüten muss ein anderer Wert für Σr vereinbart werden.

L.1.4.3 Zweiter Schritt: Radbruch-Prüfstandversuch

L.1.4.3.1 Allgemeines

Dieser zweite Schritt muss dann durchgeführt werden, wenn die im ersten Schritt gemessenen Eigenspannungen über den Entscheidungskriterien liegen.

L.1.4.3.2 Verfahren des Radbruch-Prüfstandversuchs

Das Verfahren des Radbruch-Prüfstandversuchs muss mit Annex A.3 der EN13979-1 übereinstimmen.

L.1.4.3.3 Entscheidungskriterien

Das geprüfte Rad muss bruchfrei bleiben.

L.1.4.4 Dritter Schritt: Praktischer Bremsversuch

L.1.4.4.1 Allgemeines

Dieser dritte Schritt muss durchgeführt werden, wenn ein Ergebnis aus dem ersten Schritt über einem Entscheidungskriterium liegt und wenn das Rad nach dem zweiten Schritt nicht abgelehnt wurde.

L.1.4.4.2 Versuchsmethode

Die in diesem Versuch aufzubringende Leistung entspricht der aus Schritt 1 dieser Bewertung.

L.1.4.4.3 Entscheidungskriterien

Drei Kriterien müssen gleichzeitig für das neue und das verschlissene Rad erfüllt sein.

Für das neue Rad:

  1. maximale Verwerfung des Radkranzes während der Bremsung + 3/-1mm.
  2. Eigenspannungen im Radkranz nach dem Abkühlen:
  3. maximale Verwerfung des Radkranzes nach dem Abkühlen + 1,5/-0,5mm.

Für das verschlissene Rad:

  1. maximale Verwerfung des Radkranzes während der Bremsung + 3/-1mm
  2. Eigenspannungen im Radkranz nach dem Abkühlen:
  3. maximale Verwerfung des Radkranzes nach dem Abkühlen + 1,5/-0,5mm.

Der Wert Σr ist entsprechend den Stahlgüteanforderungen des Radkranzes festzulegen.

Für die Stahlgüten ER6 und ER7 nach EN13262, Σr = 200 N/mm2.

Für andere Stahlgüten muss ein anderer Wert für Σr vereinbart werden

L.1.5 Bewertung der mechanischen Kompatibilität

L.1.5.1 Allgemeines Verfahren

Diese Bewertung muss aus zwei Schritten bestehen. Wenn Schritt 1 erfolgreich ausgeführt ist, ist keine weitere Bewertung notwendig. Wenn Schritt 1 fehlschlägt, muss Schritt 2 durchgeführt werden. Wenn Schritt 2 fehlschlägt, dann muss das Rad als nicht mit den Anforderungen übereinstimmend betrachtet werden. Zweck der Bewertung ist die Prüfung, dass während der gesamten Lebensdauer des Rades keine Ermüdungsrisse im Radkörper auftreten.

Die ungünstigste Radgeometrie für das mechanische Verhalten muss betrachtet werden. Wenn der Prüfversuch nicht mit der ungünstigste Radgeometrie durchgeführt werden kann, müssen die Testparameter in Richtung ungünstigster Fall mittels validierter numerischer Simulation extrapoliert werden.

L.1.5.2 Erster Schritt: Berechnung

L.1.5.2.1 Aufgebrachte Kräfte

Die eingesetzten Kräfte müssen den Kraftwert

P als Basis benutzen. P ist die Hälfte der radsatzbezogenen Vertikalkraft auf der Schiene.

Es sind drei Lastfälle zu betrachten (siehe Bild L1):

Bild L1

L.1.5.2.2 Berechnungsverfahren

Um die Spannungen im Rad zu berechnen, muss ein validiertes Berechnungsprogramm nach der Finite-Elemente-Methode eingesetzt werden.

L.1.5.2.3 Entscheidungskriterien

Die Größe der dynamischen Spannungen Da muss an allen Punkten des Radkörpers niedriger sein als die zulässige Spannung.

Zulässig sind folgende Größen für die dynamischen Spannungen A:

L.1.5.3 Zweiter Schritt: Prüfstandversuch

L.1.5.3.1 Allgemeines

Dieser zweite Schritt muss durchgeführt werden, wenn das Ergebnis im ersten Schritt über einem Entscheidungskriterium liegt.

L.1.5.3.2 Definition des Prüfstandbeladungs- und Versuchsverfahrens

Sie sind zwischen dem Radkonstrukteur und der benannten Stelle zu vereinbaren.

L.1.5.3.3 Entscheidungskriterien

Es sind vier Räder zu prüfen.

Nach der Prüfung dürfen keine Ermüdungsrisse ≥ 1 mm vorhanden sein.

L.2 Produktbewertung

L.2.1 Verschleißrelevante mechanische Eigenschaften

L.2.1.1 Zugversucheigenschaften

Die Radkranz- und Radstegeigenschaften müssen wie in Tabelle L1 aufgeführt sein.

Tabelle L1

Stahlgüte Radkranz Radsteg
ReH (N/mm2)1 Rm (N/mm2) A5% Rm Verminderung ≥ (N/mm2)2 A5%
ER6 ≥ 500 780/900 ≥ 15 ≥ 100 ≥ 16
ER7 ≥ 520 820/940 ≥ 14 ≥ 110 ≥ 16
ER8 ≥ 540 860/980 ≥ 13 ≥ 120 ≥ 16
1) Wenn keine charakteristische Fließgrenze vorhanden ist, ist die Dehngrenze Rp0,2 zu ermitteln.

2) Verringerung der Zugfestigkeit des Steges im Vergleich zur Zugfestigkeit des Spurkranzes an demselben Rad.

Die Probenlage ist in Bild L2 dargestellt.

Bild L2 Probenlage

Legende

1 Zugversuchprobe

2 Zugversuchprobe

3 Kerbschlagprobe

4 Verschleißgrenzendurchmesser

5 Kerbe

L.2.1.2 Härteeigenschaften im Radkranz

Die gesamte Verschleißzone des Radkranzes muss eine Brinell-Mindesthärte aufweisen, deren Wert bei jeder Messung ≥ der Werte in Tabelle L3 sein muss. Diese Werte müssen bis zu einer maximalen Tiefe von 35 mm unter der Lauffläche erzielt werden, selbst wenn die Verschleißtiefe höher ist als 35 mm.

Die Härtewerte im Übergang zwischen Radkranz und Radsteg müssen mindestens 10 Punkte niedriger sein als die an der Verschleißgrenze.

Tabelle L3

Stahlgüte Mindesthärte nach Brinell
ER6 225
ER7 235
ER8 245

L.2.1.3 Homogenität der Wärmebehandlung

Die am Radkranz gemessenen Härtewerte müssen innerhalb eines Bereichs von 30 HB liegen.

L.2.2 Sicherheitsrelevante mechanische Eigenschaften

L.2.2.1 Kerbschlagbiegeversuch

Es müssen zwei Gruppen von Kerbschlagbiegeversuchen durchgeführt werden: eine Gruppe mit Proben bei + 20 °C, eine Gruppe mit Proben bei - 20 °C. In jeder Gruppe müssen drei Proben getestet werden (in Bild L2 als Probe 3 gekennzeichnet). Bild 4 gibt die zu erreichenden Werte wieder. Die Markierung der Kerbschlagproben muss eine Identifizierung der parallel zum Schnitt A-a liegenden Längsflächen ermöglichen. Die Proben sind gemäß EN 10045-1 anzufertigen. Die Achse des Kerbgrundes muss parallel zum Schnitt A-a in Bild L1 verlaufen. Bei + 20 °C sind Proben mit U-Kerbe zu verwenden. Bei - 20 °C sind Proben mit V-Kerbe zu verwenden.

Tabelle L4

Stahlgüte KU (in Joule) bei + 20 °C KV (in Joule) bei - 20 °C
  Durchschnittswerte Mindestwerte Durchschnittswerte Mindestwerte
ER6 17 12 12 8
ER7 17 12 10 7
ER8 17 12 10 5

L.2.2.2 Zähigkeitseigenschaften des Radkranzes

Diese Eigenschaft muss nur bei laufflächengebremsten Rädern (Betriebs- oder Feststellbremse) geprüft zu werden. Tabelle L5 zeigt die zu erreichenden Mindestwerte.

Tabelle L5

Stahlgüte Durchschnittswerte (mit 6 Proben) EinzelprobeMindestwerte
  N/mm2 √m N/mm2 √m
ER6 100 80
ER7 80 70
ER8 70 60

L.2.3 Werkstoffreinheit

L.2.3.1 Mikrografische Reinheit

Die Werkstoffreinheit ist durch mikrografische Untersuchung (ISO 4967, Methode A) zu ermitteln. Die Lage, aus der die Proben zu entnehmen sind, ist in Bild L3 gezeigt.

Bild L.3

Die zu erreichenden Werte sind in Tabelle L6 aufgeführt.

Tabelle L6

Art der Einschlüsse Dickserie (Maximum) Dünnserie (Minimum)
a (Schwefel) 1,5 2
B (Aluminat) 1,5 2
C (Silikat) 1,5 2
D (Globulares Oxid) 1,5 2
B + C + D 3 4

L.2.3.2 Interne Fehlerfreiheit

Die interne Fehlerfreiheit aller Räder ist durch eine automatische Ultraschallprüfung zu ermitteln. Standardfehler sind Flachbodenbohrungen mit unterschiedlichen Durchmessern.

Der Radkranz darf keine inneren Fehler aufweisen, die Echogrößenordnungen erzeugen, welche gleich oder höher sind als diejenigen bei einem in gleicher Tiefe sitzenden Standardfehler. Der Durchmesser dieses Standardfehlers beträgt 3 mm.

Bei der axialen Prüfung darf keine Schwächung des Rückwandechos um mehr als 4 dB auftreten.

L.2.4 Oberflächenbeschaffenheit

L.2.4.1 Zu erzielende Merkmale

Je nach Einsatzzweck können die Räder ganz oder teilweise maschinell bearbeitet sein. Ihre Oberfläche darf keine außer den hier festgelegten Riefen aufweisen.

Die Teile, die nicht maschinell bearbeitet werden, sind durch Strahlen auf einen Mittenrauhwert von Ra < 25 µm zu bringen und übergangslos an die maschinell bearbeiteten Flächen anzupassen.

Die Mittenrauhwerte (Ra) für "fertige" oder "montagefertige" Räder sind in Tabelle L8 angegeben.

Tabelle L8

Radbereich Lieferzustand Mittenrauhwert Ra (µm)
Bohrung Fertigbearbeitet ≤ 12,5
  Montagefertig1 0,8 bis 3,2
Radsteg und Nabe Fertigbearbeitet2 ≤ 12,5
Lauffläche Fertigbearbeitet ≤ 12,53
Radkranzstirnflächen Fertigbearbeitet ≤ 12,53
1) Wenn das Rad auf eine Hohlwelle montiert werden soll, können für die Ultraschallprüfung im Betrieb andere Werte erforderlich sein.

2) Falls so festgelegt, kann dieser Teil des Rades unbearbeitet bleiben, sofern die in der Tabelle genannten Toleranzen eingehalten werden.

3) ≤ 6,3 wenn für einen Standardfehler von 2 mm gefordert.

L.2.5 Fehlerfreiheit der Oberfläche

Die Fehlerfreiheit der Oberfläche des Radsteges muss durch eine Magnetpulverprüfung oder ein alternatives Verfahren mit mindestens gleicher Empfindlichkeit nachgewiesen werden. Der Grenzfehler muss bei maschinell bearbeitetem Radkörper gleich 2 mm sein.

L.2.6 Geometrische Toleranzen

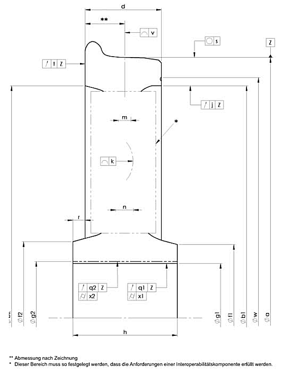
Die Geometrie und Abmessungen der Räder müssen in einer Zeichnung definiert sein. Die geometrischen Toleranzen müssen den Werten in Tabelle L9 entsprechen. Die Bedeutung der benutzten Symbole ist in Bild L4 definiert.

Bild L4 Symbole

Tabelle L9

Toleranzen (mm)
Bezeichnung Symbole (siehe Bild L4) Werte
  Maße Geometrisch1 Unbearbeitet Bearbeitet
Radkranz Außendurchmesser a     0/+4
Innendurchmesser (außen) b1     0/-4
Innendurchmesser (innen) b2   0/-6 0/-4
Radkranzbreite d     ± 1
Laufflächenprofil5   v   ≤ 0,5
Kreisformabweichung der Lauffläche   s   ≤ 0,2
Planlaufabweichung   t   ≤ 0,3
Rundlaufabweichung Spannrand   j   ≤ 0,2
Außendurchmesser der Grenzmaßrille (d. h. Verschleißlinie) w     0/+2
Nabe Außendurchmesser (außen) f1   0/+10 0/+5
Außendurchmesser (innen) t2   0/+10 0/+5
Innendurchmesser der Bohrung:        
"fertigbearbeitet" g1     0/-2
"montagefertig" g2   Siehe Annex K oder in Übereinstimmung mit der Zeichnung
Zylindrizität des Innendurchmessers der Bohrung:        
-"fertigbearbeitet"   x1   ≤ 0,2
-"montagefertig"   x2   ≤ 0,024
Nabenlänge h     0/+2
Nabe/Rad-Überstand r     0/+2
Rundlaufabweichung der Bohrung:        
-"fertigbearbeitet"   q1   ≤ 0,2
-"montagefertig"   q2   ≤ 0,1
Rad-körper Steglage im Übergang zu Radkranz und Nabe   k ≤ 8 ≤ 8
Stegdicke im Übergang zum Radkranz m   +8/0 +5/0
Stegdicke im Übergang zur Nabe n   +10/0 +5/0
1) Siehe ISO 1101

4) Eine leichte Konizität innerhalb der erlaubten Toleranzen muss so liegen, dass sich der "größere" Durchmesser bei Montage auf der Radsatzwelleneintrittsseite der Bohrung befindet.

5) Von der Oberkante des Spurkranzes bis zur äußeren Fase.

L.2.7 Statische Unwucht

Die maximale statische Unwucht eines fertigen Rades im Lieferzustand ist in Tabelle L10 definiert.

Die Mittel und Methoden zur Messung sind zwischen dem Kunden und dem Hersteller festzulegen.

Tabelle L10

Für Fahrzeuge mit Geschwindigkeit v km/h Statische Unwucht
g. m
Symbol
ν ≤ 120 ≤ 125 E3
120 < ν ≤ 200 ≤ 75 E2

L.2.8 Korrosionsschutz

Korrosionsschutz muss entsprechend der Spezifikation der Radkonstruktion angebracht werden.


weiter .

umwelt-online - Demo-Version


(Stand: 03.06.2025)

Alle vollständigen Texte in der aktuellen Fassung im Jahresabonnement
Nutzungsgebühr: ab 105.- € netto

(derzeit ca. 7200 Titel s.Übersicht - keine Unterteilung in Fachbereiche)

Preise & Bestellung

Die Zugangskennung wird kurzfristig übermittelt

? Fragen ?
Abonnentenzugang/Volltextversion