Für einen individuellen Ausdruck passen Sie bitte die
Einstellungen in der Druckvorschau Ihres Browsers an.
Regelwerk

TRBS 3151/TRGS 751 - Vermeidung von Brand-, Explosions- und Druckgefährdungen an Tankstellen und Gasfüllanlagen zur Befüllung von Landfahrzeugen
Technische Regeln für Betriebssicherheit/Gefahrstoffe (TRBS/TRGS)

Vom 10. Oktober 2019
Ausgabe September 2019
(GMBl. Nr. 62/63 vom 28.11.2019 S. 1242; 07.09.2020 S. 807 20; 10.02.2022 S. 183 22; 26.03.2024 S. 242,aufgehoben)



Archiv TRBS 3151/TRGS 751 2015 2012 Zur aktuellen Fassung =>
Textvergleich 2015/2019

(vgl. auch:
BGR 147 / DGUV Regel 108-002 - Sicherheit und Gesundheitsschutz bei der Arbeit an Tankstellen

DGUV Information 205-029 - Umgang mit Acetylenflaschen im Brandeinsatz
DGUV Information 205-030 - Umgang mit ortsbeweglichen Flüssiggasflaschen im Brandeinsatz)

Die Technischen Regeln für Betriebssicherheit (TRBS)/Gefahrstoffe (TRGS) geben den Stand der Technik, Arbeitsmedizin und Arbeitshygiene sowie sonstige gesicherte arbeitswissenschaftliche Erkenntnisse für die Bereitstellung und Benutzung von Arbeitsmitteln sowie für den Betrieb überwachungsbedürftiger Anlagen bzw. für Tätigkeiten mit Gefahrstoffen wieder.

Sie werden vom Ausschuss für Betriebssicherheit (ABS) und vom Ausschuss für Gefahrstoffe (AGS) ermittelt bzw. angepasst und vom Bundesministerium für Arbeit und Soziales im Gemeinsamen Ministerialblatt bekannt gegeben.

Diese TRBS/TRGS konkretisiert im Rahmen des Anwendungsbereichs die Anforderungen der Betriebssicherheitsverordnung und der Gefahrstoffverordnung. Bei Einhaltung der Technischen Regel kann der Arbeitgeber insoweit davon ausgehen, dass die entsprechenden Anforderungen der Verordnungen erfüllt sind. Wählt der Arbeitgeber eine andere Lösung, muss er damit mindestens die gleiche Sicherheit und den gleichen Gesundheitsschutz für die Beschäftigten erreichen.

1 Anwendungsbereich 22

(1) Diese Technische Regel enthält Anforderungen an Montage, Installation und Betrieb von

  1. Ortsbeweglichen und ortsfesten Gasfüllanlagen im Sinne von § 18 Absatz 1 Nummer 3 BetrSichV
  2. Tankstellen im Sinne von § 18 Absatz 1 Nummer 6 BetrSichV sowie
  3. der Kombination einer Tankstelle mit einer oder mehreren Gasfüllanlagen (Betankungsanlage)

für Landfahrzeuge. Die beschriebenen Maßnahmen dienen dem Schutz Beschäftigter und anderer Personen vor Druck-, Brand- und Explosionsgefährdungen.

(2) Diese Technische Regel behandelt dabei auch

  1. die möglichen Gefährdungen, die sich aus der Arbeitsumgebung der unter Absatz 1 Nummern 1 und 2 genannten Anlagen und durch Wechselwirkungen mit anderen Arbeitsmitteln, insbesondere den überwachungsbedürftigen Anlagen, die in einem räumlichen oder betriebstechnischen Zusammenhang mit der beantragten Anlage verwendet werden, und
  2. die sich aus der Zusammenarbeit verschiedener Arbeitgeber ergebenden Maßnahmen nach § 13 BetrSichV

(3) An Gasfüllanlagen für Flüssigerdgas (LNG) werden in der Regel mehr als 3 t Flüssigerdgas in oberirdischen Behältern gelagert, daher enthält diese Technische Regel keine Anforderungen an Lagerbehälter für Flüssigerdgas mit einer Lagermenge kleiner 3 t. Aus brandschutztechnischen Gründen ist es nicht möglich, derartig große Lagerbehälter mit anderen Gasfüllanlagen oder Tankstellen in räumlicher Nähe zu betreiben. Die grundlegenden Anforderungen dieser TRBS/TRGS gelten gleichermaßen auch für Gasfüllanlagen für Flüssigerdgas, sofern nicht anderweitig festgelegt. Die speziellen Anforderungen an die Lagerung von Flüssigerdgas in oberirdischen Behältern sowie spezielle Anforderungen an die Bauausführung von Gasfüllanlagen für Flüssigerdgas sind separat im Anhang 1 zu dieser TRBS/TRGS aufgeführt.

(4) Anhang 2 enthält zusätzliche Anforderungen an die Montage, die Installation und den Betrieb von Einrichtungen der Elektromobilität, die in räumlicher Nähe zu Tankstellen und Gasfüllanlagen errichtet werden.

(5) Anhang 3 enthält zusätzliche Anforderungen an die Bauausführung und den Betrieb von mobilen Gasfüllanlagen für gasförmigen Wasserstoff.

(6) Diese Technische Regel enthält auch die sicherheitstechnischen und organisatorischen Maßnahmen, die den vom Betrieb von Tankstellen und Gasfüllanlagen ausgehenden Brand-, Explosions- sowie Druckgefährdungen für Beschäftigte und andere Personen wirksam begegnen. Auf TRBS 2141 wird zusätzlich verwiesen.

(7) Sie enthält auch Anforderungen an Anlagen zur Lagerung und Abfüllung anderer brennbarer Flüssigkeiten, wie Diesel, Altöl und Heizöl sowie Flüssiggas für Heizzwecke, einschließlich deren Lagerbehälter, soweit sie sich im engen räumlichen oder betriebstechnischen Zusammenhang mit Tankstellen oder Gasfüllanlagen befinden.

(8) Diese Technische Regel gilt nicht für Flugfeldbetankungsanlagen sowie für ortsbewegliche Anlagen für die Betankung von Landfahrzeugen mit entzündbaren Flüssigkeiten und für Gasfüllanlagen zur Abgabe von flüssigem Wasserstoff.

(9) Anforderungen anderer Rechtsbereiche, wie Gewässerschutz, insbesondere die Regelungen in Wasserschutzgebieten oder Immissionsschutz, insbesondere bei der Lagerung von Flüssiggas, Flüssigerdgas oder Wasserstoff in Mengen ab drei Tonnen gemäß Bundes-Immissionsschutzgesetz, bleiben unberührt.

(10) In Ergänzung der in dieser Technischen Regel beschriebenen Schutzmaßnahmen können für bestimmte Anwendungsfälle spezifische Hilfestellungen herangezogen werden. Legt der Arbeitgeber die Schutzmaßnahmen durch Heranziehung einer spezifischen Hilfestellung fest, muss er sich davon überzeugen, dass dadurch das Schutzniveau dieser Technischen Regel erreicht wird.

(11) Diese Technische Regel enthält ausschließlich Ausführungen zu Brand-, Explosions- und Druckgefährdungen. Zu weiteren Gefährdungen von Sicherheit und Gesundheitsschutz Beschäftigter und anderer Personen ist insbesondere die Gefahrstoffverordnung zu beachten. Die Maßgaben der übrigen Verordnungen zum Arbeitsschutz bleiben unberührt.

2 Begriffsbestimmungen 22

(1) Als Betankungsanlagen im Sinne dieser Technischen Regel werden Bereiche bezeichnet, in denen Tankstellen für Landfahrzeuge im Sinne § 18 Absatz 1 Nummer 6 BetrSichV oder eine oder mehrere Gasfüllanlagen für Landfahrzeuge im Sinne § 18 Absatz 1 Nummer 3 BetrSichV einzeln oder in Wechselwirkungen miteinander oder mit anderen Arbeitsmitteln in einem räumlichen oder betriebstechnischen Zusammenhang betrieben werden. Ein Zusammenhang liegt z.B. vor, wenn sich die explosionsgefährdeten Bereiche oder die Wirkbereiche bei der Betankung oder bei der Befüllung der Lagerbehälter überschneiden oder sich Lagerbehälter oder Abgabeeinrichtungen für Betriebsstoffe im Wirkbereich bei der Befüllung oder Betankung befinden.

(2) Eine Betankungsanlage umfasst räumlich

  1. die Wirkbereiche der Abgabeeinrichtungen und die Wirkbereiche bei der Befüllung der Lagerbehälter einschließlich der zugehörigen Fernfüllschächte oder -schränke,
  2. die explosionsgefährdeten Bereiche,
  3. die Domschächte unterirdischer Lagerbehälter, die Leichtflüssigkeitsabscheider, die Lagerbehälter einschließlich deren Aufstellflächen sowie zugehörige Anlagenteile, z.B. Lüftungsleitungen, Verdichter oder Rohrleitungen,
  4. die Verkehrsfläche und Standplätze für die der Versorgung der Betankungsanlage dienenden Fahrzeuge, z.B. Tankfahrzeuge,
  5. die Verkehrsfläche für die zu betankenden Fahrzeuge,
  6. für öffentliche Betankungsanlagen zusätzlich die Verkehrsfläche für die An- und Abfahrt zu betankender Fahrzeuge von und zu öffentlichen Verkehrswegen einschließlich des Stauraumes,
  7. die aus Sicherheitsgründen erforderlichen Schutz- und Sicherheitsabstände.

(3) Abgabeeinrichtungen sind Einrichtungen zur Abgabe von Kraftstoffen und Betriebsstoffen gemäß Absatz 11 und 12. Dazu zählen insbesondere Zapfsäulen, Zapfgeräte und Kleinzapfgeräte. Abgabeeinrichtungen bestehen aus einem Armaturenteil, z.B. Zapfsäulengehäuse, Schlauchgehäuse, in dem die Förder- und Messeinrichtungen für flüssige oder gasförmige Kraftstoffe und ggf. die Gasrückführeinrichtungen sowie die Zapf- und Füllschläuche untergebracht sind, und aus einem Elektronikgehäuse, in dem die elektrische Steuerung und die Mengen- oder Preisanzeige untergebracht sind.

(4) Zapfsäulen sind Abgabeeinrichtungen, deren Bauteile von einem gemeinsamen Schutzgehäuse umgeben sind, das zur Bedienung nicht geöffnet wird.

(5) Zapfgeräte sind mit dem Erdboden oder dem Tank fest verbundene Abgabeeinrichtungen für Kraftstoffe, deren Förder- und Messeinheiten von einem Schutzgehäuse umgeben sein können, das zur Kraftstoffentnahme und gegebenenfalls zum Füllen und Peilen des Tanks geöffnet werden muss.

(6) Kleinzapfgeräte sind ortsbewegliche Abgabeeinrichtungen mit Gefäßen für flüssige Kraftstoffe und mit Förder- und Messeinrichtungen, die mit dem Gefäß fest verbunden sind.

(7) Wirkbereiche sind die räumlichen Bereiche, die beim Betanken von Fahrzeugen und beim Befüllen der Lagerbehälter bei einer Fehlbedienung mit austretendem Kraftstoff unmittelbar beaufschlagt werden können.

(8) Schutzabstände im Sinne dieser Technischen Regel sind zwischen Anlagenteilen der Tankstellen oder Gasfüllanlagen und benachbarten Anlagen, Einrichtungen, Gebäuden oder Verkehrsflächen einzuhaltende Abstände, deren Zweck es ist, die Tankstellen oder Gasfüllanlagen vor einem Schadensereignis, wie Erwärmung infolge Brandbelastung oder mechanische Beschädigung zu schützen.

(9) Gaspendeleinrichtungen dienen der Rückführung der beim Befüllen der Lagerbehälter verdrängten Dampf-Luft-Gemische in den Transporttank.

(10) Gasrückführungseinrichtungen dienen der Rückführung der beim Betanken von Fahrzeugen verdrängten Dampf-Luft-Gemische in den Lagerbehälter.

(11) Kraftstoffe im Sinne dieser Technischen Regel sind

  1. flüssige Kraftstoffe, die entzündbar, leicht entzündbar oder extrem entzündbar sind (mit den Gefahrenhinweisen H226, H225 oder H224) und einen Flammpunkt ≤ +55 °C aufweisen, z.B. Ottokraftstoff, Ethanolkraftstoff,
  2. Flüssiggas (LPG, engl.: Liquefied Petroleum/Petrol Gas),
  3. Erdgas (CNG, engl.: Compressed Natural Gas),
  4. Wasserstoff (H2, engl.: Hydrogen),
  5. Flüssiger Wasserstoff (LH2, engl.: Liquefied Hydrogen) und
  6. Flüssigerdgas (LNG, engl.: Liquefied Natural Gas, LCNG, engl.: Liquefied Compressed Natural Gas).

Wenn aus einer Anlage für Flüssigerdgas (LNG) durch Verdampfung gasförmiges Erdgas (CNG) erzeugt und an einer CNG-Abgabeeinrichtung abgegeben wird, spricht man von einer LCNG-Anlage.

(12) Betriebsstoffe sind an Betankungsanlagen vorhandene Stoffe, die nicht Kraftstoffe gemäß Absatz 11 sind, wie

  1. entzündbare, leicht entzündbare oder extrem entzündbare Stoffe, z.B. Altöl unbekannter Herkunft, Flüssiggas als Brennstoff zu Heizzwecken,
  2. andere brennbare oder entzündbare flüssige Stoffe mit einem Flammpunkt > +55 °C, z.B. Heizöl, Diesel, Biodiesel. Diesel und Biodiesel gelten somit nicht als Kraftstoff im Sinne dieser Technischen Regel, sondern als Betriebsstoff, da in Anwendung von TRGS 722 Abschnitt 2.3.2 Absatz 2 bei den in Deutschland herrschenden Lager- und Abfülltemperaturen ein hinreichend sicherer Abstand zwischen diesen Temperaturen und dem Flammpunkt sichergestellt und somit keine Explosionsgefahr zu erwarten ist,
  3. andere flüssige Stoffe ohne Flammpunkt oder die nichtbrennbar sind, z.B. wässrige Harnstofflösung "AdBlue".

(13) Flüssige Kraftstoffe und Betriebsstoffe mit unterschiedlichen Gefahrenmerkmalen lassen sich wie folgt unterteilen:

  1. Kraftstoffe und Betriebsstoffe mit einem oberen Explosionspunkt < -4 °C, z.B. Ottokraftstoff,
  2. Kraftstoffe und Betriebsstoffe mit einem oberen Explosionspunkt ≥ -4 °C und einem Flammpunkt ≤ +55 °C, z.B. ethanolhaltiger Ottokraftstoff "E85",
  3. Betriebsstoffe mit einem Flammpunkt > +55 °C, z.B. Diesel, Biodiesel,
  4. nichtbrennbare Betriebsstoffe, z.B. wässrige Harnstofflösung.

(14) Altöl wird unterschieden in Altöl bekannter Herkunft, z.B. aus nicht öffentlich zugänglichen Sammelbehältern, und unbekannter Herkunft, z.B. aus öffentlich zugänglichen Sammelbehältern.

(15) Anfahrschutz ist eine technische Maßnahme, um mechanische Beschädigungen von oberirdischen Lagerbehältern und Anlagenteilen zu verringern oder zu vermeiden.

(16) Sicherheitsabstand im Sinne dieser Technischen Regel ist der erforderliche Abstand zwischen einer Gasfüllanlage und einem Schutzobjekt.

(17) Schutzobjekte sind Einrichtungen, Gebäude und Anlagen, in denen oder bei denen sich dauernd oder regelmäßig Beschäftigte oder andere Personen aufhalten, z.B. Verkaufs- oder Pausenräume, zu deren Schutz nicht ebensolche Vorsorgemaßnahmen getroffen sind, wie für die im Bereich der Tankstelle oder Gasfüllanlagen selbst Beschäftigten, z.B. Maßnahmen zur Alarmierung und Gefahrenabwehr.

(18) Lagerbehälter im Sinne dieser Technischen Regel sind unterirdische oder oberirdische Behälter, die der Bevorratung der Kraftstoffe an der Anlage dienen. Dazu zählen Tanks zur Lagerung flüssiger Kraftstoffe sowie die Lagerbehälter der Gasfüllanlagen. Behälter zur Lagerung von Betriebsstoffen nach Absatz 12 sind den Lagerbehältern im Sinne dieser Technischen Regel gleichgestellt, sofern nicht anders genannt.

Bezüglich der Begriffsbestimmungen "Lagerbehälter für mobile Gasfüllanlagen" wird auf Anhang 3 Abschnitt 2 Absatz 3 verwiesen.

(19) Pufferbehälter sind integriertes Anlagenteil der Verdichtereinheit. Sie sind keine Lagerbehälter im Sinne von Absatz 18.

(20) Kompaktanlagen für Flüssiggas (LPG) sind Anlagen, bei denen die Gasfüllanlage (Abgabeeinrichtung, Fördereinrichtung und der Lagerbehälter) nicht mehr als zwei Baueinheiten bilden und kombiniert betrieben werden sowie das Fassungsvermögen des Lagerbehälters weniger als 3 t beträgt.

Bezüglich der Begriffsbestimmungen "Kompaktanlagen und Kombinationsanlagen für mobile Gasfüllanlagen" wird auf Anhang 3 Abschnitt 2 Absatz 2 verwiesen.

(21) Für die Begriffe explosionsfähige Atmosphäre, explosionsgefährdeter Bereich, Zone 0, Zone 1 und Zone 2 wird auf § 2 Absatz 12 und 13 GefStoffV bzw. Anhang I Nummer 1.7 GefStoffV verwiesen.

(22) Leckanzeigegeräte sind Einrichtungen für doppelwandige Tanks und doppelwandige Rohrleitungen sowie für einwandige Tanks mit Leckschutzauskleidung, die Undichtheiten (Lecks) in einer der beiden Wandungen selbsttätig anzeigen.

(23) Betrieb ohne Beaufsichtigung ist der Betrieb einer Tankstelle/Gasfüllanlage ohne Anwesenheit des Arbeitgebers oder Betreibers oder von eingewiesenen Beschäftigten des Arbeitgebers.

(24) Räume im Sinne dieser Technischen Regel sind allseitig umschlossene Räume über oder unter Erdgleiche, die mit Fenstern und Türen zur Belüftung und Befahrung errichtet werden können. Container, in denen sich Anlagenteile befinden (Anlagencontainer), sind Räume im Sinne dieser Technischen Regel.

(25) Gasdichte Abtrennungen sind solche, die einen Gasdurchtritt unter atmosphärischen Bedingungen in Gefahr drohender Menge oder Konzentration verhindern, z.B.

  1. öffnungslose Stahlbetonwände,
  2. Ziegelsteinwände, die mindestens auf der Seite der ortsfesten Druckanlage für Gase verputzt oder beidseitig verfugt sind,
  3. vergleichbar dichte Faserzementwände,
  4. dicht verschweißte Blechwände,
  5. Abdichtung von Wänden aus kraftstoffbeständigen Expansionsharzen oder
  6. Verschlossene Durchführungen z.B. durch geeignete Kabelverschraubung.

(26) Öffentliche Verkehrsflächen im Sinne dieser Technischen Regel sind alle Flächen des öffentlichen Verkehrs (Straßen, Schienenwege, Schifffahrtwege, Straßenbahnen, Fahrradwege, Fußwege) sowie private Verkehrsflächen wie Privatstraßen oder Parkflächen an Einkaufszentren, die nicht zum Umfang der Betankungsanlage nach Abschnitt 2 Absatz 2 gehören.

3 Ermittlung und Bewertung von Gefährdungen

3.1 Ermittlung von Gefährdungen

(1) Abschnitt 3.1 gilt für die Ermittlung der Maßnahmen im Rahmen der Gefährdungsbeurteilung gemäß TRBS 1111 und TRGS 400 zur Bereitstellung, Montage, Installation, Benutzung und zum Betrieb von Tankstellen und Gasfüllanlagen zum Schutz von Beschäftigten und anderen Personen vor besonderen Gefahren durch Druck, Brände oder Explosionen.

(2) Insbesondere folgende Anlagenteile sind dabei zu berücksichtigen:

  1. Austrittsmündungen der Entlüftungs- und Entspannungsleitungen der Behälter für Kraftstoffe,
  2. Abgabeeinrichtungen für Kraftstoffe,
  3. Domschächte der Lagerbehälter für Kraftstoffe,
  4. Fernfüllschächte der Lagerbehälter für Kraftstoffe,
  5. Lagerbehälter für Kraftstoffe,
  6. Füllleitungen für Kraftstoffe,
  7. Entlüftungsleitungen, Entspannungsleitungen, Gaspendel- und Gasrückführungsleitungen,
  8. Entnahmeleitungen für Kraftstoffe,
  9. Leichtflüssigkeitsabscheider einschließlich Schlammfang,
  10. Blitzschutzanlagen,
  11. Verkehrsflächen.

(3) Neben dem Normalbetrieb als bestimmungsgemäßer Betriebsweise der Tankstelle oder Gasfüllanlage und deren Anlagenteilen sind auch Betriebsstörungen sowie vorhersehbare Abweichungen vom Normalbetrieb, z.B. An- und Abfahrvorgänge vor oder nach längerer Betriebsunterbrechung, vorübergehende Stilllegung, zu berücksichtigen. Zum Normalbetrieb gehören insbesondere

  1. Füll-, Entleervorgänge,
  2. Reinigungsarbeiten,
  3. Probenahmen,
  4. Inspektions- und Wartungsarbeiten,
  5. Betankungsvorgang,
  6. Prüfungen.

Betriebsstörungen sind u. a.:

  1. vernünftigerweise nicht auszuschließende Abweichungen vom Normalbetrieb, z.B. vorhersehbare Fehlbedienung,
  2. das Versagen von sicherheitstechnisch bedeutsamen Mess-, Steuer- und Regelvorrichtungen,
  3. das Rückströmen von Kraft- oder Betriebsstoffen bzw. deren Dämpfen,
  4. Luft- oder Feuchtigkeitszutritt,
  5. der Ausfall der Versorgung mit Energie, Roh- und Hilfsstoffen,
  6. die unbeabsichtigte Freisetzung von Kraftstoffen aus Lagerbehältern, Rohrleitungen, Abgabeeinrichtungen,
  7. Defekte an mit Kraftstoffen oder deren Dämpfen gefüllten Bauteilen, z.B. Tanks, Rohrleitungen, Zapfventile.

(4) Ebenso sind vernünftigerweise nicht auszuschließende äußere Einflüsse auf eine Tankstelle oder Gasfüllanlage zu berücksichtigen, wie (z.B. Gewitter).

3.2 Beispiele für typische Gefährdungen für Beschäftigte und andere Personen im Gefahrenbereich 22

Beispiele für typische Gefährdungen für Beschäftigte und andere Personen sind in nachfolgender Tabelle zusammengestellt.

Beispiele für spezielle typische Gefährdungen bei Anlagen der Elektromobilität in räumlicher Nähe zu Betankungsanlagen sind in Anhang 2 genannt. Beispiele für spezielle typische Gefährdungen bei mobilen Gasfüllanlagen für Wasserstoff sind in Anhang 3 genannt.

Tabelle 1: Beispiele für typische Gefährdung

Gefährdung Auslösende Faktoren und Folgen
Anlagenbezogene Gefährdung
Freisetzung von Kraftstoffen - Undichtheit durch Korrosion oder Beschädigungen führen zu nicht bestimmungsgemäßen Freisetzungen und ggf. zur Bildung gefährlicher explosionsfähiger Atmosphäre, die bei gleichzeitigem Vorhandensein einer wirksamen Zündquelle zu Brand oder Explosion führen kann.
Freisetzung von Kraftstoffen - Bei oberirdischer Lagerung Gefahr durch mechanische Beschädigung oder Brände in der Nähe.

- Abriss von Schläuchen, Umfahren von Zapfsäulen, Beschädigung von oberirdischen Behältern und Rohren.

Gefährdung durch Aufkonzentration von Dämpfen - Eindringen von explosionsfähiger Atmosphäre in Kanalsysteme und Böden, wenn dies zur Bildung einer gefährlichen explosionsfähigen Atmosphäre führen kann.
Gefährdung durch fehlende Schutzabstände - Mechanische Beschädigung

- Bei Auftreten einer gefährlichen explosionsfähigen Atmosphäre und gleichzeitigem Vorhandensein einer wirksamen Zündquelle

- Versagen der Behälterwandung durch Hitzeeinwirkung infolge von Bränden.

Gefährdungen durch Überschreitung des zulässigen Betriebsdrucks - Mechanische Beschädigung

- Austretende Druckgase mit daraus resultierenden Gefährdungen wie z.B. Explosionsgefährdungen, Verletzung durch unter hohem Druck ausströmende Gase

Gefährdung durch tiefkalte Substanzen - Kondensierende Luft

- Kältebelastung/Erfrierung/Kältebrand/Unterkühlung

- Kondensierter Sauerstoff mit Auswirkungen auf brennbare Materialien

- Kaltschlagfestigkeit von Bauteilen

- Querschnittsverringerung/Verstopfung von Abblaseleitungen durch Eisbildung aus der Umgebungsluft

- Mögliche Glättebildung in der Umgebung

Gefährdung durch Fehlverhalten
Gefährdung durch Betankungsvorgänge - Nicht bestimmungsgemäßes Betanken

- Austretender Kraftstoff führt zur Bildung explosionsgefährlicher Atmosphäre

- Fehlverhalten von Beschäftigten oder anderen Personen aufgrund fehlender Unterweisung oder Beschilderung

Gefährdungen beim Befüllen durch Tankfahrzeuge - Austretender Kraftstoff führt zur Bildung explosionsgefährlicher Atmosphäre

- Überfüllen, fehlende Gaspendelung

- Fehlverhalten von Beschäftigten aufgrund fehlender Unterweisung oder Beschilderung.

Gefährdung durch Wechselwirkungen
Gefährliche elektrische Ausgleichsströme - Anlagenteile können gegen Erde elektrische Spannungen annehmen, die zur Entstehung zündfähiger Funken oder gefährlicher Korrosionen oder zur Gefährdung von Personen führen.
Gefährliche elektrostatische Aufladungen - Anlagenteile und Fahrzeuge können elektrostatische Aufladungen annehmen, die zu gefährlichen Entladungsvorgängen führen können.
Übertragung von Bränden und Explosionen - Fehlende oder nicht wirksame brand- oder explosionsschutztechnische Entkopplung
Fahrzeugverkehr - Verkehrswidriges Verhalten
Gewitter, Blitzeinschlag - Anlagen und Personen können durch Blitzschlag gefährdet werden, z.B. bei Ausfall der Schutzeinrichtungen, Berührspannungen.

- Der Blitzeinschlag kann bei nicht ausreichenden Blitzschutzmaßnahmen Zündgefahren hervorrufen.

- Beschädigung der leitfähigen Innenbeschichtung von Kunststoffrohren

Gefährdung durch Brände - Durch Brände von fremden Gegenständen oder Anlagen innerhalb oder in Nähe der Betankungsanlage (Müllbehälter, Staubsauger u. ä.) können zusätzliche Gefahren entstehen.

- Durch Brände in der Betankungsanlage entstehende Gefährdungen von Arbeitnehmern, anderen Personen und Schutzobjekten.

Verschleppung von tiefkaltem
Wasserstoff und Flüssigerdgas
- Bei tiefkalt gelagertem Wasserstoff und Flüssigerdgas kann sich Wasserstoff bzw. Flüssigerdgas nach Verlassen des Abblasekamins bei bestimmten Wetterlagen in Richtung Boden bewegen.

- Bei Lagerung von tiefkaltem Wasserstoff und Flüssigerdgas gibt es "boil-off", also eine technisch bedingte Verdunstung von Wasserstoff bzw. vom Flüssigerdgas im Tank, welche entweder aufgefangen und verwendet oder über einen geeigneten Kamin an die Luft abgegeben werden kann. Sollte die Vakuumisolierung des Lagerbehälters versagen, so ist mit einer wesentlich erhöhten Menge an boiloff zu rechnen. Diese Menge muss bei der Auslegung des Kamins und der Überdruckventile unbedingt berücksichtigt werden.

Auslaufen von LNG - Wenn eine größere LNG-Menge auf den Boden ausläuft, gibt es am Anfang eine Zeitspanne intensiven Siedens mit anschließender schneller Abnahme der Verdampfungsrate. Am Anfang hat das durch Verdampfung entstehende Gas fast dieselbe Temperatur wie das LNG (ca. -160 °C). Dieses Gas breitet sich zuerst in einer Schicht am Boden aus (Schwergas), bis es sich durch Wärmeaufnahme aus der Luft erwärmt.

3.3 Bewertung von Gefährdungen

Die nach Abschnitt 3.1 und 3.2 ermittelten Gefährdungen sind in Übereinstimmung mit TRBS 1111 und TRGS 400 unter Beachtung entsprechender Ursachen zu bewerten. Beispielhaft können hierzu die nachfolgenden Kriterien herangezogen werden:

  1. Zugänglichkeit für Beschäftigte oder andere Personen,
  2. Aufstellung (Schutzabstände),
  3. Medieneigenschaften der Kraft- und Betriebsstoffe,
  4. technische Ausführung/technischer Zustand der Anlage und Anlagenteile,
  5. Ausrüstung der Anlage, z.B. mit Schutzeinrichtungen.

3.4 Schutzmaßnahmen

(1) Zum Schutz vor den ermittelten und bewerteten Gefährdungen sind Maßnahmen in folgender Rangfolge festzulegen und zu dokumentieren:

  1. technische Maßnahmen,
  2. organisatorische Maßnahmen (Betriebsanweisung, Anleitungen, Kennzeichnungen),
  3. personenbezogene Schutzmaßnahmen.

(2) Tankstellen, Gasfüllanlagen und deren Anlagenteile müssen bei Erprobung, Inbetriebnahme, Betrieb und Stillsetzung grundsätzlich innerhalb des vom Arbeitgeber festgelegten Schutzmaßnahmenkonzepts sowie der vom Hersteller der Anlagenteile festgelegten Bedingungen verwendet werden. Maßnahmen, die bei Betriebsstörungen, bei Umbauten oder Änderungen zu ergreifen sind, müssen festgelegt werden. Zur Erhaltung des Sollzustandes sind rechtzeitig die erforderlichen Maßnahmen zu treffen. Die Funktionsfähigkeit der für den sicheren Betrieb erforderlichen Anlagenteile ist durch entsprechende Wartung, Instandsetzung und Prüfung sicherzustellen.

(3) Die aus der Gefährdungsbeurteilung abgeleiteten Maßnahmen hinsichtlich Prüfungen im Rahmen der Bereitstellung und Benutzung von Tankstellen und Gasfüllanlagen und deren Anlagenteilen werden in der TRBS 1122, TRBS 1123, TRBS 1201 und TRBS 1201 Teil 1, Teil 2 und Teil 5 konkretisiert.

4 Anforderungen an Tankstellen oder Gasfüllanlagen und ihre Anlagenteile 1

4.1 Planung und Konzeption der Tankstelle oder Gasfüllanlage

4.1.1 Grundsätzliches

(1) Bei der Festlegung der erforderlichen Maßnahmen zur Begegnung der zu erwartenden Druck-, Brand- und Explosionsgefahren als Ergebnis der Gefährdungsbeurteilung sind auch die Wechselwirkungen zwischen den verschiedenen Anlagenteilen zu berücksichtigen. Dies gilt beispielhaft als erfüllt, wenn für die Errichtung und den gemeinsamen Betrieb von Tankstellen und Gasfüllanlagen einschließlich der Arbeitsmittel mit Wechselwirkung in einer Betankungsanlage die Anforderungen dieser Technischen Regel eingehalten sind.

(2) Tankstellen und Gasfüllanlagen sowie Arbeitsmittel mit Wechselwirkungen mit diesen, die in einem räumlichen oder betriebstechnischen Zusammenhang mit der Tankstelle oder Gasfüllanlage stehen, sind so zu errichten, dass Flucht- und Rettungswege oder öffentlich zugängliche Verkehrsflächen nicht eingeschränkt werden.

(3) Bei Tankstellen und Gasfüllanlagen mit besonderen Aufstellbedingungen, z.B. unterhalb von Räumen, die nicht nur dem vorübergehenden Aufenthalt von Personen dienen, sind die Aufstellbedingungen und Nutzungsverhältnisse dieser Räume, z.B. als Wohnraum, zu berücksichtigen und die im Einzelfall erforderlichen Maßnahmen in einem Sicherheitskonzept festzulegen.

(4) Tankstellen und Gasfüllanlagen müssen für die jeweilige Benutzung ausreichend beleuchtet sein. Die Beleuchtungsstärke muss an der Abgabeeinrichtung mindestens 100 Lux betragen.

(5) Bei der Konzeption der Tankstelle oder Gasfüllanlage ist die Rangfolge der Explosionsschutzmaßnahmen gemäß TRGS 722 zu beachten.

(6) Explosionsgefährdete Bereiche dürfen sich grundsätzlich nicht auf benachbarte Grundstücksflächen und öffentliche Straßen sowie auf benachbarte Verkehrsflächen auf dem gemeinsamen Grundstück mit der Betankungsanlage erstrecken. Wenn sich Schutzabstände auf benachbarte Grundstücksflächen erstrecken oder dort vorhandene Einrichtungen wie z.B. Brandschutzmauern genutzt werden sollen, sind mit den Betroffenen diesbezügliche Vereinbarungen zu treffen und zu dokumentieren.

(7) Die Abfüllflächen zur Befüllung der Lagerbehälter sind so festzulegen, dass Rangierbewegungen der anliefernden Tankfahrzeuge möglichst vermieden werden. Dabei ist das Erfordernis eines schnellen Verlassens der Betankungsanlage durch die Tankfahrzeuge im Schadensfall zu beachten.

(8) Anlagen zur Lagerung von Altölen sind grundsätzlich nach den sicherheitstechnischen Anforderungen für Anlagen für extrem entzündbare Flüssigkeiten zu montieren, zu installieren und zu betreiben. Dies gilt nicht, wenn sichergestellt ist, dass nur Altöle bekannter Herkunft mit einem Flammpunkt > +55 °C gelagert werden und keine sicherheitstechnisch relevanten Wechselwirkungen mit der Betankungsanlage bestehen.

(9) Bei der Auswahl von Geräten, Schutzsystemen, sowie Sicherheits-, Kontroll- oder Regelvorrichtungen im Sinne der Richtlinie 2014/34/EU und Anlagenteilen, z.B. Schläuche, für explosionsgefährdete Bereiche, die durch verschiedene Kraft- und Betriebsstoffe gebildet werden, sind die explosionsschutztechnischen Kenngrößen derjenigen Kraft- und Betriebsstoffe maßgeblich, aus denen sich die höchsten Anforderungen hinsichtlich Gerätegruppe, Gerätekategorie, Temperaturklasse und Explosionsgruppe ergeben.

(10) Auf der Basis einer Gefährdungsbeurteilung sind die Anforderungen an die sichere Funktion von sicherheitsrelevanten Mess-, Steuer- und Regeleinrichtungen (sicherheitsrelevante MSR-Einrichtungen) zu ermitteln, festzulegen und zu dokumentieren (siehe auch TRGS 725). Sofern sicherheitsrelevante MSR-Einrichtungen erforderlich sind, müssen diese das betroffene Anlagenteil bei einer Störung selbsttätig in den sicheren Zustand überführen. Bei Druckgefährdungen wird auf TRBS 1201 Teil 2 verwiesen.

4.1.2 Befehlseinrichtungen zum Abschalten

(1) Alle Fördereinrichtungen müssen durch eine Befehlseinrichtung stillgesetzt werden können. Dazu ist im Bereich der aufsichtführenden Stelle, z.B. an der Kasse, oder an einem gefahrlos und frei zugänglichen Ort eine zentrale Einrichtung (Anlagen-Aus-Taster) zum sicheren Abschalten aller Pumpen oder Verdichter und zum Ansteuern der Ventile der Betankungsanlage in einen sicheren Zustand vorzusehen (Anlagen-Aus). Diese Einrichtung muss jederzeit schnell und ungehindert erreichbar sein.

(2) Alle Abgabeeinrichtungen von Betankungsanlagen für unterschiedliche Kraft- und Betriebsstoffe, die von einer gemeinsamen aufsichtführenden Stelle beaufsichtigt werden, müssen im Gefahrenfall gemäß Absatz 1 gemeinsam in einen sicheren Zustand geführt werden.

(3) Die Anlagen-Aus-Einrichtung gemäß Absatz 1 muss folgenden Anforderungen genügen:

  1. rot/gelbe Kennzeichnung des Tasters,
  2. Verschaltung im Ruhestromprinzip,
  3. zwangsöffnende Kontakte,
  4. kein Selbstanlauf durch einfache Rückstellung des Tasters, z.B. Rückstellung von einer vom Not-Aus-Taster getrennten Stelle oder durch Schlüsselfunktion,
  5. Absicherung des Laststromkreises des Pumpen- bzw. Not-Aus-Schützes für die max. mögliche Zahl von Pumpen, die gleichzeitig laufen können,
  6. Schütze z.B. in der Gebrauchskategorie AC-3 nach DIN EN 60947-4-1:2014-02.

(4) Wenn sich im Ergebnis der Gefährdungsbeurteilung für bestimmte Kraftstoffe, z.B. Erdgas, Wasserstoff, die Notwendigkeit besonderer Anforderungen an die Anlagen-Aus-Einrichtung ergeben, sind die sich daraus ergebenden Maßnahmen umzusetzen. Können die in Absatz 3 genannten Anforderungen an die Anlagen-Aus-Einrichtung gemäß Absatz 1 nicht vollständig erfüllt werden, ist dies bei der Festlegung der Prüffristen der Anlagen-Aus-Funktion gemäß dem Ergebnis der Gefährdungsbeurteilung zu berücksichtigen und diese Frist entsprechend zu verkürzen, z.B. häufiger als einmal jährlich.

4.1.3 Zusätzliche Anforderungen bei Betrieb ohne Beaufsichtigung

(1) Bei Betrieb ohne Beaufsichtigung darf die Abgabe von flüssigem Kraftstoff nur aus Abgabeeinrichtungen erfolgen, die eine maximale Abgabemenge von 90 l Kraftstoff pro Betankungsvorgang freigeben. Für Flüssiggas, Erdgas, Wasserstoff und Flüssigerdgas wird auf Abschnitt 4.1.6 Absatz 4 verwiesen. Satz 1 gilt nicht für Diesel oder andere Betriebsstoffe, da diese kein Kraftstoff im Sinne dieser TRBS/TRGS sind. Für diese Stoffe kann sich eine Begrenzung der Austrittsmenge aus wasserrechtlichen Regelungen ergeben.

(2) Für Befehlseinrichtungen zum Abschalten von Abgabeeinrichtungen für flüssige Kraftstoffe wird auf Abschnitt 4.1.2 verwiesen.

(3) An Abgabeeinrichtungen für Flüssiggas oder Flüssigerdgas muss eine Einrichtung ohne Selbsthaltung, z.B. elektrische Drucktaste an der Zapfsäule, mit Wirkung auf die Kraftstoffpumpe und das Schnellschlussventil vorhanden sein. Ein Anlagen-Aus-Taster gemäß Abschnitt 4.1.2 muss vorhanden sein.

(4) An Abgabeeinrichtungen für Erdgas oder Wasserstoff muss ein Anlagen-Aus-Taster gemäß Abschnitt 4.1.2 vorhanden sein.

(5) Zur Meldung von Störungen, Alarmen oder Schäden muss bei Betrieb ohne Beaufsichtigung eine Einrichtung vorhanden sein, bei deren Betätigung eine Gegensprechverbindung zu einer ständig besetzten Stelle, z.B. zum Arbeitgeber oder einer von ihm beauftragten und eingewiesenen Stelle, sofort hergestellt wird. Den Störungen oder Schäden ist in einem jeweils angemessenen Zeitraum zu begegnen. Diesbezügliche Festlegungen, z.B. hinsichtlich erforderlicher Eingriffszeiten, sind unter Berücksichtigung etwaiger Störungs- bzw. Schadensszenarien im Rahmen der Gefährdungsbeurteilung zu treffen (siehe TRBS 1111).

(6) Der für den Betrieb ohne Beaufsichtigung nach den Absätzen 2 bis 4 vorgesehene Anlagen-Aus-Taster (Anforderungen siehe Abschnitt 4.1.2) muss leicht erkennbar und jederzeit schnell und ungehindert erreichbar sein. Eine Abdeckung des Anlagen-Aus-Tasters, die dessen Erkennbarkeit und Zugänglichkeit nicht beeinträchtigt, ist zulässig.

(7) Bei Aktivierung der Anlagen-Aus-Einrichtung einer Betankungsanlage mit oberirdischen Lagerbehältern mit oberirdischen, freiliegenden Rohrleitungen oder mit druckversorgten Abgabeeinrichtungen muss eine automatische Meldung an eine ständig besetzte Stelle, z.B. an den Arbeitgeber oder eine von ihm beauftragte und eingewiesene Stelle, erfolgen. Den der Meldung zugrundeliegenden Störungen oder Schäden ist in einem jeweils angemessenen Zeitraum zu begegnen. Diesbezügliche Festlegungen, z.B. hinsichtlich erforderlicher Eingriffszeiten, sind unter Berücksichtigung etwaiger Störungs- bzw. Schadensszenarien im Rahmen der Gefährdungsbeurteilung zu treffen (siehe TRBS 1111).

4.1.4 Anordnung der Lagerbehälter

4.1.4.1 Allgemeines 22

Hinweis:

Abschnitt 4.1 gilt nicht für die oberirdischen Lagerbehälter von Gasfüllanlagen für Flüssigerdgas (LNG). Die Anforderungen an Gasfüllanlagen für Flüssigerdgas (LNG), insbesondere an die Aufstellung und den Betrieb der Lagerbehälter sind im Anhang 1 zu dieser TRGS genannt.

(1) Zur Gewährleistung eines sicheren Betriebs, auch durch nicht eingewiesene Personen, muss der Arbeitgeber dafür sorgen, dass die Lagerbehälter dauerhaft gegen mechanische Einwirkungen und unzulässige Erwärmung geschützt sind. Dabei sind für die Lagerung von Kraft- und Betriebsstoffen die folgenden Faktoren zu berücksichtigen:

  1. Beschädigung der Lagerbehälter und deren Anlagenteile und Rohre durch Anfahren:
    1. Oberirdische Lagerbehälter sind durch einen Schutzabstand zu den Ein- und Ausfahrtsbereichen, die von einer öffentlichen Straße zu den Abgabeeinrichtungen für Kraftstoffe führen, zu schützen. Die Größe des Abstands sowie die Notwendigkeit eines zusätzlichen oder ersetzenden Anfahrschutzes sind zu ermitteln. Dabei sind die Aufstellbedingungen, z.B. das auf der Betankungsanlage und auf öffentlichen und nichtöffentlichen Verkehrswegen in Nachbarschaft zur Betankungsanlage zu erwartende Verkehrsaufkommen in der Nähe der Lagerbehälter und zugehörige oberirdische Rohrleitungen, die Art, die Masse, die Geschwindigkeit und Fahrtrichtung der dort verkehrenden Fahrzeuge zu berücksichtigen, z.B. gemäß VdTÜV-Merkblatt 965.
    2. Unterirdische Lagerbehälter, die überfahren werden können, müssen so eingebaut werden, dass durch die Verkehrslasten keine schädigenden Auswirkungen auf die Lagerbehälter entstehen können.
  2. Beschädigung der Lagerbehälter sowie unbeabsichtigte Freisetzung von Kraftstoffen durch Brand und Unterfeuerung:
    Die Beeinträchtigung der Festigkeit der Lagerbehälter durch einen Brand außerhalb der Betankungsanlage sowie auf der Betankungsanlage und durch Unterfeuerung ist zu berücksichtigen. Als Brandlasten gelten zum Beispiel:
    1. Parkflächen für Kraftfahrzeuge,
    2. Verkehrsflächen auf der Betankungsanlage, auch die für die An- und Abfahrt zu betankender Fahrzeuge,
    3. Gebäude mit Brandlasten oder aus brennbaren Baustoffen,
    4. gelagerte oder abgestellte brennbare Stoffe,
    5. brandgefährliche Objekte, z.B. frei belüftete Behälter mit brennbaren und entzündbaren Flüssigkeiten.

    Eine Brandlast besteht nicht, wenn z.B. nur brennbare Kleinteile vorhanden sind, wie Kabelumhüllungen, Schutzkästen, Wärmedämmungen von Rohrleitungen, Holzzäune.

  3. Veränderung der explosionsschutzrelevanten Parameter durch Umgebungseinflüsse:
    Die Erwärmung der Lagerbehälter sowie Behälter zur Lagerung von brennbaren oder entzündbaren Betriebsstoffen durch Sonneneinstrahlung ist bei der Festlegung explosionsgefährdeter Bereiche und deren Ausdehnung zu berücksichtigen.

(2) Zur Gewährleistung eines sicheren Betriebs, auch durch nicht eingewiesene Personen, muss der Arbeitgeber dafür sorgen, dass oberirdische Lagerbehälter gegen Eingriffe Unbefugter geschützt sind, z.B. durch Umfriedung oder Einschluss der Armaturen.

4.1.4.2 Unterirdische Lagerung

(1) Flüssigerdgas (LNG) wird in der Regel nicht in unterirdischen Behältern gelagert. Daher enthält diese Technische Regel keine Anforderungen an die unterirdische Lagerung von Flüssigerdgas. Falls erforderlich muss der Sachverhalt in einer Gefährdungsbeurteilung separat bewertet werden.

(2) Abschnitt 4.1.4.1 gilt als erfüllt, wenn unterirdische Lagerbehälter so eingebaut sind, dass schädliche Wechselwirkungen untereinander, mit Behältern zur Lagerung von Betriebsstoffen, mit benachbarten Grundstücken sowie mit öffentlichen Versorgungsleitungen vermieden werden. Dies ist z.B. erfüllt, wenn eine Erddeckung von mindestens 1 m und soweit zutreffend ein Abstand von mindestens 0,4 m zwischen den Lagerbehältern bzw. Behältern zur Lagerung von Betriebsstoffen und mindestens 1 m zu Gebäuden und zu Grundstücken, die nicht zur Betankungsanlage gehören, und zu öffentlichen Versorgungsleitungen realisiert ist.

(3) Abweichend von Absatz 2 Satz 2 dürfen unterirdische Lagerbehälter für Flüssiggas und nichtbrennbare Betriebsstoffe, die nicht überfahren werden können, mit einer Erddeckung von mindestens 0,5 m abgedeckt werden.

(4) Abweichend von Absatz 2 Satz 2 gilt für unterirdische Lagertanks für flüssige Kraftstoffe und brennbare Betriebsstoffe, die vor dem 17. Oktober 2012 rechtmäßig betrieben wurden, eine allseitige Erddeckung von 0,8 m als ausreichend.

(5) Die Wechselwirkung unterirdischer Tanks und Rohrleitungen mit kathodischem Korrosionsschutz ( KKS) zu solchen ohne KKS ist zu beachten.

(6) Absatz 2 gilt sinngemäß auch für Behälter zur Lagerung von entzündbaren und brennbaren Betriebsstoffen, die Bestandteil der Betankungsanlage sind.

4.1.4.3 Oberirdische Lagerung 22

(1) Abschnitt 4.1.4.1 Absatz 1 gilt bei der oberirdischen Lagerung von Kraftstoffen als erfüllt, wenn nach den Anforderungen der Absätze 2 bis 11 gelagert wird. Dabei sind Wechselwirkungen bei der Zusammenlagerung verschiedener Kraftstoffe oder Kraftstoffe mit unterschiedlichen Gefahrenmerkmalen sowie mit Betriebsstoffen zusätzlich zu berücksichtigen. Satz 1 gilt sinngemäß auch für Behälter zur Lagerung von entzündbaren und brennbaren Betriebsstoffen, die Bestandteil der Betankungsanlage sind.

Bezüglich der oberirdischen Lagerung von Flüssigerdgas (LNG) wird auf Anhang 1 verwiesen, da in der Regel mehr als 3 t Flüssigerdgas gelagert wird.

(2) Absatz 1 gilt für flüssige Kraftstoffe als erfüllt, wenn

  1. nur doppelwandige Lagerbehälter mit Leckanzeigesystem zur Lagerung verwendet werden,
  2. der Lagerbehälter mindestens 5 m von Abgabeeinrichtungen, von Brandlasten in der Umgebung des Behälters gemäß Abschnitt 4.1.4.1 Absatz 1 Nummer 2, benachbarten Grundstücken oder öffentlichen Verkehrsflächen (Schutzabstand) entfernt ist und sich außerhalb der Wirkbereiche nach Abschnitt 4.1.7 befindet. Der Abstand von 5 m darf verringert werden, wenn der Lagerbehälter gegen unzulässige Erwärmung während mindestens 30minütiger Brandeinwirkung geschützt ist. Der Schutz kann durch eine Schutzwand, ein ausreichend dimensioniertes Strahlungsschutzblech (bei reiner Strahlungswärme) oder eine Brandschutzisolierung erfolgen. Die Abmessungen und Eigenschaften sind im Rahmen einer Gefährdungsbeurteilung zu ermitteln und zu beschreiben. Die ermittelten Schutzmaßnahmen sind in einer brandschutztechnischen Bemessung abhängig von der Art, Menge und Größe der brennbaren Stoffe/Bauten festzulegen.
  3. die Gesamtlagermenge flüssiger Kraftstoffe < 4.000 Liter ist,
  4. in den durch die in Nummer 2 genannten Schutzabstände gebildeten Flächen sowie in den Wirkbereichen gemäß Abschnitt 4.1.7 kein anderer Kraftstoff gemäß Abschnitt 2 Absatz 11 oder Betriebsstoff gemäß Abschnitt 2 Absatz 12 Nummer 1 und 2 oberirdisch gelagert wird,
  5. ein Abstand oder Anfahrschutz vorhanden ist, der den Schutzzielen von Abschnitt 4.1.4.1 Absatz 1 Nummer 1 entspricht,
  6. ein Unterfließen des Lagerbehälters durch auslaufenden Kraftstoff verhindert ist, z.B. durch eine ausreichende Aufkantung,
  7. der Lagerbehälter durch z.B. eine Sicherheitseinrichtung gegen Ausheben geschützt ist und
  8. alle Anschlüsse von oben in den Lagerbehälter münden.

(3) Absatz 1 gilt für Erdgas (CNG) als erfüllt, wenn:

  1. der evtl. vorhandene Witterungsschutz eines Lagerbehälters belüftet werden kann,
  2. der Lagerbehälter mindestens 5 m von Abgabeeinrichtungen, von Brandlasten gemäß Abschnitt 4.1.4.1 Absatz 1 Nummer 2 in der Umgebung des Behälters, benachbarten Grundstücken oder öffentlichen Verkehrsflächen (Schutzabstand) entfernt ist und sich außerhalb der Wirkbereiche nach Abschnitt 4.1.7 befindet. Der Abstand von 5 m darf verringert werden, wenn der Lagerbehälter gegen unzulässige Erwärmung während mindestens 30minütiger Brandeinwirkung geschützt ist. Der Schutz kann durch eine Schutzwand, ein ausreichend dimensioniertes Strahlungsschutzblech (bei reiner Strahlungswärme) oder eine Brandschutzisolierung erfolgen. Die Abmessungen und Eigenschaften sind im Rahmen einer Gefährdungsbeurteilung zu ermitteln und zu beschreiben. Die ermittelten Schutzmaßnahmen sind in einer brandschutztechnischen Bemessung abhängig von der Art, Menge und Größe der brennbaren Stoffe/Bauten festzulegen.
  3. die Gesamtlagermenge kleiner 3 t ist,
  4. in den durch die in Nummer 2 genannten Schutzabständen gebildeten Flächen sowie in den Wirkbereichen gemäß Abschnitt 4.1.7 kein anderer Kraftstoff gemäß Abschnitt 2 Absatz 11 oder Betriebsstoff gemäß Abschnitt 2 Absatz 12 Nummer 1 und 2 oberirdisch gelagert wird,
  5. ein Abstand oder Anfahrschutz vorhanden ist, der den Schutzzielen von Abschnitt 4.1.4.1 Absatz 1 Nummer 1 entspricht,
  6. ein Unterfließen der Lagerbehälter durch auslaufenden Kraftstoff verhindert ist, z.B. durch eine ausreichende Aufkantung, und
  7. aus Sicherheitseinrichtungen gegen Drucküberschreitung austretendes Erdgas gefahrlos frei nach oben abströmen kann.

(4) Absatz 1 gilt für Flüssiggas als erfüllt, wenn:

  1. der Lagerbehälter mindestens 5 m von Abgabeeinrichtungen für andere Kraftstoffe, Brandlasten gemäß Abschnitt 4.1.4.1 Absatz 1 Nummer 2 in der Umgebung des Behälters, benachbarten Grundstücken und öffentlichen Verkehrsflächen (Schutzabstand) entfernt ist und sich außerhalb der Wirkbereiche nach Abschnitt 4.1.7 befindet. Der Abstand von 5 m darf verringert werden, wenn der Lagerbehälter gegen unzulässige Erwärmung während mindestens 30minütiger Brandeinwirkung geschützt ist. Dabei sind die Abgabeeinrichtungen für andere Kraftstoffe, Brandlasten gemäß Abschnitt 4.1.4.1 Absatz 1 Nummer 2 in der Umgebung des Behälters, benachbarten Grundstücken und öffentlichen Verkehrsflächen zu berücksichtigen. Der Schutz kann durch eine Schutzwand, ein ausreichend dimensioniertes Strahlungsschutzblech (bei reiner Strahlungswärme) oder eine Brandschutzisolierung erfolgen. Die Abmessungen und Eigenschaften sind im Rahmen einer Gefährdungsbeurteilung zu ermitteln und zu beschreiben. Die ermittelten Schutzmaßnahmen sind in einer brandschutztechnischen Bemessung abhängig von der Art, Menge und Größe der brennbaren Stoffe/Bauten festzulegen.
  2. Bei Kompaktanlagen darf der Abstand von 5 m gemäß Nummer 1 zwischen Lagerbehälter und der Verkehrsfläche für die zu betankenden Fahrzeuge verringert werden, wenn
    1. ein gefährlicher Wärmeeintrag in den Lagerbehälter durch die Ausführung der zugehörigen Abgabeeinrichtung als Zapfsäule oder als Zapfgerät mit einem metallischen Schutzgehäuse, deren Anordnung an der Stirnseite des Lagerbehälters (Kompaktanlage) und der Ausrichtung dieser Stirnseite des Lagerbehälters zur Verkehrsfläche vermieden ist,
    2. nur Fahrzeuge mittels geschlossenem System betankt werden und
    3. der Tankvorgang nur beaufsichtigt erfolgt.

    Abweichend darf bei ausschließlich innerbetrieblich verwendeten Gasfüllanlagen der Abstand von 5 m verringert werden, wenn in einem Brandschutzkonzept entsprechende Brandschutzmaßnahmen vorgesehen sind und die Gasfüllanlagen in einem für andere Personen nicht nutzbaren Verkehrsbereich liegen und ausschließlich von unterwiesenen Beschäftigten benutzt werden.

  3. die Gesamtlagermenge kleiner 3 t ist,
  4. in den durch die in Nummer 2 genannten Schutzabständen gebildeten Flächen sowie in den Wirkbereichen gemäß Abschnitt 4.1.7 kein anderer Kraftstoff gemäß Abschnitt 2 Absatz 11 oder Betriebsstoff gemäß Abschnitt 2 Absatz 12 Nummer 1 und 2 oberirdisch gelagert wird,
  5. ein Abstand oder Anfahrschutz vorhanden ist, der den Schutzzielen von Abschnitt 4.1.4.1 Absatz 1 Nummer 1 entspricht
  6. ein Unterfließen des Lagerbehälters durch auslaufenden Kraftstoff verhindert ist, z.B. durch eine ausreichende Aufkantung, und
  7. aus Sicherheitseinrichtungen gegen Drucküberschreitung austretendes Flüssiggas gefahrlos frei nach oben abströmen kann.

(5) Absatz 1 gilt für Wasserstoff als erfüllt, wenn:

  1. der evtl. vorhandene Witterungsschutz eines Lagerbehälters frei belüftet werden kann,
  2. die Lagerbehälter mindestens 5 m von Abgabeeinrichtungen, Brandlasten gemäß Abschnitt 4.1.4.1 Absatz 1 Nummer 2 in der Umgebung des Behälters, benachbarten Grundstücken oder öffentlichen Verkehrsflächen (Schutzabstand) entfernt sind und sich außerhalb der Wirkbereiche nach Abschnitt 4.1.7 befinden. Der Abstand von 5 m darf verringert werden, wenn der Lagerbehälter gegen unzulässige Erwärmung während mindestens 30minütiger Brandeinwirkung geschützt ist. Dabei sind die Abgabeeinrichtungen für andere Kraftstoffe, Brandlasten gemäß Abschnitt 4.1.4.1 Absatz 1 Nummer 2 in der Umgebung des Behälters, benachbarten Grundstücken und öffentlichen Verkehrsflächen zu berücksichtigen. Der Schutz kann durch eine Schutzwand, ein ausreichend dimensioniertes Strahlungsschutzblech (bei reiner Strahlungswärme) oder eine Brandschutzisolierung erfolgen. Die Abmessungen und Eigenschaften sind im Rahmen einer Gefährdungsbeurteilung zu ermitteln und zu beschreiben. Die ermittelten Schutzmaßnahmen sind in einer brandschutztechnischen Bemessung abhängig von der Art, Menge und Größe der brennbaren Stoffe/Bauten festzulegen.
    Abweichend darf bei vakuumisolierten Behältern der Schutzabstand auf 3 m verringert werden, wenn Armaturen und Stützkonstruktionen des Behälters durch entsprechende Auslegung oder eine geeignete Brandschutzisolierung geschützt sind.
    Abweichend darf bei ausschließlich innerbetrieblich verwendeten Gasfüllanlagen der Schutzabstand von 5 m verringert werden, wenn in einem Brandschutzkonzept entsprechende Brandschutzmaßnahmen vorgesehen sind und die Gasfüllanlagen in einem für andere Personen nicht nutzbaren Verkehrsbereich liegen und ausschließlich von unterwiesenen Beschäftigen benutzt werden.
  3. die Gesamtlagermenge kleiner 3 t ist,
  4. in den durch die in Nummern 2 genannten Schutzabständen gebildeten Flächen sowie in den Wirkbereichen gemäß Abschnitt 4.1.7 kein anderer Kraftstoff gemäß Abschnitt 2 Absatz 11 oder Betriebsstoff gemäß Abschnitt 2 Absatz 12 Nummer 1 und 2 oberirdisch gelagert wird,
  5. ein Abstand oder Anfahrschutz vorhanden ist, der den Schutzzielen von Abschnitt 4.1.4.1 Absatz 1 Nummer 1 entspricht,
  6. ein Unterfließen des Lagerbehälters durch auslaufenden Kraftstoff verhindert ist, z.B. durch eine geeignete Aufkantung,
  7. bei Lagerung von Flüssigwasserstoff der Boden unter dem Tank und den Leitungen aus nichtbrennbarem Material, z.B. Beton, ausgeführt ist. Es ist zu berücksichtigen, dass an kalten Flächen kondensierter Sauerstoff die Brennbarkeit verschiedener Stoffe beeinflussen kann, somit sind Baustoffe wie z.B. Asphalt, Bitumen, etc. als brennbar einzustufen und
  8. der aus Sicherheitseinrichtungen gegen Drucküberschreitung austretende Wasserstoff über eine Abblaseleitung gefahrlos frei nach oben abströmen kann.

(6) Die durch die Schutzabstände nach den Absätzen 2 bis 5 gebildeten Flächen sind von Stoffen freizuhalten, die ihrer Art oder Menge nach geeignet sind, zur Entstehung oder Ausbreitung von Bränden zu führen. Es ist zu berücksichtigen, dass an kalten Flächen kondensierter Sauerstoff die Brennbarkeit verschiedener Stoffe beeinflussen kann. Nicht zu solchen Stoffen gehören die Kraftstoffe gemäß Abschnitt 2 Absatz 11, wenn

  1. sie sich in unterirdischen Lagerbehältern mit einer Erddeckung gemäß Abschnitt 4.1.4.2 befinden und
  2. .
    1. sich entweder die Domschächte der Lagerbehälter außerhalb der Schutzabstände befinden oder
    2. die Abdeckungen der Domschächte aus nichtbrennbaren Baustoffen (siehe Satz 1) ausgeführt sind und hinsichtlich der zu schützenden Lagerbehälter im Brandfall gewährleisten, dass die zulässigen Betriebsbedingungen des Lagerbehälters nicht überschritten werden.

(7) Die für die einzelnen Kraftstoffe geforderten Schutzabstände dürfen sich mit den Schutzabständen für andere Kraftstoffe nach Absatz 2 bis 5 überschneiden.

(8) Die explosionsgefährdeten Bereiche nach Abschnitt 4.1.10 dürfen sich nicht auf benachbarte Grundstücke, soweit diese nicht zur Betankungsanlage gehören oder deren Nutzung vertraglich nicht geregelt ist, auf benachbarte Verkehrsflächen auf dem gemeinsamen Grundstück mit der Betankungsanlage sowie auf öffentliche Verkehrsflächen oder sonstige, insbesondere durch andere Personen genutzte Flächen erstrecken. Abweichend davon darf sich der explosionsgefährdete Bereich um die Lagerbehälter, der durch die Befüllung des Lagerbehälters begründet ist, auf die Verkehrsflächen der Betankungsanlage erstrecken, wenn während der Befüllung das Betreten durch Unbefugte und das Durchfahren dieser Verkehrsfläche durch geeignete Maßnahmen unterbunden, z.B. durch fachkundige Aufsicht des TKW-Fahrers, und diese Verkehrsfläche abgesperrt ist, z.B. durch Leitkegel.

(9) Lagerbehälter sowie Behälter zur Lagerung von entzündbaren und brennbaren Betriebsstoffen und ihre Stützkonstruktionen müssen, falls in der Umgebung eine Brandlast besteht, vor dieser geschützt sein. Dabei ist abhängig von der aus der Brandlast resultierenden Wärmeeinwirkung auf den Behälter zu ermitteln, welche Brandschutzmaßnahmen erforderlich sind. Es muss durch bauliche Maßnahmen verhindert sein, z.B. durch eine Mauer oder eine Überhöhung, dass brennbare Stoffe unter den Lagerbehälter oder in den Domschacht benachbarter unterirdischer Lagerbehälter gelangen können.

(10) Lagerbehälter müssen so errichtet und betrieben werden, dass sie gegen gefährlichen Wärmeeintrag durch Selbstbefeuerung geschützt sind.

(11) Unzulässige Erwärmung der Lagerbehälter durch Sonneneinstrahlung ist zu verhindern, z.B. durch ein Strahlungsschutzdach oder einen reflektierenden Anstrich. Auf TRBS 3146/TRGS 746 wird verwiesen.

4.1.4.4 Einhausung

Flüssigerdgas (LNG) wird in der Regel nicht in Einhausungen gelagert. Falls erforderlich muss der Sachverhalt in einer Gefährdungsbeurteilung separat bewertet werden.

(1) Abschnitt 4.1.4.1 Absatz 1 gilt als erfüllt, wenn Kraftstoffe in einer Einhausung nach den Anforderungen der Absätze 2 bis 3 gelagert werden. Satz 1 gilt sinngemäß auch für Behälter zur Lagerung von entzündbaren und brennbaren Betriebsstoffen, die Bestandteil der Betankungsanlage sind.

(2) Die Lagerbehälter von Kraftstoffen sind in einer Einhausung aufzustellen, die

  1. feuerbeständig gegen angrenzende Räume,
  2. feuerhemmend gegen die Umgebung ausgeführt und
  3. mit einem Anfahrschutz versehen ist oder die Einhausung einen Anfahrschutz darstellt.

(3) Die Kraftstoffe dürfen nur bis zu den folgenden maximalen Lagermengen gelagert werden:

  1. 3 t für gasförmige Kraftstoffe (Flüssiggas, Erdgas oder Wasserstoff); und
  2. 100 m3 für flüssige Kraftstoffe.

Flüssige Kraftstoffe, Flüssiggas, Wasserstoff und Erdgas sowie entzündbare und brennbare Betriebsstoffe dürfen nicht zusammen in einer Einhausung gelagert werden.

4.1.4.5 Domschächte, Einsteigeöffnungen

(1) Lagerbehälter und deren Armaturen müssen für Prüfung und Instandhaltung zugänglich sein.

(2) Absatz 1 ist für Domschächte unterirdischer Lagerbehälter erfüllt, wenn sie so geräumig sind, dass alle Anschlüsse zugänglich sind und die erforderlichen Arbeiten und Prüfungen im Schacht unbehindert durchgeführt werden können sowie das komplette Entleeren des Lagerbehälters möglich ist.

(3) Domschächte unterirdischer Lagerbehälter müssen unfallsicher abgedeckt sein. Die Schachtabdeckungen müssen den zu erwartenden Belastungen, z.B. durch Fußgänger, Fahrzeugverkehr, standhalten.

4.1.5 Anordnung von Fernfüllschächten und Fernfüllschränken

(1) Fernfüllschächte und -schränke für Kraftstoffe dürfen sich im Wirkbereich anderer Kraftstoffe nur befinden, wenn die darin befindlichen Einrichtungen auch für die anderen Kraftstoffe entsprechend explosionsgeschützt ausgeführt sind.

(2) Fernfüllschächte und -schränke für Betriebsstoffe mit einem Flammpunkt > +55 °C und nichtbrennbare Betriebsstoffe dürfen sich im Wirkbereich von flüssigen Kraft- oder Betriebsstoffen mit einem Flammpunkt ≤ +55 °C oder Flüssiggas oder Flüssigerdgas nur befinden, wenn die darin befindlichen Einrichtungen explosionsgeschützt ausgeführt sind.

(3) Von in öffentlich zugänglichen Bereichen befindlichen Fernfüllschächten oder -schränken abgehende Rohrleitungen sind grundsätzlich unterirdisch zu verlegen.

4.1.6 Anordnung von Abgabeeinrichtungen 20

(1) Bei der kombinierten Anordnung von Abgabeeinrichtungen für verschiedene Kraft- und Betriebsstoffe oder der Anordnung von Abgabeeinrichtungen in einem explosionsgefährdeten Bereich für Kraftstoffe ist die mögliche Verschleppung explosionsfähiger Atmosphäre zu beachten.

(2) Bei der Anordnung von Abgabeeinrichtungen für Betriebsstoffe in Wirkbereichen nach Abschnitt 4.1.7 für Kraftstoffe ist die mögliche Verschleppung von austretenden Kraftstoffen und deren Dämpfen in das Innere der Abgabeeinrichtungen zu verhindern (schwadensichere Gehäuse im Sinne von DIN EN 60079-15). Alternativ sind das Innere der Abgabeeinrichtungen explosionsgeschützt in Kategorie 3 gemäß Richtlinie 2014/34/EU und Geräte im Inneren von tiefer gelegenen Schächten von Abgabeeinrichtungen in Kategorie 2 gemäß Richtlinie 2014/34/EU auszuführen. Satz 1 und 2 gilt auch für Abgabeeinrichtungen und Anlagenteile für andere Betriebsstoffe, z.B. für wässrige Harnstofflösung und Abgabeeinrichtungen für Wasserstoff, die sich im explosionsgefährdeten Bereich und im Wirkbereich einer Abgabeeinrichtung für Kraftstoff befinden. Abgabeeinrichtungen für Wasserstoff, die im explosionsgefährdeten Bereich oder im Wirkbereich von Ottokraftstoff oder Flüssiggas aufgestellt sind, müssen für die Temperaturklasse T3 ausgelegt sein.

(3) Eine Kombination von Abgabeeinrichtungen für flüssige Kraftstoffe mit Abgabeeinrichtungen für Flüssiggas, Erdgas und Flüssigerdgas sowie für Betriebsstoffe ist möglich, wenn alle Anlagenteile für die Explosionsgruppe IIa bzw. bei Ethanol-Kraftstoff E100 (Ethanolanteil > 90 %) die Explosionsgruppe IIB (oder IIB1) und für die Temperaturklasse T3 ausgelegt sind. Bei einer Kombination einer Abgabeeinrichtung für Wasserstoff mit anderen Abgabeeinrichtungen müssen alle Anlagenteile für die Explosionsgruppe IIC (oder IIB+H2) und für die Temperaturklasse T3 ausgelegt sein.

Für die Einteilung der Explosionsgruppen siehe z.B. DIN EN 60079-0 und DIN EN 16852.

(4) Die mögliche Freisetzungsmenge bei Leckagen von Betankungsschlauchleitungen für gasförmige Kraftstoffe ist auf ein unbedenkliches Maß zu begrenzen. Dies ist z.B.

  1. für Flüssiggas oder Erdgas erfüllt, wenn die Schlauchleitungslänge nicht mehr als fünf Meter beträgt sowie das Innenvolumen 1,5 l nicht überschreitet;
  2. für Wasserstoff erfüllt, wenn
    1. eine automatische Überprüfung des Anschlusses des Betankungsschlauchs an den Betankungsanschluss des KFZ erfolgt, so dass bei einer Undichtheit die Betankung nicht gestartet wird,
    2. eine automatische Überwachung der Betankung vorhanden ist, so dass bei einer Undichtheit die Betankung sofort abgebrochen wird,
    3. der Schlauch über eine Abblaseleitung gefahrlos druckentlastet wird, indem der Wasserstoff über den Entlüftungsmast/-kamin abgeleitet wird, und
    4. nach der Betankung der Betankungsschlauch druckfrei ist;
  3. für Flüssigerdgas (LNG) erfüllt, wenn
    1. die Abgabe im Vollschlauchsystem erfolgt,
    2. optional eine Gaspendelmöglichkeit zur Entspannung in ein geschlossenes System vorhanden ist,
    3. die Schlauchleitungslänge nicht mehr als fünf Meter beträgt und
    4. beim Abkuppeln der Betankungsschlauchleitung nur das im Kupplungsstück vorhandene Gas freigesetzt wird.

(5) Es ist sicherzustellen, z.B. durch Schlauchrückholung, dass die Betankungsschlauchleitung im Fahrbahnbereich nicht überfahren werden kann.

(6) Bei einer plötzlichen Erhöhung des Durchflusses, z.B. durch Schlauchabriss, muss bei gasförmigen Kraftstoffen wie Flüssiggas, Erdgas, Flüssigerdgas oder Wasserstoff das weitere Nachströmen selbsttätig unterbrochen werden. Dazu ist in oder unmittelbar vor jeder Betankungsschlauchleitung eine Einrichtung vorzusehen, welche die weitere Gaszufuhr selbsttätig unterbricht. Zusätzlich muss in oder unmittelbar vor jeder Betankungsschlauchleitung eine Abreißkupplung eingebaut sein, die ab einer bestimmten Zuglast in Funktion tritt und dabei den Austritt von Kraftstoff beidseitig verhindert. Die Trennkräfte der Abreißkupplung müssen deutlich niedriger liegen als die Reißfestigkeit der Betankungsschlauchleitung und der angeschlossenen Anlagenteile. Die Führung der Betankungsschläuche muss so ausgeführt sein, dass die Zugkräfte möglichst axial, d. h. ohne größere Ablenkung, auf die Abreißkupplung wirken. Bei Einbau, Verwendung und Wartung sind die Angaben des Herstellers der Abgabeeinrichtung zu beachten.

(7) In und unter Gebäuden mit Räumen, die dem nicht nur vorübergehenden Aufenthalt von Personen dienen, müssen Abgabeeinrichtungen so aufgestellt oder gesichert sein, dass sich in und unter diesen Räumen keine gefährlichen Konzentrationen brennbarer Stoffe bilden können.

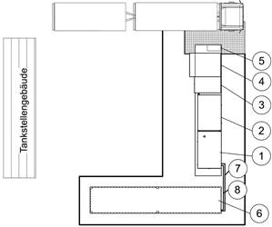
(8) Abgabeeinrichtungen müssen an Gebäuden so aufgestellt werden, dass dadurch der einzige Fluchtweg aus dem Gebäude nicht behindert wird. Abgabeeinrichtungen vor Gebäuden gelten nicht als den Fluchtweg behindernd, wenn der Abstand der Abgabeeinrichtungen zu Türen oder anderen Öffnungen, durch die Dampf-Luft-Gemische oder gasförmige Kraftstoffe hindurchtreten können, mindestens 2 m beträgt, die Zapfventile auf den der Tür bzw. der anderen Öffnung abgewandten) Seiten) der Abgabeeinrichtung angeordnet sind ( Abbildung 1) und baurechtliche Regelungen dem nicht entgegenstehen. Zwischen dem zu betankenden Fahrzeug und einer Tür oder anderen Öffnung muss ein ausreichender Abstand eingehalten sein. Dies gilt bei einem Abstand von mindestens 1 m als erfüllt.

Abbildung 1: Zu Öffnungen in Gebäuden abgewandte Seiten von Abgabeeinrichtungen

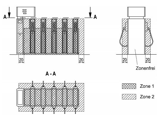
(9) Abgabeeinrichtungen müssen so aufgestellt oder gesichert sein, dass sie durch Fahrzeuge nicht angefahren oder durch Teile von Fahrzeugen nicht beschädigt werden können. Dies gilt für Abgabeeinrichtungen als erfüllt, wenn sie

  1. erhöht auf einem den Geräteumfang allseitig überragenden Sockel, auf einer durch Kantsteine begrenzten Insel aufgestellt oder durch Prellsteine, Radabweiser oder ähnliche Einrichtungen mit einer Höhe von mindestens 12 cm und einem seitlichen Überstand von mindestens 20 cm (Beispiele siehe Abbildung 2) und
  2. bei Gasfüllanlagen oder druckversorgten Tankstellen zusätzlich mit integriertem Schutz gegen Beschädigungen ausgestattet sind. Dies kann z.B. sicher gestellt werden durch
    1. unmittelbar unter der Abgabeeinrichtung an geschützter Stelle angebrachte Abscher-/Bruchsicherungsventile,
    2. eine selbsttätig schließende Absperreinrichtung, die direkt bei einer erheblichen Erschütterung ausgelöst wird. Die Absperreinrichtung muss so eingebaut sein, dass sie im Fall eines Abrisses der Abgabeeinrichtung weiterhin sicher funktioniert oder
    3. die Abgabeeinrichtung mit einem Anfahrschutz nach dem Stand der Technik gemäß 4.1.4.1 Absatz 1 Nummer 1 geschützt ist.

Bei der Benutzung von Zapfventilen in Gebäuden sind zusätzliche Sicherheitsmaßnahmen zu treffen.

Abbildung 2: Anfahrschutz an Abgabeeinrichtungen

4.1.7 Festlegung von Wirkbereichen

(1) An Tankstellen und Gasfüllanlagen sind für die verschiedenen Kraftstoffe Wirkbereiche festzulegen, die sich ggf. überschneiden dürfen und in denen die dazu im Folgenden aufgeführten Schutzmaßnahmen gelten.

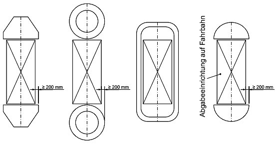
(2) Der Wirkbereich der Abgabeeinrichtung für flüssige Kraftstoffe und für Flüssiggas ist der mit dem Zapfventil in 1 m Höhe horizontal betriebsmäßig erreichbare Bereich zuzüglich 1 m bis Erdgleiche.

(3) Der Wirkbereich der Abgabeeinrichtung für Erdgas ist der mit dem Zapfventil in 1 m Höhe horizontal betriebsmäßig erreichbare Bereich zuzüglich 1 m bis zu einer Höhe von 2 m über Erdgleiche.

(4) An Abgabeeinrichtungen für Wasserstoff entfallen die Wirkbereiche, sofern das Zapfventil ein Totvolumen von max. 3 cm3 hat und die Anforderungen von Abschnitt 4.1.6 Absatz 4 erfüllt sind.

(5) An Abgabeeinrichtungen für Flüssigerdgas werden keine Wirkbereiche festgelegt. Jedoch sind in einem Bereich um die Anschlussstelle der Füllkupplung am Fahrzeugtank mit Radius 0,5 m alle Zündquellen, die betrieblich oder bei vorhersehbaren Betriebsstörungen auftreten, zu vermeiden, z.B. durch Geräte in Gerätekategorie 2G gemäß Richtlinie 2014/34/EU .

(6) Der Wirkbereich bei der Befüllung der Lagerbehälter mit flüssigen Kraftstoffen ist die waagerechte Schlauchführungslinie zwischen den Anschlüssen am Tankfahrzeug und am Lagerbehälter zuzüglich 2,5 m nach allen Seiten.

(7) Die Wirkbereiche können durch geeignete Maßnahmen verkleinert werden, z.B. durch Wände, die so aufgestellt und ausgeführt sind, dass auftreffende flüssige Kraftstoffe oder Flüssiggas sicher auf die Abfüllfläche abgeleitet werden. Bei Wänden ist dies beispielhaft erfüllt, wenn sie mindestens 1 m hoch und ausreichend breit (bei der Betankung mindestens maximale Schlauchlänge einschließlich Zapfventil zuzüglich 1 Meter) sind.

(8) Der Wirkbereich muss belüftet sein.

4.1.8 Anordnung von Öffnungen zu benachbarten Räumen

(1) Die Ansammlung von Dämpfen flüssiger Kraftstoffe sowie von Flüssiggas, flüssigem Wasserstoff und Flüssigerdgas in tiefer gelegenen Räumen, Kellern, Gruben, Schächten und Kanälen, z.B. für Kabel oder Rohrleitungen, jeweils in gefahrdrohender Menge ist sicher zu vermeiden. Satz 1 gilt als erfüllt, wenn tiefer gelegene Räume, Schächte o. ä. keine Öffnungen zu Wirkbereichen und explosionsgefährdeten Bereichen haben. Satz 1 gilt nicht für Domschächte, Fernfüllschächte und Schächte unter Abgabeeinrichtungen, die als explosionsgefährdete Bereiche ausgewiesen und entsprechend ausgerüstet sind.

(2) Die Lagerung von Heizöl EL (Extra Leichtflüssig) und von nichtbrennbaren Betriebsstoffen, z.B. wässrige Harnstofflösung, muss so erfolgen, dass es zu keiner gefährlichen Flammpunkterniedrigung z.B. durch Beimischung von Kraftstoffdämpfen kommen kann. Dazu müssen Domschächte und sonstige Öffnungen von Tanks zur Lagerung von Heizöl EL und von nichtbrennbaren Betriebsstoffen, die nicht flüssigkeits- oder gasdicht abgedeckt sind, außerhalb der Wirkbereiche und explosionsgefährdeten Bereiche liegen.

(3) Wenn sich im Wirkbereich bei der Betankung von Fahrzeugen mit flüssigen Kraftstoffen oder Flüssiggas Abläufe zu Leichtflüssigkeitsabscheidern befinden, ist das nachfolgende Abwassersystem explosionsgeschützt auszuführen und der Ablauf mit einer Flammendurchschlagssicherung abzusichern.

4.1.9 Aufstellung der Anlagenteile von Gasfüllanlagen

4.1.9.1 Aufstellung in Räumen

(1) Anlagenteile von Gasfüllanlagen dürfen in Räumen nur aufgestellt werden, wenn die Räume

  1. selbstschließende Türen haben, falls diese nicht unmittelbar ins Freie führen,
  2. aus Bauteilen bestehen, die schwer entflammbar, z.B. mindestens Baustoffklasse C nach DIN EN 13501-1, oder nichtbrennbar, z.B. Baustoffklasse A1 oder A2s1, d0 nach DIN EN 13501-1, sind, ausgenommen Fenster und sonstige Verschlüsse von Öffnungen in Außenwänden,
  3. von anderen nicht zur Gasfüllanlage gehörenden Räumen feuerhemmend (Feuerwiderstandsdauer mindestens 30 min) abgetrennt sind,
  4. von angrenzenden nicht zur Gasfüllanlage gehörenden Räumen mit erhöhter Brandgefährdung feuerbeständig (Feuerwiderstandsdauer mindestens 90 min) abgetrennt sind; bei Räumen mit Druckgasbehältern mit einer Wärme- oder Kältedämmung genügt eine feuerhemmende Abtrennung (Feuerwiderstandsdauer mindestens 30 min) und
  5. von Räumen zum dauernden Aufenthalt von Menschen außerdem gasdicht abgetrennt sind. Siehe hierzu Absatz 9.

(2) Für Räume mit Anlagenteilen von Gasfüllanlagen, die unter Erdgleiche liegen, müssen im Rahmen der Gefährdungsbeurteilung geeignete Maßnahmen festgelegt sein wie z.B. eine Gaswarneinrichtung und Lüftungsmaßnahmen.

(3) Abweichend von Absatz 2 dürfen Verdichter-/Versorgungseinheiten von Gasfüllanlagen für verflüssigte entzündbare Gase nicht in Räumen aufgestellt werden, deren Fußböden allseitig unter Erdgleiche liegen. Bei erdgedeckten Druckgasbehältern, bei denen eine Stirnwand innerhalb einer Grube liegt, gilt diese Grube nicht als Raum im Sinne von Satz 1.

(4) Räume mit Anlagenteilen von Gasfüllanlagen dürfen nicht anderweitig genutzt werden, wenn dadurch eine Beeinträchtigung der Sicherheit von Anlagenteilen wie z.B. durch mechanische Einwirkungen, Brände oder Explosionen, entstehen kann. Materialien, die auf Grund ihres Wärmeinhaltes oder ihrer Menge nach keine Brandlast darstellen wie z.B. Kabelumhüllungen, Schutzkästen oder Wärmedämmungen von Rohrleitungen, dürfen vorhanden sein. Es dürfen Einrichtungen vorhanden sein, die für vor und nach dem Füllen erforderliche Arbeiten notwendig sind, z.B. für Probenahmen und Analysen.

(5) Anlagenteile von Gasfüllanlagen dürfen in Aufenthaltsräumen nicht aufgestellt werden. Sie dürfen in Arbeitsräumen nicht aufgestellt werden, wenn dort nicht nur vorübergehend Menschen beschäftigt sind.

(6) Räume mit Anlagenteilen von Gasfüllanlagen müssen unter Berücksichtigung der Eigenschaften und der möglichen Mengen der freigesetzten Gase ausreichend be- und entlüftet werden. Die Forderung nach ausreichender Lüftung ist für technisch dichte Gasfüllanlagen in der Regel erfüllt, wenn

  1. bei natürlicher Belüftung die Lüftungsöffnungen unmittelbar ins Freie führen und einen Gesamtquerschnitt von mindestens 1 % der Bodenfläche des Raumes besitzen; bei der Anordnung der Lüftungsöffnungen muss die Dichte der Gase berücksichtigt werden,
  2. bei technischer Lüftung die Lüftungseinrichtung mindestens einen zweifachen Luftwechsel in der Stunde gewährleistet. Lüftungstechnische Kurzschlüsse sind zu vermeiden. Die Entlüftungsöffnungen müssen unmittelbar ins Freie führen. Die Lüftungseinrichtung muss entweder ständig wirksam sein oder durch eine Gaswarneinrichtung automatisch eingeschaltet werden, wenn ein festgelegter Grenzwert überschritten wird. Bei einem Ausfall der Lüftungseinrichtung muss ein Alarm ausgelöst werden.

Die Abluft muss gefahrlos abgeleitet werden.

(7) In Räumen mit Anlagenteilen von Gasfüllanlagen dürfen keine Luftansaugöffnungen für die Belüftung anderer Räume angeordnet sein.

(8) In Räumen mit Anlagenteilen von Gasfüllanlagen für Gase schwerer als Luft oder für tiefgekühlt verflüssigte Gase dürfen sich keine

  1. offenen Kanäle,
  2. gegen Gaseintritt ungeschützte Kanaleinläufe,
  3. offenen Schächte,
  4. Öffnungen zu tiefer liegenden Räumen und
  5. Luftansaugöffnungen

befinden.

(9) Über Absatz 1 Nummer 5 hinaus dürfen sich Räume mit Anlagenteilen von Gasfüllanlagen neben, unter oder über Räumen, die dem dauernden Aufenthalt von Menschen dienen, nur befinden, wenn die Trennwände zu diesen angrenzenden Räumen zusätzlich feuerbeständig (Feuerwiderstandsdauer mindestens 90 min) ausgeführt sind. Bei der Installation von Anlagenteilen der Gasfüllanlage auf Dachflächen müssen die Aufstellflächen feuerbeständig ausgeführt sein, außer Dachflächen von Verdichtergebäuden, -container als baulich abgeschlossene Einheit und ohne angrenzende Räume. Satz 2 gilt nicht bei der ausschließlichen Verlegung von Rohrleitungen auf den Dachflächen.

(10) Die Aufstellorte von Verdampfern, Verdichtern, Pumpen, Lager- und Pufferbehältern sind gegen den Zutritt Unbefugter zu sichern.

(11) Es sind Maßnahmen gegen eine Verschleppung von gasförmigen Kraftstoffen in benachbarte Räume, die nicht explosionsgeschützt ausgeführt sind, zu treffen. Dazu sind alle Trennwände sowie Rohr-, Kabel- und Leitungsdurchführungen in Gebäuden zwischen Bereichen, in denen mit einer Ansammlung von gasförmigen Kraftstoffen gerechnet werden muss, und Bereichen, in denen dies nicht der Fall ist, so auszuführen, dass eine Verschleppung von gasförmigen Kraftstoffen nicht möglich ist, z.B. durch gasdichte Wände und Durchführungen, die so konstruiert und ausgebildet sind, dass das Durchtreten von Gasen und Dämpfen vermieden wird. Rohre und Leitungen müssen durch Wände mit Brandschutzanforderungen so geführt werden, dass die Abschottungen mindestens die gleiche Feuerwiderstandsfähigkeit aufweisen wie die raumabschließenden Bauteile.

4.1.9.2 Aufstellung im Freien

(1) Können sich Gase schwerer als Luft auf Grund eines Gefälles über den Aufstellplatz einer Gasfüllanlage hinaus in tiefer liegende Räume, Kanäle, Schächte oder Luftansaugöffnungen ausbreiten, müssen Einrichtungen vorhanden sein, die die Ausbreitung verhindern. Dies kann z.B. durch einen Wall oder eine Mauer mit angemessener Dimensionierung und Dichtheit erfolgen.

(2) Anlagenteile von Gasfüllanlagen müssen vor mechanischer Beschädigung geschützt sein. Ist ein Schutzabstand nicht ausreichend, muss ein Anfahren durch Fahrzeuge

  1. bei oberirdischen Anlagenteilen von Gasfüllanlagen z.B. durch einen entsprechend den örtlichen Gegebenheiten und den möglichen Belastungen dimensionierten Anfahrschutz oder eine andere in Abschnitt 4.2.8 Absatz 9 ausgeführte Schutzmaßnahme, und
  2. bei erdgedeckten Druckgasbehältern z.B. durch Überfahrbarkeit der Domschachtabdeckung, wenn sich die ersten Absperrarmaturen im Domschacht befinden, oder durch Anfahrschutz für die Absperrarmaturen,

verhindert sein. Bezüglich der Aufstellung von Abgabeeinrichtungen wird auf Abschnitt 4.1.6 verwiesen.

(3) Im Bereich von Anlagenteilen von Gasfüllanlagen für tiefgekühlt verflüssigte entzündbare Gase muss der Boden so ausgebildet sein, dass evtl. auslaufendes Gas gefahrlos auf gefangen wird, z.B. durch eine Aufkantung, Wanne oder ein Gefälle von etwa 2 % in eine ungefährliche Richtung. Dabei darf keine Gefährdung von anderen Gasfüllanlagen und Tankstellen entstehen.

(4) Bei Gasfüllanlagen für Flüssiggas dürfen 5 m um betriebsbedingte Freisetzungsstellen (z.B. Schlauchkupplungen der Füllschläuche) keine

  1. offenen Kanäle,
  2. gegen Gaseintritt ungeschützte Kanaleinläufe,
  3. offenen Schächte,
  4. Öffnungen zu tiefer liegenden Räumen,
  5. Luftansaugöffnungen

angeordnet sein.

4.1.9.3 Sicherheitsabstand und Begrenzung der Ausbreitung freigesetzter Gase

(1) Im Rahmen der Gefährdungsbeurteilung sind Sicherheitsabstände zu Schutzobjekten für den bestimmungsgemäßen Betrieb festzulegen.

(2) Bei Festlegung der Sicherheitsabstände laut Absatz 1 sind neben der betriebsbedingten Freisetzung insbesondere folgende Gefährdungen durch Gase zu berücksichtigen:

  1. Füll- und Entleervorgänge,
  2. temperaturbedingte Ausdehnungen, die z.B. zu unzulässigen Drücken führen,
  3. Dichtheit der Anlagenteile der Gasfüllanlage, wie z.B. technisch dicht oder auf Dauer technisch dicht, siehe TRGS 722 Abschnitt 2.4.3, Verdichter und Kompressoren können auf Grund von Vibrationen etc. nicht als auf Dauer technisch dicht eingestuft werden.
  4. Spül- und Reinigungsvorgänge,
  5. Entspannung von Rohrleitungen,
  6. regelmäßig vorgesehene Instandhaltungsarbeiten.

(3) Soweit unter Berücksichtigung der nach Absatz 2 genannten Aspekte bei der Gefährdungsbeurteilung keine größeren Abstände erforderlich sind, sind folgende Mindestabstände einzuhalten:

  1. Bei Gasfüllanlagen für Flüssiggas mit einem Fassungsvermögen < 3 t beträgt der Sicherheitsabstand 3 m.
  2. Bei Gasfüllanlagen für Wasserstoff mit einem Fassungsvermögen < 3 t beträgt der Sicherheitsabstand 3 m.
  3. Bei Gasfüllanlagen für Erdgas mit einem Fassungsvermögen < 3 t beträgt der Sicherheitsabstand 3 m.
  4. Bei Gasfüllanlagen für Flüssigerdgas mit einem Fassungsvermögen von 3 t bis 50 t beträgt der Sicherheitsabstand 7 m. Der Abstand zwischen zwei LNG-Behältern muss mindestens 3 m betragen.

4.1.9.4 Zusätzliche Anforderungen an Gasfüllanlagen für Wasserstoff

(1) Gasfüllanlagen für Wasserstoff und deren Anlagenteile müssen mindestens technisch dicht gemäß TRGS 722 Abschnitt 2.4.3.3 ausgeführt sein und gemäß TRGS 722 A bschnitt 2.4.3.5 geprüft werden.

(2) Räume, in denen Anlagenteile für Gasfüllanlagen für Wasserstoff angeordnet sind, müssen gemäß Abschnitt 4.1.9.1 Absatz 6 eine ausreichende Durchlüftung aufweisen. Die Entlüftungsöffnungen müssen unmittelbar ins Freie führen. Dies ist z.B. bei Räumen mit natürlicher Querbelüftung erfüllt, wenn die Belüftungsöffnungen möglichst an tiefster Stelle und die Entlüftungsöffnungen an höchster Stelle im Deckenbereich angebracht sind und die freie Fläche der Be- und Entlüftungsöffnungen einen Gesamtquerschnitt von mindestens 1 % der Bodenfläche des Raumes beträgt.

(3) Räume nach Absatz 2 mit technisch dichten Anlagenteilen sind mit einer Gaswarneinrichtung (GWE) zu überwachen. In Abhängigkeit von der Bauart und Betriebsweise der Anlage muss bei maximal 20 % der unteren Explosionsgrenze (UEG) ein Voralarm ausgelöst werden. Bei maximal 40 % der unteren Explosionsgrenze (UEG) muss eine Notabschaltung den Wasserstoffverdichter abschalten und die Ventile der zugehörigen Nebenanlagen schließen. Sofern im Rahmen der Gefährdungsbeurteilung nicht anders festgelegt, ist auch eine evtl. laufende Fahrzeugbetankung zu unterbrechen. Ist eine technische Lüftung gemäß Abschnitt 4.1.9.1 Absatz 6 Nummer 2 erforderlich, muss diese bei Auslösung der Notabschaltung automatisch zugeschaltet werden.

(4) Absatz 3 gilt nicht für Räume, in denen ausschließlich auf Dauer technisch dichte Anlagenteile vorhanden sind. Dies kann z.B. bei Räumen zutreffen, in denen sich ausschließlich Lager- oder Pufferbehälter für Wasserstoff sowie die zugehörige Verrohrung und Armaturen befinden und die Verbindungselemente gemäß TRGS 722 Abschnitt 2.4.3.2 Absatz 7 auf Dauer technisch dicht ausgeführt sind.

(5) Jeder Alarm muss zur Einleitung von Maßnahmen an eine zentrale Leitstelle weitergeleitet werden. Es ist sicherzustellen, dass Räume gemäß Abschnitt 4.2.5.1 Absatz 1 Nummer 8 erst nach Feststellung der Gasfreiheit betreten werden, siehe auch Abschnitt 5.2. Nach einer Notabschaltung der Anlage darf die Anlagenur durch eine unterwiesene Fachkraft wieder in Betrieb genommen werden.

(6) Die Dichtheit der Anlagenteile der Wasserstofffüllanlage muss jährlich überprüft und dokumentiert werden.

4.1.9.5 Zusätzliche Anforderungen an Gasfüllanlagen für Flüssigerdgas (LNG) einzeln und in Kombination mit Abgabeeinrichtungen für gasförmiges Erdgas (LCNG-Anlagen)

(1) Gasfüllanlagen für Flüssigerdgas und deren Anlagenteile müssen mindestens technisch dicht gemäß TRGS 722 Abschnitt 2.4.3.3 ausgeführt sein und gemäß TRGS 722 Abschnitt 2.4.3.5 geprüft werden.

(2) Aufstellungsräume für Gasfüllanlagen für Flüssigerdgas und deren Anlagenteile, außer deren Abgabeeinrichtungen, sowie Räume mit Lagerbehältern müssen eine ausreichende Durchlüftung, in der Regel Querbelüftung, aufweisen. Bei natürlicher Lüftung sind die Belüftungsöffnungen möglichst an tiefster Stelle, die Entlüftungsöffnungen an höchster Stelle im Deckenbereich anzubringen. Lüftungstechnische Kurzschlüsse sind zu vermeiden. Die Entlüftungsöffnungen müssen unmittelbar ins Freie führen. Die freie Fläche der Be- und Entlüftungsöffnungen muss einen Gesamtquerschnitt von mindestens 1 % der Bodenfläche des Raumes betragen.

(3) Räume nach Absatz 2 mit technisch dichten Anlagenteilen sind mit einer Gaswarneinrichtung (GWE) zu überwachen.

(4) Wenn die Gaswarneinrichtung nach Absatz 3 verdampftes Flüssigerdgas in der Umgebungsluft feststellt, muss bei 20 % der unteren Explosionsgrenze (UEG) eine technische Lüftung automatisch zugeschaltet und ein Voralarm ausgelöst werden. Bei 40 % der unteren Explosionsgrenze (UEG) muss die Notabschaltung ausgelöst werden (Abschalten der Nebenanlagen, Schließen der Ventile). Sofern im Rahmen der Gefährdungsbeurteilung nicht anders festgelegt, ist eine evtl. laufende Fahrzeugbetankung zu unterbrechen. Bei Ausfall der technischen Lüftung muss automatisch eine Notabschaltung ausgelöst werden.

(5) Jeder Alarm muss zur Einleitung von Maßnahmen an eine zentrale Leitstelle weitergeleitet werden. Durch organisatorische Maßnahmen ist sicher zu stellen, dass Räume nach Absatz 2 erst nach Feststellung der Gasfreiheit betreten werden, siehe auch Abschnitt 5.2. Nach einer Notabschaltung der Anlage darf die Anlagenur durch eine unterwiesene Fachkraft wieder in Betrieb genommen werden.

(6) Verdampftes LNG, das als CNG zur Betankung an Kraftfahrzeuge abgegeben werden soll, ist zu odorieren, damit der Fahrer im Falle von Undichtheiten gewarnt wird. Einzelheiten zur Odorierung von Erdgas ist dem DVGW-Merkblatt G280 zu entnehmen.

4.1.9.6 Gasfüllanlagen in nichtöffentlichen Bereichen

Ist eine Gasfüllanlage für den Betrieb in einem nicht öffentlichen Bereich vorgesehen und nicht selbst umfriedet bzw. ihre Armaturen eingeschlossen, sondern Teil eines größeren umfriedeten Bereichs (Werksgelände), so sind organisatorische Maßnahmen wie z.B. entsprechende Unterweisung, ausreichend, sofern dies in der Gefährdungsbeurteilung nicht anderweitig festgelegt ist.

4.1.10 Festlegung und Zoneneinteilungen von explosionsgefährdeten Bereichen

4.1.10.1 Allgemeines

(1) An Teilen von Tankstellen und Gasfüllanlagen für Kraftstoffe und Betriebsstoffe mit Flammpunkt ≤ +55 °C kann die Bildung gefährlicher explosionsfähiger Atmosphäre in der Regel nicht sicher verhindert werden. Bei der Gefährdungsbeurteilung einer Betankungsanlage ist von einer Vielzahl von Bereichen, in denen mit dem Vorhandensein einer gefährlichen explosionsfähigen Atmosphäre gerechnet werden muss, auszugehen. Diese Bereiche sind als explosionsgefährdete Bereiche auszuweisen. Für eine Einteilung von explosionsgefährdeten Bereiche in Zonen gilt Anhang 1 Nummer 1.6 Absatz 3 GefStoffV. Es ist ein Explosionsschutzdokument nach § 6 Absatz 9 GefStoffV zu erstellen. Siehe hierzu auch TRGS 721 und 722.

(2) Die in Abschnitt 4 dieser Technischen Regel genannten beispielhaften Maßnahmen setzen die folgenden Festlegungen der explosionsgefährdeten Bereiche und Zoneneinteilungen voraus. Macht der Arbeitgeber von der Möglichkeit Gebrauch, gemäß Anhang 1 Nummer 1.6 Absatz 3 GefStoffV von einer Zoneneinteilung abzusehen, sind grundsätzlich die gemäß dieser technischen Regel für die Zone 0 angegebenen Schutzmaßnahmen zu treffen. Abweichungen hiervon sind zulässig, wenn diese in der Dokumentation der Gefährdungsbeurteilung nach § 6 Absatz 9 GefStoffV begründet festgelegt werden.

(3) Die in den folgenden Abschnitten beschriebenen Zoneneinteilungen sind für Ottokraftstoffe und Flüssiggas in den Abbildungen 3 bis 5 dargestellt. In der Gefährdungsbeurteilung können im Einzelfall andere Zoneneinteilungen getroffen werden.

4.1.10.2 Explosionsgefährdete Bereiche an Abgabeeinrichtungen und Fernfüllschränken

(1) Für flüssige Kraftstoffe und Flüssiggas ist das Innere des Armaturenteils von Abgabeeinrichtungen, das Innere der Schutzgehäuse für Förder- und Messeinheiten von Zapfsystemen, die Sockelschächte von Abgabeeinrichtungen sowie das Innere von Fernfüllschränken Zone 1 ( Abbildung 3).

Abbildung 3: Einstufung der explosionsgefährdeten Bereiche an Zapfsäulen für Ottokraftstoff und Flüssiggas

(3) Für flüssige Kraftstoffe ist das Innere von Gehäusen oder Verkleidungen für oberirdische Rohrleitungen mit lösbaren Verbindungen Zone 2.

(4) Für flüssige Kraftstoffe ist der Bereich bis zu einem Abstand von 0,2 m um Kleinzapfgeräte Zone 2.

(5) Für Erdgas, Flüssigerdgas und Wasserstoff ist das Innere des Armaturenteils von Abgabeeinrichtungen Zone 2, wenn die Bauteile und Verbindungen technisch dicht sind und eine ausreichende natürliche Lüftung vorliegt, die z.B. mit diagonal angeordneten Öffnungen mit mindestens je 60 cm2 gewährleistet ist.

(6) Wenn die Abgabeeinrichtung für Erdgas, Flüssigerdgas oder Wasserstoff kombiniert mit Abgabeeinrichtungen für flüssige Kraftstoffe oder Flüssiggas ausgeführt ist, ist das Innere des Armaturenteils für Erdgas, Flüssigerdgas oder Wasserstoff abweichend von Absatz 5 Zone 1. Bezüglich der explosionsschutztechnischen Kenngrößen wird auf Abschnitt 4.1.6 Absatz 3 verwiesen.

(7) Ist das Innere der Abgabeeinrichtung für Erdgas, Flüssigerdgas oder Wasserstoff gemäß Absatz 6 in Zone 1 eingestuft, ist der Bereich bis zu einem Abstand von 0,2 m von der Gehäuseoberkante bis zum Erdboden um die Abgabeeinrichtungen Zone 2. Ist das Innere des Armaturenteils gemäß Absatz 5 in Zone 2 eingestuft, ist um das Armaturenteil kein explosionsgefährdeter Bereich.

(8) Wenn Abgabeeinrichtungen für Kraftstoffe in Räumen aufgestellt werden, muss mit einer Ansammlung von gefährlicher explosionsfähiger Atmosphäre gerechnet werden, die zu einem explosionsgefährdeten Bereich führt. Durch geeignete Maßnahmen nach TRGS 722, z.B. eine objektbezogene Absaugung, kann auf die Festlegung von explosionsgefährdeten Bereichen verzichtet werden. Satz 1 und 2 gelten sinngemäß auch für Räume, die nicht allseitig umschlossen sind.

(9) Werden Abgabeeinrichtungen für Betriebsstoffe mit Abgabeeinrichtungen für Kraftstoffe kombiniert, gelten die Absätze 1 bis 8 entsprechend. Bezüglich der explosionsschutztechnischen Kenngrößen wird auf Abschnitt 4.1.6 Absatz 3 verwiesen.

(10) Berührt der explosionsgefährdete Bereich außerhalb der Abgabeeinrichtung für Kraftstoffe die Abgabeeinrichtungen für Betriebsstoffe, so erweitert sich der explosionsgefährdete Bereich entsprechend Absatz 2 und 7 um die äußere Kontur der Abgabeeinrichtung für Betriebsstoffe. Gleichzeitig ist das Innere der Abgabeeinrichtung für Betriebsstoffe Zone 2.

4.1.10.3 Explosionsgefährdete Bereiche in und an Lagerbehältern für Kraftstoffe sowie Behältern zur Lagerung flüssiger Betriebsstoffe

(1) Für flüssige Kraftstoffe gelten die Anforderungen dieser Abschnitt an die explosionsgefährdeten Bereiche in und an Lagerbehältern auch für die explosionsgefährdeten Bereiche in und an Behältern zur Lagerung flüssiger Betriebsstoffe mit einem Flammpunkt ≤ +55 °C.

(2) Für flüssige Kraftstoffe ist das Innere aller Lagerbehälter Zone 0 ( Abbildung 5). Satz 1 gilt auch für alle Lagerbehälter für flüssige Kraft- und Betriebsstoffe mit unterschiedlichen Gefahrenmerkmalen gemäß Abschnitt 2 Absatz 13, die gemäß Abschnitt 4.2.1.3 Absatz 6 über die gleichen Lüftungsleitungen belüftet und entlüftet werden.

(3) Lagerbehälter für Flüssiggas, Flüssigerdgas, Erdgas und Wasserstoff sind ausschließlich mit diesen Kraftstoffen gefüllt, d. h. in den Lagerbehältern kann sich wegen des fehlenden Sauerstoffs keine explosionsfähige Atmosphäre bilden. Daher ist das Innere von Lagerbehältern für Flüssiggas ( Abbildung 4), Erdgas, Flüssigerdgas und Wasserstoff kein explosionsgefährdeter Bereich.

Abbildung 4: Einstufung der explosionsgefährdeten Bereiche bei Gasfüllanlagen für Flüssiggas

(4) Für flüssige Kraftstoffe ist um die Mündung einer Entlüftungseinrichtung (Atmungsmast) unterirdischer Lagerbehälter ein kugelförmiges Volumen mit 0,5 m Radius Zone 1 (Abbildung 5).

Abbildung 5: Einstufung der explosionsgefährdeten Bereiche an Tankstellen für flüssige Kraftstoffe

(5) Für flüssige Kraftstoffe ist um die Mündung der Entlüftungseinrichtung oberirdischer Lagerbehälter ein zylindrisches Volumen mit Radius 2 m Zone 1. Der Zylinder beginnt 3 m über der Mündung der Entlüftungseinrichtung und reicht herab bis zur Kontur des Lagerbehälters oder bis zur Erdgleiche. Berührt die Zone 1 um die Entlüftungseinrichtung die Konturen des Lagerbehälters, ist ferner der Bereich um die Konturen des Lagerbehälters bis zu einem Abstand von 1,5 m Zone 1. Daran schließt sich ein Bereich Zone 2 an als Zylinder mit dem Radius 4 m, der 3 m über der Mündung der Entlüftungseinrichtung beginnt und bis zur Erdgleiche herab reicht. Sofern die Zone 1 um die Entlüftungseinrichtung die Konturen des Lagerbehälters berührt, ist ferner der Bereich um die Konturen des Lagerbehälters bis zu einem Abstand von 3 m vertikal und 5 m horizontal Zone 2, soweit er nicht Zone 1 ist. Berührt die Zone 1 um die Mündung der Entlüftungseinrichtung nicht die Kontur des oberirdischen Lagerbehälters, ist der Bereich bis zu einem Abstand von 1 m um den Lagerbehälter Zone 2.

(6) Für flüssige Kraftstoffe ist um die Öffnungen im Dampfraum von oberirdischen Lagerbehältern, die betriebsmäßig geöffnet werden, z.B. um Peil- und Probenentnahmeöffnungen, ein kugelförmiges Volumen mit Radius 1 m Zone 1 und weitere 2 m Zone 2.

(7) Für Flüssiggas ist um Peil- und Probenentnahmeöffnungen sowie um das Füllventil von oberirdischen Lagerbehältern ein Bereich mit Radius 1 m Zone 1. Daran schließt sich ein Bereich der Zone 2 kegelförmig bis zum Boden an (Radius der Fläche am Boden beträgt 3 m). Erstreckt sich der explosionsgefährdete Bereich auf Nachbargrundstücke, auf benachbarte Verkehrsflächen oder auf öffentliche Verkehrswege, ist während des Befüllvorgangs der explosionsgefährdete Bereich entweder durch

  1. bauliche Maßnahmen, z.B. Einschränkung der Freisetzungsausbreitung an maximal zwei Seiten durch öffnungslose, mindestens einseitig verputzte Wände oder
  2. andere schwadenhemmende Abtrennungen, die eine Luftströmung wirksam verhindern, zu begrenzen oder
  3. es sind entsprechende vertragliche Nutzungsvereinbarungen mit den Nachbarn zu treffen.

(8) Um die Öffnungen von Abblaseleitungen für Flüssiggas ist die Bildung einer gefährlichen explosionsfähigen Atmosphäre sicher verhindert, wenn das Ansprechen des Sicherheitsventils durch folgende Maßnahmen verhindert wird:

  1. Vermeidung einer Überfüllung durch Verwendung von bauteilgeprüften Überfüllsicherungen und
  2. Verhinderung einer unzulässigen Erwärmung durch erdgedeckte Lagerung sowie bei oberirdischen Lagerbehältern durch einen reflektierenden Schutzanstrich.

Anderenfalls ist ein kugelförmiger Bereich mit Radius 1 m als Zone 2 um die Öffnungen von Abblaseleitungen festzulegen.

(9) Die explosionsgefährdeten Bereiche um die Entspannungsöffnungen von Anlagenteilen für Erdgas sind im Einzelfall mit einem geeigneten Berechnungsverfahren zu ermitteln und festzulegen. Geeignete Berechnungsverfahren können z.B. der Beispielsammlung der DGUV-Regel 113- 001 Nummer 4.2.2.7 oder dem DVGW-Merkblatt G 442: 2015-07 Anhang F entnommen werden.

(10) Um die Entspannungsöffnungen der Abblaseleitung von Anlagenteilen für gasförmigen Wasserstoff ist ein kugelförmiges Volumen mit Radius 1 m Zone 1. Daran schließt sich ein Bereich Zone 2 an, der die Form eines auf dem Kopf stehenden Kegelstumpfes aufweist. Die untere kreisförmige Begrenzung des Kegelstumpfes befindet sich in Höhe der Entspannungsöffnung und hat einen Radius von 1 m, die obere kreisförmige Begrenzung des Kegelstumpfes befindet sich 3 m oberhalb der Entspannungsöffnung und hat einen Radius von 3 m ( Abbildung 6).

Für flüssigen Wasserstoff sind die explosionsgefährdeten Bereiche im Einzelfall im Rahmen der Gefährdungsbeurteilung festzulegen.

Abbildung 6: Größe des explosionsgefährdeten Bereichs um die Entspannungsöffnung der Abblaseleitung für Wasserstoff

(11) Um die Entspannungsöffnung der Abblase- und Entspannungsleitung von Anlagenteilen für Flüssigerdgas ist ein Bereich kugelförmig mit einem Radius 1m um die Austrittsstelle mit nach oben tangential an die Kugel anschließendem Kegelstumpf mit obenliegender Basisfläche, deren Radius 3 m und deren Abstand H zur Austrittstelle 3 m beträgt, Zone 2 (siehe Abbildung 7).

Abbildung 7: Größe des explosionsgefährdeten Bereichs um die Entspannungsöffnung der Abblase- und Entspannungsleitung für Flüssigerdgas (LNG)

(12) Räume über Erdgleiche mit oberirdischen Lagerbehältern für flüssige Kraftstoffe oder für Flüssiggas mit einer Lüftung gemäß Abschnitt 4.1.9.1 Absatz 6 sind in Zone 2 einzustufen. Räume unter Erdgleiche, insbesondere Kellerräume, sind technisch mit mindestens zweifachem Luftwechsel pro Stunde wirksam zu belüften und sind in Zone 2 einzustufen. Für Räume mit oberirdischen Lagerbehältern für Erdgas, Flüssigerdgas oder Wasserstoff wird auf die Abschnitte 4.1.10.6 und 4.1.10.7 verwiesen.

4.1.10.4 Explosionsgefährdete Bereiche in und an Rohrleitungen, Armaturen und Anlagenteilen für Kraftstoffe

(1) Dieser Abschnitt gilt gleichermaßen auch für flüssige Betriebsstoffe mit einem Flammpunkt ≤ +55 °C.

(2) Für flüssige Kraftstoffe ist das Innere von Rohrleitungen, Armaturen und Anlagenteilen, die nicht ständig mit Kraftstoff gefüllt bleiben, Zone 0.

(3) Um technisch dichte lösbare Verbindungen von Rohrleitungen, die betriebsmäßig nicht oder nur selten gelöst werden, sowie um technisch dichte Armaturen und Anlagenteile in Räumen ist

  1. für flüssige Kraftstoffe, Flüssiggas und Flüssigerdgas ein Bereich 1 m horizontal um die Verbindung bis zum Boden,
  2. Erdgas und Wasserstoff ein kugelförmiger Bereich mit einem Durchmesser von 1 m

Zone 2. Abweichend von Satz 1 ist im Freien kein explosionsgefährdeter Bereich.

(4) Um Verbindungen von Rohrleitungen, die auf Dauer technisch dicht sind, ist kein explosionsgefährdeter Bereich.

(5) Für flüssige Kraftstoffe und deren Dämpfe ist um Rohrleitungs- und Schlauchanschlussstellen im Freien um jede Kupplungshälfte eine Kugel mit Radius 0,5 m Zone 1. In Räumen mit mindestens zweifachem Luftwechsel pro Stunde ist um jede Kupplungshälfte eine Kugel mit Radius 1 m Zone 1 und ein Bereich bis 2 m horizontal und vertikal 0,8 m Zone 2.

(6) Der explosionsgefährdete Bereich nach Absatz 5 gilt sowohl für gekuppelte als auch für getrennte Kupplungshälften. Der explosionsgefährdete Bereich um die Kupplungshälften nach Absatz 5 erstreckt sich über den gesamten Bereich, der während des Hantierens von den Kupplungshälften überstrichen werden kann.

(7) Bei Rohrleitungs- und Schlauchanschlussarmaturen nach Absatz 5 und 6, die im getrennten Zustand technisch dicht sind und nur eine geringe Freisetzung von brennbaren Flüssigkeiten oder deren Dämpfen ermöglichen wie z.B. Trockenkupplungen, ist abweichend ein explosionsgefährdeter Bereich bis zu einem Abstand von 0,5 m um die Kupplungshälften Zone 2. Der Bereich reicht bei flüssigkeitsführenden Rohrleitungen/Schläuchen nach unten bis zum Boden.

(8) Für Flüssiggas, Flüssigerdgas oder Wasserstoff ist um Rohrleitungs- und Schlauchanschlussarmaturen im Freien ein kugelförmiger Bereich mit Radius 1 m Zone 1.

(9) Wenn Rohr- und Schlauchleitungsanschlüsse für Flüssiggas, Flüssigerdgas oder Wasserstoff in Räumen über Erdgleiche errichtet und betrieben werden, ist der Raum in Zone 1 einzustufen.

(10) Abweichend von Absatz 8 und 9 ist um dicht verschlossene und durch eine Armatur, z.B. mit einem Blindflansch oder Deckel, von der Produktzufuhr abgesperrte Rohrleitungs- und Schlauchanschlussstellen kein explosionsgefährdeter Bereich.

4.1.10.5 Explosionsgefährdete Bereiche in und an Domschächten, Fernfüllschächten und sonstigen Räumen unter Erdgleiche für flüssige Kraftstoffe und Flüssiggas sowie in Rückhalteeinrichtungen für flüssige Kraftstoffe

(1) Dieser Abschnitt gilt gleichermaßen auch für flüssige Betriebsstoffe mit einem Flammpunkt ≤ +55 °C.

(2) Das Innere von Domschächten, Fernfüllschächten, Pumpenschächten und Verteilerschächten ist explosionsgefährdeter Bereich Zone 1.

(3) Das Innere von Gruben, Kammern, Schächten und anderen Räumen unter Erdgleiche, die in Wirkbereichen von Abgabeeinrichtungen für flüssige Kraftstoffe und/oder Flüssiggas liegen, ist explosionsgefährdeter Bereich Zone 1 (siehe Abbildung 4 und 5).

(4) Um Schächte, die betrieblich geöffnet werden, ist kein explosionsgefährdeter Bereich. Jedoch ist im geöffneten Zustand mit dem zeitweiligen Auftreten von explosionsfähiger Atmosphäre zu rechnen, sodass in einem Bereich mit einem horizontalen Abstand von 2 m um die Öffnungen bis zu einer Höhe von 0,8 m über der Erdgleiche betrieblich zu erwartende Zündquellen zu vermeiden sind. Fest installierte Geräte, z.B. Abgabeeinrichtungen, müssen mindestens der Gerätekategorie 3G entsprechen.

(5) Für flüssige Kraftstoffe ist das Innere einer Rückhalteeinrichtung (z.B. Leichtflüssigkeitsabscheider) Zone 1. Das Innere der Entwässerungsleitung zwischen den Abläufen der Abfüllflächen und der Rückhalteeinrichtung ist Zone 2.

4.1.10.6 Explosionsgefährdete Bereiche um Anlagen für Erdgas und Flüssigerdgas

(1) Räume mit Anlagenteilen von Gasfüllanlagen für Erdgas oder Flüssigerdgas, z.B. Erdgasverdichtern mit Nebenanlagen oder LNG-Pumpen, die gemäß Abschnitt 4.1.9.5 mit einer Gaswarneinrichtung (GWA) überwacht werden, sind Zone 2.

(2) Befindet sich in den Räumen für Erdgas nach Absatz 1 eine manuelle Kondensatentleerung, so ist der gesamte Raum Zone 1.

(3) Um die Entlüftungsöffnung nach außen von Räumen nach Absatz 1 und 2, die nach Absatz 2 in Zone 1 eingestuft sind, ist ein kugelförmiger Bereich mit Radius 0,2 m Zone 2. Ansonsten ist kein explosionsgefährdeter Bereich festzulegen.

(4) Um Erdgasverdichter im Freien, bei denen die natürliche Lüftung nicht eingeschränkt wird und die mindestens als technisch dicht gelten, ist kein explosionsgefährdeter Bereich.

(5) Um die Austrittsöffnung einer manuellen Kondensatentleerung im Freien ist eine Kugel mit Radius 0,5 m um die Austrittsöffnung Zone 1.

4.1.10.7 Explosionsgefährdete Bereiche um Anlagen für Wasserstoff

(1) Räume gemäß Abschnitt 4.2.5.1 Absatz 1 Nummer 8 mit einer Gaswarneinrichtung und Lüftung gemäß Abschnitt 4.1.9.4 Absatz 2 bis 4 sind in Zone 2 einzustufen.

(2) Räume mit Lager- und Pufferbehältern für Wasserstoff sind Zone 2.

(3) Um die Entlüftungsöffnung nach außen ist kein explosionsgefährdeter Bereich festzulegen.

(4) Um Anlagenteile von Gasfüllanlagen für Wasserstoff im Freien, bei denen die natürliche Lüftung nicht eingeschränkt wird und die mindestens als technisch dicht gelten, ist kein explosionsgefährdeter Bereich.

4.1.11 Notwendigkeit und Anordnung von Flammendurchschlagsicherungen für flüssige Kraft- und Betriebsstoffe 20

(1) Dieser Abschnitt gilt gleichermaßen auch für flüssige Betriebsstoffe mit einem Flammpunkt ≤ +55 °C. Lagerbehälter und Rohrleitungen für Flüssiggas, Erdgas, Wasserstoff und Flüssigerdgas sind ausschließlich mit diesen Kraftstoffen gefüllt, d. h. in den Lagerbehältern kann sich wegen des fehlenden Sauerstoffs keine explosionsfähige Atmosphäre bilden. Eine Absicherung dieser Lagerbehälter mit Flammendurchschlagsicherungen entfällt daher.

(2) Für flüssige Kraftstoffe muss das Hineinschlagen von Flammen durch Öffnungen in die Lagerbehälter verhindert werden. Satz 1 ist erfüllt, wenn die Öffnungen mit Flammendurchschlagsicherungen ausgerüstet sind.

(3) Abweichend von Absatz 2 sind Flammendurchschlagsicherungen nicht erforderlich für

  1. Öffnungen von Lagerbehältern, die betriebsmäßig fest verschlossen und so gesichert sind, dass ein unbeabsichtigtes Lockern ihres Verschlusses ausgeschlossen ist,
  2. verschließbare Peilöffnungen,
  3. Öffnungen von Lagerbehältern, die ständig mit Flüssigkeit gefüllt sind,
  4. Öffnungen von als explosionsdruckstoßfest geltenden unterirdischen Standardtanks (Prüfüberdruck 2 bar, max. Volumen 100 m3) mit und ohne Unterteilungen, die mit einer allseitigen Erddeckung von mindestens 1 m versehen sind, in denen flüssige Kraftstoffe mit einem oberen Explosionspunkt < -4 °C gelagert werden und in die außer durch die Tankatmung oder die Gasrückführung keine zusätzliche Luft gelangt. Auf die Verwaltungsvorschrift Technische Baubestimmungen ( VVTB) wird verwiesen.
  5. Öffnungen von unterirdischen Standardtanks (Prüfüberdruck 2 bar, max. Volumen 100 m3) mit und ohne Unterteilungen, die mit einer allseitigen Erddeckung von min destens 1 m versehen sind und in denen flüssige Betriebsstoffe mit einem Flammpunkt > +55 °C gelagert werden, auch dann, wenn die Öffnungen im Wirkbereich von Füll- und Abgabeeinrichtungen für Kraftstoffe liegen (z. B in einem gemeinsamen Fernfüllschacht/schrank). Auf die Verwaltungsvorschrift Technische Baubestimmungen ( VVTB) wird verwiesen.

Die in der Verwaltungsvorschrift Technische Baubestimmungen ( VVTB) in Teil C Laufende Nummer C 2.15.1 und C 2.15.2 (Stand 1-2019) genannten Behälter gelten als explosionsdruckstoßfest und erfüllen dementsprechend höhere Anforderungen an die Festigkeit der Trennwände. Die Explosionsdruckstoßfestigkeit bezieht sich aber in erster Linie auf das Standhalten des äußeren Tankmantels bei einer Explosion gegenüber der Umgebung. Des Weiteren sind die Anforderungen für alle Anlagenteile für flüssige Kraftstoffe gleich hoch, sodass es bei Versagen der Trennwand zu keiner weiteren Gefährdung kommt. Zu den Öffnungen nach Nummer 4 und 5 gehören der Gaspendel- bzw. Gasrückführanschluss, die Lüftungsleitung sowie die Füllleitung, sofern diese eine offene Verbindung zum Dampfraum des Lagerbehälters hat.

(4) Behälter zur Lagerung flüssiger Betriebsstoffe mit einem Flammpunkt > +55 °C, deren Öffnungen nicht im Wirkbereich von Füll- und Abgabeeinrichtungen für Kraftstoffe liegen, brauchen in der Regel keine Flammendurchschlagsicherungen. Unter den in dieser Technischen Regel festgelegten Bedingungen der Handhabung und Lagerung in Tankstellen bewirken Flüssigkeiten mit einem Flammpunkt > +55 °C keine Explosionsgefahren, die Explosionsschutzmaßnahmen erfordern.

(5) Werden mehrere Lagerbehälter oder Abteile von Lagerbehältern, in denen flüssige Kraft- und Betriebsstoffe mit unterschiedlichen Gefahrenmerkmalen gemäß Abschnitt 2 Absatz 13 gelagert werden, über eine gemeinsame Lüftungsleitung belüftet und entlüftet, müssen abweichend von Absatz 3 Nummer 4 und 5 die Lagerbehälter gegen das Hineinschlagen von Flammen durch die Öffnungen geschützt sein. Abbildung 8 bis 10 zeigen Beispiele zur Ausrüstung der Lagertanks mit Flammendurchschlagsicherungen.

Abbildung 8: Ausrüstung von Lagertanks für Kraft- und Betriebsstoffe mit unterschiedlichen Gefahrenmerkmalen gemäß Abschnitt 2 Absatz 13 mit gemeinsamer Lüftungsleitung

Abbildung 9: Flammendurchschlagsicherung an Lagertanks für Kraft- und Betriebsstoffe mit unterschiedlichen Gefahrenmerkmalen gemäß Abschnitt 2 Absatz 13 mit gemeinsamer Lüftungsleitung

Abbildung 10: Absicherung der Bohrungen in den Füllleitungen als Verbindung zum Dampfraum von Lagertanks für Kraft- und Betriebsstoffe mit unterschiedlichen Gefahrenmerkmalen gemäß Abschnitt 2 Absatz 13 mit gemeinsamer Lüftungsleitung

(6) Lüftungsleitungen, die nicht gemäß Absatz 3 Nummer 4 und 5 von der Ausrüstung mit Flammendurchschlagsicherungen befreit sind, müssen dem Abbrand ausströmender explosionsfähiger Gemische ohne Flammendurchschlag standhalten. Dazu sind sie z.B. mit einer für alle Einsatzbedingungen geeigneten Dauerbrandsicherung am Ende der Lüftungsleitung auszurüsten. Satz 1 gilt auch als erfüllt, wenn in der Lüftungsleitung direkt am Lagerbehälter eine Detonationssicherung installiert ist.

(7) Flammendurchschlagsicherungen müssen möglichst nahe am Tank angebracht und so angeordnet sein, dass sie leicht gewartet werden können. Satz 1 gilt für unterirdische Lagerbehälter auch als erfüllt, wenn die Flammendurchschlagsicherungen im Fernfüllschacht/-schrank sowie am Ende der Lüftungsleitung angeordnet sind und die Lüftungsleitung nicht mehr als 5 m über Erdgleiche endet.

(8) Die in der Betriebsanleitung der Flammendurchschlagsicherungen genannten Einsatzbedingungen sind zu beachten.

(9) Dauerbrandsicherungen müssen so eingebaut sein, dass im Falle des Abbrandes die Dampf-Luft-Gemische senkrecht nach oben abgeführt werden und die Flamme keine Auswirkung auf die Rohrleitung und den Lagerbehälter hat.

(10) Die Freistrahlabführung darf bei einem Abbrand nicht beeinträchtigt sein.

(11) Tankstellen für flüssige Kraftstoffe mit Gasrückführung müssen so ausgerüstet sein, dass ein Flammendurchschlag von einem Zapfventil sowohl zu einem anderen Zapfventil als auch zum Lagerbehälter verhindert wird. Satz 1 gilt als erfüllt, wenn jede Gasrückführleitung mit einer Flammendurchschlagsicherung ausgerüstet wird. Als Flammendurchschlagsicherung gemäß Satz 2 gelten auch als Schutzsystem geprüfte Gasrückführpumpen.

(12) Bei Einbau von Isolierflanschen in Rohrleitungen für flüssige Kraftstoffe, die nicht ständig mit Flüssigkeit gefüllt sind, ist eine Entzündung der explosionsfähigen Atmosphäre im Inneren der Rohrleitung zu vermeiden, z.B. durch Einbau einer Funkenstrecke. Kann eine Entzündung im Inneren der Rohrleitung nicht sicher ausgeschlossen werden, ist ein Flammendurchschlag in die Lagerbehälter sowie das Herausschlagen von Flammen in die Umgebung (z.B. am Zapfventil) durch den Einbau von Flammendurchschlagsicherungen zu verhindern. Auf Absatz 3 Nummer 4 und 5 wird für die Lagerbehälter verwiesen.

(13) Für Flammendurchschlagsicherungen an Tankstellen gilt Abschnitt 7 der TRGS 724.

4.1.12 Festlegung von Angriffswegen zur Brandbekämpfung

Lage und Breite der Angriffswege zur Brandbekämpfung sind nach den ingenieurmäßigen Methoden des Brandschutzes unter Berücksichtigung der örtlichen und betrieblichen Verhältnisse im Einvernehmen mit den für die Brandbekämpfung zuständigen Stellen festzulegen.

4.1.13 Blitz- und Überspannungsschutz

(1) Die Gefahren durch einen Blitzeinschlag und die damit verbundene Freisetzung von Kraftstoffen oder deren Dämpfe sowie von Betriebsstoffen sind im Rahmen der Gefährdungsbeurteilung zu ermitteln und zu minimieren. Bezüglich der Gefahr der Entzündung einer gefährlichen explosionsfähigen Atmosphäre durch Blitzschlag wird auf TRGS 723 verwiesen.

(2) Explosionsgefährdete Bereiche der Zonen 0 oder 1 und die Anlagenteile, die Kraftstoffe oder deren Dämpfe führen und in die der Blitz direkt einschlagen kann oder auf deren Teilblitzströme bzw. Spannungen zu erwarten sind, müssen durch geeignete Maßnahmen geschützt werden. In der Regel sind an einer Betankungsanlage die folgenden Anlagenteile zu betrachten:

  1. Lüftungsmasten, Ausblasemasten und Ausblasekamin,
  2. Abgabeeinrichtungen,
  3. Fernfüllschränke,
  4. oberirdische Tanks,
  5. Rohrleitungen,
  6. Verdichterstationen,
  7. Verdampfereinheiten, Pumpeneinheiten,
  8. Wärmetauscher (bei Kombination einer CNG-Abgabe aus einem LNG-Tank).

Dabei sind die folgenden Gefährdungen zu minimieren:

  1. Entzündung gefährlicher explosionsfähiger Atmosphäre,
  2. Perforation von Anlagen, die brennbare Gase oder Flüssigkeiten beinhalten, und
  3. Zerstörungen anderer Explosionsschutzmaßnahmen wie z.B. elektrostatisch leitfähige Beschichtungen, Gaswarneinrichtung, sicherheitsrelevante MSR-Technik.

(3) Die Anlagenteile oder Bereiche nach Absatz 2 müssen durch Fangeinrichtungen geschützt werden. Von Satz 1 darf abgewichen werden, wenn mindestens eine der folgenden Bedingungen erfüllt ist:

  1. Das Anlagenteil befindet sich im Schutzbereich einer nichtbrennbaren baulichen Anlage (z.B. unter einem Tankstellendach).
  2. Die Anlagenteile sind so ausgeführt, dass sie im Falle des Blitzeinschlages dicht bleiben, auf der Innenseite gefährliche Temperaturerhöhungen ausgeschlossen werden können und so ausreichend dimensioniert, um einen Blitz fortzuleiten. Dieses gilt als erfüllt, wenn die Materialdicke mindestens 4 mm Stahl oder 7 mm Aluminium beträgt und die Ableitung blitzstromtragfähig (wirksamer Leiterquerschnitt mindestens 16 mm2 Cu oder leitwertgleich) zur Erdungsanlage ist.

Abweichend von Absatz 2 müssen die Mündungen von metallischen Lüftungs- oder Ausblasemasten nicht gegen einen direkten Blitzeinschlag geschützt werden, wenn die Ableitung blitzstromtragfähig (wirksamer Leiterquerschnitt mindestens 16 mm2 Cu oder leitwertgleich) zur Erdungsanlage ist. Abweichend davon wird ein Blitzeinschlag in eine Zone 1 an Lüftungs- und Abblaseleitungen unter den gegebenen Bedingungen an einer Betankungsanlage nicht als gefahrdrohend angesehen. Bei einem Blitzeinschlag in eine Lüftungs- oder Abblaseleitung kann es zum Abbrand der dort austretenden Gemische oder Gase kommen. Dies ist in der Gefährdungsbeurteilung mit zu berücksichtigen.

(4) Wenn Blitzströme über Konstruktions- oder Anlagenteile, die eine Zone 0 beinhalten, abgeleitet werden sollen, muss dies so erfolgen, dass beim Blitzstromdurchgang keine Funken bzw. unzulässig hohe Erwärmungen entstehen. Geeignete Anschlüsse an Rohrleitungen für die Ableitung von Blitzströmen sind angeschweißte Fahnen oder Bolzen oder Gewindebohrungen in den Flanschen zur Aufnahme von Schrauben. Diese Verbindungsstellen müssen so dimensioniert werden, dass sie blitzstromtragfähig und gegen Selbstlockern gesichert sind.

(5) Die Anlagenteile nach Absatz 2 Satz 2 müssen in einen blitzstromtragfähigen Potentialausgleich eingebunden oder mit einer Erdungsanlage verbunden sein. Unterirdische metallische Rohrleitungen, die durchgängig miteinander verschweißt oder hartgelötet sind, dürfen als Potentialausgleichverbindung genutzt werden.

(6) Schädliche Auswirkungen von Überspannungen auf die Zone 0 sind zu verhindern. Wenn ein Gerät in einem explosionsgefährdeten Bereich der Zone 0 errichtet wird und gefährliche Potentialdifferenzen innerhalb der Zone 0 auftreten können, muss eine Überspannungsschutzeinrichtung zwischen jeder nicht auf Erde liegenden Ader des Kabels oder der Leitung und dem Gehäuse mit dem örtlichen Erdpotential installiert werden. Diese Maßnahme muss so nah wie möglich an der Einführung in die Zone 0 erfolgen (i. d. R. im Domschacht). (Details siehe DIN EN 60079-25:2011-06 Anhang F sowie DIN EN 60079-14 (VDE 0165-1):2014-10 Nummer 16.3 "Anlagen, um die Anforderungen von EPL "Ga" oder "Da" zu erfüllen". Hierbei entspricht "Ga" der Gerätekategorie 1 G, d. h. für den Einsatz in Zone 0 geeignet).

(7) Die getroffenen Maßnahmen zum Blitzschutz (Blitzschutzkonzept) sind im Explosionsschutzdokument zu beschreiben.

4.1.14 Gefährliche elektrische Ausgleichsströme

(1) Für den Schutz vor Zündgefahren durch elektrische Ausgleichsströme oder kathodische Korrosionsschutzanlagen ist Abschnitt 5.6 der TRGS 723 zu beachten. Durch elektrische Ausgleichs- und Streuströme zwischen Anlagenteilen der Betankungsanlage und dem Erdpotential dürfen keine Zündgefahren, gefährliche Korrosionen (z.B. durch elektrogalvanische Elementbildung oder durch Streuströme aus Gleichstromanlagen) oder Gefährdungen von Personen entstehen. Dabei sind sowohl die zur Betankungsanlage gehörenden elektrischen Anlagen als auch fremde elektrische Anlagen, z.B. elektrische Bahnen, zu berücksichtigen.

(2) Wenn Ausgleichsströme nicht ausgeschlossen werden können, sind geeignete elektrische Trennelemente zur Verhinderung dieser Ströme erforderlich. Als geeignete elektrische Trennelemente gelten beispielsweise der Einbau von Isolierstücken, Isolierflanschen oder isolierenden Ausgleichsdämpfern an geeigneter Stelle.

(3) Elektrische Trennelemente müssen den elektrischen, mechanischen, thermischen und chemischen Anforderungen am Einbauort genügen und einer Prüfspannung von 5 kV standhalten.

(4) Elektrische Trennelemente in explosionsgefährdeten Bereichen der Zone 1 sind, wenn sie nicht mit Leitern ausreichenden Querschnitts überbrückt werden können, durch Funkenstrecken mit einer Ansprechstoßspannung von 50 % der Prüfwechselspannung der Trennelemente, maximal jedoch mit einer Ansprechstoßspannung von 2,5 kV zu überbrücken.

(5) Werden Rohrleitungen in explosionsgefährdeten Bereichen durch elektrische Trennelemente getrennt, so muss gewährleistet sein, dass bei einem objektfernen Blitzeinschlag die Gefahr der möglichen Entzündung einer explosionsfähigen Atmosphäre minimiert wird. Hierfür sind beispielsweise Leiter ausreichenden Querschnitts oder Funkenstrecken geeignet.

(6) Soweit Funkenstrecken in explosionsgefährdeten Bereichen Zone 1 eingebaut werden sollen, sind diese explosionsgeschützt auszuführen.

(7) In Abgabeeinrichtungen sind in der Regel keine Funkenstrecken an Isolierstücken von kraftstoffgefüllten Rohrleitungen erforderlich.

(8) In Gasrückführleitungen für flüssige Kraftstoffe mit einem oberen Explosionspunkt unter -4 °C sind Funkenstrecken an Isolierstücken nicht erforderlich. In Gasrückführleitungen für flüssige Kraftstoffe mit einem oberen Explosionspunkt über oder gleich -4 °C und einem Flammpunkt ≤ +55 °C sind Funkenstrecken an Isolierstücken erforderlich.

(9) In explosionsgefährdeten Bereichen müssen Vorkehrungen gegen zufälliges Überbrücken von elektrischen Trennelementen getroffen sein.

(10) Anschlüsse von Kabeln und Leitungen müssen gegen Selbstlockern gesichert sein.

(11) Bei unterirdischen Lagerbehältern und Behältern zur Lagerung von Betriebsstoffen, die aus korrosionstechnischen Gründen (z.B. Flüssiggasbehälter) vom Erdpotential der Anlage (z.B. der Verteilung der Tankstelle) getrennt errichtet werden müssen, sind folgende Anforderungen einzuhalten:

  1. Erstellung und Vorhaltung einer Dokumentation der Maßnahmen zur Einhaltung der nachfolgenden Anforderungen,
  2. Installation eines Fehlerstromschutzschalters (RCD) für mit dem Lagerbehälter direkt verbundene elektrische Betriebsmittel,
  3. dauerhafte Sicherstellung eines ausreichenden Erdungswiderstandes (z.B. durch Installation eines eigenen Erders), die Verwendung des Tanks als Erder ist nicht statthaft,
  4. Trennung der Schutzleiter der direkt mit dem Lagerbehälter verbundenen elektrischen Betriebsmittel von der Netzversorgung und
  5. Auflegung des Schutzleiters der speisenden Kabel an elektrischen Geräten am Lagertank und in der Verteilung auf eine isolierte Klemme.

4.1.15 Sonstige Zündquellenarten

Neben den genannten Zündquellen sind auch alle anderen Zündquellenarten nach TRGS 723 zu berücksichtigen. Außerdem sind insbesondere die Betriebsanleitungen der Hersteller der Geräte, Schutzsysteme, Sicherheits-, Kontroll- oder Regelvorrichtungen nach Richtlinie 2014/34/EU zu berücksichtigen.

4.2 Auswahl der Anlagenteile

4.2.1 Tankstelle für flüssige Kraftstoffe

4.2.1.1 Bodenflächen

(1) Die Bodenflächen in den Wirkbereichen müssen so ausgeführt sein, dass zu Brand- oder Explosionsgefährdungen führende Mengen Kraftstoff oder Kraftstoffdämpfe sich nicht in Kanalsystemen und Böden ansammeln oder in diese eindringen können. Dies gilt beispielhaft als erfüllt, wenn die Ausführung der Flächenabdichtung nach den Vorschriften zum Schutz der Gewässer erfolgt.

(2) Die Nutzung von Dichtflächen zur Rückhaltung von Leckagemengen mit Ausnahme von Tropfmengen sowie die Rückhaltung von Leckagemengen in einer oberirdischen Auffangvorrichtung sind aus Brand- und Explosionsschutzgründen zu vermeiden.

(3) Bei der Rückhaltung unbeabsichtigt ausgelaufener flüssiger Kraft- oder Betriebsstoffe in einer Rückhalteeinrichtung im Entwässerungssystem sind über die Vorschriften zum Schutz der Gewässer hinausgehend Maßnahmen zum Brand- und Explosionsschutz erforderlich. Das Innere der Rückhalteeinrichtung ist als explosionsgefährdeter Bereich gemäß Abschnitt 4.1.10.5 Absatz 5 einzustufen.

(4) Zur Vermeidung elektrostatischer Aufladungen muss eine ausreichende elektrische Leitfähigkeit der Bodenfläche (Ableitwiderstand von ≤ 108 Ω) sichergestellt sein. Satz 1 gilt für Flächen im Wirkbereich von Kraftstoffen und in explosionsgefährdeten Bereichen als erfüllt, wenn sie aus Beton, Stahlbeton und Spannbeton (Ortbeton) oder aus Betonfertigteilen errichtet worden sind.

4.2.1.2 Lagerbehälter

(1) Kraftstoffe müssen so gelagert werden, dass sie nicht auslaufen oder austreten können. Für flüssige Kraftstoffe gilt dies als erfüllt, wenn die flüssigen Kraftstoffe in doppelwandigen Lagerbehältern mit Leckanzeigegerät gelagert werden.

(2) Gefährliche Flammpunkterniedrigungen von Heizöl EL durch unbeabsichtigte Vermischungen mit Kraftstoffen sowie Vermischung von nichtbrennbaren Betriebsstoffen (z.B. wässrige Harnstofflösung) mit Kraftstoffen sind zu vermeiden. Satz 1 gilt für Heizöl EL sowie nichtbrennbaren Betriebsstoffen als erfüllt, wenn diese nicht mit flüssigem Kraftstoff in benachbarten Kammern von unterteilten Lagerbehältern zusammen gelagert wird.

4.2.1.3 Lüftungseinrichtungen

(1) Dieser Abschnitt gilt gleichermaßen auch für flüssige Betriebsstoffe mit einem Flammpunkt ≤ +55 °C.

(2) Lüftungseinrichtungen von Lagerbehältern (einschließlich des Lüftungsmastes) sowie Gaspendel- und Gasrückführungsleitungen müssen bei den zu erwartenden Beanspruchungen ausreichend fest, formbeständig und gegen Dämpfe des Lagergutes beständig bleiben. Dies ist z.B. erfüllt, wenn sie gegen einen maximal zulässigen Druck von mind. 10 bar ausgelegt sind, d. h. mindestens PN 10. Sie müssen im erforderlichen Maße alterungsbeständig und für nichterdgedeckte Leitungen gegen Flammeneinwirkung ausreichend widerstandsfähig sein.

(3) Explosionsfähige Atmosphäre darf nicht verschleppt werden. Satz 1 gilt für Lüftungsleitungen als erfüllt, wenn Be- und Entlüftungsleitungen sowie Abblaseleitungen nicht in geschlossene Räume, nicht in Domschächte und nicht in Abgabeeinrichtungen münden; ihre Austrittsöffnungen müssen gegen das Eindringen von Regenwasser geschützt sein. Für Austrittsöffnungen von Be- und Entlüftungsleitungen im Bereich von Schornsteinöffnungen, Öffnungen in Regenfallrohren und Fenstern, die zum Öffnen eingerichtet sind, gilt dies als erfüllt, wenn sie einen Mindestabstand von

  1. 2 m bei der Lagerung flüssiger Kraftstoffe in unterirdischen Lagerbehältern,
  2. 3 m bei der Lagerung flüssiger Kraftstoffe in oberirdischen Lagerbehältern zu diesen Einrichtungen haben.

(4) Be- und Entlüftungsleitungen dürfen nicht absperrbar sein.

(5) Gefährliche Vermischungen oder gefährliche Wechselwirkungen von Kraftstoffen mit anderen Kraft- und Betriebsstoffen sind zu vermeiden. Satz 1 gilt als erfüllt, wenn Lüftungsleitungen von flüssigen Kraftstoffen nicht mit den Abblaseleitungen für Flüssiggas, Erdgas, Flüssigerdgas oder Wasserstoff verbunden sind. Satz 1 gilt ebenso als erfüllt, wenn zusätzlich zu Satz 2 die Lüftungsleitungen für Betriebsstoffe mit einem Flammpunkt > +55 °C und für nichtbrennbare Betriebsstoffe außerhalb des Wirkbereichs und des explosionsgefährdeten Bereichs von Anlagenteilen für Kraftstoffe münden.

(6) Lagerbehälter für flüssige Kraftstoffe mit unterschiedlichen Gefahrenmerkmalen nach Abschnitt 2 Absatz 13 dürfen nur dann über die gleichen Lüftungsleitungen bzw. gleiche Gaspendelleitung belüftet und entlüftet werden, wenn

  1. die Kraftstoffe in unterirdischen Lagerbehältern gemäß Verwaltungsvorschrift Technische Baubestimmungen ( VVTB) mit und ohne Unterteilungen, die mit einer allseitigen Erddeckung von mindestens 1 m versehen sind, gelagert werden,
  2. die Lagerbehälter gemäß Abschnitt 2 Absatz 18 mit Flammendurchschlagsicherungen ausgerüstet sind,
  3. alle Lagerbehälter einschließlich ihrer Ausrüstung für extrem entzündbare flüssige Kraftstoffe (z.B. Explosionsgruppe IIa (Explosionsgruppe IIB, wenn ethanolhaltige Kraftstoffe mit mehr als 90 % Ethanolanteil vorhanden sind), Temperaturklasse T3) ausgeführt sind und
  4. durch geeignete technische Maßnahmen eine Vermischung der Kraftstoffe durch Überfüllung ausgeschlossen wird (siehe auch Abschnitt 4.2.1.4).

(7) Gefährliche Flammpunkterniedrigungen von Heizöl EL durch unbeabsichtigte Vermischungen mit Kraftstoffdämpfen sowie die Bildung von gefährlicher explosionsfähiger Atmosphäre im Dampfraum von Behältern zur Lagerung von Heizöl EL oder von nichtbrennbaren Betriebsstoffen (z.B. wässrige Harnstofflösung) sind zu vermeiden. Dies gilt als erfüllt, wenn abweichend von Absatz 5 und 6 Behälter zur Lagerung von Heizöl EL und von nichtbrennbaren Betriebsstoffen nicht mit anderen Lagerbehältern über eine gemeinsame Leitung belüftet oder entlüftet werden.

(8) Lagerbehälter müssen so betrieben werden, dass gefährliche Unter- und Überdrücke nicht entstehen können, z.B. durch Be- und Entlüftungseinrichtungen oder Sicherheitseinrichtungen gegen Drucküberschreitung.

(9) Lüftungsleitungen müssen so dimensioniert sein, dass gefährliche Unter- oder Überdrücke im Tank nicht entstehen können. Dies gilt für flüssige Kraft- und Betriebsstoffe als erfüllt, wenn bei Lagerbehältern sowie Behältern zur Lagerung von Betriebsstoffen beim Befüllen ein Überdruck von max. 0,5 bar nicht überschritten werden kann. Dabei sind der höchste Volumenstrom der Pumpen bzw. die höchste Füllrate aus Transportbehältern als auch Temperaturschwankungen im Lagerbehälter zu berücksichtigen, auf Abschnitt 4.2.6 Absatz 7 wird hingewiesen.

(10) Das beim Befüllen von Lagerbehältern für flüssige Kraftstoffe sowie von Behältern zur Lagerung von Betriebsstoffen verdrängte Dampf-Luft-Gemisch muss so abgeleitet werden, dass Gefahren für Beschäftigte und andere Personen nicht entstehen können.

(11) Entlüftungsleitungen müssen so ins Freie münden, dass durch austretende Dampf-Luft-Gemische keine Gefahren für Beschäftigte und andere Personen entstehen können. Dies ist für flüssige Kraftstoffe beispielhaft erfüllt, wenn der Lüftungsmast mindestens 4 m über Erdgleiche endet und ein Verschleppen von austretenden Dampf-Luft-Gemischen in angrenzende Bereiche, die zum Aufenthalt von Personen bestimmt sind, nicht möglich ist.

(12) Absatz 9 Satz 1 gilt bei der Befüllung von Lagerbehältern für flüssige Kraftstoffe unter Anwendung des Gaspendelverfahrens als erfüllt, wenn die Entlüftung nur über die Gaspendelleitung erfolgt und Entlüftungseinrichtungen von Lagerbehältern ins Freie während des Gaspendelns geschlossen sind. Hiervon ausgenommen sind sicherheitstechnisch erforderliche Öffnungen. Diese Anforderung ist bei unterirdischen Lagerbehältern als erfüllt anzusehen, wenn die Lüftungsleitung mit einem Über-/Unterdruckventil oder einer Drossel versehen ist, wobei als Drossel eine Öffnung von 10 mm lichter Weite oder ein Rohrabschnitt mit vergleichbarem Strömungswiderstand genügt.

4.2.1.4 Sicherung der Lagerbehälter gegen Überfüllung

(1) Lagerbehälter dürfen nicht überfüllt werden.

(2) Zur Vermeidung einer Überfüllung ist der Lagerbehälter mit einer Einrichtung zu versehen, mit der der Flüssigkeitsstand im Lagerbehälter und somit das maximal mögliche Füllvolumen ermittelt werden kann (Füllstandsanzeiger).

(3) Wird der Füllstand über offene Peilung ermittelt, ist die Möglichkeit der Bildung gefährlicher explosionsfähiger Atmosphäre zu beachten. Peilöffnungen müssen verschließbar und so ausgeführt sein, dass ein unbeabsichtigtes Öffnen ausgeschlossen ist. Siehe dazu auch Abschnitt 4.1.10.3 Absatz 6.

(4) Absatz 1 gilt als erfüllt, wenn zusätzlich zu Absatz 2 die Lagerbehälter für flüssige Kraftstoffe mit einer Überfüllsicherung ausgerüstet sind oder wenn der Arbeitgeber sicherstellt, dass die Lagerbehälter für flüssige Kraftstoffe nur mit tankstellenseitigen Grenzwertgebern befüllt werden, die in Verbindung mit der fahrzeugseitigen Absperreinrichtung die Funktion einer fahrzeugseitigen Abfüllsicherung erfüllen. Dazu müssen die Grenzwertgeber dem Typ B mit Stromschnittstelle der Norm DIN EN 13616 entsprechen.

(5) Zur Vermeidung des unbeabsichtigten Austretens von flüssigen Kraftstoffen ist ein maximal zulässiger Füllungsgrad festzulegen. Dabei sind die thermische Ausdehnung der Kraftstoffe und die damit verbundenen Möglichkeiten des Überlaufens sowie der Drucksteigerung zu berücksichtigen. Satz 1 gilt für flüssige Kraftstoffe als erfüllt, wenn der maximal zulässige Füllungsgrad bei oberirdischen Lagerbehältern 95 % und bei unterirdischen Lagerbehältern mit einer Erddeckung von mindestens 1 m 97 % des Fassungsraums nicht übersteigt.

(6) Absatz 1 bis 5 gilt sinngemäß auch für Behälter für Betriebsstoffe.

4.2.1.5 Abgabeeinrichtungen

(1) Bei der Auswahl der Abgabeeinrichtungen sind die Eigenschaften der abzugebenden Kraftstoffe (z.B. deren Korrosionseigenschaften, Materialbeständigkeit oder explosionsschutztechnische Kennzahlen) und die vorgesehene Betriebsweise zu berücksichtigen.

(2) Abgabeeinrichtungen müssen so betrieben werden, dass ein Überfüllen des Kraftfahrzeugbehälters sowie ein unbeabsichtigter Austritt von Kraftstoff in die Umgebung verhindert wird. Beispielhaft ist dies für flüssige Kraftstoffe erreicht, wenn die verwendeten Zapfventile vor vollständiger Füllung des zu befüllenden Kraftfahrzeugbehälters oder beim Herausfallen aus dem Füllstutzen des zu befüllenden Kraftfahrzeugbehälters selbsttätig schließen (selbsttätig schließende Zapfventile).

(3) Der Betankungsschlauch muss für die eingesetzten Kraftstoffe sowie für die vorgesehene Betriebsweise und den vorgesehenen Betriebsdruck geeignet sein und während des Betriebs dicht bleiben. Betankungsschläuche müssen einen der Strömungsgeschwindigkeit der Kraftstoffe angepassten Durchmesser haben. Der Ableitwiderstand zwischen den Anschlussarmaturen darf 106 Ω nicht überschreiten (siehe TRGS 727).

4.2.1.6 Gasrückführung

Damit gefährliche explosionsfähige Atmosphäre nicht über die Gasrückführeinrichtung im Wirkbereich bei der Betankung freiwerden kann, muss sichergestellt sein, dass Dampf-Luft-Gemische nicht zum Zapfventil zurückströmen können. Dies ist z.B. gegeben, wenn die Gasrückführeinrichtung den Anforderungen der DIN EN 13617-1:2012-08 entspricht.

4.2.1.7 Flammendurchschlagsicherungen

(1) Flammendurchschlagsicherungen müssen für die jeweilige Einbausituation und Betriebsverhältnisse ausgewählt werden. Sie müssen für die möglichen explosionsfähigen Atmosphären (zünddurchschlagfähige Normspaltweite, Explosionsgruppe) geeignet sein. TRGS 724 ist zu beachten.

(2) Ethanolhaltige Ottokraftstoffe mit einem Ethanolanteil bis 90 Vol- % gehören zur Explosionsgruppe IIA, mit einem höheren Ethanolanteil als 90 Vol-% zur Explosionsgruppe IIB1.

(3) Für Dauerbrandsicherungen für Gemische mit Alkoholen ist ein besonderer Nachweis der Dauerbrandsicherheit erforderlich.

(4) Die Angaben in der Betriebsanleitung der Flammendurchschlagsicherungen sind zu beachten.

(5) Detonations- und Deflagrationssicherungen müssen nicht der Anforderung der Beständigkeit gegen kurzzeitigen Brand genügen. Detonationssicherungen müssen nur auf stabile Detonationen geprüft sein.

4.2.2 Gasfüllanlagen für Flüssiggas

4.2.2.1 Bodenflächen

(1) Die Bodenflächen in den Wirkbereichen müssen so ausgeführt sein, dass zu Brand- oder Explosionsgefährdungen führende Mengen Flüssiggas bzw. anderer brennbarer Gase oder Flüssigkeiten sich nicht unter der Gasfüllanlage bzw. unter dem Flüssiggasbehälter oder in Kanalsystemen und Böden ansammeln oder in diese eindringen können.

(2) Zur Vermeidung elektrostatischer Aufladungen muss eine ausreichende elektrische Leitfähigkeit der Bodenfläche (Ableitwiderstand < 108 Ω) sichergestellt sein. Satz 1 gilt für Flächen im Wirkbereich von Kraftstoffen und in explosionsgefährdeten Bereichen als erfüllt, wenn sie aus Beton, Stahlbeton und Spannbeton (Ortbeton) oder aus Betonfertigteilen errichtet worden sind. Bei Gasfüllanlagen für die ausschließliche Abgabe von Flüssiggas ist abweichend von Satz 1 eine ausreichende Leitfähigkeit der Bodenfläche nicht erforderlich, auf Abschnitt 4.2.2.6 Absatz 5 wird verwiesen.

(3) Soll Flüssiggas zusammen mit flüssigen Kraftstoffen abgegeben werden, sind die Anforderungen an die Ausführung der Bodenflächen für flüssige Kraftstoffe (siehe Abschnitt 4.2.1.1) zu beachten.

4.2.2.2 Lagerbehälter

(1) Flüssiggas muss so gelagert werden, dass es nicht auslaufen oder austreten kann. Dies gilt für Flüssiggas-Lagerbehälter als erfüllt, wenn sie den Anforderungen der Richtlinie 2014/68/EU entsprechen.

(2) Flüssiggas-Lagerbehälter müssen so betrieben werden, dass gefährliche Überdrücke nicht entstehen können, z.B. durch die Verwendung von Sicherheitseinrichtungen gegen Drucküberschreitung. Lagerbehälter für Flüssiggas müssen mindestens für einen maximal zulässigen Druck (PS) von 15,6 bar bei +40 °C ausgelegt sein.

(3) Ausrüstungsteile, Rohrleitungs- und Armaturenverbindungen müssen so ausgeführt werden, dass sie durch ihre Konstruktion oder durch ihre Überwachung und Instandhaltung auf Dauer technisch dicht sind und bei Normalbetrieb kein Flüssiggas freigesetzt wird. Davon ausgenommen sind minimale Mengen, die beim Lösen der Füllkupplung vom Fahrzeug technisch bedingt freigesetzt werden. Die Befülleinrichtungen müssen nach jeder Befüllung auf Dichtheit kontrolliert werden.

4.2.2.3 Abblaseleitungen

(1) Explosionsfähige Atmosphäre darf nicht verschleppt werden. Aus einem Sicherheitsventil austretendes Flüssiggas muss gefahrlos ins Freie abgeleitet werden. Austrittsöffnungen von Abblaseleitungen müssen gegen das Eindringen von Regenwasser geschützt sein.

(2) Sicherheitsventile von unterirdischen Flüssiggasbehältern dürfen in den zugehörigen Domschacht münden, wenn ein Ansprechen des Sicherheitsventils nicht zu erwarten ist. Dies ist gewährleistet, wenn eine Überfüllung unter Beachtung der thermischen Ausdehnung durch technische und betriebliche Maßnahmen sicher verhindert wird.

(3) Absatz 1 Satz 1 gilt für Austrittsöffnungen von Abblaseleitungen als erfüllt, wenn diese einen Mindestabstand von 3 m von Schornsteinöffnungen, Öffnungen in Regenfallrohren und Fenstern, die zum Öffnen eingerichtet sind, haben.

(4) Bei der Lagerung von Flüssiggas unter einer Überdachung oder in einem Raum ist vom Sicherheitsventil eine Abblaseleitung so über Dach ins Freie zu führen, dass austretendes Flüssiggas gefahrlos abgeleitet werden kann. Für die Zoneneinteilung um die Mündung der Abblaseleitung siehe Abschnitt 4.1.10.3 Absatz 8.

(5) Die Abblaseleitungen dürfen nicht absperrbar sein.

(6) Gefährliche Vermischungen oder gefährliche Wechselwirkungen von Flüssiggas mit anderen Kraft- und Betriebsstoffen sind zu vermeiden. Satz 1 gilt als erfüllt, wenn Abblaseleitungen von Flüssiggas nicht mit den Lüftungsleitungen von flüssigen Kraftstoffen oder Abblaseleitungen für andere gasförmige Kraftstoffe verbunden sind.

4.2.2.4 Sicherung der Flüssiggas-Lagerbehälter gegen Überfüllung

(1) Lagerbehälter dürfen nicht überfüllt werden können.

(2) Dies gilt für Flüssiggas-Lagerbehälter als erfüllt, wenn

  1. diese Lagerbehälter mit einer bauteilgeprüften Überfüllsicherung ausgerüstet sind und
  2. mit einer tankfahrzeugseitigen verbauten Funkfernabschaltung oder mit der dafür vorgesehenen Kabelverbindung des Tankfahrzeugs in Verbindung des behälterseitigen Grenzwertgebers befüllt werden.

(3) Zur Vermeidung unbeabsichtigten Austretens von Flüssiggas ist ein maximal zulässiger Füllungsgrad festzulegen. Dabei sind die thermische Ausdehnung des Flüssiggases und die damit verbundenen Möglichkeiten des Überlaufens sowie der Drucksteigerung zu berücksichtigen. Satz 1 gilt für Flüssiggas als erfüllt, wenn der maximal zulässige Füllungsgrad 85 % des Fassungsraums nicht übersteigt.

4.2.2.5 Fördereinrichtungen

Flüssiggaspumpen, bei denen durch Trockenlauf mit einem störungsbedingten Flüssiggasaustritt zu rechnen ist (z.B. bei Pumpen mit Wellendurchführung und doppeltwirkender Gleitringdichtung), müssen gegen Trockenlauf geschützt sein. Zum Anfahren der Pumpen darf der Trockenlaufschutz mit einer geeigneten Einrichtung überbrückt werden.

4.2.2.6 Abgabeeinrichtungen

(1) Abgabeeinrichtungen müssen so betrieben werden, dass ein Überfüllen des Kraftfahrzeugbehälters sowie ein unbeabsichtigter Austritt von Kraftstoff in die Umgebung verhindert wird.

(2) Absatz 1 gilt für Flüssiggas als erfüllt, wenn die Zapfventile nur bei einer geeigneten Kombination aus Zapfventil und Füllanschluss sowie ordnungsgemäßem Anschluss den Gasdurchfluss freigeben. Zapfventile, die mittels Stößel das Rückschlagventil am Füllanschluss des Lagerbehälters öffnen, dürfen nicht verwendet werden. Ein Lösen des Zapfventils vom Füllanschluss muss den Gasdurchfluss unterbrechen.

(3) Die am Tankanschluss des Fahrzeuges anzuschließende Füllkupplung muss so ausgebildet sein, dass der Gasdurchfluss nur freigegeben wird, wenn ein einwandfrei dichter Anschluss vorliegt. Die Kupplung muss so konstruiert sein, dass das Lösen vom Fahrzeug erst nach Druckentlastung erfolgen kann.

(4) Der Gasdurchfluss vom Füllschlauch zum Fahrzeugbehälter muss über eine Schalteinrichtung mit elektrischer Drucktaste an der Abgabeeinrichtung freigegeben und unterbrochen werden können. Abweichend von Satz 1 ist bei ausschließlich innerbetrieblicher Benutzung durch eingewiesene Beschäftigte eine Schalteinrichtung ohne Selbsthaltung (z.B. Totmannhebel im Zapfventil) ausreichend.

(5) Der Füllschlauch muss für Flüssiggas sowie für die vorgesehene Betriebsweise und den zulässigen Betriebsdruck (PB) geeignet sein und während des Betriebs dicht bleiben. Der Ableitwiderstand zwischen den Anschlussarmaturen darf 106 Ω nicht überschreiten (siehe TRGS 727).

4.2.3 Gasfüllanlagen für Erdgas

4.2.3.1 Bodenflächen

Zur Vermeidung elektrostatischer Aufladungen muss eine ausreichende elektrische Leitfähigkeit der Bodenfläche (Ableitwiderstand < 108 Ω) sichergestellt sein. Satz 1 gilt für Flächen im Wirkbereich von Kraftstoffen und in explosionsgefährdeten Bereichen als erfüllt, wenn sie aus Beton, Stahlbeton und Spannbeton (Ortbeton) oder aus Betonfertigteilen errichtet worden sind.

4.2.3.2 Verdichter, Lager- und Pufferbehälter

(1) Erdgas muss so gelagert werden, dass es nicht austreten kann. Dies gilt für die Pufferbehälter für Erdgas als erfüllt, wenn sie den Anforderungen der Richtlinie 2014/68/EU entsprechen.

(2) Verdichter und Pufferbehälter müssen so betrieben werden, dass z.B. durch Sicherheitseinrichtungen gegen Drucküberschreitung gewährleistet ist, dass gefährliche Überdrücke auch im Erdgasbehälter des tankenden Fahrzeugs nicht entstehen können.

(3) Eine sicherheitsrelevante MSR-Einrichtung oder Sicherheitsventil muss gewährleisten, dass im Eingangsdruckbereich, d. h. vor dem Verdichter ein Überschreiten des zulässigen Betriebsüberdruckes verhindert wird. Beim Unterschreiten des zulässigen Verdichter-Ansaugdruckes muss eine sicherheitsrelevante MSR-Einrichtung den Verdichter abschalten.

(4) Die dem Verdichter nachgeschalteten Anlagenteile müssen gegen eine unzulässige Drucküberschreitung in Abhängigkeit vom möglichen Verdichter-Enddruck und dem zulässigen Betriebsdruck der Pufferbehälter abgesichert sein.

(5) Ausrüstungsteile, Rohrleitungs- und Armaturenverbindungen müssen so ausgeführt sein, dass sie durch ihre Konstruktion oder durch ihre Überwachung und Instandhaltung auf Dauer technisch dicht sind und bei Normalbetrieb kein Erdgas freigesetzt wird. Davon ausgenommen sind minimale Mengen, die beim Lösen der Füllkupplung vom Fahrzeug technisch bedingt freigesetzt werden.

(6) Der Verdichter ist mit einem Druckwächter zu überwachen, damit ein betriebliches Ansprechen von Sicherheitseinrichtungen gegen Drucküberschreitungen vermieden wird. Der Druckwächter ist so einzustellen, dass er vor der Sicherheitseinrichtung anspricht und den Verdichter abschaltet. Die zulässige Gastemperatur nach dem Verdichter ist mittels eines Temperaturbegrenzers abzusichern, der den Verdichter abschaltet. Es ist durch geeignete Maßnahmen sicherzustellen, dass die Schwingungen des Verdichters nicht auf andere Anlagenkomponenten übertragen werden.

(7) Jeder Pufferbehälter bzw. jede Behältergruppe muss für sich von der zuführenden Rohrleitung abgesperrt werden können. Die Absperreinrichtungen müssen leicht zugänglich oder fernbetätigbar sein.

(8) Der Gaszufluss zur Erdgasfüllanlage muss eingangsseitig absperrbar sein. Die Absperrarmatur ist unter Berücksichtigung der jeweils gegebenen örtlichen und anlagenspezifischen Verhältnisse so anzuordnen, dass sie bei Abweichungen vom bestimmungsgemäßen Betrieb an der Gasfüllanlage sicher betätigt werden kann. Sie ist durch ein Hinweisschild zu kennzeichnen und vor unbefugtem Zugriff zu sichern. Die Absperrarmatur sollte sich möglichst am Beginn der Anschlussleitung zur Gasfüllanlage befinden.

(9) Zur Vermeidung innerer Korrosion und gefährlicher Betriebszustände darf nur Erdgas vorgehalten werden, dessen Taupunkt bei Füllbedingungen (200 bar und 288,16 K) ≤ -20 °C beträgt. Dazu verwendete Gastrocknungsanlagen müssen ferner sicherstellen, dass Hydratbildung und Funktionsbeeinträchtigungen der Anlage sicher vermieden werden.

4.2.3.3 Abblase- und Entspannungsleitungen

(1) Explosionsfähige Atmosphäre darf nicht verschleppt werden. Satz 1 gilt für Abblase- und Entspannungsleitungen an Erdgasbehältern als erfüllt, wenn sie nicht in geschlossene Räume, nicht in Domschächte und nicht im Inneren von Abgabeeinrichtungen münden. Austrittsöffnungen von Abblase- und Entspannungsleitungen müssen gegen das Eindringen von Regenwasser geschützt sein.

(2) Bei der Lagerung von Erdgas unter einer Überdachung oder in einem Raum ist vom Sicherheitsventil eine Abblaseleitung so über Dach ins Freie zu führen, dass austretendes Erdgas gefahrlos abgeleitet werden kann.

(3) Absatz 1 Satz 1 gilt für Austrittsöffnungen von Abblase- und Entspannungsleitungen als erfüllt, wenn Schornsteinöffnungen, Öffnungen von Regenfallrohren und Fenstern, die zum Öffnen eingerichtet sind, außerhalb der im Ex-Zonenplan festgelegten explosionsgefährdeten Bereiche angeordnet sind.

(4) Abblase- und Entspannungsleitungen dürfen nicht absperrbar sein.

(5) Die Zusammenführung von Leitungen aus Bereichen unterschiedlicher Druckstufen in die Abblase- und Entspannungsleitungen ist zu vermeiden. Bei der Entspannung aus Bereichen unterschiedlicher Druckstufen in eine Sammelleitung muss eine sicherere Entspannung auch aus dem Anlagenbereich mit der niedrigsten Druckstufe gewährleistet sein.

(6) Abblase- und Entspannungsleitungen müssen so ins Freie münden, dass durch austretende Gase keine Gefahren für Beschäftigte und andere Personen entstehen können. Die erforderliche Höhe der Abblaseleitung ist anhand des maximal möglichen Massenstroms im Einzelfall im Rahmen der Gefährdungsbeurteilung so festzulegen, dass durch austretende Gase keine Gefahren für Beschäftigte und andere Personen, insbesondere durch Wärmestrahlung im Brandfall, entstehen können.

4.2.3.4 Abgabeeinrichtungen 22

(1) Abgabeeinrichtungen müssen so betrieben werden, dass ein Überfüllen des Kraftfahrzeugbehälters sowie ein unbeabsichtigter Austritt von Erdgas in die Umgebung verhindert wird.

(2) Dies gilt für Erdgas als erfüllt, wenn redundante, automatisch gesteuerte Absperrarmaturen für die Abgabeeinrichtung vor jeder Betankungsschlauchleitung vorhanden sind, die selbsttätig schließen, sobald der zulässige Füllüberdruck im Druckgasbehälter des Fahrzeuges erreicht ist oder eine zugeordnete sicherheitsrelevante MSR-Einrichtung anspricht. Die Absperrarmaturen müssen auch bei häufigen Schaltvorgängen dauerhaft technisch dicht sein (z.B. Magnetventile). Eine der Absperreinrichtungen muss so eingebaut sein, dass sie im Fall eines Abrisses der Abgabeeinrichtung weiterhin sicher funktioniert. Zur Aufrechterhaltung der Funktionsfähigkeit der Absperrarmaturen muss vor diesen ein Filter eingebaut sein, der im Erdgasstrom befindliche Partikel herausfiltert. Auf die Redundanz der ferngesteuerten Absperrarmaturen kann verzichtet werden, wenn die Leitung zwischen dem Magnetventilen) des Pufferbehälters und der Abgabeeinrichtung nicht länger als 5 m ist. Jede Leitung vom Pufferbehälter zur Abgabeeinrichtung muss am Pufferbehälter durch ein stromlos geschlossenes Ventil abgesichert sein. Dieses muss in die Sicherheitskette der Abgabeeinrichtung eingebunden sein.

(3) In jeder Abgabeeinrichtung ist eine temperaturkompensierte betriebliche Einrichtung vorzusehen, die bei Erreichen des gemäß der fahrzeugtechnischen Vorgaben zulässigen Überdruckes in der Druckgasanlage des Fahrzeuges von 200 bar bezogen auf +15 °C die weitere Gaszufuhr zur Betankungsschlauchleitung selbsttätig unterbricht.

(4) Der höchstzulässige Fülldruck der Abgabeeinrichtung beträgt auf Grund verkehrsrechtlicher Vorschriften (siehe auch UN ECE R110) unter Berücksichtigung von messtechnischen und Bauteiltoleranzen 260 bar. Durch eine separate sicherheitsrelevante MSR-Einrichtung ist sicherzustellen, dass unter Berücksichtigung von messtechnischen und Bauteiltoleranzen gemäß fahrzeugtechnischen Vorgaben 280 bar zum Schutz der Erdgasanlage im Fahrzeug nicht überschritten werden.

(5) Der Füllschlauch muss für Erdgas sowie für die vorgesehene Betriebsweise und den vorgesehenen Betriebsdruck geeignet sein und während des Betriebs dicht bleiben. Der Ableitwiderstand zwischen den Anschlussarmaturen darf 106 Ω nicht überschreiten (siehe TRGS 727).

(6) Die am Tankanschluss des Fahrzeuges anzuschließende Füllkupplung muss so ausgebildet sein, dass der Gasdurchfluss nur freigegeben wird, wenn ein einwandfrei dichter Anschluss vorliegt. Die Kupplung muss so konstruiert sein, dass das Lösen vom Fahrzeug erst nach Druckentlastung erfolgen kann.

(7) Es dürfen zur Abgabe nur Füllkupplungen oder Adapter verwendet werden, die zu den fahrzeugseitigen Anschlüssen passen und eine sichere Abgabe von Kraftstoff ermöglichen. Dies gilt sowohl für Abgabe an Pkw ("NGV1") als auch für die Abgabe an Nutzfahrzeuge ("NGV1 " auf "NGV2") (siehe hierzu auch ANSI NGV1-2006 und ANSI NGV2-2007).

(8) Füllkupplungen müssen gegen unbeabsichtigtes Lösen gesichert sein, z.B. durch Betätigen einer Sperrvorrichtung. Sie müssen so beschaffen sein, dass auch bei einem nicht bestimmungsgemäßen Lösen unter Druck keine Personen gefährdet werden. Zur Vermeidung einer gefährlichen explosionsfähigen Atmosphäre darf beim Lösen der Kupplung nicht mehr als 50 ml Gas freigesetzt werden.

4.2.4 Gasfüllanlagen für Flüssigerdgas

4.2.4.1 Bodenflächen

(1) Zur Vermeidung elektrischer Aufladungen muss sowohl zwischen der Abgabeeinrichtung und dem zu betankenden Fahrzeug als auch zwischen dem anliefernden Tankfahrzeug und dem Lagerbehälter jeweils eine Erdungsleitung vorhanden sein. Somit sind an die Bodenflächen keine Anforderungen hinsichtlich der elektrischen Leitfähigkeit gefordert.

(2) Der Boden muss eine Neigung von etwa 2 % in eine ungefährliche Richtung besitzen. Bei in Gruppen aufgestellten Lagerbehältern muss die Neigungsrichtung so festgelegt sein, dass keine gegenseitige Gefährdung entstehen kann.

4.2.4.2 Lagerbehälter

(1) Flüssigerdgas muss so gelagert werden, dass es nicht austreten kann. Dies gilt für die Lagerbehälter für Flüssigerdgas als erfüllt, wenn sie den Anforderungen der Richtlinie 2014/68/EU entsprechen.

(2) Lagerbehälter müssen so betrieben werden, dass z.B. durch Sicherheitseinrichtungen gegen Drucküberschreitung gewährleistet ist, dass gefährliche Überdrücke auch im Flüssigerdgasbehälter des tankenden Fahrzeugs nicht entstehen können.

(3) Eine sicherheitsrelevante MSR-Einrichtung oder Sicherheitsventil muss gewährleisten, dass im Eingangsdruckbereich, vor dem Verdichter ein Überschreiten des zulässigen Betriebsüberdruckes verhindert wird. Beim Unterschreiten des zulässigen Verdichter-Ansaugdruckes muss eine sicherheitsrelevante MSR-Einrichtung den Verdichter abschalten.

(4) Die dem Verdampfer nachgeschalteten Anlagenteile müssen gegen eine unzulässige Drucküberschreitung in Abhängigkeit vom möglichen Enddruck und dem zulässigen Betriebsdruck der Lagerbehälter abgesichert sein.

(5) Ausrüstungsteile, Rohrleitungs- und Armaturenverbindungen müssen so ausgeführt sein, dass sie durch ihre Konstruktion oder durch ihre Überwachung und Instandhaltung auf Dauer technisch dicht sind und bei Normalbetrieb kein Flüssigerdgas freigesetzt wird. Davon ausgenommen sind minimale Mengen, die beim Lösen der Füllkupplung vom Fahrzeug technisch bedingt freigesetzt werden.

(6) Jeder Lagerbehälter bzw. jede Behältergruppe muss für sich von der zuführenden Rohrleitung abgesperrt werden können. Die Absperreinrichtungen müssen leicht zugänglich oder von der Ferne bedienbar sein.

(7) Der Zufluss von Flüssigerdgas zur Füllanlage muss eingangsseitig absperrbar sein. Die Absperrarmatur ist unter Berücksichtigung der jeweils gegebenen örtlichen und anlagenspezifischen Verhältnisse so anzuordnen, dass sie bei Abweichungen vom bestimmungsgemäßen Betrieb an der Gasfüllanlage sicher betätigt werden kann. Sie ist durch ein Hinweisschild zu kennzeichnen und vor unbefugtem Zugriff zu sichern. Die Absperrarmatur sollte sich möglichst am Beginn der Anschlussleitung zur Gasfüllanlage befinden.

4.2.4.3 Abblase- und Entspannungsleitungen

(1) Explosionsfähige Atmosphäre darf nicht verschleppt werden. Satz 1 gilt für Abblase- und Entspannungsleitungen von Anlagenteilen für Flüssigerdgas als erfüllt, wenn

  1. sie nicht in geschlossene Räume und nicht im Inneren von Abgabeeinrichtungen münden,
  2. ihre Austrittsöffnungen gegen das Eindringen von Regenwasser geschützt sind
  3. eine Ansammlung von Kondensat verhindert wird und
  4. Schornsteinöffnungen, Öffnungen von Regenfallrohren und Fenstern, die zum Öffnen eingerichtet sind, außerhalb der im Ex-Zonenplan festgelegten explosionsgefährdeten Bereiche angeordnet sind und sich im explosionsgefährdeten Bereich um die Austrittsöffnungen von Abblase- und Entspannungsleitungen keine anderweitigen Zündquellen, z.B. Beleuchtungsmasten befinden

(2) Bei der Lagerung von Flüssigerdgas unter einer Überdachung oder in einem Raum ist vom Sicherheitsventil eine Abblaseleitung so über Dach ins Freie zu führen, dass austretendes Erdgas gefahrlos abgeleitet werden kann.

(3) Es müssen Entspannungsventile für die thermische Entspannung von abgesperrten Leitungsabschnitten vorgesehen werden.

(4) Abblase- und Entspannungsleitungen dürfen nicht absperrbar sein. Der Anschluss von Leitungen aus Bereichen unterschiedlicher Druckstufen ist zu vermeiden. Bei der Entspannung aus Bereichen unterschiedlicher Druckstufen in eine Sammelleitung muss eine sicherere Entspannung auch aus dem Anlagenbereich mit der niedrigsten Druckstufe gewährleistet sein.

(5) Abblase- und Entspannungsleitungen müssen so ins Freie münden, dass durch austretende Gase keine Gefahren für Beschäftigte und andere Personen entstehen können. Die erforderlichen Höhen der Abblase- und Entspannungsleitungen sind anhand des maximal möglichen Massenstroms im Einzelfall im Rahmen der Gefährdungsbeurteilung so festzulegen, dass durch austretende Gase keine Gefahren für Beschäftigte, andere Personen und Anlagenteile, insbesondere durch Wärmestrahlung im Brandfall, entstehen können.

4.2.4.4 Abgabeeinrichtungen

(1) Abgabeeinrichtungen müssen so betrieben werden, dass ein Überfüllen des Kraftfahrzeugbehälters sowie ein unbeabsichtigter Austritt von Erdgas in die Umgebung verhindert wird. Die Abgabeeinrichtung muss über einen Totmannschalter bedient werden.

(2) Dies gilt für Flüssigerdgas als erfüllt, wenn redundante, automatisch gesteuerte Absperrarmaturen für die Abgabeeinrichtung vor jeder Betankungsschlauchleitung vorhanden sind, die selbsttätig schließen, sobald der zulässige Füllüberdruck im LNG-Tank (Druckbehälter) des zu betankenden Fahrzeuges erreicht ist oder eine zugeordnete sicherheitsrelevante MSR-Einrichtung anspricht. Die Absperrarmaturen müssen auch bei häufigen Schaltvorgängen dauerhaft technisch dicht sein wie z.B. durch Magnetventile. Eine der Absperreinrichtungen muss so eingebaut sein, dass sie im Fall eines Abrisses der Abgabeeinrichtung weiterhin sicher funktioniert. Zur Aufrechterhaltung der Funktionsfähigkeit der Absperrarmaturen muss vor diesen ein Feinfilter eingebaut sein, der im Flüssigerdgasstrom befindliche Partikel herausfiltert. Jede Leitung vom Lagerbehälter zur Abgabeeinrichtung muss am Lagerbehälter durch ein stromlos geschlossenes Ventil abgesichert sein. Dieses muss in die Sicherheitskette der Abgabeeinrichtung eingebunden sein.

(3) Die Abgabeeinrichtung darf die Betankung erst freigeben, wenn mit der an der Abgabeeinrichtung vorhandenen Erdungsleitung eine elektrisch leitfähige Verbindung zum betankenden Fahrzeug hergestellt worden ist.

(4) An Abgabeeinrichtungen muss ein Druckluftanschluss mit Ausblaspistole zur Reinigung bzw. Trocknung des Zapfventils und des Anschlusses am LNG-Tank des zu betankenden Fahrzeugs vorgesehen werden.

(5) Nach Beendigung des Tankvorgangs muss das im Betankungsschlauch verbleibende Flüssigerdgas zum Lagerbehälter hin verdampfen können.

(6) Der Füllschlauch muss für Flüssigerdgas sowie für die vorgesehene Betriebsweise und den vorgesehenen Betriebsdruck geeignet sein und während des Betriebs dicht bleiben, z.B. gemäß DIN EN ISO 21012:2017-03. Der Ableitwider- stand zwischen den Anschlussarmaturen darf 106 Ω nicht überschreiten (siehe TRGS 727).

(7) Die am Tankanschluss des Fahrzeuges anzuschließende Füllkupplung muss so ausgebildet sein, dass der Flüssigerdgasdurchfluss nur freigegeben wird, wenn ein einwandfrei dichter Anschluss vorliegt. Die Kupplung muss so konstruiert sein, dass das Lösen vom Fahrzeug erst nach Druckentlastung erfolgen kann.

(8) Es dürfen zur Abgabe nur Füllkupplungen oder Adapter verwendet werden, die zu den fahrzeugseitigen Anschlüssen passen und eine sichere Abgabe von Kraftstoff ermöglichen.

(9) Füllkupplungen müssen gegen unbeabsichtigtes Lösen gesichert sein, z.B. durch Betätigen einer Sperrvorrichtung. Sie müssen so beschaffen sein, dass auch bei einem nicht bestimmungsgemäßen Lösen unter Druck keine Personen gefährdet werden.

4.2.4.5 Ausrüstung von Lagerbehälter

(1) Aus Sicherheitseinrichtungen freigesetzte Gase müssen gefahrlos abgeleitet werden können.

(2) Lagerbehälter müssen mit Sicherheitsventilen ausgerüstet sein.

(3) Wenn eine LNG-Erwärmung durch Wärmeeintrag über die Behälterwandung zu einem Überschreiten des maximal zulässigen Betriebsdrucks führen kann, so ist der abzuführende Massenstrom durch das Sicherheitsventil entsprechend dem Wärmeeintrag zu berücksichtigen.

(4) Wenn durch störungsbedingte Gasfreisetzung entzündetes Gas den Lagerbehälter, seine Stahlstützen oder Standzarge befeuern kann, ist ein ausreichender Schutz gegen Selbstbefeuerung erforderlich. Aus diesem Grund muss der Lagerbehälter so aufgestellt und ausgerüstet sein oder geschützt sein, dass eine Freisetzung von Gas nicht zu einem Brand führen kann, durch den der Lagerbehälter in Gefahr drohender Weise erwärmt wird. Die erforderlichen Maßnahmen müssen im Rahmen der Gefährdungsbeurteilung festgelegt werden. Sie können z.B. aus einer geeigneten Kombination der nachfolgenden Maßnahmen bestehen:

  1. Alle Leitungen zwischen Lagerbehälter und Armaturen sind ohne lösbare Verbindung ausgeführt.
  2. Es muss eine der Maßnahmen Brandschutzisolierung oder Wasserberieselung getroffen werden.
  3. Flanschverbindungen müssen ausreichend gegen die Folgen einer Wärmestrahlung geschützt sein, z.B. durch Verwendung von Dichtungswerkstoffen, die nachweislich bei einer Temperatur von +620 °C bis zu 30 min wärmebeständig bleiben.

(5) Die erste unterhalb des Lagerbehälters liegende Absperrarmatur in der Füll- und Entnahmeleitung für die flüssige Phase muss als eingeschweißte feuersichere Armatur ausgeführt sein. Siehe hierzu z.B. DIN EN ISO 10497 "Prüfung von Armaturen - Anforderungen an die Typprüfung auf Feuersicherheit".

(6) Vor oder hinter der ersten mit der flüssigen Phase in Verbindung stehenden Handabsperrarmatur der Füll- und Entnahmeleitung von Lagerbehältern mit einem Fassungsvermögen > 3 t muss eine fernbetätigbare Absperrarmatur vorhanden sein. In Füllleitungen ≤ DN 50 darf anstelle der fernbetätigbaren Absperrarmatur eine Rückschlagarmatur eingebaut sein.

(7) Für Rohrleitungsanschlüsse an Lagerbehältern mit einem Fassungsvermögen > 30 t muss vor oder hinter der ersten mit der flüssigen Phase in Verbindung stehenden Handabsperrarmatur der Füll- und Entnahmeleitung sowie der Gaspendelleitung eine fernbetätigbare Absperrarmatur mit mechanischem, pneumatischem oder elektrischem Stellungsanzeiger vorhanden sein. Die fernbetätigbare Absperrarmatur muss bei Ausfall der Antriebsenergie selbsttätig in die sichere Stellung gehen. Die Armaturen müssen so beschaffen sein, dass sie bei den bei einer eventuellen Selbstbefeuerung zu erwartenden Temperaturen in erforderlichem Maße funktionsfähig bleiben, es sei denn, die Armaturen sind durch Brandschutzisolierung oder Wasserberieselung geschützt. In Füllleitungen ≤ DN 50 darf anstelle der fernbetätigbaren Absperrarmatur eine Rückschlagarmatur eingebaut sein.

(8) Lagerbehälter mit einem Fassungsvermögen > 30 t müssen

  1. mit einer Einrichtung ausgerüstet sein, die den Füllvorgang selbsttätig unterbricht, wenn sie während des Füllvorgangs von nur einer Person überwacht werden und diese Einrichtung nicht in regelmäßigen Abständen von der Bedienungsperson betätigt wird, oder
  2. mit einer Monitorüberwachung ausgerüstet sein, die gewährleistet, dass von einer ständig besetzten Stelle erforderlichenfalls schnell eingegriffen werden kann. Anzeigen zum Füllstand/Behälterdruck und zu allen sicherheitstechnisch wichtigen Anlagenteilen sind an diese Überwachung zu übertragen; die einzuleitenden Maßnahmen (z.B. Auslösung des Anlagen-Aus-Systems) sind im Rahmen der Gefährdungsbeurteilung festzulegen.

(9) Bei Lagerbehältern mit einem Fassungsvermögen > 30 t müssen an der Verbindungsstelle der beweglichen Anschlussleitung zur festverlegten Rohrleitung fernbetätigbare Schnellschlussarmaturen in redundanter Ausführung vorhanden sein. Eine der beiden Schnellschlussarmaturen kann auch eine Rückschlagarmatur sein. In Abhängigkeit vom Inhalt der festverlegten Rohrleitung kann auf eine redundante Schnellschlussarmatur verzichtet werden, wenn redundante Schnellschlussarmaturen an den ortsfesten Druckgasbehältern vorhanden sind.

(10) Fahrzeuge, aus denen die Lagerbehälter für Flüssigerdgas befüllt werden, sind gegen Fortrollen oder Fortfahren zu sichern. Zusätzlich ist bei Lagerbehältern mit einem Fassungsvermögen > 30 t die Freisetzung von entzündbaren Gasen im Falle des unbeabsichtigten Fortrollens oder Fortfahrens von Fahrzeugen mit angeschlossenen beweglichen Füllleitungen durch selbsttätig wirkende technische Maßnahmen zu begrenzen, z.B. durch Schnelltrennstellen (Schlauchabrisskupplungen, Sicherheitstrennkupplungen), die sich beim Fortrollen oder Fortfahren des Fahrzeuges lösen und beiderseits der Trennstelle selbsttätig dicht schließen.

(11) Bei Lagerbehältern mit einem Fassungsvermögen > 30 t sind zwei voneinander unabhängige Überfüllsicherungen oder ein gleichwertiges System erforderlich. Abweichend von Satz 1 ist bei Lagerbehältern mit einem Fassungsvermögen von 3 t bis 30 t eine Überfüllsicherung ausreichend. Die Füllstandanzeige kann in die Überfüllsicherung integriert sein. Diese Überfüllsicherungen müssen so eingestellt sein, dass unter Berücksichtigung eventueller Nachlaufmengen der zulässige Füllgrad des Druckgasbehälters nicht überschritten und der Förderstrom automatisch unterbrochen wird. Beim Ansprechen der Überfüllsicherung muss ein sicher erkennbarer optischer oder akustischer Alarm ausgelöst werden.

(12) Die Einrichtungen zur Füllstandsbegrenzung von Lagerbehältern sind so einzustellen, dass der Füllungsgrad 95 % des Gesamtrauminhalts nicht überschreiten kann. Der Füllungsgrad darf auf die Einfülltemperatur bezogen werden, wenn Sicherheitseinrichtungen gegen Drucküberschreitung vorhanden sind, deren Funktion durch die bei der Freisetzung von Gasen auftretenden tiefen Temperaturen nicht beeinträchtigt werden und wenn die Gase gefahrlos austreten oder gefahrlos abgeleitet werden können.

(13) Anlagen im Betrieb ohne Beaufsichtigung mit Lagerbehältern mit einem Gesamtfassungsvermögen > 30 t müssen im Bereich der Lagerbehälter mit selbsttätig wirkenden Einrichtungen zum Erkennen und Melden von störungsbedingter Freisetzung von Gasen, z.B. einer Gaswarneinrichtung mit Meldung an eine ständig besetzte Stelle, ausgerüstet sein.

(14) Es ist für das zu messende Gas/Gasgemisch eine geeignete und entsprechend kalibrierte Gaswarneinrichtung zu verwenden.

(15) Es müssen Alarmierungsschwellen festgelegt und angemessene Maßnahmen vorgesehen und im Alarmfall eingeleitet werden, Abschnitt 4.1.9.5 Absatz 4 gilt sinngemäß. Die Anlage muss ab einer im Rahmen der Gefährdungsbeurteilung festzulegenden Gaskonzentration in den sicheren Zustand gebracht werden.

(16) Ein Anlagen-Aus-System mit leicht erreichbarem Auslösesystem und Meldung an eine ständig besetzte Stelle muss bei Lagebehältern mit einem Gesamtfassungsvermögen > 30 t vorhanden sein.

(17) Das Anlagen-Aus-System kann in mehrere Teilsysteme untergliedert sein und je nach den örtlichen oder betrieblichen Gegebenheiten von Hand oder selbsttätig ausgelöst werden. Mit dem Anlagen-Aus-System müssen die Verbindungsleitungen zwischen dem Lagerbehälter und anderen Anlagenteilen so abgesperrt werden, dass Gefährdungen verhindert werden. Im Ergebnis der Gefährdungsbeurteilung ist zu entscheiden, welche fernbetätigbaren Absperrarmaturen in das Anlagen-Aus-System einzubeziehen sind. Abweichend davon sind Hauptabsperrarmaturen an den ortsbeweglichen Druckgasbehältern in das Anlagen-Aus-System der Füllanlage einzubeziehen, sofern diese Armaturen fernbetätigbar sind.

4.2.5 Gasfüllanlagen für Wasserstoff

4.2.5.1 Anlagenumfang

(1) Gasfüllanlagen für Wasserstoff bestehen in der Regel aus

  1. einem oder mehreren Lagerbehältern,
  2. einem oder mehreren Verdichtern, die den Wasserstoff aus dem Lagerbehälter in den Pufferspeicher (Pufferbehälter) drücken,
  3. einem Pufferspeicher, bestehend aus einem oder mehreren miteinander verbundenen Druckbehältern (Pufferbehälter),
  4. einem Vorkühlsystem, bestehend aus einer Kühleinheit (Kältemaschine) und einem oder mehreren Wärmetauschern zur Steuerung der Abgabetemperatur, um bei der Betankung die Temperaturentwicklung im Fahrzeugtank zu begrenzen,
  5. zugehörigen Armaturen und Rohrleitungen,
  6. einer Druckentlastungsleitung (sog. Abblaseleitung) , über die der ausströmende Wasserstoff sicher abgeleitet wird
  7. eine Entlüftungs- bzw. Entspannungsleitung (sog. Abblaseleitung oder Abblasekamin) zum Abblasen von Wasserstoff über Dach (die Druckentlastungsleitung mündet in der Regel in diese Leitung),
  8. einem Raum, z.B. als abgeschlossener Aufstellraum, in dem die Verdichter- bzw. Versorgungseinheit, jedoch keine Lagerbehälter, und das Vorkühlsystem installiert sind,
  9. einem Elektro-Schaltraum, in dem die Anlagensteuerung installiert ist. Der Elektro-Schaltraum kann räumlich getrennt oder in einem Gebäude mit der Verdichter- bzw. Versorgungseinheit untergebracht sein,
  10. einer Anlagensteuerung für die Überwachung und Steuerung der Prozesse der Gasfüllanlage für Wasserstoff sowie
  11. einer Abgabeeinrichtung mit zugehörigen Schlauchleitungen und Zapfventilen.

(2) Im Pufferspeicher (Pufferbehälter) wird das Druckniveau zur Befüllung der Fahrzeuge durch Überströmen (Druckausgleich) vorgehalten. Die Pufferspeicher (Pufferbehälter) befinden sich in der Regel in derselben Baugruppe wie der Verdichter.

(3) Gasfüllanlagen für Wasserstoff werden in der Regel für die Abgabe von gasförmigem Wasserstoff mit einem nominalen Fülldruck von 350 oder 700 bar konzipiert. Der maximale Arbeitsdruck beträgt 125 % des nominalen Fülldrucks . Darüber hinaus entspricht der Ansprechdruck der Sicherheitseinrichtungen max. 138 % des nominalen Fülldrucks.

4.2.5.2 Bodenflächen

(1) Zur Vermeidung elektrostatischer Aufladungen muss eine ausreichende elektrische Leitfähigkeit der Bodenfläche (Ableitwiderstand < 108 Ω) sichergestellt sein. Satz 1 gilt für Flächen im Wirkbereich von Kraftstoffen und in explosionsgefährdeten Bereichen als erfüllt, wenn sie aus Beton, Stahlbeton und Spannbeton (Ortbeton) oder aus Betonfertigteilen errichtet worden sind.

(2) Bodenflächen an Gasfüllanlagen zur Abgabe von flüssigem Wasserstoff müssen aus nichtbrennbaren Materialien sein.

4.2.5.3 Lager- und Pufferbehälter

(1) Wasserstoff muss so gelagert werden, dass er nicht aus - treten kann. Dies gilt für die Lager- und Pufferbehälter für Wasserstoff als erfüllt, wenn die Anlagenteile für Wasserstoff gemäß TRGS 722 auf Dauer technisch dicht ausgeführt sind.

(2) Lager- und Pufferbehälter müssen so betrieben werden, dass z.B. durch Sicherheitseinrichtungen gegen Drucküberschreitung gewährleistet ist, dass gefährliche Überdrücke auch im Wasserstoffbehälter des tankenden Fahrzeugs nicht entstehen können.

(3) Eine sicherheitsrelevante MSR-Einrichtung oder Sicherheitsventil muss gewährleisten, dass im Eingangsdruckbe- reich - vor dem Verdichter - ein Überschreiten des zulässigen Betriebsüberdruckes verhindert wird. Beim Unterschreiten des zulässigen Verdichter-Ansaugdruckes muss eine sicherheitsrelevante MSR-Einrichtung den Verdichter abschalten oder die Konstruktion des Verdichters muss so gewählt sein, dass ein Unterdruck sicher vermieden werden kann.

(4) Die dem Verdichter nachgeschalteten Anlagenteile müssen gegen eine unzulässige Drucküberschreitung in Abhängigkeit vom möglichen Verdichter-Enddruck und dem maximalen Druck (PS) der Pufferbehälter abgesichert sein.

(5) Ausrüstungsteile, Rohrleitungs- und Armaturenverbindungen müssen so ausgeführt sein, dass sie durch ihre Konstruktion oder durch ihre Überwachung und Instandhaltung auf Dauer technisch dicht sind und bei Normalbetrieb kein Wasserstoff freigesetzt wird. Davon ausgenommen sind minimale Mengen, die beim Lösen der Füllkupplung vom Fahrzeug technisch bedingt freigesetzt werden.

(6) Der Verdichter ist mit einem Druckwächter zu überwachen, damit ein betriebliches Ansprechen von Sicherheitseinrichtungen gegen Drucküberschreitungen vermieden wird. Der Druckwächter ist so einzustellen, dass er vor der Sicherheitseinrichtung anspricht und den Verdichter abschaltet. Die zulässige Gastemperatur nach dem Verdichter ist mittels eines Temperaturbegrenzers abzusichern, der den Verdichter abschaltet. Es ist durch geeignete Maßnahmen sicherzustellen, dass die Schwingungen des Verdichters nicht auf andere Anlagenkomponenten übertragen werden.

(7) Jeder Pufferbehälter bzw. jede Behältergruppe muss für sich von der zuführenden Rohrleitung abgesperrt werden können. Die Absperreinrichtungen müssen leicht zugänglich oder fernbetätigbar sein.

(8) Der Gaszufluss zur Wasserstofffüllanlage muss eingangsseitig absperrbar sein. Die Absperrarmatur ist unter Berücksichtigung der jeweils gegebenen örtlichen und anlagenspezifischen Verhältnisse so anzuordnen, dass sie bei Abweichungen vom bestimmungsgemäßen Betrieb an der Gasfüllanlage sicher betätigt werden kann. Sie ist durch ein Hinweisschild zu kennzeichnen und vor unbefugtem Zugriff zu sichern. Die Absperrarmatur sollte sich möglichst am Beginn der Anschlussleitung zur Gasfüllanlage befinden.

4.2.5.4 Abblase- und Entspannungsleitungen

(1) Explosionsfähige Atmosphäre darf nicht verschleppt werden. Satz 1 gilt für Abblase- und Entspannungsleitungen an Wasserstoffanlagen als erfüllt, wenn sie nicht in geschlossene Räume, nicht in Domschächte und nicht im Inneren von Abgabeeinrichtungen münden; ihre Austrittsöffnungen müssen gegen das Eindringen von Regenwasser geschützt sein.

(2) Bei der Lagerung von Wasserstoff unter einer Überdachung oder in einem Raum ist vom Sicherheitsventil eine Abblaseleitung so über Dach ins Freie zu führen, dass austretender Wasserstoff gefahrlos abgeleitet werden kann.

(3) Absatz 1 Satz 1 gilt für Austrittsöffnungen von Abblase- und Entspannungsleitungen als erfüllt, wenn Schornsteinöffnungen, Öffnungen von Regenfallrohren und Fenstern, die zum Öffnen eingerichtet sind, außerhalb der festgelegten explosionsgefährdeten Bereiche angeordnet sind.

(4) Abblase- und Entspannungsleitungen dürfen nicht absperrbar sein. Der Anschluss von Leitungen aus Bereichen unterschiedlicher Druckstufen ist zu vermeiden. Werden jedoch Leitungen aus Bereichen unterschiedlicher Druckstufen an eine Sammelleitung angeschlossen, muss rechnerisch nachgewiesen werden, dass der Gegendruck im Falle eines gleichzeitigen Ansprechens die Funktion aller anderen Sicherheitsventile nicht beeinträchtigt oder deren Abblasekapazität nicht unter das erforderliche Maß einschränkt.

(5) Abblase- und Entspannungsleitungen müssen so ins Freie münden, dass durch austretende Dampf-Luft-Gemische oder Gase keine Gefahren für Beschäftigte und andere Personen entstehen können. Die erforderliche Höhe der Abblaseleitung ist anhand des maximal möglichen Massenstroms im Einzelfall im Rahmen der Gefährdungsbeurteilung so festzulegen, dass durch austretende Gase keine Gefahren für Beschäftigte und andere Personen, insbesondere durch Wärmestrahlung im Brandfall, entstehen können.

4.2.5.5 Abgabeeinrichtungen

(1) Abgabeeinrichtungen müssen so betrieben werden, dass ein Überfüllen des Kraftfahrzeugbehälters sowie ein unbeabsichtigter Austritt von Wasserstoff in die Umgebung verhindert wird.

(2) Dies gilt für Wasserstoff als erfüllt, wenn redundante, automatisch gesteuerte Absperrarmaturen für die Abgabeeinrichtung vor jeder Betankungsschlauchleitung vorhanden sind, die selbsttätig schließen, sobald der zulässige Füllüberdruck im Druckgasbehälter des Fahrzeuges erreicht ist oder eine zugeordnete sicherheitsrelevante MSR-Einrichtung anspricht. Die Absperrarmaturen müssen auch bei häufigen Schaltvorgängen dauerhaft technisch dicht sein, z.B. durch Magnetventile. Eine der Absperreinrichtungen muss so eingebaut sein, dass sie im Fall eines Abrisses der Abgabeeinrichtung weiterhin sicher funktioniert. Zur Aufrechterhaltung der Funktionsfähigkeit der Absperrarmaturen muss vor diesen ein Filter eingebaut sein, der im Wasserstoffstrom befindliche Partikel herausfiltert. Auf die Redundanz der ferngesteuerten Absperrarmaturen kann verzichtet werden, wenn die Leitung zwischen dem Magnetventil bzw. -ventilen des Pufferbehälters und der Abgabeeinrichtung nicht länger als 5 m ist. Jede Leitung vom Pufferbehälter zur Abgabeeinrichtung muss am Pufferbehälter durch ein stromlos geschlossenes Ventil abgesichert sein. Dieses muss in die Sicherheitskette der Abgabeeinrichtung eingebunden sein.

(3) In jeder Abgabeeinrichtung ist eine befüllprotokollgesteuerte sicherheitsrelevante MSR-Einrichtung vorzusehen, die bei Erreichen des gemäß der fahrzeugtechnischen Vorgaben zulässigen Überdruckes in der Druckgasanlage des Fahrzeuges die weitere Gaszufuhr zur Betankungsschlauchleitung selbsttätig unterbricht.

(4) Der Füllschlauch muss für Wasserstoff sowie für die vorgesehene Betriebsweise und den vorgesehenen zulässigen Betriebsdruck (PB) geeignet sein und während des Betriebs dicht bleiben. Der Ableitwiderstand zwischen den Anschlussarmaturen darf 106 Ω nicht überschreiten (siehe TRGS 727).

(5) Die am Tankanschluss des Fahrzeuges anzuschließende Füllkupplung muss so ausgebildet sein, dass der Gasdurchfluss nur freigegeben wird, wenn ein einwandfrei dichter Anschluss vorliegt. Die Kupplung muss so konstruiert sein, dass das Lösen vom Fahrzeug erst nach Druckentlastung erfolgen kann.

(6) Es dürfen zur Abgabe nur Füllkupplungen verwendet werden, die zu den fahrzeugseitigen Anschlüssen passen und eine sichere Abgabe von Kraftstoff ermöglichen. Für Wasserstoff sind Füllkupplungen nach DIN EN ISO 17268 oder gleichwertig zu verwenden. Die verwendete Füllkupplung muss der Druckklasse (Nominaldruck) der Abgabeeinrichtung entsprechen.

(7) Füllkupplungen müssen gegen unbeabsichtigtes Lösen gesichert sein, z.B. durch Betätigen einer Sperrvorrichtung. Sie müssen so beschaffen sein, dass auch bei einem nicht bestimmungsgemäßen Lösen unter Druck keine Personen gefährdet werden. Zur Vermeidung einer gefährlichen explosionsfähigen Atmosphäre darf beim Lösen der Kupplung nicht mehr als 50 ml Gas freigesetzt werden.

4.2.6 Weitere explosionsschutztechnische Anforderungen

(1) Liegen Öffnungen von Behältern zur Lagerung von Betriebsstoffen mit einem Flammpunkt > +55 °C, z.B. Diesel im Wirkbereich oder explosionsgefährdeten Bereichen von anderen Anlagen oder -teilen, z.B. im Fernfüllschacht, müssen die Behälter und deren Ausrüstung den Anforderungen zum Explosionsschutz für Kraftstoffe entsprechen. Öffnungen von Behältern zur Lagerung von nichtbrennbaren Betriebsstoffen wie z.B. wässrige Harnstofflösung "AdBlue", müssen entweder das Eindringen von Kraftstoffen und deren Dämpfen sicher verhindern, z.B. durch Trockenkupplung, oder müssen außerhalb der Wirkbereiche oder explosionsgefährdeten Bereiche von Kraftstoffen angeordnet sein.

(2) An Teilen von Betankungsanlagen für Kraftstoffe kann nach den Bestimmungen der §§ 6 und 11 der GefStoffV die Bildung gefährlicher explosionsfähiger Atmosphäre nicht sicher verhindert werden. Deshalb sind in explosionsgefährdeten Bereichen Maßnahmen zum Schutz vor Entzündung explosionsfähiger Atmosphäre gemäß TRGS 723 und zur Beschränkung der Auswirkungen einer Explosion gemäß TRGS 724 erforderlich.

(3) Für die Auswahl von Geräten zur Verwendung in explosionsgefährdeten Bereichen gilt TRGS 723 Abschnitt 5.1 Absatz 3. Hierbei sind insbesondere die Betriebsanleitungen der Hersteller der Geräte, Sicherheits-, Kontroll- oder Regelvorrichtungen nach Richtlinie 2014/34/EU zu berücksichtigen.

(4) Schutzsysteme, die in explosionsgefährdeten Bereichen eingesetzt werden wie Flammendurchschlagsicherungen, dürfen nur in Betrieb genommen werden, wenn sie die Anforderungen der 11. ProdSV (Explosionsschutzprodukteverordnung) erfüllen und für den vorgesehenen Einsatzfall geeignet sind. Hierbei sind insbesondere die Betriebsanleitungen der Hersteller zu berücksichtigen.

(5) In unmittelbarer Nähe von explosionsgefährdeten Bereichen der Zone 0 und der Zone 1 sowie oberhalb aller explosionsgefährdeten Bereiche dürfen Zündquellen, die auf die explosionsgefährdeten Bereiche gefährlich einwirken können, z.B. Feuerstätten, offenes Feuer, nichtexplosionsgeschützte Leuchtmittel, Rauchen, nicht vorhanden sein.

(6) Damit explosionsfähige Atmosphäre nicht verschleppt werden kann, müssen Einmündungen und Schutzrohre für Kabel und Rohrleitungen in explosionsgefährdeten Bereichen gegen das Eindringen von Kraftstoffen und deren Dämpfe geschützt sein.

(7) Zur Vermeidung gefährlicher elektrostatischer Aufladungen (siehe auch TRGS 727) bei der Befüllung von Lagerbehältern mit flüssigen Kraftstoffen sind Abfüllschläuche mit einem Ableitwiderstand zwischen den Anschlussarmaturen von höchstens 106 Ω zu verwenden. Die maximale Füllrate ist auf 1200 l/min zu begrenzen. Überschreitet sie 1200 l/ min, sind zusätzliche Maßnahmen zur Vermeidung gefährlicher elektrostatischer Aufladungen zu treffen, z.B. zusätzliche Erdung des Straßentankfahrzeugs. Der Ableitwiderstand von Gaspendelschläuchen darf zwischen den Anschlussarmaturen 106 Ω nicht überschreiten.

4.2.7 Weitere Anforderungen des Brandschutzes 22

(1) Damit Entstehungsbrände auch durch andere Personen bekämpft werden können, müssen die nach ArbStättV erforderlichen Feuerlöscheinrichtungen auch in unmittelbarer Nähe der Abgabeeinrichtungen vorhanden sein. Die Feuerlöscheinrichtungen müssen für die Brandklassen A, B C geeignet sein.

(2) Bei Betankungsanlagen mit oberirdischen Lager- oder Pufferbehältern sind Art und Umfang des erforderlichen vorbeugenden Brandschutzes und der ortsfesten Brandbekämpfungseinrichtungen im Einzelfall nach den örtlichen und betrieblichen Verhältnissen, insbesondere nach der Menge und den Stoffeigenschaften der gelagerten Kraft- und Betriebsstoffe, zu bestimmen. Sie sind durch angemessene Einrichtungen zur Benachrichtigung der zuständigen Feuerwehr, z.B. durch Feuermelder, zu ergänzen.

(3) Im Wirkbereich von Abgabeeinrichtungen sind nur Abfallbehälter zulässig, die aus Metall oder selbstverlöschenden Materialien bestehen und mit Ausnahme der Einfüllöffnung eine geschlossene Oberfläche haben.

(4) An jeder Betankungsanlage müssen für die Brandklassen ABC zugelassene Feuerlöscher mit gültigem Prüfdatum vorhanden sein. Die Zahl der erforderlichen Feuerlöscher ist mindestens gleich einem Drittel der Anzahl der Fahrzeuge, die an der Betankungsanlage gleichzeitig betankt werden können, mindestens jedoch zwei. Das Löschvermögen jedes Feuerlöschers muss mindestens sechs Löschmitteleinheiten gemäß ASR A2.2 betragen.

Bezüglich Anlagen der Elektromobilität, die in räumlicher Nähe zu Betankungsanlagen aufgestellt sind, wird auf Anhang 2 verwiesen.

4.2.8 Rohrleitungen

(1) Für Installation und Montage von kraftstoffführenden Rohrleitungen in Betankungsanlagen gelten die TRBS der Reihe 2141. An Anlagen für Flüssigerdgas und Flüssigwasserstoff müssen die Materialien tiefkaltfest sein und müssen geeignet gegen Berührung geschützt eingebaut werden. Alternativ kann ein vakuumisolierender Schutz vorgesehen werden.

(2) Rohrleitungen für Kraft- und Betriebsstoffe müssen für die zu erwartenden mechanischen, thermischen und chemischen Beanspruchungen geeignet sein und während des Betriebes dicht bleiben. Dies gilt hinsichtlich der mechanischen Beanspruchungen als erfüllt, wenn die kraftstoffführenden Rohrleitungen für flüssige Kraft- und Betriebsstoffe für einen maximal zulässigen Druck (PS) von mindestens 16 bar (PN 16), für Flüssiggas für einen maximal zulässigen Druck (PS) von mindestens 25 bar (PN 25) und für Erdgas, Flüssigerdgas und Wasserstoff auf den jeweiligen Auslegungsdruck (maximal zulässiger Druck (PS)) ausgelegt sind. Für die Druckabsicherung der Rohrleitungen für Flüssiggas, Wasserstoff oder Flüssigerdgas gilt TRBS 2141.

(3) Erdgas, Flüssiggas, Flüssigerdgas und Wasserstoff darf nicht unbeabsichtigt aus den Lagerbehältern nachströmen können. Dazu müssen in den Rohrleitungen zwischen Lagerbehälter und Abgabeeinrichtung mit geringer Länge der Rohrleitung zum Lagerbehälter (unmittelbar hinter dem Lagerbehälter) Schnellschlussventile mit Einbindung in das Anlagen-Aus-System vorhanden sein, die schließen, sobald die Fördereinrichtung ausgeschaltet oder die Stromzuführung unterbrochen ist. In den Rücklaufleitungen für Flüssiggas und Flüssigerdgas ist der Einsatz von geeigneten Rückschlagventilen ausreichend. Satz 1 gilt bei ortsfesten Druckgasbehältern für verflüssigte entzündbare Gase mit einem Fassungsvermögen > 3 t als erfüllt, wenn die erste unterhalb des Behälters liegende Absperrarmatur in der Füll- und Entnahmeleitung für die flüssige Phase

  1. als eingeschweißte außenliegende und feuersichere Armatur (siehe dazu z.B. DIN EN ISO 10497 "Prüfung von Armaturen - Anforderungen an die Typprüfung auf Feuersicherheit") ausgeführt ist,
  2. die außenliegende Armatur durch eine Brandschutzisolierung oder Wasserberieselung geschützt ist oder
  3. als innen liegende Armatur ausgeführt ist.

(4) Die Fülleinrichtungen zum Befüllen der Lagerbehälter müssen verschließbar sein, z.B. durch dicht schließende Verschlusskappen.

(5) Die Gefahr des Funkenreißens beim Befestigen oder Lösen von Füllleitungen für entzündbare, leicht entzündbare oder extrem entzündbare Kraftstoffe muss ausgeschlossen sein. Für Maßnahmen siehe TRGS 723. Für die Zoneneinteilung wird auf Abschnitt 4.1.10 verwiesen.

(6) Im Verlaufe von Rohrleitungen ist zum Zwecke der Ableitung elektrostatischer Aufladungen eine dauerhafte elektrostatisch leitfähige Verbindung zwischen den einzelnen Segmenten der Rohrleitung erforderlich, sofern aufgrund der Konstruktion nicht auf Dauer von einer ausreichenden leitfähigen Verbindung ausgegangen werden kann. Isolierstücke an Flanschen der Füll- und Gaspendelstutzen sind zur Vermeidung elektrostatischer Aufladungen mit einem Widerstand < 106 Ω zu überbrücken. Satz 1 gilt bezüglich der Ableitung elektrostatischer Aufladungen für Rohrleitungen aus nichtmetallischen Werkstoffen als erfüllt, wenn der Ableitwiderstand des Rohrmaterials oder einer leitfähigen Innenbeschichtung zwischen den metallischen Anschlüssen ≤ 106 Ω beträgt. Bei isolierenden Kunststoffrohren mit einer leitfähigen Innenbeschichtung darf die in einem explosionsgefährdeten Bereich der Zone 1 frei zugängliche äußere Oberfläche, die durch mechanische Reibung elektrostatisch aufgeladen werden kann, nicht größer als 100 cm2 sein, in Zone 0 nicht größer als 50 cm2.

(7) Oberirdische Rohrleitungen sind gegen Anfahren durch Fahrzeuge zu schützen. Schutzabstände sowie die Notwendigkeit eines zusätzlichen oder ersetzenden Anfahrschutzes sind zu ermitteln. Dabei sind die Aufstellbedingungen zu berücksichtigen, z.B. das zu erwartende Verkehrsaufkommen in der Nähe der oberirdischen Rohrleitungen, die Art, die Masse, die Geschwindigkeit und Fahrtrichtung der dort verkehrenden Fahrzeuge.

(8) Von Fernfüllschächten oder -schränken abgehende Rohrleitungen, die sich in öffentlich zugänglichen Bereichen befinden, sind unterirdisch zu verlegen. Rohrleitungen und Formstücke für flüssige Kraft- und Betriebsstoffe zwischen der Flammendurchschlagsicherung und dem Ort der möglichen Entzündung müssen dem zu erwartenden Explosionsdruck standhalten ohne aufzureißen. Dies ist z.B. erfüllt, wenn Rohre und Formstücke für einen maximal zulässigen Druck von mindestens 10 bar (PN 10) ausgeführt sind, auf Absatz 2 wird verwiesen. Der Abstand zwischen einer Deflagrationssicherung und dem Ort der möglichen Entzündung sowie dort angeordnete Formstücke müssen den in der Betriebsanleitung des Herstellers festgelegten Anforderungen entsprechen.

(9) Zur Verhinderung eines Gasaustritts müssen Fernfüllleitungen von Gasfüllanlagen zusätzlich mit einem integrierten Schutz gegen Beschädigungen ausgerüstet sein. Dies kann sichergestellt werden durch

  1. einen Anfahrschutz oder
  2. eine selbsttätig schließende Absperreinrichtung wie z.B. ein Rückschlagventil, an geschützter Stelle oder
  3. eine unmittelbar am Fernfüllschrank bzw. -einrichtung und an geschützter Stelle angebrachtes Abscher- bzw. Bruchsicherungsventil. Die Sicherheitseinrichtung muss im Fall eines Abrisses des Fernfüllschrank bzw. der Fernfülleinrichtung weiterhin sicher funktionieren, oder
  4. bei Wasserstoff durch die Entspannung der Rohrleitungen auf einen Restdruck kleiner 5 bar.

Bezüglich der Notwendigkeit von und Anforderungen an Funkenstrecken siehe Abschnitt 4.1.14.

(10) Die Wirkbereiche können durch geeignete Maßnahmen verkleinert werden, z.B. durch Wände, die so aufgestellt und ausgeführt sind, dass auftreffende flüssige Kraftstoffe oder Flüssiggas sicher auf die Abfüllfläche abgeleitet werden. Bei Wänden ist dies beispielhaft erfüllt, wenn sie mindestens 1 m hoch und ausreichend breit sind. Dies ist bei der Betankung mindestens maximale Schlauchlänge einschließlich Zapfventil zuzüglich 1 Meter.

4.3 Montage, Installation (Errichtung)

4.3.1 Grundsätze, Koordinierung der Arbeiten

(1) Wenn eine Betankungsanlage montiert, installiert oder instandgehalten wird, hat der Arbeitgeber sicherzustellen, dass die Relevanz der Arbeiten für den Brand- und Explosionsschutz und ggf. der Druckgefährdung erkannt wird, damit geeignete Schutzmaßnahmen getroffen werden können. Dazu muss der Arbeitgeber über entsprechendes Personal verfügen, das aufgrund seiner fachlichen Ausbildung, seiner Spezialkenntnisse und entsprechenden Fähigkeiten sowie Erfahrung mit der Montage, Installation oder Instandhaltung von Betankungsanlagen die übertragenen Arbeiten durchführen, beurteilen und im Rahmen seiner Tätigkeiten die Relevanz erkennen kann.

(2) Beauftragt der Arbeitgeber andere Arbeitgeber (Fremdfirma) mit der Beurteilung der Relevanz und der Montage, Installation oder Instandhaltung von Betankungsanlagen, gelten für diese die Anforderungen nach Absatz 1 Satz 2 entsprechend. Der Arbeitgeber hat sich bei der Beauftragung anderer Arbeitgeber von deren Befähigungen, Befugnissen und Kenntnissen in angemessener Weise zu überzeugen. Dazu kann es notwendig sein, dass der Arbeitgeber sich entsprechende Nachweise vorlegen lässt.

(3) Für die Montage und Installation von Betankungsanlagen muss der Arbeitgeber sicherstellen, dass Personen eingesetzt werden, die aufgrund ihrer fachlichen Ausbildung, ihrer Spezialkenntnisse und entsprechenden Fähigkeiten sowie Erfahrung mit der Montage und Installation von Betankungsanlagen die übertragenen Arbeiten durchführen können. Für die Montage und Installation von Betankungsanlagen sind weiterhin eine geeignete Ausstattung sowie eine geeignete Organisation erforderlich sowie die notwendigen Unterlagen heranzuziehen.

(4) Füllanschlüsse und Anschlüsse für die Grenzwertgeber sind eindeutig zuzuordnen.

(5) Bei Arbeiten an Betankungsanlagen ist die Arbeitsstelle so abzusichern, dass Beschäftigte und andere Personen nicht gefährdet werden. Die Arbeitsstelle ist gegen unbefugten Zutritt zu sichern.

(6) Bei Arbeiten an Betankungsanlagen ist eine Aufsicht auf Grundlage der Gefährdungsbeurteilung zu gewährleisten. Werden die Arbeiten während des Normalbetriebs der Betankungsanlage durchgeführt, können nach der Gefährdungsbeurteilung zusätzliche Maßnahmen für den Schutz anderer Personen und Gefährdungen, die sich aus der Arbeitsumgebung und durch Wechselwirkungen mit anderen Arbeitsmitteln ergeben, erforderlich werden. Dazu ist eine zuverlässige, mit den Arbeiten, den dabei auftretenden Gefahren und den erforderlichen Schutzmaßnahmen vertraute Person als Aufsichtführender (Verantwortlicher) zu beauftragen und diese erforderlichenfalls durch Bereitstellung von einer dazu beauftragten Person mit entsprechender Fachkunde und Geräten zu unterstützen. Der Aufsichtführende hat insbesondere dafür zu sorgen, dass

  1. mit den Arbeiten erst begonnen wird, wenn die festgelegten Maßnahmen getroffen sind,
  2. die festgelegten Maßnahmen während der Arbeiten eingehalten werden,
  3. die Beschäftigten während der Arbeiten die vorgesehenen persönlichen Schutzausrüstungen benutzen,
  4. die Beschäftigten und ggf. andere Personen im Notfall ausreichende Fluchtmöglichkeiten haben und
  5. Unbefugte von der Arbeitsstelle ferngehalten werden.

(7) Zur Koordinierung der Tätigkeiten verschiedener Arbeitgeber (z.B. Wartungs- und Instandhaltungsbetriebe, Spediteure, Shop-Lieferanten, Zugelassene Überwachungsstellen (ZÜS)) an einer Betankungsanlage wird auf § 8 Absatz 1 ArbSchG, § 13 BetrSichV und § 15 Absatz 4 GefStoffV hingewiesen.

4.3.2 Arbeiten in explosionsgefährdeten Bereichen (Schutzmaßnahmen vor Explosionsgefahren)

(1) In explosionsgefährdeten Bereichen sind Explosionsschutzmaßnahmen erforderlich, wenn bei den durchzuführenden Arbeiten gefährliche explosionsfähige Atmosphäre vorhanden ist, sich bilden oder (z.B. durch Nachverdampfung) erneut bilden kann.

(2) Bei Arbeiten an Betankungsanlagen können sich über die für den Normalbetrieb festgelegten explosionsgefährdeten Bereiche hinaus zusätzliche, auf die Dauer der Arbeiten befristete explosionsgefährdete Bereiche, in denen während der Arbeiten mit der Bildung oder Ansammlung gefährlicher explosionsfähiger Atmosphäre zu rechnen ist, ergeben. Hierbei ist eine Einteilung explosionsgefährdeter Bereiche in Zonen gemäß Anhang I Nummer 1.6 Absatz 3 GefStoffV nicht sinnvoll. Dennoch sind geeignete Explosionsschutzmaßnahmen erforderlich und im Rahmen der Gefährdungsbeurteilung (vgl. Anhang I Nummer 1.8 Absatz 4 GefStoffV) zu ermitteln und zu dokumentieren. Zur Dokumentation gehören auch schriftliche Arbeitsanweisungen und ggf. das Ausstellen eines Freigabescheins. Geeignete Explosionsschutzmaßnahmen sind z.B.

  1. Festlegung von zeitlich befristeten explosionsgefährdeten Bereichen, in denen während der Arbeiten mit gefährlicher explosionsfähiger Atmosphäre zu rechnen ist (vgl. TRBS 1112 Teil 1),
  2. Absperrung der explosionsgefährdeten Bereiche,
  3. Einschränkung des Fahrzeugbetriebes,
  4. Stillsetzen elektrischer und sonstiger nichtexplosionsgeschützter Anlagen,
  5. Verhindern des Eindringens von Flüssiggas, Flüssigerdgas und Dämpfen flüssiger Kraftstoffe in Kanäle, Schächte und andere benachbarte und tiefer gelegene Räume,
  6. gezielte Entspannung von Anlagen für Flüssiggas, Erdgas, Flüssigerdgas oder Wasserstoff,
  7. Maßnahmen zur gezielten Ableitung oder Eingrenzung explosionsfähiger Atmosphären (Dämpfe flüssiger Kraftstoffe, Flüssiggas, Erdgas, Flüssigerdgas oder Wasserstoff),
  8. Auswahl geeigneter explosionsgeschützter Geräte und Arbeitsmittel,
  9. Messung der Gasfreiheit,
  10. Verwendung geeigneter persönlicher Schutzausrüstung,
  11. Sicherstellung einer ausreichenden Belüftung.

(3) Arbeiten in oder in der Nähe von explosionsgefährdeten Bereichen, insbesondere der explosionsgefährdeten Bereiche nach Absatz 2 sind gemäß schriftlicher Anweisungen des Arbeitgebers auszuführen.

(4) Arbeiten in Zone 0 und in Bereichen mit gefährlicher Konzentration brennbarer Stoffe sind grundsätzlich zu vermeiden. Ist dies nicht möglich, dürfen die Arbeiten nur von besonders eingewiesenen Personen und nur mit Betriebsmitteln, Werkzeugen und persönlichen Schutzausrüstungen, die für Zone 0 zulässig sind, durchgeführt werden. In diesen Fällen ist eine schriftliche Arbeitsfreigabe mit Angabe der zur sicheren Arbeit notwendigen Maßnahmen erforderlich.

(5) Bei Arbeiten an Betankungsanlagen freiwerdende Dampf-Luft-Gemische flüssiger entzündbarer, leicht entzündbarer oder extrem entzündbarer Kraft- oder Betriebsstoffe sowie freiwerdendes Flüssiggas, Erdgas, Flüssigerdgas oder Wasserstoff sind gefahrlos abzuleiten.

(6) An Gasfüllanlagen für Flüssigerdgas sind die Vorgaben des Tankherstellers zur sicheren Abkühlung des Lagertanks zu beachten.

(7) Alle Rohrleitungen für Flüssigerdgas sind vor Inbetriebnahme mit Stickstoff zu spülen und ausreichend zu trocknen.

4.3.3 Gefährliche elektrostatische Aufladung

Gefährliche elektrostatische Aufladungen dürfen bei der Befüllung von Lagerbehältern sowie bei der Betankung von Fahrzeugen mit Kraftstoffen sowie bei der Befüllung von Behältern zur Lagerung von Betriebsstoffen nicht entstehen, siehe hierzu auch TRGS 727. Dazu müssen sich bei flüssigen Kraft- und Betriebsstoffen die Auslauföffnungen der Füllrohre möglichst nahe über dem Lagerbehälterboden befinden; ein Versprühen muss ausgeschlossen sein. Auf Abschnitt 4.2.6 Absatz 7 wird verwiesen.

4.3.4 Montage von Lagerbehältern und Domschächten

(1) Lagerbehälter sind so zu montieren und zu installieren, dass sie ihre Lage nicht verändern können und durch äußere Einwirkungen nicht beschädigt werden. Domschächte sind so zu montieren, dass eine Ansammlung oder Verschleppung gefährlicher explosionsfähiger Atmosphäre verhindert wird.

(2) Sollen unterirdische Lagerbehälter für flüssige Kraftstoffe, Flüssiggas oder Flüssigerdgas in einem Bereich eingebaut werden, in dem mit einer Veränderung ihrer Lage durch Grundwasser oder Staunässe oder Überschwemmung zu rechnen ist, müssen sie verankert oder durch entsprechende Belastung gegen Aufschwimmen (Auftriebssicherung) gesichert sein, wobei die Verankerung oder Belastung mindestens 1,3fache Sicherheit gegen den Auftrieb des leeren Lagerbehälters haben muss, bezogen auf den höchsten zu erwartenden Wasserstand. Die Auftriebssicherungen dürfen die Behälterumhüllung nicht beschädigen.

(3) Oberirdische Lagerbehälter für flüssige Kraftstoffe, Flüssiggas, Wasserstoff oder Flüssigerdgas in Überschwemmungsgebieten oder überschwemmungsgefährdeten Gebieten müssen

  1. so aufgestellt sein, dass sie vom zu erwartenden Hochwasser nicht erreicht werden können, oder
  2. einschließlich ihrer Anlagenteile durch geeignete Verankerungen oder Eigengewicht so gesichert sein, dass sie bei einem Hochwasserereignis ihre Lage nicht verändern oder aufschwimmen; hierzu müssen sie mit mindestens 1,3facher Sicherheit gegen den Auftrieb des leeren Lagerbehälters gesichert werden, und
  3. dem von außen einwirkenden zu erwartenden Wasserdruck standhalten; dies gilt für Lagerbehälter gemäß Verwaltungsvorschrift Technische Baubestimmungen ( VVTB) als erfüllt, und
  4. so aufgestellt sein, dass über Entlüftungs-, Füll- oder Entnahmeleitungen oder sonstige Öffnungen oder Armaturen kein Wasser eindringen kann.

(4) Bei Aufstellung oberirdischer Lagerbehälter im Freien in Überschwemmungsgebieten oder überschwemmungsgefährdeten Gebieten müssen die Lagerbehälter mit einem Schutz gegen Beschädigungen durch Treibgut oder Eisstau versehen werden.

(5) Domschächte dürfen keine Belastungen auf den Lagerbehälter übertragen, die zu Beschädigungen der Wandung des Lagerbehälters oder der Isolierung führen können.

(6) Durchbrüche für Kabel und Rohrleitungen durch Domschächte von Lagerbehältern und von Behältern zur Lagerung von Betriebsstoffen mit einem Flammpunkt ≤ +55 °C müssen gegen das Eindringen von Kraftstoffen und deren Dämpfen geschützt werden.

(7) Innerhalb des Wirkbereichs von Abgabeeinrichtungen für flüssige Kraftstoffe und Flüssiggas müssen die Einmündungen von Kanälen und Schutzrohren für Kabel und Rohrleitungen in Schächten gegen das Eindringen von Kraftstoffen und deren Dämpfen geschützt sein. Dies wird durch Abdichtung mit dauerelastischem und mineralölbeständigem Material oder mit mineralölbeständigen Kabelkanalabdichtungen erreicht.

(8) Zur Vermeidung der Ansammlung gefährlicher Mengen explosionsfähiger Atmosphäre in Sockel-, Revisions- und Kabelschächten von Abgabeeinrichtungen und Schächten in den Wirkbereichen gemäß Abschnitt 4.1.7 müssen diese entweder abgedeckt oder mit geeignetem Füllmaterial (z.B. Sand) verfüllt sein. Für Sockelschächte von Abgabeeinrichtungen gilt Satz 1 als erfüllt, wenn nur die Anschlussarmaturen, Schnellschlussarmaturen etc. frei zugänglich sind.

5 Betrieb der Betankungsanlage

5.1 Normalbetrieb der Betankungsanlage

5.1.1 Betriebsanweisung und Unterweisung, besondere Weisungen, Alarm- und Einsatzpläne, Sicherheitsmaßnahmen bei Betriebsstörungen

(1) Gemäß § 12 ArbSchG, § 14 GefStoffV und § 12 BetrSichV sind die Beschäftigten über die auftretenden Gefahren sowie über die Maßnahmen zu ihrer Abwendung vor der erstmaligen Beschäftigung und danach in angemessenen Zeitabständen, mindestens einmal jährlich, anhand von Betriebsanweisungen zu unterweisen.

(2) Störungen oder Schäden der Betankungsanlage sind in einem jeweils gefährdungsabhängig angemessenen Zeitraum zu begegnen. Auf das Erfordernis einer Unfall- und Schadensanzeige gemäß § 19 Absatz 1 BetrSichV wird hingewiesen.

(3) Auf die für die sichere Betankung durch andere Personen erforderlichen Kennzeichnungen und Verbote, insbesondere auf

  1. das Verbot der Betankung bei laufendem Motor und laufender Fremdheizung mit Brennkammer,
  2. das Verbot von Rauchen und offenem Feuer sowie
  3. auf das Verbot des Befüllens von Druckgasbehältern im Sinne der TRBS 3145/TRGS 745 (z.B. Gasflaschen) mit Flüssiggas

ist deutlich sichtbar, dauerhaft und gut lesbar bzw. verständlich hinzuweisen

(4) Für eine sichere Betankung an Gasfüllanlagen muss der Ablauf des Betankungsvorgangs in einer allgemein verständlichen Betankungsanweisung festgelegt sein. Diese ist in dauerhafter Form gut sichtbar im Blickfeld des Kunden an oder nahe der Abgabeeinrichtung auszuhängen (z.B. als selbsterklärendes Piktogramm).

(5) Die Betankung der Fahrzeuge mit Flüssigerdgas (LNG) darf nur durch unterwiesenes Personal erfolgen.

(6) An Abgabeeinrichtungen, die mengenbegrenzt die Abgabe von Kraftstoff freigeben, muss für den Betrieb ohne Beaufsichtigung eine allgemein verständliche Betankungsanweisung, z.B. eine ergonomische Bedienerführung oder ein selbsterklärendes Piktogramm, angebracht sein.

(7) Die Betriebsanweisung gemäß Absatz 1 muss insbesondere enthalten, dass

  1. die explosionsgefährdeten Bereiche von Stoffen freizuhalten sind, die ihrer Art oder Menge nach geeignet sind, zur Entstehung oder Ausbreitung von Bränden zu führen. Abfallbehältnisse sind in explosionsgefährdeten Bereichen unzulässig,
  2. Arbeiten in den explosionsgefährdeten Bereichen, die zündfähige Funken erzeugen können, nicht durchgeführt werden dürfen,
  3. vorgeschriebene Sicherheitseinrichtungen zu benutzen sind und so betrieben werden, dass ihre Wirksamkeit erhalten bleibt,
  4. Sicherheitseinrichtungen insbesondere nicht umgangen oder ganz oder teilweise unwirksam gemacht werden dürfen,
  5. Lagerbehälter für flüssige Kraftstoffe nicht befüllt werden dürfen, wenn zeitgleich auch Lagerbehälter für Flüssiggas, Wasserstoff oder Flüssigerdgas befüllt werden. Auch eine zeitgleiche Befüllung von mehreren Lagerbehältern mit Flüssiggas oder Wasserstoff oder Flüssigerdgas darf nicht erfolgen. Satz 1 und 2 gelten nicht, wenn die Tankfahrzeuge bei der Anlieferung der Kraftstoffe im Gefahrenfall unabhängig voneinander die Betankungsanlage verlassen können und die maximale Austrittsmenge bei einer Leckage am Abfüllschlauch zu keiner gegenseitigen Gefährdung führen kann.
  6. welche sicherheitsrelevanten Maßnahmen zu Betriebsbeginn und zu Betriebsende durchzuführen sind.

5.1.2 Überwachung durch den Arbeitgeber

(1) Wer eine Tankstelle oder Gasfüllanlage betreibt, hat diese in ordnungsgemäßem Zustand zu erhalten, ordnungsgemäß zu betreiben, ihren Zustand zu überwachen, notwendige Instandhaltungs- und Instandsetzungsarbeiten unverzüglich vorzunehmen und die den Umständen nach erforderlichen Sicherheitsmaßnahmen zu treffen. Dies ist für die Überwachung erfüllt, wenn der ordnungsgemäße Zustand der Tankstelle und der Gasfüllanlage mindestens betriebstäglich vom jeweiligen Arbeitgeber oder von einer unterwiesenen Person festgestellt wird.

(2) An Tankstellen oder Gasfüllanlagen mit ausschließlichem oder teilweisem Betrieb ohne Beaufsichtigung ist zusätzlich zur Gegensprechanlage gem. 4.1.3 Absatz 5 die Notrufnummer des Arbeitgebers oder einer von ihm beauftragten Stelle zur Meldung von Schäden auszuhängen.

(3) Eine Tankstelle oder Gasfüllanlage darf nicht betrieben werden, wenn sie Mängel aufweist, durch die Beschäftigte oder andere Personen gefährdet werden können. Es sind unverzüglich Maßnahmen zur Beseitigung oder Minderung des gefährlichen Zustandes zu ergreifen.

(4) Zur Vermeidung von Zündgefahren darf in der Betankungsanlage mit Ausnahme dafür ausgewiesener Orte nicht geraucht werden.

(5) Der Arbeitgeber muss sicherstellen, dass besonders bei der Befüllung der Lagerbehälter zu berücksichtigende Umstände oder Einrichtungen eingehalten bzw. benutzt werden. Dies betrifft z.B.

  1. die Positionierung des Tankfahrzeugs auf der dafür vorgesehenen Abfüllfläche,
  2. die Sicherung des Tankfahrzeugs gegen Wegrollen,
  3. die Verwendung von Abfüll-Schlauch-Sicherungen (ASS) oder Einrichtungen mit Aufmerksamkeitstaste und Not-Aus-Betätigung (ANA) am Tankfahrzeug bei der Befüllung von Lagerbehältern für flüssige Kraftstoffe,
  4. die Möglichkeit zur Unterbrechung des Befüllvorgangs von Lagerbehältern für Flüssiggas durch einen Füllstopptaster am Tankfahrzeug durch den Tankwagenfahrer,
  5. die Möglichkeit zur Unterbrechung des Befüllvorgangs von Lagerbehältern für Flüssigerdgas durch einen Anlagen-Aus-Taster am Tankfahrzeug und am Befüllpunkt (Einfüllstutzen) durch den Tankwagenfahrer,
  6. die Möglichkeit zur Unterbrechung des Befüllvorgangs von Lagerbehältern für Wasserstoff durch einen Not-Aus-Taster am Tankfahrzeug durch den Tankwagenfahrer,
  7. die Befüllung der Lagerbehälter nur über fest angeschlossene Rohre oder Schläuche und mittels Rohren und Schläuchen mit einem elektrischen Widerstand von nicht mehr als 106 Ω zwischen den Anschlussarmaturen,
  8. die Dichtheit der Verbindungen beim Befüllen der Lagerbehälter,
  9. die Verwendung von Rohren und Schläuchen mit einem elektrischen Widerstand von nicht mehr als 106 Ω zwischen den Anschlussarmaturen,
  10. die separate Erdung der Straßentankfahrzeuge für flüssige Kraftstoffe, wenn mit Volumenströmen von mehr als 1200 l/min abgefüllt wird,
  11. den Ausgleich der elektrischen Potentiale vor Beginn der Abgabe mit dem am Tankfahrzeug für flüssige Kraftstoffe angekuppelten Schlauch außerhalb des Domschachtes
  12. die Ermittlung des Füllstandes im Lagerbehälter und in den Behältern zur Lagerung von Betriebsstoffen vor dem Befüllen und der maximal zulässigen Befüllmenge,
  13. für flüssige Kraftstoffe den Anschluss des Grenzwertgebers an die Abfüllsicherung des Tankfahrzeuges beim Befüllen der Lagerbehälter,
  14. die Beobachtung des Befüllvorgangs
  15. die Lagerbehälter und Anschlussarmaturen von Gasfüllanlagen für Flüssigerdgas vor der Befüllung der Lagerbehälter einer Dichtheitskontrolle unterzogen werden.

(6) Der Arbeitgeber hat sicherzustellen, dass die bei der Befüllung der Lagerbehälter für Flüssiggas oder Flüssigerdgas erforderlichen besonderen Maßnahmen durchgeführt werden. Hierzu gehört z.B.:

  1. die Inaugenscheinnahme des Schlauches, Prüfung des Ventilanschlusses auf Verunreinigungen und Prüfung des Füllventils des Flüssiggaslagerbehälters oder des Lagerbehälters für Flüssigerdgas auf Unversehrtheit,
  2. die so weit wie mögliche Kontrolle der äußeren Unversehrtheit einer Füllleitung,
  3. die Feststellung des Inhalts des zu befüllenden Lagerbehälters für Flüssiggas oder Flüssigerdgas durch Ablesen des Inhaltsanzeigers,
  4. der Anschluss des Grenzwertgebers des Flüssiggaslagerbehälters gemäß Abschnitt 4.2.2.4 oder des Flüssigerdgaslagerbehälters gemäß Abschnitt 4.2.4.5 mit der dafür vorgesehenen Verbindung an das Tankfahrzeug,
  5. die Beobachtung des Befüllvorgangs und ggf. des Peilventils. Dies erfolgt bei Flüssigerdgas über Anzeigegeräte für Füllstand (in %) und Tankdruck (barü).

(7) Der Arbeitgeber einer Tankstelle oder Gasfüllanlage hat zu kontrollieren, ob die erforderlichen Betriebsanweisungen eingehalten werden. Es ist betriebstäglich insbesondere zu kontrollieren, ob

  1. sich die Tankstelle oder Gasfüllanlage in einem ordnungsgemäßen Zustand befindet,
  2. Abgabeeinrichtungen dicht und unbeschädigt sind,
  3. Ausgänge und Angriffswege für die Brandbekämpfung freigehalten werden,
  4. die Befestigung der Abfüllflächen keine sichtbaren Schäden aufweist,
  5. verschüttete flüssige Kraft- oder Betriebsstoffe aufgesaugt oder abgetragen werden,
  6. Bodenabläufe und Entwässerungsrinnen frei von Verschmutzungen wie z.B. Laub sind,
  7. bei der Betankung von Kraftfahrzeugen Motor und Fremdheizung abgeschaltet sind,
  8. nur geeignete Gefäße oder Reservekraftstoffbehälter befüllt werden,
  9. keine Druckgasbehälter im Sinne der TRBS 3145/ TRGS 745, z.B. Gasflaschen mit Flüssiggas, befüllt werden,
  10. in der Tankstelle oder Gasfüllanlage nicht geraucht oder mit offenem Feuer umgegangen wird,
  11. nach der Anlieferung von Kraftstoff die Anschlussstutzen und die Peilöffnungen der Lagerbehälter verschlossen sind,
  12. Sicherheitseinrichtungen in betriebsfähigem Zustand sind,
  13. Feuerlöscher stets an der dafür bestimmten Stelle in betriebsfähigem Zustand vorhanden sind,
  14. sich innerhalb der explosionsgefährdeten Bereiche und der Schutzabstände keine Brandlasten befinden.

5.1.3 Anlieferung der Kraft- und Betriebsstoffe - Befüllung der Lagerbehälter

(1) Außerhalb des Befüllvorgangs müssen Anschlüsse für Produkt- und Gaspendelleitungen von Lagerbehältern und Behältern zur Lagerung von Betriebsstoffen fest verschlossen und so gesichert sein, dass ein unbeabsichtigtes Lockern ihres Verschlusses ausgeschlossen ist.

(2) Verschlüsse von Peilöffnungen dürfen nur zum Peilen oder zur Entnahme von Proben geöffnet werden. Während der Befüllung der Lagerbehälter dürfen Peilöffnungen nicht geöffnet sein.

(3) Während der Befüllung der Lagerbehälter muss sichergestellt sein, dass der Füllschlauch nicht überfahren oder anderweitig beschädigt werden kann.

5.1.4 Betankung von Kraftfahrzeugen

(1) Um gefährliche elektrostatische Aufladungen zu vermeiden, muss während der Betankung eine elektrostatisch leitfähige Verbindung zwischen der geerdeten Abgabeeinrichtung und dem Fahrzeug bzw. dem zu befüllenden Behälter wie z.B. Reservekraftstoffbehälter, Kraftstoffbehälter von Fahrzeugen auf Anhängern, hergestellt sein.

(2) An Betankungsanlagen dürfen Kraftstoffe außer in fest mit dem Fahrzeug verbundene Kraftstoffbehälter nur in geeignete Gefäße wie Reservekraftstoffkanister abgegeben werden. Bei der Betankung von Fahrzeugen o. ä. auf Anhängern, z.B. Boote, Motorräder, Baumaschinen, mit Kraftstoffen ist auf eine ausreichende elektrostatisch leitfähige Verbindung der Kraftstoffbehälter zum Boden zu achten. Reservekraftstoffkanister für flüssige Kraftstoffe dürfen nur auf der Bodenfläche gemäß Abschnitt 4.2.1.1 stehend betankt werden.

(3) Für die ausreichende elektrostatisch leitfähige Ausführung des Zapfventils in Verbindung mit einem geerdeten Zapfschlauch siehe TRGS 727. Ein Widerstand zwischen Auslaufrohr und Abgabeeinrichtung von < 106 Ω ist ausreichend.

(4) An Gasfüllanlagen für Flüssiggas, Erdgas, Flüssigerdgas oder Wasserstoff dürfen Druckgasbehälter im Sinne der TRBS 3145/TRGS 745 wie Gasflaschen mit Flüssiggas nicht befüllt werden.

(5) An Tankstellen dürfen Transportbehälter mit Ausnahme von Reservekraftstoffkanistern nicht befüllt werden.

(6) Abgabeeinrichtungen müssen außerhalb der Betriebszeit gegen unbefugte Benutzung gesichert sein.

(7) Absatz 6 gilt für flüssige Kraftstoffe und für Flüssiggas als erfüllt, wenn die Abgabeeinrichtung unter Verschluss gehalten wird oder bei elektrisch betriebenen Pumpen die Stromzuleitung von einer für Unbefugte nicht zugänglichen Stelle außerhalb der Abgabeeinrichtung aus abgeschaltet wird.

(8) Absatz 6 gilt für Erdgas, für Flüssigerdgas sowie für Wasserstoff als erfüllt, wenn die Abgabeeinrichtung unter Verschluss gehalten wird oder bei elektrisch gesteuerten und stromlos geschlossenen Ventilen die Stromzuleitung von einer für Unbefugte nicht zugänglichen Stelle außerhalb der Abgabeeinrichtung aus abgeschaltet wird.

(9) Kleinzapfgeräte dürfen nur im Freien aufgestellt und außerhalb der Betriebszeit nur in Räumen abgestellt werden, die während dieser Zeit nicht dem Aufenthalt von Personen dienen.

5.1.5 Rückspeisung von Kraftstoffen beim Eichen oder Mengenmessung

(1) Für das gezielte und sichere Rückspeisen von entnommenem Gas, z.B. nach dem Eichen, sind geeignete technische Möglichkeiten zu schaffen.

(2) Für die Entleerung von Eichgeräten und Probenahmegeräten für Wasserstoff ist ein geeigneter Anschluss an den Abblasekamin zu schaffen, über den eine gefahrlose Ableitung möglich ist.

5.2 Instandsetzung, Wartung

5.2.1 Qualifiziertes Personal, Koordinierung der Arbeiten

(1) Für Arbeiten zum Reinigen, Instandhalten und Instandsetzen von Betankungsanlagen gelten die Abschnitte 4.3.1 und 4.3.2 entsprechend.

(2) Bei Instandhaltungsarbeiten an Tankstellen und Gasfüllanlagen sowie in Bereichen, in denen während der Instandhaltungsarbeiten mit dem Auftreten einer gefährlichen explosionsfähigen Atmosphäre zu rechnen ist, sind die Anforderungen der TRBS 1112 Teil 1 zu beachten.

(3) Absatz 1 gilt für Arbeiten in Lagerbehältern als erfüllt, wenn die Technische Regel für Gefahrstoffe TRGS 507 beachtet ist.

5.2.2 Wiederherstellung des ordnungsgemäßen Zustands nach Abschluss der Arbeiten

(1) Nach Abschluss der Arbeiten zum Reinigen, Instandhalten, Instandsetzen und Prüfen müssen die Anlagen wieder in ihren ordnungsgemäßen Zustand versetzt werden.

(2) Anlagenteile, z.B. Rohrleitungen, die zur Durchführung der Arbeiten getrennt wurden, sind einander richtig zugeordnet wieder fachgerecht und dicht zu verbinden. Öffnungen, z.B. Einsteigeöffnungen, sind wieder dicht zu verschließen, ggf. unter Verwendung neuer Dichtungen.

(3) Sicherheitseinrichtungen sind nach Durchführung der Arbeiten wieder in funktionsfähigen Zustand zu versetzen.

(4) Nach Durchführung der Arbeiten ist die Wiederherstellung des ordnungsgemäßen Zustands der Anlage zu dokumentieren.

5.2.3 Arbeiten bei oder mit Explosionsgefährdung

(1) Abschnitt 4.3.2 gilt entsprechend. Die Vorgaben der TRBS 1112 Teil 1 sind zu beachten. Beispiele für Gefahrenbereiche nach TRBS 1112 Teil 1 Abschnitt 3 Absatz 4, die gemäß GefStoffV während der Arbeiten auszuweisen sind, sind in Abbildung 11 dargestellt.

(2) In den Bereichen, in denen mit Streuströmen elektrischer Anlagen zu rechnen ist, z.B. bei Gleisanlagen und längeren Rohrleitungen sowie bei Parallelführung von Hochspannungsfreileitungen, muss vor einem Trennen der Rohrleitung die Trennstelle metallisch leitend überbrückt sein.

(3) Bei kathodischen Korrosionsschutzanlagen, die mit Fremdstrom betrieben werden, ist eine so rechtzeitige Abschaltung der Stromquelle erforderlich, dass Restspannungen auf ein unbedenkliches Maß abgebaut sind.

Abbildung 11: Arbeiten mit Zünd- oder Brandgefahren: Gefahrenbereiche bei Arbeiten an Betankungsanlagen

5.2.4 Prüfpflichtige Änderung beim Umbau

Für die Einstufung von Maßnahmen als prüfpflichtige Änderung von Tankstellen und Gasfüllanlagen siehe TRBS 1122.

5.2.5 Vorläufige oder endgültige Außerbetriebnahme

(1) Tankstellen und Gasfüllanlagen, die komplett oder teilweise sowie vorübergehend oder endgültig außer Betrieb genommen werden, sind so zu sichern, dass Gefahren für Beschäftigte und andere Personen nicht entstehen. Umbau- oder Wartungsarbeiten gelten nicht als vorübergehende Außerbetriebnahme.

(2) Maßnahmen zur Sicherung einer Tankstelle oder Gasfüllanlage bei einer vorübergehenden Außerbetriebnahme sind z.B.:

  1. Entleerung und Reinigung der Lagerbehälter für flüssige Kraftstoffe
  2. Entleerung und Inertisierung der Lagerbehälter für gasförmige Kraftstoffe
  3. Entleerung der Rohrleitungen,
  4. Trennung der Lagerbehälter von allen Rohrleitungen; die Rohrleitungen sind mit Stickstoff durchzuspülen und blind zu flanschen,
  5. Füllen der Lagerbehälter mit Wasser oder mit Stickstoff,
  6. Sicherung aller Schachtabdeckungen und sonstiger Einrichtungen gegen unbefugte Eingriffe,
  7. Demontage oder Sicherung von Abgabeeinrichtungen und den zugehörigen anlagespezifischen elektrischen Anlagen.

(3) Maßnahmen zur Sicherung einer Tankstelle oder Gasfüllanlage bei einer endgültigen Außerbetriebnahme (Stilllegung) sind z.B.:

  1. Ausbau der entleerten und gereinigten Lagerbehälter mit allen Rohrleitungen oder Verfüllen der Lagerbehälter. Im Erdreich verbleibende Rohrleitungen sind vor dem Blindflanschen mit Stickstoff durchzuspülen oder mit einem geeigneten Material zu verfüllen.
  2. Verfüllen aller Schächte und der durch den Ausbau von Anlagen entstandenen Hohlräume.
  3. Demontage von Abgabeeinrichtungen und allen sonstigen spezifischen Anlagenteilen.

.

Gasfüllanlagen für Flüssigerdgas Anhang 1 22
zu TRBS 3151/TRGS 751

1 Anwendungsbereich

(1) Dieser Anhang enthält zusätzliche Anforderungen an die Auslegung, Montage, die Installation und den Betrieb von Gasfüllanlagen im Sinne von § 18 Absatz 1 Nummer 3 BetrSichV zur Lagerung und Abgabe von Flüssigerdgas (LNG) in Landfahrzeuge und dient dem Schutz Beschäftigter und anderer Personen vor Druck-, Brand- und Explosionsgefährdungen.

(2) Dieser Anhang gilt für oberirdische Lagerbehälter für Flüssigerdgas mit einer Lagermenge von 3 t bis 50 t.

(3) Werden aus dem Lagerbehälter für Flüssigerdgas (LNG) gasförmiges Erdgas an Abgabeeinrichtungen für Erdgas (CNG) abgegeben (sogenannte LCNG-Anlagen), sind die Anforderungen an Gasfüllanlagen für Erdgas gleichermaßen zu beachten (insbesondere auch solche an die Verdampfer, Verdichter und die Pufferbehälter für Erdgas).

2 Bereitstellung der Gasfüllanlage für Flüssigerdgas und ihrer Anlagenteile

2.1 Grundsätzliches

(1) Sofern nachfolgend nicht anders festgelegt ist, gelten die in Abschnitt 4.1 dieser TRGS genannten Anforderungen an Gasfüllanlagen gleichermaßen auch für Gasfüllanlagen für Flüssigerdgas (LNG) mit einer Lagermenge von 3 t bis 50 t.

(2) Auf Grund der Lagermengen von 3 t bis 50 t ist der Lagerbehälter für Flüssigerdgas (LNG) so anzuordnen, dass keine Wechselwirkungen zwischen dem Lagerbehälter für Flüssigerdgas und Anlagenteilen von Tankstellen und Gasfüllanlagen für andere Kraftstoffe gegeben sind. Satz 1 ist erfüllt, wenn die Aufstellung des Lagerbehälters in einem separaten, abgegrenzten Anlagenbereich erfolgt. Die Anforderungen an die Aufstellung des Lagerbehälters sowie die Betriebsweise der Gasfüllanlage ist nachfolgend genannt.

(3) In der Praxis werden zwei Varianten von Gasfüllanlagen für Flüssigerdgas realisiert:

  1. Die Abgabeeinrichtung für Flüssigerdgas befindet sich in unmittelbarer Nähe zum Lagerbehälter für Flüssigerdgas. Die Gasfüllanlage für Flüssigerdgas ist als eine separate Anlage ausgeführt. Die Gasfüllanlage und somit die Aufstellung des Lagerbehälters erfolgt nicht in einem räumlichen oder betriebstechnischen Zusammenhang mit anderen Tankstellen oder Gasfüllanlagen oder Anlagen zur Lagerung und Abgabe von Diesel und es kommt nicht zu Wechselwirkungen mit diesen.
  2. Die Abgabeeinrichtung für Flüssigerdgas wird im Bereich der Betankungsanlage für andere flüssige und gasförmige Kraftstoffe betrieben. Somit ist ein räumlicher oder betriebstechnischer Zusammenhang der Gasfüllanlage für Flüssigerdgas mit anderen Tankstellen oder Gasfüllanlagen oder Anlagen zur Lagerung und Abgabe von Diesel gegeben und es kann zu Wechselwirkungen mit diesen kommen. Die Wechselwirkungen mit den anderen Anlagen sind im Rahmen der Gefährdungsbeurteilung im Einzelfall zu betrachten und festzulegen (vgl. § 18 Absatz 3 Satz 6 Nummer 1 BetrSichV).

Auf Abschnitt 5.1.1 Absatz 5 wird verwiesen.

(4) Aus dem Lagerbehälter von Gasfüllanlagen für Flüssigerdgas (LNG) können Pufferbehälter und Abgabeeinrichtungen für Erdgas (CNG) befüllt werden (so genannte LCNG-Anlagen). In diesem Fall sind die Anforderungen an die Anlagenteile und Abgabeeinrichtungen für Erdgas (CNG) mit zu betrachten.

2.2 Anordnung der Lagerbehälter für Flüssigerdgas (LNG) mit einer Lagermenge von 3 t bis 50 t

(1) Es gelten die in Abschnitt 4.1.4.1 dieser TRGS genannten Anforderungen gleichermaßen.

Diese Technische Regel nennt keine Anforderungen an die Lagerung von Flüssigerdgas in unterirdischen Lagerbehältern oder in Einhausungen, da diese Art der Lagerung in der Praxis nicht vorgesehen ist.

(2) Für die oberirdische Lagerung von Flüssigerdgas gilt Abschnitt 4.1.4.3 Absatz 1 dieser TRGS als erfüllt, wenn

  1. doppelwandige vakuumisolierte Tanks mit Innenbehälter aus kaltzähem Cr-Ni-Stahl zur Lagerung des verflüssigten Gases sowie einen tragenden Außenbehälter aus Baustahl verwendet werden. Der Raum zwischen Innen- und Außenbehälter ist mit Isoliermaterial (Perlit) ausgekleidet und zusätzlich durch ein Vakuum isoliert,
  2. der evtl. vorhandene Witterungsschutz eines Lagerbehälters frei belüftet ist,
  3. die Lagerbehälter mindestens 5 m von Abgabeeinrichtungen für Flüssigerdgas, Brandlasten gemäß Abschnitt 4.1.4.1 Absatz 1 Nummer 2 dieser TRGS in der Umgebung des Behälters, benachbarten Grundstücken oder öffentlichen Verkehrsflächen (Schutzabstand), Anlagenteilen von Tankstellen, Gasfüllanlagen anderer gasförmiger Kraftstoffe sowie von Anlagen zur Lagerung und Abgabe von Betriebsstoffen entfernt sind. Der Abstand von 5 m darf verringert werden, wenn die Lagerbehälter gegen unzulässige Erwärmung während mindestens 30minütiger Brandeinwirkung geschützt sind. Dabei sind die Abgabeeinrichtungen für andere Kraftstoffe, Brandlasten gemäß Abschnitt 4.1.4.1 Absatz 1 Nummer 2 in der Umgebung des Behälters, benachbarten Grundstücken und öffentlichen Verkehrsflächen zu berücksichtigen. Der Schutz kann durch eine Schutzwand, ein Strahlungsschutzblech (bei reiner Strahlungswärme) oder eine Brandschutzisolierung erfolgen. Die Abmessungen und Eigenschaften sind im Rahmen einer Gefährdungsbeurteilung zu ermitteln und zu beschreiben. Die ermittelten Schutzmaßnahmen sind in einer brandschutztechnischen Bemessung abhängig von der Art, Menge und Größe der brennbaren Stoffe/Bauten festzulegen.
  4. aus Sicherheitseinrichtungen gegen Drucküberschreitung austretendes Erdgas kann gefahrlos frei nach oben abströmen.
  5. in den durch die in Ziffer 3 genannten Schutzabständen gebildeten Flächen kein anderer Kraftstoff gemäß Abschnitt 2 Absatz 11 oder Betriebsstoff gemäß Abschnitt 2 Absatz 12 Ziffern 1 und 2 dieser Technischen Regel oberirdisch gelagert wird,
  6. die Gesamtlagermenge kleiner 50 t ist,
    (Bei der Lagerung von Flüssigerdgas an Gasfüllanlagen ab 3 t bis 50 t sind neben den Anforderungen der BetrSichV für überwachungsbedürftige Anlagen auch die Anforderungen nach der 4. BImSchV und im BImSchG zu beachten.)
  7. ein Abstand oder Anfahrschutz vorhanden ist, der den Schutzzielen von Abschnitt 4.1.4.1 Absatz 1 Nummer 1 dieser Technischen Regel entspricht und
  8. die explosionsgefährdeten Bereiche nach Abschnitt 4.1.10.3 Absatz 7 dieser Technischen Regel und die Sicherheitsabstände sich nicht auf benachbarte Grundstücke, soweit diese nicht zur Betankungsanlage gehören, auf benachbarte Verkehrsflächen sowie auf öffentliche Verkehrswege oder sonstige, insbesondere durch andere Personen genutzte Flächen erstrecken. Bezüglich der Wärmestrahlung wird auf DIN EN 1473: 2016-10 verwiesen.

(3) Die durch die Schutzabstände nach Absatz 2 Nummer 3 gebildeten Flächen sind von Stoffen freizuhalten, die ihrer Art oder Menge nach geeignet sind, zur Entstehung oder Ausbreitung von Bränden zu führen.

(4) Die Schutzabstände nach Absatz 2 Nummer 3 dürfen sich nicht mit den Schutzabständen von anderen Kraftstoffe nach Abschnitt 4.1.4 dieser TRGS überschneiden.

(5) Zusätzlich gelten die in Abschnitt 4.1.4.3 Absatz 8 bis 10 dieser TRGS genannten Anforderungen

3 Auswahl der Anlagenteile und Montage und Installation

(1) Es gelten die in den Abschnitten 4.2 und 4.3 dieser TRGS genannten allgemeinen Anforderungen an Gasfüllanlagen gleichermaßen für Gasfüllanlagen zur Lagerung und Abgabe von Flüssigerdgas (LNG).

(2) Die speziellen Anforderungen an die Auswahl von Anlagenteilen für Gasfüllanlagen zur Lagerung und Abgabe von Flüssigerdgas (LNG) sind in Abschnitt 4.2.4 dieser TRGS genannt.

4 Betrieb von Gasfüllanlagen für Flüssigerdgas

(1) Es gelten die in den Abschnitten 5.1 und 5.2 dieser TRGS genannten allgemeinen Anforderungen an Gasfüllanlagen gleichermaßen für Gasfüllanlagen zur Lagerung und Abgabe von Flüssigerdgas (LNG).

(2) Während der Betankung des Kraftstoffbehälters eines Fahrzeugs ist das Betreten der in Abschnitt 4.1.7 Absatz 5 genannten Bereiche durch andere Personen durch geeignete Maßnahmen zu unterbinden, z.B. durch fachkundiges Aufsichtspersonal wie LKW-Fahrer oder Tankstellenpersonal, Absperrungen und Warnzeichen.

.

Einrichtungen der Elektromobilität in räumlicher Nähe anderer Einrichtungen einer Betankungsanlage Anhang 2 22
zu TRBS 3151/TRGS 751

1 Anwendungsbereich

Dieser Anhang enthält Anforderungen an die Auslegung, die Montage, die Installation und den Betrieb von Einrichtungen der Elektromobilität, die sich in einem räumlichen oder betriebstechnischen Zusammenhang zu anderen Einrichtungen einer Betankungsanlage befinden und aus denen sich Wechselwirkungen zum Brand- und Explosionsschutz ergeben können.

2 Begriffsbestimmung

(1) Ladebetriebsart beschreibt die Möglichkeit, wie ein Fahrzeug mit elektrischer Energie versorgt werden kann, und wird unterteilt in:

  1. Mode 1: Fahrzeug wird über eine separate Ladeleitung direkt an die netzseitige ein- oder dreiphasige Wechselstromspannungsquelle angeschlossen, wobei keine Kommunikation zum Elektrofahrzeug stattfindet.
  2. Mode 2: Fahrzeug wird über eine separate Ladeleitung mit ladeleitungsgebundener Steuer- und Schutzeinrichtung (IC-CPD Einrichtung) direkt an die netzseitige ein- oder dreiphasige Wechselstromspannungsquelle angeschlossen, wobei die IC-CPD-Einrichtung mit dem Elektrofahrzeug kommuniziert und den Ladestrom begrenzt.
  3. Mode 3: Fahrzeug wird über eine fest montierte oder separate Ladeleitung an eine Ladestation angeschlossen. Die elektrische Energie wird ein- oder dreiphasig als Wechselstrom übertragen. Die Ladestation überwacht den Ladevorgang.
  4. Mode 4: Fahrzeug wird über eine fest montierte Ladeleitung an eine Ladestation angeschlossen. Die elektrische Energie wird als Gleichstrom und ggf. über einen Zwischenspeicher übertragen. Die Ladestation überwacht den Ladevorgang.

(2) Einrichtungen der Elektromobilität bestehen aus Bauteilen wie Steckdose, Ladestation, Ladeleitung inklusive der E-Fahrzeugkupplung, ortsfeste oder ortsbewegliche Zwischenspeicher und die zugehörige Elektroinstallation und -verteilung inklusive dem Transformator. Beispielhaft sind in den Abbildungen A2-1 bis A2-3 mögliche Verknüpfungen der Einrichtungen der Elektromobilität dargestellt.

(3) Die Ladestation ist die Einheit für den Kunden, um das Auto mit elektrischer Energie laden zu können. Dazu zählen insbesondere Steckdosen, Ladeleitungen, Bedien- und Messeinrichtungen, Elektronikkomponenten und zugehörige Gehäuse.

(4) Ortsfeste Zwischenspeicher sind in der Regel von der Ladestation räumlich getrennte Akkumulatoren, in denen Energie gespeichert werden kann.

(5) Ladestationen mit integriertem Zwischenspeicher sind Ladesäulen, in denen Akkumulatoren zur Speicherung von Energie fest verbaut sind.

(6) Ortsbewegliche Zwischenspeicher mit Ladeeinrichtungen sind mobile Einheiten, die an das mit elektrischer Energie zu versorgende Fahrzeug herangeführt werden. Sie werden an einer Spannungsquelle über ein abnehmbares Netzkabel aufgeladen.

Abbildung A2-1: Einrichtungen der Elektromobilität Mode 2 und Mode 3 (Wechselstrom-Ladung)


Abbildung A2-2: Einrichtungen der Elektromobilität Mode 4 (Gleichstrom-Ladung)


Abbildung A2-3: Einrichtungen der Elektromobilität mit Zwischenspeicher (Gleichstrom-Ladung)


3 Zusätzliche Gefährdungen durch Einrichtungen der Elektromobilität

Beispiele für typische zusätzliche Gefährdungen an Anlagenteilen der Elektromobilität für Beschäftigte und andere Personen sind in der nachfolgenden Tabelle A2-1 zusammengestellt. Auf Abschnitt 3.2 dieser Technischen Regel wird verwiesen.

Tabelle A2-1: Zusätzliche Gefährdungen bei Einrichtungen der Elektromobilität in räumlicher Nähe zur Betankungsanlage

Gefährdung Auslösende Faktoren und Folgen
Anlagenbezogene Gefährdung
Gefährdung durch elektrische Ströme
  • Potenzielle Zündquellen
  • Beeinflussung von Rohrleitungen durch Kurzschlussströme und Gleichströme
  • Stromschlag
Gefährdungen durch defekte Akkumulatoren in den Zwischenspeichern
  • Brand und Explosion der Akkumulatoren
Gefährdung durch Fehlverhalten
Gefährdung bei dem Ladevorgang
  • Fehlverhalten von Beschäftigten aufgrund fehlender Unterweisung oder Beschilderung
  • Fehlverhalten des Kunden, vor allem bei der Nutzung von Ladeleitungen
  • Missachtung von Rauchverbot und offenem Feuer an Tankstellen und Gasfüllanlagen
Gefährdung durch Fehlverhalten
  • Unzureichende oder fehlende Beschilderungen
  • Unzureichende Bedienungsanweisung
Gefährdung durch lange Standzeiten
  • Versperrung von Fahr-, Flucht- und Rettungswegen
Gefährdung durch Wechselwirkungen
Gefährdung bei Arbeiten an den Einrichtungen der Elektromobilität
  • Überschneiden von Gefahrenbereichen
  • Unzureichende elektrotechnische Qualifikation
  • Auswirkung von elektrischen Zündgefahren auf Anlagenteile der Betankungsanlage
  • Unzureichende Abstimmung mit dem Verantwortlichen der Betankungsanlage bzgl. anderer Arbeiten oder bei der Anlieferung von Kraftstoff mit dem Fahrer des Tankfahrzeugs
Gefährdung bei Arbeiten an der Betankungsanlage
  • Durch Kraftstoffaustritt bedingt Entstehung und Ausdehnung von
    1. explosionsfähigen Dampf-Luft-Gemischen, die in die Einrichtungen und Bereiche der Elektromobilität gelangen können sowie
    2. einer möglichen Entzündung

4 Bereitstellung der Elektromobilität in räumlicher Nähe zu anderen Einrichtungen einer Betankungsanlage

4.1 Grundsätzliches

(1) Betankungsanlagen dienen zur Lagerung und Abgabe von flüssigen und gasförmigen Kraftstoffen nach Abschnitt 2 Absatz 11 dieser Technischen Regel. Dabei kann nicht ausgeschlossen werden, dass durch Leckagen oder Undichtigkeiten entzündbare Flüssigkeiten, Gase oder Dämpfe austreten und zu einer gefährlichen explosionsfähigen Atmosphäre führen können. Dies wiederum führt zur Ausweisung von Gefahrenbereichen an Betankungsanlagen, in denen Brand- und Explosionsschutzmaßnahmen zu treffen sind. Dies ist bei der Installation und dem Betrieb von Anlagen der Elektromobilität zu berücksichtigen.

(2) Die Gefahrenbereiche nach Absatz 1 umfassen

  1. die explosionsgefährdeten Bereiche nach Abschnitt 4.1.10,
  2. die Wirkbereiche nach Abschnitt 4.1.7 dieser Technischen Regel,
  3. die in den Abschnitten 4.1.4 und 4.1.9 sowie im Anhang LNG genannten Schutz- und Sicherheitsabstände sowie
  4. die Bodenflächen an den Abgabeeinrichtungen der Kraftstoffe und an den Abfüllflächen zur Befüllung der Lagerbehälter.

(3) Einrichtungen der Elektromobilität sollen grundsätzlich nicht in den in Absatz 2 genannten explosionsgefährdeten Bereichen oder Wirkbereichen installiert werden. Falls in diesen Bereichen elektrische Betriebsmittel oder Installationen installiert werden müssen, müssen diese den Vorgaben der TRGS 723 entsprechen und entsprechend den Festlegungen im Explosionsschutzdokument explosionsgeschützt ausgeführt sein.

(4) In den Bereichen nach Absatz 2, die durch die genannten Schutz- und Sicherheitsabstände von der Betankungsanlage gebildet werden, dürfen außer den für die jeweilige Kraftstoffart vorgesehenen Einrichtungen keine Einrichtungen der Elektromobilität installiert werden.

(5) Einrichtungen der Elektromobilität sind so zu errichten, dass Flucht- und Rettungswege oder öffentlich zugängliche Verkehrsflächen nicht eingeschränkt werden.

(6) Die Möglichkeit des Unterfließens von Einrichtungen der Elektromobilität durch auslaufenden Kraftstoff ist zu verhindern, z.B. durch eine ausreichende Aufkantung. Bei der Positionierung der Bodenabläufe zu Leichtflüssigkeitsabscheidern ist der Gefahrenbereich von 0,5 m gemäß Abbildung 11 in Abschnitt 5.2.3 zu beachten. Die Einrichtungen der Elektromobilität sind außerhalb der in den Abschnitten 4.2.1 bis 4.2.5 genannten Bodenflächen (Betankungsflächen und Abfüllflächen der Tankfahrzeuge) so zu installieren, dass keine Anlagenteile der Elektromobilität einschließlich der Ladeleitungen in die vorgenannten Bodenflächen hineinragen.

(7) Die Einrichtungen der Elektromobilität (bei Ladebetriebsarten Mode 3 und 4) bzw. die Steckdosen der Elektromobilität (bei Ladebetriebsarten Mode 1 und 2) müssen durch eine Befehlseinrichtung in einen sicheren Zustand geführt werden können. Dazu ist im Gefahrenfall das Laden der Fahrzeuge sowie die Energiezufuhr zu den Einrichtungen der Elektromobilität zu unterbrechen. Im Ladebetrieb mit Zwischenspeicher ist zusätzlich durch die Befehlseinrichtung nach Satz 1 auch der Zwischenspeicher in einen sicheren Zustand zu versetzen, indem der Zwischenspeicher elektrisch freigeschaltet wird.

(8) Die in Absatz 7 genannte Befehlseinrichtung ist in die in Abschnitt 4.1.2 "Befehlseinrichtungen zum Abschalten" dieser Technischen Regel genannten Befehlseinrichtung zu integrieren. Durch diese Einrichtung sind die in Abschnitt 4.1.2 genannten Anlagenteile der Betankungsanlage und die Einrichtungen der Elektromobilität gemeinsam in einen sicheren Zustand zu überführen.

(9) Bei Betrieb ohne Beaufsichtigung der Betankungsanlage ist gemäß Abschnitt 4.1.3 dieser Technischen Regel zusätzlich ein Anlagen-Aus-Taster vorzusehen. Durch diesen Anlagen-Aus-Taster müssen neben der in Abschnitt 4.1.3 dieser Technischen Regel genannten Einrichtungen der Betankungsanlage auch die Einrichtungen der Elektromobilität in einen sicheren Zustand versetzt werden. Abschnitt 4.1.3 Absatz 7 dieser Technischen Regel gilt sinngemäß.

(10) An Einrichtungen der Elektromobilität, die in einem räumlichen oder betriebstechnischen Zusammenhang mit der Betankungsanlage stehen, muss zusätzlich zu Abschnitt 4.2.7 Absatz 4 dieser Technischen Regel mindestens ein Feuerlöscher der Brandklasse ABC mit einem Löschvermögen von mindestens 6 Löschmitteleinheiten gemäß ASR A2.2 vorhanden sein.

4.2 Anforderung an den Aufstellungsort der Elektromobilität

4.2.1 Ladebetriebsarten Mode 1 und 2

(1) Der Stellplatz für das mit elektrischer Energie zu versorgende Fahrzeug sowie die zugehörige Steckdose müssen außerhalb der in Abschnitt 4.1 Absatz 2 dieses Anhangs genannten Gefahrenbereiche sowie außerhalb der Verkehrswege für die mit flüssigen oder gasförmigen Kraftstoffen zu betankenden Fahrzeuge und der anliefernden Tankfahrzeuge liegen. Der Stellplatz und die Steckdose sind zu kennzeichnen.

(2) Die Steckdose für den Netzanschluss ist in räumlicher Nähe zum Stellplatz nach Absatz 1 vorzusehen. Dabei ist zu beachten, dass die Ladeleitungen nicht in die Gefahrenbereiche nach Abschnitt 4.1 Absatz 2 dieses Anhangs hineinreichen.

(3) Die Steckdose(n) für den Netzanschluss muss/müssen mit einem separaten Fehlerstromschutz-Schalter (RCD bzw. FI-Schalter) gemäß gültigen VDE-Bestimmungen ausgerüstet sein.

(4) Die Nutzung von fahrzeugherstellerseitig zugelassenen Ladeleitungen an der (den) Steckdose(n) ist in einer Betriebsanweisung festzulegen und vor Ort auszuhängen.

4.2.2 Ladebetriebsarten Mode 3 und 4

(1) Der Stellplatz für das mit elektrischer Energie zu versorgende Fahrzeug muss außerhalb der in Abschnitt 4.1 Absatz 2 dieses Anhangs genannten Gefahrenbereiche sowie außerhalb der Verkehrswege für die mit flüssigen oder gasförmigen Kraftstoffen zu betankenden Fahrzeuge und der anliefernden Tankfahrzeuge liegen. Der Stellplatz ist zu kennzeichnen.

(2) Alle Einrichtungen der Elektromobilität einschließlich der Ladeleitungen müssen außerhalb der in Abschnitt 4.1 Absatz 2 dieses Anhangs genannten Gefahrenbereiche sowie außerhalb der Verkehrswege für die mit flüssigen oder gasförmigen Kraftstoffen zu betankenden Fahrzeuge und der anliefernden Tankfahrzeuge liegen.

(3) Es ist sicherzustellen, z.B. durch Kabelrückholeinrichtung, dass die fest installierten Ladeleitungen im Fahrbahnbereich nicht überfahren werden können.

(4) Ladestationen müssen so aufgestellt oder gesichert sein, dass sie durch Fahrzeuge nicht angefahren oder durch Teile von Fahrzeugen nicht beschädigt werden können. Dies gilt für Ladestationen als erfüllt, wenn sie erhöht auf einem den Geräteumfang allseitig überragenden Sockel, auf einer durch Kantsteine begrenzten Insel aufgestellt oder durch Prellsteine, Radabweiser oder ähnliche Einrichtungen mit einer Höhe von mindestens 12 cm und einem seitlichen Überstand von mindestens 20 cm geschützt sind.

(5) Zwischenspeicher müssen gegen Beschädigungen durch Anfahren geschützt sein. Thermische und mechanische Einwirkungen sind gemäß Herstellerangaben zu vermeiden. Abschnitt 4.1.4.1 Absatz 1 Nummer 1 a) dieser Technischen Regel gilt sinngemäß.

(6) Absatz 5 gilt für Ladestationen mit integriertem Zwischenspeicher als erfüllt, wenn diese allseitig durch Kantsteine, Prellsteine, Radabweiser oder ähnliche Einrichtungen mit einer Höhe von mindestens 12 cm und einem seitlichen Überstand von mindestens 20 cm sowie

  1. stirnseitig durch Kantsteine, Prellsteine, Radabweiser oder ähnliche Einrichtungen mit einer Höhe von mindestens 80 cm oder
  2. stirnseitig durch eine Dachstütze mit statischem Nachweis gegen Anpralllasten geschützt sind.

(7) Ortsfeste Zwischenspeicher müssen gegen Brandeinwirkung geschützt sein. Abschnitt 4.1.4.1 Absatz 1 Nummer 2 dieser Technischen Regel gilt sinngemäß. Die Zwischenspeicher müssen mindestens 5 m von Brandlasten in der Umgebung, benachbarten Grundstücken oder öffentlichen Verkehrsflächen (Schutzabstand) sowie den in Abschnitt 4.1 Absatz 2 genannten Bereichen entfernt sein. Der Abstand von 5 m darf verringert werden, wenn die Zwischenspeicher gegen unzulässige Erwärmung während mindestens 90-minütiger Brandeinwirkung geschützt sind. Der Schutz kann durch eine feuerbeständige, massive Schutzwand erfolgen. Die notwendigen Schutzmaßnahmen sind in einer brandschutztechnischen Bemessung abhängig von der Art, Menge und Größe der brennbaren Stoffe/Bauten als auch von den Umgebungsfaktoren festzulegen und das Ergebnis in der Gefährdungsbeurteilung zu dokumentieren.

(8) Einrichtungen der Elektromobilität sowie die Stromleitungen sind so aufzustellen und zu verlegen, dass eine schädliche Wechselwirkung durch Induktion von elektrischer Energie in die metallischen Rohrleitungen und Lagerbehälter sowie die elektrischen Installationen der Betankungsanlage verhindert wird. Dies ist gegeben, wenn

  1. die Kabel- und Leitungsverlegung nach DIN VDE 0100520 erfolgt und
  2. der Mindestabstand von Kabel und Leitungen zu Anlagenteilen der Betankungsanlage (Rohrleitungen, Lagerbehälter) grundsätzlich allseitig 1 m beträgt. Bei kreuzender Anordnung kann der Abstand auf 0,5 m reduziert werden.

(9) Um das Risiko von Potentialunterschieden zur Betankungsanlage zu vermeiden, sind die Einrichtungen der Elektromobilität in den Potentialausgleich der Betankungsanlage einzubinden, sofern dies zu keinen gefährlichen Ausgleichströmen über eine der beiden Anlagenteile führt.

4.2.3 Ortsbewegliche Zwischenspeicher mit Ladeeinrichtungen

(1) Ortsbewegliche Zwischenspeicher mit Ladeeinrichtungen nach Abschnitt 2 Absatz 5 dieses Anhangs dürfen nur in dafür vom Arbeitgeber festgelegten und gekennzeichneten Bereichen verwendet werden. Diese Bereiche müssen außerhalb der in den in Abschnitt 4.1 dieses Anhangs genannten Gefahrenbereiche sowie außerhalb der Verkehrswege für die mit flüssigen oder gasförmigen Kraftstoffen zu betankenden Fahrzeuge und der anliefernden Tankfahrzeuge liegen.

(2) Die Benutzung von ortsbeweglichen Zwischenspeichern mit Ladeeinrichtungen ist in einer spezifischen Gefährdungsbeurteilung zu beurteilen und in einer Betriebsanweisung zu regeln und diese vor Ort auszuhängen.

4.3 Betrieb der Einrichtungen der Elektromobilität

(1) Beschäftigte sind zusätzlich zu Abschnitt 5.1.1 dieser Technischen Regel auch über die Gefahren durch die Einrichtungen der Elektromobilität zu unterweisen.

(2) Der Arbeitgeber hat zusätzlich zu Abschnitt 5.1.2 dieser Technischen Regel auch die Einrichtungen der Elektromobilität zu überwachen.

(3) Die Einrichtungen der Elektromobilität dürfen nicht betrieben werden, wenn Anlagenteile der Einrichtungen oder eine Ladeleitung eine Beschädigung aufweisen.

(4) Für einen sicheren Betrieb der Einrichtungen der Elektromobilität in räumlicher Nähe zu einer Betankungsanlage muss die Benutzung der Einrichtung der Elektromobilität in einer allgemein verständlichen Betriebsanweisung festgelegt sein. Diese ist in dauerhafter Form gut sichtbar im Blickfeld des Kunden an oder nahe der Einrichtungen der Elektromobilität auszuhängen (z.B. als selbsterklärendes Piktogramm).

(5) Für den Betrieb der Einrichtungen der Elektromobilität sind durch den Arbeitgeber geeignete Instandhaltungsmaßnahmen (Kontrolle, Inspektion, Wartung) festzulegen und durchzuführen. Dabei sind die Herstellerangaben zu berücksichtigen.

(6) Der Arbeitgeber hat sicherzustellen, dass bei Arbeiten an der Betankungsanlage keine gefährlichen Zustände entstehen können. Dies gilt insbesondere bei Arbeiten an Domschächten oder Schächten von Leichtflüssigkeitsabscheidern, bei denen im geschlossenen Zustand kein explosionsgefährdeter Bereich ausgewiesen ist, jedoch im geöffneten Zustand mit dem zeitlich begrenzten Vorhandensein einer gefährlichen explosionsfähigen Atmosphäre gerechnet werden muss (siehe hierzu Abbildung 11 in Abschnitt 5.2.3). Erforderlichenfalls sind die Einrichtungen der Elektromobilität in einen Anlagen-Aus Zustand zu versetzen).

(7) Der Arbeitgeber hat sicherzustellen, dass bei Arbeiten an Einrichtungen der Elektromobilität keine gefährlichen Wechselwirkungen mit der Betankungsanlage entstehen.

.

Gasfüllanlagen für Flüssigerdgas Anhang 3 22
zu TRBS 3151/TRGS 751

1 Anwendungsbereich

Dieser Anhang enthält zusätzliche Anforderungen an Errichtung, Montage, Installation und Betrieb von mobilen Gasfüllanlagen im Sinne von § 18 Absatz 1 Nummer 3 BetrSichV zur Lagerung und Abgabe von gasförmigen Wasserstoff (H2) in Landfahrzeuge und dient dem Schutz Beschäftigter und anderer Personen vor Druck-, Brand- und Explosionsgefährdungen. Dieser Anhang betrachtet den Zusammenbau bzw. das Zusammenwirken von Einzel-Modulen zu einer Anlage und beschreibt die Anforderungen für die Erstellung eines Schutzkonzeptes, welches den Anforderungen der GefStoffV und der BetrSichV genügt.

2 Begriffsbestimmungen

(1) Mobile Gasfüllanlagen für Wasserstoff im Sinne dieser Technischen Regel sind Gasfüllanlagen für Landfahrzeuge im Sinne § 18 Absatz 1 Nummer 3 BetrSichV, die nicht dafür bestimmt sind, als ortsfeste Anlagen betrieben zu werden. Sowohl die Anlagentechnik mit Abgabeeinrichtung als auch die Behälter zur Bereitstellung des Wasserstoffs sind so ausgeführt, dass sie an wechselnden Orten aufgestellt und betrieben werden können.

Mobile Gasfüllanlagen werden gemäß Tabelle A3-1 unterschieden in Kompaktanlagen und in Kombinationsanlagen. Wesentlicher Unterschied einer Kombinationsanlage zu einer Kompaktanlage ist, dass bei einer Kombinationsanlage eine bewegliche lösbare Leitungsverbindung zwischen dem Lagerbehälter und der Anlagentechnik erforderlich ist.

Tabelle A3-1: Anlagentypen von mobilen Gasfüllanlagen

Anlagentyp und Einstufung Unterscheidung nach technischem Aufbau Anmerkungen
Kompaktanlage,
ortsbeweglich*)
Lagerbehälter, Anlagentechnik mit Pufferbehälter und Abgabeeinrichtung sind als eine Einheit funktional zusammengebaut, keine bewegliche lösbare Leitungsverbindung zwischen Anlagentechnik und Lagerbehälter Die Kompaktanlage ist installiert auf
  • einem Fahrzeug oder
  • einem Anhänger

und ist als eine Einheit ortsbeweglich.

Kompaktanlage,
ortsveränderlich**)
Lagerbehälter, Anlagentechnik mit Pufferbehälter und Abgabeeinrichtung sind als eine Einheit funktional zusammengebaut, keine bewegliche lösbare Leitungsverbindung zwischen Anlagentechnik und Lagerbehälter Die Kompaktanlage ist in einem Container installiert und ist als eine Einheit ortsveränderlich.
Kombinationsanlage,
ortsbeweglich
Anlagentechnik mit Pufferbehälter und Abgabeeinrichtung sind eine Einheit
Lagerbehälter ist eine separate Einheit und ist als Kraftstofftransporteinheit ausgeführt
Zusammenschluss von Anlagentechnik und Lagerbehälter durch bewegliche lösbare Leitungsverbindung
Die separaten Einheiten der Kombinationsanlage sind installiert auf
  • einem Fahrzeug oder
  • einem Anhänger

und sind als getrennte Einheiten jeweils ortsbeweglich.

Kombinationsanlage, ortsveränderlich Anlagentechnik mit Pufferbehälter und Abgabeeinrichtung sind eine Einheit
Lagerbehälter ist eine separate Einheit und ist als Kraftstofftransporteinheit ausgeführt
Zusammenschluss von Anlagentechnik und Lagerbehälter durch bewegliche lösbare Leitungsverbindung
Lagerbehälter, Anlagentechnik mit Pufferbehälter und Abgabeeinrichtung sind in einem oder mehreren Containern installiert.
Die Container sind als getrennte Einheiten jeweils ortsveränderlich.
Kombinationsanlage, ortsveränderlich Anlagentechnik mit Pufferbehälter und Abgabeeinrichtung sind eine Einheit
Lagerbehälter ist eine separate Einheit
Zusammenschluss von Anlagentechnik und Lagerbehälter durch bewegliche lösbare Leitungsverbindung
Anlagentechnik mit Pufferbehälter und Abgabeeinrichtung sind in einem oder mehreren Containern installiert. Die Container sind als getrennte Einheiten jeweils ortsveränderlich.

Lagerbehälter ist montiert auf

  • einem Fahrzeug oder
  • einem Anhänger

und ist ortsbeweglich.

*) Eine ortsbewegliche Einheit kann innerhalb kürzester Zeit (Minuten) abfahrbereit gemacht und an einen anderen Ort transportiert werden.
**) Eine ortsveränderliche Einheit kann im Gegensatz zu einer ortsfesten Anlage leicht verladen und dann an einen anderen Ort transportiert werden.

(2) Lagerbehälter im Sinne von Absatz 2 sind gefahrgutrechtlich zugelassene Transportbehälter für Druckgase zum Transport von Wasserstoff. Die Kombination des Lagerbehälters mit dem Fahrzeug/Anhänger bzw. mit dem Container-Chassis wird im Weiteren als Kraftstofftransporteinheit bezeichnet.

(3) Ein Anlagencontainer ist die Gesamtheit der Anlagentechnik mit Pufferbehälter und Abgabeeinrichtung einschließlich Umhausung, aber ohne Lagerbehälter. Bezüglich des Anlagenumfangs wird auf Abschnitt 4.2.5.1 Absatz 1 Nummern 2 bis 11 dieser Technischen Regel verwiesen.

(4) Energieversorgungseinheit (z.B. Brennstoffzelle) dient der Energieversorgung der Gasfüllanlage und kann als separater Container (Energiecontainer) ausgeführt oder Bestandteil des Anlagencontainers sein. Alternativ kann die Energieversorgung über die öffentliche Energieversorgung erfolgen.

3 Zusätzliche Gefährdungen beim Betrieb von mobilen Gasfüllanlagen

Beispiele für typische zusätzliche Gefährdungen beim Betrieb von mobilen Gasfüllanlagen für Beschäftigte und andere Personen sind in der nachfolgenden Tabelle A3-2 zusammengestellt. Auf Abschnitt 3.2 dieser Technischen Regel wird verwiesen.

Tabelle A3-2: Zusätzliche Gefährdungen bei mobilen Gasfüllanlagen

Gefährdung Auslösende Faktoren und Folgen
Anlagenbezogene Gefährdung
Freisetzung von Kraftstoffen
  • Insbesondere bei wechselnden Aufstellungsorten ist darauf zu achten, dass es nicht zur Ansammlung des Gases aufgrund der jeweiligen Umgebungs- und Aufstellungsbedingungen kommt.
Beschädigung beim Auf- und
Abladen der Container bzw.
beim Transport der Anlagen
  • Anlagen sind beim Transport und beim Auf- und Abladen mechanischen Belastungen ausgesetzt, die zu Beschädigungen und damit zu Undichtheiten oder Fehlfunktionen der Anlage führen können.
Gefährdungen beim Austausch der Trailer oder Flaschenbündel
  • Es muss an- und abgekoppelt werden. Hierdurch können Undichtigkeiten auftreten.
  • Bildung von möglichen Zündquellen (z.B. durch Ausgleich statischer Aufladung oder Potentialdifferenzen).
  • Fehlverhalten beim Bewegen der beweglichen Anlagenteile.
  • Fehlverhalten von Beschäftigten aufgrund fehlender Unterweisung.
  • Durch Anfahren, Verschieben oder anders Beschädigen können Undichtheiten entstehen und Rohr- oder Elektroinstallationen beschädigt werden.
  • Unsachgemäße Aufstellung der Anlage kann zu Lageveränderungen oder Beschädigungen führen.
Gefährdungen beim Betanken der Fahrzeuge
  • Fehlverhalten bei der Einbindung des zu betankenden Fahrzeuges in die Erdung des Anlagencontainers
  • Fehlverhalten von Beschäftigten aufgrund ungenügender Koordinierung zwischen Betreiber und Nutzer der Anlage
Gefährdung durch Wechselwirkungen
Beleuchtung
  • Unzureichende oder fehlende Beleuchtung
Gefährdung durch Brand in der Umgebung
  • Unzureichende Abstände oder fehlende Brandschutzmaßnahmen

4 Bereitstellung mobiler Gasfüllanlagen für Wasserstoff und ihrer Anlagenteile

4.1 Grundsätzliches

(1) Der Einsatz mobiler Gasfüllanlagen dient dazu, eine nicht permanente Infrastruktur für einen begrenzten Zeitraum schnell bereitstellen zu können. Hierbei ist insbesondere bei der Anordnung der mobilen Gasfüllanlage für Wasserstoff und ihrer Anlagenteile darauf zu achten, dass keine Druck-, Brand- und Explosionsgefährdungen für Beschäftigte oder andere Personen sowie sicherheitsrelevante Wechselwirkungen mit oder von anderen Einrichtungen oder Anlagen gegeben sind. Die Aufstellung, Bauart und Betriebsweise müssen den Anforderungen der BetrSichV und hinsichtlich des Gefahrstoffschutzes, insbesondere des Brand- und Explosionsschutzes auch der Gefahrstoffverordnung entsprechen. Satz 2 gilt auch, wenn mobile Gasfüllanlagen in Betankungsanlagen, d. h. in einem räumlichen oder betriebstechnischen Zusammenhang mit Tankstellen oder anderen Gasfüllanlagen, installiert oder betrieben werden. Hierbei sind die zusätzlich auftretenden Gefährdungen durch Wechselwirkungen beim Betrieb dieser Anlagen zu berücksichtigen.

(2) In der Gefährdungsbeurteilung hat der Arbeitgeber die auftretenden Gefährdungen zu bewerten und die für die sichere Verwendung erforderlichen Maßnahmen festzulegen. Der Arbeitgeber muss dabei auch sicherstellen, dass das sichere Zusammenwirken aller Bestandteile der Anlage betrachtet wird, und dass die erforderlichen Maßnahmen für den sicheren Betrieb in einem Schutzkonzept festgelegt und umgesetzt werden, das auch die Gefährdungen durch Brand- und Explosion berücksichtigt (Explosionsschutzdokument gemäß § 6 Absatz 9 GefStoffV).

(3) Die Anforderungen an die Anlageninstallation, die Anlagenteile, den Blitzschutz, den Explosionsschutz, den Brandschutz, den Anfahrschutz sowie an den Aufstellungsort sind im Schutzkonzept nach Absatz 2 darzulegen und einer zugelassenen Überwachungsstelle gemäß § 18 Absatz 3 BetrSichV vorzulegen. Das Schutzkonzept nach Absatz 2 muss auch die besonderen Bedingungen des mobilen Betriebs an unterschiedlichen Standorten berücksichtigen. Das Schutzkonzept muss spezifische Angaben, wie z.B. Regelungen des Anschlusses an unterschiedliche Transporteinheiten (u. a. Potentialausgleich, Blitzschutz), Regelungen durch Veränderungen am Aufstellungsort (ggf. Anpassung des Explosionsschutzdokuments), Sicherheitsabstände, Brandschutzmaßnahmen, Schutz gegen mechanische Beschädigung, Schutz gegen unbefugten Zugriff und besondere Regelungen zu den Verantwortlichkeiten enthalten.

4.2 Aufstellungsort der mobilen Gasfüllanlage

(1) Der Arbeitgeber muss ggf. im Benehmen mit dem Eigentümer/Besitzer des Grundstücks sicherstellen, dass die geplanten Aufstellungsorte für die Dauer der geplanten Aufstellung eine sichere Verwendung zulassen. Ggf. sind für die Aufstellungsorte Absperrung von Verkehrsflächen etc. erforderlich.

(2) Die räumliche Ausdehnung des Schutzkonzepts muss mit der Ausdehnung des Aufstellungsorts übereinstimmen. Die Bedingungen am Aufstellungsort müssen die Einhaltung der in der Gefährdungsbeurteilung vorgesehenen technischen und organisatorischen Maßnahmen gewährleisten.

(3) Der Aufstellungsort der mobilen Gasfüllanlage muss für die auftretenden Lasten geeignet und standsicher ausgebildet sein, z.B. durch tragfähige Bodenflächen aus Beton, Betonfertigelementen oder Betonsteinen, ausreichende Fundamente zur Aufnahme von Containern oder verfestigte Schotterflächen.

4.3 Planung und Konzeption von mobilen Gasfüllanlagen

(1) Sofern nachfolgend nichts anderes festgelegt ist, gelten die in Abschnitt 4.1 dieser Technischen Regel genannten Anforderungen an Gasfüllanlagen gleichermaßen auch für mobile Gasfüllanlagen für Wasserstoff.

(2) Für die Lagerung von Wasserstoff gilt Abschnitt 4.1.4.3 Absatz 5 dieser Technischen Regel als erfüllt, wenn

  1. ein evtl. vorhandener Witterungsschutz des Lagerbehälters frei belüftet werden kann,
  2. die Kraftstofftransporteinheit mindestens 5 m von Abgabeeinrichtungen, Brandlasten gemäß Abschnitt 4.1.4.1 Absatz 1 Nummer 2 in der Umgebung des Behälters, benachbarten Grundstücken oder öffentlichen Verkehrsflächen (Schutzabstand) entfernt ist und sich außerhalb der Wirkbereiche nach Abschnitt 4.1.7 befindet. Der Abstand von 5 m darf verringert werden, wenn die Kraftstofftransporteinheit gegen unzulässige Erwärmung während mindestens 30-minütiger Brandeinwirkung geschützt ist. Dabei sind die Abgabeeinrichtungen für andere Kraftstoffe, Brandlasten gemäß Abschnitt 4.1.4.1 Absatz 1 Nummer 2 dieser Technischen Regel in der Umgebung der Kraftstofftransporteinheit, benachbarte Grundstücke und öffentliche Verkehrsflächen zu berücksichtigen. Der Schutz kann durch eine Schutzwand, ein ausreichend dimensioniertes Strahlungsschutzblech (bei reiner Strahlungswärme) oder eine Brandschutzisolierung erfolgen. Die Abmessungen und Eigenschaften sind im Rahmen einer Gefährdungsbeurteilung zu ermitteln und zu beschreiben. Die ermittelten Schutzmaßnahmen sind durch eine brandschutztechnische Bemessung abhängig von der Art, Menge und Größe der brennbaren Stoffe/Bauten festzulegen.
  3. Abweichend darf bei ausschließlich innerbetrieblich verwendeten Gasfüllanlagen der Schutzabstand von 5 m verringert werden, wenn in einem Brandschutzkonzept entsprechende Brandschutzmaßnahmen vorgesehen sind und die Gasfüllanlagen in einem für andere Personen nicht nutzbaren Verkehrsbereich liegen und ausschließlich von unterwiesenen Beschäftigten benutzt werden.
  4. die Gesamtlagermenge kleiner 3 t ist,
  5. in den durch die in Nummer 2 genannten Schutzabständen gebildeten Flächen sowie in den Wirkbereichen gemäß Abschnitt 4.1.7 kein anderer Kraftstoff gemäß Abschnitt 2 Absatz 11 oder Betriebsstoff gemäß Abschnitt 2 Absatz 12 Nummern 1 und 2 oberirdisch gelagert wird,
  6. ein Abstand oder Anfahrschutz vorhanden ist, der den Schutzzielen von Abschnitt 4.1.4.1 Absatz 1 Nummer 1 entspricht,
  7. ein Unterfließen des Lagerbehälters durch auslaufenden Kraftstoff oder sonstige brennbare Flüssigkeiten verhindert ist, z.B. durch eine geeignete Aufkantung und
  8. der aus Sicherheitseinrichtungen gegen Drucküberschreitung austretende Wasserstoff über eine Abblase- und Entspannungsleitung gefahrlos frei nach oben abströmen kann.

(3) Pufferbehälter sind gegen eine unzulässige Wärmebelastung an der Abgabeeinheit zu sichern. Satz 1 ist erfüllt, wenn die Pufferbehälter nach den Herstellerangaben für die bestimmungsgemäße Verwendung abgesichert sind, z.B. durch Öffnen einer Schmelzsicherung und Entlastung des Pufferbehälters über die Abblase- und Entspannungsleitung. Alternativ zu Satz 2 kann eine unzulässige Wärmebelastung auch durch Anordnung von Brandschutzelementen oder Strahlungsschutzblechen verhindert werden. Die Auswirkungen der Brandschutzmaßnahmen auf die ausreichende Belüftung sind zu berücksichtigen.

(4) Die Versorgung der mobilen Gasfüllanlage mit der erforderlichen elektrischen Energie kann erfolgen

  1. aus dem öffentlichen Energieversorgungsnetz oder
  2. aus einer bordeigenen Energieversorgung, z.B. einer Brennstoffzelle.

Die bordeigene Energieversorgung kann im Anlagencontainer oder in einem separaten Energiecontainer installiert sein. Bei einer Installation der Energieversorgung in einem Anlagencontainer, für den nach Abschnitt 4.1.10.7 dieser Technischen Regel explosionsgefährdete Bereiche ausgewiesen sind, müssen die Anlagen zur Energieversorgung explosionsgeschützt ausgeführt sein und den Vorgaben der TRGS 723 entsprechen.

(5) Ist die Energieversorgung nach Absatz 4 in einem separaten Energiecontainer angeordnet, so müssen alle erforderlichen Verbindungsleitungen zwischen Energiecontainer und Anlagencontainer mechanisch sicher verlegt (z.B. Leitungsbrücke), ausreichend gegen Zugriff Unbefugter und mechanische Beschädigung gesichert sein.

4.4 Anordnung von Anlagencontainer und Kraftstofftransporteinheit bei Kombinationsanlagen

Nachfolgend sind Anordnungsbeispiele von Anlagencontainer und Kraftstofftransporteinheit bei Kombinationsanlagen dargestellt.

Variante 1: Das zu betankende Fahrzeug steht parallel zur Längsseite des Anlagencontainers. Die Abgabeeinrichtung ist entweder an der Stirnseite oder an der Längsseite des Anlagencontainers angeordnet. Die Kraftstofftransporteinheit wird auf der zur Betankungsseite abgewandten Seite des Anlagencontainers angeordnet und steht parallel zur Längsseite des Anlagencontainers. Die Kraftstofftransporteinheit wird durch einen Grünstreifen gegen Beschädigung geschützt. Der Schutz gegen Beschädigung ist gemäß Abschnitt 4.3 Absatz 2 Nummer 5 dieses Anhangs zu bewerten (Abbildungen A3-1 und A3-2).

Abbildung A3-1: Parallele Anordnung von Anlagencontainer und Kraftstofftransporteinheit


Abbildung A3-2: Legende zu Abbildung A3-1


Variante 2: Das zu betankende Fahrzeug steht vor der Stirnseite des Anlagencontainers. Die Abgabeeinrichtung ist an der Stirnseite des Anlagencontainers angeordnet. Die Kraftstofftransporteinheit wird vor der gegenüberliegenden Stirnseite des Anlagencontainers angeordnet. Die Kraftstofftransporteinheit wird durch ein Gebäude gegen Beschädigung geschützt. Der Schutz gegen Beschädigung ist gemäß Abschnitt 4.3 Absatz 2 Nummer 5 dieses Anhangs zu bewerten (Abbildungen A3-3 und A3-4).

Abbildung A3-3: L-förmige Anordnung von Anlagencontainer und Kraftstofftransporteinheit auf einem Tankstellengelände


Abbildung A3-4: Legende zu Abbildung A3-3


Variante 3: Die zu betankenden Fahrzeuge stehen parallel zur Längsseite des Anlagencontainers. Die Abgabeeinrichtung ist an der Stirnseite des Anlagencontainers angeordnet. Die Kraftstofftransporteinheit wird vor der gegenüberliegenden Stirnseite des Anlagencontainers angeordnet und steht in Flucht mit dem Anlagencontainer. Die Kraftstofftransporteinheit wird durch den Anlagencontainer gegen Beschädigung durch direktes Anfahren geschützt. Gegen seitliches Anfahren des Anlagencontainers sind besondere Schutzmaßnahmen erforderlich. Der Schutz gegen Beschädigung ist gemäß Abschnitt 4.3 Absatz 2 Nummer 5 dieses Anhangs zu bewerten (Abbildungen A3-5 bis A3-7).

Abbildung A3-5: Anordnung von Anlagencontainer und Kraftstofftransporteinheit in einer Flucht mit beidseitiger Zufahrt der zu betankenden Fahrzeuge


Abbildung A3-6: Anordnung der mobilen Gasfüllanlage auf einer größeren Tankstelle mit LKW-Parkplätzen


Abbildung A3-7: Legende zu Abbildungen A3-5 und A3-6


Variante 4: Das zu betankende Fahrzeug steht parallel zur Längsseite des Anlagencontainers. Die Abgabeeinrichtung ist entweder an der Stirnseite oder an der Längsseite des Anlagencontainers angeordnet. Die Kraftstofftransporteinheit wird auf der zur Betankungsseite abgewandten Seite des Anlagencontainers angeordnet und steht parallel zur Längsseite des Anlagencontainers. Die Kraftstofftransporteinheit wird seitlich durch einen Grünstreifen und frontal durch einen Anfahrschutz gegen Beschädigung geschützt. Der Schutz gegen Beschädigung ist gemäß Abschnitt 4.3 Absatz 2 Nummer 5 dieses Anhangs zu bewerten (Abbildungen A3-8 bis A3-10).

Abbildung A3-8: Parallele Anordnung von Anlagencontainer und Kraftstofftransporteinheit und Schutz durch Anfahrschutz


Abbildung A3-9: Anordnung der mobilen Gasfüllanlage auf einem Autobahnrastplatz

Abbildung A3-10: Legende zu Abbildungen A3-8 und A3-9


5 Auswahl der Anlagenteile sowie Montage und Installation

(1) Es gelten die in den Abschnitten 4.2 und 4.3 dieser Technischen Regel genannten allgemeinen Anforderungen an Gasfüllanlagen für Wasserstoff gleichermaßen für mobile Gasfüllanlagen zur Lagerung und Abgabe von Wasserstoff.

(2) Abweichend von Abschnitt 4.2.5.2 Absatz 1 kann auf eine ausreichende elektrische Leitfähigkeit der Betankungsfläche (Ableitwiderstand < 108 Ο) verzichtet werden (z.B. bei Bodenflächen aus verdichtetem Schotter), wenn das zu betankende Fahrzeug in die Erdung des Anlagencontainers eingebunden wird. Die Erdung ist mittels eines flexiblen Erdungskabels mit mindestens 16 mm2 Querschnitt herzustellen. Dabei ist das Erdungskabel am Anlagencontainer fest anzuschließen. Der Kontakt an dem zu betankenden Fahrzeug ist mittels einer Erdungsklemme so herzustellen, dass diese sicher verriegelt ist und einen sicheren Kontakt ohne die Möglichkeit einer Funkenbildung gewährleistet. Das Erdungskabel ist am zu betankenden Fahrzeug vor dem Verbinden des Zapfschlauchs anzuschließen und darf erst wieder nach dem Lösen des Zapfschlauchs getrennt werden.

(3) Die speziellen Anforderungen an die Auswahl von Anlagenteilen für Gasfüllanlagen zur Lagerung und Abgabe von Wasserstoff sind in Abschnitt 4.2.5 dieser Technischen Regel genannt.

6 Zusätzliche Anforderungen an Kombinationsanlagen gemäß Abschnitt 2 Absatz 2

(1) Für Aufstellung und Anschließen der Kraftstofftransporteinheit neben dem Anlagencontainer gilt:

  1. Es muss sichergestellt werden, dass die Kraftstofftransporteinheiten vor Beschädigungen von außen geschützt sind, z.B. durch geeigneten Anfahrschutz. Abschnitt 4.1.4.1 dieser Technischen Regel gilt sinngemäß.
  2. Es muss sichergestellt werden, dass die Kraftstofftransporteinheiten im Gefahrenfall sicher erreicht werden können, z.B. durch Feuerwehr und Hilfskräfte.
  3. Es müssen ausreichende Verkehrsflächen dauerhaft vorhanden sein, um die Kraftstofftransporteinheiten neben den Anlagencontainer gefahrlos einparken zu können. Zwischen Kraftstofftransporteinheit und Anlagencontainer muss ausreichend Platz sein, damit gefahrlos die bewegliche lösbare Leitungsverbindung angeschlossen und die Erdungsverbindung zwischen Kraftstofftransporteinheit und Anlagencontainer hergestellt werden kann.
  4. Sattelauflieger, Fahrzeuge oder Anhänger mit Kraftstofftransporteinheit müssen festgebremst abgestellt und mit Vorlegekeilen gegen Wegrollen geschützt werden. Sattelauflieger sind von der Sattelzugmaschine zu trennen.
  5. Die Kraftstofftransporteinheiten sind in die Erdung des Anlagencontainers einzubinden. Die Erdung ist mittels eines flexiblen Erdungskabel mit mindestens 16 mm2 Querschnitt herzustellen. Dabei ist das Erdungskabel am Anlagencontainer fest anzuschließen. Der Kontakt an der Transporteinheit ist mittels einer Steckverbindung herzustellen, die sicher verriegelt ist und einen sicheren Kontakt ohne die Möglichkeit einer Funkenbildung gewährleistet. Das Erdungskabel ist am Transportbehälter vor dem Verbinden der beweglichen lösbaren Leitungsverbindung für den Kraftstofffluss anzuschließen und darf erst wieder nach dem Lösen der beweglichen lösbaren Leitungsverbindung für den Kraftstofffluss getrennt werden.
  6. Zwischen der Kraftstofftransporteinheit und dem Anlagencontainer ist eine bewegliche lösbare Leitungsverbindung für den Kraftstofffluss erforderlich. Diese bewegliche lösbare Leitungsverbindung ist am Anlagencontainer mit einer festen Verbindung anzuschließen und mittels einer Schlauchleitungskupplung an der Kraftstofftransporteinheit anzuschließen. Die Schlauchleitung und die Kupplung müssen für den maximal zulässigen Betriebsdruck ausgelegt sein. Am Anlagencontainer und an der Kraftstofftransporteinheit sind Absperrventile vorzusehen, um die bewegliche lösbare Leitungsverbindung absperren zu können. Es ist eine Entspannungsvorrichtung vorzusehen, durch die vor dem Abkoppeln der beweglichen lösbaren Leitungsverbindung eine Druckentspannung der Schlauchleitung über die Abblase- und Entspannungsleitung möglich ist. Es ist sicherzustellen, dass die bewegliche lösbare Leitungsverbindung nur im drucklosen Zustand gelöst werden kann.
  7. Die bewegliche lösbare Leitungsverbindung muss gegen Zugriff Unbefugter und gegen mechanische Beschädigung gesichert sein. Daher sollte sie unter Beachtung der Platzvorgaben in Nummer 3 so kurz wie möglich sein. Insbesondere Über-/Unterquerungen von Verkehrsflächen oder öffentlichen Verkehrswegen sind zu vermeiden.
  8. Es ist eine Vorrichtung vorzusehen, durch die bei Betätigung des Anlagen-Aus-Tasters eine Absperreinrichtung an der Kraftstofftransporteinrichtung selbsttätig geschlossen wird.
  9. Der Anschluss der Erdungsleitung und der Schlauchleitung darf nur durch eingewiesenes Personal erfolgen.

(2) Der Arbeitsbereich zwischen dem Anlagencontainer und der Kraftstofftransporteinheit muss ausreichend beleuchtet sein. Auf ASR A3.4 wird verwiesen.

7 Betrieb von mobilen Gasfüllanlagen für Wasserstoff

Es gelten die in den Abschnitten 5.1 und 5.2 dieser Technischen Regel genannten allgemeinen Anforderungen an Gasfüllanlagen gleichermaßen für mobile Gasfüllanlagen zur Lagerung und Abgabe von Wasserstoff.

Literaturhinweise

DIN 6608 "Behälter zur unterirdischen, drucklosen Lagerung von Flüssigkeiten", ersetzt durch DIN EN 12285 Teil 1:2003-07

DIN EN 1473:2016-10 "Anlagen und Ausrüstung für Flüssigerdgas - Auslegung von landseitigen Anlagen"

DIN EN ISO 10497 "Prüfung von Armaturen - Anforderungen an die Typprüfung auf Feuersicherheit"

DIN EN 12285 Teil 1:2003-07 "Werksgefertigte Tanks aus Stahl - Teil 1: Liegende zylindrische ein- und doppelwandige Tanks zur unterirdischen Lagerung von brennbaren und nichtbrennbaren wassergefährdenden Flüssigkeiten"

DIN EN 13501-1:2017-08 "Klassifizierung von Bauprodukten und Bauarten zu ihrem Brandverhalten - Teil 1: Klassifizierung mit den Ergebnissen aus den Prüfungen zum Brandverhalten von Bauprodukten" Überfüllsicherungen für ortsfeste Tanks für flüssige Brenn- und Kraftstoffe - Teil 1: Überfüllsicherungen mit Schließeinrichtung"

DIN EN 13617-1:2012-08 "Tankstellen - Teil 1: Sicherheitstechnische Anforderungen an Bau- und Arbeitsweise von Zapfsäulen, druckversorgten Zapfsäulen und Fernpumpen"

DIN EN ISO 16852:2017-04 "Flammendurchschlagsicherungen - Leistungsanforderungen, Prüfverfahren und Einsatzgrenzen"

DIN EN ISO 17268:2017-03 "Gasförmiger Wasserstoff - Anschlussvorrichtungen für die Betankung von Landfahrzeugen"

DIN EN ISO 21012:2017-03 "Kryo-Behälter - Schlauchleitungen"

DIN EN 60079-0:2015-11 "Explosionsgefährdete Bereiche - Teil 0: Betriebsmittel - Allgemeine Anforderungen"

DIN EN 60079-14 (VDE 0165-1):2014-10 "Explosionsgefährdete Bereiche - Teil 14: Projektierung, Auswahl und Errichtung elektrischer Anlagen"

DIN EN 60079-15:2016-07 "Explosionsgefährdete Bereiche - Teil 15: Geräteschutz durch Zündschutzart "n""

DIN EN 60079-25:2011-06 "Explosionsfähige Atmosphäre - Teil 25: Eigensichere Systeme"

DIN EN 60947-4-1:2014-02 "Niederspannungsschaltgeräte - Teil 4-1: Schütze und Motorstarter - Elektromechanische Schütze und Motorstarter"

DVGW G 280-1:2012-07 Gasodorierung, Beuth Verlag

Richtlinie 2014/34/EU des Europäischen Parlaments und des Rates, vom 26. Februar 2014, zur Harmonisierung der Rechtsvorschriften der Mitgliedstaaten für Geräte und Schutzsysteme zur bestimmungsgemäßen Verwendung in explosionsgefährdeten Bereichen

Richtlinie 2014/68/EU des Europäischen Parlaments und des Rates vom 15. Mai 2014 zur Harmonisierung der Rechtsvorschriften der Mitgliedstaaten über die Bereitstellung von Druckgeräten auf dem Markt

TRBS 1111 Gefährdungsbeurteilung und sicherheitstechnische Bewertung.

TRBS 1112 Instandhaltung.

TRBS 1112 Teil 1 Explosionsgefährdungen bei und durch Instandhaltungsarbeiten - Beurteilungen und Schutzmaßnahmen.

TRBS 1122 Änderungen von Gasfüllanlagen, Lageranlagen, Füllstellen, Tankstellen und Flugfeldbetankungsanlagen - Ermittlung der Prüfpflicht nach Anhang 2 Abschnitte 3 BetrSichV und der Erlaubnispflicht gem. § 18 BetrSichV

TRBS 1123 Prüfpflichtige Änderungen von Anlagen in explosionsgefährdeten Bereichen - Ermittlung der Prüfnotwendigkeit gemäß § 15 Abs. 1 BetrSichV.

TRBS 1201 Prüfungen und Kontrollen von Arbeitsmitteln und überwachungsbedürftigen Anlagen.

TRBS 1201 Teil 1 Prüfung von Anlagen in explosionsgefährdeten Bereichen und Überprüfung von Arbeitsplätzen in explosionsgefährdeten Bereichen.

TRBS 1201 Teil 2 Prüfungen und Kontrollen bei Gefährdungen durch Dampf und Druck.

TRBS 1201 Teil 5 Prüfung von Lageranlagen, Füllstellen, Tankstellen und Flugfeldbetankungsanlagen, soweit entzündliche oder hochentzündliche Flüssigkeiten gelagert oder abgefüllt werden, hinsichtlich Gefährdungen durch Brand und Explosion.

TRBS 2141 Gefährdungen durch Dampf und Druck

TRBS 3145/TRGS 745 Ortsbewegliche Druckgasbehälter - Füllen, Bereithalten, innerbetriebliche Beförderung, Entleeren.

TRBS 3146/TRGS 746 Ortsfeste Druckanlagen für Gase

TRGS 400 Gefährdungsbeurteilung für Tätigkeiten mit Gefahrstoffen.

TRGS 507 Oberflächenbehandlung in Räumen und Behältern

TRGS 720 Gefährliche explosionsfähige Atmosphäre - Allgemeines.

TRGS 721 Gefährliche explosionsfähige Atmosphäre - Beurteilung der Explosionsgefährdung.

TRGS 722 Vermeidung oder Einschränkung gefährlicher explosionsfähiger Atmosphäre.

TRGS 723 Gefährliche explosionsfähige Atmosphäre - Vermeidung der Entzündung gefährlicher explosionsfähiger Atmosphäre.

TRGS 724 Gefährliche explosionsfähige Gemische - Maßnahmen des konstruktiven Explosionsschutzes, welche die Auswirkung einer Explosion auf ein unbedenkliches Maß beschränken.

TRGS 725 Gefährliche explosionsfähige Atmosphäre - Mess-, Steuer- und Regeleinrichtungen im Rahmen von Explosionsschutzmaßnahmen.

TRGS 727 Vermeidung von Zündgefahren infolge elektrostatischer Aufladungen.

VdTÜV-Merkblatt 965 Anfahrschutz oberirdischer Lagerbehälter an Tankstellen sowie Füllanlagen zum Befüllen von Landfahrzeugen mit Druckgasen zur Abgabe an Dritte,

Teil 1: Anforderungen

Teil 2: Muster-Konstruktion für statische Ersatzlasten bis einschl. 64 kN

Teil 3: Anforderungen an nicht öffentlich zugängliche Tankstellen und Füllanlagen.

____________________
*) Hinweis: Der Inhalt der TRBS 3151/TRGS 751 wurde auf Kohärenz mit der aktuellen Gefahrstoffverordnung und Betriebssicherheitsverordnung sowie der EU-CLP-Verordnung überprüft.

Es wurden zusätzliche Anforderungen an Gasfüllanlagen für Wasserstoff (gasförmig) als auch für Flüssigerdgas (LNG) aufgenommen. Darüber hinaus sind nur kleinere, insbes. redaktionelle Änderungen und notwendige Klarstellungen vorgenommen worden:

- Neue Struktur der Nummer 4.1.4 "Aufstellung von Lagerbehälter",

- neue Anforderungen für Gasfüllanlagen für Wasserstoff und Flüssigerdgas,

- Anpassung und Abgleich der Anforderungen an Gasfüllanlagen mit der TRGS 746/TRBS 3146,

- Ermittlung der Gefahrenbereiche,

- Festlegungen zu explosionsgefährdeten Bereichen,

- Technische Anforderungen zu Stilllegung und Außerbetriebnahme.

1) Die nachfolgend genannten Anforderungen für oberirdische Anlagenteile von Gasfüllanlagen gelten sinngemäß auch für ortsbewegliche Gasfüllanlagen.

ENDE

umwelt-online - Demo-Version


(Stand: 11.04.2024)

Alle vollständigen Texte in der aktuellen Fassung im Jahresabonnement
Nutzungsgebühr: ab 105.- € netto

(derzeit ca. 7200 Titel s.Übersicht - keine Unterteilung in Fachbereiche)

Preise & Bestellung

Die Zugangskennung wird kurzfristig übermittelt

? Fragen ?
Abonnentenzugang/Volltextversion