umwelt-online: DIN 1045-1 Tragwerke aus Beton, Stahlbeton und Spannbeton; Bemessung und Konstruktion (12)
![]() |
zurück | ![]() |
13.2 Balken und Plattenbalken
13.2.1 Allgemeines
(1) Rechnerisch nicht erfasste Einspannwirkungen an den Endauflagern müssen bei der baulichen Durchbildung berücksichtigt werden. Bei Annahme frei drehbarer Lagerung sind die Querschnitte der Endauflager für ein Stützmoment zu bemessen, das mindestens 25 % des benachbarten Feldmomentes entspricht. Die Bewehrung muss, vom Auflagerrand gemessen, mindestens über die 0,25fache Länge des Endfeldes eingelegt werden.
Tabelle 30 - Mindestoberflächenbewehrung für die verschiedenen Bereiche eines vorgespannten Bauteils
| Spalte | 1 | 2 | 3 | 4 | |
| Zeile | Platten, Gurtplatten und breite Balken (bw >h) je m | Balken mitbw<h und Stege von Plattenbalken und Kastenträgern | |||
| Bauteile in Umgebungsbedingungen der Expositionsklassen XC1 bis XC4 | Bauteile in Umgebungsbedingungen der sonstigen Expositionsklassen | Bauteile in Umgebungsbedingungen der Expositionsklassen XC1 bis XC4 | Bauteile in Umgebungsbedingungen der sonstigen Expositionsklassen | ||
| 1 | - bei Balken an jeder Seitenfläche
- bei Platten mith> 1,0m an jedem gestützten oder nicht gestützten Randa |
0,5ρh
bzw. 0,5ρhf |
1,0ρh
bzw. 1,0ρhf |
0,5ρbw je m | 1,0ρbw je m |
| 2 | - in der Druckzone von Balken und Platten am äußeren Randb
- in der vorgedrückten Zugzone von Plattena b |
0,5ρh
bzw. 0,5ρhf |
1,0ρh
bzw. 1,0ρhf |
- | 1,0ρhbw |
| 3 | - in Druckgurten mith > 12 cm (obere und untere Lage je für sich)a | - | 1,0ρhf | - | - |
| a | Eine Oberflächenbewehrung größer als 3,4 cm2/m je Richtung ist nicht erforderlich. |
| b | siehe Absätze (4) und (5) |
| Dabei ist | |
| h | die Höhe des Balkens oder die Dicke der Platte |
| hf | die Dicke des Druck- oder Zuggurtes von profilierten Querschnitten |
| bw | die Stegbreite des Balkens |
| ρ | der Grundwert nach Tabelle 29 |
(2) Die Zugbewehrung darf bei Plattenbalken- und Hohlkastenquerschnitten in der Platte höchstens auf einer Breite entsprechend der halben mitwirkenden Plattenbreite nach 7.3.1 angeordnet werden.
13.2.2 Zugkraftdeckung
(1) Die Zugkraftdeckung ist in den Grenzzuständen der Gebrauchstauglichkeit und der Tragfähigkeit nachzuweisen.
(2) Bei einer Schnittgrößenermittlung nach 8.2 oder 8.3 darf im Allgemeinen auf einen Nachweis nach Absatz (1) im Grenzzustand der Gebrauchstauglichkeit verzichtet werden.
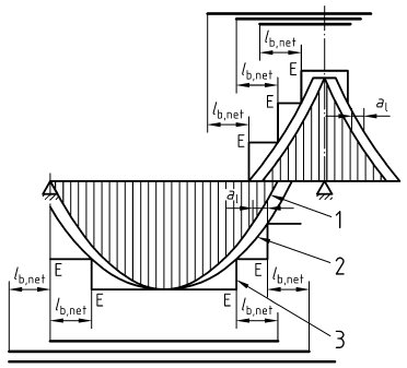
(3) Die mit Bewehrung abzudeckende Zugkraftlinie darf durch eine Verschiebung der für Biegung und Normalkraft ermitteltenFsd-Linie um das Versatzmaßa1 bestimmt werden (siehe Bild 66). Das Versatzmaß ergibt sich zu:
![]() |
(147) |
Dabei ist
| θ | der Winkel zwischen Betondruckstreben und Bauteilachse nach 10.3.4 |
| α | der Winkel zwischen Querkraftbewehrung und Bauteilachse |
| z | der innere Hebelarm; im Allgemeinen darfz = 0,9d angenommen werden (siehe auch 10.3.4) |
(4) Bei einer Anordnung der Zugbewehrung in der Gurtplatte außerhalb des Steges nach 13.2.1 (2) ista1 jeweils um den Abstand der einzelnen Stäbe vom Steganschnitt zu erhöhen.
Bild 66 - Zugkraftdeckungslinie und Verankerungslängen bei biegebeanspruchten Bauteilen

Legende
| 1 | Umhüllende für |
![]() |
|
| Dabei ist | |
| MEds | der auf die Schwerachse der Bewehrung bezogene Bemessungswert des einwirkenden Moments |
| 2 | uma1 verschobene Umhüllende |
| 3 | Zugkraftdeckungslinie |
(5) Stabenden müssen nach Bild 66 mit einer Längelb, net nach Gleichung (141) verankert werden. Für die Verankerung am Endauflager siehe Absatz (8).
(6) Mindestens ein Viertel der Feldbewehrung muss zum Auflager geführt und dort verankert werden.
(7) Die Verankerung der Bewehrung am Endauflager muss die folgende Zugkraft aufnehmen können:
| Fsd =VEd *al /z +NEd>VEd/2 | (148) |
(8) Die erforderliche Verankerungslänge am Endauflager beträgt
![]() |
(149) |
| lb, ind =lb, net e 10ds | (150) |
Dabei ist
| lb, net | die Verankerungslänge nach Gleichung (141) |
| ds | der Stabdurchmesser der zu verankernden Längsbewehrung |
Die Verankerungslänge beginnt an der Auflagervorderkante. Die Bewehrung ist jedoch in allen Fällen mindestens über die rechnerische Auflagerlinie (siehe 7.3.1 (6)) zu führen. Bei Bauteilen mit Vorspannung im sofortigen Verbund gilt 8.7.6.
(9) An Zwischenauflagern von durchlaufenden Bauteilen ist die erforderliche Bewehrung mindestens um das Maß 6 ds bis hinter den Auflagerrand zu führen.
(10) Zusätzlich sollte die unten liegende Bewehrung an Zwischenauflagern so ausgeführt werden, dass sie positive Momente infolge außergewöhnlicher Beanspruchungen aufnehmen kann (Auflagersetzungen, Explosion usw.).
(11) Zur Erzielung einer ausreichenden Seitensteifigkeit sollte bei Fertigteilen, deren Verhältnisleff/b größer als 20 ist, ein Teil der Längsbewehrung konzentriert an den seitlichen Rändern der Zug- und Druckzone angeordnet werden.
13.2.3 Querkraftbewehrung
(1) Die Querkraftbewehrung sollte mit der Schwerachse des Bauteils einen Winkel von 45° bis 90° bilden. Sie darf aus einer Kombination folgender Bewehrungen bestehen:
Bild 67 - Beispiele für Kombinationen von Bügeln und Querkraftzulagen
Legende
| 1 | Bügel |
| 2 | Bügelkorb als Zulage |
| 3 | Leiterartige Querkraftzulage |
(2) In Balken dürfen Schrägstäbe und Querkraftzulagen als Querkraftbewehrung nur gleichzeitig mit Bügeln verwendet werden. Mindestens 50 % der aufzunehmenden Querkraft müssen durch Bügel abgedeckt sein.
(3) Bei feingliedrigen Fertigteilträgern (z.B. Trägern mit I-, T- - oder Hohlquerschnitten mit Stegbreitenbw< 80 mm) dürfen einschnittige Querkraftzulagen allein als Querkraftbewehrung verwendet werden, wenn die Druckzone und die Biegezugbewehrung gesondert durch Bügel umschlossen sind.
(4) Der Bewehrungsgrad der Querkraftbewehrung ergibt sich aus Gleichung (151):
![]() |
(151) |
Dabei ist
| Asw | die Querschnittsfläche eines Elements der Querkraftbewehrung |
| sw | der Abstand der Elemente der Querkraftbewehrung (in Bauteillängsrichtung gemessen) |
| bw | die Stegbreite |
| α | der Winkel zwischen Querkraftbewehrung und Balkenachse (d. h. für Bügel senkrecht zur Bauteilachse giltα = 90°) |
(5) Der Bewehrungsgrad der Querkraftbewehrung darf folgende Mindestwerte vonρw nicht unterschreiten:
| Allgemein: | minρw = 1,0ρ |
| Für gegliederte Querschnitte mit vorgespanntem Zuggurt: | minρw = 1,6ρ |
Dabei sind die Werte fürρ Tabelle 29 zu entnehmen.
(6) Der Längs- und Querabstand der Bügelschenkel oder Querkraftzulagen darf die Werte nach Tabelle 31 nicht überschreiten.
Tabelle 31 - Größte Längs- und Querabständesmax von Bügelschenkeln und Querkraftzulagen
| Zeile | Spalte | 1 | 2 | 3 | 4 |
| Querkraftausnutzunga | Festigkeitsklasse des Betons | ||||
| < C50/60
< LC50/55 |
> C50/60
> LC50/55 |
< C50/60
< LC50/55 |
> C50/60
> LC50/55 |
||
| Längsabstand | Querabstand | ||||
| 1 | VEd< 0,30VRd, max | 0,7h bzw.
300 mm |
0,7h bzw.
200 mm |
h bzw.
800 mm |
h bzw.
600 mm |
| 2 | 0,30 VRd, max < VEd< 0,60 VRd, max | 0,5h bzw.
300 mm |
0,5h bzw.
200 mm |
h bzw.
600 mm |
h bzw.
400 mm |
| 3 | VEd > 0,60VRd, max | 0,25h bzw. 200 mm | |||
| a | VEd undVRd, max nach 10.3.2 und 10.3.4 Näherungsweise darf hierVRd, max mitθ = 40° ermittelt werden. |
(7) Der Längsabstand von Schrägstäben darf folgenden Wert nicht überschreiten:
| smax = 0,5h * (1 + cotα) | (152) |
Für den maximalen Querabstand von Schrägstäben gelten die Werte nach Tabelle 31.
(8) Die Querkraftbewehrung ist entlang der Bauteillängsachse so anzuordnen, dass diese an jedes Stelle die Bemessungsquerkraft abdeckt.
(9) Bei Tragwerken des üblichen Hochbaus darf bei der Verteilung der Querkraftbewehrung entlang des Bauteillängsachse nach Bild 68 verfahren werden.
Bild 68 - Zulässiges Einschneiden der Querkraftdeckungslinie bei Tragwerken des üblichen Hochbaus

Legende
| 1 | AuftragsflächeAA |
| 2 | EinschnittsflächeAE AE<AA |
13.2.4 Torsionsbewehrung
(1) Für die nach 10.4.2 erforderliche Torsionsbewehrung ist ein rechtwinkliges Bewehrungsnetz aus Bügeln und Längsstäben zu verwenden. Die Bügel sind in Balken und in Stegen von Plattenbalken nach Bild 56 g) und h) zu schließen.
(2) Der Längsabstand der Torsionsbügel muss die Anforderungen hinsichtlich des maximalen Abstands von Bügeln nach 13.2.3 erfüllen. Der Längsabstand der Torsionsbügel darf außerdem den Wertuk/8 nicht überschreiten (uk nach 10.4.2 (3)).
(3) Die Längsstäbe sind im Allgemeinen gleichmäßig über den Umfang innerhalb der Bügel zu verteilen. Bei polygonal berandeten Querschnitten muss mindestens in jeder Ecke ein Längsstab angeordnet werden. Wird die Längsbewehrung in den Ecken angeordnet, darf der gegenseitige Abstand der Längsstäbe 350 mm nicht überschreiten.
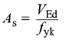
13.2.5 Oberflächenbewehrung bei großen Stabdurchmessern
(1) Zur Vermeidung von Betonabplatzungen und zur Begrenzung der Rissbreiten ist bei Bauteilen mit Einzelstäben mit einem Stabdurchmesserds > 32 mm oder Stabbündeln mit einem VergleichsdurchmesserdsV > 32 mm eine Oberflächenbewehrung erforderlich.
(2) Die Oberflächenbewehrung sollte aus Betonstahlmatten oder Stäben mit Durchmessernds< 10 mm bestehen und außerhalb der Bügel liegen.
(3) Für die Mindestbetondeckung der Oberflächenbewehrung gilt 6.3.
(4) Die Querschnittsfläche und Anordnung der Oberflächenbewehrung sollte sich nach Bild 69 richten.
(5) Die Längsstäbe der Oberflächenbewehrung dürfen als Biegezugbewehrung und die Querstäbe als Querkraftbewehrung angerechnet werden, wenn sie die Regelungen für die Anordnung und Verankerung dieser Bewehrung erfüllen.
Bild 69 - Oberflächenbewehrung
Legende
| 1 | Einzelstäbe oder Stabbündel mitds bzw.dsV > 32 mm |
| 2 | Oberflächenbewehrung As, surf< 0,02Act, ext |
13.3 Vollplatten aus Ortbeton
13.3.1 Mindestdicke
Die Mindestdicke einer Vollplatte aus Ortbeton beträgt:
| - allgemein: | 70 mm; |
| - für Platten mit Querbewehrung (aufgebogen): | 160 mm; |
| - für Platten mit Querkraftbewehrung (Bügel): | 200 mm. |
13.3.2 Zugkraftdeckung
(1) Die Regelungen von 13.2.1 und 13.2.2 gelten sinngemäß. Abweichend von 13.2.2 (6) muss mindestens die Hälfte der Feldbewehrung zum Auflager geführt und dort verankert werden. Für Stahlbetonplatten ohne Querkraftbewehrung gilt stetsa1 = 1,0d, für Platten mit Vorspannung im sofortigen Verbund gilt 8.7.6 (11).
(2) In einachsig gespannten Platten muss eine Querbewehrung vorgesehen werden, die mindestens 20 % der Zugbewehrung betragen muss. Bei Betonstahlmatten muss deren Mindestdurchmesser 5 mm betragen.
(3) In zweiachsig gespannten Platten darf die Bewehrung in der minderbeanspruchten Richtung nicht weniger als 20 % der in der höherbeanspruchten Richtung betragen.
(4) Für den maximalen Abstands der Stäbe gilt:
| - | für die Zugbewehrung: |
| s = 250 mm für Plattendickenh> 250 mm; | |
| s = 150 mm für Plattendickenh< 150 mm; | |
| Zwischenwerte sind linear zu interpolieren. | |
| - | für die Querbewehrung oder die Bewehrung in der minderbeanspruchten Richtung:s< 250 mm. |
(5) Werden die Schnittgrößen in einer Platte unter Ansatz der Drillsteifigkeit ermittelt, so ist die Bewehrung in den Plattenecken unter Berücksichtigung des Drillmoments zu bemessen.
Bild 70 - Rechtwinklige Eckbewehrung auf der Oberseite und Unterseite von Platten

Legende
| 1 | Drillbewehrung |
(6) Die Drillbewehrung darf durch eine parallel zu den Seiten verlaufende obere und untere Netzbewehrung in den Plattenecken ersetzt werden, die in jeder Richtung die gleiche Querschnittsfläche wie die Feldbewehrung und mindestens eine Länge von 0,3 minleff hat (siehe Bild 70). 14)
(7) In Plattenecken, in denen ein frei auflliegender und ein eingespannter Rand zusammenstoßen, sollte die Hälfte der Bewehrung nach Absatz (6) rechtwinklig zum freien Rand eingelegt werden.
(8) Bei vierseitig gelagerten Platten, deren Schnittgrößen als einachsig gespannt oder unter Vernachlässigung der Drillsteifigkeit ermittelt werden, sollte zur Begrenzung der Rissbildung in den Ecken ebenfalls eine Bewehrung nach Absatz (6) angeordnet werden.
(9) Ist die Platte mit Randbalken oder benachbarten Deckenfeldern biegefest verbunden, so brauchen die zugehörigen Drillmomente nicht nachgewiesen und keine Drillbewehrung angeordnet zu werden.
(10) Entlang eines freien (ungestützten) Randes ist eine Längs- und Querbewehrung nach Bild 71 anzuordnen.
(11) Bei Fundamenten und innenliegenden Bauteilen des üblichen Hochbaus braucht eine Bewehrung nach Absatz (10) nicht angeordnet zu werden.
(12) Zur Vermeidung eines fortschreitenden Versagens von punktförmig gestützten Platten ist stets ein Teil der Feldbewehrung über die Stützstreifen im Bereich von Innen- und Randstützen hinwegzuführen bzw. dort zu verankern. Die hierzu erforderliche Bewehrung muss mindestens die Querschnittsfläche nach Gleichung (153) aufweisen und ist im Bereich der Lasteinleitungsfläche anzuordnen. Abminderungen vonVEd sind dabei nicht zulässig.
![]() |
(153) |
Bild 71 - Randbewehrung an freien Rändern von Platten
Legende
| 1 | freier Rand |
| 2 | Steckbügel |
| 3 | Längsbewehrung |
13.3.3 Durchstanz- und Querkraftbewehrung
(1) Für die bauliche Durchbildung gilt 13.2.3, sofern nicht im Folgenden Abweichungen festgelegt sind.
(2) Bei Platten ohne rechnerisch erforderliche Querkraftbewehrung (VEd<VRd, ct) mit einem Verhältnisb/h > 5 ist keine Mindestbewehrung für Querkraft erforderlich. Bauteile mitb/h < 4 sind als Balken nach 13.2.3 zu behandeln.
Im Bereich 5>b/h> 4 ist eine Mindestbewehrung erforderlich, die bei Platten ohne rechnerisch erforderlicher Querkraftbewehrung zwischen dem nullfachen und dem einfachen Wert, bei Platten mit rechnerisch erforderlicher Querkraftbewehrung (VEd >VRd, ct) zwischen dem 0,6fachen und dem einfachen Wert der erforderlichen Mindestbewehrung nach 13.2.3 interpoliert werden darf.
(3) In Platten mitVEd< 0,30VRd, max darf die Querkraftbewehrung vollständig aus Schrägstäben oder Querkraftzulagen bestehen. Für Platten mitVEd > 0,30VRd, max gilt 13.2.3 (2).
(4) Für den größten Längs- und Querabstand von Bügeln gilt:
| a) | in Längsrichtung: | |
| - fürVEd< 0,30VRd, max | smax = 0,7h | |
| - für 0,30VRd, max <VEd<0,60VRd, max | smax = 0,5h | |
| - fürVEd > 0,60VRd, max | smax = 0,25h | |
| b) | in Querrichtung: | smax =h |
Der größte Längsabstand von Schrägstäben istsmax =h.
(5) Bei Anordnung einer Durchstanzbewehrung gelten die Regelungen in Bild 72.
(6) Die Stabdurchmesser einer Durchstanzbewehrung sind nach Gleichung (154) auf die vorhandene mittlere statische Nutzhöhed der Platte abzustimmen:
| ds< 0,05d | (154) |
(7) Ist bei Bügeln als Durchstanzbewehrung rechnerisch nur eine Bewehrungsreihe erforderlich, so ist stets eine zweite Reihe mit der Mindestbewehrung nach Gleichung (114) vorzusehen. Dabei istsw = 0,75d anzunehmen.
13.4 Vorgefertigte Deckensysteme
13.4.1 Allgemeines
Soweit im Folgenden nicht abweichend festgelegt, gelten die Regelungen nach 13.3. Ziegeldecken sind in DIN 1045-100 geregelt.
13.4.2 Querverteilung der Lasten
(1) Die Querverteilung der Lasten zwischen nebeneinander liegenden Deckenelementen muss durch geeignete Verbindungen zur Querkraftübertragung gesichert sein.
(2) Verbindungen zur Querkraftübertragung können sein (siehe Bild 73):
Bild 72 - Anordnung der Durchstanzbewehrung
Legende
| a) | Durchstanzbewehrung mit vertikalen Bügelschenkeln |
| b) | Durchstanzbewehrung mit Schrägstäben |
| 1 | Lasteinleitungsfläche |
(3) Sofern erforderlich, ist die Querverteilung von Punkt- oder Linienlasten durch Berechnung oder durch Versuche nachzuweisen.
(4) Bei Decken, die unter Annahme gleichmäßig verteilter Nutzlasten berechnet werden, darf der rechnerische Nachweis der Querverbindungen für eine entlang der Fugen wirkende Querkraft in Größe der auf 0,5 m Einzugsbreite wirkenden Nutzlast geführt werden. Die Weiterführung dieser Kraft braucht in den anschließenden Bauteilen im Allgemeinen nicht nachgewiesen zu werden. Wenn bei Plattenbalken die Fuge in die Platte fällt, ist nachzuweisen, dass das von der Fugenkraft in der Platte ausgelöste Kragmoment das unter Volllast entstehende Moment übersteigt.
(5) Für Platten aus Fertigteilen mit einer Breiteb< 1,20 m darf die Querbewehrung nach 13.3.2 (2) entfallen.
Bild 73 - Deckenverbindungen zur Querkraftübertragung (Beispiele)

Maße sind in mm angegeben
Legende
| a) | verzahnte Vergussfuge |
| b) | verschweißte Fuge |
| 1 | Fugenverguss |
13.4.3 Nachträglich mit Ortbeton ergänzte Deckenplatten
(1) Werden Fertigteile, die mit einer statisch mitwirkenden Ortbetonschicht versehen sind, als Verbundbauteile nach 10.3.6 bemessen, muss die Ortbetonschicht mindestens eine Dicke von 50 mm aufweisen. Die Querbewehrung darf entweder in den Fertigteilen oder im Ortbeton liegen. Bei einer Querbewehrung im Ortbeton ist 8.2 (6) zu beachten.
(2) Bei zweiachsig gespannten Platten darf für die Beanspruchung rechtwinklig zur Fuge nur die Bewehrung berücksichtigt werden, die durchläuft oder nach Bild 74 gestoßen ist. Voraussetzung hierfür ist, dass der Durchmesser der Bewehrungsstäbeds< 14 mm, der Bewehrungsquerschnittas< 10 cm2/m und der Bemessungswert der QuerkraftVEd< 0,5VRd, max (VEd undVRd, max nach 10.3.4) ist. Darüber hinaus ist der Stoß durch biegesteife Bewehrung (z.B. Gitterträger) im Abstand höchstens der zweifachen Deckendicke zu sichern. Der Betonstahlquerschnitt dieser Bewehrung im fugenseitigen Stoßbereich ist dabei für die Zugkraft der gestoßenen Längsbewehrung zu bemessen.
Bild 74 - Möglicher Tragstoß bei zweiachsig gespannten Fertigteildecken mit Ortbetonergänzung (Beispiel)

Legende
| a) | Stoß der Querbewehrung |
| b) | Stoß der Längsbewehrung |
| 1 | Fertigteilplatte |
| 2 | Ortbeton |
| 3 | Längsbewehrung |
| 4 | statisch erforderliche Querbewehrung (in der Fertigteilplatte) |
| 5 | statisch erforderliche Querbewehrung (Stoßzulage) |
| 6 | Gitterträger |
| 7 | Längsbewehrung (Stoßzulage) |
(3) Die günstige Wirkung der Drillsteifigkeit darf bei der Schnittgrößenermittlung nur berücksichtigt werden, wenn sich innerhalb des Drillbereiches von 0,3l ab der Ecke keine Stoßfuge der Fertigteilplatten befindet oder wenn die Fuge durch eine Verbundbewehrung im Abstand von höchstens 100 mm vom Fugenrand gesichert wird. Die Aufnahme der Drillmomente ist nachzuweisen.
(4) Die Aufnahme der Drillmomente braucht nicht nachgewiesen zu werden, wenn die Platte mit den Randbalken oder den benachbarten Deckenfeldern biegesteif verbunden ist.
(5) Bei Endauflagern ohne Wandauflast ist eine Verbundsicherungsbewehrung von mindestens 6 cm2/m entlang der Auflagerlinie anzuordnen. Diese sollte auf einer Breite von 0,75m angeordnet werden.
![]() |
weiter . | ![]() |
(Stand: 01.03.2019)
Alle vollständigen Texte in der aktuellen Fassung im Jahresabonnement
Nutzungsgebühr: ab 105.- € netto
(derzeit ca. 7200 Titel s.Übersicht - keine Unterteilung in Fachbereiche)
Die Zugangskennung wird kurzfristig übermittelt
? Fragen ?
Abonnentenzugang/Volltextversion